MMoDS Portfolio

Page 1

Modeling Service Scan to BIM Portfolio
Méndez
Cana Rock Suite 07 Professional Project 04 01.1 Cana Rock Suite 08 Professional Project 08 01.2 Caleton Villa 67 Professional Project 12 02.1 Estrella & Tupete Abogados Professional Project 18 03.1 Contents Professional Scant to BIM Works
04 Ɩ CC_SuITE 07

01.1

Cana Rock Suite 07

Year: 2023

Type: Suite

Location: Punta Cana/ La Altagracia

Size: 222.00m2

Client: Enhanced Engineering

Role: Scan to BIM

The project consisted of generating an architectural model using Autodesk Revit 2023, based on a Point Cloud scan.

With a total area of 222.00 square meters, we worked with a LOD 300 precision level, ensuring a detailed and accurate representation of all architectural elements.

Special attention was paid to the inclusion of visible MEP (Mechanical, Electrical, and Plumbing) installations, as well as their fixtures, integrating them coherently and functionally within the architectural model.

Additionally, material texturing was carried out to make them as faithful as possible to the initial photographic survey. This process involved meticulous texture mapping to ensure a realistic representation of the materials in the model.

05
06 Ɩ CC_SuITE 07
07
08 Ɩ CC_SuITE 08

01.2

Cana Rock Suite 08

Year: 2023

Type: Suite

Location: Punta Cana/ La Altagracia

Size: 276.00m2

Client: Enhanced Engineering

Role: Scan to BIM

Covering an area of 276.00 square meters, we maintained a LOD 300 precision level throughout the process to ensure a meticulous and accurate representation of all architectural components.

A notable feature of the design was the incorporation of openings with semi-circular arches, adding a distinctive architectural element to the structure.

Special emphasis was placed on integrating visible MEP (Mechanical, Electrical, and Plumbing) installations, along with their fixtures, in a coherent and functional manner within the architectural model.

Moreover, we undertook material texturing to align closely with the initial photographic survey, ensuring the correct alignment and emphasizing the distinctive design of the floor tiling pattern within the model. This meticulous mapping of textures aimed to achieve a lifelike portrayal of materials, enhancing the realism of the architectural representation.

09
10 Ɩ CC_SuITE 08
11
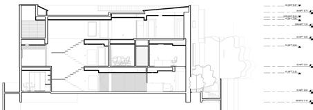
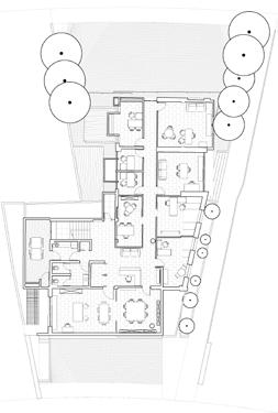
12 Ɩ PC_VILLA 67

Caleton Villa 67 02.1

Year: 2023

Type: Villa

Location: Punta Cana/ La Altagracia

Size: 1503.00m2

Client: Enhanced Engineering

Role: Scan to BIM

1503.00 square meters distributed over two floors, the building features a layout that includes both a cold kitchen and a hot kitchen, allowing for efficient food preparation and handling. With a total of six rooms, the design adapts to the occupancy needs and functionality of the space.

We worked with a LOD 300 precision level, ensuring a detailed and accurate representation of all architectural elements, including visible MEP installations and their accessories.

To ensure fidelity to the existing conditions, material texturing was carried out based on the initial photographic survey. This meticulous process ensured a realistic representation in the final model.

13
14 Ɩ PC_VILLA 67
15
16 Ɩ PC_VILLA 67
17
18 Ɩ ES_TuPETE

03.1

Estrella & Tupete Abogados

Year: 2024

Type: Office

Location: Sebastián F. Valverde H24/ Santiago

Size: 1932.00m2

Client: Enhanced Engineering

Role: Scan to BIM

Located in the province of Santiago, the project covers an area of 1932.00 square meters distributed over three floors. One notable feature is an office with double height, providing a spacious and luminous environment. Particular attention was given to the design of the ceilings, ensuring a harmonious and functional aesthetic throughout the building.

We worked with a LOD 300 precision level, guaranteeing a detailed and accurate representation of all architectural elements, including visible MEP installations and their accessories.

To ensure visual fidelity to the initial photographic survey, a meticulous texturing process of the materials was carried out, to approach a realistic of the final model.

19
20 Ɩ ES_TuPETE
21
22 Ɩ ES_TuPETE
23

Turn static files into dynamic content formats.

Create a flipbook
Issuu converts static files into: digital portfolios, online yearbooks, online catalogs, digital photo albums and more. Sign up and create your flipbook.