PORTAFOLIO - JODIE SALAZAR

Page 1


PORTA FOLIO JODIE SALAZAR

ACUPUNTURA URBANA "RIO RIMAC"
VIVIENDA BIOCLIMATICA "CASA TUMBES"
STRIP MALL Y CAMPO FERIAL
CONJUNTO HABITACIONAL "LIMATAMBO"

ETAPA GRUPAL

USO:

ÁREA:

LOCALIZACIÓN: 61ha Mixto Av FranciscoPizarroconMorrodeArica-Rimac

El proyecto de acupuntura urbana "Río Rimac" se baso en estrategias puntualesdeintervencióneneldistritodelRimac,caracterizándoseporser concretayflexible Conelfindereforzarlaidentidadculturalyrecuperarla memoria histórica. Es por ello que nos basamos en diseñar este proyecto urbano,utilizandolospilaresteóricosdelaacupunturaurbana,quetrabaja sobrepuntosdeterminadosconlafinalidadderevitalizarelconjunto

CONCEPTO

"VORONOI"

Composiciónde formasirregulares

ESTRATEGIAS DE DISEÑO

Sistem entre

Modu

Lasbarriadas,generando escalonamiento

Diferenciadealturas generadoporloscerros aledaños

Ejeseco-culturalesparala integraciónpatrimonialde loselementosexistentes sistemadeacupuntura urbana

EQUIPO: RiosNataly Romani Brenda Saenz,Paul Salazar Jodie

PROCESO DE DISEÑO

01

División del terreno en 3 vías que son proyecciones de la trama urbana con el fin de mejorar la accesibilidadenelterreno

EQUIPAMIENTO

COMERCIO

CamposFeriales

Mercadominorista

Centrosdeacopio

02 03

RECREACIÓN

Parqueslocalesy vecinales

Parqueszonales

Complejodeportivo

CULTURAL

Creacióndedosejes:elculturalalolargodelterreno para unir con la huaca “La florida” ; y el eje articulador,elcualestásuspendidolograndorecorrer el terreno y a su vez conectarlo con los edificios de vivienda

Superposición de trama del voronoi y formación de volúmenesconlatramainsertadaylasáreasverdes queseintegranconlosvolúmenescreados.

Bibliotecamunicipal

Auditoriomunicipal Museo

SALUD

Puestosdesalud tipoII

CentrodeSalud

SECTOR ELEGIDO

VIVIENDAS DE DENIDAD MEDIA

VIVIENDAS DE DENSIDAD ALTA

TECHOS URBANOS

EJE ECO-CULTURAL

EJE ARTICULADOR

EJE PEATONAL

MasterPlandel sectorelegido

Vistaalparque centralyalos edificiosdesu alrededor

LEYENDA
Ejearticulador
Parque Central-Plaza

USO:

Viviendaunifamiliar

ÁREA:

250m²

LOCALIZACIÓN:

CarreteraPanamericanaNorte-Tumbes

El diseño del prototipo de vivienda será un diseño sostenible y sustentable ambientalmente, debido a que los materiales usados son netamente de materiales reciclados como el ladrillo y concreto ecológico Además, que estediseñosepuedeadaptaralascondicionesdelaciudaddeTumbes

La vivienda ahorrará una considerable cantidad de energía, ya que posee diversossistemasdeenfriamientoaligualqueelusodeenergíaslimpiasy recoleccióndelluviasparaelabastecimientodeloshuertosdelhogar

CONCEPTUALIZACIÓN

Sistemadeenfriamientopasivopormediodelaprotecciónsolar

Eficiencia energética (Ventilación natural, Luz natural,confort térmico y ahorroenergético)

Usodeenergíasrenovablesyrecoleccióndelluviasestacionales

CRITERIOS DE DISEÑO

Plantalinealyabierta

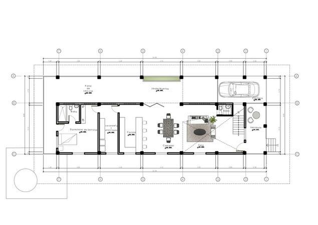
PLANIMETRIA

Elevación del terreno para la prevención de futurasinundaciones

Ventilacióncruzadaentodoslosambientescon alturainteriorentre3y35

Necesidad de protección solar durante todo el año . Razón por la que se propondrá un doble techoparaevitaruncalentamientodirecto

SOSTENIBILIDAD

C A M P O F E R I A L

USO: ÁREA:

7150m²

LOCALIZACIÓN:

Comercial Av FranciscoPizarro1144conMorrodeArica-Rimac

Este proyecto se encuentra ubicado en el distrito de Rimac Para su desarrollosetomóenconsideraciónelanálisisurbanodellugarEnbasea esto se propuso trabajar con 3 conceptos: la Fluidez de río Rimac, los desniveles de las barridas y movimiento de los cerros Es por ello que el trabajo posee una cobertura llamativa con curvas que generan dicho movimiento Además, se planteó estructurar este proyecto con tridilosas y elsistemadealbañileriaconfinada

DIAGNÓSTICO

ZONIFICACIÓN

Laspropuestasdeterrenosedanconelfindecrearuna conexión entre la Huaca y centro histórico mediante un circuitoturísticobienconectadoyplanificado

Elcircuitoinvolucraríaunrecorridoestratégicoquenodejeningún hito del distrito apartado el uno del otro, pudiendo realizarlo ya sea en auto o bicicleta de forma segura; así como, reafirmar su pertenenciaeimportanciaenelcentrohistóricodeLima

LEYENDA

Zonahistórica

Nolugares

LEYENDA

Circuitoturistico

Ciclovia

TiendasIndependientes

Guardería Áreaadministrativa

Campoferial

Baños

Standsdecomida

Patiodecomidas

Áreasverdes

Circulacióndeservicios

Agenciasbancarias

Topico Zonadecarga

Restaurantes

GYMySpa

Biohuertos

Tiendaancla Cafeterias

PLANIMETRÍA

DETALLE

Plazacentraláreadedescanso
Plazacentral principal
Zonadeniñosy biohuertos

" L I M A T A M B O "

USO: ÁREA:

LOCALIZACIÓN: 1496254m²

Mxtos Av JoseGalvez,Av HartTerre-SanBorja

EsteproyectoseencuentraeneldistritodeSanBorja Parasudesarrollose tomóenconsideraciónelanálisisurbanodelazonadeestudio.Enbasea esto, se propuso trabajar con 3 conceptos: la TOPOGRAFÍA del terreno, CONECTAR para crear puntos de encuentro que canalicen la interacción de las personas y ATRAER, con la finalidad de cautivar a los nuevos visitantespormediodelasactividades,recorridoymezcladeusos Espor elloqueseplanteóunconjuntodeusosmixtosconunaseriededesniveles permitiendocambiarlaperspectivadelrecorridodelusuario

CONCEPTUALIZACIÓN

La topografía particular del sitio de emplazamiento nos permite cambiar laperspectivadelrecorrido

Esunaexperienciaquepermitealhombreserelprotagonistayasípoder mezclarse con la naturaleza, de una manera experimental por medio del recorrido

Crearpuntosdeencuentroquecanalicenlainteraccióndelaspersonas

UESTA MASTER PLAN

PROCESO DE DISEÑO

La topografía nos permitirá cambiar la perspectiva delrecorrido

Los accesos más importantes serán por las vías principales(Av JoseGalvez,Av HartTerre)

Las fachada con mayor incidencia solas son las del Este y Oeste por lo que se considerará ventilar desde elladosur

Se crearán puntos de encuentro que canalicen la interaccióndelaspersonas

PLANIMETRÍA

BANCA CON ESTRUCTURA DE MADERA

DETALLE 1 ANCLAJE DE ESTRUCTURA

ISOMETRÍA DE ENSAMBLAJE

DETALLE 2 ENCAJE DE PIEZAS

DETALLE 3 FIJACIÓN DE MADERA ISOMETRÍA

DETALLE CUBIERTA RETROILUMINADA

ISOMETRÍA

DETALLE BANCA CON JARDINERA

DETALLE DE UNIÓN

DETALLE DE UNIÓN

1

DETALLE 1 CUBIERTA RETROILUMINADA

DETALLE SPOT DE PISO

DETALLE LUZ LED

DETALLE DE UNIÓN

1

Av arq
Malachowskyy
Ca EmilioHart
Terre
EjeconectorAlameda Espaciopúblicoalamedacultural

T E M P O R A L

USO:

ÁREA:

LOCALIZACIÓN: 5645,13m²

ProtecciónSocial CiudaddeTingoMaría-Huánuco

PROYECTO DE TESIS:

En el Perú, existen instituciones especializadas en el tema como lo son las Líneas de emergencia, Centros de Emergencia Mujer (CEM), el cual tiene instalaciones en todos los departamentos del país, de los cuales 30 funcionan las 24 horas del día; y los Hogares de Refugio Temporal (HRT) Estosespaciosaúnsoninsuficientesendiferentesregiones;aligualqueen eldepartamentodeHuánuco,dondelasituaciónnoesdistinta,puestoque soloexisteunHRTentodalaregiónyestenolograabastecerlademanda existente

Es importante el desarrollo de uno o varios HRT, pues estos espacios proporcionan alojamiento seguro a mujeres y niños. Pueden ofrecer servicios y recursos que permitan a la mujer reconstruir su autoestima, sobreponerse de la violencia y dar los pasos para restablecer su vida con autodeterminacióneindependencia

PROBLEMÁTICA

Problemas más controversiales y continuos enlasociedadanivelmundialynacional

Aumento de los casos contra la violencia hacialamujer

CONCEPTUALIZACIÓN

Mal manejo del presupuesto destinado a la proteccióndemujeresviolentadas

Faltadeejecuciónenlasobras

Hogares de Refugio Temporal sin ser registradosporelMIMP

La inexistencia de una política nacional contra la violencia hacia las mujeres en el Perú

01 02 03

Nocumpleconlademandaactual

Faltadeespaciosdestinadosaesteuso

EQUIPO: RiosNataly Salazar,Jodie

PROCESO DE DISEÑO

FASE 1

Se plantea tres volúmenes circulares integrados las cuales representan conexión yrelaciónentreespacios

FASE 2

Los volúmenes empiezan a generar espacios internos con intención de patios de interacción

ZONIFICACIÓN

FASE 3

Diferenciación de funciones mediante juego de alturas y composiciónvolumétrica

FASE 4 HRT

Desfase de volúmenes en las fachadas para generar movimientoenestas

LEYENDA

ELEVACIÓN

CORTE A-A
JR 1ERO DE MAYO
INGRESO PRINCIPAL
COMEDOR
DORM. DE RESIDENCIA

CORTE ESCANTILLON FACHADA DE VIVIENDA

Plazacentral
Plazade residencia
Zonadedescanso deresidencia

Ingreso Fachada

Vistas
Vistas Internas
Vistas Internas
Sala Vista1
Comedor Vista2
Dormitorio1
Vista3
Fachada VistaDiurna
Fachada VistaNocturna
Fachada Vista Nocturna

Turn static files into dynamic content formats.

Create a flipbook
Issuu converts static files into: digital portfolios, online yearbooks, online catalogs, digital photo albums and more. Sign up and create your flipbook.
PORTAFOLIO - JODIE SALAZAR by JODIE BRITNEY SALAZAR QUICHE - Issuu