PORTIFÓLIO - JOÃO TERRA

Page 1


PORTFÓLIO

JOÃO FELIPE TERRA

Arquitetura e Interiores 2024

Tenho 26 anos, atualmente morando na cidade de Mogi das Cruzes–SP, onde nasci e me formei em 2022 pela Universidade de Mogi das Cruzes (UMC) em arquitetura e urbanista. Organizado e dedicado, abordo cada projeto com o compromisso e excelência, seja projetando espaços arquitetônicos ou espaços de interiores, eu me esforço para entregar meu melhor trabalho. Acredito firmemente que as melhores ideias florescem quando as mentes se unem. Trabalhar em grupo não é apenas uma posição social, mas uma fonte de inspiração e motivação.

26 Anos

Vila Suissa – Mogi das Cruzes - SP (11) 9 6260-5099| (11) 4739-1431

jhon.014@hotmail.com

www.linkedin.com/in/joao-felipe-terra-b3652017b https://issuu.com/joaoterraa/docs/portif_lio_1_

FORMAÇÃO

ARQUITETURA E URBANISMO - UNIVERSIDADE MOGI DAS CRUZES (UMC)

Inicio 06/2016 - Fim 06/2022;

TÉCNICO EM EDIFICAÇÕES - SENAI ORLANDO LAVIERO - TATUAPÉ

Inicio 01/2014 - Fim 12/2015;

IDIOMAS

INGLÊS INTERMEDIÁRIO

One Way Línguas; 6 Anos e Meio.

CONHECIMENTOS

SKETCHUP

AUTOCAD REVIT

ENSCAPE

LAYOUT PROMOB

EXPERIÊNCIAS PROFISSIONAIS

ANALISTA DE PROJETO PLENO - CLARO BRASIL LTDA. 12/2022 - 08/2023

Alteração de projetos da rede de telecomunicação do Brasil e o gerenciamento entre o projeto e a equipe técnica.

CADISTA PROJETISTA - BRÁS CUBAS MARMORARIA 06/2019 - 11/2022

Elaboração do projeto executivo para aprovação com os arquitetos e o projeto de execução para corte no AutoCAD e Sketchup.

ESTÁGIO - COUTINHO ARQUITETURA 04/2018 - 11/2018

Aprovações dos projetos arquitetônicos uniresidencial e demais em órgãos públicos do Alto Tiete.

CURSOS LIVRES

DETALHAMENTO DE PROJETOS

Arqtemplates - 2023

DESIGN DE INTERIORES E DECOR. RESIDENCIAL Projetou - 2022

PROJETO E DET. DE MÓVEIS PLANEJADOS Projetou - 2022

EXCEL BÁSICO AO INTERMEDIÁRIO PREPARA CURSOS - 2011

UBS - VILA SUISSA

Para esse projeto foi pensado em um espaço que atendesse as necessidades de uma Unidade Básica de Saúde, mas que não fosse um espaço fechado e enclausurado.

Precisava que fosse um espaço simples, mas contemporâneo, que tentasse aproveitar ao máximo a topografia do local. Para isso dividi o projeto em dois níveis, com formas simples e claras, mas com grandes aberturas e com um amplo jardim aos fundos do terreno, foi projetado para edifício que atendesse as necessidades da comunidade de uma nova “UBS”.

FICHA TÉCNICA

Vila Suissa - Mogi das Cruzes; Tipologia Hospitalar; Materiais: Pedras, Vidro e Aço; Ano: 2021

Escala 1:200

IMPLANTAÇÃO

IMPLANTAÇÃO

Escala 1:200

Escala 1:200

IMPLANTAÇÃO

Sem Escala

O terreno tem um grande aclive e como solução foi concretizado o projeto em dois níveis, sendo o primeiro andar de emergência, consultórios, como um andar de atendimento e o andar inferior seria um andar restritivo a funcionários aos fundos do terreno.

VISTA FRONTAL

Escala 1:150

Rua Alfonsus de Guimarães

TÉRREO Sem Escala

TÉRREO

Para esse projeto foi pensado em um espaço que atendesse as necessidades de uma Unidade Básica de Saúde, mas que não fosse um espaço fechado e enclausurado. Precisava que fosse um espaço simples, mas contemporâneo, e que tentasse aproveitar ao máximo a topografia do local.

Para esse projeto foi pensado em um espaço que atendesse as necessidades de uma Unidade Básica de Saúde, mas que não fosse um espaço fechado e enclausurado. Precisava que fosse um espaço simples, mas contemporâneo, e que tentasse aproveitar ao máximo a topografia do local.

Para isso dividimos o projeto em dois níveis, com formas simples e claras, mas com grandes aberturas e com um amplo jardim aos fundos do terreno, foi projetado p edifício que atendesse as necessidades da comunidade de uma nova “UBS”.

Para isso dividimos o projeto em dois níveis, com formas simples e claras, mas com grandes aberturas e com um amplo jardim aos fundos do terreno, foi projetado p edifício que atendesse as necessidades da comunidade de uma nova “UBS”.

CENTRO CULTURAL CAMBUCI

O projeto está localizado na cidade de Mogi das Cruzes no bairro Nova Mogilar entre a Avenida Cívica e a Rua Masuzo Maniwa.

O Centro Cultural Cambuci é um centro cultural voltado ao ensino ambiental e a preservação da natureza direcionado para a população de Mogi das Cruzes e seu entorno, onde tem três principais focos: aprender, contemplar e refletir.

O ideal é que o usuário consiga ter uma experiência de aprender sobre novas culturas, ensinamentos sobre questões regionais como a história de Mogi das Cruzes, técnicas de preservação e políticas de educação ambiental. Além de contemplar a natureza e todos os conhecimentos culturais adquiridos e refletir sobre as suas novas experiências adquiridas no local através do contato direto com a natureza e as artes.

FICHA TÉCNICA

Mogilar - Mogi das Cruzes; Tipologia Hospitalar;

Materiais: Concreto, ETFE e Aço; Ano: 2022

novas das ambiental e frente

cultural e pessoa visse atividades

Acesso Veículos

Acesso

Principal Pedestres

localizado na cidade de Mogi das Cruzes no bairro Nova Avenida Cívica e a Rua Masuzo Maniwa

sua redor com materiais exemplo externo e representasse a Juçara, escolha tão que

O projeto está localizado na cidade de Mogi das Cruzes no bairro Mogilar entre a Avenida Cívica e a Rua Masuzo Maniwa

Cambuci é um centro cultural voltado ao ensino ambiental e natureza direcionado para a população de Mogi das Cruzes e três principais focos: aprender, contemplar e refletir

Áreas Verdes Interna e Espaço Aberto Sem Escala

O Centro Cultural Cambuci é um centro cultural voltado ao ensino ambiental e a preservação da natureza direcionado para a população de Mogi das Cruzes e seu entorno, onde tem três principais focos: aprender, contemplar e refletir

CIRCULAÇÃO

Sem Escala

usuário consiga ter uma experiência de aprender sobre ensinamentos sobre questões regionais como a história de técnicas de preservação e políticas de educação ambiental natureza e todos os conhecimentos culturais adquiridos suas novas experiências adquiridas no local através do natureza e as artes

O ideal é que o usuário consiga ter uma experiência de aprender novas culturas, ensinamentos sobre questões regionais como a história Mogi das Cruzes, técnicas de preservação e políticas de educação ambiental Além de contemplar a natureza e todos os conhecimentos culturais adquiridos e refletir sobre as suas novas experiências adquiridas no local através contato direto com a natureza e as artes

ressaltar que como as principais atividades do projeto são de ambiental, ambas estarão conectadas na maioria dos espaços mesmo que esteja em uma área cultural tenha acesso vice-versa, tanto em ambientes "indoor" como "outdoor", atividades nessas duas esferas

É imperioso ressaltar que como as principais atividades do projeto cunho cultural e ambiental, ambas estarão conectadas na maioria dos de forma que o usuário mesmo que esteja em uma área cultural tenha à área ambiental e vice-versa, tanto em ambientes "indoor" como "outdoor", pois ambas terão atividades nessas duas esferas

estética do projeto é a implantação de linhas simples na sua principal detalhe parte

A ideia para a estética do projeto é a implantação de linhas simples maior parte, quadrado onde todas atividades ficam redor

adotado

algumas Jacarandá, como exóticas, Mar

CENTRO CULTURAL CAMBUCI

Acesso veículos

Acesso principal pedestres

Acessos Sem Escala

Áreas Verdes Internas Espaço aberto

ÁREAS VERDES E ESPAÇOS ABERTOS

principais administrativa, salas de cursos livres matrículas além pé

estacionamento

Áreas Verdes
Espaço aberto

culturas, questões

Cruzes, técnicas de preservação e Contemplar a natureza e todos os conhecimentos refletir sobre as suas novas experiências natureza e as artes

imperioso ressaltar que como as ambiental estarão conectadas na maioria

mesmo que esteja em uma área cultural tanto em ambientes "indoor" e atividades nessas duas esferas

ideia para a estética do projeto é grande maior, com um quadrado onde exceto a circulação locado ao centro, facilitando todos os acessos, mas com detalhes sustentáveis em toda a sua recicláveis ou com baixo índice de podermos citar a estrutura metálica para concreto pré moldado onde não cria grande

Implantação Sem Escala

Para o jardins foi adotado espécies regional, algumas das principais Manacá-da Serra, Jacarandá, Begônia, Cambuci foi feita como homenagem grande quanto frutas exóticas, mas que na Serra do Mar e ao redor

Analise Solar Sem Escala

ESTUDO SOLAR Sem Escala

O pavimento inferior seria o subsolo, onde está toda parte de estacionamento conectado a uma rampa de acesso e área de carga e descarga, contudo, é no pavimento térreo em que todas as atividades se iniciam, onde estão os acessos ao teatro com sua arquibancada, o restaurante exposições ambientes escada orgânica

Nos Fundos nativas da Serra e a horta crianças sobre

SETORIZAÇÃO Sem Escala

No pavimento de um registro como o coworking administrativo, salas de cursos livres artísticos que necessitam matrículas além da continuação do pé direito duplo do teatro e da praça de convivência Nesse pavimento também temos os grandes terraços com espaços verdes no fundo da biblioteca com um mini anfiteatro para discursos rápidos

ELEVAÇÃO LATERAL ESQUERDA

Sem Escala

Como meio ambiente, materiais recicláveis verde, uso cerâmicos recicláveis, Cobertura ETFE

ELEVAÇÃO FRONTAL Sem Escala

Para os jardins foi adotado espécies típicas da região que representasse a flora regional, algumas das principais espécies seriam a palmeira Juçara, Manacá-da Serra, Jacarandá, Begônia, Helicônia e claro o Cambuci. A escolha do Cambuci foi feita como homenagem à fruta que tem uma importância tão grande quanto frutas exóticas, mas que não é tão difundida na sua região, que seria na Serra do Mar e ao redor.

No térreo também temos os acessos ao teatro, o restaurante com um jardim mais privativo ao fundo e salas ambientais e todos esses ambientes estão conectados a praça de convivência coma grande escada orgânica e os jardins circulares ao centro. Nos Fundos temos os jardins de cunho da exposição de espécies, mas também o orquidário, jardim sensorial e a horta infantil para as escolas visitarem o centro e ensinem as crianças a cultivação de espécies. No pavimento Superior seriam as áreas mais privativas e técnicas com os principais usos como a área administrativa, salas de cursos livres que necessitam matrículas além da continuação do pé direito duplo do teatro. Nesse pavimento também temos os grandes terraços com espaços verdes e aos fundos da biblioteca um mini anfiteatro para discursos rápidos e ao ar livre. Aplicando o conceito e atrelando ao programa de necessidades e uma fácil circulação conseguimos perceber a parte de estudo através das salas de estudo tanto de cunho artístico ou ambiental e biblioteca, contemplar a natureza e cultura através dos centros de exposições e nos jardins tanto internos e externos e refletir sobre tudo o que viu e aprendeu nas praças de convivência e dentro dos parques.

PAVIMENTO INFERIOR

Sem Escala

Como a biblioteca estará instalada dentro da escola no interiorl, a principal intenção é levar essa característica para dentro desse projeto de interiores, ligando o ambiente externo, a natureza o sustentável para dentro do edifício, ao modo que integre os ambientes e tenham uma linguagem visual, através de elementos simples e sutis mas que compõe o projeto

A escolha da paleta de cores é fundamental para transmitir essa atmosfera, com uma paleta mais neutra e terrosa nos ambientes onde a concentração são mais necessárias e cores mais leves que transmitem a leveza da natureza nos ambientes mais extrovertidos. Além disso elementos sustentáveis fazem parte da escola e temos que considerá-los como o PVC e o aço, materiais de baixo resíduo em sua utilização. Elementos como madeira e pedra, muito usados nas construções das regiões rurais serão utilizados também.

FICHA TÉCNICA BIBLIOTECA ESCOLAR

Materiais: Madeira, concreto e Pedra; Ano: 2020

Há vários tipos de usuários que utilizarão essa biblioteca. O Primeiro e um dos principais serão os alunos, onde as idades variam do ensino infantil ao ensino técnico incluindo que utilizarão o espaço em dias de semana do período de manhã

ao noturno e no caso em específico do ensino infantil precisará de um ambiente lúdico que não tenha o mesmo espaço dos demais ambientes, para que caso uma criança venha fazer barulho, não incomode os demais alunos.

Outro público a ser considerado será o público que acessa o parque durante os finais de semana, com uso controlado e limitado com algum sistema e de diferentes idades.

Em todos os casos precisam ter acesso à biblioteca digital

e um espaço lúdico para a leitura que seja agradável e, ao mesmo tempo, estimulante para leituras.

PAVIMENTA BAIXA

Sem Escala

ELEVAÇÕES

Sem Escala

ADMINISTRATIVO ÁREA LEITURA BANHOS ÁREA INFANTIL

SETORIZAÇAO Sem Escala

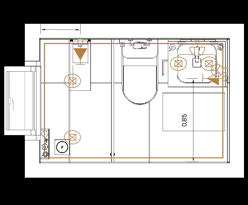
Nosso projeto visa transformar um banheiro residencial convencional em um oásis elegante e minimalista, introduzindo inovação e, ao mesmo tempo, aderindo a uma abordagem de baixo custo. Ao incorporar uma paleta sofisticada dominada por tons de cinza e preto complementados por tons quentes de carvalho, visamos criar um espaço contemporâneo e convidativo. No geral, o nosso projeto demonstrará que a inovação e a elegância podem ser alcançadas mesmo nas restrições de um orçamento limitado. Ao abraçar uma estética minimalista e integrar elementos de design inovadores, cogitamos criar um banheiro residencial que não seja apenas visualmente deslumbrante, mas também funcional, sustentável e acessível a todos.

FICHA TÉCNICA BANHO TERRA

Vila Suissa - Mogi das Cruzes; Tipologia Residencial, Ano: 2023

CORTES

PLANTA LAYOUT
Sem Escala
Sem Escala

Sem Escala

Sem Escala

PLANTA ELÉTRICA
PLANTA HIDRÁULICA
PLANTA MARMORARIA
Sem Escala
PLANTA MARCENARIA
Sem Escala

Este projeto foi criado para uma mãe e seu filho, recém-chegados a Mogi das Cruzes. O projeto foi pensado para ser um espaço aconchegante, contemporâneo e delicado, em um estilo romântico e feminino.

Para isso, foi adotada uma paleta suave de tons pastéis, como os tons verde-menta, lavanda, azul eclesiástico e rosa-claro, reforçando a harmonia cromática do espaço que trazem leveza e tranquilidade ao ambiente. O design conta com linhas curvas, uma escolha específica da cliente que aparece marcantemente, onde o formato semicircular cria uma sensação de movimento e fluidez, e mobiliários planejados agregando conforto e funcionalidade.

FICHA TÉCNICA CASA CANDY DREAM

Bras Cubas - Mogi das Cruzes; Tipologia Residencial, Ano: 2023

BANHO 01

BANHO 02

QUARTO MASTER

QUARTO FILHO

PLANTA LAYOUT
Sem Escala
COZINHA
SALA
AREA GOURMET
ESCRITÓRIO

Turn static files into dynamic content formats.

Create a flipbook
Issuu converts static files into: digital portfolios, online yearbooks, online catalogs, digital photo albums and more. Sign up and create your flipbook.