

DETALLES CONSTRUCTIVOS
OCTAVO SEMESTRE
ARQ CARLOS CARDENAS

A C A B A D O S
DETALLES CONSTRUCTIVOS
FACHADA VENTILADA
ANTEPECHO (ALFEIZER)
IMPERMEABILIZACIÓN
LÁMINA ASFÁLTICA
ENCUENTRO (DE PISO)
REVESTIMIENTO DE FACHADA
MAMPÁRA DE VIDRIO
PUERTA DE HOJASIMPLE
VENTANA CON DOBLE VIDRIO
MURO RECUBIERTO DE PIEDRA
VEREDA PERIMETRAL
CORTE DE COCINA
PLACA COLABORANTE
BLOQUES DE LADRILLO 15X20X40CM
MARCA FALCO
DETALLE 2D
CLIP REMACHE DE FIJACIÓN DE ACERO PARA PANEL MARCA NOVACERO
SCREEN PANEL IMNOVA (NOVACERO) E = 4MM 40X80 CM)
CÁMARA DE AIRE
BLOQUES DE LADRILLO 15X20X40CM
MARCA FALCO
ESTRUCTURA DE FIJACIÓN Y SOPORTE VERTICAL PARA FACHADA DE ALUMINIO MARCA ACIMCO
AISLANTE TÉRMICOACUSTICO DE LANA DE ROCA DE LA MARCA ACIMCO 1 2 * 0 5N , E = 4CM
ENLUCIDO
DOSIFICACIÓN 1:3 CEMENTO Y ARENA, E = 1.5CN MARCA UNIDAS
ÁNGULO DE FIJACIÓN A PARED DE ACERO MARCA ACIMCO
ENLUCIDO
DOSIFICACIÓN 1:5 CEMENTO Y ARENA, E = 1.5CM
MARCA UNIDAS
VIGA METÁLICA
IPE - DIPAC


FACHADA VENTILADA
ESTRUCTURA DE FIJACIÓN Y SOPORTE VERTICAL PARA FACHADA DE ALUMINIO MARCA ACIMCO
PLACAS DE PORCELANATO PARA ACABADO DE PISO MARCA GRAYMAN
60x60cm
E=0.8 cm
CLIP REMACHE DE FIJACIÓN DE ACERO PARA PANEL MARCA NOVACERO
SCREEN PANEL IMNOVA (NOVACERO) E = 4MM 40X80 CM)

ESTRUCTURA DE FIJACIÓN Y SOPORTE VERTICAL PARA FACHADA DE ALUMINIO MARCA ACIMCO
ÁNGULO DE FIJACIÓN A PARED DE ACERO MARCA ACIMCO
ENLUCIDO
DOSIFICACIÓN 1:3
CEMENTO Y ARENA, E = 1 5CN MARCA UNIDAS
PEGANTE BONDEX
PORCELANATANO
40KG MARCA SIKA
PROPORCIÓN: 2 1-1 E=5CM
VIGA METÁLICA IPE - DIPAC
ENLUCIDO
DOSIFICACIÓN 1:5
CEMENTO Y ARENA, E = 1 5CM MARCA UNIDAS
HORMIGÓN SIMPLE
PROPORCIÓN 1:2:2 f´c= 240 kg/cm2
BLOQUES DE LADRILLO 15X20X40CM
MARCA FALCO

AISLANTE TÉRMICOACUSTICO DE LANA DE ROCA DE LA MARCA ACIMCO 1 2 * 0 5N , E = 4CM
FACHADA VENTILADA

A. GRAPA INTERMEDIA ACERO AISI 304
B. TORNILLO AUTOTALADRANTE CABEZA HEX. ACERO INOX. A2
C. CLIP DE ALUMINIO
PERFIL HORIZONTAL DE ALUMINIO EXTRUIDO
PERFIL VERTICAL TIPO “T” 60 X100
AISLANTE TÉRMICO
Espesor: 5,08 cm
FRONTEK CERÁMICA EXTRUSIONADA
Formato: 40.5 x 80 cm
CÁMARA DE AIRE
E
B. TORNILLO AUTOTALADRANTE CABEZA HEX. ACERO INOX. A2B.
D. MENSULA DE RETENCIÓNECI 69 ALUMINIO
E. GRAPA DE ARRANQUE ACERO ASI 304
FACHADA VENTILADA

VIDRIO REFLECTIVO COLOR CELESTE E= 6 MM
CÁMARA DE AIRE DESECADO O ARGÓN E=12MM
SELLANTE SILICÓN ESTRUCTURAL
MARCO DE VENTANA
ALUMINIO 4X4 CM E=2MM
GANCHO TIPO I Ø=8MM @20CM
2 VARILLAS TIPO L ∅10
MORTERO CEMENTO-ARENA PROPORCIÓN 1:4
PERFIL TRACK DE REFUERZO ALUMINIO 63X40 MM; E= 0,5MM
AISLANTE TERMOACÚSTICO LANA DE ROCA E=10CM
PANEL DE GYPSUM 1,5CM DE ESPESOR
MASILLADO DE BASE ROMERAL E=8MM ESTUCO
DOBLE CAPA DE PINTURA PARA INTERIOR E=2MM
SELLANTE SILICÓN ESTRUCTURAL
MARCO DE VENTANA ALUMINIO 4X4 CM E=2MM
2 VARILLAS TIPO L ∅10
ANCLAJE A MARCO DE ALUMINIO Y ALFEIZER CON TACO FISHER 1 1/4'' Y TORNILLO CABEZA OCTOGONAL 2''
VERTEAGUAS ALFEIZAR PREFABRICADO DE HORMIGÓN DE 210KG/CM2 PROPORCIÓN 1:3:3 P= 2%
GOTERÓN
MORTERO CEMENTO-CAL-ARENA
PROPORCIÓN 1:1:5 E=1,5CM
SELLADOR PARA PARED EXTERIOR E=1MM
MARCA SIKA
DOBLE CAPA DE PINTURA PARA EXTERIORES E=2MM
MARCA CONDOR


ANTEPECHO (ALFEIZAR)
DETALLE 3D - CARPINTERÍA DE ALUMINIO
DINTEL DE VARILLA ARMADO
ø 12MM F´Y=4200 KG/CM2
HORMIGÓN SIMPLE
F'C=210 Kg/cm2, PROPORCIÓN 1:2:3
SELLADO
SILICÓN O MASILLA ELÁSTICA

TORNILLO AUTORROSCANTE
CABEZA PLANA (#8 x 3/4'')
TORNILLO AUTORROSCANTE
CABEZA PLANA (#8 x 3/4'')
PERFIL DE ALUMINIO ANODIZADO
E = 1 4 MM
PERFIL PARA VENTANA DE DOBLE
VIDRIO CON CAMARA DE AIRE

VIDRIO REFLECTIVO COLOR CELESTE E= 6 MM
CÁMARA DE AIRE
DESECADO O ARGÓN E=12MM
VERTEAGUAS PREFABRICADO DE HORMIGÓN DE 210KG/CM2 1:3:3 P= 2%
2 VARILLAS TIPO L ∅10
PERFIL TRACK DE REFUERZO ALUMINIO 63X40 MM; E= 0,5MM
AISLANTE TERMOACÚSTICO
LANA DE ROCA E=10CM
IMPERMEABILIZACIÓN
DETALLE 3D DE IMPERMEABILIZACIÓN DE TERRAZA

REPISÓN DE HORMIGÓN
ARMADO CON GOTERO
F'C=210 Kg/cm2
PROPORCIÓN 1:2:3
ARMADURA DE ACERO Ø 8MM
MORTERO CEMENTO-ARENA
F'C=100kg/cm2
PROPORCIÓN 1:4 E=15mm
CAPA DE CEMENTO-CALARENA
PROPORCIÓN 1:1:6 E=5MM
LADRILLO 2 X 12X 2 4CM MAMPOSTERÍA DE LADRILLO
MORTERO CEMENTO -CAL
PROPORCIÓN 1:3
HUECO PREFABRICADO PENDIENTE 2%
MORTERO CEMENTO-ARENA
F'C=100kg/cm2
PROPORCIÓN 1:4 E=15mm
ENLUCIDO CEMENTO-CAL-ARENA
PROPORCIÓN 1:1:6 E=1 5 CM
MALLA ELECTROSOLDADA 6x100mm ADELCA
HORMIGÓN SIMPLE
PROPORCIÓN 1:2:2 f´c= 240 kg/cm2
LÁMINA METÁLICA ESTRUCTURAL
DECK e=0.76mm ( CAL 22 )
PERNOS DE ANCLAJE ANCLAJE CON GANCHO HOLANDÉS 800mm
CHAFLAN DE MORTERO CON TAPA DE LADRILLO
LÁMINA ASFÁLTICA
CHOVA E=15 mm
CONECTORES TIPO STUDS 1/2''X3'' ALZAS DE PVC Ø 2x30mm, h=2,5 cm
PERNOS ∅20 MM
ALTA RESISTENCIA
GRADO 8 8
ACABADO GALVANIZADO
PLACA DE ANCLAJE EN L ACERO ESTRUCTURAL
30 CM X 20 CM DE ANCHO E= 2MM
LOSA DECK HORMIGÓN SIMPLE F'C=240Kg/cm2 PROPORCIÓN 1:2:2
VIGA IPE 360 ACERO ESTRUCTURAL
IMPERMEABILIZACIÓN
DETALLE 2D DE IMPERMEABILIZACIÓN DE TERRAZA

MEMBRANA ASFÁLTICA GEOTEXTIL MARCA HONNEN LÁMINA DE 10 mm
E=4MM
IMPRIMACIÓN ASFÁLTICA
ENVASE DE 20 KG COLOR NEGRO
CARPETA NIVELADORA , E=1 00 CM
MAXISEAL IMPERMEABLE FLEXIBLE
MARCA INTACO MORTERO-AGUA
COLOR GRIS
E=4MM PROPORCIÓN: 1KG: 0 2 L
LADRILLO 2 X 12X 24 CM
MORTERO CEMENTO-ARENA PROPORCIÓN 1:6
E=5CM PARA ENLADRILLADO
LÁMINA ASFÁLTICA CHOVA E=15 mm
MORTERO CEMENTO-ARENA PROPORCIÓN 1:6
E=5CM PARA ENLADRILLADO
PIEDRAS DE ARCILLA PARA DRENAJE ESTILO GUIJARRO E=5CM
DIAMETRO 6 MM
HORMIGÓN SIMPLE PENDIENTE 2% F'C=240Kg/cm2 PROPORCIÓN 1:2:2

ENLUCIDO
DOSIFICACIÓN 1:2:3
CEMENTO, CAL, ARENA ,E=20MM)
MAMPOSTERÍA
BLOQUE ALIVIANADO
40 X 20 X 15CM
MORTERO CEMENTO-ARENA
F'C=100kg/cm2, PROPORCIÓN 1:4
E=1,5 CM
VARILLA NOVACERO MICROALEADA 2 Ø 8 DE 4200 KG F/CM²
ELEMENTO DE HORMIGÓN
TIPO HE DE 210 KG/CM² PROPORCIÓN 1:2:2
LÁMINA ASFÁLTICA CHOVA
IMPTEK ESPESOR 1X10 M COLOR NEGRO
IMPRIMACIÓN ASFÁLTICA E= 10MM
HORMIGÓN POBRE
F'C=180KG/CM2
CAPA DE MASILLA E= 15MM
HORMIGÓN CICLÓPEO
CEMENTO TIPO HE DE 180 KG/CM² PROPORCIÓN 60% PIEDRA Y 40% HORMIGÓN

REPLANTILLO
CEMENTO TIPO HE DE 180 KG/CM² PROPORCIÓN 1:4:4
VARILLA NOVACERO MICROALEADA 2 Ø 10 DE 4200 KG.F/CM²
CADENA DE AMARRE, HORMIGÓN CON CEMENTO TIPO HE DE 240 KG/CM² PROPORCIÓN 1:2:2
MAMPOSTERÍA
E 15MM
BLOQUE ALIVIANADO 40 X 20 X 15CM
ELEMENTO DE HORMIGÓN TIPO HE DE 210 KG/CM² PROPORCIÓN 1:2:2
LÁMINA ASFÁLTICA CHOVA IMPTEK ESPESOR 1X10 M COLOR NEGRO
IMPRIMACIÓN ASFÁLTICA E= 10MM
CAPA DE MASILLA E= 15MM
CADENA DE AMARRE, HORMIGÓN CON CEMENTO
TIPO HE DE 240 KG/CM² PROPORCIÓN 1:2:2
SUELO MEJORADO Y COMPACTADO

LÁMINA ASFÁLTICA
MAMPOSTERÍA ARMADA
VARILLA NOVACERO
MICROALEADA 2 Ø 10 DE 4200 KG F/CM²
ELEMENTO DE HORMIGÓN
TIPO HE DE 210 KG/CM²
PROPORCIÓN 1:2:2
LÁMINA ASFÁLTICA CHOVA
IMPTEK ESPESOR 1X10 M COLOR NEGRO
IMPRIMACIÓN ASFÁLTICA E= 10MM
CAPA DE MASILLA
E= 15MM

HORMIGÓN POBRE
F'C=180KG/CM2
HORMIGÓN CICLÓPEO
CEMENTO TIPO HE DE 180 KG/CM² PROPORCIÓN 60% PIEDRA Y 40% HORMIGÓN
REPLANTILLO
CEMENTO TIPO HE DE 180 KG/CM² PROPORCIÓN 1:4:4
SUELO MEJORADO Y COMPACTADO
CADENA DE AMARRE, HORMIGÓN CON CEMENTO TIPO HE DE 240 KG/CM² PROPORCIÓN 1:2:2
VARILLA NOVACERO
MICROALEADA 2 Ø 10 DE 4200 KG F/CM²
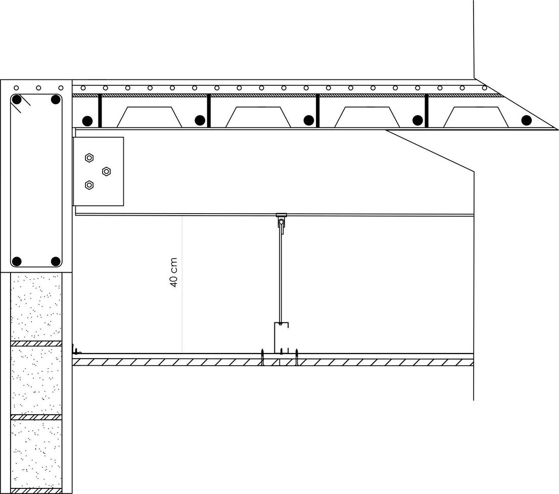
ENCUENTRO (DE PISO)
MADERA Y BALDOSA
PISO ENTABLADO DE MADERA PIEZAS MACHOHEMBRA
CAPA DE POLIETILENO ALTA RESISTENCIA
HORMIGÓN
F'C 240 KG/CM2 DOSIFICACIÓN 1-2-3
HORMIGÓN
CONTRAPISO
F'C=240 KG/CM2
CAPA DE 20CM
BONDEX PEGADO DE CERÁMICA
BALDOSA
ACABADO MATE
30X30CM
MARCA GRYMAN
JUNTA MADERA Y BALDOSA

PLACA DECK PARA LOSA ALIVIANADA 1 2MX2 4MX0 76MM
VIGA METÁLICA IPE
CARPETA ASFÁLTICA AISLAMIENTO DE HUMEDAD

PLÁSTICO NEGRO O POLIETILENO DE ALTA RESISTENCIA
ENCUENTRO (DE PISO)
MADERA Y BALDOSA
BALDOSA
ACABADO MATE
30X30CM
MARCA GRYMAN
JUNTA
MADERA Y BALDOSA
PISO ENTABLADO DE MADERA PIEZAS MACHOHEMBRA

VIGA METÁLICA IPE
HORMIGÓN
F'C 240 KG/CM2
DOSIFICACIÓN 1-2-3
CAMA DE ARENA 5 CM
CAMA DE RIPIO 10CM
CADENA DE AMARRE
HORMIGÓN F'C 210 KG/CM2
VARILLAS 8Ø18mm
REVESTIMIENTO DE FACHADA
MATERIAL: PIEDRA
DETALLE2D
MORTERO CEMENTO-ARENA
F'C=100kg/cm2, PROPORCIÓN 1:4 E=1,5 CM
MAMPOSTERÍA
BLOQUE DE HORMIGÓN 40x20X20 cm
REVOCADO E= 5MM (1RA CAPA DE ENLUCIDO)
CHAMPEADO E=10MM (2DA CAPA DE ENLUCIDO)
ENLUCIDO DOSIFICACIÓN 1:2:3 CEMENTO, CAL, ARENA ,E=20MM)
MASILLADO MORTERO RECUBRIMIETNO BONDEX DE 40KG MARCA SIKA PROPORCIÓN: 2.1-1, E=1,5CM
PIEDRA ARTIFICIAL FACHALETA ALPES CAFÉ MARCA KINARA 29,5 X 10 CM, E= 5 MM
HORMIGÓN SIMPLE PROPORCIÓN 1:2:2 f c= 240 kg/cm2
PERNOS DE ANCLAJE ANCLAJE CON GANCHO HOLANDÉS 800mm
VARILLAS 8Ø18mm
ENLUCIDO INTERIOR 1:1:5 CEMENTO, CAL, ARENA E=1,5 CM
MORTERO CEMENTO-ARENA
F'C=100kg/cm2, PROPORCIÓN 1:4 E=1,5 CM
BARREDERA DE PORCELANATO CANTO PERDIDO APLOMADO CON EL ENLUCIDO
MAMPOSTERÍA
BLOQUE DE HORMIGÓN 40x20X20 cm
REVOCADO E= 5MM (1RA CAPA DE ENLUCIDO)
CHAMPEADO E=10MM (2DA CAPA DE ENLUCIDO)

ALZAS DE PVC Ø 2x30mm, h=2,5 cm

PERNOS ∅20 MM ALTA RESISTENCIA
GRADO 8 8
ACABADO GALVANIZADO
PLACA DE ANCLAJE EN L ACERO ESTRUCTURAL
30 CM X 20 CM DE ANCHO E= 2MM
ENLUCIDO DOSIFICACIÓN 1:2:3 CEMENTO, CAL, ARENA ,E=20MM)
MASILLADO MORTERO RECUBRIMIETNO BONDEX 40KG
MARCA SIKA PROPORCIÓN: 2 1-1, E=1,5CM
PIEDRA ARTIFICIAL FACHALETA ALPES CAFÉ MARCA KINARA
29,5 X 10 CM, E= 5 MM
HÓRMIGON ARMADO O F'C=210 KG/CM2 PROPORCION 1:2:2, 10 CM
MALLA ELECTROSOLDADA 4-10 ADELCA
LOSA DECK HORMIGÓN SIMPLE F'C=240Kg/cm2 P ROPORCIÓN 1:2:2
VIGA IPE 360 ACERO ESTRUCTURAL
REVESTIMIENTO DE FACHADA
MATERIAL: PIEDRA

MAMPOSTERÍA
BLOQUE DE HORMIGÓN 40x20X20 cm
REVOCADO
E= 5MM
(1RA CAPA DE ENLUCIDO)
CHAMPEADO E=10MM
(2DA CAPA DE ENLUCIDO)
ENLUCIDO DOSIFICACIÓN 1:2:3 CEMENTO, CAL, ARENA ,E=20MM)
MASILLADO MORTERO RECUBRIMIETNO BONDEX 40KG
MARCA SIKA
PROPORCIÓN: 2 1-1, E=1,5CM
PIEDRA ARTIFICIAL FACHALETA ALPES CAFÉ MARCA KINARA
29,5 X 10 CM, E= 5 MM
HÓRMIGON ARMADO O F'C=210 KG/CM2 PROPORCION 1:2:2, 10 CM

MALLA ELECTROSOLDADA
4-10 ADELCA
LOSA DECK HORMIGÓN SIMPLE
F'C=240Kg/cm2 PROPORCIÓN 1:2:2
VIGA IPE 360 ACERO ESTRUCTURAL
VIDRIOREFLECTIVO E=6MM
GUIAINFERIOR SOPORTE
MAMPÁRA DE VIDRIO
VIDRIO DE SEGURIDAD LAMINADO
VIDRIOREFLECTIVO COLORCELESTE E=6MM
LÁMINADEPVB
VIDRIOREFLECTIVO COLORCELESTE E=6MM
VIDRIOREFLECTIVO COLORCELESTE E=6MM
LÁMINADEPVB
PERFILESTANCOPVC
PERFILESDEALUMINIO ACABADODEPOLVODE POLIPROPILENO
JUNTAESTANCADE POLIPROPILENO

GUIASUPERIOR SOPORTE
CABEZAL SOPORTESUPERIORDEALUMINIO MARCAMATESU
MARCODEALUMINIO 4X4CME=2MM
TAPAMARCODEALUMINIO MARCAEDIMCA
VIDRIOREFLECTIVOCOLOR CELESTEE=6MM
MANIJATIRADOR ACEROGALVANIZADO MARCAEDIMPA
SELLADORDEJUNTASENTRE VIDRIOYALUMINIO COLORNEGRO MARCASIKASIL
VIDRIOFIJO
MAMPÁRA DE VIDRIO A

VIDRIO REFLECTIVO
E= 6 MM
GUIA INFERIOR SOPORTE
VIDRIO REFLECTIVO COLOR CELESTE
E= 6 MM
LÁMINA DE PVB
VIDRIO REFLECTIVO COLOR CELESTE
E= 6 MM
GUIA SUPERIOR SOPORTE
TAPAMARCO DE ALUMINIO
MARCA EDIMCA
VIDRIO REFLECTIVO COLOR
VIDRIO DE EGURIDAD LAMINADO
CELESTE E= 6 MM
SELLADOR DE JUNTAS ENTRE
VIDRIO Y ALUMINIO
COLOR NEGRO . MARCA SIKASIL
CABEZAL SOPORTE SUPERIOR DE ALUMINIO MARCA MATESU
MARCO DE ALUMINIO 4X4 CM E= 2MM

PUERTA DE HOJASIMPLE FICINA
HOJA DE PUERTA
MARCO METÁLICO CON 4
BISAGRAS DE ACERO CON PASADOR
PUERTA TABLERO DE MDF
TERMOLAMINADO
RESISTENTE A LA HUMEDAD DE 36mm
BISAGRAS
SOLDADURA DE TOPE DE CORDÓN
CON 4 TORNILLOS
AUTORROSCANTES DE 1 1/2
CERRADURA PALANCA
TOTALMENTE REVERSIBLE
GALVANIZADO
NIVEL 0 90 CM
0 871 KG
CIERRE AJUSTABLE EN 6
DIRECCIONES
SEGURIDAD DE GRADO 3
MARCO DE PUERTA
GRIS OSCURO
TERMINADO EN PINTURA
ELECTROSTÁTICA

MARCO METÁLICO ANCLA
PUENTE
TABLERO SÓLIDO MDF
TERMOLAMINADO
CERRADURA PALANCA
TOTALMENTE REVERSIBLE
GALVANIZADO
NIVEL 0.90 CM
0.871 KG
CIERRE AJUSTABLE EN 6
DIRECCIONES
SEGURIDAD DE GRADO 3
4 BISAGRAS 3 X 3 ´´
BATIENTE DE PUERTA SEGÚN DISEÑO

PUERTA DE HOJA SIMPLE
DETALLE CONSTRUCTIVO PUERTA DE OFICINA

CABEZAL
ANCLAJE DE MAMPOSTERÍA
ESTRUCTURA TIPO T DE ACER
CORRUGADO 8 mm
HORMIGÓN DE 180 kg/cm2 DE FRAGUADO RÁPIDO
MARCO DE PUERTA
LÁMINA DE ACERO
PREFABRICADO DE 1 mm
ORIFICIOS DE FÁBRICA PARA CERRADURA
BISAGRA BISAGRA REFORZADA DORADA 2.5"C/TORNLLO
UMBRAL A SOLERA DE PUERTA
BISAGRAS
SOLDADURA DE TOPE DE CORDÓN CON 4 TORNILLOS AUTORROSCANTES DE 1
BATIENTE DE PUERTA SEGÚN DISEÑO

VE DRIO O
TARUGO DE PLÁSTICO DE 2”
TORNILLO GALVANIZADO AUTORROSCANTE DE CABEZA PLANA 1//2”
MARCO HOJA ALUMINIO MÓVIL 70MM COLOR NEGRO
MARCO FIJADO VERTICAL DE ALUMINIO DE 70MM COLOR NEGRO

MARCO HOJA ALUMINIO MÓVIL 70MM COLOR NEGRO
FELPA AUTOADHESIVA COLOR GRIS
PERFIL GUÍA
ALUMINIO SUPERIOR DE 70MM
VIDRIO LAMINADO TRANSPARENTE DE 6MM
PVC
MARCO HOJA ALUMINIO MÓVIL 70MM COLOR NEGRO
MARCO FIJADO VERTICAL DE ALUMINIO DE 70MM COLOR NEGRO
VIDRIO LAMINADO TRANSPARENTE DE 6MM
PERFIL GUÍA DE ALUMINIO SUPERIOR DE 70MM
VINIL CUÑA PVC NEGRO #11
FELPA AUTOADHESIVA COLOR GRIS
GARRUCHA COJINETE SIMPLE WOORBEL DIAMETRO 20MM ALUMINIO 5MM
TORNILLO GALVANIZADO AUTORROSCANTE DE CABEZA PLANA 1//2”

TARUGO DE PLÁSTICO DE 2”
MARCO INFERIOR DE ALUMINIO FIJO 70MM COLOR NEGRO
VINIL CUÑA
NEGRO #11
VENTANA CON DOBLE VIDRIO
DOBLE SEGURIDAD TIPO ACÚSTICO

MARCO HOJA
ALUMINIO MÓVIL
70MM COLOR NEGRO
FELPA AUTOADHESIVA
COLOR GRIS
PERFIL GUÍA
ALUMINIO SUPERIOR DE 70MM
VIDRIO LAMINADO TRANSPARENTE DE 6MM
VINIL CUÑA
PVC NEGRO #11
DINTEL CON ACERO DE REFUERZO Ø 10
HORMIGÓN F' C 210 KG/CM²
MARCO SUPERIOR ALUMINIO FIJO DE 70MM COLOR NEGRO
MARCO HOJA
ALUMINIO MÓVIL
70MM COLOR NEGRO
SEGURO DE PRESIÓN
METÁLICO GRIS DE 6 X 4CM
GARRUCHA COJINETE SIMPLE WOORBEL
DIAMETRO 20MM
ALUMINIO 5MM
MARCO INFERIOR DE ALUMINIO FIJO
70MM COLOR NEGRO
MURO RECUBIERTO DE PIEDRA
DOBLE SEGURIDAD TIPO ACÚSTICO
MURO
BLOQUE DE HORMIGÓN DE 10 X 40 X 20CM
MORTERO
MORTERO DE CEMENTO Y ARENA PROPORCION 1:4 10MM
F’C= 100KG/CM2
MURO
REVOCADO DENTRO DEL ENLUCIDO DOSIFICACIÓN 1:1:4
IMPERMEABILIZANTE
MEMBRANA IMPERMEABILIZANTE SIKA MANTO
PEGAMENTO
BONDEX PIEDRA RÚSTICA INTACO PROPORCIÓN 2:1:
MURO
PIEDRA ARENISCA COLOR CREMA, ACABADO MATE, PRESENTACIÓN EN PALET 2CM
MURO
CAPA DE HORMIGON AISLANTE F´C= 210 KG/CM2
MURO
LÁMINA ASFÁLTICA CHOVA 15MM
MURO MASILLA 15MM
CADENA DE AMARRE CADENA DE AMARRE
HORMIGÓN ARMADO
F’C: 240 KG/CM2
HORMIGÓN
HORMIGÓN CICLÓPEO F´C= 210KG/CM2
REPLANTILLO
REPLANTILLO DE HORMIGÓN F’C: 180 KG/CM2
SUELO NATURAL TIERRA COMPACTADA

MURO RECUBIERTO DE PIEDRA
DOBLE SEGURIDAD TIPO ACÚSTICO
BLOQUE DE HORMIGÓN 10 X40X20 CM
MEMBRANA IMPERMEABILIZANTE SIKA MANTO
BONDEX
PIEDRA RÚSTICA INTACO PROPORCIÓN 2:1
PIEDRA ARENISCA COLOR
CREMA, ACABADO MATE, PRESENTACION EN PALET 2CM
LÁMINA ASFÁLTICA CHOVA 15MM
REPLANTILLO
REPLANTILLO CON HORMIGÓN
SIMPLE DE 180 KG/CM² PROPORCIÓN 1:2:4 E=7 CM
HORMIGÓN CICLÓPEO
REPLANTILLO CON HORMIGÓN SIMPLE DE 180 KG/CM²

BLOQUE DE HORMIGÓN 10 X40X20 CM
MORTERO DE CEMENTO Y ARENA PROPORCION 1:4 10MM F’C= 100KG/CM2
CAPA DE HORMIGÓN AISLANTE F´C= 210 KG/CM2
MASILLADO E: 15 MM
VARILLAS Ø10
CADENA DE AMARRE
HORMIGÓN ARMADO DE 240 KG/CM²
TIERRA COMPACTADA

METAL DECK 6cm
f´y= 2600 kg/cm2
MALLA LISA 10-20 10mm
f´y= 4200 kg/cm2
HORMIGÓN
f´y= 210 kg/cm2
MALLA ELECTROSOLDADA
TIPO 8-15 malla 15 * 15
PLACA COLABORANTE
e = 0.76 mm
PERFIL DE ACERO
250 X * 150 * 8
PERNOS DE FIJACIÓN
1 * 3 PLACA DE ACERO e = 50 mm
LOSA DECK
CONECTOR DE CORTE 1 C 80 * 40 * 4 CADA VALLE

TORNILLO AUTOPERFORANTE CABEZA HEXAGONAL SAE GRADO 2
TRANSLAPE MACHO/HEMBRA
ACABADOS DE PISO IMPERMEABILIZACIÓN
HORMIGÓN SIMPLE If´c= 210 kg/cm2
0 65 mm
VIGA IPE 120 mm ACERO
ALZAS DE PVC 2´´ X 30 mm



PLACA COLABORANTE
LOSA
LOSA DIPAC PLACA DE ACERO
GALVANIZADO TRAPEZOIDAL
NORMA ASTM-653 GRADO 37
VIGA
VIGA DE ACERO NEGRO TIPO IPE
HORMIGÓN
HORMIGÓN F'C 240 KG/CM²
PROPORCIÓN 1:2:2 E: 10CM
MALLA ELECTROSOLDADA
MALLA ELECTROSOLDADA CON
VARILLA MICROALEADA Ø 10 @ 10 CM F’Y 4200 KG/CM²
ADELCA
RECUBRIMIENTO 2.5CM

500 DIPAC ASTM A36 Y ASTM A572
PERNOS
PERNOS AUTOPERFORANTES
HEXAGONAL 12X14X2"
RECUBRIMIENTO RUSPERT
CONECTORES
CONECTOR DE CORTANTE ACERODECK NELSON STUD GRADO 2
GALVÁNICA ELECTROQUÍMICA DE ZINC
VEREDA PERIMETRAL
JUNTA DE DILATACIÓN
JUNTA RELLENA DE ARENA E= 1cm
ADOQUÍN ADOQUÍN INGLÉS (KONKRET) 30 X 15 E= 6 CM
SUELO NATURAL SUELO NATURAL COMPACTADO
BORDILLO
BORDILLO PREFABRICADO (HORMYPOL) DE HORMIGÓN DE RESISTENCIA DE 400 KG/CM² 30 X 15 X15 CM

REPLANTILLO REPLANTILLO CON HORMIGÓN SIMPLE DE 180 KG/CM² PROPORCIÓN 1:2:4 E=7 CM
JUNTA DE DILATACIÓN JUNTA RELLENA DE ARENA E= 1cm
ADOQUÍN
ADOQUÍN INGLÉS (KONKRET) 30 X 15 E= 6 CM
BORDILLO BORDILLO PREFABRICADO (HORMYPOL) DE HORMIGÓN DE RESISTENCIA DE 400
KG/CM² 30 X 15 X15 CM
SUELO NATURAL SUELO NATURAL COMPACTADO
BORDILLO
BORDILLO PREFABRICADO (HORMYPOL) DE HORMIGÓN DE RESISTENCIA DE 400 KG/CM² 30 X 15 X15 CM
ÁRIDOS
CAPA SUB-BASE CON ARENA FINA COMPACTADA
ASFALTO CAPA DE RODADURA ASFÁLTICA E= 6CM
JUNTA DE DILATACIÓN RELLENO DE JUNTAS CON MORTERO CEMENTOARENA PROPORCIÓN 1:4
CAPA BASE CAPA BASE CON ÁRIDOS TRITURADOS Ø 8MM

REPLANTILLO
REPLANTILLO CON HORMIGÓN SIMPLE DE 180 KG/CM² PROPORCIÓN 1:2:4 E=7 CM
ASFALTO CAPA DE RODADURA ASFÁLTICA E= 6CM
CAPA BASE CAPA BASE CON ÁRIDOS TRITURADOS Ø 8MM
ÁRIDOS
CAPA SUB-BASE CON ARENA FINA COMPACTADA
BORDILLO DE ACERA
Bordillo pesado de hormigón prefabricado 100x25x12 cm f’c 210kg/cm2
Adoquín de piedra gris 20x10
cm espesor 6cm
f’c=280 kg/cm2
Junta de arena e=15mm

Replantillo de hormigón f’c=180 kg/cm2
Alibianamiento prefabricado
Tierra compactada
Adoquín de piedra gris 20x10 cm espesor 6cm
f’c=280 kg/cm2
Junta de arena e=15mm
Subbase de pavimento
Replantillo de hormigón f’c 180 kg/cm2
Alibianamiento prefabricado
Tierra compactada
Bordillo pesado de hormigón prefabricado 100x25x12 cm f’c=210kg/cm2

Subbase de pavimento
Capa de rodadura 50mm
Capa de rodadura 50mm
SECCIÓN DE COCINA
DETALLE CONSTRUCTIVO SECCIÓN DE COCINA
MOVILIARIO DE COCINA
MUEBLES DE COCINA
MOVILIARIO DE COCINA COCINA
MOVILIARIO DE COCINA LAVAPLATOS
MOVILIARIO DE COCINA HORNO EMPOTRADO
DETALLE CORREDERA METÁLICA
DETALLE TOPE PARA PUERTA
DETALLE MANIJA CON CORTE 45°

MOVILIARIO DE COCINA REFRIGERDOR

MATERIALIDAD BORDE PVC
MATERIALIDAD MDF 18 MM


DETALLE PUERTA BAJO MESÓN
DETALLE BISAGRA CLIP

DETALLE ESTANTE
DETALLE
EXTENTIBLE ACERO INOXIDABLE
MATERIALIDAD CERÁMICAS
MOVILIARIO DE COCINA MESÓN GRANITO
MOVILIARIO DE COCINA LAVABO
MOVILIARIO DE COCINA
ESTANTE AJUSTABLE
Perfil angular de acero galvanizado (3050x25x25) mm
E = 2cm
Clavo de impacto de 1"
CIELO RASO
DETALLE CONSTRUCTIVO 2D
Candado Tensor de Cable acero galvanizado E 200mm

Varilla Roscada 4mm
Longuitud de 200mm
Tuerca de 4mm
Arandela de 4mm
Cinta malla de fibra de vidrio para juntas y esquinas (0 05x90)
Enlucido de Cemento f’c=51 kg/cm²
E= 1 5 cm
Mampostería de bloque de hormigón de 40x20x15
Mortero de cemento f’c 100kg/cm2
E=15 mm
Fijación de los Perfiles con Tornillos mm 10075
Losa steel Deck Hormigón simple f’c 240kg/cm2
Varilla de anclaje de 15mm 5/8" x 1800mm
Perfil g galvanizado kubiec 0 45X90X2 44 m (3 5/8)
Perfil omega angosto (600x3 2x0 085)cm
Cielo raso de Poliestireno de
(60 5x60 5x2 00)
Fijación del cielo raso con tornillo Pl6 - 100 A 40mm del Filo de la pieza
color blanco
CIELO RASO
DETALLE CONSTRUCTIVO 3D
Candado Tensor de Cable acero galvanizado E 200mm

Mampostería de bloque de hormigón de 40x20x15
Varilla Roscada 4mm
Longuitud de 200mm
Tuerca de 4mm
Arandela de 4mm
3D
Varilla de anclaje de 15mm 5/8" x 1800mm
Perfil g galvanizado kubiec 0 45X90X2 44 m (3 5/8)
Losa steel Deck
Hormigón simple
f’c=240kg/cm2
Fijación de los Perfiles con Tornillos mm 10075
Mortero de cemento f’c=100kg/cm2 E=15 mm
Enlucido de Cemento f’c=51 kg/cm² E= 1 5 cm
Perfil angular de acero galvanizado (3050x25x25) mm E = 2cm Clavo de impacto de 1"
Fijación del cielo raso con tornillo Pl6 - 100 A 40mm del Filo de la pieza
Perfil omega angosto (600x3 2x0 085)cm
Cielo raso de Poliestireno de color blanco (60 5x60 5x2 00)
Cinta malla de fibra de vidrio para juntas y esquinas (0 05x90)