

DETALLES CONSTRUCTIVOS
OCTAVO SEMESTRE
ARQ CARLOS CARDENAS

A C A B A D O S
DETALLES DE ACABADOS INTERIORES
Cadena de pared con lámina asfáltica
Placa colaborante
Piso de cemento pulido con pintura epóxica
Detalle de encuentro de piso
Ventana de doble vidrio
Puerta de hoja simple
Gradas principales
Mampara de Vidrio
Cielo Falso
Corte de cocina
Instalaciones sanitarias
DETALLES DE ACABADOS EXTERIORES
Detalle de antepecho (Alfeizer)
Detalle de impermeabilización
Fachada ventilada
Revestimiento de piedra
Revestimiento de marmol con piso de porcelanato
Revestimiento de marmol con anclajes metálicos
Vereda perimetral
DETALLES DE ACA
BADOS INTERIORES
ENLUCIDO
DOSIFICACIÓN 1:2:3
CEMENTO, CAL, ARENA ,E=20mm)
MAMPOSTERÍA
BLOQUE ALIVIANADO
40 x 20 x 15cm

MORTERO CEMENTO-ARENA
F'C=100kg/cm2,
Proporción1:4 E=1,5 cm
ELEMENTO DE HORMIGÓN
Tipo HE de 210 kg/cm²
Proporción 1:2:2
LÁMINA ASFÁLTICA CHOVA
IMPRIMACIÓN ASFÁLTICA E= 10mm
HORMIGÓN POBRE
F'C=180kg/cm2
HORMIGÓN CICLÓPEO
Cemento tipo HE de 180 kg/cm²
Proporción 60% piedra y 40% hormigón
REPLANTILLO
Cemento tipo HE de 180 kg/cm²
Proporción 1:4:4
VARILLANOVACERO
Microaleada 2 Ø 10
ELEMENTODEHORMIGÓN Tipo HE de210 kg/cm²
Proporción1:2:2
LÁMINAASFÁLTICACHOVA Imptek espesor 1x10 m
IMPRIMACIÓNASFÁLTICA E=10mm
E=15mm
VARILLA NOVACERO microaleada 2 Ø 8
VARILLA NOVACERO
Microaleada 2 Ø 10
CADENA DE AMARRE
Hormigón con cemento tipo HE de 240 kg/cm²
Proporción 1:2:2
CAPA DE MASILLA E= 15mm
SUELO MEJORADO Y COMPACTADO
CAPADEMASILLA
LÁMINA ASFÁLTICA
MAMPOSTERÍA ARMADA
VARILLA NOVACERO
Microaleada 2 Ø 10
ELEMENTO DE HORMIGÓN
Tipo HE de 210 kg/cm²
Proporción 1:2:2
LÁMINA ASFÁLTICA CHOVA
Imptek espesor 1x10 m color negro
IMPRIMACIÓN ASFÁLTICA
E= 10mm
CAPA DE MASILLA
E= 15mm
HORMIGÓN POBRE
F'C=180kg/cm2
HORMIGÓN CICLÓPEO
Cemento tipo HE de 180 kg/cm²
Proporción 60% piedra 40% hormigón
REPLANTILLO
Cemento tipo HE de 180 kg/cm² Proporción 1:4:4

CADENA DE AMARRE
Hormigón con cemento Tipo HE de 240 kg/cm²
Proporción 1:2:2
VARILLA NOVACERO
Microaleada 2 Ø 10 de 4200 kg.f/cm²
SUELO MEJORADO Y COMPACTADO
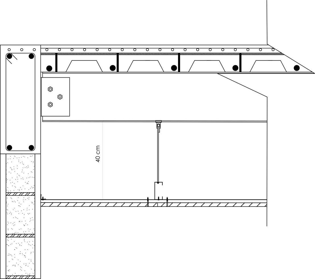
METAL DECK
f´y= 2600 kg/cm2
MALLA LISA
f´y= 4200 kg/cm2
HORMIGÓN
f´y= 210 kg/cm2

MALLA ELECTROSOLDADA
TIPO 8-15
malla 15 * 15
PLACA COLABORANTE e = 0.76 mm
PERFIL DE ACERO
250 X * 150 * 8
CONECTOR DE CORTE 1 C 80 * 40 * 4 CADA VALLE

TORNILLO AUTOPERFORANTE CABEZA HEXAGONAL SAE GRADO 2
PERNOS DE FIJACIÓN
1 * 3
PLACA DE ACERO e = 50 mm
ESPESOR 0.65 mm
VIGA IPE 120 mm ACERO
TRANSLAPE MACHO/HEMBRA
ACABADOS DE PISO IMPERMEABILIZACIÓN
HORMIGÓN SIMPLE
If´c= 210 kg/cm2
ALZAS DE PVC 2´´ X 30 mm



PLACA COLABORANTE
LOSA
LOSA DIPAC PLACA DE ACERO
GALVANIZADO TRAPEZOIDAL
NORMA ASTM-653 GRADO 37
HORMIGÓN
HORMIGÓN F'C 240 KG/CM²
PROPORCIÓN 1:2:2
E: 10CM
MALLA ELECTROSOLDADA
MALLA ELECTROSOLDADA
CON VARILLA MICROALEADA
Ø 10 @ 10 CM F’Y 4200
KG/CM²
ADELCA
RECUBRIMIENTO 2.5CM

VIGA
VIGA DE ACERO NEGRO TIPO
IPE 500 DIPAC ASTM A36 Y ASTM A572
PERNOS
PERNOS AUTOPERFORANTES
HEXAGONAL 12X14X2"
RECUBRIMIENTO RUSPERT
CONECTORES
CONECTOR DE CORTANTE
ACERO-DECK NELSON STUD GRADO 2 GALVÁNICA ELECTROQUÍMICA DE ZINC
PORCELANATO
Medida: 20×20.
Espesor: 7mm.
PERFIL DE TRANSICIÓN
Perfil en T

POLIESTIRENO EXPANDIDO E: 2cm
JUNTA EMPORADA
Dosificación: 1:4
LOSA DE HORMIGÓN fc=210kg/cm2
PISO FLOTANTE
Medidas:193X1295X8mm
Espesor: 8.3mm.
BASE AISLANTE DE POLIESTIRENO.
Espesor: 3mm.
MORTERO DE NIVELACIÓN 5mm
MALLA ELECTROSOLDADA 4mm
PERFIL DE TRANSICIÓN: PERFIL EN T
TORNILLOS AUTORROSCANTES

PERFIL
TRANSICIÓN/REDUCCIÓN ALUMINIO ANODIZADO SPC
TARUGO
PORCELANATO
Medida: 20×20.
Espesor: 7mm.

PISO FLOTANTE
Medidas:193X1295X8mm
Espesor: 8.3mm.
PERFIL DE TRANSICIÓN
Perfil en T
JUNTA EMPORADA
Dosificación: 1:4
BASE AISLANTE DE POLIESTIRENO
Espesor: 3mm.
POLIESTIRENO EXPANDIDO E: 2cm
TORNILLO GALVANIZADO
AUTORROSCANTE DE CABEZA PLANA 1//2”
TARUGO DE PLÁSTICO DE 2”
MARCO HOJA ALUMINIO MÓVIL 70MM COLOR NEGRO
MARCO FIJADO VERTICAL DE ALUMINIO DE 70MM COLOR NEGRO

MARCO SUPERIOR ALUMINIO FIJO DE 70MM COLOR NEGRO
MARCO HOJA ALUMINIO MÓVIL 70MM COLOR NEGRO
MARCO HOJA ALUMINIO MÓVIL 70MM COLOR NEGRO
FELPA AUTOADHESIVA COLOR GRIS PERFIL GUÍA
ALUMINIO SUPERIOR DE 70MM
VIDRIO LAMINADO TRANSPARENTE DE 6MM
VINIL CUÑA
PVC NEGRO #11
VIDRIO LAMINADO TRANSPARENTE DE 6MM PERFIL GUÍA DE ALUMINIO SUPERIOR DE 70MM
GARRUCHA COJINETE SIMPLE WOORBEL DIAMETRO 20MM ALUMINIO 5MM
MARCO INFERIOR DE ALUMINIO FIJO 70MM COLOR NEGRO
TARUGO DE PLÁSTICO DE 2”

VINIL CUÑA
PVC NEGRO #11
FELPA AUTOADHESIVA COLOR GRIS
TORNILLO GALVANIZADO
AUTORROSCANTE DE CABEZA PLANA 1//2”
VENTANA CON DOBLE VIDRIO
DOBLE SEGURIDAD TIPO ACÚSTICO

MARCO HOJA ALUMINIO MÓVIL
70MM COLOR NEGRO
FELPA AUTOADHESIVA
COLOR GRIS
PERFIL GUÍA
ALUMINIO SUPERIOR DE 70MM
VIDRIO LAMINADO TRANSPARENTE DE 6MM
VINIL CUÑA
PVC NEGRO #11
GARRUCHA COJINETE SIMPLE WOORBEL
DIAMETRO 20MM
ALUMINIO 5MM
MARCO INFERIOR DE ALUMINIO FIJO
70MM COLOR NEGRO

PUERTA DE HOJASIMPLE
DETALLE CONSTRUCTIVO PUERTA DE OFICINA
HOJA DE PUERTA
MARCO METÁLICO CON 4 BISAGRAS DE ACERO CON PASADOR
PUERTA TABLERO DE MDF
TERMOLAMINADO
RESISTENTE A LA HUMEDAD DE 36mm
BISAGRAS
SOLDADURA DE TOPE DE CORDÓN
CON 4 TORNILLOS
AUTORROSCANTES DE 1 1/2
CERRADURA PALANCA
TOTALMENTE REVERSIBLE
GALVANIZADO
NIVEL 0.90 CM
0.871 KG
CIERRE AJUSTABLE EN 6 DIRECCIONES
SEGURIDAD DE GRADO 3
MARCO DE PUERTA
GRIS OSCURO
TERMINADO EN PINTURA
ELECTROSTÁTICA

MARCO METÁLICO ANCLA
PUENTE
TABLERO SÓLIDO MDF TERMOLAMINADO
CERRADURA PALANCA
TOTALMENTE REVERSIBLE
GALVANIZADO
NIVEL 0.90 CM
0.871 KG
CIERRE AJUSTABLE EN 6 DIRECCIONES
SEGURIDAD DE GRADO 3
4 BISAGRAS 3 X 3 ´´
BATIENTE DE PUERTA SEGÚN DISEÑO

PUERTA DE HOJA SIMPLE
DETALLE CONSTRUCTIVO PUERTA DE OFICINA

CABEZAL
ANCLAJE DE MAMPOSTERÍA
ESTRUCTURA TIPO T DE ACER
CORRUGADO 8 mm
HORMIGÓN DE 180 kg/cm2 DE FRAGUADO RÁPIDO
MARCO DE PUERTA
LÁMINA DE ACERO
PREFABRICADO DE 1 mm
ORIFICIOS DE FÁBRICA PARA CERRADURA
BISAGRA BISAGRA REFORZADA DORADA 2.5"C/TORNLLO
UMBRAL A SOLERA DE PUERTA
BISAGRAS
SOLDADURA DE TOPE DE CORDÓN CON 4 TORNILLOS
AUTORROSCANTES DE 1
BATIENTE DE PUERTA SEGÚN DISEÑO

MAMPÁRA DE VIDRIO
VIDRIO DE SEGURIDAD LAMINADO
VIDRIO REFLECTIVO E= 6 mm
PERFIL ESTANCO PVC
LÁMINA DE PVB
PERFILES DE ALUMINIO ACABADO DE POLVO DE POLIPROPILENO

JUNTA ESTANCA DE POLIPROPILENO CABEZAL SOPORTE SUPERIOR DE ALUMINIO MARCA MATESU
MARCO DE ALUMINIO 4X4 CM E= 2MM
TAPAMARCO DE ALUMINIO MARCA EDIMCA
MANIJA TIRADOR ACERO GALVANIZADO MARCA EDIMPA
VIDRIO REFLECTIVO COLOR CELESTE E= 6 MM
SELLADOR DE JUNTAS ENTRE VIDRIO Y ALUMINIO COLOR NEGRO . MARCA SIKASIL
MAMPÁRA DE VIDRIO C A
TAPAMARCO DE ALUMINIO
MARCA EDIMCA
GUIA INFERIOR SOPORTE
CABEZAL
SOPORTE SUPERIOR DE ALUMINIO
MARCA MATESU
MARCO DE ALUMINIO 4X4 cm; E= 2mm
VIDRIO REFLECTIVO
E= 6 mm
VIDRIO REFLECTIVO COLOR CELESTE
E= 6 MM
LÁMINA DE PVB
VIDRIO REFLECTIVO COLOR CELESTE
E= 6 MM
GUIA SUPERIOR SOPORTE

SELLADOR DE JUNTAS ENTRE
VIDRIO Y ALUMINIO
COLOR NEGRO
MARCA SIKASIL
VIDRIO REFLECTIVO COLOR
VIDRIO DE SEGURIDAD LAMINADO
CELESTE E= 6mm
GRADAS Y PASAMANOS
DETALLE CONSTRUCTIVO 2D
PASAMANOS DE ACERO INOXIDABLE 38mm
SOPORTE DOBLE EN ACERO INOXIDABLE
REFUERZO DE ACERO ø 12mm
ACABADO DE PISO Baldosa
PARALES DE ACERO INOXIDABLE 12mm
VIGA DE HORMIGÓN 0.20x0.35m

REFUERZO DE ACERO ø 12mm
MALLA ELECTROSOLDADA 6mm
LOSA ALIVIANADA 240kg/cm2
VIDRIO TEMPLADO 8mm
TORNILLOS DE EXPANSIÓN 10mm
GRADAS Y PASAMANOS
DETALLE CONSTRUCTIVO 3D
TORNILLOS DE EXPANSIÓN 10mm
PASAMANOS DE ACERO INOXIDABLE 38mm

REFUERZO DE ACERO ø 12mm
VIDRIO TEMPLADO 8mm
CIELO RASO
DETALLE CONSTRUCTIVO 2D
VARILLA ROSCADA
Longuitud de 200mm
Tuerca de 4mm
Arandela de 4mm
PERFIL ANGULAR DE ACERO
GALVANIZADO
(3050x25x25) mm
E = 2cm
CINTA MALLA DE FIBRA DE VIDRIO PARA JUNTAS Y ESQUINAS (0 05x90)
CANDADO TENSOR DE CABLE ACERO
GALVANIZADO
E: 200mm
CIELO RASO DE POLIESTIRENO color blanco (60.5x60.5x2.00)
LOSA STEEL DECK
HORMIGÓN SIMPLE
F’C=240KG/CM2

ENLUCIDO DE CEMENTO
f’c=51 kg/cm²
E= 1 5 cm
MORTERO DE CEMENTO
f’c=100kg/cm2
E=15 mm
MAMPOSTERÍA DE BLOQUE DE HORMIGÓN
40X20X15
FIJACIÓN DEL CIELO
RASO CON TORNILLO PL6 100 a 40mm del Filo de la pieza
FIJACIÓN DE LOS PERFILES
Tornillos mm 10-075
VARILLA DE ANCLAJE 15mm 5/8" x 1800mm
PERFIL G
GALVANIZADO
0.45X90X2.44 M (3 5/8)
PERFIL OMEGA ANGOSTO
(600x3.2x0.085)cm
BLOQUE DE HORMIGÓN PERFORADO 14x50x20cm
CIELO RASO
DETALLE CONSTRUCTIVO 3D

VIGA DE HORMIGÓN
f´c=240 kg/cm2
Proporción 1:2:2
MORTERO DE CEMENTO-ARENA
Proporción 1:4
F´c=100kg/cm2
CANDADO TENSOR DE CABLE ACERO GALVANIZADO E=2cm
ACERO ESTRUCTURAL VIGA IPE 360
PERFIL OMEGA ANGOSTO (600x3.2x0.085)cm
CIELO RASO DE POLIESTIRENO (60.5x60.5x2.00)cm
LOSA DE HORMIGÓN 240 kg/cm2
Proporción 1:2:2
LÁMINA METÁLICA ESTRUCTURAL DECK E=0.76MM MALLA ELECTROSOLDADA 15x15cm e=6mm
FIJACIÓN DEL CIELO RASO CON TORNILLO PL6 100 a 40mm del Filo de la pieza
SECCIÓN DE COCINA
DETALLE CONSTRUCTIVO SECCIÓN DE COCINA
MOVILIARIO DE COCINA MUEBLES DE COCINA
MOVILIARIO DE COCINA COCINA
MOVILIARIO DE COCINA LAVAPLATOS
MOVILIARIO DE COCINA HORNO EMPOTRADO
DETALLE CORREDERA METÁLICA
DETALLE TOPE PARA PUERTA
DETALLE MANIJA CON CORTE 45°

MOVILIARIO DE COCINA REFRIGERDOR

MATERIALIDAD BORDE PVC
MATERIALIDAD MDF 18 MM


DETALLE PUERTA BAJO MESÓN
DETALLE BISAGRA CLIP

DETALLE ESTANTE
DETALLE
EXTENTIBLE ACERO INOXIDABLE
MATERIALIDAD CERÁMICAS
MOVILIARIO DE COCINA MESÓN GRANITO
MOVILIARIO DE COCINA LAVABO
MOVILIARIO DE COCINA
ESTANTE AJUSTABLE
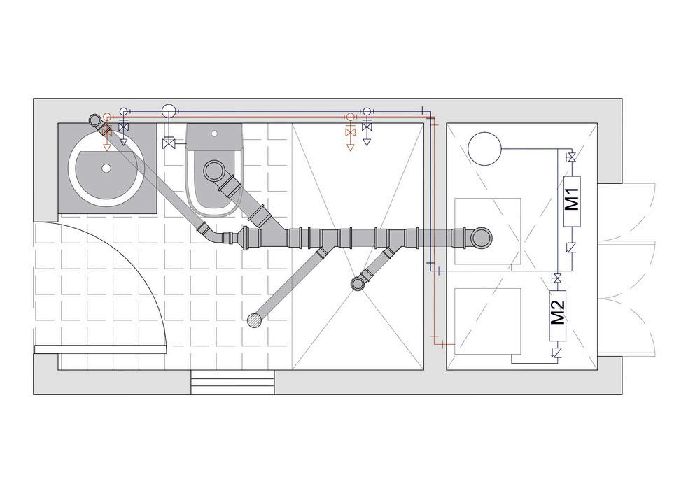
INSTALACIONES SANITARIAS
DETALLE CONSTRUCTIVO 2D
medidas: Ø 49 x 10.7 cm color blanco
peso 8.1 kg capacidad de agua: 7.9 lts.
CODO DE 45° PVC de 3" marca RIVAL
PORCELANATO ANTIDESLIZANTE
KINARA, textutra álamo grafito uso en piso y pared acabado mate formato: 30 * 30 cm.
SIFÓN PVC de 4" marca RIVAL
TUBERIA DE AGUA CALIENTE 13Ø DE COBRE
CODO A 90° 100Ø CON SALIDA DE 50Ø DE PVC

CANCELERIA DE ALUMINIO
CODO A 90° 100Ø CON SALIDA DE 50Ø DE PVC
Y DE 4" con reducción a 3" PVC, marca RIVAL
TUBERIA DE AGUA FRÍA 13Ø DE COBRE
MURO DE TABIQUE LAVAMANOS BRIGGS
TUBERIA AC13Ø DE COBRE
INODORO BRIGGS color blanco.
medidas: 73.6 * 39 * 82.6cm consumo de agua: 4.8 Itrs sólidos y 3.5 Its líquidos
BAN 100Ø - BAJADA DE AGUAS NEGRAS (BAJADA AHOGADA EN MURO
DUCTOS BAS BAJANTE DE AGUA SERVIDA
CALENTADOR DEAGUA

TUBERIA DE AGUA FRÍA 13Ø DE COBRE
REGADERA CUADRADA ABS 10 CM CON BRAZO DE DUCHA.
MURO DE TABIQUE
CESPOL BOTE CON SALIDA DE 50Ø DE PVC
FIRME DE CONCRETO
LOSA DE ENTREPISO DE CONCRETO ARMADO
RELLENO
LAVABO CERÁMICO CON REBOSADERO
Largo:47 cm
Ancho:40 cm
Alto:18 cm
Peso:8 kg
INSTALACIONES SANITARIAS
DETALLE CONSTRUCTIVO 3D

MORTERO IMPERMEABILIZANTE FLEXIBLE DE CAPA FINA
Marca intaco de 25 kg
Proporción 1:4 e:2mm
PLASTIGAMA CODO DE 90 PVC
Diámetro Ø75mm
PLASTIGAMA YEE reductor de Ø 110 mm a Ø75mm
PLASTIGAMA TUBERÍAS Y ACCESORIOS DE PVC PARA DESAGÜE SANITARIO
BAÑO ANDES
Consumo de agua : 4.8litros
Peso del inodoro : 23.2 kg
PLACAS DE CERAMICA PARA ACABADO DE PISO 50*50 cm
PEGAMENTO BONDEX CERAMICA DE 20 KG
MARCA INTACO E=5mm
PLASTIGAMA TUBERÍA DE POLIPROPILENO
roscable lineal dorada y cuatritubo para agua fría y caliente de 12,7 mm
PLASTIGAMA
CODO DE 90 PVC
Diámetro Ø75mm
CIELO RASO
DETALLES DE ACA
BADOS EXTERIORES
SELLANTE SILICÓN ESTRUCTURAL
MARCO DE VENTANA ALUMINIO 4X4 CM E=2MM
2 VARILLAS
TIPO L ∅10
VIDRIO REFLECTIVO COLOR CELESTE E= 6 MM
CÁMARA DE AIRE DESECADO O ARGÓN E=12MM
SELLANTE SILICÓN ESTRUCTURAL
MARCO DE VENTANA
ALUMINIO 4X4 CM E=2MM
GANCHO TIPO I Ø=8MM @20CM
2 VARILLAS TIPO L ∅10
MORTERO CEMENTO-ARENA PROPORCIÓN 1:4
PERFIL TRACK DE REFUERZO ALUMINIO 63X40 MM; E= 0,5MM
AISLANTE TERMOACÚSTICO
LANA DE ROCA E=10CM
PANEL DE GYPSUM 1,5CM DE ESPESOR
MASILLADO DE BASE ROMERAL E=8MM
ESTUCO
ANCLAJE A MARCO DE ALUMINIO Y ALFEIZER CON TACO FISHER 1 1/4'' Y TORNILLO CABEZA OCTOGONAL 2''
VERTEAGUAS
ALFEIZAR PREFABRICADO DE HORMIGÓN DE 210KG/CM2 PROPORCIÓN 1:3:3 P= 2%
GOTERÓN
MORTERO CEMENTO-CAL-ARENA
PROPORCIÓN 1:1:5 E=1,5CM
SELLADOR PARA PARED EXTERIOR E=1MM
MARCA SIKA
DOBLE CAPA DE PINTURA PARA EXTERIORES E=2MM
MARCA CONDOR

DOBLE CAPA DE PINTURA PARA INTERIOR E=2MM

ANTEPECHO (ALFEIZAR)
DETALLE 3D - CARPINTERÍA DE ALUMINIO
DINTEL DE VARILLA ARMADO ø 12MM F´Y=4200 KG/CM2
HORMIGÓN SIMPLE
F'C=210 Kg/cm2, PROPORCIÓN 1:2:3
SELLADO SILICÓN O MASILLA ELÁSTICA
TORNILLO AUTORROSCANTE
CABEZA PLANA (#8 x 3/4'')
PERFIL DE ALUMINIO ANODIZADO E = 1.4 MM
PERFIL PARA VENTANA DE DOBLE
VIDRIO CON CAMARA DE AIRE
TORNILLO AUTORROSCANTE
CABEZA PLANA (#8 x 3/4'')


VIDRIO REFLECTIVO COLOR CELESTE E= 6 MM
CÁMARA DE AIRE
DESECADO O ARGÓN E=12MM
VERTEAGUAS PREFABRICADO DE HORMIGÓN DE 210KG/CM2 1:3:3 P= 2%
2 VARILLAS
TIPO L ∅10
PERFIL TRACK DE REFUERZO ALUMINIO 63X40 MM; E= 0,5MM
AISLANTE TERMOACÚSTICO
LANA DE ROCA E=10CM
IMPERMEABILIZACIÓN
DETALLE 3D DE IMPERMEABILIZACIÓN DE TERRAZA

REPISÓN DE HORMIGÓN
ARMADO CON GOTERO
F'C=210 Kg/cm2
ARMADURA DE ACERO Ø 8MM
MORTERO CEMENTO-ARENA
F'C=100kg/cm2
CAPA DE CEMENTO-CALARENA
PROPORCIÓN 1:1:6 E=5MM
MAMPOSTERÍA DE LADRILLO HUECO PREFABRICADO
PROPORCIÓN 1:2:3 MORTERO CEMENTO-ARENA
F'C=100kg/cm2
PROPORCIÓN 1:4 E=15mm
ENLUCIDO CEMENTO-CAL-ARENA
PROPORCIÓN 1:1:6 E=1 5 CM
MALLA ELECTROSOLDADA 6x100mm ADELCA
HORMIGÓN SIMPLE
PROPORCIÓN 1:2:2 f´c= 240 kg/cm2
LÁMINA METÁLICA
ESTRUCTURAL
DECK e=0.76mm ( CAL 22 )
PERNOS DE ANCLAJE ANCLAJE CON GANCHO HOLANDÉS 800mm
PROPORCIÓN 1:4 E=15mm
MORTERO CEMENTO -CAL
PROPORCIÓN 1:3
CHAFLAN DE MORTERO CON TAPA DE LADRILLO
LADRILLO 2 X 12X 2 4CM
LÁMINA ASFÁLTICA CHOVA E=15 mm

CONECTORES TIPO STUDS 1/2''X3''
PENDIENTE 2%
PERNOS ∅20 MM ALTA RESISTENCIA
GRADO 8 8
ACABADO GALVANIZADO
PLACA DE ANCLAJE EN L ACERO ESTRUCTURAL
30 CM X 20 CM DE ANCHO E= 2MM
ALZAS DE PVC Ø 2x30mm, h=2,5 cm
LOSA DECK HORMIGÓN SIMPLE F'C=240Kg/cm2 PROPORCIÓN 1:2:2
VIGA IPE 360 ACERO ESTRUCTURAL
IMPERMEABILIZACIÓN
DETALLE 2D DE IMPERMEABILIZACIÓN DE TERRAZA

MEMBRANA ASFÁLTICA GEOTEXTIL
MARCA HONNEN LÁMINA DE 10 mm
E=4MM
IMPRIMACIÓN ASFÁLTICA
ENVASE DE 20 KG COLOR NEGRO
MAXISEAL IMPERMEABLE FLEXIBLE
MARCA INTACO MORTERO-AGUA
COLOR GRIS
E=4MM PROPORCIÓN: 1KG: 0 2 L
MORTERO CEMENTO-ARENA
PROPORCIÓN 1:6
E=5CM PARA ENLADRILLADO
HORMIGÓN SIMPLE
PENDIENTE 2%
F'C=240Kg/cm2
PROPORCIÓN 1:2:2
PIEDRAS DE ARCILLA PARA DRENAJE
ESTILO GUIJARRO
E=5CM
DIAMETRO 6 MM

BLOQUES DE LADRILLO 15X20X40CM
MARCA FALCO
DETALLE 2D
CLIP REMACHE DE FIJACIÓN DE ACERO PARA PANEL MARCA NOVACERO
SCREEN PANEL IMNOVA (NOVACERO) E = 4MM 40X80 CM)
CÁMARA DE AIRE
BLOQUES DE LADRILLO 15X20X40CM
MARCA FALCO
ESTRUCTURA DE FIJACIÓN Y SOPORTE VERTICAL PARA FACHADA DE ALUMINIO MARCA ACIMCO
AISLANTE TÉRMICOACUSTICO DE LANA DE ROCA DE LA MARCA ACIMCO 1 2 * 0 5N , E = 4CM
ENLUCIDO
DOSIFICACIÓN 1:3 CEMENTO Y ARENA, E = 1.5CN MARCA UNIDAS
ÁNGULO DE FIJACIÓN A PARED DE ACERO MARCA ACIMCO
ENLUCIDO
DOSIFICACIÓN 1:5 CEMENTO Y ARENA, E = 1.5CM
MARCA UNIDAS
VIGA METÁLICA
IPE - DIPAC


FACHADA VENTILADA
ESTRUCTURA DE FIJACIÓN Y SOPORTE VERTICAL PARA FACHADA DE ALUMINIO MARCA ACIMCO
PLACAS DE PORCELANATO PARA ACABADO DE PISO MARCA GRAYMAN
60x60cm
E=0.8 cm
CLIP REMACHE DE FIJACIÓN DE ACERO PARA PANEL MARCA NOVACERO
SCREEN PANEL IMNOVA (NOVACERO) E = 4MM 40X80 CM)

ESTRUCTURA DE FIJACIÓN Y SOPORTE VERTICAL PARA FACHADA DE ALUMINIO MARCA ACIMCO
ÁNGULO DE FIJACIÓN A PARED DE ACERO MARCA ACIMCO
ENLUCIDO
DOSIFICACIÓN 1:3
CEMENTO Y ARENA, E = 1 5CN MARCA UNIDAS
PEGANTE BONDEX
PORCELANATANO
40KG MARCA SIKA
PROPORCIÓN: 2 1-1 E=5CM
VIGA METÁLICA IPE - DIPAC
ENLUCIDO
DOSIFICACIÓN 1:5
CEMENTO Y ARENA, E = 1 5CM MARCA UNIDAS
HORMIGÓN SIMPLE
PROPORCIÓN 1:2:2 f´c= 240 kg/cm2
BLOQUES DE LADRILLO 15X20X40CM
MARCA FALCO

AISLANTE TÉRMICOACUSTICO DE LANA DE ROCA DE LA MARCA ACIMCO 1 2 * 0 5N , E = 4CM
REVESTIMIENTO DE FACHADA
MATERIAL: PIEDRA
DETALLE2D
MORTERO CEMENTO-ARENA
F'C=100kg/cm2, PROPORCIÓN 1:4 E=1,5 CM
MAMPOSTERÍA
BLOQUE DE HORMIGÓN 40x20X20 cm
REVOCADO E= 5MM (1RA CAPA DE ENLUCIDO)
CHAMPEADO E=10MM
(2DA CAPA DE ENLUCIDO)
ENLUCIDO DOSIFICACIÓN 1:2:3 CEMENTO, CAL, ARENA ,E=20MM)
MASILLADO MORTERO RECUBRIMIETNO BONDEX DE 40KG MARCA SIKA PROPORCIÓN: 2.1-1, E=1,5CM
PIEDRA ARTIFICIAL FACHALETA ALPES CAFÉ MARCA KINARA 29,5 X 10 CM, E= 5 MM
HORMIGÓN SIMPLE PROPORCIÓN 1:2:2 f c= 240 kg/cm2
PERNOS DE ANCLAJE ANCLAJE CON GANCHO HOLANDÉS 800mm
VARILLAS 8Ø18mm
ENLUCIDO INTERIOR 1:1:5 CEMENTO, CAL, ARENA E=1,5 CM
MORTERO CEMENTO-ARENA
F'C=100kg/cm2, PROPORCIÓN 1:4 E=1,5 CM
BARREDERA DE PORCELANATO CANTO PERDIDO APLOMADO CON EL ENLUCIDO
MAMPOSTERÍA
BLOQUE DE HORMIGÓN 40x20X20 cm
REVOCADO E= 5MM (1RA CAPA DE ENLUCIDO)
CHAMPEADO E=10MM (2DA CAPA DE ENLUCIDO)

ALZAS DE PVC Ø 2x30mm, h=2,5 cm

PERNOS ∅20 MM ALTA RESISTENCIA
GRADO 8 8
ACABADO GALVANIZADO
PLACA DE ANCLAJE EN L ACERO ESTRUCTURAL
30 CM X 20 CM DE ANCHO E= 2MM
ENLUCIDO DOSIFICACIÓN 1:2:3 CEMENTO, CAL, ARENA ,E=20MM)
MASILLADO MORTERO RECUBRIMIETNO BONDEX 40KG
MARCA SIKA PROPORCIÓN: 2 1-1, E=1,5CM
PIEDRA ARTIFICIAL FACHALETA ALPES CAFÉ MARCA KINARA 29,5 X 10 CM, E= 5 MM
HÓRMIGON ARMADO O F'C=210 KG/CM2 PROPORCION 1:2:2, 10 CM
MALLA ELECTROSOLDADA 4-10 ADELCA
LOSA DECK HORMIGÓN SIMPLE F'C=240Kg/cm2 P ROPORCIÓN 1:2:2
VIGA IPE 360 ACERO ESTRUCTURAL
REVESTIMIENTO DE FACHADA

REVOCADO
E= 5MM (1RA CAPA DE ENLUCIDO)
CHAMPEADO
E=10MM (2DA CAPA DE ENLUCIDO)
ENLUCIDO DOSIFICACIÓN 1:2:3 CEMENTO, CAL, ARENA ,E=20MM)
MASILLADO MORTERO RECUBRIMIETNO BONDEX 40KG
MARCA SIKA PROPORCIÓN: 2.1-1, E=1,5CM
PIEDRA ARTIFICIAL FACHALETA ALPES CAFÉ
MARCA KINARA
29,5 X 10 CM, E= 5 MM

HÓRMIGON ARMADO
O F'C=210 KG/CM2 PROPORCION 1:2:2, 10 CM
MAMPOSTERÍA
BLOQUE DE HORMIGÓN 40x20X20 cm
MALLA ELECTROSOLDADA 4-10 ADELCA
LOSA DECK HORMIGÓN SIMPLE
F'C=240Kg/cm2 PROPORCIÓN 1:2:2
VIGA IPE 360 ACERO ESTRUCTURAL
MURO RECUBIERTO DE PIEDRA
DOBLE SEGURIDAD TIPO ACÚSTICO
MURO
BLOQUE DE HORMIGÓN DE 10 X 40 X 20CM
MORTERO
MORTERO DE CEMENTO Y ARENA
PROPORCION 1:4 10MM
F’C= 100KG/CM2
MURO
REVOCADO DENTRO DEL ENLUCIDO DOSIFICACIÓN 1:1:4
IMPERMEABILIZANTE MEMBRANA
IMPERMEABILIZANTE SIKA MANTO
PEGAMENTO
BONDEX PIEDRA RÚSTICA
INTACO PROPORCIÓN 2:1:
MURO
PIEDRA ARENISCA COLOR
CREMA, ACABADO MATE, PRESENTACIÓN EN PALET 2CM
MURO
CAPA DE HORMIGON AISLANTE F´C= 210 KG/CM2
MURO
LÁMINA ASFÁLTICA CHOVA 15MM
MURO MASILLA 15MM
CADENA DE AMARRE CADENA DE AMARRE HORMIGÓN ARMADO
F’C: 240 KG/CM2 HORMIGÓN
HORMIGÓN CICLÓPEO F´C= 210KG/CM2
SUELO NATURAL TIERRA COMPACTADA REPLANTILLO REPLANTILLO DE HORMIGÓN
F’C: 180 KG/CM2

MURO RECUBIERTO DE PIEDRA
DOBLE SEGURIDAD TIPO ACÚSTICO
BLOQUE DE HORMIGÓN 10 X40X20 CM
MEMBRANA IMPERMEABILIZANTE SIKA MANTO
BONDEX PIEDRA RÚSTICA INTACO PROPORCIÓN 2:1
PIEDRA ARENISCA COLOR CREMA, ACABADO MATE, PRESENTACION EN PALET 2CM
LÁMINA ASFÁLTICA CHOVA 15MM
REPLANTILLO
REPLANTILLO CON
HORMIGÓN SIMPLE DE 180 KG/CM² PROPORCIÓN 1:2:4 E=7 CM
HORMIGÓN CICLÓPEO
REPLANTILLO CON
HORMIGÓN SIMPLE DE 180 KG/CM²

BLOQUE DE HORMIGÓN 10 X40X20 CM
MORTERO DE CEMENTO Y ARENA
PROPORCION 1:4 10MM F’C= 100KG/CM2
CAPA DE HORMIGÓN AISLANTE F´C= 210 KG/CM2
MASILLADO E: 15 MM
VARILLAS Ø10
CADENA DE AMARRE HORMIGÓN ARMADO DE 240 KG/CM²
TIERRA COMPACTADA
ADOQUÍN
30 X 15 E= 6 CM
VEREDA PERIMETRAL
JUNTA DE DILATACIÓN
JUNTA RELLENA DE ARENA E= 1cm
BORDILLO PREFABRICADO (HORMYPOL) DE HORMIGÓN DE RESISTENCIA DE 400 KG/CM² 30 X 15 X15 CM

SUELO NATURAL SUELO NATURAL COMPACTADO
REPLANTILLO
REPLANTILLO CON HORMIGÓN SIMPLE DE 180
KG/CM² PROPORCIÓN 1:2:4 E=7 CM
ÁRIDOS
CAPA SUB-BASE CON ARENA FINA COMPACTADA
JUNTA DE DILATACIÓN
JUNTA RELLENA DE ARENA E= 1cm
ADOQUÍN
30 X 15 E= 6 CM
BORDILLO PREFABRICADO (HORMYPOL) DE HORMIGÓN DE RESISTENCIA DE 400 KG/CM²
30 X 15 X15 CM
SUELO NATURAL SUELO NATURAL COMPACTADO
REPLANTILLO
REPLANTILLO CON HORMIGÓN SIMPLE DE 180
ASFALTO CAPA DE RODADURA ASFÁLTICA E= 6CM
JUNTA DE DILATACIÓN RELLENO DE JUNTAS CON MORTERO
CEMENTO - ARENA PROPORCIÓN 1:4
CAPA BASE CAPA BASE CON ÁRIDOS TRITURADOS Ø 8MM
ASFALTO CAPA DE RODADURA ASFÁLTICA E= 6CM
CAPA BASE CAPA BASE CON ÁRIDOS TRITURADOS Ø 8MM
ÁRIDOS
CAPA SUB-BASE CON ARENA FINA COMPACTADA

KG/CM² PROPORCIÓN 1:2:4 E=7 CM
BORDILLO DE ACERA
ADOQUÍN DE PIEDRA GRIS
20x10 cm espesor 6cm
f’c=280 kg/cm2
JUNTA DE ARENA E=15mm
REPLANTILLO DE HORMIGÓN
f’c=180 kg/cm2
BORDILLO PESADO DE HORMIGÓN PREFABRICADO
100x25x12 cm
f’c=210kg/cm2

TIERRA COMPACTADA ALIBIANAMIENTO PREFABRICADO
ADOQUÍN DE PIEDRA GRIS
20x10 cm espesor 6cm
f’c=280 kg/cm2
JUNTA DE ARENA E=15mm
REPLANTILLO DE HORMIGÓN
f’c=180 kg/cm2
TIERRA COMPACTADA ALIBIANAMIENTO PREFABRICADO
SUBASE DE PAVIMENTO

BORDILLO PESADO DE HORMIGÓN PREFABRICADO 100x25x12 cm
f’c=210kg/cm2
SUBASE DE PAVIMENTO
CAPA DE RODADURA 50mm
CAPA DE RODADURA 50mm