Design Portfolio by Jingxi Miao

Page 1


Jingxi Miao

Portfolio

jingxim@outlook.com +44 7546968409 (UK) www.linkedin.com/in/jingxi-miao

About me

The fusion of architectural innovation and media strategy has defined my role as an interdisciplinary designer. With expertise in Adobe apps and a solid foundation in design principles, my contributions to the teams I have stayed with have enhanced our projects’ visual and functional appeal. Collaborating closely with each team, I have also gained practical experience in communication and time management, ensuring that each activity is both aesthetically compelling and strategically sound.

Beside my eight years in architectural education and related practices, my participation in the AA Material Arcade has also allowed me to contribute to the creation of material circularity - multimedia content for sustainable narratives. This role, combined with my recent completion of Master of Architecture, has cemented my commitment to pushing the boundaries of design and communication.

Content

Tile Fabric

Jackfield, Telford, UK

The Mint or The Embassy

London, UK

The Hearth: A New Chimney Core

Littleport, Cambridgeshire, UK

The Ad Hoc Stand

London, UK

Art Education via Media

Beijing, China

Latent Landscape

Tianjin, China

Tech[k]nowledge

Linyi, Shandong, China

Kulangsu Tsingpu Hotel Renovation

Xiamen, China

Central Steel Park Landscape Design

Baoshan, Shanghai, China

Art Education via Media

Practice Teamwork 2019 (remote)

Studio HFZ led by Liu Chang Start-up art institution providing online courses

I joined the team at its early stage when the leader wanted to provide STEAM-based design courses to youths at ages from 8 to 12. We aimed to promote unconventional ways of thinking and making through teaching. I mainly took in charge of designing the curriculum of spatial design and served as an assistant tutor to guide students to draw any whimsical ideas that they could ever imagine. Presented here are some of the visualisations that I created for marketing purposes.

A phone game about designing a dream classroom
A booklet and leaflets for the institution

Latent Landscape

Academic Individual Work 2021 (remote) House of ZKA led by Zaid Kashef Alghata AI Machine-learning design workshop

This project explores landscape design through AI technology. Starting with deciphering the plan of the Bilbao Guggenheim Museum, I utilise multiple digital platforms, such as Ostagram, Processing, Rhino and Twinmotion, to merge unrelated images into a proposal for fish farm garden.

input base image guide profiles

profile lineweights affect the outputs from Ostagram

Style iteration2
Style iteration1

Tile Fabric

Academic individual work 2021 Architectural Association Third Year

The project is about using a tile fabric to preserve a Victorian tile factory where the original bottle kilns were demolished during war periods. Inspired by protective armours, the tile fabric is a new type of external wall system using fired and unfired ceramic tiles. The design aims to reserve the cultural heritage of the bottle kiln by bringing back its historical form, while the resilient nature of clay re-interprets firing by reducing negative impacts on the environment.

Kinetic study of arnour and Materiality tests of unfired clay

Iteration models in multiple materials inspired by different types of armour such as chain mail and samurai suits

Conceptual model in scale 1:25

The resilient scheme of the tile fabric: The ceramic tiles give structural support to keep the bottle in shape, the clay tiles that fall off in wet days are reproduced insitu and repatched periodically.

The Mint or The Embassy

Academic individual work 2023

Architectural Association Fourth Year

Starting from a question about post-covid office occupancy in London, my unit dig into a research about different modes of working in trend, and I am looking in particular at a 1980s office building at the Royal Mint Court. A recent controversial proposal of turning the 5-acre site into a Chinese embassy campus has put the building at an ambiguous situation: to be left abandoned or to be politicized by a foreign government.

My premise is to utilise circular strategies to help the Chinese government to address key barriers in the application. Firstly, the design maximally reuses existing cladding elements insitu to minimize construction wastes and carbon emissions that could be caused by transportation and the production of new materials.

Secondly, existing height differences of grounds and archaeological sites are revitalized to be key part of security border, ensuring a dynamic coexistence of multiple programmes at different levels of security and privacy. The proposed masterplan aims to create a work-life-balanced hub that serves for both the Chinese government and the local neighbourhood.

More details including a mini-documentary: https://youtu.be/54-Rncy3cIQ

Upgrading the facade with original materials
New facade

Comparing different versions of the security border between government programme and public space

A more porous composition of programmes that belnd into the community

Existing condition

Exploring various ways of reusing original components

The upgrading strategy aims to reuse most of the original commponents in-situ, in a new architectural language that expresses a taste in the Chinese style.

The reuse of materials on the facades
The street between the office and the local neighbourhood becomes a food street.
Upgraded facade for accommodation
Detailed model of the casette facade in scale 1:1.
The model was made in collaboration with Jake Williams and Giulia Rosa, to represent the facade composition of the Grenfell Tower, for a symposium about fire safety. The construction detail is similar to the facade at Royal Mint Court.

The Hearth: A New Chimney Core

Academic individual work 2024

Architectural Association Fifth Year

In response to King Charles III’s advocacy for maintaining classic architectural elements in the UK, there has been a national trend to preserve chimneys in old buildings and replicate traditional designs in new houses. This project examines the phenomenon of adorning mass-produced new homes with faux chimney stacks. These stacks, crafted from glassfibre reinforced plastic (GRP), are prefabricated components that can be efficiently installed on-site. Similarly, other building elements are produced using a sandwich method, adding a layer of thermal insulation on the inside while mimicking a blend of British architectural styles on the outside.

The project’s aim is to redefine the role of the chimney in modern homes. It proposes a new type of housing development where each dwelling features an alternative chimney that serves as both structural support and a conduit for integrated services, promoting sustainable living in contemporary settings.

More details including a mini-documentary: https://pr2024.aaschool.ac.uk/students/jingxi-miao

Every family has a chimney core and the ‘fireplace’ faces to the living area
Schematic concept of the chimney core providing complimentary services
Sales centre presents the construction of real chimney cores rather than fake plastic stacks
The chimney core under construction

The marketing booklet On the front each sheet explains the basic format On the back provides three customisation options

booklet contains five sheets. format of the living area in five types of houses. options for house buyers to choose their preferences.

View from living area to the private garden
View of the complimentary unit of appliances in kitchen

Tech[k]nowledge

Academic individual work 2019 University of Michigan Fourth Year

There is still a society that values students’ academic achievements for the most and the major method to score high is constant reading at desk. Thousands of hundreds of teenagers who are tagged as “addicted with the Internet” are sent to a clinic for mental health where patients receive jail-like preaching, with electronic shocks as the ultimate treatment, in order to turn them into “standard good students”. Most of these kids are born to working classes where the parents give lacking attendance to their children. What after-school activities would students like when their parents are not around? What type of structure can support the young to learn through playing, with positive effects?

This project introduces a new prototype putting game mechanism into a building that functions like a vending machine, in order to offer teenagers with extracurricular opportunities and to stimulate their impulses to absorb knowledge.

The proposal replaces an existing recreation centre on the site. The new volume has similar rectangular shape as the surrounding residential towers. It is set back from the rest buildings to provide a large open playground for the community.

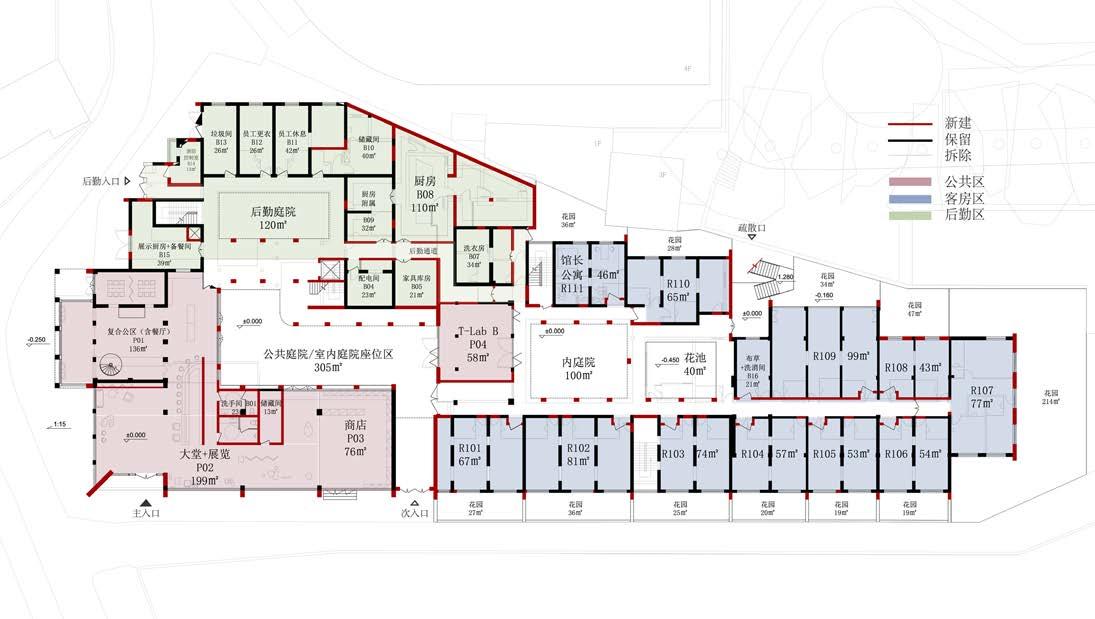
Kulangsu Tsingpu Hotel Renovation

Practice Teamwork 2021

Atelier Liu Yuyang Architects (images here are my work) Concept design of a package delivery - Stage2

Situated at a prime edge of the Kulangsu Island, a famous place for vacation in southern China, the brand Tsingpu seeks for a fresh look at an abandoned hotel site to provide a multi-level sensory experience to tourists. I mainly developed iterations on the architectural facades and interior styles, relating to the expression of apertures, balustrades, and roofs that fit aesthetically with facility devices.

Facade iterations on roof form and shape of aperture Flat on hip vs Pyramid hip
Main entrace

Architectural plan of ground floor

Exterior of beach-facing rooms with private yards The cross shaped windows are inspired by the building’s original design.

A communal central courtyard with a mini-landscape design, providing paths to rooms and a direct view to the tea room and gym.

Room Style 1: Delightful Art
A backyard connecting to a communal staircase
Room Style 2: Business Casual

Central Steel Park Landscape Design

Practice Teamwork 2021

Atelier Liu Yuyang Architects in collaboration with Hassell Shanghai Urban-scale competition

This project envisions regeneration of one of the biggest but abandoned steel factories in China. As large as around 370 acre, the project dives into the rich historical layers within the park and restores the site to allow for a diversity of lifestyles. In the urban team, I mainly conducted site survey, concept design and visualisatoins.

Cultural exchange centre
Office building
Cafe and park

BIM analysis of existing infrastructures based on the steel production line

Regeneration strategy

The Ad Hoc Stand

Teamwork 2024

Ad Hoc Baroque Exhibition at the AA

The stand serves to hold the book Ad Hoc Baroque which documents the life and works of a Belgian architect who pioneered in material reuse. Materials were sourced from AA Material Arcade.

Reference: Sijn Colon, Arne Vande Capelle, Lionel Devlieger, James Westcott – Rotor, Ad Hoc Baque: Marcel Raymaekers’ Salvage Architecture in Postwar Belgium (Brussels: Rotor, 2023)

AA Material Arcade is a student-led initiative that promotes and facilitates the exchange of materials, objects and tools within the AA School by enabling the circulation of salvaged components. This initiative is available to all current students, staff and alumni. We utilise an internal credit system to monitor the carbon savings from circulating materials. Founded in 2021 by Diploma 18 students to formalise reuse ambitions of students at the AA, we seek to reduce the consumption of new resources by the school community. Web: www.aaschool.ac.uk/resources/material-arcade Instagram: @aa_materialarcade

Turn static files into dynamic content formats.

Create a flipbook
Issuu converts static files into: digital portfolios, online yearbooks, online catalogs, digital photo albums and more. Sign up and create your flipbook.