Skip to main content

Routhieaux_Portfolio_SWA_Group

Page 1


let us be true

Come to the window, sweet is the n Only, from the long line of spray

Where the sea meets the moon-blan

Listen! you hear the grating roar Of pebbles which the waves draw ba At their return, up the high strand, Begin, and cease, and then again beg With tremulous cadence slow, and b The eternal note of sadness in.

portfolio | landscape architecture

“the past is never dead, it’s not even the past” love, one another! for the world, which seems lie before us like a land of dreams, various, so beautiful, so new, th really neither joy, nor love, nor light, r certitude, nor peace, nor help for pain; d we are here as on a darkling plain present

Intohismindtheturbidebb

andflow Of human

about the cover + me

Dover Beach by Matthew Arnold explores the projection of human circumstance onto the landscape. Arnold projected his life experiences onto the Strait of Dover, recalling the softness and agony in his heart mirrored in the moonlit sea and shimmering, jagged rock.

Through the good, bad, death, and life, the Earth will see it and hold it in its landscape. Memory lasts and leaves its mark in the landscape over and over, whether we acknowledge it or not. After all, “The past is never dead. It’s not even the past.”

(William Faukner, 1951)

As a person, I am drawn to protect and understand the natural world, and seek to see others as their truest selves. I aspire to connect humans with the natural world that many people have become disconnected from, and am excited to explore the reconnection of people to place in a diverse array of contexts.

Center for Environmental Stewardship

Educational — Civic

Kansas State University, Manhattan, Kansas

The Center for Environmental Stewardship hosts opportunities for educational experiences, mental relaxation, and has stormwater management features which boosts the site’s social and environmental features. The current site is a parking lot with turf grass, and thus faces issues with flooding, has little social benefit, is inaccessible by wheelchair, has low plant biodiversity, and few educational benefits.

Entry Experience

The project goals are to manage stormwater on-site, improve educational and social opportunity, increase plant biodiversity, and raise sustainability awareness. The design achieves these goals through public access to a buffalograss amphitheater, a pedestrian promenade through the main bioswale of the site, and a system of bioswales which manage stormwater on-site.

Entry experience is filled with life, from prairie grasses to western meadowlarks.

Center for Environmental Stewardship

The Center for Environmental Stewardship creates opportunities for a variety of different experiences contributing to mental health, social cohesion, and environmental health.

Bioswales and Entry Experience

Section
Section
Denison
Chester E. Peters
Center
Jardine Student Apartments

Context

Buildings close to site vary in size

Strong pedestrian and auto connections

Multiple user groups from different land uses

Grading Excerpt and Flow Lines

Major flow lines are arranged for

infiltration into GSI.

Design Strategies

Improved Automotive and Pedestrian Circulation

ADA Accessibility

Strong Programmatic Relationship to GSI

bioswales adjacent to main programmed elements

Stormwater Infiltration Path

Planting Program

Learning Ampitheater

Children and adults play outside while enjoying the natural grasses and warm sunlight.

Celebration of the Alewife Migration

Urban Plaza

Augusta, Maine

This plaza tells the story of the migration cycle of the alewife, a small prey fish native to the Northeast United States. The design is envisioned as an extended learning experience for visitors to the adjacent museum, as well as a respite for workers on lunch break or families on weekends.

Location of Augusta + Alewife Migration Visualization

Conservation Timeline of Native Fish in the Kennebec River

Kennebec River as Parti To Moosehead Lake
From Augusta
Establishment of Augusta
figure 1
Augusta is established as a trade water urbanism.
Milling Industry Grows
figure 2 The milling industry relies on hydropowwer to power textile factories.
Demolition of the Edwards Dam
figure 3
Augusta demolishes the Edwards Damn and restores health of river ecology.
Alewife Habitat Restoration
figure 4
Initiatives in Augusta to restore local fish populations continue.
North America Maine
Augusta
Kennebec Watershed
City Bisected by River Maine in Northeast North America
Moosehead lake
Kennebec Watershed

Alewife Celebration Plaza

Alewives are an estuary fish that migrate seasonally once they achieve maturation. Every year, they go from the Atlantic up to the rivers and streams where they were born. The plan was conceptualized using the form of the Kennebec River Valley uperimposed onto the site so that a visitor to the space is (metaphorically) an alewife going through its migration pattern.

Riparian Gardens
Glowing Forest
Natal Pool Plaza
To Museum
Main Street
1st Street

Glowing Forest

The Glowing Forest is a place for relaxation and coming together. The moveable chairs and tables allow large and small groups of people to sit and enjoy the day, as well as relax and pass time together in a safe environment at night.

Riparian Gardens

There are a variety of plants on site, with most species native to Maine. The Riparian Gardens showcase different types of gardens with florals, rock gardens, and native grasses.

Sensitive Fern
Black Cherry
American Beech
Dogwood Cornus florida
Onoclea Sensiblis
Fagus grandifolia
Prunus serotina

Sensory Experience

Visitors have a variety of seating and shade opportunities to maximize enjoyment while being outdoors.

Main Plaza

This space allows visitors to follow the story of alewife migration through the ground plane details. The stair seating has space to sit facing inward and outward, creating flexibiltiy for visitors to choose their experience.

Study Model

Convergence

Urban Park — Skyline Park Redesign

Denver, Colorado

Masterplan Team Members: Kaylee Steele and Ariel Gish

City Block is Solo Work

Skyline Park has been in disrepair for over two decades, with previous attempts at reimagining the space unsuccesssful in enlivening the park. Located in the heart of Downtown Denver, the park has the potential to become a space for people of all walks of life. The design celebrates Denver’s history as a place of

Before Conditions and History of Skyline Park

Designed by Lawrence Halprin, Skyline Park was a beautiful public space used by Denver for many years. Over time, it has deteriorated in quality and use. Features such as the sunken walks that once made the park whimsical and fun, now make the park feel unsafe and unused.

Connections and Walkability

Downtown Denver is quite walkable with accessible public transit stations located close to the site. Greenspace access near the site is plentiful, however the area immediately around Skyline Park has very little public greenspace. This redesign helps link the greenspace from northwest of the site to southeast of the site.

gathering and sharing through the idea of convergence. Denver was founded on the confluence of Cherry Creek and the South Platte River. Before European American Settlement, the place we now call Denver served as a meeting place for trade and connection for indigenous peoples of the region.

Figure 5
Blocked off lawn/beer garden behind the clock tower, June 2025
TCLF Photo of Skyline Park

Context Map and Team Masterplan

Performance Lawn and Main Programmed Areas

Arapahoe St.
Section

Team Concept Development

Team members drew together on trace to find inspiration for geometry from our concept. We then cut out rectangles to fit our blocks, and drew inspriation from the pieces of the drawing.

Full Site Geometry Studies

Solo

City Block Process

Sketches

Team drawing, 24”x36”

Solo Block Form Development

Solo Design Iteration

Models were made at different scales with a variety of concepts to inform design decisions. Made in two days, independently.

Essence

Residential

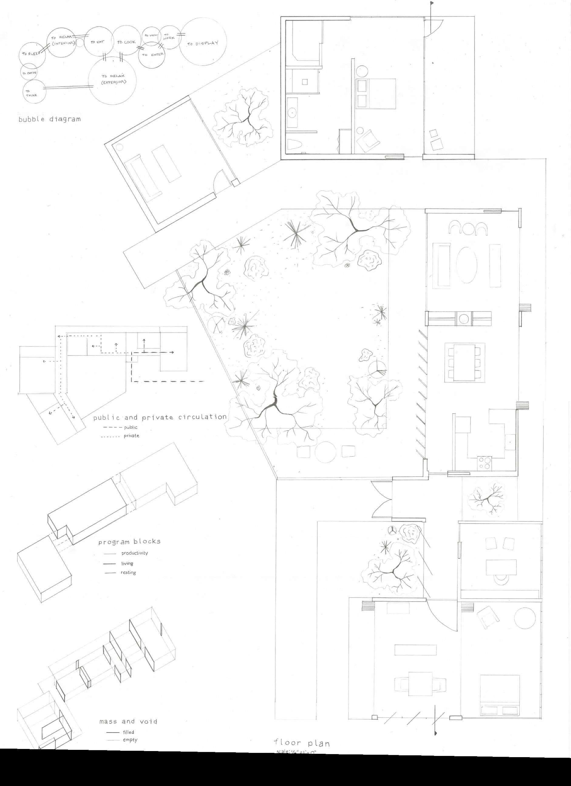
La Jolla, California

essence is a project for designer, Oki Sato. The house is meant to be both a home and a studio while connecting residents and visitors to the natural splendor surrounding the site.

Hand-drawn, 24”x36” Vellum

3D Art

3D Art, ART302, Fall 2023

Wire Shoe

Steel Wire, 18” x 8” x 6”

Representation of a Nike Air Force, Size 6 at twice the scale of actual shoe

Drawing

Photo Drawing

Graphite

9” x 11”

Drawing Study

Graphite 5” x 8”

On-Site Sketch

Graphite 4” x 4”

1

Augusta Waterfront Augusta showing a city and a river or creek. Augusta, Maine Travel Guide. Expedia. Accessed April 19, 2025. https://www.expedia.com/ Augusta.dx452.

2

Cotton Mills in Augusta “Augusta, Maine, Edwards & Co.. Cotton Mills.” DigitalCommons@ UMaine. Accessed April 19, 2025. https://digitalcommons.library. umaine.edu/spec_photos/1433/.

3

Bukaty, Robert F. The Edwards Dam on the Kennebec River, in 1993, before its removal. Lessons from the Field, Dam Removal, Maine. National Geographic, n.d. https://www.nationalgeographic. com/environment/article/lessons-from-the-fieldedwards-dam-removal-maine.

4

Visconti, Evan. A Fisheries Biologist Displays and Alewife during an electrofishing survey. Alewife. Virginia Department of Wildlife Resources, August 14, 2024. https://dwr.virginia.gov/wildlife/ information/alewife/.

Figure 5

TCLF / Charles A. Birnbaum. Skyline Park, Denver, Colorado (photograph, 2001). Courtesy of The Cultural Landscape Foundation. Available at: https://www.tclf. org/sites/default/files/thumbnails/image/ SkylinePark_CharlesBirnbaum_2001.jpg

Figure
Figure
Figure
Figure

Turn static files into dynamic content formats.

Create a flipbook
Routhieaux_Portfolio_SWA_Group by Jillian Routhieaux - Issuu