Fall 2023 Portfolio

Page 1

PORTFOLIO

JILLIAN CISZEWSKI

Jillian Ciszewski is a sophomore student at the University of Detroit Mercy. She is currently enrolled in the School of Architecture and Community Development. As a transfer student, she is eager to pursue the world of architecture and ambitious to expand her talents. Currently, she anticipates receiving her B.Arch in 2026. In addition, Jillian plans to continue her education for a M.Arch and M.Cive.

CONTENTS REVIT PROJECTED SPACE LIGHT VESSEL COURTYARD COURTYARD + PAVILION 3 17 23 33 39

REVIT

The following projects are products of multiple courses that focused on the study of REVIT. These projects furthered understanding of plans, elevations, sections, axonometric, and perspectives. Exploration of the software's tools and abilities increased understanding of the architectural drafting process. Over the span of these courses, projects and deliverables became more complex in nature. The initial projects are reproductions, while the final project [Wellness Center] was totally designed by the drafter.

TWO STORY HOUSE

4
5
6
7
8

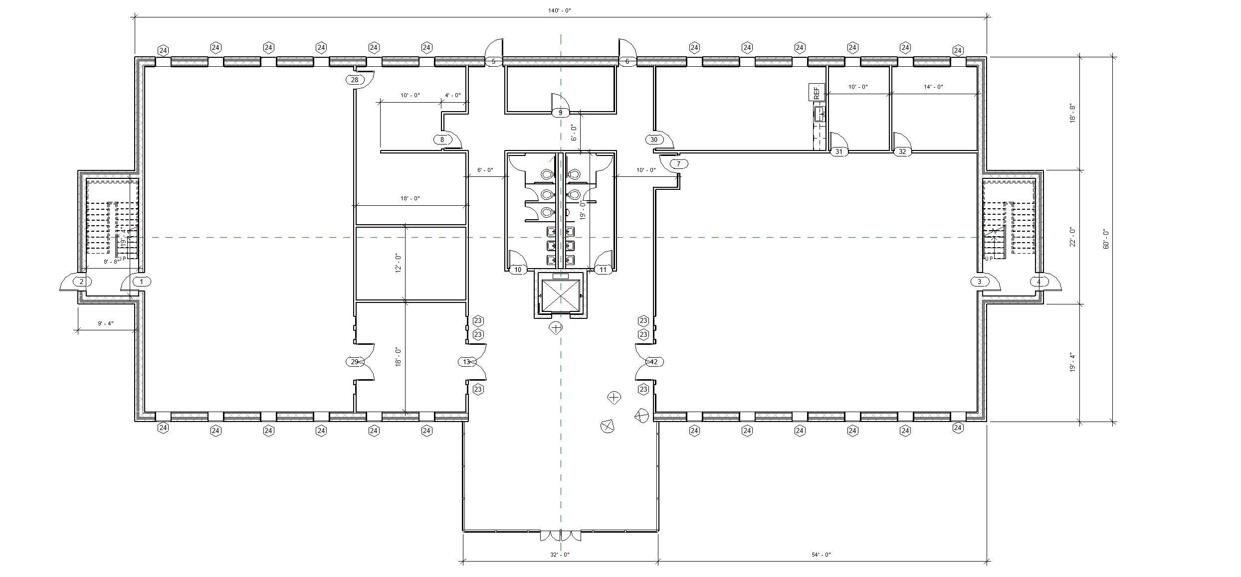
OFFICE BUILDING

10
11
12
13

WELLNESS CENTER

14
15
16

PROJECTED SPACE

This project aimed to make the leap from 2D to 3D. The foundation of this project was Mary Lee Bendolph's quilt "Alabama." Studies of the piece were done through reproductions and improvisations. The variations of the piece explored possible pathways for the project while still maintaining the bones of the quilt. The 3D models were to keep the same momentum during the inital stages. A strong theme of Bendolph's work is a sense of movement that inspired the framework for the final model.

3
18
159
20
21
22

LIGHT VESSEL

Light is a fundamental element of many of our experiences, and it is an essential ingredient in architectural design. This chapter focused on the interplay of light within architectural spaces.

The project began with light precedents that explored different qualities of light. Inspired by negative space and angled planes, this vessel was born. The two walls create a tension that contains beams of light navigating through cavities. As a result, light is spilled ahout the "alleyway's" floor and walls to guide the viewer through the longitudinal space.

24
25

FIRST STUDY

26

SECOND STUDY

27
28
FINAL 29
30
31

COURTYARD

The next chapter introduces architecture at a human scale. For the first time, there is a site of interest: on capmus between the Loranger Architecture building and the McNichols Library. Before the design process, research was crucial to understand how to approach the space and create an effective program. Precedents were also taken into consideration. The final plan seeks to accomodate multiple individauls and groups and serve as a multipurpose space and an extension of the library.

19
Buhl Community Park by Andrea Cochran Landscape Architecture
34
Keene State Science Center Courtyard by Dirtworks Lanscape Architecure
Simons Center for Geometry and Physics by Dirtworks Lanscape Architecure Beekman Plaza by Dirtworks Lanscape
35
Architecure
37
40
LIVID Pavilion by the Bergen School of Architecture
41
45
46

Turn static files into dynamic content formats.

CreateΒ aΒ flipbook
Issuu converts static files into: digital portfolios, online yearbooks, online catalogs, digital photo albums and more. Sign up and create your flipbook.