Portafolio Arquitectónico Académico

Page 1

Diciembre 2022

Autor: Jesús J. Ríos B. Todos los derechos reservados

Está prohibido copiar o difundir los textos e imágenes del presente portafolio, sin previo aviso del autor y bajo las siguientes condiciones:

Reconocimiento: Los creditos de esta obtra deben reconocerse especificando el nombre del autor o el licenciador.

No comercial: No puede usar esta obra con fines comerciales

Sin obras derivadas: No se puede alterar, transformar o generar una obra derivada a partir de esta obra.

2

PORTAFOLIO

3
JESÚS J. RÍOS ARQUITECTURA 2020-2022
4

Presentación

Soy estudiante de arquitectura enfocado en ampliar mi capacidad de diseño creativo e innovador. Mi pasión por el diseño no es exclusiva de la arquitectura, ya que me considero un diseñador en sí. Tengo interés en el desarrollo estructural y en el diseño biofílico y bioclimático.

Mi objetivo al estudiar arquitectura es el de crear espacios y edificios que estén en completa armonía con su entorno local, independientemente de su ubicación en el planeta y poder desarrollar los mismos de la manera más eficiente y novedosa posible.

5
6 Casa Rústica Proyectos en Solitario Condado Health Center Catalina Tower Proyecto Colaborativo Centro de Visitantes Villa Savoye

pág. 09

pág. 15

02

pág. 23

pág. 33

7
01
03
04
01

Ficha Técnica:

Proyecto : Vivienda Bifamiliar

Ubicación :Los Ángeles, Panamá

Área: 300 m2

Casa Rústica

Casa Rústica es un proyecto inmobiliario de uso mixto ubicado en el barrio de Los Ángeles en la Ciudad de Panamá. Ubicada en un entorno urbano en un terreno en forma cónica y con una topografía muy accidentada, la cual se ubica en la ladera de una colina.

Esta vivivienda está diseñada pensando en la convivencia y comodidad de las familias de un par de hermanos abogados que buscan compartir un espacio en el cual puedan convivir, trabajar y pasar tiempo de calidad con sus familias. El planteamiento de la vivienda se desarrolla en dos niveles y un sótano. Adaptandose perfectamente a la topografía de su terreno

Uno de los puntos fuertes del proyecto es que tiene un estilo puro.Todos los materiales utilizados en la vivienda se mantienen en su estado puro natural, para asi lograr un estilo mas real y rústico. Los materiales seleccionados para su construcción fueron el ladrillo,concreto blanco pulido,tejas de arcilla, Cantería y pares de madera.

9

PLANTA BAJA:

01 ESTACIONAMIENTOS 02 MEDIO BAÑO 03 BAÑO DE HUÉSPEDES 04 HABITACIÓN DE HUÉSPEDES 05 OFICINA 06 LAVANDERÍA 07 COCINA 08 COMEDOR 09 SALA 10 HABITACIÓN ABUELOS 11 BAÑO ABUELOS 12 BALCÓN

En la planta baja se plantean las áreas sociales de ambas viviendas en conjunto con las áreas de trabajo, el área de descanso de los abuelos y la oficina de ambos hermanos. El acceso a la misma se da a través de la fachada frontal en el lado sur, se ingresa a un recibidor y luego se desciende un medio nivel para llegar a la sala comedor y cocina, las cuales están planteadas para funcionar en un solo espacio.

PLANTA ALTA: 01 HABITACIÓN PRINCIPAL 02 VESTIDOR 03 BAÑO PRINCIPAL 04 TERRAZA FRONTAL 05 SALA FAMILIAR 06 BAÑO 2 07 HABITACIÓN 2 08 HABITACIÓN 3 09 BAÑO 3 10 TERRAZA COMPARTIDA 11 BALCÓN

En la planta alta se desarrolla el área de descanso de los miembros de cada familia. Ambas viviendas cuentan con una gran sala familiar que cuenta con acceso al balcón posterior y a la terraza compartida.

10
01 02 03 04
06 07 08 09
01
03
05
05
10 11 12
02
04
06 07 08 09 10 11

SÓTANO:

T.V.

En el sótano se plantea el área social compartida. Esta cuenta con espacios de convivencia, una cocineta para preparar alimentos y un baño completo.

Esta area esta planeada para albergar a todos los miembros de la familia durante una reunión familiar.

SECCIÓN A-A SECCIÓN B-B

11
01 GRAN TERRAZA INFERIOR 02 LOUNGE CON
03 LOUNGE 04 AREA DE JUEGOS 05 COMEDOR 06 COCINETA 07 DEPÓSITO 08 BAÑO
01 02 03 04 05 06 07 08

VISTA AÉREA PRIMER NIVEL

PLANTA BAJA SÓTANO

12
14 02

Ficha Técnica:

Ubicación :Condado del Rey, Panamá

Normativa : MC

Condado Health Center

Condado Health Center es un proyecto inmobiliario de tipo Salud ubicado en el barrio de Condado del Rey en la Ciudad de Panamá. El mismo está ubicado en una de las zonas de la ciudad que cuenta con un alto porcentaje de nuevos desarrollos urbanos por año.

Este centro de salud está diseñado para satisfacer las necesidades de salud de las personas del área, debido a que en este sector de la ciudad no se encuentra un centro de salud con la capacidad de atender la gran cantidad de población del área en la cual se encuentra.

El planteamiento del mismo se desarrolla a través de 4 niveles, dos para el centro de salud en sí mismo y dos niveles completos para el alquiler de consultorios de carácter privado.

El diseño del mismo está basado en la arquitectura biofílica y gira en torno a un jardín central con una altura triple. La materialidad del mismo esta basada en materiales modernos como el concreto, madera, vidrio y acero corten.

15
Proyecto : Centro de Salud

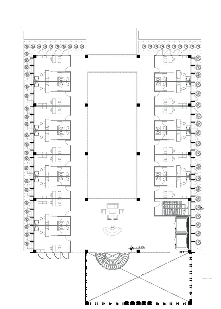
PLANTA BAJA

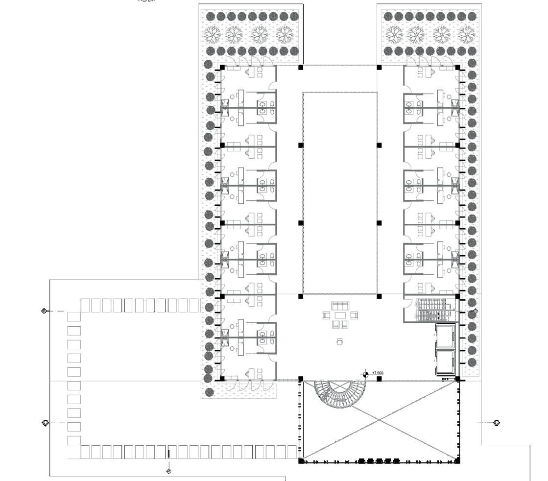
En la planta baja se desarrollaron los espacios de ingreso, estacionamiento y el área prioritaria de emergencias en el frente. En este nivel se encuentra la gran área de espera y la recepción. Espacios ubicados en el gran vestíbulo de altura cuádruple.

PRIMER NIVEL

En el primer nivel se desarrolla el centro de salud pública. Este cuenta con áreas de farmacia, laboratorio, consultorios de diferentes especialidades, la cafetería y el área administrativa. En este nivel se encuentra el jardín central con balcones que miran hacia el jardín posterior.

16

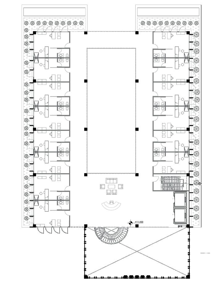
SEGUNDO, TERCER Y CUARTO NIVEL.

En los últimos tres niveles del edificio la planta y la disposición de los espacios se mantienen. Estos tres niveles conforman los consultorios de consulta externa, los cuales están completamente equipados y cuentan con su baño privado. A medida que se sube de nivel, el largo de los balcones ajardinados se reduce.

17
18
SECCIÓN A-A SECCIÓN B-B
19
SECCIÓN C-C SECCIÓN D-D

ISOMÉTRICO A

SECCIÓN 3D

ISOMÉTRICO B

20
22 03

Ficha Técnica:

Catalina Tower

Catalina Tower es un proyecto inmobiliario de tipo residencial ubicado en el barrio de El Cangrejo en la Ciudad de Panamá. Este está ubicado en un entorno urbano en una parte de la ciudad conocida por sus restaurantes, bares y parques.

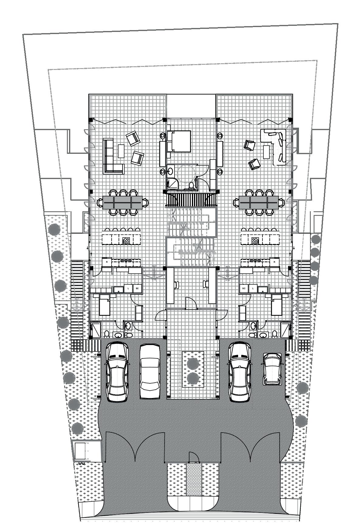
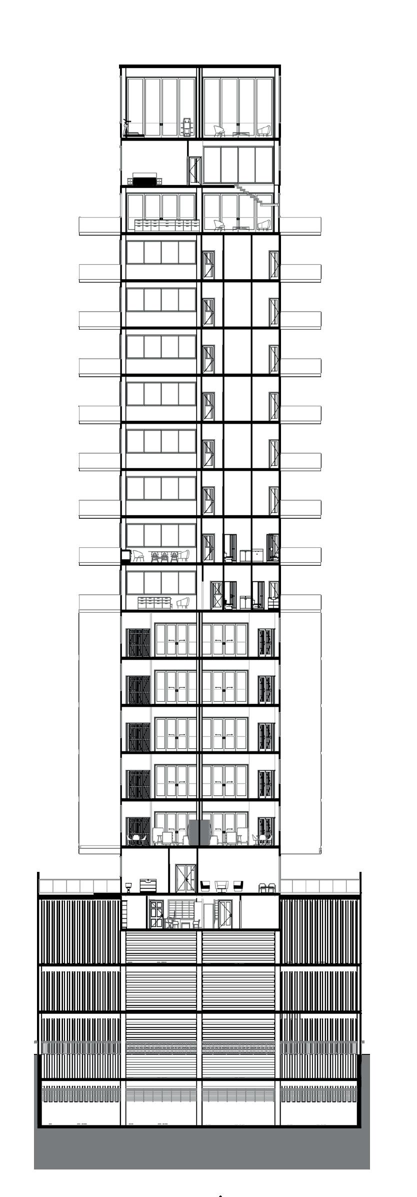
El edificio cuenta con 38 unidades distribuidas en 17 pisos, listas para albergar todo tipo de familias. Se desarrollaron 6 diferentes metrajes de apartamentos con 1,2 y 3 recámaras. Cada uno de estas unidades cuenta con acabados de lujo y equipamientos de última tecnología.

Además de esto el edificio cuenta con muchas amenidades que están pensadas para que cada residente experimente un estilo de vida de alto nivel., Entre ellas están la piscina, el gimnasio,un gran salón de fiestas, un espacio de coworking con salón de reuniones, un lounge, un área de parque infantil, un huerto común y un área de grill al aire libre.

Proyecto : Torre de Apartamentos Ubicación : El Cangrejo, Panamá
23
Normativa : ZM7

ÁREA SOCIAL 1

Esta primera área social se desarrolla en el nivel 3 de la torre. Aquí están ubicados el parque infantil, una terraza abierta, el espacio de coworking, el huerto comunal y el lounge.

ÁREA SOCIAL 2

Esta segunda área social se ubica en el nivel 19 de la torre. En este nivel se encuentra el gimnasio, la piscina y la sala de eventos. Todas estas amenidades cuentan con espectaculares vistas panorámicas de la ciudad.

24

PLANTA TIPICA PISOS 4 AL 8

En los primeros 4 niveles de la torre se encuentran las unidades con 1 y 2 recámaras. Cada nivel cuenta con 4 unidades.

Las unidades de una recámara tienen un metraje de 81.93 m2 que incluye gran espacio social en donde se ubica la sala, el comedor y la cocina. Además de esto cuenta con un baño completo, un estudio, un espacio de lavandería y un balcón.

Las unidades de dos recámaras cuentan un metraje de 116.42 m2 con un espacio social lineal en el cual se encuentran la sala, el comedor, la cocina y el balcón, además de esto incluyen dos baños completos y lavandería

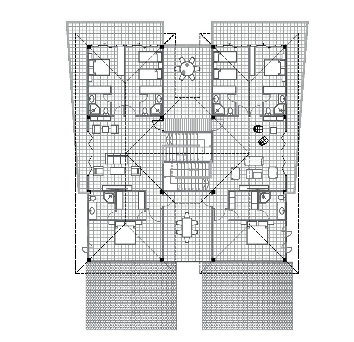
PLANTA TIPICA PISOS 9 AL 16

En estos niveles se encuentran las unidades de tres recámaras. Existen dos modelos de este tipo.

El primer modelo cuenta con un metraje de 259.59 m² e incluye 3 recámaras, 3 .5 baños, un balcón privado y un gran espacio social donde están la sala, el comedor, la cocina y un segundo balcón envolvente.

El segundo modelo cuenta con un metraje de 163.75 m² e incluye 3 recámaras y 3.5 baños. La recámara principal incluye un balcón privado. Además, incluye un gran espacio social donde están ubicados la sala, el comedor, la cocina y un balcón.

25

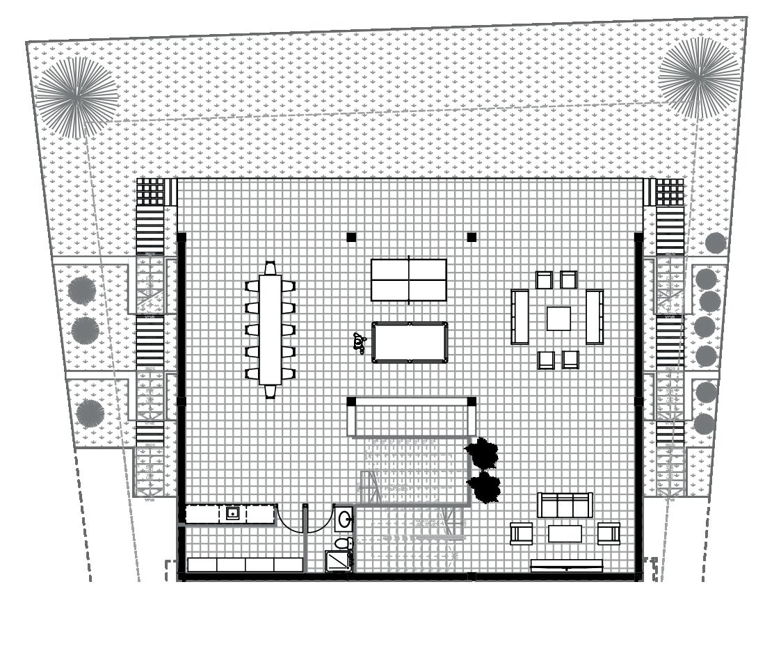
PISO 18

En este nivel se encuentran los primeros niveles de las dos unidades más exclusivas de la torre, Los Jr. Penthouses.

El Penthouse Norte desarrolla su área social en este nivel. La sala con una doble altura, el comedor, la cocina, un medio baño y la lavandería, También cuenta con un gran balcón.

El Penthouse Sur desarrolla sus áreas de convivencia en este nivel, la sala con doble altura, un den, una biblioteca, la cocina, el comedor y un medio baño. Todos estos espacios están abrazados por un gran balcón que envuelve toda la planta.

PISO 19

En este nivel se desarrollan los espacios de descanso de ambas unidades.

En el Penthouse Norte se encuentran 2 recámaras, cada una con su baño y vestidor privado y un estudio.

En el Penthouse Sur se ubican 3 recámaras, cada una con su vestidor y baño privado. La recámara principal cuenta con un balcón privado con vistas hacia la ciudad.

26
SECCIÓN A-A SECCIÓN B-B 27
28 SECCIÓN C-C
SECCIÓN D-D 29
30 ISOMÈTRICO A
32 04

Centro de Visitantes de la Villa Savoye

El centro de visitantes de la Villa Savoye es un proyecto de carácter cultural ubicado en el pueblo de Poissy en Francia. El mismo está ubicado en un entorno rural en el cual abunda la vegetación y la naturaleza, debido a que el mismo está ubicado en una parcela cercana a la ribera del Río Sena.

El centro fue desarrollado en uno de los bosques que rodean a la villa. La planta en sí misma enmarca 2 árboles en su planteamiento, además de esto cuenta con una primera planta libre y las demás plantas con materiales translúcidos que permiten que la obra aparente estar en lo profundo de un bosque, haciendo así que su recorrido cuente con buenas vistas del bosque durante toda su duración, además de esto, el recorrido se da de manera lineal, atravesando las dos galerías de exhibiciones y subiendo entre niveles utilizando rampas.

El centro se desarrolló siguiendo la materialidad de la villa, por ende los materiales utilizados fueron: Concreto armado, Bloques de Hormigón, Perfiles de vidrio, baldosas color crema.

Desarrollado en Colaboración con Vanessa Ugas y Eimy Pabón.

33

PLANTA BAJA

En la planta baja se encuentran los accesos, la recepción, los quioscos, la sala de exhibiciones audiovisuales y una gran galería de exposiciones.

Esta planta es libre, siguiendo los principios de diseño de Le Corbusier.

PRIMER NIVEL

En el primer nivel se encuentran las oficinas administrativas, el auditorio de presentaciones culturales, la galería de exhibición arquitectónica y de nuevas intervenciones.

En la Galería central podemos destacar los principios de fachada libre y de ventana horizontal.

34

AZOTEA

En el segundo nivel se encuentra la terraza con la galería de exposiciones al aire libre.

Este espacio busca darle a los visitantes una vista previa a la villa desde cierta altura para que esta pueda apreciarse mejor.

SECCIÓN A-A

SECCIÓN B-B

35

ISOMÉTRICO EXPLOTADO

36

Turn static files into dynamic content formats.

Create a flipbook
Issuu converts static files into: digital portfolios, online yearbooks, online catalogs, digital photo albums and more. Sign up and create your flipbook.