Portfolio
Jeremi Dziedziejko
rchitecture raft
Baker’s house, clay brick
Pavilion on the edge of forest, concrete & CLT
Singlefamily house, rammed earth
Strawbale modular pre-fab manufacture, strawbale Culture Center in Nieporet, CLT
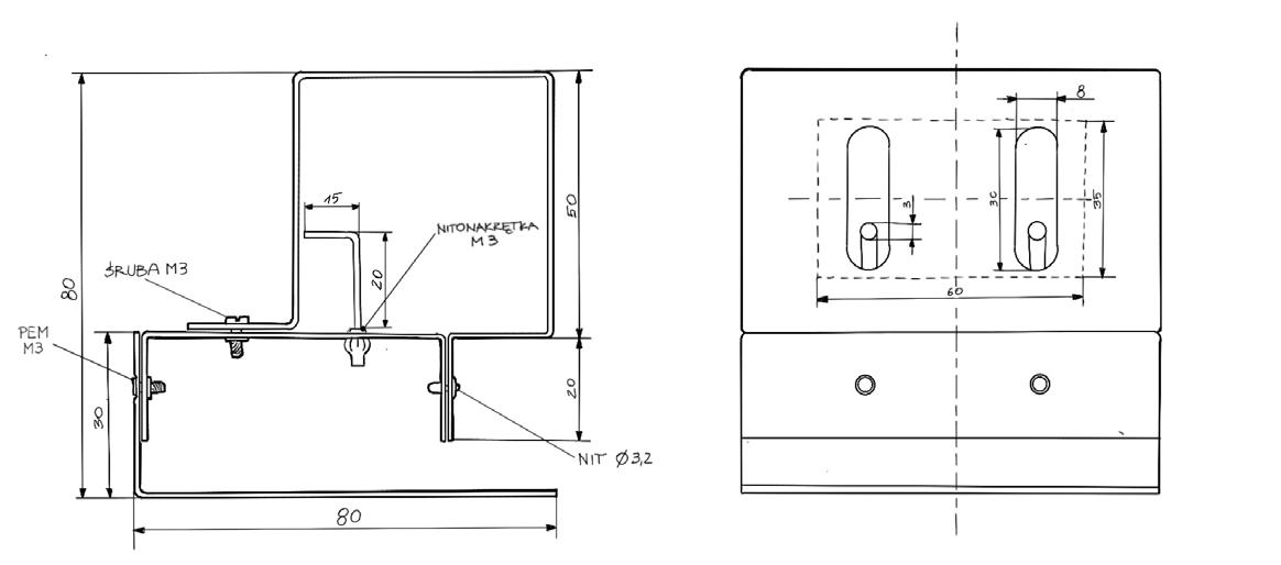
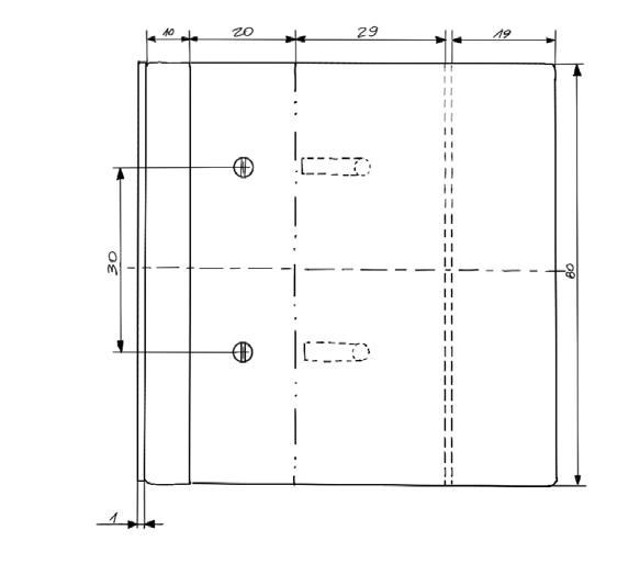
Building detail of glass facade
bike stand from recycled wood
replacing window frames in finnish house
wooden experimental model
steel experimental model
crane from flat PET profiles
refurnisging midleage furniture
Merano chair inventory
Moje Zycie book
Formy Elementarne booklet
Bees at Wilanów information sheet
























































