Academic Project - Parade Home

Page 1

Parade Home

THe moorman residence

Jennifer Weis residential design ii spring 2024 J. MoorMan

The Clients

The Moorman Family

Brooks (Dad)

- Works from home

- Does much of the cooking, prefers gas range

Jillissa (Mom)

- Interior Designer

- Loves architectural elements

- Prefers a less open floor plan

Kalya (13)

- Artist

- Active in many sports and activities

- Likes a Boho aesthetic

Kolson (11)

- Likes to be organized

- Passionate about the KC Chiefs and Iowa State

- Active in many sports

Karder (10)

- Type I Diabetic, needs a refrigerator in his room

- Likes Legos, KC Chiefs, and ISU

- Active in many sports and activities

Kensley (8)

- Has skin condition, needs phototherapy and Microsilk tub

- Wants a basketball court in her room

- Loves pink

Ally (Dog)

Galveston is a coastal city in Texas.

Known for its beautiful beaches and its historic architecture.

Population: 53,000

Galveston East Beach

Homes on Historic Architecture Tour

The Location - Galveston, TX

Design Direction

Traditional Architecture Coastal Elements Farmhouse Elements Layered Textures
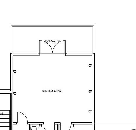
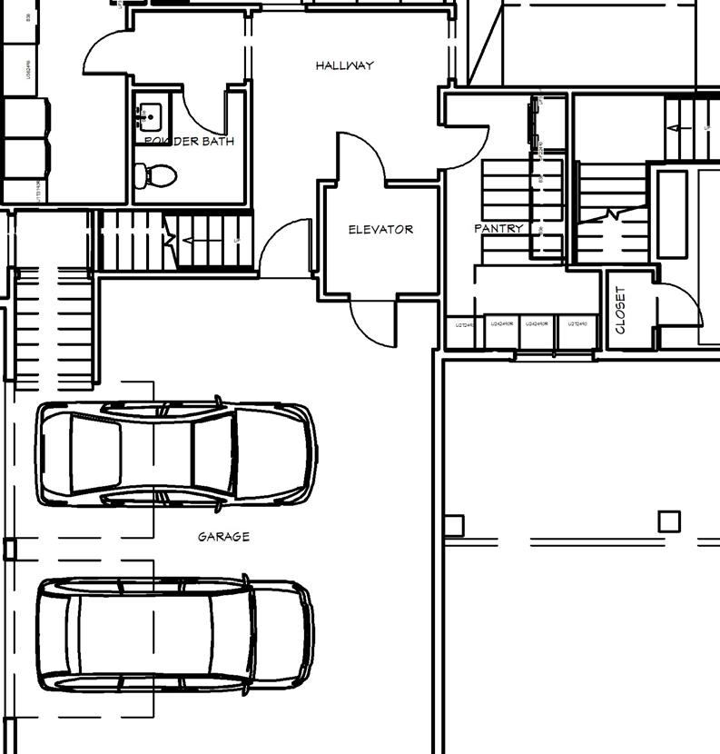
Floor Plans DISCLAIMER: ALL DIMENSIONS, DESIGNATIONS, & EXTENTS ARE SUBJECT TO SITE VERIFICATION PRIOR TO CONTRACTOR COMMENCEMENT OF WORK 11 - 7 6 9 - 5 8 5 -2 1 36 3 1 56 1 22 1 8 3 2 8 98 1 8 71 0 9 / 1 6 31 62 7 1 6 43 3 / 8 9 13 3 8 9 21 0 1 4 2 65 11 1 4 -10 1 9 - 8 38 -6 1 12 -3 15 -2 21 22 1 8 3 2 8 98 1 8 1 72 2 651 1 13 -9 X 203 - X 3 -4 2 -2 4 - X 2 -1 GARAGE EXERC SE ROOM CL PAT O Chief Architect Software 6500 Mineral Drive Coeur d'Alene, ID DISCLAIMER: ALL DIMENSIONS, DESIGNATIONS, & EXTENTS ARE SUBJECT TO SITE VERIFICATION PRIOR TO CONTRACTOR ND DN 1- 51 7- 84 1- 1 189 1 2 1 79 1 1 6 2 27 5 8 1 07 1 1 6 1 49 1 8 82 1 4 1 13 9 31 1 5 8 9 6- 5 6 3 9- 1 45 3 1 6 1 14 80 3 1 38 7 1 6 21 SQ T 9 -5 X -8 1 -7 X 15 -2 X 90 - X 3L V NG AREA MECHAN KALYA BEDROOM W I C BALCONY OPEN BELO Front Elevation First Floor Dimensioned Floor Plan Second Floor Dimensioned Floor Plan
Second Floor Paving Plan 1- Concrete 2- LVP Flooring 3- 12x24 Marble Tile 4- Marble Penny Tile 5- Azure Tile 6- Rubber Flooring 7- 10” White Hex First Floor Paving Plan 1 1 1 1 2 10 2 2 2 2 2 2 2 2 2 2 2 2 2 3 3 3 3 3 4 4 5 5 6 7 7 8- 2” Hex Pink 9- 2” Hex Black 8 9 9 10- 18”x18” Star Tile Unfinished 2 2 2
Paving Plans
Furnishing Plans First Floor Furnishing Plan Second Floor Furnishings Plan DISCLAIMER: ALL DIMENSIONS, DESIGNATIONS, & EXTENTS ARE SUBJECT TO SITE VERIFICATION PRIOR TO CONTRACTOR COMMENCEMENT OF WORK N G RAGE EX RC S ROOM C AT O Chief Architect Software 6500 Mineral Drive Coeur d'Alene, ID www.chiefarchitect.com DISCLAIMER: ALL DIMENSIONS, DESIGNATIONS, & EXTENTS ARE SUBJECT TO SITE VERIFICATION PRIOR TO CONTRACTOR COMMENCEMENT OF WORK N 3 S L V NG A EA MECH N KA YA B DROOM W C B LCONY OPEN ELOW
Safety Plans DISCLAIMER: ALL DIMENSIONS, DESIGNATIONS, & EXTENTS ARE SUBJECT TO SITE VERIFICATION PRIOR TO CONTRACTOR COMMENCEMENT OF WORK 11 - 7 6 9 - 5 8 5 -2 1 36 3 1 56 1 22 1 8 3 2 8 98 1 8 71 0 9 / 1 6 31 62 7 1 6 43 3 / 8 9 13 3 8 9 21 0 1 4 2 65 11 1 4 -10 1 9 - 8 38 -6 1 12 -3 15 -2 21 22 1 8 3 2 8 98 1 8 1 72 2 651 1 13 -9 X 203 - X 3 -4 2 -2 4 - X 2 -1 GARAGE EXERC SE ROOM CL PAT O Chief Architect Software 6500 Mineral Drive Coeur d'Alene, ID DISCLAIMER: ALL DIMENSIONS, DESIGNATIONS, & EXTENTS ARE SUBJECT TO SITE VERIFICATION PRIOR TO CONTRACTOR ND DN 1- 51 7- 84 1- 1 189 1 2 1 79 1 1 6 2 27 5 8 1 07 1 1 6 1 49 1 8 82 1 4 1 13 9 31 1 5 8 9 6- 5 6 3 9- 1 45 3 1 6 1 14 80 3 1 38 7 1 6 21 SQ T 9 -5 X -8 1 -7 X 15 -2 X 90 - X 3L V NG AREA MECHAN KALYA BEDROOM W I C BALCONY OPEN BELO First Floor Second Floor Smoke/CO2 Detector Path of Egress
Life
Kitchen Floor Plan & Finishes Software www.chiefarchitect.com DISCLAIMER: ALL DIMENSIONS, DESIGNATIONS, & EXTENTS ARE SUBJECT TO SITE VERIFICATION PRIOR TO CONTRACTOR COMMENCEMENT OF WORK N 1---8 2---------GA A E E ER E ROOM C A O Software www.chiefarchitect.com DISCLAIMER: ALL DIMENSIONS, DESIGNATIONS, & EXTENTS ARE SUBJECT TO SITE VERIFICATION PRIOR TO CONTRACTOR COMMENCEMENT OF WORK 4 4 4 3 3 4 R R R G C 2 2 1 1 6 L 1 4 3 8 C 1 2 1 / 8 L 1 1 5 / 8 6 1 KITCHEN Wall ColorBM Alabaster Trim ColorSW Extra White
- Durasupreme White Oak LVP FlooringSwiss Oak Almond
-Durasupreme White Countertop - Cambria Berkshire Brass
Tile
Islands
Perimeter
Backsplash
Inspiration Photos
Kitchen Elevations - Oven Wall Chief Architect Software 6500 Mineral Drive Coeur d'Alene, ID www.chiefarchitect.com ALL DIMENSIONS, DESIGNATIONS, & EXTENTS ARE SUBJECT TO SITE VERIFICATION PRIOR TO CONTRACTOR COMMENCEMENT OF WORK SCALE: 4 3 0 1 / 2 " 1 1 / 2 " 3 1 5 " 4 8 " 1 5 " 9 " 6 1 5 / 1 6 " CL 5 1 1 / 4 1 4 2 1 / 2 " ELEVATION 1 LVP Flooring Wall Color Trim Color Islands Perimeter Countertops Z-line 48” Range Kohler Edalyn Pot Filler Liason Sconce Backsplash Chief Architect Software 6500 Mineral Drive Coeur d'Alene, ID DISCLAIMER: ALL DIMENSIONS, DESIGNATIONS, & EXTENTS ARE SUBJECT TO SITE VERIFICATION PRIOR TO CONTRACTOR 4 4 4 6 2 1 C C 1 1 C 1 5 K TCHEN
Kitchen Elevations - Snack/Juice Bar LVP Flooring Wall Color Trim Color Islands Perimeter Countertops Software www.chiefarchitect.com DISCLAIMER: ALL DIMENSIONS, DESIGNATIONS, & EXTENTS ARE SUBJECT TO SITE VERIFICATION PRIOR TO CONTRACTOR COMMENCEMENT OF WORK , SHEET TITLE: JOB ID: ParadeHome_v1.4 DWN BY: DATE: Tuesday, March 5, 2024 SCALE: REV: 00 CHK BY: xxx 34 1/2" 1 1/2" 3" 15" 47 11/16" 15 5/16" 9" 143 1/8" 24" 36 5/8" 25" 85 5/8" 19 1/4" 15 1/4" 21 3/4" 22 1/2" 21 1/16" 20 13/16" 24" KITCHEN ELEVATION 3 E4 Snack/Juice Bar Elevation 1 2" = 1 0" Chief Architect Software 6500 Mineral Drive Coeur d'Alene, ID DISCLAIMER: ALL DIMENSIONS, DESIGNATIONS, & EXTENTS ARE SUBJECT TO SITE VERIFICATION PRIOR TO CONTRACTOR 4 4 4 6 2 1 C C 1 1 C 1 5 K TCHEN F&P Refrigeration Drawers Cafe Drawer Microwave Kohler Purist Faucet
Kitchen Elevations - Islands LVP Flooring Wall Color Trim Color Islands Perimeter Countertops Chief Architect Software 6500 Mineral Drive Coeur d'Alene, ID DISCLAIMER: ALL DIMENSIONS, DESIGNATIONS, & EXTENTS ARE SUBJECT TO SITE VERIFICATION PRIOR TO CONTRACTOR 4 4 4 6 2 1 C C 1 1 C 1 5 K TCHEN Software www.chiefarchitect.com DISCLAIMER: ALL DIMENSIONS, DESIGNATIONS, & EXTENTS ARE SUBJECT TO SITE VERIFICATION PRIOR TO CONTRACTOR COMMENCEMENT OF WORK , SHEET TITLE: JOB ID: ParadeHome_v1.4 DWN BY: DATE: Tuesday, March 5, 2024 SCALE: REV: 00 CHK BY: xxx 109 1/2" 12 3/4" 24" 18" 18" 24" 12 3/4" 34 1/2" 1 1/2" 143 1/8" 43" KITCHEN ELEVATION 2REVISED E2 Island A Elevation 1/2" = 1 0" Chief Architect Software 6500 Mineral Drive Coeur d'Alene, ID www.chiefarchitect.com DISCLAIMER: ALL DIMENSIONS, DESIGNATIONS, & EXTENTS ARE SUBJECT TO SITE VERIFICATION PRIOR TO CONTRACTOR COMMENCEMENT OF WORK , SHEET TITLE: JOB ID: ParadeHome_v1.4 DWN BY: DATE: Tuesday, March 5, 2024 SCALE: REV: 00 CHK BY: xxx 36" 36" 36" 34 1/2" 1 1/2" 107 3/4" 143 1/8" 43" KITCHEN ISLAND B ELEVATIONREVISED E5 Island B Elevation 1 2" = 1 0" Piatto Pendant Purist Bridge Faucet Kohler Riverby Sink
Kitchen Entry LVP Flooring Wall Color Trim Color Islands Perimeter Countertops Chief Architect Software 6500 Mineral Drive Coeur d'Alene, ID DISCLAIMER: ALL DIMENSIONS, DESIGNATIONS, & EXTENTS ARE SUBJECT TO SITE VERIFICATION PRIOR TO CONTRACTOR 4 4 4 6 2 1 C C 1 1 C 1 5 K TCHEN
Piatto Pendant Liason Sconce Kohler Purist Faucet Sunpan Modern Counter Stool
Kitchen Full View LVP Flooring Wall Color Trim Color Islands Perimeter Countertops Chief Architect Software 6500 Mineral Drive Coeur d'Alene, ID DISCLAIMER: ALL DIMENSIONS, DESIGNATIONS, & EXTENTS ARE SUBJECT TO SITE VERIFICATION PRIOR TO CONTRACTOR 4 4 4 6 2 1 C C 1 1 C 1 5 K TCHEN Piatto Pendant Liason Sconce Kohler Purist Faucet Sunpan Modern Counter Stool Purist Bridge Faucet
LVP Flooring Wall Color Trim Color Islands Perimeter Countertops Chief Architect Software 6500 Mineral Drive Coeur d'Alene, ID DISCLAIMER: ALL DIMENSIONS, DESIGNATIONS, & EXTENTS ARE SUBJECT TO SITE VERIFICATION PRIOR TO CONTRACTOR 4 4 4 6 2 1 C C 1 1 C 1 5 K TCHEN
Kitchen Islands View
Purist Bridge Faucet
Kohler Riverby Sink Piatto Pendant F&P Integrated Dishwasher

*Option 1 - two linear chandeliers to create stronger visual barrier between kitchen and living room for less open feel of great room

Software www.chiefarchitect.com DISCLAIMER: ALL DIMENSIONS, DESIGNATIONS, & EXTENTS ARE SUBJECT TO SITE VERIFICATION PRIOR TO CONTRACTOR COMMENCEMENT OF WORK N 1---8 2---------GA A E E ER E ROOM C A O Chief Architect Software 6500 Mineral Drive Coeur d'Alene, ID www.chiefarchitect.com DISCLAIMER: ALL DIMENSIONS, DESIGNATIONS, & EXTENTS ARE SUBJECT TO SITE VERIFICATION PRIOR TO CONTRACTOR COMMENCEMENT OF WORK SHEET TITLE: JOB ID: ParadeHome_v1.4 DWN BY: DATE: Tuesday, February 27, 2024 SCALE: REV: 00 CHK BY: xxx N UF32490 R4 R4 34" 34" DINING DINING ROOM FP KD08 D n ng Room FP FLOOR PLAN NOTES 1. THIS PLAN TO BE READ IN CONJUNCTION W/ ELEVATIONS. 2. DOOR CASING SIZE: TYPE: 3. WINDOW CASING SIZE: TYPE: 4. ROOM MOLDING SIZE: TYPE: 5. CROWN MOLDING SIZE: TYPE: 1 2 3 4 5 1. 40” Woven Linear Chandelier 2. 24” Slipcover Arm Chair 3. 23” White Rattan Dining Chair 4. 120” Solid Wood Dining Table 5. 9’3” x 13’ Jute Area Rug
Dining Room Floor Plan & Furnishings
Dining Perspective - Option 1 LVP Flooring Wall Color Trim Color Built-In Finish Chief Architect Software 6500 Mineral Drive Coeur d'Alene, ID www.chiefarchitect.com ALL DIMENSIONS, DESIGNATIONS, EXTENTS ARE SUBJECT TO SITE VERIFICATION PRIOR TO CONTRACTOR COMMENCEMENT OF WORK ParadeHome_v1.4 DWN BY: DATE: Tuesday, February 27, 2024 SCALE: 00 CHK BY: xxx N DINING DINING ROOM FP KD 8 D n n R om P FLOOR PLAN NOTES THIS PLAN TO BE READ IN CONJUNCTION W/ ELEVATIONS. DOOR CASING SIZE: TYPE: WINDOW CASING SIZE: TYPE: ROOM MOLDING SIZE: TYPE: CROWN MOLDING SIZE: TYPE:

*Option 2 - one linear chandelier for a more traditional look and more open feel of great room

Dining Perspective - Option 2 Architect Software Mineral Drive d'Alene, ID www.chiefarchitect.com ALL DIMENSIONS, DESIGNATIONS, EXTENTS ARE SUBJECT TO SITE VERIFICATION PRIOR TO CONTRACTOR COMMENCEMENT OF WORK JOB ID: ParadeHome_v1.4 DWN DATE: Tuesday, March 5, 2024 SCALE: REV: 00 CHK BY: xxx N 34" DINING DINING ROOM FP - OPTION 2 KD 9 D n n Ro m F - O FLOOR PLAN NOTES 1. THIS PLAN TO BE READ IN CONJUNCTION W/ ELEVATIONS. 2. DOOR CASING SIZE: TYPE: 3. WINDOW CASING SIZE: TYPE: 4. ROOM MOLDING SIZE: TYPE: 5. CROWN MOLDING SIZE: TYPE: Chief Architect Software 6500 Mineral Drive Coeur d'Alene, ID www.chiefarchitect.com DISCLAIMER: ALL DIMENSIONS, DESIGNATIONS, & EXTENTS ARE SUBJECT TO SITE VERIFICATION PRIOR TO CONTRACTOR COMMENCEMENT OF WORK 4 3 K TCHEN
Living Room Floor Plan & Finishes Software www.chiefarchitect.com DISCLAIMER: ALL DIMENSIONS, DESIGNATIONS, & EXTENTS ARE SUBJECT TO SITE VERIFICATION PRIOR TO CONTRACTOR COMMENCEMENT OF WORK N 1---8 2---------GA A E E ER E ROOM C A O Wall ColorBM Alabaster Trim ColorSW Extra White Built-InsWhite Oak LVP FlooringSwiss Oak Almond Inspiration Photos Software www.chiefarchitect.com DISCLAIMER: ALL DIMENSIONS, DESIGNATIONS, & EXTENTS ARE SUBJECT TO SITE VERIFICATION PRIOR TO CONTRACTOR COMMENCEMENT OF WORK SHEET TITLE: JOB ID: ParadeHome_v1.4 DWN BY: DATE: Tuesday, February 27, 2024 SCALE: REV: 00 CHK BY: xxx N U6418105 U6418105 U4518110 R4 R4 R4 R4 R4 R4 R4 R4 287 9/16" 9 1 349/16 WC FAMILY LIVING ROOM FP
Living Room Furnishings Chief Architect Software 6500 Mineral Drive Coeur d'Alene, ID www.chiefarchitect.com DISCLAIMER: ALL DIMENSIONS, DESIGNATIONS, & EXTENTS ARE SUBJECT TO SITE VERIFICATION PRIOR TO CONTRACTOR COMMENCEMENT OF WORK SHEET TITLE: JOB ID: ParadeHome_v1.4 DWN BY: DATE: Tuesday, February 27, 2024 SCALE: REV: 00 CHK BY: xxx R4 R4 R4 54 1/16" 287 9/16" 3 1 WC FAMILY LIVING ROOM FP 1 2 3 4 5 7 8 9 10 11 1. 60” White/Brass Ceiling Fan 2. Six Piece Sectional in Asbury Oyster Two Piece Sectional in Asbury Oyster 3. Custom size (15’ x 15’6”) Sisal Area Rug 4. Handwoven Wool Area Rug 5. 42” Light Brown Coffee Table 6. 24” Textured End Table 7. Coastal Blue Ceramic Table Lamp 8. Driftwood Console Table 9. 22” Upholstered Ottoman 10. Sea Scene 3-Part Set 11. Frame TV 2
Living Room Entry LVP Flooring Wall Color Trim Color Built-In Finish DISCLAIMER: ALL DIMENSIONS, DESIGNATIONS, EXTENTS ARE SUBJECT TO SITE VERIFICATION PRIOR TO CONTRACTOR COMMENCEMENT OF WORK SHEET TITLE: JOB ID: ParadeHome_v1.4 DATE: Tuesday, February 27, 2024 SCALE: REV: 00 xxx N 287 9/16" WC FAMILY LIVING ROOM FP
DISCLAIMER: ALL DIMENSIONS, DESIGNATIONS, EXTENTS ARE SUBJECT TO SITE VERIFICATION PRIOR TO CONTRACTOR COMMENCEMENT OF WORK SHEET TITLE: JOB ID: ParadeHome_v1.4 DATE: Tuesday, February 27, 2024 SCALE: REV: 00 xxx N 287 9/16" WC FAMILY LIVING ROOM FP Living Room Full View LVP Flooring Wall Color Trim Color
Primary Bedroom Floor Plan & Finishes Software www.chiefarchitect.com DISCLAIMER: ALL DIMENSIONS, DESIGNATIONS, & EXTENTS ARE SUBJECT TO SITE VERIFICATION PRIOR TO CONTRACTOR COMMENCEMENT OF WORK N 1---8 2---------GA A E E ER E ROOM C A O WallpaperYork Arrowroot Sky Blue Trim ColorSW Extra White Built-InsWhite Oak LVP FlooringSwiss Oak Almond Inspiration Photo Chief Architect Software 6500 Mineral Drive Coeur d'Alene, ID www.chiefarchitect.com DISCLAIMER: ALL DIMENSIONS, DESIGNATIONS, & EXTENTS ARE SUBJECT TO SITE VERIFICATION PRIOR TO CONTRACTOR COMMENCEMENT OF WORK SHEET TITLE: JOB ID: ParadeHome_v1.4 DWN BY: DATE: Wednesday, March 6, 2024 SCALE: REV: 00 CHK BY: xxx N U 4 1 1 F M PRIM BEDROOM PRIMARYBEDROO M FP
Primary Bedroom Furnishings Chief Architect Software 6500 Mineral Drive Coeur d'Alene, ID www.chiefarchitect.com DISCLAIMER: ALL DIMENSIONS, DESIGNATIONS, & EXTENTS ARE SUBJECT TO SITE VERIFICATION PRIOR TO CONTRACTOR COMMENCEMENT OF WORK SHEET TITLE: JOB ID: ParadeHome_v1.4 DWN BY: DATE: Wednesday, March 6, 2024 SCALE: REV: 00 CHK BY: xxx U 5 1 0 T O A PR M BEDROOM PRIMARYBEDROO M FP 1 3 2 3 4 5 6 7 8 9 10 11 12 13 4 5 1. 60” Ceiling Fan 2. King Tall Upholstered Bed 3. 22” Feather Accent Pillow 4. 20” Blue Accent Pillow 5. Chunky Weave Lumbar Pillow 6. Ivory Table Lamp 7. 43” Oak Nightstand 8. 52.5” Upholstered Bench 9. 9’3” x 13’ Natural Fiber Area Rug 10. Swivel Lounge Chair 11.. Brass/Marble Floor Lamp 12. 36” Carved Coffee Table 13. 6’ x 7’ Textured Area Rug
Room Floor Plan & Finishes ALL DIMENSIONS, DESIGNATIONS, & EXTENTS ARE SUBJECT TO SITE VERIFICATION PRIOR TO CONTRACTOR COMMENCEMENT OF WORK N V N R M C A Y D O W A O Y O N B OW
Color - BM Alabaster Trim Color - BM Swiss Coffee
-
LVP Flooring - Swiss Oak Almond
Kalya’s
Wall
Built-Ins
White Oak
Inspiration Image
Kalya’s Room Furnishings 1 2 4 5 6 15 7 8 9 10 3 11 4 12 13 14 1. 60” Ceiling Fan w/LED Light 2. Wicker Hanging Planters 3. Linen Drapes 4. White/Brass Swing Arm Sconce 5. Rattan Panel Bed - Queen 6. Textured Ivory Accent Pillows 7. Feather Accent Pillow 8. Painted White Oak Nightstands 9. Rattan Pouf 10. Boho Ivory Rug 11.. Wheeled Upholstered Desk Chair 12. Art Easel with Storage 13. White/Brass Desk Lamp 14. Concrete Decorative Planters 15. Low-Height Shelf 12 15 11 Furniture Layout
Room Entry LVP Flooring Wall Color Trim Color Built-In Finish
Kalya’s
Room Built-In LVP Flooring Wall Color Trim Color Built-In Finish
Kalya’s
N V N R M C A Y D O W A O Y O N B OW
Trim
DESIGNATIONS, SUBJECT TO SITE TO CONTRACTOR WORK
Kolson’s Room Floor Plan & Finishes
Wall Color - BM Black Iron
Color - BM Black Iron Built-Ins - White Oak LVP Flooring - Swiss Oak Almond Inspiration Image
60” Ceiling Fan w/LED Light
View of Kansas City
Upholstered Bed w/Iron Frame - Queen
Warm Gray Ceramic Table Lamp
33.5” 3-Drawer Nightstand 6. 24” Red Accent Pillow
Black Boucle Lumbar Pillow 8. Textured Area Rug 9. Framed Print - Patrick Mahomes 10. Framed Print - Travis Kelce 11.. Leather Desk Chair 12. Articulating Desk Lamp 3213 SQ FT L VING AREA MECHAN KALYA BEDROOM W C BALCONY 8 1 2 3 4 5 6 6 7 4 9 10 11 12
Kolson’s Room Furnishings 1.
2.Panoramic
3.
4.
5.
7.
Back Finish
Kolson’s Room Entry LVP Flooring Wall Color Built-In
Kolson’s
Room Entry Wall LVP Flooring Wall Color Built-In Back Finish
Karder’s Room Floor Plan & Finishes ALL DIMENSIONS, DESIGNATIONS, & EXTENTS ARE SUBJECT TO SITE VERIFICATION PRIOR TO CONTRACTOR COMMENCEMENT OF WORK N M C A Y D O W A O Y O N B OW Built-In/Accent Wall ColorBM Courtyard Green Wall Color - BM Decorator’s White Built-In Desk-Top - White Oak LVP Flooring - Swiss Oak Almond Inspiration Image
1. 60” Ceiling Fan w/LED Light 2. Set of 3 Framed Lego Faces 3. Upholstered Bed - Queen 4. Modern Black Table Lamp 5. 23.5” 3-Drawer Nightstand 6. 24” Green Accent Pillow 7. Lego Lumbar Pillow 8. Green Striped Area Rug 9. Framed Lego Patent Print - Block 10. Framed Lego Patent Print - Minifig 11.. Black Desk Lamp w/Wood Accent 12. Formed Black Desk Chair 13. Mini- Refrigerator 14. 13x9 Canvas Storage Totes Furniture Layout 12 1 2 3 4 5 6 7 8 9 10 11 7 14 12 13 13
Karder’s Room Furnishings
Karder’s Room Entry LVP Flooring Wall Color Built-In/Accent Wall Desk Top
Wall LVP Flooring Wall Color Built-In/Accent Wall Desk Top
Karder’s Room Bed

Kensley’s Room Floor Plan & Finishes ALL

DIMENSIONS, DESIGNATIONS, & EXTENTS ARE SUBJECT TO SITE VERIFICATION PRIOR TO CONTRACTOR COMMENCEMENT OF WORK N M C A Y D O W A O Y O N B OW
Wallpaper - York Confetti Built-In/Trim Color - Behr Ballet Rose LVP Flooring - Swiss Oak Almond Inspiration Image

Kensley’s Room Furnishings

1. 60” Ceiling Fan w/LED Light 2. Set of 3 Framed Inspiration Quotes 3. Brass/Blush Table Lampe 4. 32” White 2-Drawer Nightstand 5. White Velvet Upholstered Bed - Queen 6. 24” Pink Accent Pillow 7. 18” Teal Accent Pillow 8. Shag Pink Lumbar Pillow 9. 8’x10’ Blush Area Rug 10. Pink Basketball Hoop/Ball 11.. Shag Teal 18” Accent Pillow 12. Swivel Upholstered Chair 13. Brass Side Table 14. Phototherapy Bed Furniture Layout 14 1 2 3 2 2 5 6 7 8 4 9 10 12 13 11 14 12 10 13

Kensley’s Room Entry

LVP Flooring Wallpaper Built-In/Trim

Kensley’s Room Bed Wall

LVP Flooring Wallpaper Built-In/Trim Kensley’s Room Basketball Wall LVP Flooring Wallpaper Built-In/Trim

THank You!

Jennifer Weis residential design ii spring 2024 J. MoorMan

Turn static files into dynamic content formats.

Create a flipbook
Issuu converts static files into: digital portfolios, online yearbooks, online catalogs, digital photo albums and more. Sign up and create your flipbook.