Jelani Hampton - Undergraduate Architecture Portfolio

Page 1

Selected Works Portfolio Jelani Hampton

education

univerity of arizona

B.Arch - GPA 3.67 (expected graduation: June 2025)

softwares

Adobe Suite

Acrobat

InDesign

Illustrator

Photoshop

Autodesk

Climate Consultant

Formit

Revit

Epic Games

Rhino 3d

Rendering

soft skills

Unreal Engine

Rhino 3d

Grasshopper

Enscape

Lumion

contact

time managemnet chill as hell communication problem solving physical phone email instagram behance issue

model making hand drafting

818 282 0228

jelanihampton44@gmail.com

@jah.arch

https://www.behance.net/jelanihampton

issuu.com/jelanihampton

1-10 steam
summerflare brian’s theater 11-18 19-26
grotto

mt. lemmon, arizona

arc 301 design studio 3 fall semester 2022

prof. Trevor Watson

U M M E R F L A R E

Summerhaven is a small mountain town located on the top of Mount Lemmon, in the southwest United States. The town is situated approximately 30 miles northeast of Tucson. A popular destination for visitors seeking cooler temperatures during the hot summer months in southern Arizona, as the town sits at an elevation of 8,200 feet above sea level. The town o ers a variety of outdoor recreational activities, including hiking, camping, fishing, and skiing during the winter months. Summerhaven is a quaint community of cabins, shops, and restaurants, with a population of around 40 full-time residents.

Popular attractions include Mount Lemmon Ski Valley, which o ers skiing and snowboarding during the winter months, and Mount Lemmon SkyCenter, which o ers astronomy programs and stargazing tours.

Now, Summerhaven will also function as a getaway for kids and young adults looking to learn more about the world of optics. Summerflare Optics Laboratory is a place where kids can learn and explore. With the right tools, resources, and guidance, kids can develop a deeper understanding of how light works and how it can be used to create new technologies and improve our understanding of the world around us.

S
1
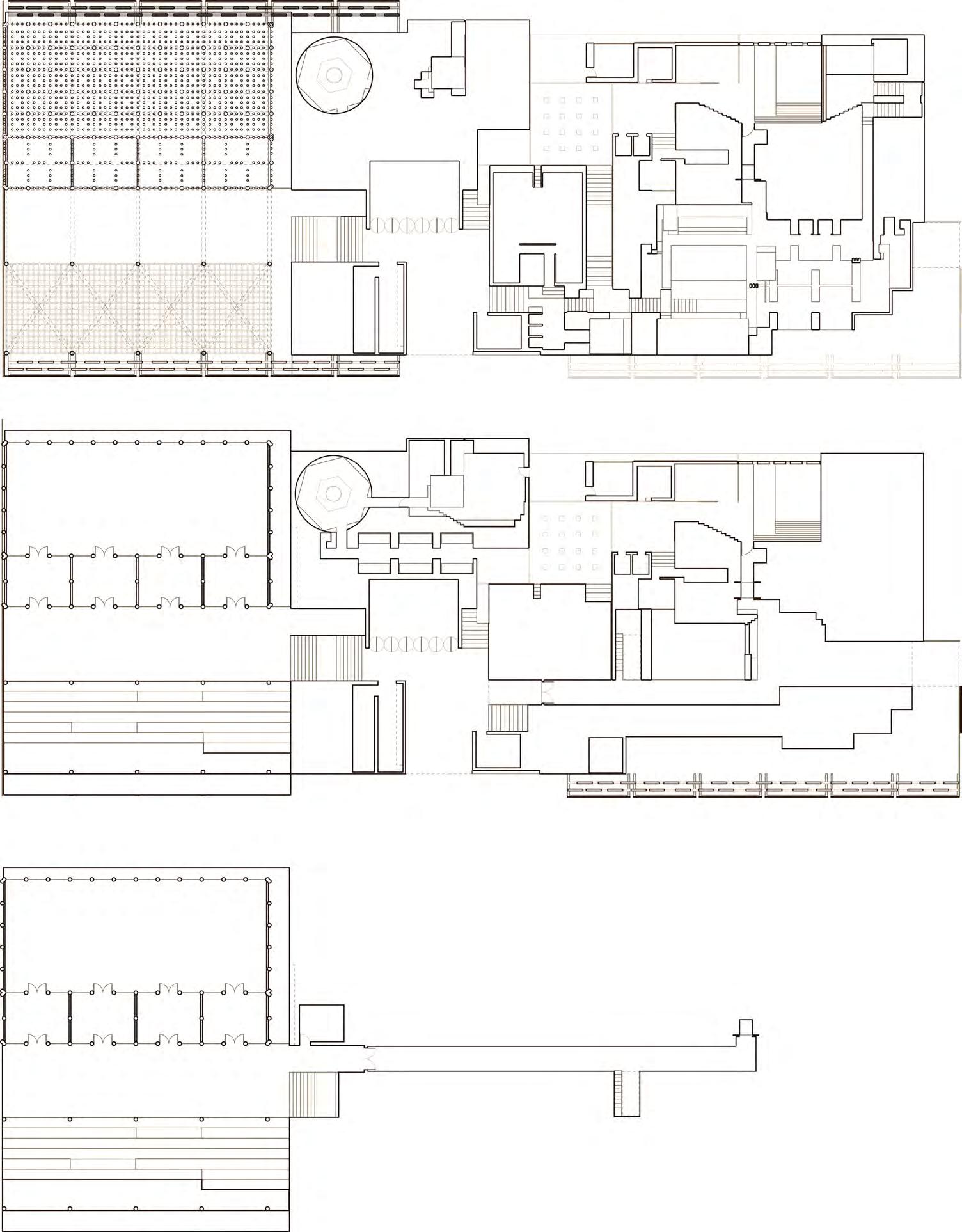
3 level one
4 level two
0’ 4’ 8’ 12’ 20’ section a 0’ 4’ 8’ 12’ 20’ section b 0’ 4’ 8’ 12’ 20’ section c 5
6
level one 7
level two roof 8
exploded model
east lawn 10

bisbee, arizona

arc 301 design studio 3 fall semester 2022

prof. Trevor Watson

Bisbee is a town located in Cochise County, Arizona, in the southwestern United States. It is known for its picturesque setting in the Mule Mountains and its rich mining history. Founded in 1880, after the discovery of copper ore in the nearby mountains. The town grew quickly, and by the early 1900s, it was one of the largest cities in the Southwest. Today, Bisbee is a popular tourist destination, known for its historic architecture, art galleries, and museums. The town has a thriving arts scene, with many artists and musicians calling it home.

Bisbee’s unique and eclectic nightlife scene caters to a diverse crowd of locals and visitors alike. While the town may be small, it o ers a range of options for those looking for a night out. Anywhere from the St. Elmo's Bar, which is known for its friendly atmosphere and live music to the Bisbee Blues and Film Festival.

Whether you're into live music, craft cocktails, or just looking for a place to watch a movie, Brian’s Theater is a worthwhile addition to the growing nightlife scene in Bisbee. Now there’s a place where you can go and watch entertainment in comfort and style utilizing the best technology available.

B
R I A N ’ S T H E A T E R
11
13
section a 1/16” = 1’-0” section b 1/16” = 1’-0”
14
section c 1/16” = 1’-0”
level one ticket booth women’s bathroom men’s bathroom multi-use/concession brewery ave. entrance level one seating renter’s office front desk apartment entrance 1 2 3 4 5 6 7 8 9 1 2 3 4 5 6 7 8 9 a b c a b c 15
level two opera dr. enterace level three unit 201 unit 202 unit 203 1 2 3 4 5 a b c a b c 1 2 3 4 5 16
screening 18

oro valley, arizona

arc 202 Design Studio 2 spring semester 2021

prof. Oscar Lopez

Tucson is a city located in the southern part of Arizona, USA. It is the second-largest city in the state, after Phoenix, and is known for its beautiful natural scenery, rich history, and vibrant cultural scene.

The climate in Tucson is typically characterized as a hot desert climate. During the summer months, temperatures can be extremely hot, with highs regularly reaching into the triple digits Fahrenheit (over 38 degrees Celsius). The city receives very little precipitation during these months, with most rainfall occurring in the late summer as monsoon season sets in. In the winter months, temperatures are generally mild, with average highs in the 60s and 70s Fahrenheit (15-25 degrees Celsius). Although snow is rare in Tucson, it is not unheard of, and the city occasionally receives a light dusting of snow in the winter.

With the introduction of the Steam Grotto in Oro Valley, there is now a place to celebrate the unique conditions of water and light in the Sonoran Desert. As a public spa and bath, it will o er a range of benefits in the hot arid climate of Tucson, from relief from the heat to skincare and cultural significance. By providing a cool and refreshing oasis in a hot and dry environment, a public bath can improve the quality of life for residents and visitors alike.

S T E A M G R O T T O
19
1 2222 1 2222 5 4 3 6 11 9 10 7 8 12 5 4 9 14 10 7 8 13 16 15 ground level first level second level 21 a b a b a b a b a b a b
1 2 3 4 5 6 7 8 9 10 11 12 13 14 15 16 community hall private hall garden scrub room bookstore hot room sauna humidity chainber steam room hot salt bath back of house main enterance locker rooms cold salt bath sky pool sky terrace exploded isometric 22

section a - rendered

section b - model

23
section a - drafted
24
sky pool 26
Jelani Hampton phone email instagram behance issue Undergrad Architecture Portfolio (V1) 818 282 0228 jelanihampton44@gmail.com @jah.arch https://www.behance.net/jelanihampton issuu.com/jelanihampton

Turn static files into dynamic content formats.

Create a flipbook
Issuu converts static files into: digital portfolios, online yearbooks, online catalogs, digital photo albums and more. Sign up and create your flipbook.