

Febrero CAMINO A LA CALIDAD
Bogotá, Colombia 2026
Febrero es una oportunidad perfecta para seguir construyendo con energía.
JEJAIMESINGENIEROS


JEJAIMESINGENIEROS

JEJAIMESINGENIEROS





HACÍA LA EXCELENCIA
Un encuentro estratégico para construir el futuro:
Convención 2026 Cooperación e Integridad
Del 30 de enero al 1 de febrero, el equipo ejecutivo de J.E. Jaimes Ingenieros se dio cita en Paipa para celebrar la Convención 2026: Cooperación e Integridad. Este encuentro estratégico permitió a la Gerencia y sus diversas divisiones alinear metas y proyectar los desafíos de un año clave, en el cual la compañía conmemora con orgullo sus 45 años de trayectoria. Bajo una visión compartida de excelencia y trabajo articulado, los líderes de área reafirmaron su compromiso con el crecimiento sostenible. La jornada contó con momentos memorables y la participación de invitados especiales como Óscar Córdoba, cuyo mensaje reforzó los valores de liderazgo del equipo.
Con esta convención, J.E. Jaimes Ingenieros marca la hoja de ruta para un 2026 lleno de logros, reafirmando su propósito: Generar poder a las ideas.





Sonia Ruiz, jefe de Gestión Integral, durante la charla de la convención.
Equipo ejecutivo de J.E. Jaimes
Juego interactivo en la convención
Actividad interactiva en la convención
Charla de bienvenida a cargo del gerente general


Un hito histórico que alcanza los 140 m

Recientemente, dentro del desarrollo del proyecto Colectora – Tramo 1, liderado por Enlaza, se llevó a cabo el montaje de la torre 9 Cuestecitas - La Loma, una torre extraordinaria con una altura de 140 metros. Este avance fue ejecutado por J.E. Jaimes Ingenieros. Se destaca el trabajo de la cuadrilla de montaje y del equipo técnico que lo hizo posible. Detrás de este hito hubo análisis, planeación, esfuerzo y decisiones exigentes; pero, sobre todo, hubo personas comprometidas haciendo que lo complejo sucediera.
Cada maniobra, ajuste y verificación en campo reflejaron un trabajo realizado con orden, seguridad y precisión, donde la articulación entre Enlaza, como titular del proyecto, y J.E. Jaimes Ingenieros, como contratista ejecutor, marcó la diferencia y permitió alcanzar este hito con éxito.
Este avance no solo representa una meta cumplida dentro del proyecto Colectora, sino que también evidencia la capacidad de los equipos para responder con calidad y compromiso ante los retos de la obra.
Enlaza y J.E. Jaimes hacen un reconocimiento a la cuadrilla y al equipo que hizo posible el tendido de esta torre. Su entrega es muestra del profesionalismo que impulsa cada ejecución en campo.

Eduard Stiven Castro Vargas - Oficial Liniero 1
olmer Gamboa trujillo - Oficial Liniero 2
Jhon fredys García villegas - Oficial Liniero 1 Yefri Alejandro Reales - Oficial Liniero 2 Edier José Orozco Maestre - Oficial Liniero 2 Fernando Jose Galindo Herrera - Oficial Liniero 2
Esteban Luis Castillo - Oficial Liniero 1
Jesús Amado Barbosa - Oficial Liniero 1 Jesús Albeiro Nisperuza


Reconocemos a todo el equipo de trabajo
Montaje torre 9 Cuestecitas, La Loma
Panoramica torre 9 Cuestecitas, La Loma
Cuadrilla de montaje en la cima de la torre
Panoramica torre 9 Cuestecitas, La Loma

PROYECTOS
Mercadeo y ventas: nuevos proyectos adjudicados
La división 2 se complace en compartir nuevos proyectos adjudicados:
1. CELSIA COLOMBIA S.A. E.S.P., adjudicó a J.E. Jaimes: las obras civiles y montaje electromecánico de la nueva S/E Carreto 500 kV asociada al Proyecto UPME 06-2021. El proyecto está localizado en inmediaciones del municipio de San Juan de Nepomuceno en el departamento de Bolívar. Su plazo de ejecución es de 6 meses.

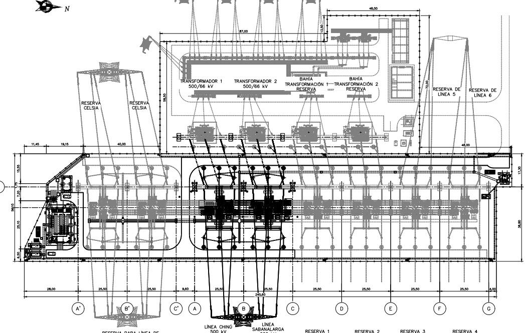
2. GRUPO ENERGÍA BOGOTÁ S.A. ESP, Adjudicó a J.E. JAIMES: Diseño, suministro, construcción, pruebas y puesta en servicio de las obras asociadas a la línea de transmisión y la ampliación de la subestación San Juan 220 kV, requeridas para la conexión del parque solar WIMKE., La subestación San Juan 220 kV se encuentra ubicada en el municipio de San Juan del Cesar, vereda los Haticos en el departamento de la Guajira. Su plazo de ejecución es de 15 meses.
La figura 2 muestra la vista isométrica de la Subestación existente.
La figura 1 muestra la vista en planta de la Nueva Subestación.

San Marcos inicia su ampliación estratégica
Con gran entusiasmo, se han iniciado las actividades constructivas de la ampliación de la Subestación San Marcos 500 kV, ubicada en el municipio de Yumbo, Valle del Cauca. El proyecto contempla la renovación de la Subestación San Marcos, donde se normalizará la configuración definitiva de interruptor y medio, en tecnología AIS.
Actualmente, se avanza en la construcción de los muros cortafuegos del diámetro 3, dando paso posteriormente a la ejecución de las cimentaciones de los reactores. Para ello, se cuenta con un equipo comprometido con el cumplimiento de los más altos estándares de seguridad y calidad que caracterizan el ADN de J.E. Jaimes Ingenieros.


La empresa les desea éxitos al equipo que desarrollará este nuevo


Energía en construcción, resultados en marcha
SUBESTACIÓN BOLÍVAR
El proyecto subestación Bolívar continúa su marcha con el desarrollo de obras civiles que fortalecen la calidad de los procesos constructivos y ratifican el cumplimiento de los requisitos técnicos y de las políticas de gestión integral. Este avance es resultado del trabajo articulado entre Enlaza y J.E. Jaimes Ingenieros, una alianza que impulsa una ejecución enfocada en la eficiencia y en el cumplimiento riguroso de los objetivos del proyecto.
La operación responde a dos grandes desafíos: optimizar los tiempos de entrega y gestionar de forma estratégica las dinámicas sociales del territorio, mediante una administración rigurosa, planificación detallada y acciones oportunas.
En el estado actual del proyecto, se registra progreso en el movimiento de tierras y la adecuación de la plataforma del tercer transformador. De manera simultánea, se ejecutan actividades de cimentaciones de equipos, pórticos y montaje del sistema de drenajes, con verificación topográfica integral.
Enlaza y J.E. Jaimes Ingenieros continuarán trabajando con una visión conjunta, liderazgo propositivo y respaldo técnico sólido, para consolidar su compromiso con el fortalecimiento del sistema de transmisión y distribución energética del país.


Panorámica de la Subestación Bolívar
Vista cenital Subestación Bolívar

PROYECTOS
Fortaleciendo la generación futura del país
PROYECTO ITUANGO FASE II
En el Proyecto Ituango, parte del Megaproyecto Central Hidroeléctrica Ituango, el 2026 inicia con un ritmo contundente y resultados que ya se reflejan en el cronograma: el avance va por delante de lo previsto, tras la entrega de los tubos de aspiración de las unidades 5, 6 y 7, y el adelanto en la fecha de entrega del tubo de aspiración de la unidad 8.

A este progreso se suma un componente innovador: el proyecto marca el inicio de una apuesta estratégica por una nueva especialidad dentro de J.E. Jaimes, fortaleciendo las capacidades técnicas y ampliando el alcance de ejecución en este tipo de megaproyectos. Un paso que no solo impulsa el cumplimiento de los hitos actuales, sino que abre camino a nuevos retos y oportunidades de alto impacto para el futuro.

Entre los hitos, sobresale el inicio de trabajos en el anillo estacionario de la unidad 6. Este componente está conformado por dos secciones, cada una con un peso aproximado de 65 toneladas, alcanzando 130 toneladas una vez ambas piezas queden soldadas. Este punto marca un salto en la complejidad del proceso: aumenta la criticidad de las actividades y exige controles y seguimiento aún más estrictos que los aplicados hasta ahora, abriendo oficialmente la puerta a la siguiente fase de ejecución.
Este progreso no solo consolida el desempeño del proyecto: también aporta de manera directa a la puesta en operación de las últimas turbinas, habilitando el inicio de la generación de energía eléctrica que el país requiere para responder al crecimiento de la demanda nacional.
Unidad generación 8- montaje de codo del tubo de aspiración
Unidad generación 8- montaje de tramo recto de tubo de aspiración


Línea Arreboles: un avance imparable hacia su etapa final



La LT Arreboles entra en su recta decisiva: con la obra civil concluida y el montaje de las torres 5N, 5NN y 5NA ya ejecutado, el proyecto marca un hito que lo acerca con fuerza a su cierre.
A la fecha, la obra civil se ha completado en 64 de las 66 torres. En paralelo, ya se han montado 62 torres, lo que evidencia un avance sostenido y cada vez más visible en campo.
Simultáneamente, se alista e inicia el segundo de los cinco tiros programados de tendido, confirmando que el cronograma se mantiene firme y que el proyecto
avanza según lo previsto de cara a una nueva entrega al cliente Celsia. Un trabajo que se sostiene en tres pilares claros: orden, responsabilidad y calidad.
Prevenir es avanzar: la seguridad como base de cada proyecto
En J.E. Jaimes Ingenieros la seguridad no es una acción aislada, es una forma de pensar y actuar cada día. Con esta convicción, la empresa inicia un nuevo ciclo reafirmando que la excelencia se construye desde la responsabilidad y se sostiene con una cultura preventiva sólida.
Muchos riesgos no son evidentes: se esconden en la rutina, en tareas automáticas o en actividades no habituales. Identificarlos a tiempo marca la diferencia. Por ello, los equipos recorrieron sus frentes de trabajo con una mirada crítica y consciente, reconociendo peligros asociados a procesos, equipos y condiciones del entorno.
Este ejercicio fortalece el criterio técnico y la conciencia individual y colectiva, recordando que cada riesgo identificado es una oportunidad para mejorar, reforzar controles y proteger la vida y la integridad de todos.
De esta manera, J.E. Jaimes Ingenieros avanza con determinación, consolidando una cultura en la que la prevención es el punto de partida para cada actividad. Porque trabajar seguros no es solo un compromiso es la base para un proyecto exitoso.


Montaje torre 5NN
Montaje torre 5NN
Protecciones de tendido tramo no.2
Identificación del riesgo, poniendole la lupa a los riesgos ocultos
Poniendole la lupa a los riesgos ocultos

Comienza la ejecución de un proyecto estratégico para el Huila
SUBESTACIÓN HUILA
En este 2026, el proyecto de construcción de la Subestación Huila 230 kV y su línea de transmisión asociada inicia con energía renovada y desafíos de alto impacto. La ejecución arrancó con las actividades preparatorias clave: ahuyentamiento y reubicación de fauna, inventarios y aprovechamientos forestales, y encuentros con propietarios y arrendatarios para habilitar el ingreso a los predios.



Con estas gestiones en marcha, se avanzó en la localización y replanteo topográfico de 10 torres, junto con labores de cerramientos, recepción de materiales, ingreso de estructura metálica y medición de resistividad del terreno.
En la subestación, los frentes de trabajo evolucionan de forma paralela con el desarrollo del sistema de puesta a tierra, la derivación de la línea existente de 13,2 kV, el cerramiento perimetral y la adecuación de la plataforma de Electrohuila. Entre los hitos más destacados, sobresale el encofrado y vaciado de concreto de la cubierta del edificio de control, un paso determinante para la consolidación de la infraestructura.
El equipo técnico y operativo se mantiene enfocado en cada actividad programada, con disciplina y coordinación, para asegurar cumplimiento, calidad y resultados positivos en este gran proyecto que se desarrolla en el departamento del Huila.

Premiación programa IntegroPRO
Vaciado de cubierta edificio de control
Encofrado de vigas edificio de control
Especie rescatada: Marmosa robinsoni


IntegroPro: donde nace el liderazgo que construye proyectos extraordinarios
El proyecto Interconexión Carrieles a 230 kV, desarrollado por J.E. Jaimes Ingenieros para ISA Intercolombia, arrancó el 2026 con una apuesta extraordinaria: el lanzamiento de IntegroPro, el programa insignia de Gestión Integral, que impulsa la formación de líderes en áreas clave como la Seguridad y Salud en el Trabajo, la gestión ambiental responsable y la excelencia en calidad para el personal nuevo del proyecto, un programa institucional orientado a la excelencia en gestión integral.
El encuentro de lanzamiento se realizó en el Parque Comfama, en el municipio de La Pintada (Antioquia), y reunió a cerca de 65 colaboradores de los equipos administrativos y operativos del proyecto. Fue un espacio pensado para impulsar entornos laborales inspiradores, fortalecer la conexión entre equipos y promover un desarrollo integral que se traduzca en bienestar, propósito y productividad.

Forjando líderes con


impacto
En J.E. Jaimes Ingenieros existe una convicción clara: el crecimiento de la empresa avanza al mismo ritmo que crecen las personas que la hacen posible. Recientemente se puso en marcha la Escuela de Administradores, una iniciativa que, con el respaldo de los Coordinadores de Administradores, se consolidó como un espacio pensado para activar el talento, fortalecer competencias y elevar el desempeño.
A través de los manuales de funciones de cargo y de cursos estratégicos de la Academia, esta escuela impulsa un aprendizaje con propósito: formación práctica, enfoque integral y herramientas aplicables al día a día.

Actualmente, la compañía celebra con entusiasmo un resultado que inspira: dos integrantes ya comienzan a ver los frutos de su disciplina, compromiso y dedicación. Más que formar administradores, J.E. Jaimes Ingenieros está formando profesionales íntegros, preparados para asumir con criterio y liderazgo los desafíos del mañana.


Equipo del proyecto Carrieles
Socialización IntegroPRO al personal nuevo de la obra
Socialización IntegroPRO al personal nuevo de la obra

Celebración de 10 años: ¡Exactitud y confianza!
KRC INGENIEROS S.A.S. PRUELES S.A.S.
Hacer empresa en Colombia es un desafío constante. Implica enfrentar un entorno dinámico, superar obstáculos económicos, sociales y operativos, y mantenerse firme en medio de la incertidumbre. En ese contexto, el crecimiento sostenido de PRUELES representa no solo un logro empresarial, sino también una muestra de resiliencia, compromiso y visión de futuro. Con esfuerzo y trabajo colectivo, la compañía ha logrado consolidarse y proyectarse como un referente en su sector.

El 23 de enero, la filial PRUELES celebró sus 10 años de trayectoria, conmemorando una década de trabajo, crecimiento y consolidación en el sector. El evento reunió a colaboradores, directivos, accionistas y aliados estratégicos, quienes participaron en una jornada de reconocimiento y celebración del camino recorrido.
Durante la velada se resaltó la historia de la compañía y el compromiso de las personas que han sido parte fundamental de su desarrollo. Uno de los momentos centrales fue el mensaje de la gerencia, que destacó el valor del trabajo en equipo, así como el reconocimiento a los colaboradores por su trayectoria y aporte al fortalecimiento de la organización.
La celebración incluyó actos simbólicos que representaron el crecimiento y la proyección futura de PRUELES, reafirmando su compromiso con la excelencia y la visión de seguir construyendo, junto a su equipo y aliados, los próximos años de la empresa.


Eficiencia 360°:una sola mirada, un solo resultado
Este año, KRC Ingenieros impulsa la Eficiencia 360°, una visión integral donde cada decisión sobre tiempo, talento y recursos impacta el desempeño global. El objetivo es trascender la gestión por áreas para enfocarnos en resultados colectivos, promoviendo un uso responsable y estratégico de nuestras capacidades. Al adoptar esta mentalidad, la organización fortalece su competitividad y agilidad. Este enfoque nos permite construir una empresa más sólida, preparada para superar los retos actuales y capitalizar con éxito las oportunidades del futuro.

Reconocimiento a los mejores trabajadores de Prueles
Equipo Prueles S.A.S.
Celebración 10 años: Exactitud y Confianza
Equipo KRC Ingenieros
COORDINADOR(A) DE CALIDAD
• Educación: Profesional en Ingeniería.
COORDINADOR(A) DE MATERIALES Y EQUIPOS
• Educación: Tecnólogo(a) o Profesional en Topografía Buscamos personas como tú:



• Educación: Tecnólogo(a) en área técnica.
CADENERO(A)
• Experiencia: Mínima de dos años como cadenero(a) en obras de infraestructura.
SOLDADOR(A) 1A
• Educación: Nivel técnico.
TOPÓGRAFO(A)
Disponibilidad a nivel nacional Disponibilidad en Ituango, Antioquia

SOPA DE LETRAS
¡Busca, encuentra y descifra! Te invitamos a poner a prueba tu atención y agilidad mental con esta divertida sopa de letras. Entre las letras se esconde una frase especial que refleja un mensaje clave. Solo quienes observen con detalle y se concentren al máximo podrán descubrirla. ¿Aceptas el reto?

Palabras para encontrar:
VOLTIO, CORRIENTE, RESISTENCIA, TRANSFORMADOR, CIRCUITO, AMPLIFICADOR, CONDUCTOR, LUZ, INTERRUPTOR, FUSIBLE
Frase oculta:
LA ENERGÍA TRANSFORMA EL MUNDO



MENSAJE DEL GERENTE GENERAL
Estimados todos:
Por creencias, el lunes solía ser considerado el día más difícil de la semana, al igual que el mes de enero.
Pero, como no somos de seguir creencias, este enero estuvo muy movido: gran ejecución, muy buena facturación y nuevos negocios.
Acabamos de vivir la Convención Anual de Ejecutivos y tenemos por delante la de Mandos Medios, que serán impulsores aún mayores de lo que será el 2026.
Nuestra producción, el deseo de cambio y nuestro ejemplo e influencia sobre familiares, amigos, conocidos y otros son claves para volver al país a la senda que se necesita, especialmente a través de votos que garanticen el futuro de todos.
El país se está reactivando, con empresas nacionales y extranjeras solicitando ofertas para proyectos que están desempolvando y preparando con tiempo para el cambio de gobierno.
Adicionalmente, en marzo celebraremos los 45 años de J.E. Muchas cosas buenas queremos que pasen y en las que podemos y debemos participar activamente.
Con gran aprecio.
Enrique Jaimes
Gerente General
Edición
Dirección:
José Enrique Jaimes Bautista
Gerente General
Colaboradores invitados:
- Jairo Pinilla -Mercadeo y ventas: Nuevos Proyectos Adjudicados
- Reynel Romero - Energía en construcción, resultados en marcha
- Julián Bernier - San Marcos inicia su ampliación estratégica
- Juan Sebastián Álvarez - Fortaleciendo la generación futura del país
- Jorge Armando Ramón - Línea Arreboles: un avance imparable hacia su etapa final
- Manuela Gutiérrez - Un hito histórico que alcanza los 140 m
- Alexander Rodríguez - Comienza la ejecución de un proyecto estratégico para el Huila
- Mauricio Andrés Herazo - IntegroPro: donde nace el liderazgo que construye proyectos extraordinarios
- Darío Alba - Forjando líderes ejemplares
- Kelly Egea - Prevenir es avanzar: la seguridad como base de cada proyecto
- Cielo Aya - Eficiencia 360°: una sola mirada, un solo resultado
Edición, diseño y diagramación:
Julio González
Jefe División de Relaciones Públicas
Jean Mariño
Director Creativo
Alison Cruz
Gestora de Contenido Gráfico y Audiovisual 1
Daniel Pérez
Gestor de Relacionamiento Corporativo
Paula Cuervo
Gestora de Relacionamiento Corporativo

Línea Colectora Tramo 1