

Jeffrey Li, LEED AP BD+C
+1 878-999-6791/ jhli2@andrew.cmu.edu / jeffreyhli.com / Pittsburgh, PA
Driven architecture licensure candidate who is passionate about sustainable transportation design. Proficient in architectural drawings and environmental analysis. Seeking opportunities to contribute to transportation and infrastructural projects in all stages.
EDUCATION
Carnegie Mellon University, Pittsburgh, Pennsylvania
Bachelor of Architecture, Minor in Human Computer Interaction, GPA: 3.86/4.00
College of Fine Arts Dean’s List: F20, S22, F22, F23, S24
Courses: Design Studio, Environmental Systems, Materials & Assembly, Structures & Statics
NCARB Registered Licensure Candidate: 1329 Hours
École Polytechnique Fédérale de Lausanne, Lausanne, Switzerland
Courses: Urban Landscape Studio, Design in the Circular Economy, Urban Green Spaces
EXPERIENCE
Fausto Cortese Architects, Student Intern - Toronto, Canada
-Drafted permit drawing sets for residential and industrial projects (20 000 sqft)
-Created renderings for client presentation and review using Enscape and Photoshop
-Attended site visits for client consultations
-Oversaw construction administration tasks such as organizing documentation for permit set submission
LMS Engineering, Student Intern - Toronto, Canada
-Drafted structural drawing sets for permit submission using AutoCAD
-Revised structural details and sections for new and existing industrial buildings
-Attended site visits for site inspections and client consultations
Studio JCI, Student Intern - Toronto, Canada
-Drafted full architectural drawing sets for single family home building permit submission
-Created 3d Sketchup models for quick design visualization
-Reviewed building code for residential limiting distance
Teaching Assistant, Carnegie Mellon University - Pittsburgh, Pennsylvania
-Facilitated lab sessions to teach students technical workflows for building energy analysis
-Answered technical questions from students in class sessions
-Graded and provided feedback on student assignments
Co-Head of Booth, Carnegie Mellon University Spring Carnival - Pittsburgh, Pennsylvania
-Coordinated the design-build process from a construction administration perspective for 20+ booths
-Evaluated and verified building plans for compliance with structural and safety standards
-Presented to university stakeholders and student groups
SKILLS
3D Modeling: Revit, Rhino, Grasshopper, ArchiCAD, SketchUp, Enscape, Vray, Twinmotion
2D Drawing: AutoCAD, Adobe Creative Suite (Photoshop, Illustrator, InDesign), QGIS
Physical Modeling: Woodworking, casting, ceramics
Languages: English, Mandarin, French
AWARDS/CERTIFICATIONS
LEED AP BD+C
Payette Prize in Building Science
Student award from Carnegie Mellon University
Awarded for Building Systems Integration Project - McKinley Park Environmental Center
Measuring and Monitoring Services Inc. Internship Fund
Student award from Carnegie Mellon University
McKinley Park Environmental Center
Fall 2023, in collaboration with Carleigh Cusick, Alexia Tan

Upham’s Corner Library
Spring 2023
Reviving Hidden Commons
Fall 2024
Pittsburgh Symphony
Fall 2022, in collaboration with Carleigh Cusick
Cartography
Fall 2024
4-15
16-25


McKinley Park Environmental Center
Fall 2023, with Carleigh
Cusick, Alexia Tan
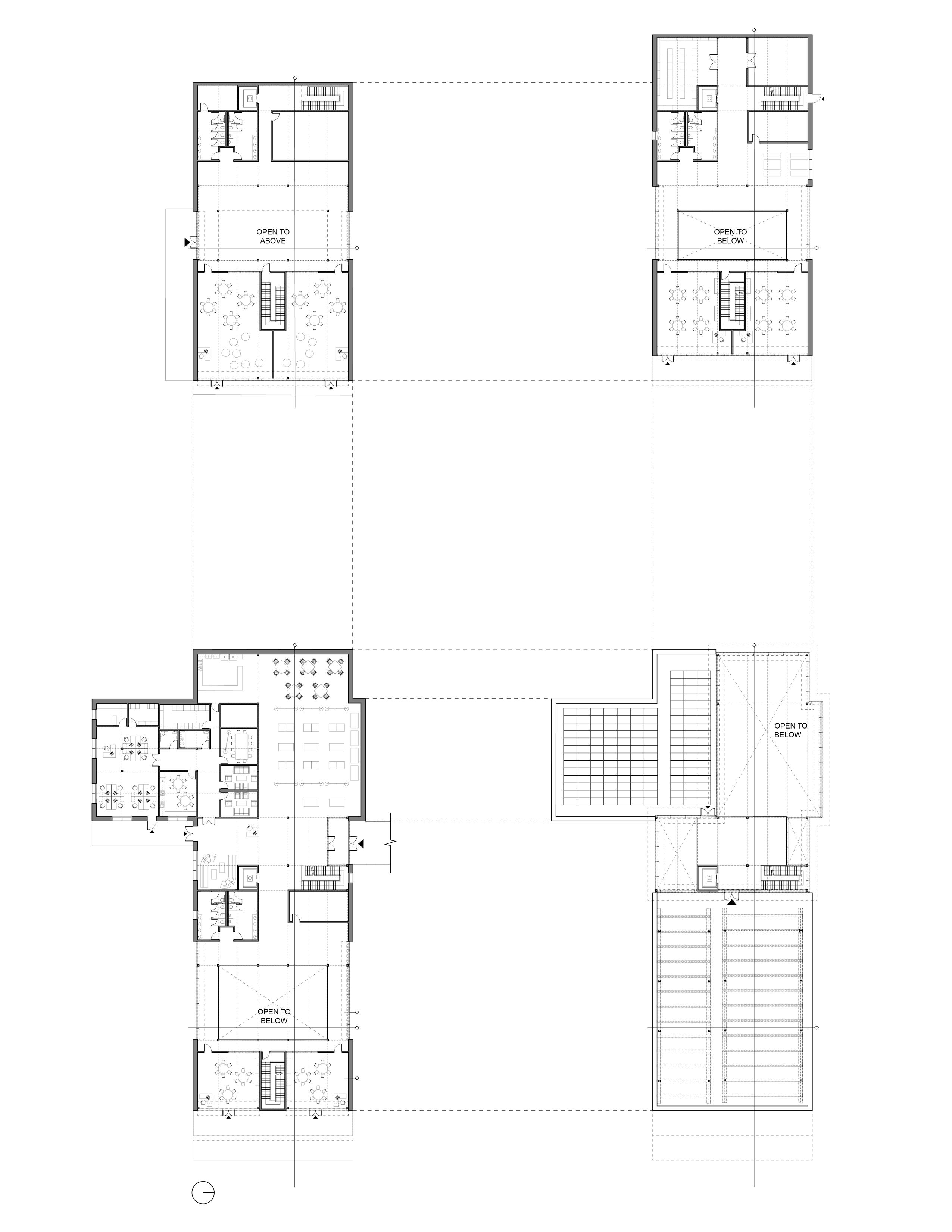
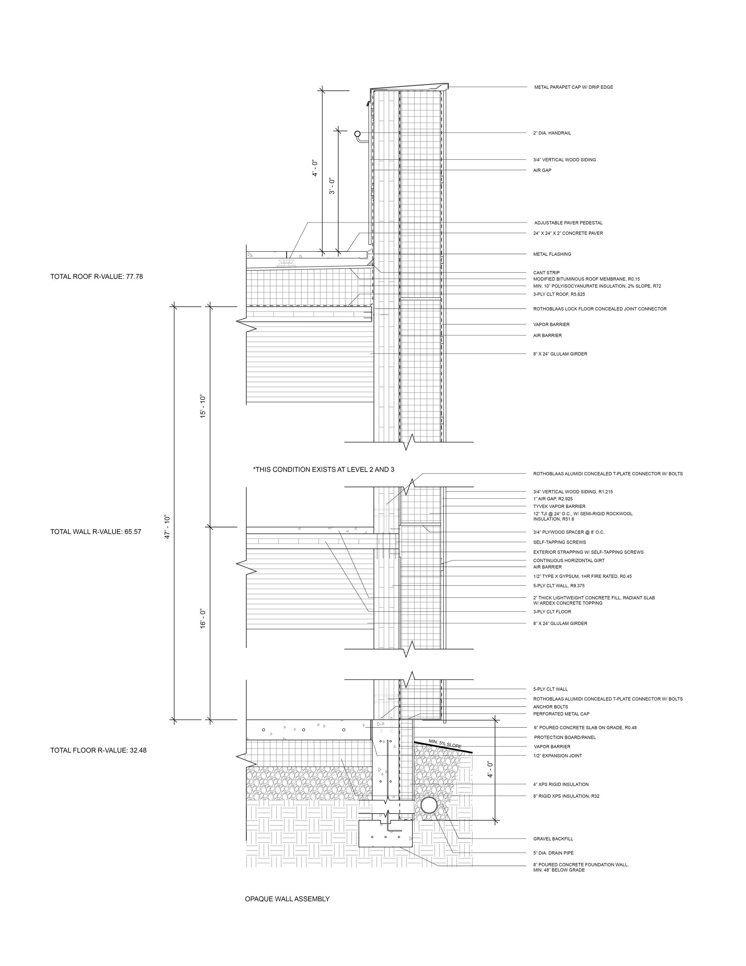
Situated on the steep slopes of Pittsburgh’s Beltzhoover neighborhood, the Mckinley Park Environmental Center is a place for the community to gather, learn, and celebrate. It acts as the starting point for the revitalization neighborhood, serving both visitors and locals. The environmental center acts as a gateway into the park, encouraging visitors to wander and discover nature.



Office
Room
Second Floor 1. Storage
Restrooms
Mechanical Room
Classroom
Mezzanine
1. Interior Mezzanine
2. Rooftop Patio

In response to the steep slope of the site and existing park elements, Mckinley Park Environmental Center takes on a L-shaped configuration, creating a public and private wing. The building is sited to address the northwestern corner of the site, which is closest to nearby public transportation. In respose to the steep slope of the site, the building is stepped outwards, to minimize site impact.





First Floor
Third Floor
Second Floor
Mezzanine
Baseline
Solarban 90 on Pacifica - Clear
Concrete floors
Generic wall finish
Iteration 1
Switched glazing material to lower Rvis and Tvis
Added overhangs at a 30 degree angle over classroom windows facing east

Iteration 2
Added light shelves to all atrium spaces, spaced at 2’ apart vertically, aluminum finish
Exterior overhang on all atriums
Added light shelves to classroom spaces
Final
Switched glazing material back to initial material
Classroom glazing material to lower SHGC, lower Tvis
Switched wall finish to maple
Added manual shades to classrooms
Removed lowest light shelf in classrooms


Upham’s Corner Library
Spring 2023
Located in a suburb south of downtown Boston, the Upham’s Corner Library is an inviting space that for everyone in the community. Its mass timber structure creates open community spaces that allow everyone to feel connected and at home. The unique structure helps to create large open spaces, but also create dynamic lighting conditions for all programs that the modern library is home to.

The form of the building is intended to pull visitors off from the edge of the street, guiding them to the entrance tucked in the corner. An additional entry provides access to community facing program spaces outisde of normal library hours. There is a focus on providing community gathering spaces, which is achieved with a double height lobby and a grand stair with seating.





Central Stair




Reviving Hidden Commons
As climate challenges become increasingly pressing, cities like Paris must adapt accordingly. The Bièvre once flowed through Paris but has since dried up from overuse. Reviving hidden commons is about using the former bed of the Bièvre as a starting place for adapting the streets of Paris to this new climate paradigm. The project looks to revive the once vibrant life that existed around the presence of the Bièvre.

Currently, the existing park at Square René Le Gall is successful as an isolated public space, but the rich history of the Bièvre presents an opportunity to revive a once vibrant public life. The Mobilier National and the Manufacture de Gobelins are two cultural institutions that are used to reactivate this once vibrant streetscape.
Overall Context

Hospitals
Schools
Cultural Centers

Node 1
Located in front of the Mobilier National, this node serves as the primary cultural node of the proposal. This space is open and flexible to allow for potential cultural events such as farmers markets or public workshops to take place.

Node 2
Located at the southeast entrance of the Square René Le Gall, this node is focused around a rain garden that allows for people to seat and enjoy the nature. The nearby restaurants and cafes are also provided space to extend out into the new public areas.
Node 1

Street Condition
The existing elevation difference between the street and the park creates issues in both the threshold and rainwater absorption. By breaking down the slope into a stepped bio rentention slope, rainwater can be better absorbed, but the edge between the park and the city can also begin to be softened.
Node 2

Node Condition
This node shows the relationship that the new rain garden has with its surroundings. By providing seating and greenery, this former traffic island can become activated in a lively public space, supported by the presence of local eateries and cafes.

Pittsburgh Symphony
Fall 2022, with Carleigh Cusick
Pittsburgh Symphony uses sound as a driver for creating a generative necklace of interventions across the city of Pittsburgh. Spread across three sites, each building is designed through clustering physical forms that are generated from sounds recorded on site. Imagined as “sound containers”, each building is imagined as a combination of the qualities of sound that it came from.










Fall 2024
This project is a mapping of Cologne, Germany through its historical figures. Starting from its initial Roman roots, with its axis, the city grew radially, expanding outwards with city walls and fortresses. The industrial era brought about the heavy presence of railroads, along with new highways to support the new industries that were appearing. The final map tells the story of a Cologne that rapidly grew west of the Rhine river, but only slowly came to life on the east with the industrial era.
