Architecture & Design Portfolio 2023

Page 1

Architecture + Design

PORTFOLIO

A Compilation of Recent Work

2023

About the Designer

Jack Christie

I am a third year architecture student in the Alfred State BArch program. Before studying at Alfred State, I completed the twoyear associates degree program for architecture at Finger Lakes Community College. I embrace the challenge of each new project and working toward creating spaces that work in harmony with the fabric of the natural world. I aspire toward becoming a liscensed architect and work toward this goal through my school work and experience in the professional field.

Recent Awards

AIA Rochester Scholarship

Merit Award: Home Competition 2023

Leadership President AIAS Alfred State

Eagle Scout

Featured Twice: Alfred State Architecture & Design Year in Review

First Place: Modular Design Competition

Sponsored By Razak Associates

johnmichaelchristie@gmail.com (585) 370 - 3050 @jmchristie_architecture

Skaehetsi?kona (The Great Tree of Peace)

Parti & Concept Development

Level 1 Plan

Level 2 Plan

Detailed Sections

Site Utilization

Model Photos

Administrative Suite Solar Study

Buffalo Test Kitchen

Sketch, Plans, and Elevations

Sections, Renders, and Exploded Structural Axon

Model Photos

A Place to Dwell

Urban Sketching

Scaleless + Siteless

Phase 3: Assign Scale + Program + Context

2022 Home Competition

Model Photos

Living Space 2/1

Model Photos and Walkthrough Video

Gwathmey House Model

Skyscraper Project

FLCC School of Architecture

Model Photos

Table of Contents

1 2 3 4 5 6 7 8 9 10 11 12 13 14 15 16 17 18 19 20 21 22 23 24

Skaehetsi?kona

Meaning: The Great Tree of Peace in the Haudenosaunee Toungue

1

Alfred State Fall 2022

A Museum Dedicated to the Life & Culture of the Haudenosuanee

Concept Statement: This concept originates from the meetings of the Iroquois chiefs at the Tree of Peace located in the Onondaga village. The Onondaga were known as the “Keepers of the Central Fire” and with this came the responsibility of keeping this sacred ground safe. These ideas translate into a building that has a large centrally located gallery space that represents the Tree of Peace. Another gallery wraps around the central gallery symbolizing the walls of an Iroquois village.

Project featured in Professor David Carli’s presentation of student work
People

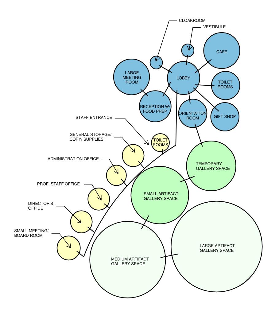
Level 2 Bubble Diagram

Conceptual Level 2 Plan

Parti & Concept Development

Level 1 Bubble Diagram

Conceptual Level 1 Plan

Conceptual Massing

Alfred State Fall 2022

Conceptual Section 1

Conceptual Section 2

2
Skaehetsi?kona

Level 1 Plan

Skaehetsi?kona

3 Alfred State Fall 2022

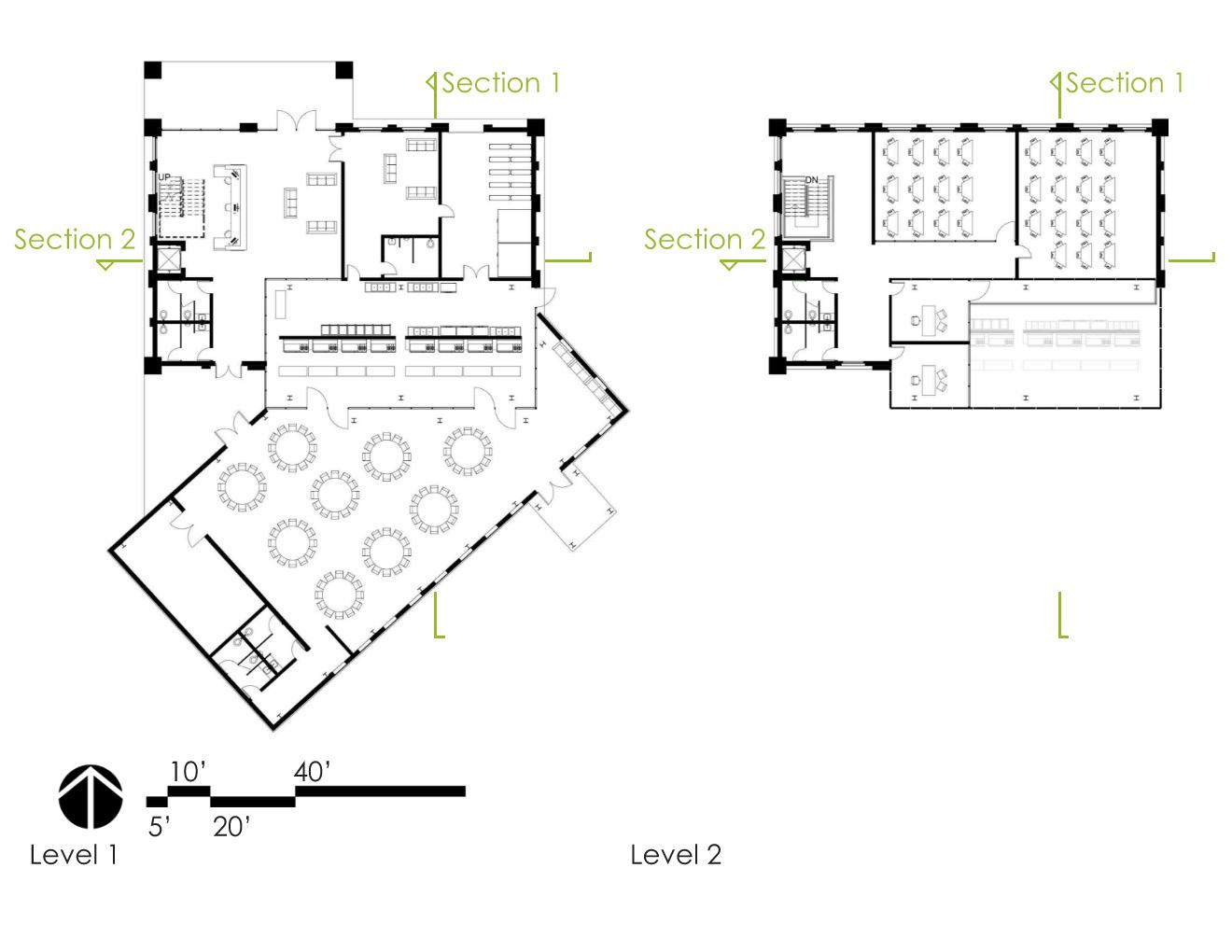
UP UP UP A101 29 30 31 32 33 34 35 36 37 38 39 40 41 A103 S9 ARTIFACT STORAGE 5.02 MECHANICAL ROOM 6.01 SHIPPING RECEIVING 5.06 WORKROOM RESTORATION 5.03 CRATE STORAGE 5.05 EXHIBIT PREPARATION 5.01 CRATING UNCRATING 5.04 CORRIDOR 6.03 STAIR 6.14 ELEVATOR 6.10 ELEVATOR MECHANICAL ROOM 2.08 MAINTENANCE STORAGE 3.04 WORKSHOP (DIRTY) 3.03 MEDIUM ARTIFACT GALLERY SPACE 2.01 LARGE ARTIFACT GALLERY SPACE 2.02 ELEVATOR LOBBY 6.11 COURTYARD 6.12 TRIBE ROOM 6.13 COVERED LOADING DOCK FROSTED GLASS ARTIFACT WALL U1 U2 U3 U4 U5 U6 U7 U8 U9 U10 RETAINING WALL U11 U12 0' 5' 10' 20' 40' LIBRARY ARCHIVE ROOM 3.02 STAFF VOLUNTEER LOUNGE 3.01 GALLERY SPACE 2.05 ELEVATOR MECHANICAL ROOM 2.08 J4 J5 J6 J7 J8 J9 J10

Level 2 Plan

4 Alfred
DN DN DN A101 29 30 31 32 33 34 35 36 37 38 39 40 41 A103 S3 S4 S5 S7 S8 S9 S10 S11 S12 S13 S14 DIRECTOR'S OFFICE 4.01 ADMINISTRATION OFFICE 4.02 PROF. STAFF OFFICES 4.04 SMALL MEETING BOARD ROOM 4.03 TOILET ROOM 4.06B GENERAL STORAGE COPY SUPPLIES 4.05 TOILET ROOM 4.06A STAFF ENTRANCE 4.07 STAFF CORRIDOR 6.02 S18 S19 LARGE MEETING ROOM (LECTURE) 1.06 SERVER SECURITY ROOM 3.08 CLOAKROOM 1.09 CLOSET 6.08 RECEPTION (W/ FOOD PREP 1.07 STAIR 6.05 ELEVATOR 6.06 ELEVATOR LOBBY 6.07 GENERAL STORAGE 3.06 JANITOR'S CLOSET 3.05 GIFT SHOP BOOKSTORE 1.04 GIFT BOOKSTORE STOCKROOM 3.07 ORIENTATION ROOM (THEATRE) 1.03 TOILET ROOM 1.08A TOILET ROOM 1.08B TEMPORARY GALLERY 2.04 LOBBY 1.01 VESTIBULE 1.02 CAFE 1.05 SMALL ARTIFACT GALLERY SPACE 2.03 OPEN TO BELOW OPEN TO BELOW S21 0' 5' 10' 20' 40' J4 J5 J6 J7 J8 J9 J10 OPEN TO BELOW SUSPEND FROM ABOVE
State Fall 2022
Skaehetsi?kona

Detailed Sections

Skaehetsi?kona

5 Alfred State Fall 2022

LEVEL 1 0' 0" LEVEL 2 12' 0" 4 X 8 CLT WOOD DECKING 9" RIGID INSULATION 3-LAYER CLT PANEL 3" RIGID INSULATION 6" CONCRETE SLAB ON GRADE METAL ROOF 3/8" LAG SCREW METAL CLIP GUTTER L-ANGLE BOLTED CONNECTION, TYP. 6 3/4" X 18" GLUELAM BEAM 12" X 24" GLUELAM COLUMN 1/2" STEEL BASEPLATE 3/4" LAG SCREW STEEL PLATE CONNECTION 24" REINFORCED CONCRETE FOUNDATION WALL 48" REINFORCED CONCRETE FOOTING 3" GRAVEL LAYER 6 3/4" X 12" GLUELAM BEAM 18" FIRE RETARDANT WOOD SHAKE 1X3 WOOD STRAPPING 2" RIDGID INSULATION 3-LAYER CLT PANEL 3/4" AIRSPACE BOLT 4" X 6" CURTAIN WALL MULLION DOUBLE PANE GLAZING 2' X 4' SLATE TILE 2 x 4 BLOCKING 1 1/2" AIRSPACE SELF-ADHERED MEMBRANE 2 X LUMBER BLOCKING UNCOUPLING AND WATERPROOFING MEMBRANE UNCOUPLING AND WATERPROOFING MEMBRANE 2' X 4' SLATE TILE GRAVEL LAYER 5/8" ROOF SHEATHING 6" PERFORATED DRAIN PIPE ARTIFACT DISPLAY SPACE GRAPHIC SCALE 5' 10' D1
Detailed Wall Section 1 Detailed Wall Section 2
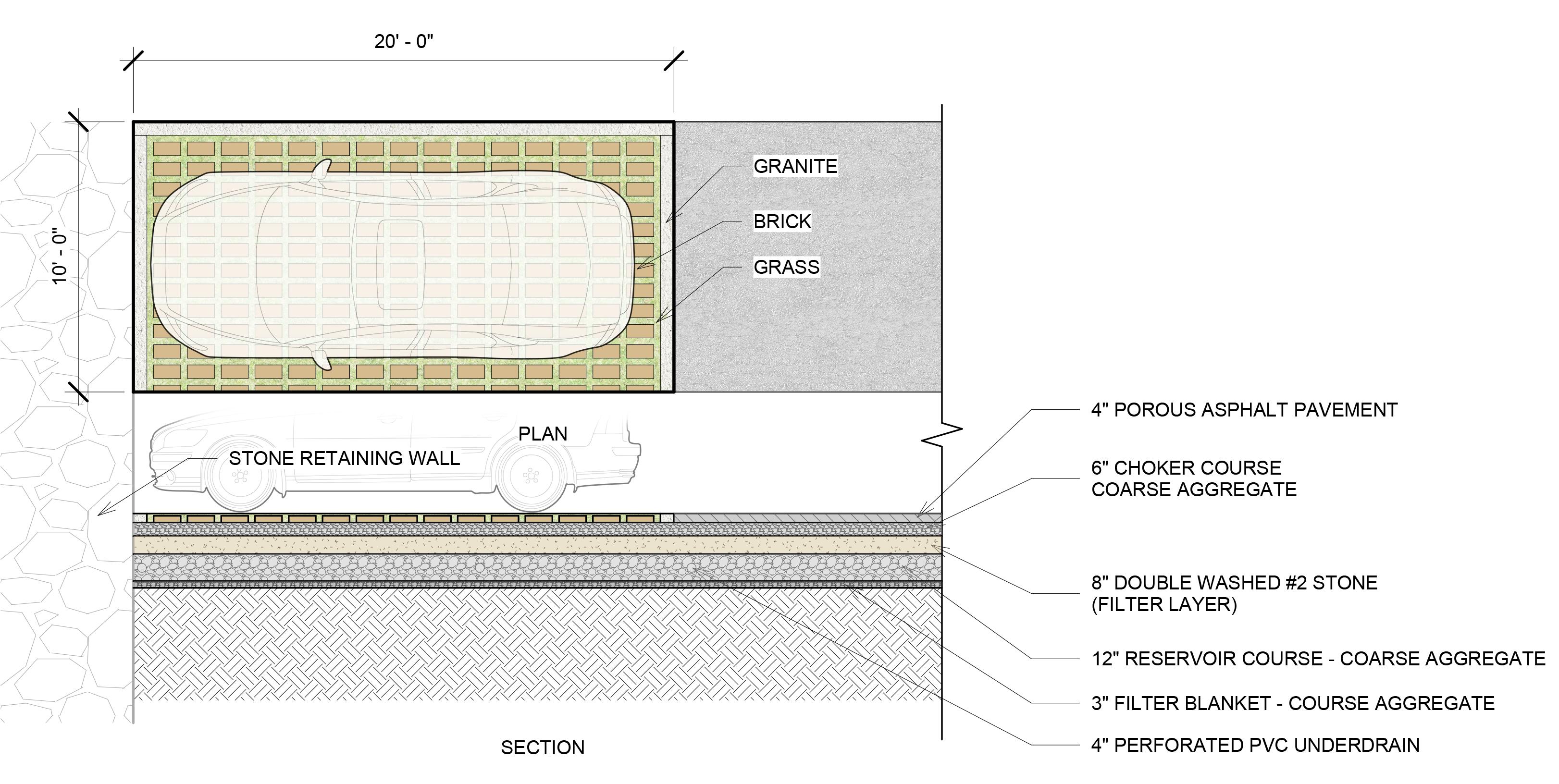
6 Alfred State Fall 2022 ROOF SOLAR PLAN STANDING SEAM STEEL ROOF PHOTOVOLTAIC PANEL COPPER ROOF GRAPHIC SCALE 0' 5' 10' 20' 40' Skaehetsi?kona
Sustainable Parking Site Plan Rooftop Photovoltiac Panel Array
Site Utilization

7

Alfred State Fall 2022

Skaehetsi?kona
1/4" 1'-0" 1 ENLARGED ELEVATION - LOUVER 8 Alfred State Fall 2022 Skaehetsi?kona LIGHT STUDY SECTION L 6/21 12PM LIGHT STUDY SECTION - L 12/21 12PM LIGHT STUDY SECTION L 6/21 5PM 1/8" 1'-0" 2 LIGHT STUDY SECTION - L 6/21 12PM LIGHT STUDY SECTION - L 12/21 5PM 1/8" 1'-0" LIGHT STUDY SECTION L 6/21 5PM 1/8" 1'-0" 3 LIGHT STUDY SECTION - L 12/21 5PM 1/8" 1'-0" 4 1/8" 1'-0" 2 LIGHT STUDY SECTION L 6/21 12PM 1/8" 1'-0" 4 LIGHT STUDY SECTION - L 12/21 12PM Without Louvers 6/21 With Louvers 6/21 12 PM 12 PM 5 PM 5 PM Administrative Suite Solar Study Administrative Suite Aluminum Louver System Enlarged Elevation: Small Meeting / Board Room Louvered Facade

Buffalo Test Kitchen

Buffalo Test Kitchen

9

Alfred State Fall 2022

The U.S. has the highest number of prisoners in the world.

2,094,000 as of July 2021

In the U.S. 38.3% of prison inmates are Black (Federal Bureau of Prisons 2022).

Previosely incarcerated indeviduals are not set up to suceed in the U.S.

There is a strong stigma around people who have been to prison.

This makes starting a career after prison near imposible.

28% of people in Buffalo are obese and 40% are overweight.

Limited access to cars constrains residents of the surounding neighborhoods access to fresh healthy food

In the U.S. “non-Hispanic Black adults (49.6%) had the highest age-adjusted prevalence of obesity (CDC, Adult obesity facts 2021)”

The Buffalo Test Kitchen will be a culinary school that teaches previously incarcerated individuals how to cook. This will give them valuable skills for their future as full members of society. The food produced by the culinary students will be served to members of the local community serving them with the healthy nutritional food they need.

Alfred State Fall 2022

10
North Elevation South Elevation West Elevation East Elevation Buffalo Test Kitchen
11 Alfred State Fall 2022 Store Front Glazing Brick on CMU Large Molding Small Molding 2' x 4' Alluminum Paneling 4' x 10' Window JELD-WEN 95.5 in x 59.5 in Concrete Slab W 24 x 50 HP 12 x 65 1’ 10’ 5’ 20’ 1’ 10’ 5’ 20’ Buffalo Test Kitchen Exploded Axon Section 2 Dinning Room Teaching Kitchen
1
Section

Model Photos

12
Alfred State Fall 2022 Buffalo Test Kitchen
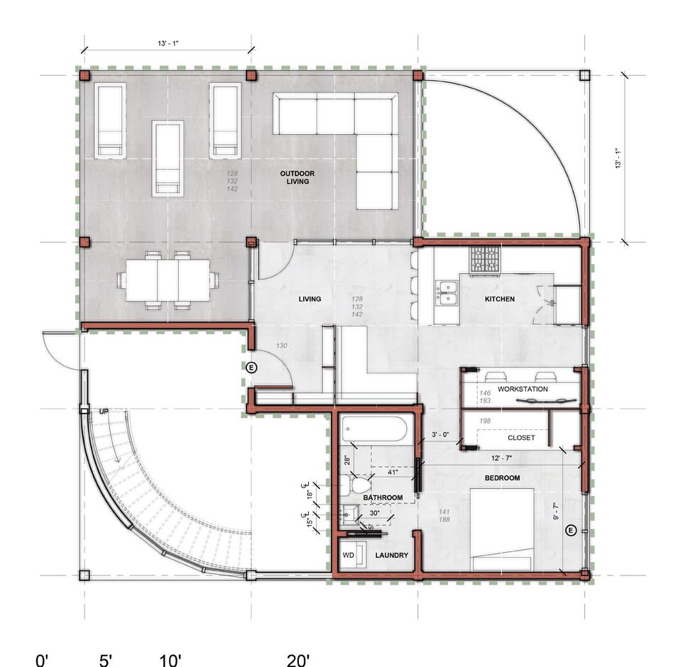
13 A Place to Dwell Sorrento Italy This unit is a dwelling for single people and couples that work remotely. The unit will be tailored to the lifestyle of the people dwelling within to create a space where all aspects of life, including work, can be lived in a balanced harmonious fashion. Closing the office door at the end of the workday is something that signifies the transition into the next stage of the day. This transition is something that does not always translate into remote work. A small compact workstation that can be closed at the end of the day is one of the ways this unit will be able to transition uses. People need human interaction in their lives. When work is remote this connection will need to be made in other places. Large outdoor living spaces that utilize the natural beauty of the site provide a dwelling that can be easily shared with a group of guests. If the physical structure does not always define the dwelling or the office why not utilize the same one for both? CONCEPT STATEMENT INFLUENCE FROM A PATTERN LANGUAGE 128 - INDOOR SUNLIGHT 130 - ENTRANCE ROOM 132 - SHORT PASSAGES 141 - A ROOM OF ONE’S OWN 142 - SEQUENCE OF SITTING SPACES 146 - FLEXIBLE OFFICE SPACE 147 - COMMUNAL EATING 161 - SUNNY PLACE 163 - OUTDOOR ROOM 167 - SIX-FOOT BALCONY 173 - GARDEN WALL 177 - VEGETABLE GARDEN 183 - WORKSPACE ENCLOSURE 188 - BED ALCOVE 198 - CLOSETS BETWEEN ROOMS Virtual Walkthrough Video Level 1 Plan Level 2 Plan Level 3 Plan View of Main Living Space Looking Toward Mt. Vesuvius Site Section Site Plan South East Section Enlarged Level 1 Plan Main Living Space Diagram Special Space Special Space Indoor Living Outdoor Living Merit Award Winning Competition Design Featured in the Livington County News A Place to Dwell Alfred State Study Abroad in Italy Spring 2023

URBAN SKETCHING & JOURNALING

Urban Sketching

EXERCISE 15 PAINTED SKETCHBOOK: LINE & WASH

"Of all the painting media you might choose, watercolor is the most closely associated with sketching. By its nature, being portable, transparent and fast drying, it s ideal for accenting drawings." - THE URBAN SKETCHER

Alfred State Study Abroad in Italy Spring 2023

14
Sant’Anna Institute Garden Sketch

Scaleless + Siteless

Phase 1: Sketch Form

ARCH 4304

Jack Christie

Phase 2: Digitally Mass

Phase 3: Assign Scale + Program + Context

16
Section Level 5 4304 Christie
Alfred State Spring 2022
ARCH 4304
Jack Christie Scaleless + Siteless

2022 Home Competition

Home: A Connection

Tripp Lake Road, Warrensburg, NY

Alfred State College

Jack Christie

This home is a connection between the forest and the water. The intersection of these two elements takes the form of conditioned space for human life. The home is divided between minimal private space and a public space that gives the feeling that the surroundings can flow right through the home making the 600 square feet feel more infinite in its Adirondack mountain setting. When starting this project, using only 600 square feet felt like a restriction but as went deeper into the project I realized that there is beauty in only using the essentials indoors and letting the outdoor space make up any feelings of being cramped in a smaller space. This will help occupants to live a lifestyle that does not tie them to “things.” The design of the outdoor space is a mirror of the indoor space. In this home, both indoor and outdoor spaces follow the same paths for circulation and division of public and private spaces. This can be clearly seen in the fireplace that repeats itself indoors and outdoors. This home is a place to connect with nature.

Alfred State Spring 2022

What does “Home” mean?

Where is home?

17
Forest Water Home N Section 1 Section 2 North West South East 1’ 2’ 5’ 10’ 1’ 2’ 5’ 10’
Merit Award winning competition design

fireplace that repeats itself indoors and outdoors. This home is a place to connect with nature.

18 Alfred State Spring 2022
1’ 2’ 5’ 10’ Section 1 Section 2 Level 1 Level 2 North West South East Nature is allowed to flow through the building Interior space is mirrored on the exterior 1’ 2’ 5’ 10’ 1’ 2’ 5’ 10’ Walkthrough Video https://youtu.be/wbOroeUF4EA
Photos 2022 Home Competition
Model

Awarded

first

Object of the Project

19 Alfred State Fall 2021 Site Plan Living Space 2/1 Room/Space List Double rooms Single rooms Rowhouse dorms Bathrooms Trash Rooms Kitchens Common Rooms Utility room RA Office RD Office Resturant Study Space/Conference Room Storage Room for Students Athletic Gym Outdoor Ice Rink Indoor Turf Space Parking Lot Laundry Rooms X Key ? Adjacent Near Away Does Not Matter X X X X X X X X X X X X X X X X X X X Modular Project Spatial Relationship Diagram Version: 1 Fall 2021 By: Jack Christie Dorm Spaces (Rooms) Administration Athletic Spaces Utility Parking Bathrooms Common Spaces Key Adjacent Near Away Single Rooms Rowhouses Double Rooms Laundry Room Trash Room Utility Room RA Office Security Room RD Offce Modular Project Spatial Bubble Diagram By Jack Christie Athletic Gym Indoor Turf Sace Outdoor Ice Rink Storage Space Study Space /Conference Restaurant Kitchens Lounge Bathroom Living Space Bedrooms Kitchen This building provides a living space for students and spaces that promate an active and healthy lifestyle.
Spatial Organization Dorm Spaces (Rooms) Administration Athletic Spaces Utility Parking Bathrooms Common Spaces Key Adjacent Near Away Single Rooms Rowhouses Double Rooms Laundry Room Trash Room Utility Room RA Office Security Room RD Offce Modular Project Spatial Bubble Diagram Athletic Gym Indoor Turf Sace Outdoor Ice Rink Storage Space Study Space /Conference Restaurant Kitchens Lounge Bathroom Living Space Bedrooms Kitchen Room/Space List Double rooms Single rooms Rowhouse dorms Bathrooms Trash Rooms Kitchens Common Rooms Utility room RA Office RD Office Resturant Study Space/Conference Room Storage Room for Students Athletic Gym Outdoor Ice Rink Indoor Turf Space Parking Lot Laundry Rooms X Key ? Adjacent Near Away Does Not Matter X X X X X X X X X X X X X X X X X X X Modular Project Spatial Relationship Diagram Version: 1 Fall 2021 By: Jack Christie
Diagrams The Module
Elevations Plans Living Space--1st Floor Plan 2nd/4th Floor Plan 3rd Floor Plan Section 2 Section 1 Section 1 Section 2 North East West South 5’ 10’ 20’ 50’ 5’ 10’ 20’ 50’ 5’ 10’ 20’ 50’ Sections Gym Indoor Turf Circulation Outdoor Space Single Module Row-House Module Array Living Space Balcony Hallway N
Design By: Jack Christie
Concept Statement
Renderings
place in a modular design competition sponsored
The object of this project was to utilize modular design and construction to design a living complex for the campus of Alfred State. As a student at the school, I was in a perfect position to assess things lacking in other buildings, things are done well, and things my peers and myself would like to see added to a dormitory complex. This project was a multiple-stage project including everything from site analysis and peer interviews to the construction of a vmodel for presentation. Living Space 2/1
by: Razak Associates
20 Alfred State Fall 2021 The Module Virtual Walkthrough Video Conceptual Final Virtual Walkthougth Link: https://vimeo.com/656690315/71e1297ead I used Twinmotion for this walkthrough video. Living Space 2/1

Gwathmey House Model

This model was part of a research and documentation assignment. I chose the house Charles Gwathmey designed for his parents. For the construction of the model, I chose to work with more than one material, including wood, 3d printed parts for the circulation pieces, and plexiglass backed with vellum for the windows.

21
FLCC Fall 2020
Gwathmey House Model

Skyscraper Project

725 5th Ave, New York, NY

This project was to design a skyscraper for the given address assuming a clean site. My design features a central core that would house all primary circulation in the tower. Attached to this central core is a series of boxes and platforms that would serve as the usable space for offices and residences. I incorporated as much outdoor/green space into my design as I could to provide some sense of nature in a dense urban environment.

22 FLCC Spring 2020
Skyscraper Project

FLCC School of Architecture

23 FLCC Spring 2021
School of Architecture
Victor Heights Pkwy, Victor, NY 14564
FLCC
201
1st Floor Plan Level Level 2nd Floor Plan PRODUCED BY AN AUTODESK STUDENT VERSION PRODUCED BY AN AUTODESK STUDENT VERSION PRODUCED BY AN AUTODESK STUDENT VERSION PRODUCED BY AN AUTODESK STUDENT VERSION 5’ 20’ 10’ 50’ 1’ 5’ 2’ Wall Section 2nd Floor Plan 1st Floor Plan Diagrams N West South East North Section Classroom Classroom Library
Design by Jack Christie
FLCC School of Architecture

School of Architecture

The object of this project was to design a new building to house the architecture program at FLCC. Being a student in the program I was well-positioned to observe shortcomings of the program and solve them with my design. This design provides designated studio spaces for first and second-year students in the angled wing of the building. The design also includes other essential spaces such as classrooms, offices for faculty, a student lounge, and space for digital fabrication.

24
FLCC Spring 2021 FLCC School of Architecture
Hand Drafting Exercise The Erechtheion: Athens johnmichaelchristie@gmail.com (585) 370 - 3050 @jmchristie_design

Turn static files into dynamic content formats.

Create a flipbook
Issuu converts static files into: digital portfolios, online yearbooks, online catalogs, digital photo albums and more. Sign up and create your flipbook.
Architecture & Design Portfolio 2023 by JChristie21 - Issuu