

JASMINE NICKOLSON
Interior Design Student Portfolio
ABOUT ME
I design interiors with the belief that space is a language: spoken through light, material, proportion, and movement. Currently studying interior design in Texas and based in New York, I approach every project as an opportunity to shape emotion and connection rather than simply compose form.
My process is rooted in curiosity and iteration. I sketch to think, model to test, and research to understand how people truly inhabit space. I’m drawn to environments that balance rigor with warmth: places that invite pause, spark curiosity, and quietly elevate everyday rituals. Daylight becomes a guide, circulation a narrative, materials a form of storytelling.
Design, to me, is both analytical and intuitive. It lives in the tension between structure and play, precision and experimentation. That balance continues to shape my work as I explore how interiors can support wellness, foster community, and adapt to the evolving ways people live.
Looking ahead, I’m interested in working across residential, commercial, multifamily, and hospitality projects, with a focus on sustainable, culturally responsive, experience-driven spaces. I believe the most successful interiors don’t announce themselves loudly: they reveal their impact slowly, through how people feel inside them.
CONTENT
01 02 03 04
THE RATIO HOUSE
Experimental Pavilion + Lighting Study
TCU Creative Commons: Fibonacci-Driven Spatial Exploration
Daylighting, Fabrication, Atmospheric Design


THE BLACK CAT LOUNGE
Hospitality Interior + Cocktail Bar Concept
SoHo, New York: Immersive Nightlife Environment
Brand Identity, Experiential Lighting, Spatial Narrative

PEDIATRIC CARE CLINIC
Healthcare Interior Design
Patient-Centered Planning, Sensory Spaces, ADA Integration
THE PRESCOTT RESIDENCE
Residential Interior + Universal Design
Adaptive Re-Planning, Wellness-Focused Living, ADA Strategies

JASMINE NICKOLSON
EMAIL: Jasmine.nickolsonedie@gmail.com
LINKEDIN: jasminenickolsonedie
LOCATED: New York | Texas
EDUCATION:
Texas Christian University | Fort Worth, TX
Bachelor of Fine Arts in Interior Design | May 2028
GPA: 4.0
Student Member: Interior Design Society, NKBA
Suffolk County Community College | Selden, NY
Associate of Applied Science in Interior Design | May 2024
Phi Theta Kappa Honor Society Dean’s List (2022–2024)
Kravet Textile Design Competition Recipient (2022) GPA: 4.0
DESIGN & TECHNICAL STRENGTHS:
Spatial & Technical Design:
Architectural drafting · Construction documentation · Digital-tophysical workflows · Model making · Rendering production
Interior Design Focus:
Space planning · Material systems · Kitchen & bath layouts · Daylighting concepts · Lighting strategy
Process & Studio Practice:
Concept development · Diagramming · Research & precedent studies · FF&E curation · Presentation boards
Professional Skills:
Client communication · Team collaboration · Design storytelling · Critical thinking · Time management
RELEVANT COURSEWORK:
Studios & Design Core:
Interior Design I–III · Design Process & Theory · Design Illustration
· Fundamentals of Lighting · Interior Components
Technical:
Kitchen & Bath Design · Working Drawings · Building Systems & Construction
Creative & Historical:
History of Interiors I & II · Interior Textiles & Finishes · Colors for Interiors
Professional Practice:
Portfolio Development · Professional Practice · Cooperative Education
COMMUNITY & SERVICE:
Brighter Tomorrows Inc. | Shirley, NY
Design Volunteer
• Developed layouts supporting safe housing environments
• Assisted with trauma-informed design strategies
• Collaborated with staff to balance comfort, dignity, and security
• Supported research into best practices for shelter and support
housing environments
SOFTWARES:
3D Visualization & Rendering: Enscape · D5 Render · SketchUp
Drafting & Technical: AutoCAD · 2020 Design
PROFESSIONAL EXPERIENCE
TCU FAB Lab | Fort Worth, TX
Student Assistant | Aug 2025–Present
• Support fabrication of physical models and presentation materials
• Operate laser cutters, 3D printers, large-format plotters, Cricut machines, and finishing equipment
• Troubleshoot file prep and fabrication workflows
• Maintain safe lab procedures and production accuracy
Twin Forks Painting & Décor Inc. | East Hampton, NY
Interior Design Intern | Jan–May 2024
• Assisted designers during client meetings and site visits
• Managed material samples and ordering logistics
• Coordinated communication between vendors and clients
• Supported project documentation and execution
• Participated in site measurements and field verification
Bay Area Painting Services | East Hampton, NY
Painter | Aug 2021–July 2024
• Consulted clients on color palettes and finish selection
• Executed on-site painting with attention to surface prep and detailing
• Identified defects and implemented corrective solutions
Adobe Creative Suite: Photoshop · Illustrator · InDesign
Productivity: Microsoft Word · Excel · PowerPoint


01
THE RATIO HOUSE | Light, Ratio, and Occupation
Driven by the Fibonacci sequence and solar geometry, Ratio House uses layered façades and proportional systems to sculpt light over time across its campus setting. Designed as a dwelling in space and place for students, professors, and visitors, the project becomes a living study of how zoning, daylight, shadow, and artificial lighting guide movement and occupation. Screens, voids, and structural rhythms generate evolving conditions of warmth, transparency, and focus throughout the day.






EMBODIED STUDY
Ratio House functions as a teaching monument: a pavilion where students, faculty, and the surrounding community engage proportion, daylight, and materiality through direct experience. The architecture translates design principles into inhabitable form, inviting learning through movement, shadow, and shifting spatial rhythms.




BARCELONA CHAIR SERPENTINE STONE
LIGHTING PLAN & FURNITURE SELECTION
THE BUILT LESSON | Learning Through Space
Ratio House is a teaching monument. It’s an inhabitable framework where proportion, light, and material become lived experience. The pavilion slows movement, sharpens perception, and transforms everyday campus life into a moment of intentional design.









CONTROL LIGHTING PLAN & LIGHTING INTENT







CHOREOGRAPHING LIGHT
Solar studies shaped fins, apertures, and skylights to control glare, shadow, and emphasis throughout the year, while concealed lighting transforms the pavilion at night for critique and gathering. Light becomes the primary spatial guide.

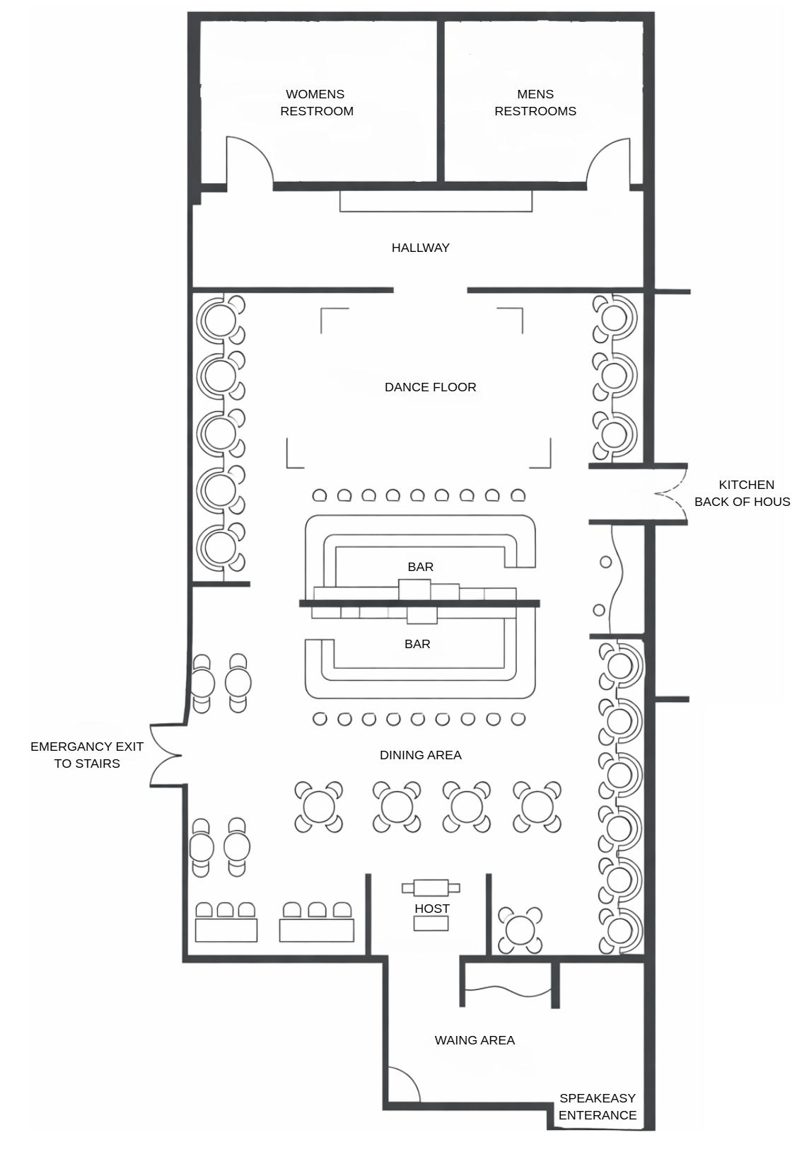
THE BLACK CAT LOUNGE | Glamour Without Guardedness
This moody, immersive cocktail space rooted in glamour, mystery, and bold femininity, conceived as a seductive yet safe hideaway for after-dark culture. Inspired by vintage speakeasies, 1970s nightlife, and feline symbolism, the interior layers warm red light, brass accents, rich textures, and curved seating to choreograph intimacy and theatrical reveal. Experiential branding, from neon thresholds to collectible matchbooks and photobooths, transforms the bar into a sanctuary that lingers long after the final sip.


BLACK HONEY
TARGET DEMOGRAPHIC
A fashion-forward, creative audience drawn to moody luxury and elevated nightlife, where safety, empowerment, and inclusivity are central to the experience.

INSPO & MATERIAL LANGUAGE
Cinematic nightlife, disco-era glamour, and animalistic motifs shape an environment of reflection, saturation, and spatial drama. Velvet reds, leopard textiles, smoked glass, brass, and neon accents pair with low amber lighting to create layered intimacy and visual depth.
MOMENTS MADE PERMANENT
POLAROID WALL | PHOTOBOOTH



ACCENT CHIARS








CRIMSON GLOW
WALL COVERING
BANQUET SEATING
THE VELVET LINE



THE THRESHOLD
Backlit onyx, neon branding, and a perforated mural establish the lounge’s identity at first contact, transforming arrival into a theatrical moment of gathering and anticipation.



BRAND IDENTITY
I created the full visual identity for The Black Cat Lounge, from logos and menus to signage and printed ephemera. Custom glassware, napkins, and keepsakes extend the interior narrative into physical objects, making branding a lived, collectible part of the experience.




GROUNDING MATERIALS | STONE, TIMBER, PATTERN

SPATIAL RELATIONS
Public, clinical, and service zones are clearly separated to support intuitive navigation and efficient operations. Exam rooms are clustered to shorten travel distances, while shared staff areas maintain flexibility and oversight.
Sightlines support passive supervision while preserving patient privacy, and circulation paths reduce cross-traffic between staff and families. Service zones are positioned for discreet access and rapid response.


CIRCULATION PRIORITY
-Separate staff and patient routes
-Direct access to exam rooms
-Central nurse station for oversight
-Controlled play-area visibility
-Discreet service circulation
-ADA restroom proximity

03
PEDIATRIC CARE CLINIC | A Softer Approach to Healthcare
Designed to reduce anxiety and improve efficiency, the clinic creates a calm, intuitive flow that supports both patients and staff from arrival to exit. Soft blue tones, tactile materials, and playful sensory moments comfort children while maintaining a composed, professional environment for adults, while behind-the-scenes planning ensures privacy, visibility, and safety throughout. Durable finishes, acoustic treatments, and flexible layouts work together to form a space that is soothing, functional, and quietly reassuring.





DESIGNED FOR CALM
Soothing textures comfort children while thoughtful design supports parents. Clean lines and elevated finishes create a calm, polished environment.


MATERIAL CARE & EFFICIENCY
Natural textures, muted blues, and warm wood finishes establish a welcoming clinical environment that feels calm rather than institutional. Commercial-grade materials ensure durability and hygiene, while thoughtful furniture placement promotes comfort, accessibility, and efficient patient care. The design balances softness with functionality to support both emotional well-being and daily operations.



THE PRESCOTT RESIDENCE | Aging in Place
Prescott Residence reimagines aging-in-place as an elegant, sensory-rich home that supports long-term independence without sacrificing warmth or luxury. Guided by natural light, intuitive circulation, and layered materiality, stone, wood, soft upholstery, and brass, the design balances accessibility with refined residential character. Spatial clarity, adaptable furnishings, and wellness-driven details create a dignified environment that evolves gracefully with its occupant.



MATERIAL STRATEGY
A tactile palette of wood, stone, suede, leather, and wool was developed to support aging-in-place and ADA performance without sacrificing warmth or character. Slip-resistant finishes, low-glare surfaces, acoustic textiles, and graspable hardware promote safety and clarity, while layered materials preserve a residential, dignified environment.
The palette reinforces wayfinding and spatial hierarchy through subtle contrast, helping occupants navigate confidently and safely over time.












ADA CONSIDERATIONS

PROGRAMMED FOR DAILY LIFE
Designed as the most lived-in space in the home, the kitchen supports the client’s love of cooking while promoting long-term independence and ease of use. Generous work surfaces, layered lighting, and clear sightlines make daily preparation social and pleasurable, while durable stone, warm wood cabinetry, and soft-touch hardware balance beauty with performance. Thoughtful clearances, accessible storage, and flexible seating allow the space to evolve over time. Creating a kitchen that celebrates craft, hospitality, and longevity.
The home is organized around everyday rhythms, emphasizing intuitive circulation and ease of use. Lighting, storage, and furnishings were tuned for long-term comfort rather than short-term display. Each room balances adaptability with warmth, supporting independence while maintaining a refined residential character.
FURNITURE SELECTIONS

- Curbless shower for roll-in access -Integrated grab bars at toilet and shower
DESIGN THAT AGES WITH YOU





- Adjustable fixtures, shelving & accessories
- Warm, low-glare lighting for long-term visibility


