Skip to main content

2026 Portfolio

Page 1


PORTF LIO O O

JANIYA DANIELS

HELLO,

My name is Janiya Daniels and I’m a Virginia Tech Interior Design student driven by a passion for creating environments that are both imaginative and deeply functional. This portfolio reflects my growth, curiosity, and commitment to user-centered, sustainable design.

I’m dedicated to translating academic insight into design strategies that resonate in the real world. Outside the studio, I’m constantly expanding my skill set by learning new tools, and methods. That drive to expand my skills fuels the work you’ll find here and the designer I’m becoming. I’m eager to bring this mindset into professional settings where thoughtful, impactful design can make a meaningful difference

ALTERED

Fall 2025 | In Progress | Enscape, Revit

Altered is an art gallery designed to recalibrate the viewer’s spatial perception through intentional disruption and realignment. Located in Upstate New York, the gallery embraces a darker palette and subdued lighting, allowing the artwork to become the primary source of visitors focus. As visitors move through the space, the strategic placement of art subtly shifts the expected vanishing point, altering the perceived path and encouraging intuitive exploration. Yet in moments of stillness, when one turns and engages directly with the display, perspective reasserts itself, revealing a quiet return to one-point clarity. The interior does not compete with the art; it dissolves into the background, becoming a framework for perceptual transformation.

Parti Dragrams

Project Goals

Ensure ADA accessibility

Utilize a moveable wall system

Create a flexible space to accommodate diverse art pieces

Incorporate sustainable materials

Strengthen the connection between people and the space

Logo Development

Altered (adjective)

Changed in character or composition, typically in comparatively small but significant way.

Phase 1

Phase 2

Phase 3

Client Profile

Color Scheme

Emma and Andrew Carroway are art collectors committed to supporting contemporary artists. They have purchased a brick row house with the goal of transforming them into a gallery that showcases art and community. They envision a flexible environment for exhibitions and events, to foster connection between artists, visitors, and the surrounding neighborhood.

Gray, black, white, and dark brown form a restrained palette that dissolves into the background, allowing the artwork to become the primary source of orientation.

Space

Process Sketches

Phase 1

Phase 2

Phase 3

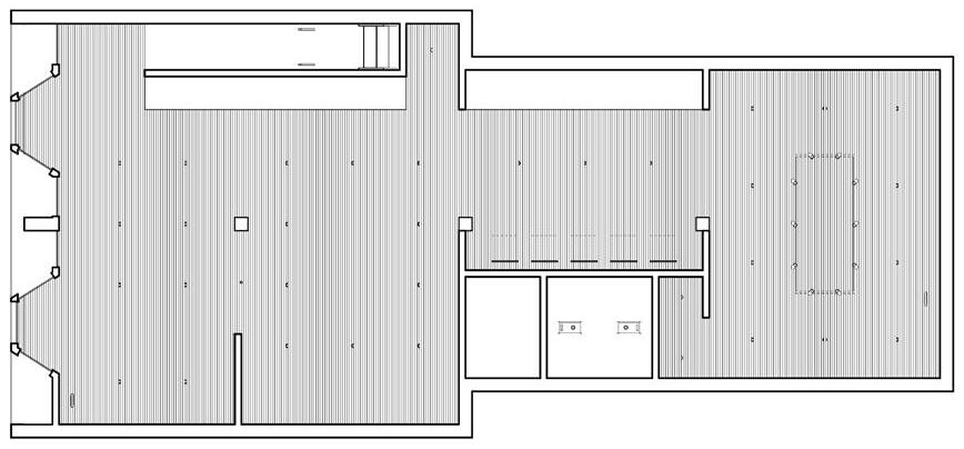
ALTERED | Spatial Planning

Furniture Legend

Moveable Walls

The gallery uses movable wall panels suspended from recessed ceiling tracks. Sized to fit through standard doorways, they are slightly shorter than full height, leaving a subtle gap when installed. In place, the panels define flexible exhibition zones; when stored, they open the gallery into a larger venue for lectures, gatherings, or events.

ALTERED | Gallery Flexibility

Immersive Experience

Altered is envisioned as a dynamic art gallery designed to adapt seamlessly to the needs of artists and audiences.

An immersive digital room expands the gallery’s reach, offering artists the option to rent the entire environment for singular installations or to share the space collaboratively with multiple creators.

This feature establishes Altered as a responsive, inclusive, and innovative platform for contemporary art.

Digital

BITLUME

Spring 2025 | 4 weeks | Enscape, Photoshop, Revit, Rhino

Binary Brews is a growing internet café brand with locations worldwide, including Kyoto, Japan. At the heart of each space is the BitLume light, a signature installation inspired by binary numbers and designed to adapt to its setting. The concept draws from the structure of Japanese addresses, which begin with the postal code before unfolding into town and district. In BitLume, the sequence of 0s and 1s mirrors this order, translating location into light and rhythm. The result is a café where technology and tradition meet, offering visitors an experience that is both precise and cultural.

Conceptual Sketches

BITLUME | Lighting Details

Light Inspiration + Sketches

This distinctive and functional light fixture serves as a centerpiece for the Binary Numbers Internet Cafe, supporting its growing network and embodying its digital theme. In this design, the 0s are represented as acrylic spheres providing an ambient light to deliver ample illumination for the service counter. Meanwhile, the 1s are depicted as recycled solid wood with detachable track lights, used to enhance the presentation of baked goods and spotlight different parts of the service counter.

Technical Characteristics

Dimensions:

Materials: Recycled wood, Recycled aluminum, and acrylic.

Power Supply:

Remote dimmable power supply

CCT CRI

Sustainability

Luminaire designed for disposal/recycling at end-of-life Replaceable LED light source. If one section breaks that individual piece can be replaced.

Orthographic Projection

Pick-Up Shelf
BitLume Light
Bottle Display Fridge
Computer Section

EVERGREEN GENERATIONS

Fall 2024 | 2 weeks | Enscape, Photoshop, Revit

* In collaboration with Ivy Yang

Evergreen Generations is a design that merges the parallel between two generations through nature’s beauty. The space balances a rural past with the urban present, using materiality and spatial experiences to connect community, memory, and a sustainable future. Its forms draw inspiration from the New Jersey state fruit, the blueberry, whose organic geometry becomes a guiding motif. Just as the blueberry embodies resilience and renewal, the design translates its natural rhythm into design, creating spaces that honor heritage while cultivating growth across generations.

Produce Stand Design Evolution

EVERGREEN GENERATIONS | Research & Goals

Project Goals

Ensure ADA accessibility for children and adults

Provide a controlled greenhouse environment

Establish a sanitation and quarantine station

Incorporate antimicrobial materials

Foster meaningful intergenerational engagement

Site Analysis

The site in Piscataway, New Jersey lies within a rapidly urbanizing context where rural land is diminishing. Nearby institutions ranging from daycares to nursing homes home, highlight its potential as a connector between generations.

Impact and Outcome

Elderly:

• Gardening reduces symptoms of depression and anxiety.

• Physical activity helps maintain motor skills and flexibility.

Children:

• Gardening sparks curiosity and imagination.

• Improves the understanding of healthy eating.

Process Sketches

Middle School Daycare Center Nursing Home
Evergreen Generations
Walk Time (Mins.)

Team Roles

All major decisions were made collaboratively, with ongoing feedback, careful discussion, and mutual confirmation throughout the process.

Myself: Managed the Revit file, integrated components into the main model. Led the Photoshop post-production work to refine and finalize the visual presentation.

Ivy: Modeled the wall pattern, tables, and plant holders within Revit. Contributed distinctive design elements that enhanced the spatial concept.

SKILLS & EXPLORATIONS

Fall 2022- 2024 | Digital + Physical Skills

Outside of structured studio work, I dedicate time to expanding my design abilities through independent learning. While these skills were developed on my own, I applied them directly within my studio projects, using each assignment as an opportunity to test new methods and strengthen my craft. This section highlights the studies and experiments that grew from that process, moments where curiosity pushed me to explore new ways of thinking, making, and communicating beyond the expectations of a project brief. These explorations deepen my understanding of how different approaches shape the way I perceive and represent space. Together, they form a parallel thread in my development as a designer: a continuous pursuit of growth driven by initiative, experimentation, and a desire to broaden the range of tools I bring into my work.

Render Enhancement (Photoshop)

Enhance renders through color correction, lighting, and composition refinement.

Model Photo

SKILLS & EXPLORATIONS | Other Works

Sketching (Graphite, Ink)

Develop rapid visual communication and spatial ideation.

Physical Modeling (Basswood, Tissue Paper, Bristol Paper)

Explore form, proportion, and spatial relationships through craft.

Live Edge Collage (Photoshop)

Explore conceptual forms through layered digital composition.

Illustrator (Illustrator, Rhino)

Create clean diagrams and vector-based graphics for presentations.

Thank You

Janiyasarai@vt.edu

linkedin.com/in/janiya-daniels

732.215.6774

Turn static files into dynamic content formats.

Create a flipbook