






![]()







Fall 2024 | Individual | 8 weeks | Revit, Enscape, Photoshop
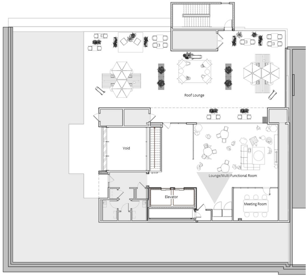
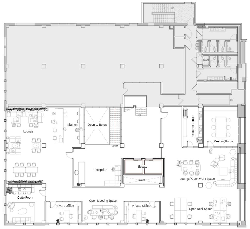
The design for Nautical Horizons embodies the intersection of modern innovation and timeless nautical heritage, creating a space that feels both futuristic and deeply rooted in the elegance of the sea. The color palette, materials, and design elements work in harmony to evoke a sense of stability, serenity, and adventure—qualities inherent to both engineering precision and the expansive possibilities of the ocean.

Nautical Horizons, a premier naval engineering firm, is situated on the top floors of 400 Granby St. The design concept is inspired by the contrast between above and below deck. Below deck, the space features a clear circulation path and incorporates traditional materials, with a ceiling that evokes the atmosphere of a ship’s lower levels. In contrast, above deck embraces modern materials and an expansive open floor plan, designed to mirror the tranquility of nature.


Concept Imagery












• The space needs to be ADA-accessible.
• Needs to have a varity of workspaces.
• Their needs to be a seperation between employees and clients.
• The flex room needs to be a quiet space for users to distance themselves from noise and hold meetings.
• The office needs to fit 50 people comfortably.
• Needs a multi-purpose room that can serve as a large meeting area or a display room for clients to see new products.


Axonometric View


2025 IDEC Competition: A place of intergenerational connectedness and hamory
Fall 2024 | In collaboration with Ivy Yang | 2 weeks | Revit, Enscape, Photoshop
The design for Evergreen Generations is informed by merging the parallel between two generations through nature’s beauty. The space balances a rural past with the urban present through materiality and spatial experiences. Each space acts as a bridge between the community, their past, and a more sustainable future.
I was responsible for the 3D modeling and Rendering. The concept and other aspects of the design were done as a team.

Located in Piscataway, New Jersey, where urbanization is significantly reducing the amount of rural land available, this space is a haven where the elderly and younger generations within the community can reconnect with their past and create lasting memories.








• The space needs to be ADA-accessible for both children and adults.
• All things that certain age groups would touch needed to be within their reach.
• The Greenhouse needs to be temperature controlled and prevent pests.
• Outside plants needs a sanitation station as they could ruin the greenhouse environment if not sanitized.
• The flex room needs to be a quiet space for users to distance themselves from noise and hold meetings.
• The Greenhouse needs to fit 15 people comfortably.
• Must includes easy-to-read signage
• Must use antimicrobial materials to help with cleaning.




Spring 2024 | Individual | 10 weeks | Revit, Enscape, Photoshop
The design for Meanwhile is informed by disrupting the parallel between the past, present, and future through the absence of chronological order. The layout allows us to navigate the currents of time by emerging us from our monochromatic world into one infused with vibrant hues. Each disruption lets us unravel the past, grasp the present, and catch glimpses of the future out of order.


Meanwhile is a timekeeping store located in New York City. This store incorporates AR throughout the space to create a smooth shopping experience and better security. The branding takes inspiration from the disruption part of the design concept. It focuses of a darker colors to enhance the contrast between the dark past/present and a bright future.










This design feature securely showcases high-value products while utilizing augmented reality (AR) to enable shoppers to interact with the items without physically touching them. This innovative approach helps minimize theft and accidental damage. Additionally, it reduces the need for wait times related to product inquiries, as shoppers can use a hologram to explore the product and its various options in real time.



Axonometric View






