Janice Lobo Architecture Portfolio 2023

Page 1

JANICE LOBO

Architecture portfolio 2023

I am an architect dedicated to design and sustainability. My specializations include spatial planning, bioclimatic design, life cycle assessment, green building certification, and project management.

CONTACT

Email: janice.lobo@live.com Mobile: +4917658394651 Address: Rummelsburg, Berlin

2
Portfolio 2023

JANICE FRANCES LOBO

Architectural Designer

EMPLOYMENT

May 2021May 2022

Sept 2018Sept 2020 April 2014Jun 2015

Forschungs-GMBH Wismar [Wismar, Germany] Timber Construction Research Assitant

Wanders Wagner Architects [Dubai, U.A.E.]

Architect HOAI 2-8

Private villa new design, Palm Jumeirah Private villa renovation. Palm Jumeirah Apartment interiors, Burj Khalifa

Wanders Wagner Architects [Dubai, U.A.E.]

Site Architect HOAI 5-9 Dubai design district

Private villa new design, Emirates Hills DuBiotech tower, Dubai science park American school of creative sciences, Al Barsha

EDUCATION

Sept 2020Jun 2022

Jul 2015Jun 2017

Feb 2011Dec 2013

Hochschule Wismar [Wismar, Germany] Master of Architecture

NTNU [Trondheim, Norway] Master of Science in Sustainable Architecture

University of Melbourne [Melbourne, Australia] Bachelor of Environments - Major in Architecture

SKILLS

Languages

[native]

[B2.1]

REFERENCES

Prof. Dipl.-Ing. Martin Wollensak M.Arch Coordinator at Hochschule Wismar

Richard Wagner

Managing Director at Wanders Wagner Architects

3
Portfolio 2023
English
German
Drafting Revit Archicad Autocad Layout Photoshop Illustrator InDesign Simulation MS Excel Revit Rhino 3D Grasshopper Rendering Google Sketchup Enscape
4 Portfolio 2023

CONTENTS

THE REVERSIBLE BUILDING 6

Masters Thesis Berlin, Germany

THE WOMEN’S HOUSE 12 Kaira Looro Architecture Competition Sedhiou, Senegal

UNION CANNING FACTORY 18

Norwegian University of Science and Technology Stavanger, Norway

DUBIOTECH TOWERS 22

Wanders Wagner Architects Dubai, U.A.E.

PALM JUMERIAH 24

Wanders Wagner Architects Dubai, U.A.E.

BURJ KHALIFA APARTMENT INTERIOR RENOVATION 26

Wanders Wagner Architects Dubai, U.A.E.

5
Portfolio 2023

South side: ufer view

The reversible building

Project: Master’s Thesis Project Year: 2021 Hochschule Wismar

The reversible building aims to follow the principles of circular economy. The project is a result of a thorough analysis of the life cycle of materials, principles of designing for adaptability and reversibility, and responding to the urban context.

The building is located in Rummelsburg Berlin, and features an activated ground floor which faces a waterfront promenade. The proximity to Ostkreuz station provides an opportunity to create a mixed use hub in the primarily residential neighbourhood.

The architectural language of circular buildings was considered. The facade is composed of a unitized curtain wall system, with modular panels using glazing or scrap materials..

6
Portfolio 2023Academic project

Hauptstrasse

North side: street view Portfolio 2023Academic project

7 Rummelsburger See
0 30m
Site plan

1 2 3 4 5

Portfolio 2023Academic project

unscrew cladding boards unassemble brackets remove insulation and store in a dry place disassemble timber frame move base plate to new location and reassemble

Adaptability - internal layout

1 2 3 4 5

unmount facade panels from aluminium frame

disassemble hanging components construct floor slab and timber structural frame

Adaptability - external layout

assemble steel hanging components mount unitized facade panels in new location

8

Unitized modular panel

Click in place floor tiles

Vapour barrier

Aluminium plate with under floor heating tubes in heating mat

Expanded polystyrene insulation

Cross laminated floor

Floor structure with cellulose fiber insulation Hanging bracket

1 2 3 4 5 6 7 8

Unitized modular panel

Click in place floor tiles

Vapour barrier

Aluminium plate with under floor heating tubes in heating mat

Cross laminated floor

Expanded polystyrene insulation

Floor structure with cellulose fiber insulation

Expanded polystyrene insulation Waterproof membrane

Concrete foundation slab on grade

Anchor plate

1 2 3 4 5 6 7 8 9 10 11

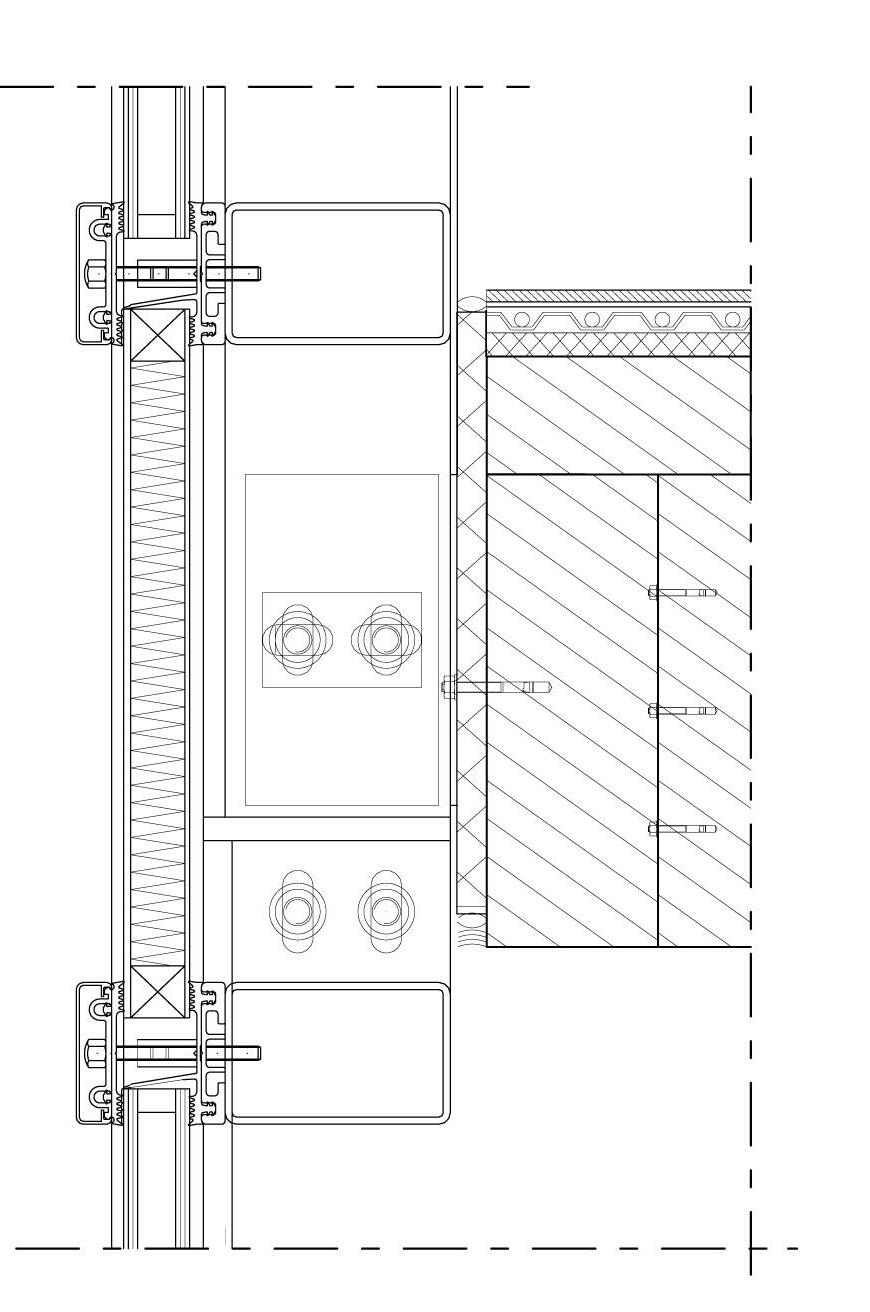
Facade to base 1:10

1 2 3 4 5 6 7 8

1

Academic project

2 3 4 5 6 7 8 9 10 12

11

9
Facade to intermediate floor 1:10 Portfolio 2023 -

Portfolio 2023Academic project

solar thermal collector

district heating and cooling

ground source heat pump

floor heating smart building management system Energy strategy

10

Portfolio 2023Academic project

energy from grid

strategy section

building integrated photovoltaic

green catchment grey water recycling

South elevation

West elevation

11

1. Stage 2. Dialogue space

3. Flexible space

4. Administration 5. Exterior space

0 20m

The women’s house

Project: Kaira Looro Architecture Competition Year: 2021

In collaboration with: Antonia Morales and Debora Strenge

The Women’s House was designed for the Kaira Looro architecture competition. The space provides opportunities for women to organise, support and grow individually, and as part of the community. The project honours the weaving technique from Senegal in flexible, rotatable panels. CO₂ emissions were minimized by using local, natural materials and upcycling waste products from the surrounding areas. The construction systems were designed to be independent from each other to maximize flexibility and allow the project to adapt to a change in function, climate or size.

The design is a result of careful consideration to create a space for and by women, where they can feel inspired, safe and develop as key members of their society. My role focused on the architecture concept development, construction methodology and 3D visualisations.

12
2 3
5 6
1
4
6. Water collection system Site plan Portfolio 2023Academic project

Celebrate vernacular architecture

Change towards an equal community to begin at home

Embrace local traditions

Space organization hierarchy transitions from private to public

Use of local materials: Rosewood

3 4 5 6 7 8 9 10

Circular shapes allows participants to cohere and reflect together

Self-supporting wall: Clay Brick

Honor traditional weaving technique to construct flexible panels

Use upcycling solutions, abandoned tires to build a strong foundation

Roof, walls, and floor designed with independent construction systems to facilitate adaptability

13 Concept diagram 1
2
Portfolio 2023Academic project

+5.92 m

+0.45 m

Portfolio 2023Academic project

1. Thatch roof overhang

2. Cross ventilation

3. Trench to collect + drain water

Rosewood roof structure Clay non load bearing Building elements diagram

Thatched roof

Portfolio 2023Academic project

Rosewood truss floor structure

Gravel bag and tire foundation

15
16
17

Union canning factory

Project: NTNU Master’s Studio Year: 2017

In collaboration with: Claire McConnell, Kristian Boe and Mariya Stoyanova

The canning factory in Stavanger was closed and left empty for 20 years. There was opposition to demolishing it due to the cultural heritage value it held in the neighbourhood. A major renovation and repurposing of the factory was required. The architectural strategy selected was to highlight the old facades and accentuate them by introducing modern extensions mirroring their form. The roof was raised by 2 meters to meet current building guidelines and clad with photovoltaic panels.

The goal of the project was to reach net zero carbon emissions. This was achieved through passive design strategies, careful material selection, and optimised zoning. My role involved the concept design, visual representation and life cycle assessment coordination.

18
Portfolio 2023Academic project
Perspective collage
19
Facades retained for cultural heritage purposes Portfolio 2023Academic project

Roof

UniGlas facade, double glazing, structural glulam frame U-Value: 1.3 W/m²K Thickness: 183 mm

Warehouse floor

Green roof, soil, timber framing, existing floor Thickness: ≈600 mm

Warehouse Floor

Rubber floor, cellulose fiber insulation, timber frame, existing floor U-Value: 0.38 W/m²K Thickness: 102 mm

Warehouse Wall

Existing metal, cellulose fiber insulation, timber frame, plasterboard U-Value: 0.19 W/m²K Thickness: 213 mm

Factory Wall

Existing brick, cellulose fiber insulation, timber frame, plasterboard. U-Value: 0.18 W/m²K Thickness: 750 mm

20
Building element diagram Portfolio 2023Academic project

Factory roof

PV roof tiles, cellulose fiber insulation, timber frame, plasterboard U-Value: 0.086 W/m²K Thickness: 527 mm

Extension roof

Timber cladding, cellulose fiber insulation, timber frame, plasterboard U-Value: 0.086 W/m²K Thickness: 535 mm

Timber Floors

Timber flooring, timber frame, cellulose fiber insulation, plasterboard U-Value: 0.2 W/m²K Thickness: 196 mm, 390 mm (w/ floor heating)

Extension Foundation

Rubber floor, timber frame, cellulose fiber insulation, reinforced concrete strips U-Value : 0.13 W/m²K

Curtain Wall

UniGlas facade, double glazing, structural glulam timber frame U-Value: 1.5 W/m²K Thickness: 174 mm

Ventilated Facade

Pine cladding, air gap, cellulose fiber insulation. timber frame, plasterboard U-Value: 0.18 W/m²K

21
2023 -
Portfolio
Academic project

West Elevation

Dubiotech Towers

Status: Completed Year: 2020

In collaboration with: Wanders Wagner Architects, Kling Consult

Dubiotech towers was originally designed to be the tallest LEED certified project in the Middle East. Due to budgetory constraints, construction halted for 8 years and a team was put together to rezone the towers and redesign the facade panels.

My role was to work in the value engineering team on-site, working on the architectural redesign of the facade, designing the internal partition layout, and preparing drawings for the client brochure.

22
Portfolio 2023Professional project

Zoning diagram

23 Portfolio 2023Professional project Office Research Business Leisure + Conference Green space Site plan

Palm Jumeriah private villa

Status: Under construction Year: 2019

In collaboration with: Wanders Wagner Architects

The aim of the project was to upgrade the villa to existing building code and change the design language from the existing Arabian style to a luxury modern beach house. The client purchased additional land to create an extension. My role in the project was a project architect assessing the damage, coordinating with consultants to develop solutions, preparing the drawings, and negotiating with the authorities for building permissions.

Design solutions included encasing the existing concrete walls with a stone finish to create the desired aesthetic without needing to compromise the structure and horizontal elements were introduced to give the villa an elongated feeling.

24
Portfolio 2023Professional project

Private B+G+2 Villa in Dubai on Palm Jumeirah Frond J Plot 15 Concept Design Presentation May 2012

25 GSPublisherVersion 0.0.100.100
Villa Patrick
INTERNATIONAL CONSULTANCY WANDERS ARCHITECTS FZ LLE DUBAI UAE
GSPublisherVersion 0.0.100.100
INTERNATIONAL CONSULTANCY WANDERS ARCHITECTS DUBAI
Kreuzer
+971 50 2937621
B+ in Palm Frond Concept Presentation May Patrick
Ground floor plan First floor plan 0 10m Portfolio 2023Professional project

0 5m

0 1 2 5 5

Burj Khalifa apartment interior

Status: Completed Year: 2020

In collaboration with: Wanders Wagner Architects, Cherwell

The design brief was to have a playful and open aesthetic. This was achieved using lighting strategies and automation to create different ambiances. Internal walls were removed and an open bathroom concept introduced.

26
2 38 5 2.74 SECTION A SECTION B
The project was specifically challenging due to the strict fire regulations in the tower. A detailed bill of quantities with careful product specification was done. My role was to design, detail and supervise the project to completion. Portfolio 2023Professional project
Internal layout
27
Living room hand drawn sketch Bedroom and open ensuite hand drawn sketch Portfolio 2023Professional project

Portfolio 2023Professional project

False ceiling detail

Shower floor level detail

50 50 10 10

50 50 10 10

50 50 10 10

Flooring connection trim detail

Painted MDF shadow gap Profile colour to match with ceiling

Angle profile light

MDF ceiling

10MM Tempered clear glass door

Silver reflecting surface Porcelain tile Aluminium tile trim (brush finish)

Proposed timber door Wood pattern porcelain tile

Grey lappato porcelain tile

28
29
Site photographs - lighting details Portfolio 2023Professional project

Turn static files into dynamic content formats.

Create a flipbook
Issuu converts static files into: digital portfolios, online yearbooks, online catalogs, digital photo albums and more. Sign up and create your flipbook.