Portfólio Sara Jane - 2024

Page 1

portfólio.

2022-2024

SARA JANE

ARQUITETURA,INTERIORESEDESIGN.

02

quem sou eu?

Oie, meu nome é Sara Jane, tenho 24 anos (1999) sou arquiteta e urbanista há dois anos e artista 3d há três Minha maior experiência na área foi de forma autônoma durante três anos na Oca Arquitetura (@ocarquitetura ) primeiro como artista 3d trabalhando com diversos escritórios e arquitetos e posteriormente como arquiteta e designer de interiores dos meus próprios projetos.

Minha principal área de domínio é trabalhar com o criativo e acompanhamento de obras! Além disso tenho experiência em projetos legais e detalhamento de interiores.

Busco me estabelecer em um escritório enriquecedor, para colaborar com equipe, engrandecer repertório e contribuir com processos criativos, comunicação, detalhamentos executivos e obra.

03
04

EXPERIÊNCIA

Proex Engenharia

Oca Arquitetura 2021 2022 - atual estágio fundadora, arquiteta e ceo. acompanhamento de obras, criação de interiores. Criação de projeto, renderização, detalhamentos, comunicação, obra e gerência.

EDUCAÇÃO

UNITRI

janeiro 2017

\ janeiro 2022 formação em arquitetura e urbanismo

IDIOMAS

Inglês

SKILLS

Renderização Proatividade Detalhista Criatividade Determinação

Aprendizagem rápida Escuta ativa

Prestativa Comprometida

SOFTWARES

Autocad

Sketch Up

V-ray Photoshop

Archicad

Lumion Layout

05
06

INDÍCEDE PROJETOS

APTOFREIJÓ

PROJETORESIDENCIALAUTORAL. ANO:2023

SOFTWARES:ARCHICAD,SKETCHUP,LAYOUT, VRAYEPHOTOSHOP

CASAJF

PROJETORESIDENCIALAUTORAL. ANO:2023

SOFTWARES:ARCHICAD,SKETCHUP,LAYOUT, VRAYEPHOTOSHOP

página08

página14

PROJETORESIDENCIALAUTORAL. ANO:2024

SOFTWARES:ARCHICAD,SKETCHUP,LAYOUT, VRAYEPHOTOSHOP

APTOCAPOTE CONECTA

PROJETOCOMERCIALAUTORAL. ANO:2023

SOFTWARES:AUTOCAD,SKETCHUP,VRAYE PHOTOSHOP

página20

página26

07

APTOFREIJÓ

01.

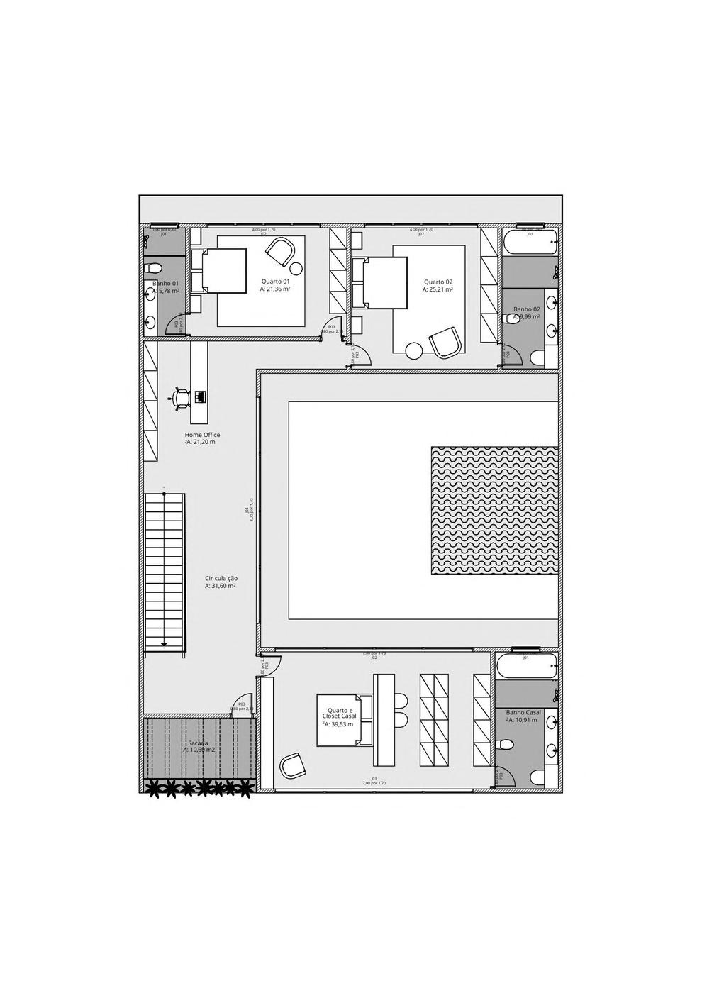
O apto freijó é um apartamento de 2 quartos, onde um deles foi transformado em home office. A ideia era criar espaços simples e acolhedores. A escolha de cores que abraçam e convidam faz o conjunto com a funcionalidade e organização.

Outro ponto importante foram as texturas utilizadas. Elas estão presentes em todos os ambientes, sempre buscando algo que remetesse ao natural, trouxesse elegância e aconchego.

PROJETORESIDENCIALAUTORAL. ANO:2023

SOFTWARES:ARCHICAD,SKETCH UP,LAYOUT,VRAYEPHOTOSHOP

08
09

Quartzo cinza

Solar Viga -Portobello

Planta baixa - layout

10
Mdf - Cappucino Guararapes
11
12
13

CASAJF

02.

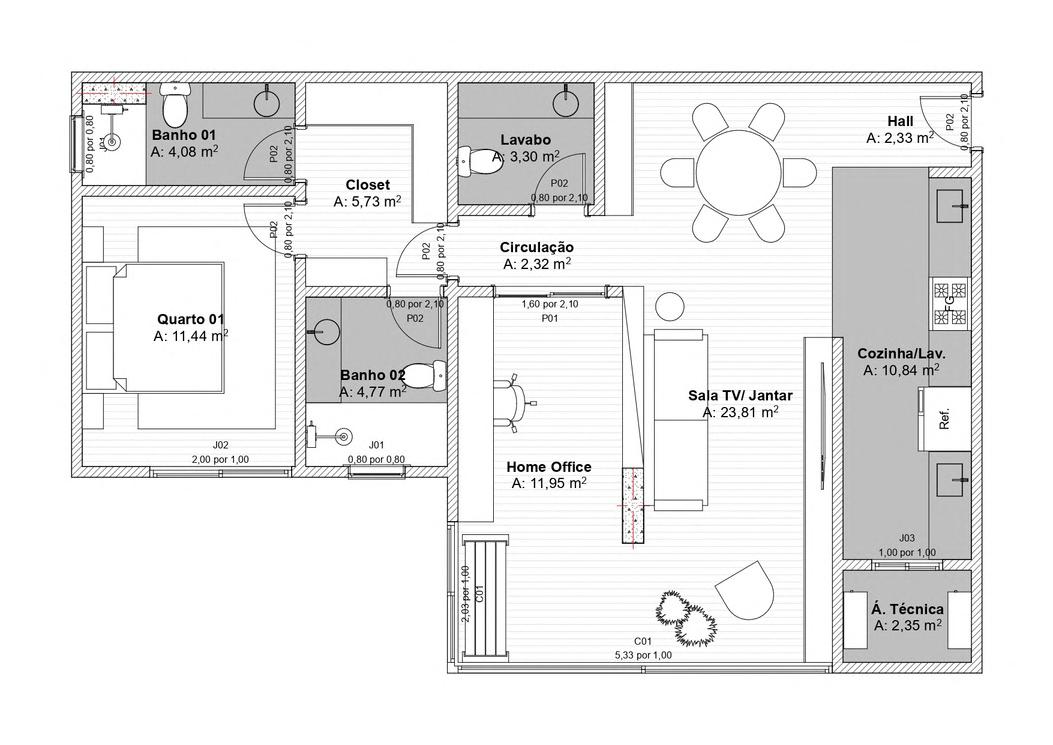
A casa jf é uma residência de 550 metros quadrados com terreno plano Possui 3 suítes e área social extensa.

Nela trabalhei uma arquitetura pensada na apreciação dos momentos e ambientes, criando espaços integrados cada um com a sua funcionalidade e uso.

Os tons de madeira escuros, concreto, e pontos de cor mais alegres foram escolhidas para compor a materialidade e paleta de cores da residência, trazendo um ar sofisticado e espirituoso ao mesmo tempo.

PROJETORESIDENCIALAUTORAL.

ANO:2023

SOFTWARES:ARCHICAD,SKETCH UP,LAYOUT,VRAYEPHOTOSHOP

14
15
16
-
Planta
baixa térreo
layout
17
18
Planta baixa 1° pavimento - layout
19

APTOCAPOTE

03.

O apartamento Capote é um estudo de interiores que realizei em uma das plantas do empreendimento da Idea! Zarvos, o edifício Capote 210, em São Paulo - SP.

A escolha foi brincar com o a criatividade ao projetar espaços com uma cara jovem e extrovertida.

Mesclando materiais neutros e coloridos criando um contraste interessante. Além de tudo pensar em um espaço que mesmo pequeno (55m²) pudesse conter ambientes e usos muito bem aproveitados.

PROJETORESIDENCIALAUTORAL. ANO:2024

SOFTWARES:ARCHICAD,SKETCH UP,LAYOUT,VRAYEPHOTOSHOP

20
21

Planta baixa - layout

22
Granito - Bege Bahia Ladrilho - Stone Goiaba/Marrom Mdf - Nogal Guararapes
23
24
25

ESCRITÓRIOCONECTA

04.

O escritório da Conecta Imobiliária tem 70m² e precisou ser desenvolvido muito rapidamente Tínhamos 2 meses da criação até a entrega final com todos os detalhamentos.

A ideia era criar um espaço elegante e que passasse confiança para os clientes da imobiliária

A paleta de cores escuras já tinha sido pré escolhida seguindo a logo da marca.

O principal ponto foi o detalhamento: deixar tudo o mais confortável e funcional possível.

PROJETORESIDENCIALAUTORAL. ANO:2023

SOFTWARES:ARCHICAD,SKETCH UP,LAYOUT,VRAYEPHOTOSHOP

26
27
30
31

(34)

insta; @janevsara

@asarajanev@gmail.com

CONTATO
9
96772730

Turn static files into dynamic content formats.

Create a flipbook
Issuu converts static files into: digital portfolios, online yearbooks, online catalogs, digital photo albums and more. Sign up and create your flipbook.
Portfólio Sara Jane - 2024 by - Issuu