
EXTERIOR ENTRANCE
DIMENSIONAL BUILD OUT
Wood slat introduction that match the wood finish at interiors. The width of the wood slats to be about 30” wide and interior area to be 10” deep. This dimensional build out at interior cabinet to be red finish that is inner lit at edging.
LIGHTING
Up and Down LED Outdoor Wall Light shown at both sides of entry. (2) Can Lights are shown above door entry. 1 light above menu boards.
SIGNAGE
Second exterior signage at left side of entry (south side.) Signage to be channel letters, back lit to match signage at front of building.
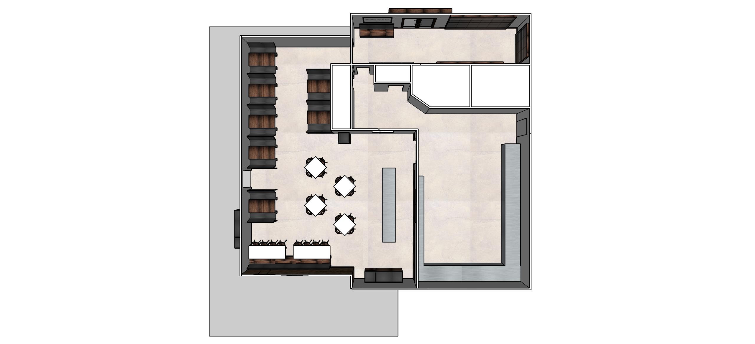
EXTERIOR MENU BOARDS
Exterior menu boards noted to right of entrance, (north side.) This area allows customers to view menus but are out of flow of traffic into MTP. Menu board layouts will be designed by 10/10.

AND DOWN LED
OUTDOOR WALL LIGHT
MADE BY KICHLER
Textured Black Finish
PURCHASE: Y LIGHTING
www.ylighting.com/up-and-down-led-outdoor-wall-light-by-kichler



RETAIL WOOD SLAT WALL.
(3) 48"W PLANK SYSTEM APPLIED TO EXISTING WALL SURFACE.
HORIZONTAL PLACEMENT, PLANK SIZE: 48"W x 4"H
RETAIL WOOD SLAT WALL. (3) 48"W PLANK SYSTEM APPLIED TO EXISTING WALL SURFACE.
HORIZONTAL PLACEMENT, PLANK SIZE: 48"W x 4"H
DOORS PAINTED DARK GRAY, EGGSHELL FINISH.
PAINT COLOR TO MATCH
C70/M64/Y60/K54
VINYL DOOR GRAPHIC APPLIED TO FIRST SURFACE. GRAPHIC PLACEMENT CENTERED ON DOOR.
DOORS PAINTED DARK GRAY, EGGSHELL FINISH. PAINT COLOR TO MATCH
C70/M64/Y60/K54
VINYL DOOR GRAPHIC APPLIED TO FIRST SURFACE. GRAPHIC PLACEMENT CENTERED ON DOOR.
RETAIL WOOD SLAT WALL. (3) 24"W PLANK SYSTEM APPLIED TO EXISTING WALL SURFACE.
HORIZONTAL PLACEMENT, PLANK SIZE: 24"W x 4"H


























WOOD PLANK WALL, HERRINGBONE PATTERN, DARK WOOD FINISH
PROPOSED PLANK SIZE: 20"W x 8"H
LOGO WOOD BURNED/ BRANDED DESIGN APPROACH













Updates made:
Thicken signage weight.
Note: Final signage size tbd. Need to field verify enclosed patio and location once patio is built



CHANNEL
CHANNEL
LETTER SIGNAGE:
RED GLOSS TOP SURFACE FINISH WITH RED EDGING THAT IS BACK LIT
LETTER SIGNAGE: RED GLOSS TOP SURFACE FINISH WITH RED EDGING THAT IS BACK LIT
NOTE: FINAL SIGNAGE SIZE TBD. NEED TO FIELD VERIFY ENCLOSED PATIO AND LOCATION ONCE PATIO IS BUILT
NOTE: FINAL SIGNAGE SIZE TBD. NEED TO FIELD VERIFY ENCLOSED PATIO AND LOCATION ONCE PATIO IS BUILT
MOTHER TUCKER’S
MOTHER TUCKER’S
MOTHER TUCKER’S
MOTHER TUCKER’S



















