Portfolio 2025

Page 1


HAOYUAN WANG'S

PERSONAL

Academic Project / Competition 01

COMMUNITY-MORE

Residential & Community Center

Cornell University / Baltimore, MD

Instructor: Caroline O'Donnell

Team Members: Haoyuan Wang / 1st Prize

HAOYUAN WANG / PERSONAL PORTFOLIO

Site

Hollins Market, a historic neighborhood in Baltimore, has been experiencing a gradual decline. In response, local residents are eager for revitalization. To support this effort, a local developer has proposed a distinctive new apartment designed to attract young professionals who commute to Downtown. The influx of these new residents is expected to contribute to the revitalization of the local economy.

Brief

This innovative 86-unit apartment complex, integrating educational and retail spaces, is designed to be universally accessible. Its expansive open terraces blend seamlessly into the city’s public spaces, supporting community activities such as festivals, exhibitions, and farmers' markets.

An open corridor wraps around the façade, connecting shared areas and creating unified spaces for entertainment and leisure amidst the private residences. Additionally, an external perforated skin promotes passive ventilation and offers a flexible shading solution, especially beneficial during hot summers.

Distinctive in its use of contemporary materials, vibrant colors, and modern design elements, the building symbolizes neighborhood transformation. It embodies communityoriented living, promoting increased resident interaction and contributing positively to a revitalized, vibrant Baltimore.

EXTRUSION OF RESIDENTIAL MASSING
OPEN CORRIDORS WRAPPING UP TO THE TOP
TOWER AND CANTILEVER FOR MORE UNITS
CENTRAL COURTYARD AND RETAIL SPACE
FROM CITY STREET

2nd Floor Plan - Community Center

Gallery

A2: Classroom

A3: Welcome Hall

A4: Conference Room

A5: Lecture Hall

B1: Studio

B2: One-Bedroom

B3: Egress Stair

C1: Main Entrance Stair (W)

C2: Side Entrance Stair (E)

A1:
HAOYUAN WANG / PERSONAL PORTFOLIO

ZHONGSHAN WATERTOWN

Mixed-use Masterplan (2023.3~2024.6 )

Laguarda.Low Architects / Zhongshan, China

Responsibility: Residential Villa Design, Performance Center Design, 3D Modeling, Rendering, CAD Drawing, Research

Worked Phases: Conceptial Design > Schematic Design > Design Development > Construction Documents

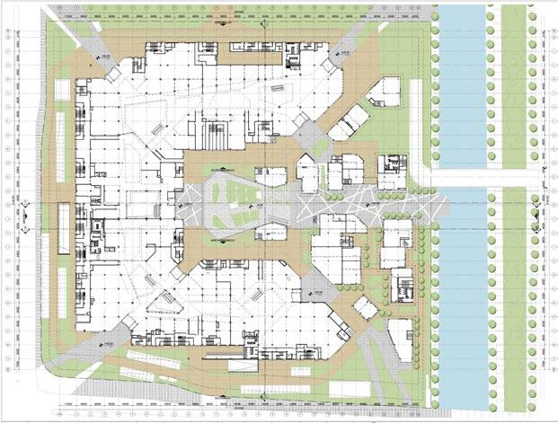
This ongoing project occupies a prime location within Zhongshan City's latest planning on Ma'an Island. It features a traditionally inspired retail village, a residential villa community, a shopping center, a museum, and a hotel—all seamlessly connected by the water.

This integration harmonizes tradition and modernity, as well as nature and architecture, shaping a visionary image of Zhongshan City's bright future.

< Water-side Allyway
HAOYUAN WANG / PERSONAL PORTFOLIO

Onging construction, 2025.2.24

< Performance Center

An iconic performance center at the east entrance

Each residential villa embraces a clean, geometric design using concrete, light wood, and linear grey brick. Lush semi-private gardens enhance the tranquility, creating a seamless blend of nature and contemporary architecture.

< Residential Villa
Leisure Street
Musuem

AEON MALL

Shopping Center (2023.9 ~ 2024.12 )

Laguarda.Low Architects / Kunshan, China

Responsibility: Main facade design, digital modeling, rendering, CAD drawing, 3D-printing

Worked Phases: Conceptial Design > Schematic Design > Design Development

A new shopping center is planned for Kunshan, China, featuring a distinctive C-shaped, terraced design reminiscent of hills. At its heart lies an inviting sunken plaza, enhancing the sense of openness and connection. Emphasizing an eco-friendly atmosphere, the design incorporates trees, bushes, lawns, and water features. Each terraces provides outdoor dining and entertainment. The rooftop is designed for activity, featuring a scooting area and a soccer court. With its diverse programs, the development aims to attract a wide range of visitors, creating a vibrant and dynamic destination

3D Panel Design - Main Facade
Kits of Part / Facade Types
Type A. White Terracotta + Wood Frame

Professional Project 03

MINING PITS RE-BIRTH

Mixed Use (2025.2 ~ )

Laguarda.Low Architects / Maoming, China

Responsibility: Research, Digital modeling, Rendering, Scheme D design

Worked Phases: Conceptual Design

In Maoming, China, a former shell oil mining pit is set to be transformed into a vibrant waterfront mixeduse development. The project will feature retail, dining, a cultural center, residential spaces, and more, creating a dynamic hub that revitalizes the area.

Multiple schemes have been explored, each offering a unique vision for the site. Here are some early-stage design concepts that showcase the project's potential.

Conceptual Scheme B, Waterside Street View (Above) (left) Conceptual Scheme D, Masterplan Sketch

SKYLINE

Mixed

Use (2023.11 ~ 2024.9)

Laguarda.Low Architects / Yerevan, Armenia

Responsibility: Tower facade design, Landscape design, 3D Modeling, CAD Drawing, Rendering

Worked Phases: Schematic Design

In the historic center of Yerevan, a Soviet-era hospital is set for renovation, with its surrounding site being transformed into a high-end development. The project features six residential towers, six office buildings, a shopping center, and a public library.

Drawing inspiration from the classic soviet architecture, we reinvents it into a younger, more vibrant character, to create a lively and attractive space for the old and new residents.

BREWSCAPE

BEAR SPA & BREWERY

Personal / Iceland

Welcome to the Icelandic Beer Spa, a unique retreat in Iceland’s Mývatn area that blends the country’s heritage and geothermal wonders with the therapeutic benefits of beer. Designed to harmonize with the natural landscape, the spa offers breathtaking views of mountains, Skútustaðagígar Craters, and the Northern Lights.

The architectural centerpiece is a striking glass tower embedded within a sloping turf roof, housing a bar and brewery. With expansive windows and ambient lighting, the tower provides panoramic views while showcasing the brewing process. Guests can savor craft beers from Sel Hótel, immersing themselves in both the flavors and the scenery.

At night, the tower emits a warm glow, seamlessly blending modernity with tradition. Alongside its sustainable turf roof, this innovative structure reflects the spa’s commitment to eco-conscious design, creating a one-of-a-kind destination for relaxation and beer appreciation amidst Iceland’s extraordinary landscapes.

Souvenir Store & Cafe

Academic Project 02

Inter-Woven Material Recycle Research + Pavilion Design

Cornell University / Ithaca, NY

Instructor: Felix Heisel

Team Members:

Haoyuan Wang, Ohjin Ju, Somin Lee, Tongbi Li

Traditionally, a balcony serves as a spatial medium for observing the exterior from within. Challenging this notion, this balcony folly reimagines the relationship between interior and exterior by reversing the direction of visual interaction—allowing one to observe the interior from the exterior through each balcony.

Here, "interior" extends beyond enclosed spaces to reveal the hidden materiality of buildings. This approach embraces material reuse by repeating interwoven typologies of wood, concrete, and steel—structural elements typically concealed within architecture. By exposing these materials outward, the folly transforms them into a series of balconies, where materials and viewpoints interlace to create a dynamic, layered visual experience.

2.5D CAIRO B.Arch THESIS "Landscape Urbanism in Egypt"

Syracuse University / Cairo, Egypt

Instructors: Theodore Brown / Julia Czerniak / Emily Pellicano

Team Members: Haoyuan Wang, Xinhui Zhang

Urbanization in Cairo has increasingly encroached upon agricultural land, forcing residents to abandon farming in favor of new commercial and residential developments. However, urban dwellers should not have to choose between the benefits of high-density metropolitan living and the traditions of lowdensity farming communities.

We propose a "thick-2D" architectural approach that integrates commercial, residential, and agricultural activities within Cairo’s evolving landscape. This concept builds upon the work of architect and urbanist Stan Allen, who introduced the term “thick-2D” to describe the emergence of mat-building strategies in the late 20th century. While traditionally associated with Western cities, our project reinterprets mat urbanism within Cairo’s unique regional context, positioning the city as a test site for this innovative architectural model.

Landscape Urbanism Analysis - 2.5D Design Principles

I. SCALE THRESHOLD
II. PROGRAM DIVERSITY
III. CONNECTIVITIES
IV. FLATNESS / NON-HIERARCHY
V. HORIZONTALITY
VI. NON-STACKING

OVERALL SITE PLAN

The site located on a small village on the west bank of Niro River, southwest of Cairo; a vast expanding settlements, which the farmlands are graudally wiped out. The project aimed on densify this village in a more sustainable, efficient way through the 2.5D design principle, construct a multiple functional expandable megastructure, integrated with residential, farming, commercial and religious components.

CITIZEN SQUARE VERTICAL GARDEN
COURTYARD HOUSES
MOSQUE BAZAAR
PUBLIC PLAZA
VERTICAL FARMING
HAOYUAN WANG / PERSONAL PORTFOLIO

CO . LIVE ! Co-living Apartment for Online Streamer

Syracuse University / New York, NY

Instructor: Macos Parga

Group Members: Haoyuan Wang, Shengwei Liu

This co-living and co-working building is designed for five internet influencers and their families, integrating both private and public spaces to support their unique lifestyle. The upper three floors house private co-living spaces, while the lower four floors serve as a dynamic co-working hub, featuring performance spaces, stages, retail areas, showcases, and an auditorium—allowing influencers to engage with their followers in person.

The design envisions a future where living and working coexist seamlessly, fostering a tightly connected social circle among residents. It also reimagines the interaction between internet celebrities and their audiences, bridging the gap between virtual and realworld engagement. By hosting diverse activities and live experiences, the space not only enhances fan connections but also helps influencers expand their reach and grow their personal brands.

As a global hub, Manhattan attracts diverse communities and activities.

Located at Lexington Ave and 102nd St, this corner-lot project features two open facades, fostering public interaction, while the other two ensure privacy for a courtyard and balconies. The design also maximizes natural light, keeping living spaces bright throughout the day.

Diagram

Co-working office (Up) / Shared Living Space (Below)

HAOYUAN WANG / PERSONAL PORTFOLIO

DUOMO

Modern Arch School + Italian Typologies

Syracuse Univresity / Florence, Italy

Instructor: David Shanks

Group Members: Cabrio Wang, Haoyuan Wang

A new architecture school is proposed in Florence’s historic city center, adjacent to SU Florence’s Villa Rosa, a century-old Neoclassical mansion. Inspired by the typology of traditional Italian architecture, the design merges the structural openness of an amphitheater with the symbolic presence of a classical dome—creating a multi-layered, transparent space that stands as a contemporary landmark, much like Duomo in old Florence.

The building is designed to be open and inviting while maintaining a balance between public access and academic focus. A dedicated spiral ramp guides visitors around the structure without disrupting students, leading to the rooftop where private and public spaces converge. This rooftop exhibition area fosters interaction and communication, enriching both the academic and cultural experience.

Site

This new building, positioned beside Villa Rosa, harmonizes with the traditional Italian architecture while introducing a modern touch to the historic setting. Despite the limited space due to surrounding structures, its location between two streets enhances opportunities for public engagement. Additionally, the nearby public square park—a popular local gathering spot—has the potential to draw more visitors to the building, further integrating it into the community.

HAOYUAN WANG / PERSONAL PORTFOLIO

Amphitheatre Type Collection

Amphitheatre Typology Analysis Dome Typology Analysis

Primary Volumn

In general, an amphitheater’s essential volume is a bucket shape space with an oval stage in the center, with the surrounding auditorium gradually lowering toward the level of stages.

Viewing Platform

The auditorium provides a parametric view of the stages that any position has an equally good view. It could housing more than sixty thousand people.

Circulation

The circulations run around the buildings’ circumference, providing views of the city, connects every part of the building through corridors. Staircases vertically access all floors and platforms.

Secondary Volumns

The performance is happening on the stage.

Below the auditorium, other programs like food courts, entertainments, and leisure areas are provided to serve the audience, somehow similar to today’s shopping mall.

Opening

The groundfloor is opening in 360 degrees without any restricted entrance, over a hundred portal welcoming any people to enter, as a completely public building.

Structure System

Hundreds of walls extended radially to support the entire structure, including horizontal floor slab, auditorium, and the outer walls.

A Propaganda Machine

Domes have a highly decorated topping to increase their heights as a symbol of their significance. Dome is a propaganda machine to show off its hierarchy to other modest buildings.

Double-shell Dome

A tendency in history is that domes are continuously turning higher, using more complicated structures, like a double-shell dome, that it’s no longer a simple volume.

Interlayer

In a double-shell dome, the space between the outer and inner dome gradually turning from useless to have service programs like circulation or engineering uses.

Domed Space

The domed space has the power to attract all the views from the visitors, which says a spiritual importance of such a space.

Centralized Space

Inside a domed building, the domed space is always the definite central space, and people tend to walk toward such an area. Anything placed directly under the dome would be the most important in this building.

Hierarchatic Buildings

In a medieval town, the doomed building, usually a church, show off the authority of religion and the physical center of the town. Space under the dome is significant spiritually and physically.

A Propaganda Machine

We aims to significant the existence of the institute, attracting local people, also as a symbol towards the future, so it needs to broadcast itself, as a domed buildings did in traditional Italian towns.

An Extended Amphitheatre

Using the baisc form of the Amphitheater, but extracted it into a much higher shape and gradually decreasing in diameter to fulfill our needs.

Layering into 10 Floors

Divides such form into ten floors to create a basic layering system. Notice that the internal void is bigger on its upper part, opposite to the entire form.

Divided into mutiple program

Transfer each layer’s complete circular volumes into a more fragmented one due to each programs’ need in space. Three vertical circulations are placed between the programs.

Rotating Public Ramp

Learning from the spiral stair inside a double-shell dome, added a spiral ramp around the entire structure as public circulation, it is the extension of pedestrian street.

Structure System

Similar to Amphitheater, the design using over through walls to support horizontal floors but decrease the number of walls into three piers of extremely thick walls as the main supporting system.

Section A (North)
Section B (East)
HAOYUAN WANG / PERSONAL PORTFOLIO
HAOYUAN WANG / PERSONAL PORTFOLIO

Turn static files into dynamic content formats.

Create a flipbook
Issuu converts static files into: digital portfolios, online yearbooks, online catalogs, digital photo albums and more. Sign up and create your flipbook.
Portfolio 2025 by Haoyuan Wang - Issuu