PORTFOLIO_JAEYU KIM_

Page 1


JUXTAPOSITION

Juxtaposition in architecture represents the deliberate integration of contrasting elements, merging science and art, functionality and aesthetics, simplicity and complexity, and the coexistence of past and present. This interplay ensures that no single aspect dominates, fostering a harmonious architectural language where differing values coexist and enrich one another. The careful balance of these dualities allows architecture to remain both rooted in tradition and open to transformation, evolving alongside cultural, environmental, and technological shifts.

As design methodologies advance, they reshape traditional practices through the incorporation of emerging technologies, computational tools, material innovations, and cross-disciplinary research. This approach respects historical precedents, aligns with contemporary spatial and environmental needs, and envisions future-oriented design strategies. By navigating the intersection of old and new, architects can develop contextually responsive solutions that honor the past while embracing progress.

This commitment to juxtaposition as a design philosophy drives both experimental innovation and the preservation of architectural heritage. Architecture, in this context, becomes a continuous dialogue between tradition and modernity, allowing for the coexistence of diverse influences that shape the built environment. Through this nuanced approach, architects contribute to a broader global discourse, fostering a more adaptive, sustainable, and meaningful architectural future.

jk4668@columbia.edu

True Public Housing

In-Between Spacce, Public and Private 2023 Fall

Adaptive Archive for Architecture Building on Building 2024 Fall

Artificial Forest Wild / Willing: The New Urban Ecology 2023 Spring

Excess Stone on Wall Street

Reimagining Over-Engineered Stone Building 2022 Fall

Basics Office Building Architectural Practice, Liso Architects 2021 ~ 2022

Great Falls Green Center

Enclosure_Sawtooth Roof System Detail 2023 Spring

True-Public Housing 01

In-Between Space Between Public and Private

Columbia University GSAPP, Core 3 Studio 2023. 09 ~ 2023.12

Type : Architecture Design

Instructor : Prof. Christopher Leong Team Academic Project with Seonghak Lee

The New York City Housing Authority (NYCHA) has faced financial challenges due to federal budget cuts since the 1970s and 1980s, leading to an increasing reliance on public-private partnerships. In response, redevelopment plans have been proposed to transform Fulton and Elliott-Chelsea Houses into a mixed-use complex, raising concerns about resident displacement and the preservation of affordable housing.

As an alternative, a 148-unit public housing project in West Harlem has been proposed, emphasizing community-oriented living and shared spaces while maintaining the integrity of public housing. This vision aims to create a more inclusive and accessible urban environment that prioritizes public interests over privatization.

The design philosophy, “Sensing Each Other,” envisions compact yet expandable living spaces with in-between communal areas to foster connectivity and meaningful social interactions within New York City’s dense urban fabric. The project also incorporates glass facades to maximize daylight, enhance openness, and facilitate visual connections among residents.

Main Image: Model PhotWo, Bottom Left: Site Plan, Right: Model Photo

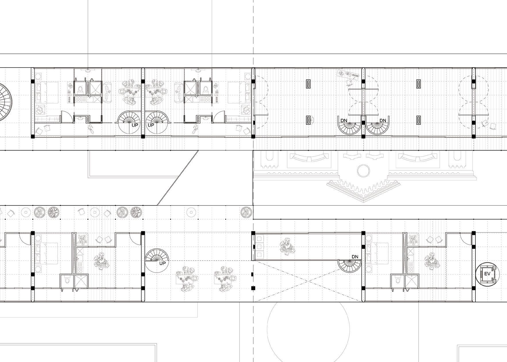
While maintaining the form of two banal long massings facing each other, the structural strategy involves sectional shifting to maximize porosity, allowing residents to share common spaces to the fullest extent possible. At the same time, this structural strategy completely clears the ground plan at a height of three floors, creating a program-agnostic public space

Two Massing: Public and Private

Structural Strategy_Maximizing Porosity: While preserving the basic form of two parallel massings facing each other, the structural approach introduces sectional shifts to enhance porosity, ensuring that shared spaces are fully accessible to residents. Simultaneously, this strategy elevates the structure, clearing the ground level up to three floors, resulting in a program-agnostic public space that remains open and adaptable for various communal uses.

Program-Agnostic True Public Space: The fully open ground floor and underground levels serve as architecturally neutral spaces, designed without predetermined functions. This program-agnostic environment fosters adaptability, allowing the community to shape its use organically. As a True Public Space, it remains accessible to all neighbors and accommodates a wide range of activities, from neighborhood festivals and after-school programs to polling stations, exhibitions, and other communal gatherings.

Top Left: Structural Model, Bottom: Ground Level Rendering
Existing Building from Facade to Paving

Units with Four Different In-Between Space: Sensing Each Other

'True-Public Housing' units envisions compact yet expandable living spaces with four different in-between space, promoting connectivity and meaningful interactions among residents. The varied scale of these in-between spaces enhances porosity, encouraging creative activities and interaction between residents and the public.

Adaptive Archive for Architecture 02

Building on Building

Columbia University GSAPPP, ADV 5 2024. 09 ~ 2024.12

Type : Architecture Design

Instructor : Prof. Wonne Ickx

Team Academic Project with Flora Ng

"An Adaptive Archive" explores the evolving relationship between museums, archives, and architecturew. Historically, European museums displayed their entire collections, but by the late 19th century, a division emerged between public and private collections. Today, museums struggle with storage constraints, often resorting to offsite facilities that separate objects from public engagement.

The project proposes a new architectural approach that makes archives more visible and accessible, integrating public circulation within storage spaces rather than concealing them. Through a series of gestural interventions, such as "Drawer and Display" systems, the design fosters interaction between the stored collections and visitors, offering a layered experience of history and preservation.

By embracing the reuse and transformation of existing buildings, the project aligns with the idea that architecture outlives its original function, continuously adapting over time. Ultimately, "An Adaptive Archive" proposes an alternative to traditional museum storage by integrating archives into the urban environment, making them part of the everyday experience rather than hidden repositories.

Main Image: Exterior Render, Bottom Left: Site Plan, Right: Model Photo

The expansion of an adaptive archive integrates circulation, research, and public engagement. A new extension with vertical circulation connects research spaces, while an "in-between space" bridges archives and public areas. The ground floor activates the site with a restoration lab and exhibition hall, fostering interaction between visitors and archival processes.

Longitudinal Section

The In-Between Space functions not only as a horizontal circulation but also as a research hub, library, and public space, allowing visitors to demystify the Archive. Meanwhile, the vertical circulation plays both a functional and symbolic role, enhancing openness, connectivity, and adaptability within the historically layered architectural context.

Virtical Circulation in In-Between Space

The main lobby acts as a welcoming threshold, seamlessly connecting visitors to the archive and public spaces. It facilitates circulation while offering gathering areas. The exhibition space is designed for flexibility, showcasing archived materials with transparent and adaptable displays, ensuring accessibility and engagement with the archive’s contents.

Top: Main Lobby from Second Floor, Bottom: Exhibition Space for Architecture Archive

1. Existing Brick Wall a. Brick veneer b. Air Cavity c. Weather Resistant Membrane (WRB) d. Insulation e. Concrete wall f. Vapor Varrier g. Gypsum board

2. Exterior Glass Joint a. Copper Flasing b. 1/4" Stainless Hardware with Sealant c. Double glazing glass d. 1/4" Stainless Hardware with Sealant e. 1/4" Stainless L bracket

3. Extension Roof Slab a. Floor finish b. Waterproofing membrane c. Insulation d. Concrete e. Paint

4. Inside Window a. Brick Tile b. Window Frame c. Weather Resistant Membrane (WRB) d. Insulation e. Concrete f. Gypsum Board

5. Interior Glass Joint a. Sheating b. 1/4" Stainless L bracket c. 1/4" Stainless Hardware with Sealant d. Double glazing glass e. 1/4" Stainless Hardware

6. Slab System a. Raised access floor tile b. Pedestal c. Ventilation system

7. Foundation Slab Joint a. Extension Foundation Slab b. Joint c. Existing Foundation slab

Detaill Section
North 2nd Floor In-Between Space
North 3rd Floor In-Between Space

Artificial Forest 03

Wild / Willing: The New Urban Ecology

Columbia University GSAPP, ADV 4 Studio 2024. 01 ~ 2024.05

Type : Architecture Design

Instructor : Prof. Mimi Hoang

Team Academic Project with Thomas Gomez

The “Artificial Forest” project delves into the intersection of architecture and nature, highlighting the dynamic relationship between humanmade structures and untamed landscapes: a permanent “wild” forest and a managed “willed” sapling forest dedicated to urban tree farming. This initiative aims to mitigate the heat island effect, while simultaneously enriching the local ecosystem on reclaimed land.

In partnership with organizations such as the Sierra Club, Tree Farm, and Forest School, the project integrates expertise in conservation, forest health, and biodiversity education. Educational space for children and community engagement are central to its mission, with public exhibitions and interactive educational programs encouraging active participation and awareness.

By employing the Miyawaki Method—a proven technique for rapid forest growth—the design includes dedicated educational spaces within the train shed. These spaces serve as a bridge, connecting children and the wider community to the ecological cycles and life processes of the forest, fostering a deeper understanding of and connection to the natural world.

Main Image: Concept Sketch with Shed, Top: Site Photo, Bottom Left: Site Plan, Bottom Right: Model Photo

A categorized list of street plants commonly found in New York City and New Jersey, including both trees and shrubs. This information is useful for urban landscaping and street greening initiatives, helping to determine appropriate plant selections based on growth timelines.

Tree Migration to Heet Island Regions: This train shed historically served as a point of immigration from New York City to other locations and vice versa. In this project, the artificial forest is not merely a manmade green area within urban spaces; it also functions as a cultivation hub for street trees that will be relocated throughout the city.

Smithson Floating Island, Balmori Associates, 2005
Street Plants in NYC and NJ:
London Plane

PERMANENT FOREST

PERMANENT FOREST

(With MIYAWAKI METHOD)

Selective Shed Removed Based on Tree Canopy Initial Planting

Selective Shed Removed Based on Tree Canopy

Initial Planting

Cycle SAPLING FOREST (With MIYAWAKI METHOD)

50 years in the Future Water Collection + Irrigation Infrastructure

Sapling Farming

50 years in the Future Tree Cycle

Artificial Forest = Permanent Forest + Sapling Forest

Sapling Harvest Tree Cycle

A Permanent Forest, created using the Miyawaki Method, fosters a self-sustaining ecosystem with areas for education and relaxation. In contrast, a Sapling Forest integrates the Miyawaki Method with a specialized structure and shed system, cultivating street trees for eventual transplantation into urban environments.

1.Permanent Forest(a. Seasonal Color Forest, b. Water Conservation Forest, c. Pollinator Paradise Forest, d. Rapid Growth Shade Forest) 2.Sapling Forest (a. Red Maple, b. Callery Pear, c. Pin Oak, d. Honey Locust, e. London Plane)
3.Forest School 4.Public Space 5.Extended Forest 6.Direct Sales Office 7.Office

The transformation from a train shed to an artificial forest represents a shift from an industrial past to an ecologically regenerative future. This process involves the integration of natural systems, sustainable forestry, and environmental education, redefining the site as a space for both biodiversity and public engagement.

At the heart of this transformation is the Forest School, strategically located between the permanent forest and the sapling forest (tree farm). This positioning allows students to experience the full ecological cycle, witnessing both mature ecosystems and the growth of newly planted trees. The transparent elevation of the school enhances this connection, providing uninterrupted views of the surrounding landscape and fostering a learning environment that is deeply immersed in nature.

Through this approach, the project not only restores ecological balance but also creates an educational framework, where the next generation can engage with the environment, understand forest dynamics, and actively participate in sustainable practices.

Site Aerial View
from Train Shed to Artificial Forest
Supervisor (Sierra Club)
Producer, Tree Farm (American Tree Farm System)
Educator, Forest School (The Scandinavian School)
Public
Collaborative Partnership
Detail Section A-A’
Detail Section B-B’
Emerging Ecologies, Architecture and the Rise of Environmentali

Change with Time Frame: As the sapling forest undergoes continuous cultivation, the permanent forest matures, fostering biodiversity and shaping microclimates within the site. Integrated educational programming, featuring classrooms and learning spaces for children within the existing shed, becomes deeply connected to the spatial and temporal rhythms of the forest.

Liberty State Park Train Shed_50 years After
Sapling Forest_1 years
Sapling Forest_2 years
Sapling Forest_5 years
Artificial Forest = Permanent Forest + Sapling Forest
Permanent Forest_5 years After
Liberty State Park Train Shed_Before Design
Permanent Forest_10 years After
Permanent Forest_30 years After

Excess Stone on Wall Street 04

Reimagining The Over-Engineered Stone Building on Wall Street

Columbia University GSAPP, Core 1 Studio 2022. 09 ~ 2022.12

Type : Architecture Design

Instructor : Prof. Lindsey Wikström

Individual Academic Project

Wall Street, once a symbol of financial power, is defined by neoclassical stone buildings that conveyed stability and grandeur. This project critiques the material excess of stone and explores the shifting dynamic between finance and the public. With institutions relocating and online trading reducing Wall Street’s influence, the project proposes a sustainable strategy to reuse its abundant stone resources.

By reclaiming excess stone from these facades, the project reimagines Wall Street as an urban quarry—transforming surplus material into assets for public space. This circular strategy reduces the impact of stone transportation and weaves reused material into new streetscapes. Through dismantling, storing, and reconfiguring stone, the proposal fosters openness, accessibility, and engagement with the urban context.

This approach not only reduces material waste but also renews Wall Street’s architectural identity—promoting sustainability and redefining its role within the evolving city. By integrating salvaged stone into the urban fabric, the project bridges past and present, restoring relevance to historic materials while creating opportunities for inclusive and adaptive public space.

Main Image: 1 to 1 Paper Casting Study Model, Top: Before and After Building Facade, Bottom Left: Site Plan

Structural Analysis to Replace the Excess Columns

Stone buildings on Wall street can be a Sequence quarry, Urban Quarry. There is no need to carry heavy stones long distances.

From a material and environmental perspective, this strategy also has sustainability and increases circularity. By removing stone from the building, the building becomes more open to the public. This stone is redistributed on the street. Additionally, the replaced excess stone creates a new streetscape, enhancing the overall environment for public enjoyment.

Streetscape with 55 Wall Street Columns

Replacing Excess Stones move upside down and occupy wall street, and making new streetscape by putting street furniture on this narrow street such as chairs and tables. On this streetscape, financial groups and social groups make strong relationships on the street by sharing their inner space of the building and expanding their area to the street.

Excess Stone on Wall Street
Extracting Columns
Columns on the Street
Zoom In
Redesign Street

Basics Office Building 05

Liso Architects, South Korea

Location : Goyang-Si, Gyeonggi-Do, Korea

Program : Office Building

Type : Professional Work

Contribution : Participated in Overall Process(SD-DD-CD-CA)

The Basics Office Building completed in 2022 in Goyang-si, South Korea, is a workplace designed to reflect the identity and values of the company it houses. The strategic use of walls create a sense of privacy while maintaining an open and efficient workspace. The building’s design balances functionality and aesthetics, using architectural elements to frame both work environments and external views.

The exterior façade is characterized by a combination of Korean Hanji paper shades and metal screens, offering a distinctive interpretation of the color white. These materials not only enhance the building’s visual identity but also regulate light and privacy, adapting to the needs of the occupants. The façade design creates a dynamic interplay between transparency and opacity, responding to different times of the day.

Internally, walls are used to define key functions such as restrooms, elevator cores, and staircases, creating a structured yet fluid workspace. By strategically placing these divisions, the design ensures clear separations between different zones without compromising openness and connectivity. The result is a well-organized office environment that supports productivity while maintaining a sense of spatial clarity.

Main Image: Model Photo, Bottom Left: Site Arial Photo, Bottom Right: Model Photo
Main Image: Day and night façade, Bottom: 2nd floor under construction and post-construction interior view

Great Falls Green Center 06

Enclosure_Sawtooth Roof System Detail

Columbia University GSAPPP, TECH 3 2023. 09 ~ 2023.12

Type : Architecture Technology

Instructor : Prof. Wonne Ickx

Team Project with Jerry Schmit, Dj Fan, Seonghak Lee, Seonghyun Leem

DETAIL SECTION_ROOF

Great Falls Green Center
Right: Detial Model Photo

Turn static files into dynamic content formats.

Create a flipbook
Issuu converts static files into: digital portfolios, online yearbooks, online catalogs, digital photo albums and more. Sign up and create your flipbook.