Architecture Design Studio 3 Portfolio

Page 1

PORTFOLIO

AR315 Architecture Design Studio 3

Prepared For:

Ms Ida Marlina Mazlan

Ms Intan Liana Samsudin

Dr Michael Gibert

Prepared By: Pon Jing Thung 1001956959

Semester 3

07/2022-10/2022

C O N T A C T

(+60) 12-5508095

jackyponjt65@gmail com

E D U C A T I O N

SJK(C) SAM TET

Primary 2009-2014

POI LAM HIGH SCHOOL (SUWA)

Secondary 2015-2019

UCSI UNIVERSITY

University

01/2020 - Present

S K I L L S

AutoCAD 2023

Revit 2023

Sketchup Pro 2022

Adobe Photoshop

Enscape

Filmora

Procreate & Hand Drawing/Sketching

Microsoft Office

L A N G U A G E

Chinese, English, Cantonese, Malay, Hakka

SITE SUPERVISOR

CHOONG NAM FATHER & SONS CONSTRUCTION SDN BHD

08/2020 - 10/2020

Helping in construction project located at Meru

Learn to manage construction project

Learn about construction drawing and manage the construction period

SITE SUPERVISOR

ZHAN FUNG BUILDERS SDN BHD

11/2020 - 01/2021

Helping in construction project located at Lahat and Klebang

Learn to manage construction project Check about the defect of the houses.

SITE SUPERVISOR

CHOONG NAM FATHER & SONS CONSTRUCTION SDN BHD

12/2021 - 06/2022

Meeting with clients Manage construction project located at Klebang, Ipoh

I N T E R E S T

Golfing

Charity Volunteer

Latin Dance

Photographing

Travelling

P O N J I N G T H U N G ( J A C K Y )
Student
X
E N C E
W O R K E
P E R I
P O R T F O L I O Diploma Design Studio 3 Degree Design Studio 3

PART 1

Project1AInterpretationofCulture(DesignStudio)

Project1BSculpture (DesignStudio)

Project1Documentation (History3)

Project2ASiteAnalysis,SiteDemarcation&Vernadoc Drawings(DesignStudio)

Project2BResponseModel(DesignStudio)

Project3FinalDesign(DesignStudio)

Project3SchematicWaterSupply&Sewerage System(DesignStudio)

Project1CaseStudy(BuildingConstruction& Technology3)

CONTENTS
Table of
END
46 PORTFOLIO TABLE OF CONTENTS 03
PART 2 PART 3
04 - 08 09 - 17 18-45

PART 1

Project1AInterpretationofCulture(DesignStudio)

Project1BSculpture (DesignStudio)

Project1Documentation (History3)

PORTFOLIO PART 1 04

INTERPRETATION OF CULTURE

Burialoccursonthedayofdeath,usuallyat asiteacrosstheriverfromthesettlement Thebodyiswrappedinmattingandplaced onasplitbambooplatforminanalcove withinthegrave Moresplitbamboois placedontoptokeepthebodyfrom comingintodirecttouchwiththedirtwhen thegraveisfilledup Inaccordancewith theconceptthatthedepartedwouldbe carriedtoanafterlifeinaparticular"flower garden"locatedatsunset,theburialis frequentlyalignedinlinewiththesun's trajectory Lightsorfireswillbesetonthe graveduringthefirstseveraldaysafterthe burial However,thegraveiseventuallyleft untendedsothattheforestmightrecover thelocation;Temiaravoidsthecreationof anymemorialcult,whichtheyfind unsettling Theyalsoavoidusingthename ofadeceasedperson,insteadreferringto "OldManX"or"OldWomanX,"whereX indicatesthelocationoftheburialsite Temiarvillagersusedtoburnthe deceased'shousetoashesthesameday andrelocatetoanewlocationashort distanceawayasanotherindicationof theirdesiretoputdeathbehindthem This practicehasbecoming increasinglyrareasmaterialpossessions haveplacedapremiumonstayingput

PORTFOLIO PROJECT 1A 05

Thedesignofthesculpturewasabstractfrom drawing.Eachofthesculpturesrepresentone placefromthedrawing

PORTFOLIO PROJECT 1B 06
Sculpture

CULTURE (THE SEMAI)

TheSemaisettlementcanlive30to 200people.Nuclearfamiliesmakeup themajorityofindividualhouseholds, withafewdistantrelativeson occasion Themajorityofhousesare constructedofwood,bamboowith wovenwalls,andpalmleafthatched roofs.

Duetothefactthateveryonesleepsinthemainhallof Semaihouses,therearenoapparentbedrooms, especiallyforchildren.Theparents'chamberswerethe onlyseparationofthewholehouseandtheseparation seemstobeintheformofwooden-beadedcurtains This formofseparationwassimilartocoastalMalays,who useseashellstomakecurtain,anddeutero-Malays,their curtainwasmadeofbatikcloth.

Therearenolocksorothertypesofsecuritywaysto anyoftheserooms techniquetoindicate urtainisdraggedtothe ntrancesothatpeople quiredbehindclosed stbeasked assthatwillresultin t.

PORTFOLIO PROJECT 1 (HISTORY 3) 07
ArchitectureHistory3

Marriage

MostmarriagesamongSemaiare monogamous.Fewerthen5%ofwomenare polygamousinmarriage Semaimarriages areexogamoussuchasWestSemaiarenot allowedtomarryanyonewhoisa descendantofoneofhisgrandparents,and neithermayEastSemaimarry consanguinealkinsmanorbloodrelatives.

Thecouplesinthemajorityofweddings comefromvarioussettlements.The Semaitendencytogobetweenlivingwith thewife'sorthehusband'skinsmanevery fewweeksaftermarriage,gradually prolongingthetimespentthereuntilthe coupledecidestosettledown.

PORTFOLIO 08 PROJECT 1 (HISTORY 3)
Monogamous Polygamous

PART 2

Project2ASiteAnalysis,SiteDemarcation&VernadocDrawings(DesignStudio)

Project2BResponseModel (DesignStudio)

PORTFOLIO PART 2 09

TADOM HILL RESORT

Tadomhillresort,aresortlikenoother,A placenotjustforenjoymentorrelaxationin thePeacefulatmospherebutalsoaplace togainknowledgeaboutbambooandbe submergedintotheorangasliculture. Setamidst45acresofbreathtakingtropical beautyinthesouthernpartofKlangValley, TadomHillResortsoffersauniqueblendof splendidexperienceandserenity.Located within45-minutes’drivefromtheheartof KualaLumpurandcloseproximitytothe KualaLumpurInternationalAirport,Tadom HillResortshasalltheelementsfora magnificentgetaway.

Whetheryouareasolotraveler,asmallgroupoffriends, abigfamilyoralargecorporateteam,whetheryou choosetospendafewdaysinTadomhillorpopbyfora quickdaytrip,acompleterangeoffacilitiesand activitiesavalibel

Bamboo-InspiredAccommodation

TadomHillResortsisarchitecturedandbuiltalmost entirelyoutofbamboomaterials–traditionallyusedby theOrangAslitobuildtheirhomes Besidesfeaturingof bamboo,arangeofaccommodationsshowcasesa visiontoblendjusttherightamountofoutdoor experienceandthetraditionallivingcultureofthe aborigineswitharesort-likeambiance.

PORTFOLIO PROJECT 2A 10
Section Worker Space Back Land Hakka Village Plantation Pedestrian Reception Pavilion Road SectionX-X ZoneC PORTFOLIO PROJECT 2A 11
Hill Road Hill Road Not Developed Area
Hill near Flying Fox
PORTFOLIO PROJECT 2A 12
ZoneE
Plantation Entrance Lake R d Not Developed Area Not Developed Area Hill Road Road SectionY-Y ZoneA ZoneB ZoneC Hill ZoneD PORTFOLIO PROJECT 2A 13

VernadocDrawings(bymygroup)

Road Not Developed Area Road Not Developed Area Road Not Developed Area ZoneE
PORTFOLIO PROJECT 2A 14
ZoneF

SITE RESPONSE MODEL

SpatialQuantity&Experience

Private area at the west, there is a mountain at the side of it.

More activities will locate at the East

View toward lake

Public area at the East because all the views located at the East.

SunPath

15 PROJECT 2B PORTFOLIO

RelationshipBetweenExternal&Internal

16 PROJECT 2B PORTFOLIO

PreventFlooding

Eachsidehas3columnstomakethebuilding highertopreventflooding.Thecolumnateach sidewasnotthesamehighsoitletboth buildinghaveviews.

Wind

Theopeningatthebothsideofthebuilding makeithasacrossventilation

PORTFOLIO 17 PROJECT 2B

PART 3

Project3FinalDesign (DesignStudio)

Project3SchematicWaterSupply&SewerageSystem(DesignStudio)

Project1CaseStudy (BuildingConstruction&Technology3)

PORTFOLIO PART 3 18
PORTFOLIO PROJECT 3 19 GALLERY/ AWARENESS CENTRE P.N.F Past.Now.Future.

Thedesignconceptforthisprojectwasabout afterlife.Duringmyfirstproject,Iwasstudied aboutafterlifeofTemiar.Whenoneofthe familymembersfromTemiarpassedaway,the burialforhim/herwilloccursonthedayof death Thebodyiswrappedinmattingand placedonasplitbambooplatforminan alcovewithinthegrave Moresplitbamboowill placeontoptokeepthebodyfromcoming intodirecttouchwiththedirtwhenthegraveis filledup.Theybelievethatthedepartedwould becarriedtoanafterlifeinaparticular"flower garden" Inthisproject,Iusedbambooasmain buildingmaterial.Accordingtotheresearch aboutafterlifeofTemiar,Iwilldividethe buildinginto3parts.

PORTFOLIO 20
PROJECT 3

Design Intention

Themainprogrammeofthe buildingwastoshowhistory, artworksandcraftworksabout TemuanTribe Thebuildingwas notonlyagallery,butitalso containsanamphitheaterfor visitorstolistenthehistory,story andtheirlifestylefromthe Temuanworkers Ithasa workshopforthevisitorstomake themselvesasouvenirabout craftworksofTemuan.Sothe skillswillnotdisappear.

21 Portfolio PROJECT 3

Target Users Issue

TemuanTribe

Visitors

Children

Teenager

Adult

Senior

LackofLightningDevice

Rock&SandRoad

LackofSafetyforChildren

ATVSound

LessAttractive

Smellfromlake

Floodingwhenrainseasonorheavy rain

PORTFOLIO PROJECT 3 22
Reception 9.25sqm Gallery 85.65sqm Courtyard 105sqm Office 23.45sqm Cafe 33.11sqm OutdoorDeckingSeating 608sqm Amphitheatre 9.34sqm OKUWashroom 3.23sqm MaleWashroom 729sqm FemaleWashroom 7.29sqm Workshop 23.45sqm Gallery 8608sqm Total 304.71sqm Schedule Of Accommodation 23 PROJECT 3 PORTFOLIO

BUBBLE DIAGRAM

PORTFOLIO PROJECT 3 24
Reception Gallery Courtyard Office Cafe Outdoor Auditorium Male Washroom Female Washroom OKU Washroo m Stairs Gallery Courtyard Workshop Gallery Stairs
Drop-Off& PickUp GroundFloor FirstFloor

PLANS, SECTION & ELEVATIONS

25 PROJECT 3 PORTFOLIO
26 PROJECT 3 PORTFOLIO
27 PROJECT 3 PORTFOLIO
28 PROJECT 3 PORTFOLIO
29 PROJECT 3 PORTFOLIO
30 PROJECT 3 PORTFOLIO

PHYSICAL MODEL

31 PROJECT 3 PORTFOLIO

DIGITAL MODEL

appsketchupcom/app? 3dwid=4dd979ed-8407-4ebc-917abc31dab4ac24

WALKTHROUGH

32 PROJECT 3 PORTFOLIO

SCHEMATIC WATER SUPPLY & SEWERAGE SYSTEM

33 PROJECT 3 PORTFOLIO

CASE STUDY

PANI COMMUNITY CENTRE

Architects:SchilderScholte architects

Area:910m²

Year:2014

Location:Rajarhat,Bangladesh

Buildingtype:CommunityCentre

Embracedprobonoassignment(workundertaken withoutcharge)

Thebuildingservesasacommunitycentreforfolks fromtheregion,agedfromtoddlerstoelderpeople Thegoalistotrainthepoorandlandless,reducechild mortalityandensureeconomicindependence. Togetherwiththelocalpeoplewelookatwhat productsareavailable

Encouragelocalstobecomeawareonthebasic principlesofsustainability usesmaterialsfrom25kmradiusfromsite Inpractise,littlelittlepowerorfossilfuelswereutilised forthisbuilding'sconstructionandotherdemands Resultingintherealizationofanenvironmentally friendlystructurethatsignificantlybenefitsthe neighborhood.

NOUR MAGAZINE ABOUT US 34

BUILDING PLANS

Theplan(79x105ft)isEast-Westorientedandconsistsoftwovolumesunderalargebamboo roofconstruction

TheclassroomsandlavatoriesarepositionedontheSouthsideandontheNorthsidewefind theworkshopwithstore Twosightlinestraversethebuildinginallfourdirections

35 PROJECT 1 PORTFOLIO

Theuseofnearbypondsfor naturaldrafttocoolthe classrooms

Localbricksislessexpensiveand reducestheuseofconstructionwoodby combiningbamboowiththinconcrete floors.Thisminimizestheshortageof woodinBangladeshaswellfuture maintenancecosts

Thebrick-builtvolumesareallplastered andpartlypainted.Theinteriorwallsare colouredinlightblue,ahuethatflies shun Thesplayoftheclassroom windowsarepaintedyellow,ahuethat specificinsectsdislike.Yellowhasbeen optedasthedominantcolor.Itrefersto theflowersofthemustardplant,acrop thatcolorslargepartsofthecountry fromDecembertoJanuary Greyand blackaretheothershades,whichinturn refertothecoloroftheBengalearth beforeandafterrainfall

Thebuilding'sorientationmakesitpossibletoemphasizenaturalcrossventilation,avoidingthe expenseofusingelectricfans.

Thedimensionsarechosenwithgreatcare,insuchawaythatdirectsunlightintothe classroomsisminimizedstillprovidinginoptimaldaylightillumination

36 PROJECT 1 PORTFOLIO

C O N S T R U C T I

N M A T E R I A L S

MATERIALS

Typesof materials used Research onthe materials

Mango wood is categorized as a hardwood due to its strength, density and durability The wood doesn't wear out quickly and when looked after properly, can keep its high luster texture for many years Unlike other hardwoods, Mangowoodcaneasilybecutandre-shapedwhichmakes itagreatoptionforfurnituremakers

O
01 37
MangoWood
PROJECT 1 PORTFOLIO

02 LocalMortar

It is a durable material that has high compressive strength Brick is fireproof and can withstand exposure to high temperatures.Sinceclayisavailablealmost everywhere, brick can be fabricated locally, eliminating the costs associated with their shipment This can mean that construction using brick as a material may be less expensivethanwithusingstone,concrete,or steel.

03

Mortarisamixtureofsand,abindersuchas cementorlime,andwaterandisappliedas a paste which then sets hard. Mortar is a materialusedinmasonryconstructiontofill thegapsbetweenthebricksandblocks

PORTFOLIO 38
Hand-ShapeBrick
PROJECT 1

Bamboo

04 Wafer-ThinCorrugated Panels

As construction materials, bamboo has a very strong fiber The compressive strength of bamboo is two times higher than concrete, while the tensile strength is close tosteel Itisalsoasustainablematerialthat haslittletonocarbonfootprint.

05

Buildingscanbenefitfromcorrugatedmetal roofing systems on many levels, including energy code compliance, carbon emission reduction, operational savings, higher property values, and improved occupant comfort. They also provide reliable weather protection and have a track record of longevity.

PORTFOLIO 39
PROJECT 1

Steel is utilised because it adheres well to concrete, has a similar thermal expansion coefficient, is robust, and is generally more affordable than other materials. The main building material in use nowadaysisreinforcedconcrete,whichisalsoutilisedtocreatedeep foundationsandbasements

PORTFOLIO 40
06 PROJECT 1
ReusedSteel

The techniques use for this project are also very easytolearnanddiffusedbythemaincontractor, which will contribute to the local construction modernization. This application of local bricks is less expensive and reduces the use of construction wood by combining bamboo with thinconcretefloors.Thisminimizestheshortageof wood in Bangladesh as well future maintenance costs.

IntheNorthofBangladeshbuildingsarealmostallconstructedwithbricksincombinationwith corrugated panels, so we propose also the use of bricks but in an optimized and locally unknowbrickworkbondthatdoesn’trequirewhole-brickwallsforstability,minimizingthecosts andmaintainingthemainadvantage,theuseoflocalmaterialsandcraftsmanship.

U-shaped brick columns support the South facade of the building, thus creating a row of small vertical windows Ultimately, this can be understoodasasinglestonewall,agreatsaving onconstructioncosts,timeandlabor

PORTFOLIO 41 PROJECT 1

STRUCTURAL FRAMING SYSTEM

Byusingastructuralframe technologysimilartotheoneusedin regulartimberframedesignand construction,bambooisusedfor building Fortotalstability,the bamboostructure'sroof,walls,and floorsareallinterconnectedand frequentlyrelyononeanother. Bamboohasbeenessentialto businessexpansionandruralchange

Advantages

Tensilestrength:Bamboohashighertensilestrength thansteelbecauseitsfibersrunaxially

Elasticity:Bambooiswidelypreferredinearthquake proneregionsduetoitselasticfeatures

Theyarecosteffectiveandeasytouse

Unlikeotherbuildingmaterialslikecementand asbestos,bambooposesnodangertohealth. Theyareespeciallyingreatdemandinearthquake proneareas

FireResistance:Capabilityofbambootoresistfireis veryhighanditcanwithstandtemperatureupto 4000C.Thisisduetothepresenceofhighvalueof silicateacidandwater.

42 PROJECT 1 PORTFOLIO

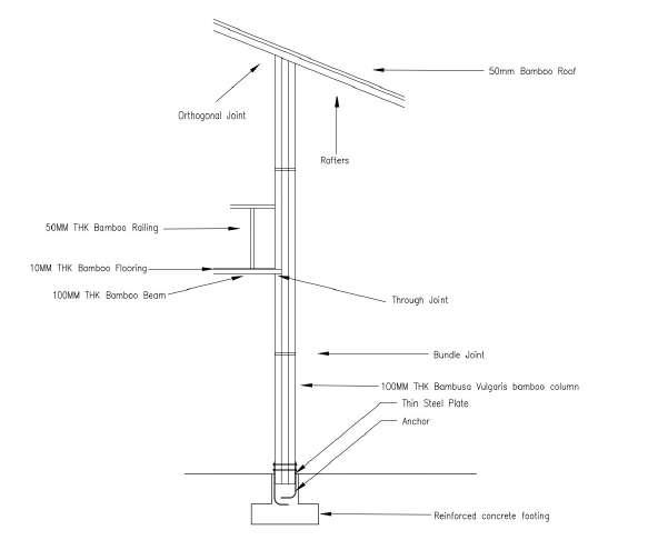
JOINTS ROOF

Thestructuralframingconsistsofbambooposts asthemainstructurewhilefollowingagrid system.

Thebamboocolumnsareplacedontheconcrete floorwitharebarinsideeachcolumntosupport andtransfertheoveralltheloadtotheground

Eachsetofpostsconsistsofthemainpostthatis connectedtothegroundandsupportingtwo subsequentbamboocolumnsbyboltandnut joineries

Thefirst-floorflooringismadeoutoftimberplanks (mangotree)supportsbybamboobeams

Thebamboopostisthenconnectedupwardsto theroof(raftersandbattens)withboltandnuts, andbamboolashings

Theroofalsoconsistsoftrusses,usingajoinery calledFishMouthjoinery,abamboocolumnfits thecurvatureofthesubsequentbamboocolumn toforma45-degreetruss.Ontopoftherafters, waferthincorrugatedzincsheetsareplacedto protectthebuildingfromtheharshweather Theroofalsoconsistsoftrusses,usingajoinery calledFishMouthjoinery,abamboocolumnfits thecurvatureofthesubsequentbamboocolumn toforma45-degreetruss Ontopoftherafters, waferthincorrugatedzincsheetsareplacedto protectthebuildingfromtheharshweather

43
PORTFOLIO PROJECT 1

LOAD PATH

44 PROJECT 1 PORTFOLIO Bule-LiveLoad Red-DeadLoad

DIMENSION CONSTRUCTION DRAWINGS

45 PROJECT 1 PORTFOLIO
"Practice safe design: Use a concept."
PETRULAVRO N T I K I S Octo 2022
Portfolio

Turn static files into dynamic content formats.

Create a flipbook
Issuu converts static files into: digital portfolios, online yearbooks, online catalogs, digital photo albums and more. Sign up and create your flipbook.