
architecture portfolio. jasmin cabuco.
![]()

architecture portfolio. jasmin cabuco.
(704) 917-9275 | jcabuco2002@gmail.com | linkedin.com/in/jasmin-cabuco | instagram.com/jac.architecture/
EDUCATION ACHIEVEMENTS
University of Southern California, M. Arch - Los Angeles, CA
Advanced Standing (3.80 GPA)
August 2024 - Present
Tau Sigma Delta Honors Society, 2024 - 2026
University of Virginia, School of Architecture, B.S. Arch - Charlottesville, VA
Minor in Civil Engineering (3.613 GPA)
August 2020 - May 2024
Leadership - School of Architecture First-Generation Low-Income Initiative, 2022 - 2023
Outreach Committee - School of Architecture Student Council, 2022 - 2023
2025 - 2026
2024 - 2025
Fall 2023
Spring 2019
Spring 2018
SKILLS
Software
Fabrication
Technical
University of Southern California Merit Based Scholarship
University of Southern California Merit Based Scholarship
University of Virginia Architecture Departmental Award
NAWIC Regional Design and Drafting Competition 1st Place
NAWIC National Design and Drafting Competition 1st Place
EXPERIENCE
Summer
Revit / Rhino, AutoCAD, Adobe Creative Cloud, SketchUp, Enscape, V-Ray, D5 Rendering, ArcGIS, Grasshopper, Microsoft Office
Laser Cutting, 3D Printing, Physical Model Making, Hand Drawing
Construction Documentation, Schematic Design Development, Site Analysis, Building Code Review and Compliance, Specification Editing, Client and Consultant Coordination, Residential Project Management
VOLUNTEERING
Architectural Intern at Swift Lee Office
Contributed to site analysis, preliminary schematic design, and construction documentation for several LAUSD schools and Southern California government buildings.
Managed small residential projects, producing design proposals and construction documents in accordance with local building codes
Consulted with clients, contractors, and local landscape architect to ensure structural, site, and client needs were met during site visits and in-office meetings.
Extern at Anderson Mason Dale Architects
Contributed to design development through model making
Administrative Assistant at Candace M.P. Smith Architect PC
Prepared invoices, client information folders, and ammended office documents
Organized essential office spaces, archiving materials and past projects
Prepared invoices, client information folders, and ammended office documents
Job Shadowing at RdM Architecture
Accompanied senior members of the firm to client meetings and site visits
Rendered current and past projects in SketchUp
Reviewed building codes and edited project specifications
AutoCAD Specialist at Consolidated Fire Protection
Transferred foor plans for a Marriot Hotel in Helen, GA onto AutoCAD
United Way Day of Caring
Expanded mural at Charlottesville-Albemarle Technical Education Center (CATEC)
United Way Day of Caring
Preliminary mural at Charlottesville-Albemarle Technical Education Center (CATEC)



13 - 16 urban canvas.
01 - 06 rooted row. break the 07 - 12



arch 605b | spring 2025. los angeles, california.
Reclaiming contested space through community-led art and adaptive public infrastructure.
Urban Canvas investigates how art, protest, and community space can resist displacement within rapidly gentrifying urban contexts. The project positions architecture as a cultural instrument, framing public art not as decoration, but as infrastructure for civic expression and collective memory. Situated adjacent to the University of Southern California, the building acknowledges institutional expansion as both opportunity and tension within South Los Angeles. In response, the project proposes a porous community center and public art space that embeds protest, gathering, and authorship into the architecture itself.


community courtyard.

breezeway | art as protest.
The façade becomes a living canvas for murals, protest, and collective memory, embedding activism directly into the urban fabric.
sunlight.




site forces. property & zoning sunlight. wind. noise. traffic & circulation.



flat roof with parapet.
raised access flooring.
community art panels.
exploded structure system | material study
The structural and spatial system is designed to evolve with community programming and shifting cultural needs.


column and beam system. breeze blocks.
structurally insulated rammed earth wall.



site plan | institutional edge and community threshold. The building is positioned as a porous cultural threshold between USC and South LA, transforming a contested edge into a space of public art, gathering, and civic expression.



public art courtyard.

protest poster making.

community gallery.

ground floor plan | public interface and programmatic porosity. The plan dissolves boundaries between gallery, workshop, and community space support protest, making, and collective storytelling.


embedded protest. community gathering.



cafe and protest shop.


section perspective | layered platforms of expression. protest. art.

The section reveals how light, circulation, and vertical openness amplify art as both expression and protest within the building.


activism. education.

arch 605a | fall 2024. los angeles, california.
Preliminary concept collaborator: Chloe Kaplan Kristensen
All drawings and design development shown are done by myself.
Rooted Row investigates how zoning setbacks in single-family neighborhoods can be reimagined as sites of housing opportunity within Los Angeles. The project reframes the five-foot side yard not as residual space, but as a spatial resource capable of supporting missing-middle density and collective living. By introducing 10 foot and 20 foot row house typologies, the design creates adaptable dwelling systems that respond to both housing scarcity and homelessness. In doing so, Rooted Row proposes a scalable model for incremental urban infill that balances privacy, community, and long-term stability.


rooted row embedded.

missing middle row house concept.

los angeles multifamily housing typologies.

preliminary unit concept.



preliminary collective living concept | shared circulation and semi-private space.



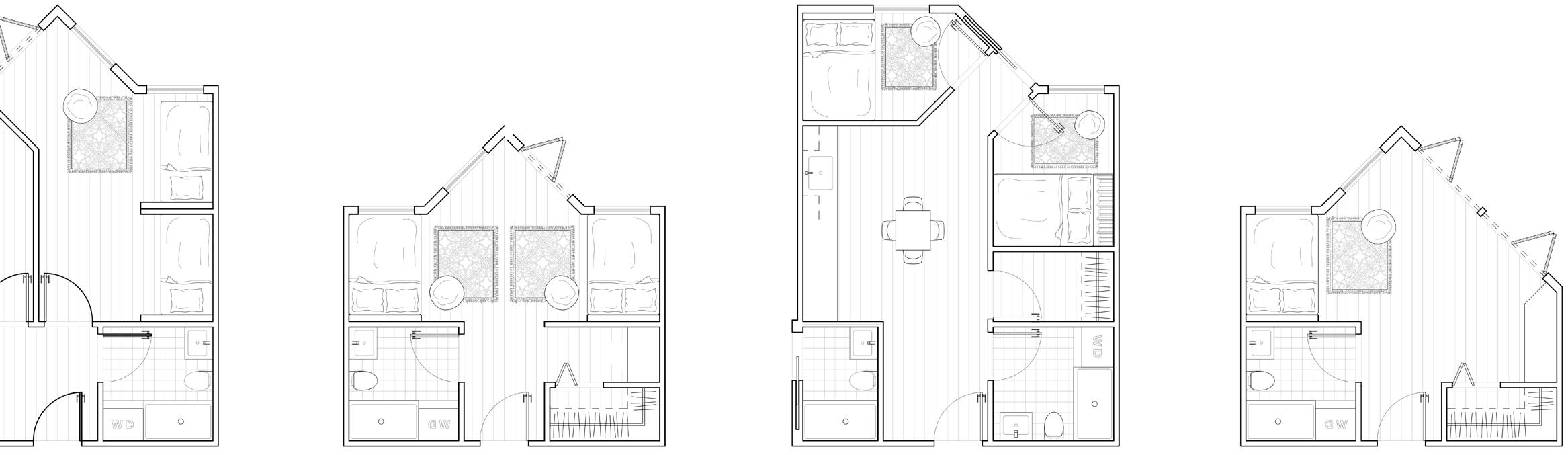
rooted row unit configurations
Five adaptable unit types generate a range



configurations | modular housing system.
range of collective living configurations.



food bank. clothing bank. soup kitchen.

ground floor services | public support and community infrastructure.
Public-facing programs provide food access, hygiene facilities, clothing resources, and flexible communal space to support low-income and unhoused individuals with dignity and care. cabuco,



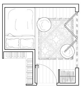
third floor residences | communal living and light-centered circulation. balcony. kitchen.
bedroom.

Split-level shared kitchens, lounges, and workspaces transition into private studios around central diamond lightwells that organize circulation and daylight.

site strategy | infill within existing neighborhood fabric. Row house clusters are inserted within underutilized side yards and vacant single family lots to introduce density without displacing existing residents.


rooted row chunk model. cabuco,


20ft longitudinal section.

transverse section.

arch 793a | thesis | fall 2025. los angeles, california.
Examining solutions regarding the issue of domestic violence across social, spatial, and political scales .
Break the Cycle investigates how domestic violence is sustained not only through individual acts, but through spatial, political, and institutional systems that repeatedly retraumatize survivors. The project frames violence as something written into walls, policies, and everyday domestic spaces, often hidden behind closed doors. Through a series of architectural collages, the work exposes how these structures limit agency, obscure harm, and produce cycles of containment. In response, the project proposes participatory, survivor-informed systems of care that prioritize autonomy, reintegration, and long-term stability.


violence as reality.

faces of strength.





Domestic violence is rendered as a hidden yet pervasive spatial condition embedded within everyday domestic environments. behind closed doors.








Domestic space becomes a maze of thresholds concealed, repeated, and absorbed into walls structures of retraumatization. architecture of confinement. Violence is reproduced through policy, language, and institutional frameworks that discipline survivors and redirect harm rather than resolve it.

thresholds and dead ends, where violence is walls behind closed doors.

cycles of care.
Participatory systems of care interrupt retraumatization by redistributing power, rebuilding trust, and supporting reintegration rather than containment.

trauma painted walls of los angeles.




scale. trauma. abuse.
arch 3030 | spring 2023. charlottesville, virginia.
Reimagining play as an architectural tool for learning, autonomy, and social development within underserved communities.
Jungle Gym explores how architecture can support early childhood development through naturebased play, spatial exploration, and community engagement. Designed as an adaptable learning landscape, the project integrates play structures, outdoor classrooms, and sensory environments that encourage curiosity, collaboration, and physical movement. Emphasizing accessibility and inclusivity, the design prioritizes flexible spaces that respond to diverse learning styles and developmental needs. The project positions play not as recreation alone, but as a critical spatial framework for education, equity, and social growth.


learning within the forest.



site progression through elements of play. greenleaf playground.
The sectional cut illustrates layered play zones and structural elements that support climbing, gathering, and movement across levels.
entrance playscape.



sand pit.



community involvement in do-it-yourself build.

Participatory construction highlights how modular components such as rotating walls and small-scale interventions enable collective authorship.



retractable roof. sliding ladder.



transparency. tectonic.
concept models.
Physical studies explore how material openness, structural logic, and modular growth inform the evolving playscape system.


aggregation.
interventions along the indiana lakeshore.
arch 4010 | fall 2023. gary, indiana.
Education is reimagined as an environmental infrastructure embedded within marginalized landscapes.
Learning the Land addresses spatial inequities along the Gary–Chicago shoreline through an educational network that reconnects youth to ecological systems. By mapping disinvestment, abandoned school infrastructure, and environmental access, the project reframes learning as both social and spatial repair. A series of site-responsive buildings are embedded across field, dune, forest, and beach conditions, creating immersive environments for ecological education and community engagement. Architecture operates as a mediator between land, water, and learning, fostering stewardship through direct environmental experience.


history of gary, indiana.

racial inequities of shoreline access.

importance of nature-based learning.
missed opportunities of environmental engagement in gary, indiana. chicago - gary education abandoned elementary schools.


chosen sight: nobel elementary




school district funding. field trips. income distribution. pollutants.



site. point of departure. journey. cabuco,





dune classroom. treehouse classroom. point of arrival.











constructed narratives of housing and food insecurity. This composition overlays shared text across images of tent encampments and housed families positioned in front of a mural addressing food insecurity. By using identical language in contrasting contexts, the work challenges dominant narratives that frame similar conditions differently based on visibility, class, and location.

