10. Proyecto Arquitectónico

Page 1

BANCO DE PROYECTOS

Banco de Proyectos, orientado a la recreación y turismo. Sin embargo, no generan expectativas de inversión y por consecuencia, tampoco de vivienda permanente.

Banco de Proyectos orientados a la potenciación de industrias existentes y potencialmente rentables. Adicionalmente, estos se encuentran en toda la ciudad, no centrándose exclusivamente en el turismo.

INVERSIÓN / FUENTES DE FINANCIAMIENTO

13 proyectos de gran presupuesto, financiadas principalmente por el Estado: 7 Municipalidad/1 MINCETUR/ 3 APPs/ 1 Sedapar/ 1 INDECI. Todas a cargo de la Municipalidad Inversión estimada de 60 millones de soles.

Prioriza Malecones y recorridos turísticos. En este caso, y debido al turismo limitado, los beneficios no serán mayores a la inversión

Privado - APPs: 87 Proyectos de presupuesto bajomediana, a 4 etapas: 27 F1/ 21 F2 / 25 F3 / 14 F4 Proyectos de restauración - 32 Proyectos de impacto nostálgico - 4 Proyectos de construcción 34 Proyectos de impacto mayor - 17 * Inversión estimada de 30 millones de soles. Espalda financiera por medio de beneficios de cada uno, puesto que cada uno potencia una industria.

Estado: Obras de saneamiento Espacios Públicos * Inversión estimada de 25 millones

EFECTOS EN LA SOCIEDAD

Beneficia al turismo, con actividades nuevas, también potenciaría esta industria. Sin embargo, esta sigue siendo limitada al Verano. Las restauraciones a cada vivienda por parte de la Municipalidad, generan un gasto innecesario y poco sostenible.

Los proyectos plantean potenciar industrias cercanas, dinamizando la economía y promoviendo la vivienda permanente. Esto propicia el consumo y el libre mercado, las cuales, complementadas con espacios públicos generan un mejor reconocimiento. Cada dueño podrá acceder a un medio de financiamiento para la restauración de su edificio, pudiéndose invertir mejor.

ORGANIZACIONES/ INSTITUCIONES PÚBLICAS / PRIVADAS INVOLUCRADAS

Involucra a ONGs dependientes del Estado y a la Municipalidad. Escasa participación de la inversión privada en la construcción de proyectos, actuando más como beneficiarios.

Involucra a gremios empresariales y colectivos ciudadanos como potenciales inversores y promotores de industrias nuevas. Asimismo, la promoción a causa de los proyectos de impacto generan una mayor ventaja competitiva con otras ciudades, involucrando nuevos habitantes. La inversión privada es activa en todo momento.

TABLA 41: ANÁLISIS COSTO - BENEFICIO DE LA PROPUESTA FUENTE: ELABORACIÓN PROPIA

El proyecto plantea la reducción de competencias del Estado, sin embargo aumenta el valor de la participación de la sociedad civil (en Alianza con el sector privado). Esto con el objetivo de ganar una mayor legitimidad en la Puesta en Valor y con la postura de que la ciudad pueda ser habitada y reinventada por sus mismos habitantes. Al no estar limitada por ONGs conservacionistas como la UNESCO, Mollendo puede reinventarse de manera orgánica y generar vivencias activas.

Página I 993
Página I 994 CAPITULO 10
DESARROLLO DEL PROYECTO ARQUITECTÓNICO
Página I 995

PARTE UNO

PLANTEAMIENTO

DE LA PROPUESTA

1002 19.1. Delimitación del Conjunto 1002 19.1.1. Proyectos Generadores 1008 19.1.2. Pertinencia en el Contexto 1014 19.2. Sustentación del Programa Arquitectónico 1014 19.2.1. Sectores Potenciales para Rol Determinado 1014 A. Identificar sectores económicos actuales potenciales y acordes al Planeamiento 1017

B. Encontrar una ventaja competitiva frente a otras ciudades 1020 19.2.2. Actividades Potenciales para Rol Determinado 1024 19.2.3. Desarrollo del Programa Arquitectónico: Medialab 1024

A. Bloque 1: Cine - Teatro 1028 B. Bloque 2: Incubadora de Proyectos 1030 C. Bloque 3: Soundlab

CONTENIDO DEL CAPÍTULO
Página I 996

PARTE DOS

PROPUESTA DE INTERVENCIÓN

1034 19.3. Proceso de Intervención 1034 19.3.1. Conocimiento del Contexto y Edificios 1034 19.3.1.1. Aproximación Histórica y Panorama Actual 1034 A. Plaza Grau 1036 B. 28 de Julio 1038 19.3.1.2. Características Físicas de los Edificios 1040 19.3.2. Patología Constructiva 1040 19.3.2.1. Diagnóstico 1040 A. Identificación de Daños 1040 B. Determinar las Causas 1046 19.3.3. Acciones de Intervención

Página I 997

1048 19.3.4. Presentación del Proyecto 1050 19.3.5. Definición del Conjunto 1050 A. Conjunto: Emplazamiento 1052 B. Desarrollo del Espacio Público 1060 19.3.6. Desarrollo del Equipamiento 1064 A. Integración del Guión 1068 B. Expediente del Proyecto 1068 - Planimetría del Conjunto 1076 - Bloque A 1098 - Bloque B / C

Página I 998
Página I 999

DIAGRAMAS

1006

Diagrama 239: Alcances Del Conjunto Sobre Su Entorno - Elaboración propia 1007 Diagrama 240: Reconocimiento Del Conjunto Y Sus Partes - Elaboración propia 1015 Diagrama 241: Categorización De Eventos A Lo Largo Del Año - Elaboración propia 1020 Diagrama 242: Esquema Industrias Involucradas En El Proyecto - Elaboración propia 1021 Diagrama 243: Esquema Ordenamiento De Acuerdo Actividades - Elaboración propia 1023 Diagrama 244: Esquema Programación Y Necesidades A Cubrir - Elaboración propia 1024 Diagrama 245: Esquema De Programación Del Conjunto - Elaboración propia 1026 Diagrama 246: Esquema De Programación Del Bloque A - Elaboración propia 1028 Diagrama 247: Esquema De Programación Del Bloque B - Elaboración propia 1030 Diagrama 248: Esquema De Programación Del Bloque C - Elaboración propia 1039 Diagrama 249: Consideraciones de la Restauración - Elaboración propia 1047 Diagrama 250: Parámetros de Diseño e Inserción en Contexto - Elaboración propia 1052 Diagrama 251: Vista Isométrica del Proyecto - Espacio Público - Elaboración propia 1064 Diagrama 252: Desarrollo del Guión Arquitectónico - Elaboración propia 1065 Diagrama 253: Desarrollo del Guión Arquitectónico - Elaboración propia 1066 Diagrama 254: Estructuración Espacial del Guión Arquitectónico- Elaboración propia 1070 Diagrama 255: Isometría del Conjunto - Elaboración propia 1076 Diagrama 256: Isometría y Flujos de Bloque A - Elaboración propia 1078 Diagrama 257: Programación en Corte - Bloque A - Elaboración propia 1079 Diagrama 258: Distribución de Espacios Principales - Bloque A - Elaboración propia 1098 Diagrama 259: Isometría y Flujos del Bloque B/C - Elaboración propia 1101 Diagrama 260: Programación en Corte Bloque B - Elaboración propia 1103 Diagrama 261: Distribución de Espacios Principales- Bloque B - Elaboración propia 1104 Diagrama 262: Programación e Corte - Bloque B - Elaboración propia 1106 Diagrama 263: Distribución de Espacios Principales- Bloque C - Elaboración propia

ILUSTRACIONES

1008 Ilustración 220: Impacto Visual Del Conjunto - Elaboración propia 1009 Ilustración 221: Equipamientos Cercanos Al Conjunto - Elaboración propia 1011 Ilustración 222: Vista Isométrica Conjunto Y Entorno Inmediato - Elaboración propia 1013 Ilustración 223: Vista Isométrica Conjunto Y Entorno Inmediato - Elaboración propia 1016 Ilustración 224: Industria Musical Presente - Elaboración propia 1017 Ilustración 225: Análisis Del Crecimiento De Industria Musical - PwC Perú 1018 Ilustración 226: Comparativa Industria Musical-Radial Nivel LatAm - PwC Perú 1019 Ilustración 227: Crecimiento Industria Creativa A Nivel Mundial - UNCTAD CEPLAN 1019 Ilustración 228: Delegación Empresas Peruanas En Micsur (2014) - CEPLAN 1032 Ilustración 229: Industria Cultural Existente En Mollendo - Elaboración propia 1033 Ilustración 230: Diseño Gráfico De Mollendo En Cultura Popular - Facebook/Mollfezt 1035 Ilustración 231: Plaza Grau en la Actualidad - Elaboración propia 1037 Ilustración 232: Jr 28 de Julio en la Actualidad - Elaboración propia 1041 Ilustración 233: Daños Físicos observados en el Edificio - Fotografía propia 1044 Ilustración 234: Deterioro de la estructura en techo Bloque B - Fotografía propia 1045 Ilustración 235: Daños Físicos Observados en Edificio - Fotografía propia 1049 Ilustración 236: Abstracción Programática del Proyecto - Elaboración propia 1050 Ilustración 237: Emplazamiento del Conjunto - Elaboración propia 1054 Ilustración 238: Renovación de Plaza Grau - Elaboración propia 1056 Ilustración 239: Desarrollo de Espacios Públicos Adyacentes - Elaboración propia 1058 Ilustración 240: Desarrollo de Plaza Grau - Elaboración propia 1060 Ilustración 241: Emplazamiento del Conjuto - Elaboración propia

Página I 1000

1063 Ilustración 242: Emplazamiento del Conjunto - Elaboración propia 1068 Ilustración 243: Planimetría del Conjunto - Elaboración propia 1073 Ilustración 244: Cortes del Conjunto - Elaboración propia 1075 Ilustración 245: Cortes del Conjunto - Elaboración propia 1080 Ilustración 246: Plano -1A - Elaboración propia 1082 Ilustración 247: Plano 0A - Elaboración propia 1084 Ilustración 248: Plano 1A - Elaboración propia 1086 Ilustración 249: Plano 2A - Elaboración propia 1088 Ilustración 250: Corte 1A - Elaboración propia 1090 Ilustración 251: Corte 2A - Elaboración propia 1092 Ilustración 252: Corte 3A - Elaboración propia 1094 Ilustración 253: Corte 4A - Elaboración propia 1096 Ilustración 254: Recopilación de vistas Interiores del Bloque A - Elaboración propia 1097 Ilustración 255: Recopilación de vistas del Bloque A - Elaboración propia 1108 Ilustración 256: Plano -4C - Elaboración propia 1110 Ilustración 257: Plano -3C - Elaboración propia 1112 Ilustración 258: Plano -2BC - Elaboración propia 1114 Ilustración 259: Plano -1BC - Elaboración propia 1116 Ilustración 260: Plano 0B - Elaboración propia 1118 Ilustración 261: Plano 0.5B - Elaboración propia 1120 Ilustración 262: Plano 1B - Elaboración propia 1122 Ilustración 263: Plano 2B - Elaboración propia 1124 Ilustración 264: Corte del Bloque B/C - Elaboración propia 1126 Ilustración 265: Cortes del Bloque B/C - Elaboración propia 1128 Ilustración 266: Recopilación de vistas interiores Bloque B - Elaboración propia 1129 Ilustración 268: Recopilación de vistas Bloque C - Elaboración propia

MAPAS

1003 Mapa 231: Circuito Desde Playas Y Áreas Involucradas - Elaboración propia 1004 Mapa 232: Articulación Del Conjunto Con Otras Intervenciones - Elaboración propia 1005 Mapa 233: Compatibilidad De Usos En El Contexto Inmediato - Elaboración propia

TABLAS

1002 Tabla 42: Proyectos Identificados Más Trascendentes En Fase 1 - Elaboración propia 1042 Tabla 43: Reconocimiento de Daños Observados - Elaboración propia 1046 Tabla 44: Acciones de Intervención - Elaboración propia

Página I 1001

PLANTEAMIENTO DE LA PROPUESTA

19.1. DELIMITACIÓN DEL CONJUNTO

19.1.1 PROYECTOS GENERADORES

15: CINETEATRO/ CENTRO SOCIAL ARTÍSTICO

16: CENTRO SOCIAL EDUCATIVO/ ESCUELA LIBRE ACCESO

04 03

05 04

03 05

04 02

17 18

01: CENTRO DE PRODUCCIÓN Y DIFUSIÓN MUSICAL / ESTACIÓN DE RADIO COMUNAL

04 04 05 05 18

TABLA 42: PROYECTOS IDENTIFICADOS COMO LOS MÁS TRASCENDENTES EN FASE 1 FUENTE: ELABORACIÓN PROPIA

En el cuadro se presentan los tres proyectos con mayor puntaje de la primera fase de la planificación. Estos serán los que tengan mayor repercusión y permitirán iniciar el Tema Generador, el cual es una respuesta al Subsistema Decisor. Cabe resaltar que estos tres han mantenido un puntaje mayor al resto por la escala que poseen y también por su ubicación. Los tres se encuentran adyacentes a la Plaza Grau, y configurarían un solo conjunto, el cual deberá responder también a los proyectos adyacentes a futuro y a los procesos de regeneración urbana. En este ámbito se identifica al Parque Natural en la Quebrada Los Perros y el circuito presente desde las Playas hasta este. Por lo tanto, este se configuraría como un mismo nodo que permitiría una transición entre distintas actividades y una gran repercusión económica.

19.
Página I 1002
PROYECTO INTENSIDAD USO REPERCUSIÓN ESCALA ACTIVIDADES TOTAL ACTIVADOR URBANO ACTIVADOR DE INFRAESTRUCTURA

MAPA 231: CIRCUITO DESDE PLAYAS Y ÁREAS INVOLUCRADAS FUENTE: ELABORACIÓN PROPIA

Página I 1003

MAPA 232: ARTICULACIÓN DEL CONJUNTO EN. RELACIÓN A OTRAS INTERVENCIONES FUENTE: ELABORACIÓN PROPIA

Página I 1004

Parque Natural

MAPA 233: COMPATIBILIDAD DE USOS EN EL CONTEXTO INMEDIATO FUENTE: ELABORACIÓN PROPIA

Página I 1005

DIAGRAMA 239: ALCANCES DEL CONJUNTO SOBRE SU ENTORNO FUENTE: ELABORACIÓN PROPIA

Al consolidarse como un nodo, el Conjunto deberá ser capaz de establecer un guión coherente que permita el libre tránsito entre los espacios públicos colindantes. A su vez establecer una experiencia coherente con los alcances del proyecto y el programa.

Como aspectos principales del proyecto se deben destacar tres condicionantes: La primera, la cercanía al Parque Natural en la Quebrada Los Perros, lo cual añade un potencial mayor al tener la posibilidad de ser el punto inicial de este recorrido. La segunda, se intervienen dos edificios históricos y un terreno una vez ocupado por otro edificio emblemático. Finalmente, se configura en el medio de un recorrido urbano proveniente del circuito peatonal.

Página I 1006

BLOQUE 3 EX HOTEL ACTIVADOR DE INFRAESTRUCTURA

PLAZA GRAU CASA DE LA CULTURA INCORPORAR

EX TALLERES DE TREN

16

BLOQUE 2 EX HOTEL PLAZA ACTIVADOR URBANO PUENTE DE FIERRO

BLOQUE 1 CINE - TEATRO ACTIVADOR URBANO

DIAGRAMA 240: RECONOCIMIENTO DEL CONJUNTO Y SUS PARTES FUENTE: ELABORACIÓN PROPIA

El conjunto se compone de tres equipamientos, provenientes del planeamiento urbano y que han presentado el mayor puntaje. En el caso del Bloque 1 se ha optado por respetar su función, esto debido a la gran presencia que posee en la memoria colectiva. Por otro lado, los otros dos se verán actualizados con nuevas funciones. El Bloque 2 respetará la imagen externa y el Bloque 3 deberá completarse. Asimismo, se resalta el potencial de los talleres del ferrocarril cercanos, los cuales pueden complementar el recorrido desde el circuito de playas hacia el Parque Natural.

Página I 1007
01
15

PERTINENCIA EN EL CONTEXTO

El Conjunto cumple con su función activadora y atractora al ubicarse en el área más transitada del área de estudio. Asimismo, resalta por su impacto visual directo desde los mayores puntos de atracción como lo es el circuito de playas y el Castillo Forga. Esto permite que, a nivel visual, pueda ser fácilmente accesible e identificable como una intervención de impacto por la población. Su diseño por lo tanto, al seguir los lineamientos de Shock, permitirá un grado de repercusión. Esto, tanto en la ciudad física como en la ciudad virtual, consolidando un grado de atención con respecto a Mollendo como ciudad. Esta repercusión construye un imaginario colectivo que permitirá ganar un mayor grado de atención de la población, no solo turística, sino también económica.

A fin de poder involucrar al ciudadano, esta deberá ser capaz de consolidarse en la memoria colectiva por medio de la cotidianeidad. Para ello, este deberá articular su programa con los otros presentes en el Banco de Proyectos, los cuales responden a actividades de la zona y a roles determinados. De esta forma, el conjunto podrá ser parte del Sistema sin centrar todas las actividades en sí mismo.

Cabe resaltar la importancia del Espacio Público presente, el cual permitirá una extensión del programa y también supone un atractivo urbano para la reactivación. En este caso, el conjunto incorpora el ingreso al Parque Natural de la Quebrada Los Perros, el Malecón Ratti y la Plaza Grau.

19.1.2.
Página I 1008
ILUSTRACIÓN 220: IMPACTO VISUAL DEL CONJUNTO FUENTE: ELABORACIÓN PROPIA

ILUSTRACIÓN 221: EQUIPAMIENTOS CERCANOS AL CONJUNTO FUENTE: ELABORACIÓN PROPIA

Página I 1009
Página I 1010

1

ILUSTRACIÓN 222: VISTA ISOMÉTRICA DEL CONJUNTO Y EQUIPAMIENTOS DEL ENTORNO INMEDIATO FUENTE: ELABORACIÓN PROPIA

Página I 1011
Página I 1012 2

DIAGRAMA 223: VISTA ISOMÉTRICA DEL CONJUNTO Y EQUIPAMIENTOS DEL ENTORNO INMEDIATO FUENTE: ELABORACIÓN PROPIA

Página I 1013

SUSTENTACIÓN DEL PROGRAMA ARQUITECTÓNICO

19.2.1. SECTORES POTENCIALES PARA ROL DETERMINADO

Para poder cumplir con el Objetivo Principal, el cual consiste en desarrollar una infraestructura generadora, capaz de poder generar tanto una ventaja competitiva frente a otras ciudades, como también el de poder iniciar una base económica activa, será necesario identificar dos factores:

A. Identificar sectores económicos actuales potenciales y acordes al Planeamiento: Provenientes de colectivos, hechos urbanos o gremios, capaces de crear eventos relevantes y configurar una memoria colectiva potente. Pese a la falta de difusión e infraestructura, estructuran a varias actividades económicas que derivan de esta. Estas se identificarán a partir del conteo de actividades del estudio antropológico.

i. Industria Cultural: Evidenciado gracias a la creciente demanda de Mollendo para la producción de videos musicales, debido a su imagen particular, y también a la cantidad de conciertos de música alternativa, tunas y orquestas que se dan en la zona. Asimismo, se ha podido observar una demanda permanente de la actual Casa de la Cultura, adyacente al conjunto, donde se realizan obras de teatro. Cabe destacar que esta actividad en particular era una de las más importantes hace algunas décadas, previo al abandono del Cine - Teatro.

ii. Industria Creativa: Actividad predominante en Verano, donde aumenta la demanda de locales comerciales y donde se ha evidenciado una mayor avance en marketing y el desarrollo de productos.

iii. Industria Recreativa: Donde se reconocen eventos de concentración y fiestas. Estas mismas sugieren un ingreso significativamente mayor al resto de actividades, por lo que supone una actividad fuerza, capaz de financiar a otras.

iv. Industria Deportiva: Una gran mayoría de los eventos realizados a lo largo del año involucran actividades deportivas especiales, como la natación, el ciclismo y atletismo.

Página I 1014
19.2.

DIAGRAMA 241: CATEGORIZACIÓN DE EVENTOS A LO LARGO DEL AÑO FUENTE: ELABORACIÓN PROPIA, A PARTIR DE ANÁLISIS ANTROPOLÓGICO

Página I 1015

Pese a su frágil base socioeconómica, la cultura ha logrado consolidarse como un punto de interés para la industria dentro del Sur del país. Resaltan los festivales musicales, la producción audiovisual y el teatro.

En el Área de Estudio resaltan actividades relacionadas a la industria musical como principal actividad potencial. Esta llega a ser una oportunidad para poder ganar una ventaja a nivel Sur.

Asimismo, la producción audiovisual se reconoce como un medio de difusión en el imaginario colectivo, pudiendo mejorar el alcance de la imagen urbana de Mollendo por medio de esta. Esto permitiría una mayor presencia en la Teleciudad, como también podría catalizar la llegada de inversionistas y artistas. En este sentido, también deben darse las herramientas para el aprovechamiento de estas y consolidarlas mediante el desarrollo de startups y pequeñas empresas. De esta forma se entiende al conjunto como un agente que puede mejorar el ámbito laboral, fomentar el interés en el sitio, complementar el proceso de crecimiento poblacional a escala macro territorial, como también generar productos culturales potencialmente reconocibles en la cultura popular. Por tanto, se reconoce a este como el tema generador.

Página I 1016
ILUSTRACIÓN 224: INDUSTRIA MUSICAL PRESENTE FUENTE: RECOPILACIÓN PROPIA / VÍA FACEBOOK: MOLLFEZT

B. Encontrar una ventaja competitiva frente a otras ciudades: Justificar, mediante data, las posibilidades de estas actividades para poder consolidar una industria potente y única en la región, a fin de poder obtener una ventaja competitiva frente a otras ciudades. Determinar público objetivo, rango de edad y verificar si el impacto social va a de acuerdo a lo establecido en el Planeamiento.

i. Industria Cultural

ILUSTRACIÓN 225: ANÁLISIS DEL CRECIMIENTO DE LA INDUSTRIA MUSICAL FUENTE: PWC PERÚ

De acuerdo a un informe realizado por PwC en el año 2021, la industria musical y radial generarían aproximadamente US$152 millones en el Perú. Asimismo, se proyecta un crecimiento del 5.57% al 2024. Entre los mayores ingresos se encuentra el de conciertos, seguido por música grabada, radio y el formato podcast.

De la misma forma, de acuerdo a Gestión el país lidera el consumo ii de música digital en Sudamérica. Ambos estudios indicarían que en el país existe la demanda suficiente como para poder consolidar una industria musical.

https://gestion.pe/economia/peru-es-el-lider-de-la-musica-digital-en-la-region-noticia/? ii ref=gesr

Página I 1017

A pesar de ello, el Perú se mantiene como el país con menos ingresos en la industria a comparación de países como México, Brasil o Colombia. A su vez, estos tres mantienen una información detallada del formato podcast y su potencial en ingresos por publicidad.

ILUSTRACIÓN 226: COMPARATIVA DE INDUSTRIA MUSICAL-RADIAL A

NIVEL

Esto, contrastado con el reporte de Gestión, evidencia que existe una industria con gran demanda no solo a nivel nacional, sino en toda Sudamérica. Sin embargo, no es aprovechada o potenciada, por lo que esta no ha logrado consolidarse.

ii. Industria Creativa

De acuerdo al Ministerio de Cultura, una gran parte de los ingresos recibidos fueron de parte de sectores como el audiovisual (33.8%), libros y publicaciones (25.9%) y diseño (20.7%). Pese a ello, el aporte neto al PBI Nacional fue del 1.2%, siendo uno de los sectores más débiles del país. Sin embargo, la Cultura como una industria ha podido consolidarse como una economía sólida si es que logra capitalizarse de una forma adecuada. Esta, generalmente acompañada de la creatividad y el impulso que puede lograr en conjunto.

Página I 1018

Los bienes basados en la creatividad han aumentado su valor en el mercado de forma significativa, denotándose en el crecimiento del sector en los últimos años.

ILUSTRACIÓN 227: CRECIMIENTO DE LA INDUSTRIA CREATIVA A NIVEL MUNDIAL FUENTE: UNCTAD - CEPLAN

De acuerdo a la data, la demanda de bienes basados en creatividad representan un nicho de mercado poco explorado y favorable para Mollendo. Esto, debido a que esta no ha sido aprovechada en el país.

ILUSTRACIÓN 228: DELEGACIÓN DE EMPRESAS PERUANAS EN MICSUR - 2014 FUENTE: CEPLAN

Según la CEPLAN, la escasez de infraestructura en las regiones del Perú ha marcado una tendencia nacional, donde gran parte de la producción nacional se concentra exclusivamente en Lima. Ante un cambio sustancial, por tanto, Mollendo se podría consolidar como el principal atractor nacional para el Mercado de Industrias Culturales de Sudamérica (MICSUR).

Página I 1019

19.2.2.

ACTIVIDADES POTENCIALES PARA ROL DETERMINADO

DIAGRAMA 242: ESQUEMA DE INDUSTRIAS INVOLUCRADAS EN EL PROYECTO FUENTE: ELABORACIÓN PROPIA

La programación tiene como objetivo esquematizar la rentabilidad y viabilidad del Tema Generador. La Cultural y Creativa se encuentran al medio de todas.

Página I 1020

CREATIVA

OPERACIONES ADMINISTRATIVAS EDITORIAL

CULTURAL

EDICIÓN: LIBROS PERIÓDICOS REVISTAS INDUSTRIA GRÁFICA +IMPRENTA

Página I 1021
DIAGRAMA 243: ESQUEMA DE ORDENAMIENTO DE ACUERDO A ACTIVIDADES FUENTE: ELABORACIÓN PROPIA Se procede a ordenar las actividades involucradas a cada industria. En este proceso se reconocen aquellas sobresalientes.
PODCASTS PARQUE NATURAL CONCIERTOS OPERACIONES ADMINISTRATIVAS SOFTWARE VIDEOJUEGOS HERRAMIENTAS DIGITALES DISEÑO INDUSTRIAL + PRODUCTOS JUGUETES ARTE GRÁFICO PUBLICIDAD EMPRENDIMIENTO START UPS ECOTURISMO BAR
DIFUSIÓN: LIBRERÍA BIBLIOTECA AUDIOVISUAL CINE TEATRO VIDEOTECA FONOGRÁFICA DIFUSIÓN RADIO MÚSICA

Estrategia de Programación

Inicio del recorrido, el cual es la prolongación del puente de fierro y el circuito de playas. El guión se caracteriza por mantener a la industria cultural como eje permanente y articular el recorrido, sustentándose con actividades atractoras - recaudadoras.

Página I 1022

Se ordenan las actividades reconocidas y según sus relaciones, producto del diagrama anterior, en los tres bloques. Se sigue la lógica planteada de acuerdo a los objetivos de cada equipamiento y manteniendo el carácter buscado para cada edificio. De esta forma: (1) se mantiene como Cine-Teatro, (2) como Industria Creativa y (3) como Industria Cultural - Musical.

DIAGRAMA 244: ESQUEMA DE PROGRAMACIÓN Y NECESIDADES A CUBRIR FUENTE: ELABORACIÓN PROPIA

Página I 1023

19.2.3. DESARROLLO DEL PROGRAMA ARQUITECTÓNICO: MEDIALAB

DIAGRAMA 245: ESQUEMA DE PROGRAMACIÓN DEL CONJUNTO FUENTE: ELABORACIÓN PROPIA

Página I 1024

CONJUNTO: ESQUEMA DE FUNCIONAMIENTO INTEGRAL

Asignación de Roles

Industria Cultural: Audiovisual Cine - Teatro:

Cine - Teatro, de valor cultural, que se extiende a la innovación, a la creación y difusión de la cultura por medios audiovisuales.

Los tres proyectos de intervención se encuentran uno al lado de otro, asimismo se proyectaron todos en la primera fase. Por lo tanto, se deberá variar el planteamiento inicial, unificando los tres en un solo equipamiento. Sin embargo, este se subdividirá en tres bloques, correspondientes a cada edificio. Cada uno tendrá un rol determinado, de acuerdo al programa establecido y compartirán un guión arquitectónico.

Industria Creativa: Start Ups

Laboratorio Participativo

Incubadora de proyectos entre arte, diseño, ciencia y tecnología, que contribuyan a la industria del conocimiento y generando oportunidades de inversión y trabajo.

El eje en común deberá agrupar Espacio Público e Interior de los tres bloques. Para ello, se deberá tener en cuenta la Plaza Grau y la calle 28 de Julio, la cual es una prolongación del Malecón Ratti y finalizará en el Parque Natural.

Industria Cultural: Fonográfico Soundlab

Producción, investigación y difusión de proyectos culturales ligados al Eje Musical, Creativo y Radial.

Bloque 1: Cine Teatro deberá mantener su función, al ser esta la más reconocida hasta el día de hoy. Sin embargo se complementa con un Medialab.

Bloque 2: Laboratorio Participativo que pueda generar proyectos de inversión y Start Ups.

Bloque 3: Soundlab con capacidad de abastecer la demanda musical actual.

Página I 1025
Bloque
Bloque
1
2 Bloque 3
MEDIALAB

A. BLOQUE 1: CINE - TEATRO

Plaza Grau

SalónTaberna Café Literario

Galería Cine

Cuarto Proyección Depósito Cuarto Mando

Foyer Bar

Taller Teatro Centro de Recursos

Teatro

Utilería / Vestuarios

28 de Julio

Butacas Superiores Hall Principal XD Malecón Ratti

Página I 1026

Videoteca

Medialab

Oportunidad Negocio Uso del Artista

Cuarto Pop Up (Usos Temporales)

Ferias Temporales

Venue (Conciertos)

Pasaje Wilson

Conexión

Casa de la Cultura (Existente)

Salón Taberna Barra Cocina

Actividades Recaudadoras Café Literario

Venta Libros Vinoteca Escenario Recital Bar

Venta Entradas Recepción

DIAGRAMA 246: ESQUEMA DE PROGRAMACIÓN DEL BLOQUE A FUENTE: ELABORACIÓN PROPIA

Página I 1027

B. BLOQUE 2: INCUBADORA DE PROYECTOS

Plaza Grau

D

Comercio Infoshop

D Fablab

Hall Principal Conexión

Hacklab Imprenta Diseño Gráfico

Pasaje Wilson Banco de Talentos

Exposición de

Casa de la Cultura (Existente)

Escuela de Libre Acceso Cafetería

28 de Julio

Página I 1028

Espacios de Creación

Incubadora de Proyectos

Librería Materiales Depósito Materiales

Taller

Industria Creati¡va

Fablab Infoshop

Cuarto de Fabricación y experimentación práctica de proyectos diseñados previamente

Tienda de información: Revistas, libros, publicaciones, planos y manuales realizados en este.

Patentes

Coworking Área de Diseño Biblioteca

Espacio de diseño y creación dedicada a software y tecnología Conexión

Hacklab

Banco de Talentos

Incubadora de Proyectos

La ciudadanía y la Academia llevan a cabo investigaciones con usos prácticos y potencialmente aprovechables por el Sector Privado y Público.

El Banco de Talentos permite exponer cuadros académicos y técnicos para poder ser empleados por empresas o el Gobierno.

Los proyectos, por su lado, son exhibidos para su próxima capitalización y consolidar una industria nueva.

DIAGRAMA 247: ESQUEMA DE PROGRAMACIÓN DEL BLOQUE B FUENTE: ELABORACIÓN PROPIA

Página I 1029

C. BLOQUE 3: SOUNDLAB

Industria Musical Estación de Radio Exposición de Patentes

Difusión radial de artistas locales y que genera un interés a nivel Regional. Ingresos por publicidad.

Exposición de Piezas creadas, en formato de audio y diseño gráfico relacionado a eventos/ bandas

Laboratorio Música

Grabación, Producción y Creación de material fonográfico.

Espacios de Interés Actividades Recaudadoras

Tienda de Discos

Venta de Música generada en el equipamiento y que posibilita un ingreso medio. Se venden instrumentos y se alquila equipo.

Salón Común

Sala de Juegos y Ocio, equipada para mantenerse activa durante los días/tardes y mantener un ingreso constante.

Club de Música

Espacio donde se realizan pequeños conciertos y de socialización. Provee un ingreso mayor y permite un grado de ocupación constante.

Conexión

D

Tienda de Discos Exposición de Patentes

Club de Música Tarde/Noche

Comercio / Salón Común

Venue

Página I 1030
Plaza Grau

Soundlab

Estación de Radio

Estudio Prensa Producción Laboratorio Música Salas de Ensayo Manufactura de Discos Sala de Podcast

La industria musical está presente en la actualidad, coincidiendo con el Rol del Bloque. Por ello, se potenciará mediante una infraestructura capaz de capitalizar y maximizar el grado de operatividad de esta. Para ello, se ha identificado al Grupo Mollfezt, el cual ha ido desarrollando festivales de música en los últimos años e impulsando la imagen de Mollendo como atractivo para la producción fonográfica. Socio Activador: Mollfezt

Estación de Inicio Taller de Bicicletas

Parque Natural Los Perros

DIAGRAMA 248: ESQUEMA DE PROGRAMACIÓN DEL BLOQUE C FUENTE: ELABORACIÓN PROPIA

Página I 1031
28 de
Julio

ILUSTRACIÓN 229: INDUSTRIA CULTURAL EXISTENTE EN MOLLENDO FUENTE: RECOPILACIÓN PROPIA

Página I 1032
Imprenta
Página I 1033
FUENTE: FACEBOOK: MOLLFEZT
ILUSTRACIÓN 230: DISEÑO GRÁFICO Y PROMOCIÓN DE MOLLENDO EN LA CULTURA POPULAR

19.3. PROCESO DE INTERVENCIÓN

19.3.1. CONOCIMIENTO DEL CONTEXTO Y EDIFICIOS

19.3.1.1. APROXIMACIÓN HISTÓRICA Y PANORAMA ACTUAL A. PLAZA GRAU

A pesar de ser uno de los puntos más emblemáticos y con mayor carga histórica en todo el área de estudio, la Plaza Grau permanece en desuso gran parte del año. A excepción de la época de carnavales, no se han registrado mayores aglomeraciones e interacciones en esta. Esto se debe en gran medida a la escasez de actividades alrededor de este y sin poder consolidar dinámicas de mayor alcance al interior de esta. Se puede apreciar una diferencia con el Malecón Ratti, el cual a pesar de no tener frentes activos, posee un mayor nivel de actividad. En este último caso, es el potencial visual y las actividades a su interior (comerciantes, artistas y activaciones), las que permiten un grado de uso constante.

La Plaza Grau, desde una perspectiva histórica, ha sido uno de los espacios públicos más importantes de Mollendo desde su expansión, a partir de la década de 1870. Descrito por Carlos Bachmann en 1917 a cargo del Boletín del Ministerio de Fomento, enfatiza su importancia a partir de edificios hoy desaparecidos, pero de gran funcionalidad como la Oficina de Correos y el taller del extinto periódico ‘El Puerto’. En este, lo reconoce como un lugar con comercio activo y conectado al mundo. Atributo perdido el día de hoy.

En cuanto a sus cualidades físicas, los registros fotográficos evidencian la presencia de edificios de importancia mayor como el Banco Italiano, el Banco de Londres, el Cine Teatro de Mollendo y edificios civiles que han podido establecer la imagen urbana vigente, como la casa Delgado, Donelly, la casa comercial Dauelsberg, Schubering & Co, como también el hotel Plaza. Todos ellos construidos en madera de pino Oregon y con la técnica de balloon frame, de influencia estadounidense. Tanto los testimonios, como los edificios evidencian una economía próspera y con una buena capacidad de gasto.

De acuerdo a ello, se establece que se requiere de incentivar los flujos en el interior de la Plaza, como también mejorar la diversidad de actividades en esta. Esta solo podrá ser sustentable trabajando con agentes privados. Además, deberá contemplarse la posibilidad de poder intervenir la Plaza con elementos reversibles que puedan generar un hecho urbano capaz de generar un interés mayor en esta misma.

Página I 1034

ILUSTRACIÓN 231: PLAZA GRAU EN LA ACTUALIDAD FUENTE: ELABORACIÓN PROPIA

Página I 1035

Históricamente este pasaje fue el punto de llegada de una gran cantidad de pasajeros provenientes del Eje Puno-Arequipa. Esta condición explicaría la gran cantidad de hoteles presentes en la zona. Actualmente uno de estos se encuentra en pie, este sería el ex-Hotel Plaza, el cual será intervenido. Asimismo, este también se encuentra en relación directa con la antigua casa comercial Dauelsberg, Schubering & Co, a espaldas del Cine-Teatro. Incluso, la cercanía de este último con la estación de ferrocarril permitió que varias compañías de teatro se presentaran en Mollendo antes de poder ir a Arequipa.

En la actualidad este pasaje ha perdido su importancia, debido a factores relacionados con el cierre de la ruta del ferrocarril y a su desconexión con el Malecón Ratti. Este mismo a causa de varias rampas que evitan una libre circulación entre ambas. No obstante, en ciertas ocasiones este funge como un espacio previo a la Casa de la Cultura, donde se ubicaba el antiguo ferrocarril. A menudo este espacio es utilizado por la Municipalidad de Islay como salón comunal y alberga varios eventos ciudadanos.

Cabe destacar que la propuesta urbana plantea la reactivación de la ruta MollendoPuno, por lo que la calle podrá recobrar su antigua importancia. Asimismo, esta condición permitirá al Medialab (Conjunto) cobrar una mayor relevancia, pudiendo ser evidenciado de una forma más efectiva y brindar más actividades hacia este mercado. Asimismo, permitirá que se recobren tradiciones históricas como la llegada de compañías de teatro por medio de este y sean expuestas de forma continua. Por otro lado, la mejor infraestructura permitiría una industria cultural en condiciones de ser exportada a otras ciudades.

También deberá considerarse que las antiguas barracas del ferrocarril deberán ser reacondicionadas para un rol deportivo-natural, facilitando un flujo mucho más constante hacia el Parque Natural y consolidando el punto de inicio de este, pudiendo también brindar actividades complementarias.

Por lo establecido, se deberá acondicionar las circulaciones de este pasaje a fin de no saturarlo de personas. Esto implicaría unir este pasaje con el Malecón Ratti, a fin de poder mejorar las relaciones espaciales y de función. Asimismo, esto permite una mejor conectividad con el circuito de playas y el parque natural. Por otro lado, este mismo deberá aprovechar el potencial del Medialab y el flujo presente por medio de mobiliario urbano.

B. 28 DE
JULIO
Página I 1036

ILUSTRACIÓN 232: JR 28 DE JULIO EN LA ACTUALIDAD FUENTE: ELABORACIÓN PROPIA

Página I 1037

19.3.1.2. CARACTERÍSTICAS FÍSICAS DE LOS EDIFICIOS

Página I 1038

DIAGRAMA 249: CONSIDERACIONES DE LA RESTAURACIÓN FUENTE: ELABORACIÓN PROPIA, A PARTIR DE PLANTILLA CREADA EN ANÁLISIS PATRIMONIAL

Página I 1039

PATOLOGÍA CONSTRUCTIVA DIAGNÓSTICO

Para el siguiente proceso, se realizará un análisis de los tres bloques y los edificios que actualmente existen. Esto, a fin de poder establecer lineamientos de diseño y medidas que puedan aplicarse para la reparación de los daños que puedan haber. Para ello, se parte del reconocimiento de las anomalías que afectan al edificio e identificar las causas que las provocan. Para ello se tomará en cuenta las siguientes categorías:

A. Identificación de daños:

• Físicos: Daños que alteran la imagen e integridad del edificio sin llegar a comprometer el estado de los materiales. Derrumbes, paredes colapsadas, carpintería dañada. Reparación manejable por métodos arquitectónicos y de ingeniería.

• Químicos: Procesos que comprometen la estructura química del material, alterando sus características principales y por lo tanto, su desempeño en el edificio. La reparación química es costosa y en algunos casos irreversible, por lo que se requiere de un reemplazo de las piezas dañadas.

B. Determinar las causas:

• Vegetación Parásita: Plantas, algas o cualquier organismo vegetal que puede afectar la estabilidad del edificio de manera física (ramas, tallos afectando base) o química (moho).

• Fauna Nociva: Organismos que degradan la materia o alteran la edificación: Roedores que hacen sus madrigueras al interior de paredes, termitas que consumen la madera, palomas o aves que anidan y cuyo excremento corroe el material.

• Agentes Físicos: Acciones físicas que afectan al edificio. En este se incluyen acciones humanas, provenientes del vandalismo, saqueo, incendios y también factores naturales como lluvia, sismos o vientos.

• Agentes Químicos: Acciones químicas provenientes de pinturas, esmaltes o ácidos que producen oxidación, corrosión o eflorescencia.

19.3.2.
Página I 1040

ILUSTRACIÓN 233: DAÑOS FÍSICOS OBSERVADOS EN EL EDIFICIO FUENTE: FOTOGRAFÍA PROPIA

Página I 1041

BLOQUE 1

FÍSICOS QUÍMICOS

Derrumbes y colapsos: Techo principal del área de exhibición Cine - Teatro

Colapso de paredes (tabiques) de vestidores, escenario y taquilla

Deterioros: Barandales y balcones de área de exhibición.

Piso de área de exhibición con partes faltantes.

Vidrios rotos en ventanas laterales superiores

Varias paredes con maderas de cubierta faltantes

Derrumbes y colapsos:

Balcones laterales hacia Bloque 3 Parte del techo del Salón Principal. No estructural.

Zona lateral derecha inhabitable por completo.

Deterioros:

BLOQUE 2

Gran cantidad de la fachada principal trasera presenta tablones faltantes.

Carpintería de ventanas con maderas rotas y que requieren ser reemplazadas.

Gran cantidad de vidrios rotos en la fachada posterior

Oxidación de partes metálicas del techo, causando goteras que filtran hacia el interior.

Oxidación de clavos en varias estructuras del balcón del área de exhibición, volviendo inestable el recorrido ahí.

Moho en piso de vestidores

Carpintería de ventanas laterales superiores totalmente podrida Cerrojos y manijas oxidados

Oxidación de partes metálicas del techo.

Oxidación de carpintería metálica de varias ventanas de fachada a pasaje Wilson.

Tablones hinchados en balcones que vuelven difícil la circulación.

- Varias piezas de madera de la fachada posterior lateral derecha muestran signos de putrefacción y necesitan ser reemplazadas.

2 Columnas de madera, pertenecientes al balcón lateral derecho en estado de putrefacción, pudiendo generar un colapso repentino. Requieren su reemplazo.

BLOQUE 3

Destrucción completa del edificio, salvo elevación principal y parte de un tabique en la parte posterior.

Irrecuperable.

Madera totalmente corroída y todos los clavos en estado de oxidación. Imposible de recuperar, salvo frentera principal y tabique posterior.

Página I 1042

CAUSAS FÍSICOS QUÍMICOS

VEGETACIÓN PARÁSITA

No se registran árboles, arbustos o especies que comprometan físicamente a cualquiera de las edificaciones.

Se encuentra algo de moho en los pisos pertenecientes al suelo de ambientes húmedos, como baños o vestidores. Su presencia no es lo suficientemente fuerte como para comprometer a cualquier edificio.

Pequeños agujeros en algunos tabiques y pisos de los Bloques 1 y 2 sugieren presencia de roedores.

FAUNA NOCIVA

FÍSICAS

Gran presencia de telarañas, sin embargo no afectan al edificio o su integridad.

- Excremento de aves en ventanas con vidrios rotos y techos con piezas faltantes posee ácidos que afectan la madera y explican la total destrucción de la carpintería.

Acciones humanas negativa, como grafitis y romper vidrios no alteran la estructura, pero sí afectan la imagen del edificio. Por otro lado, bandas delincuenciales suelen desmontar partes de madera para venderla en otros lugares. Esto altera directamente la estructura del edificio.

El Bloque 2 presenta varias intervenciones improvisadas realizadas en ladrillo y cemento. Esto produce una acción de choque durante sismos, al tener un comportamiento estructural distinto, causando mayor daño a la estructura original.

Fugas de agua, provenientes de tuberías no tratadas sobresatura la madera y produce su hinchazón. En algunos casos, también su putrefacción.

Algunas partes del Bloque 2 presentan signos de un pequeño incendio. Estas partes requieren ser reemplazadas.

QUIÍMICOS

No se registran acciones químicas que puedan haber causado daños físicos en cualquiera de los edificios.

Corrosión de la madera a causa de aplicación de pintura inadecuada, sin haber utilizado impermeabilizantes o haberla lijado previamente, lo que ha producido pequeñas burbujas en la pintura y mayor desgaste en la madera.

TABLA 43: RECONOCIMIENTO DE DAÑOS OBSERVADOS FUENTE: ELABORACIÓN PROPIA

Página I 1043

ILUSTRACIÓN 234: DETERIORO DE LA ESTRUCTURA Y DAÑOS EN EL TECHO DEL BLOQUE B FUENTE: FOTOGRAFÍAS PROPIAS

Página I 1044

ILUSTRACIÓN 235: DAÑOS FÍSICOS OBSERVADOS EN EL EDIFICIO FUENTE: FOTOGRAFÍA PROPIAS

Las fotografías evidencian un alto grado de abandono y deterioro. Sin embargo, cabe destacar que la mayor parte del deterioro en las edificaciones implicadas es de carácter físico. Es decir, que puede ser reparado por procesos convencionales., al no encontrarse comprometida la estructura principal o el material del que está hecho. Esto, debido a que el sistema de Balloon Frame utiliza una lógica constructiva basada en un esqueleto estructural que no depende de un solo elemento estructural, como si es el caso del sistema aporticado utilizado en la actualidad.

El reporte de daños indica que los bloques 1 y 2 pueden ser restaurados para albergar los equipamientos presentados. Sin embargo, la edificación previa al Bloque 3 se encuentra totalmente colapsada, siendo necesario su total demolición para el equipamiento restante.

Página I 1045

ACCIONES DE INTERVENCIÓN

PRELIMINARES

ERRADICACIONES

Limpieza, preparación del inmueble para su intervención:

Eliminación de factores de deterioro

Desmontar piezas oxidadas para su restauración en taller, señalética para evitar posibles daños al edificio y valla perimetral, a fin de evitar el continuo saqueo de piezas de valor histórico.

Fumigación de plagas, como insectos o roedores. Piezas estructurales, tabiquería o pisos en estado de colapso que puedan ceder en plena intervención. Para este último caso, contemplar soportes provisionales.

LIBERACIONES

Remoción de elementos agregados a lo largo del tiempo que afecten el comportamiento estructural, aspecto visual o su función interna.

Demoler las intervenciones hechas en ladrillo y concreto, los cuales comprometen la estructura. También deberán lijarse todas las paredes pintadas recientemente, al no haberse empleado una pintura adecuada. Adicionalmente, se deberán cerrar y retirar todas las tuberías improvisadas que han humedecido el material y provocado moho.

Reestructuración: Rescatar elementos estructurales actuales

Al ser un sistema basado en un esqueleto estructural, donde todas sus piezas forman un todo, solo se deberá reemplazar aquellas que presentan mayor grado de deterioro. Utilizar el mismo material: Pino Oregon. Esto es posible y asequible al estar disponible en el mercado local en la actualidad.

CONSOLIDACIONES CONSTRUCTIVAS

Acciones destinadas a recuperar la capacidad estructural

Estructuración: Inserción de elementos estructurales nuevos, pero compatible con el actual.

Al existir un programa mayor y una mayor intensidad de uso, se debe reforzar la estructura con el sistema de Steel Frame. Ambos son compatibles al tener el mismo esquema tectónico y armarse por partes. Este deberá reforzar esquinas, permitir dobles alturas y permitir prescindir de ciertos tabiques intermedios que actúan como refuerzo estructural.

REINTEGRACIÓN

INTEGRACIÓN

Devolver a su ubicación original las piezas del edificio.

Tratamiento visual del edificio con elementos nuevos, compatibles y diferenciados del original.

Ensamblar piezas restauradas en el taller, retiradas previamente.

Trabajar en madera, metal y vidrio. Los materiales se trabajan de una manera distinta al original, con una carpintería distinta y un estilo arquitectónico vigente, que pueda resaltar y dar un nuevo carácter al conjunto.

TRATAMIENTOS

ACABADOS

COMPLEMENTARIOS

Limpieza y prevención de deterioro

Aplicar una superficie final

Sistema de mantenimiento

Se procede a aplicar aditivos y esmaltes que permitan aumentar la resistencia del material (madera/metal) frente a la humedad, calor y corrosión por acción de agentes bióticos

Aplicar pintura a revestimientos de madera y metal, con una paleta de colores distinta, pero proveniente del análisis arquitectónico-histórico. Terminar con detalles de vidrio y carpintería.

El mantenimiento deberá ser anual, no requiriendo revisiones exhaustivas.

TABLA 44: ACCIONES DE INTERVENCIÓN FUENTE: ELABORACIÓN PROPIA

19.3.3.
Página I 1046

ESTRATEGIAS DE INSERCIÓN EN PAISAJE URBANO

ENCHUFE

Reciclar parcelas abandonadas en áreas urbanas. Utilizar en Bloque 3, con una estructura que pueda adosarse a los otros bloques.

ACONDICIONAMIENTO

Reciclar y activar estructuras abandonadas en áreas urbanas. E en Bloques 1 y 2, Cine Teatro y Hotel Plaza, respectivamente.

ESTRATEGIAS DE INTERVENCIÓN ARQUITECTÓNICA

1. STEEL FRAME 2. COMPLEMENTO

Al ser un conjunto que comparte un mismo guión, se requerirá de la unión de los tres bloques. Para ello, se necesitará reforzar los edificios existentes con una estructura que comparta el mismo comportamiento estructural utilizado. A fin de minimizar riesgos, se utiliza el Steel Frame.

El Bloque 3 requerirá de un sistema constructivo que pueda adosarse al Bloque 2. Se decide usar el sistema Platform Frame, el cual permite un montaje por partes. Esto a diferencia del balloon frame, que trata a todo el edificio como única pieza.

3. RESTAURACIÓN

Se aprovecha una ventaja del sistema Balloon Frame. Al no depender de vigas o columnas, su estructura permanece inalterable a pesar de daños en las piezas. Por lo tanto, es posible reemplazar estas mismas con piezas en buen estado.

DIAGRAMA 250: PARÁMETROS DE DISEÑO E INSERCIÓN EN EL CONTEXTO FUENTE: ELABORACIÓN

PROPIA

Página I 1047
1 2

19.3.4. PRESENTACIÓN DEL PROYECTO

ENTORNO ACTIVADO PUNTO DE REFERNCIA INMEDIATO

Página I 1048
Página I 1049
ALCANCE DE INDUSTRIA CREATIVA ALCANCE DE INDUSTRIA DEPORTIVA ACTIVIDADES RECAUDADORAS ALCANCE DE INDUSTRIA CULTURAL
ILUSTRACIÓN 236: ABSTRACCIÓN PROGRAMÁTICA DEL PROYECTO FUENTE: ELABORACIÓN PROPIA LEYENDA
19.3.5.
Página I 1050 esc 1 / 100 EMPLAZAMIENTO
DEFINICIÓN DEL CONJUNTO

CONJUNTO: ESQUEMA DE FUNCIONAMIENTO INTEGRAL

1 2

1

PROLONGACIÓN A PARQUE NATURAL Espacios públicos de transición y caracterizados

Activación de flujos, vía Circuito PlayasParque Natural 2

PLATAFORMAS PÚBLICAS

Se articulan los tres bloques en un solo guión arquitectónico. Este plantea mejorar las relaciones entre las actividades del programa.

ILUSTRACIÓN 237: EMPLAZAMIENTO DEL CONJUNTO FUENTE: ELABORACIÓN PROPIA

Página I 1051

DESARROLLO DEL ESPACIO PÚBLICO

La Plaza Grau presenta altos índices de inactividad durante gran parte del año, pese a ser un punto principal de la ciudad en Verano. Por tal motivo, se plantea el rediseño y acondicionamiento de la plaza, acorde al estudio antropológico de flujos y actividades.

Esto a su vez, se complementa con la postura establecida, donde se indica que el espacio debe evolucionar y no está sujeto a su conservación. Bajo esta perspectiva, la renovación no es excluyente del sentido de pertenencia.

DIAGRAMA 251: VISTA ISOMÉTRICA DEL PROYECTO Y ESPACIO PÚBLICO FUENTE: ELABORACIÓN PROPIA

Página I 1052
Página I 1053
Página I 1054
Página I 1055
238: RENOVACIÓN
PLAZA GRAU FUENTE: ELABORACIÓN PROPIA
ILUSTRACIÓN
DE
Página I 1056 esc 1 / 750 ESPACIO PUBLICO DEL CONJUNTO

DISEÑO DE ESPACIOS PÚBLICOS GENERALES

1

MAYOR PRESENCIA COLECTIVA DE LA PLAZA GRAU

Intervención temporal que permite identi fi car rápidamente a la Plaza Grau dentro de la Telépolis.

MAYOR ESTANCIA CAMINO A PARQUE NATURAL

Paso subterráneo en rampa desde Malecón Ratti hasta Parque Natural. Se complementa el recorrido con terrazas adicionales en la actual Casa de Cultura y futuro Equipamiento lateral

ILUSTRACIÓN 239: DESARROLLO DE ESPACIOS PÚBLICOS ADYACENTES FUENTE: ELABORACIÓN PROPIA

Página I 1057
esc 1 / 250 GALERÍA CULTURAL BALCÓN PRINCIPAL NPT +- 0.00 TABERNA SSHH VARONES SSHH DAMAS NPT +- 0.00 EXHIBICIÓN DE OBRAS FOYER PROYECCIÓN HACIA ABAJO PROYECCIÓNHACIAABAJO ESPACIO DE ESPARCIMIIENTO COMERCIAL IMPLEMENTACION PLAZA GRAU

CONJUNTO: ESQUEMA DE FUNCIONAMIENTO INTEGRAL

GALERÍA DE DISEÑO

1 NPT +- 0.00

MEJORA DE RECORRIDO Y FOMENTO ENCUENTRO

El rediseño de las áreas verdes parte del original como esquema base. Sobre este se ha superpuesto los trazos correspondientes a la unión de los puntos con mayor flujo. Asimismo, el centro de la Plaza queda delimitado por u cuadrado que permite un reconocimiento visual mayor.

AUMENTO DE OPORTUNIDAD DE EMPRENDIMIENTO

Mejorar las codiciones para permitir un comercio de mayor nivel y mejor calidad, traduciédose en activación de la Plaza.

Página I 1059
ILUSTRACIÓN 240: DESARROLLO DE PLAZA GRAU FUENTE: ELABORACIÓN PROPIA Impresora

DESARROLLO DEL EQUIPAMIENTO

Página I 1060
19.3.6.

Mollendo se caracteriza por la imagen histórica que proyecta a partir de los atributos de la arquitectura del sitio.

Esta es de carácter tectónico y destaca por su emplazamiento. La topografía del lugar ha permitido que varios edi fi cios puedan ser reconocidos en el imaginario colectivo.

Dentro de estos destaca el Cine Teatro y el antiguo Hotel Plaza, los cuales mantendrán su imagen actual. Sin embargo, a fin de establecer un principio de imagen atractora y potencialmente viral, se harán añadidos (reversibles) del mismo carácter tectónico.

ILUSTRACIÓN 241: EMPLAZAMIENTO DEL CONJUNTO FUENTE: ELABORACIÓN PROPIA

Página I 1061
Página I 1062

DESARROLLO DEL EQUIPAMIENTO

Los añadidos pretenden ser un complemento a la imagen actual, trasformándola en una que pueda proyectar los objetivos a la fecha meta.

La imagen resultante destaca por su alta presencia y el uso de símbolos (Tinglado Decorado) de fácil percepción y que puedan establecer a nivel urbano la importancia del Proyecto, el cual es el punto de partida a una ciudad llamativa y reinventada.

Destacan las proyecciones en los ventanales laterales, la estructura ligera escalonada, las escaleras como conductor del Guión Arquitectónico y las antenas de señal radial en forma de tubo.

ILUSTRACIÓN 242: EMPLAZAMIENTO DEL CONJUNTO FUENTE: ELABORACIÓN PROPIA

Página I 1063

INTEGRACIÓN DEL GUIÓN

SUPERIOR A

CINE TEATRO - SOUNDLAB

Utilizar estructura complementaria como extensión de actividades, añadir actividades recaudadoras y capitalizar valor visual.

DIAGRAMA 252: DESARROLLO DEL GUIÓN ARQUITECTÓNICO FUENTE: ELABORACIÓN PROPIA

A.
Página I 1064
3

PUENTE

CINE TEATROINCUBADORA DE PROYECTOS - SOUNDLAB

Unión sobre Pasaje Wilson que integra el guión del Bloque 1 con los restantes. Este plantea una imagen exterior reconocible.

PROLONGACIÓN

INCUBADORA DE PROYECTOS - SOUNDLAB

Bloque nuevo, por lo que el guión deja de atravesar el edificio como un elemento adicional y procede a integrarse con el edificio.

D

INFERIOR

SOUNDLAB

Se plantea una extensión subterránea que pueda articular el conjunto con el equipamiento complementario del Parque Natural

DIAGRAMA 253: DESARROLLO DEL GUIÓN ARQUITECTÓNICO FUENTE: ELABORACIÓN PROPIA

Página I 1065
B C

CREACIÓN Y ESTRUCTURACIÓN DEL GUIÓN ARQUITECTÓNICO

El proyecto consta de tres bloques en línea recta. Esto no permite configurar un espacio público común para articular las actividades. Por lo tanto, el circuito (creado a partir del Guión Arquitectónico) será el que pueda integrar todo el conjunto.

Al incluir dos edi fi cios independientes y añadir un bloque entero, se requirió de un puente en el circuito para poder armar el recorrido. Este se encuentra en el Nivel 0 y articula actividades compatibles. En este caso, las actividades recaudadoras y las galerías introductorias a cada bloque y sus actividades.

DIAGRAMA 254: ESTRUCTURACIÓN ESPACIAL DEL GUIÓN ARQUITECTÓNICO FUENTE: ELABORACIÓN PROPIA

Cine-Teatro consta de tres niveles y articula las actividades y dominios en función al circuito tipo galería. En este destaca el puente que parte en el Nivel 0 hacia el Bloque B

Se plantea una extensión subterránea que pueda articular el conjunto con el equipamiento complementario del Parque Natural

Página I 1066
A B A B C
INCUBADORA - SOUNDLAB
Página I 1067 C CIRCULACIONES VERTICALES

B. EXPEDIENTE DEL PROYECTO

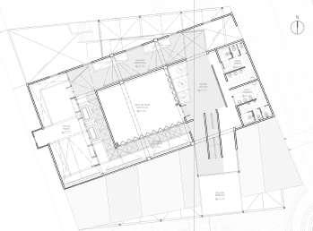
PLANIMETRÍA DEL CONJUNTO

B C

A FUTURO

COMPONENTES DEL CONJUNTO B

ILUSTRACIÓN 243: PLANIMETRÍA DEL FUENTE: ELABORACIÓN PROPIA

Página I 1068
PROYECCIÓN HACIA ABAJO PROYECCIÓNHACIA A
D
Bloques complementarios que albergan un manejo independiente A A
D
Página I 1069 B C C esc 1 / 750
GENERAL D
PLANIMETRIA

DESARROLLO DEL EQUIPAMIENTO POR NIVELES

El proyecto se desarrolla en 7 niveles. Sin embargo esto se debe a la topografía y la diferencia entre alturas que existe en el sitio.

Por el emplazamiento actual y también para un mejor manejo del espacio disponible, se recurren a estructuras subterráneas, iluminadas y ventiladas por medio de patios y salidas de luz.

Asimismo, se plantean las bases para proyectos a futuro, como es el caso del Centro Deportivo y de Educación Ambiental al ingreso del Parque Natural.

DIAGRAMA 255: ISOMETRÍA DEL CONJUNTO FUENTE: ELABORACIÓN PROPIA

1

NIVEL 1

Sin relación entre bloques. Bloque A presenta la estructura adosada. Bloque B alcanza su máxima altura y no se desarrolla.

2 -1 -2

Bloque A independiente. Bloque B-C interactúan por medio de galería desde coworking hasta Estación de radio.

Bloque B - C con relación espacial, pero con manejo de dominios que permitan limitar la interacción.

Página I 1070

FACHADAS

Restaurar y preservar las fachadas actuales correspondientes al Cine-Teatro y el Hotel Plaza, debido a su alto reconocimiento actual y valor histórico. Bloque C y estructuras adosadas en lenguaje contemporáneo y contrastante

NIVEL 0

Ingreso desde la calle a bloques A y B. Ambos interactúa y se conectan mediante estructura metálica que estructura el sistema de galerías acorde a las necesidades de cada dominio. Bloque C sin interacción.

Venta de material diseñado y fabricado en el equipamiento. Productos (Incubadora) y una tienda de Discos (Soundlab)

Ingreso desde la calle hacia Bloque C. Creación de patio intermedio que pueda permitir una conexión con centro deportivo y de educación ambiental

Nivel Subterráneo con aislamiento acústico y térmico. Iluminado por patios subterráneos que también articulan dominios en (-3)

Página I 1071
F 0 .5 -3 -4

CORTE GENERAL A - A

esc 1 / 200

CORTE GENERAL B B

esc 1 / 200

Página I 1072

ILUSTRACIÓN 244: CORTES DEL CONJUNTO FUENTE: ELABORACIÓN PROPIA

Página I 1073

CORTE GENERAL C C

esc 1 / 200

CORTE GENERAL D D

esc 1 / 200

Página I 1074

ILUSTRACIÓN 245: CORTES DEL CONJUNTO FUENTE: ELABORACIÓN PROPIA

Página I 1075

A

CINE TEATRODIFUSIÓN CULTURAL Y DE ARTE

BLOQUE INDEPENDIENTE

El Bloque consta de la Sala Principal y un SUM como espacios principales. Se mantiene el carácter cultural por medio de galerías de exposición. Económicamente se sostiene por los espacios recreativos, acorde al estudio de mercado

DIAGRAMA 256: ISOMETRÍA Y FLUJOS DE BLOQUE A

FUENTE: ELABORACIÓN PROPIA

Página I 1076
A

Los flujos esquemáticos representan el recorrido planteado, el cual es circular y bordea a los espacios principales. A nivel de la Plaza Grau se conecta con el resto del conjunto

Página I 1077 A

ESPACIALIZACIÓN DEL PROGRAMA - BLOQUE A

ESQUEMA A

SUM COMO ELEMENTO PRINCIPAL NIVEL 1 INGRESO A CINE POR (-1)

El ingreso al Cine-Teatro es a través del patio subterráneo y que finaliza en el pasaje Wilson.

ESQUEMA B

SALA PRINCIPAL DESTACA CON LA SALA DE USOS MÚLTIPLES

Adicional a los dos espacios articuladores nace el Pop Up Room, al cual se entiende como un espacio de exposiciones/ferias temporales.

ESQUEMA C

Se preservan las fachadas. Sin embargo, debido al alto grado de deterioro, se hace un manejo interior más flexible

DIAGRAMA 257: PROGRAMACIÓN EN CORTE FUENTE: ELABORACIÓN PROPIA

Página I 1078

SALA PRINCIPAL DE CINE - TEATRO

SALA DE USOS MÚLTIPLES TERRAZA PRINCIPAL (RECAUDADORA)

BLOQUE DE SERVICIOS GALERÍAS Y RECORRIDO PRINCIPAL TABERNA (RECAUDADORA)

SALA PRINCIPAL DE CINETEATRO

GALERÍA CULTURAL

SALA DE USOS MÚLTIPLES

LIBRERÍA & VINOTECA (RECAUDADORA)

GALERÍAS Y RECORRIDO PRINCIPAL TABERNA (RECAUDADORA)

DIAGRAMA 258: DISTRIBUCIÓN DE ESPACIOS PRINCIPALES FUENTE: ELABORACIÓN PROPIA

Página I 1079
1 2
Página I 1080
A A B
D
NPT - 2.40 PLAZA DE RECEPCIÓN NPT - 2.40 GUARDIANÍA BOLETERÍA NPT 2.40 GALERÍA DE EXHIBICIÓN NPT 2.40 FOYER PRINCIPAL NPT 2.40 CENTRO DE RECURSOS PARA TEATRO NPT 2.40 AULA 1 NPT - 2.40 AULA 2 NPT ALMACÉN UTILERÍA NPT - 2.40 CUARTO DE PROYECCIONES NPT - 2.40 FOYER PRINCIPAL NPT - 3.40 SALA DE EXHIBICIÓN PRINCIPAL 1 2 3 4 5 6 7 8 9 10 NPT - 2.40 CONTROL A SALA PRINCIPAL 1 2 3 1 2 3 4 5 4 3 2
C

ACTIVIDADES RECAUDADORAS

Bar Principal como Boletería y como activador del Pasaje Wilson, con actividades en los intermedios generados con la estructura

CINE-TEATRO + AUXILIAR

Salas de proyección y salas de centro de recursos para talleres de teatro. + Camerinos

Página I 1081 NPT 2.40 CAMERINO DAMAS NPT - 2.40 ALMACÉN DE UTILERÍA NPT - 2.40 CAMERINO VARONES NPT - 3.00 BAR / BOLETERÍA NPT - 4.24 HALL DE RECEPCIÓN NPT - 4.24 SSHH DAMAS NPT - 4.24 SSHH VARONES 3 4 5 6 7 8 9 10 11 12 14 15 16 18 19 23 22 20 21 2 2 1
ILUSTRACIÓN 246: PLANO -1A FUENTE: ELABORACIÓN PROPIA
esc 1 / 125 BLOQUE A / NIVEL 1
DESCARGA EN
B
D
A1 1 2
C
Página I 1082 NPT +- 0.00 GALERÍA CULTURAL NPT +- 0.00 BALCÓN PRINCIPAL NPT +- 0.00 TABERNA NPT +- 0.00 COCINA NPT +- 0.00 TIENDA DE LIBROS & VINOTECA NPT +- 0.00 EXHIBICIÓN OBRAS NPT +- 0.00 FOYER 1 2 3 4 1 3 4 1 2 3 4 5 6 7 8 9 10 12 13 14 15 PROYECCIÓN HACIA ABAJO PROYECCIÓNHACIAABAJO A A D B C

Taberna actúa como dinamizador de la calle y a su vez se consolida como un lugar de alta presencia, aumentando su valor y atractivo de inversión.

Tienda de Libros & Vinoteca es un espacio que integra actividades culturales independientes relacionadas a la literatura (recitales/ lanzamientos de libros) y el atractivo de una actividad altamente rentable en el sitio.

Página I 1083 NPT +- 0.00 SALA DE CATA NPT +- 0.00 SSHH VARONES NPT +- 0.00 SSHH DAMAS EXHIBICIÓN DE PROYECCIÓNHACIAABAJO 1 3 4 5 9 8 10 3 4 5 6 7 8 9 10 11 13 15 17 19 24 23 22 20 21 ILUSTRACIÓN 247:PLANO 0A FUENTE: ELABORACIÓN PROPIA BLOQUE A / NIVEL 0
ACTIVIDADES RECAUDADORAS DESCARGA EN A1 3 D B C
Página I 1084 NPT + 3.00 SALA DE USOS MÚLTIPLES GALERÍA VIDEOTECA POP-UP ROOM GALERÍA VIDEOTECA PROYECCIÓNHACIAABAJO PROYECCIÓN DE VIDEO PROYECCIÓN DE VIDEO PROYECCIÓN DE VIDEO PROYECCIÓNDEVIDEO PROYECCIÓNDE VIDEO PROYECCIÓN DE VIDEO NPT + 3.00 NPT + 3.00 NPT + 3.00 A A D B C

El Pop Up Room es un espacio destinado a renta. Esta va dirigida a gremios, empresas y colectivos que quieran hacer uso del espacio para ferias itinerantes, exposiciones o activaciones. Tiene la capacidad de poder integrarse con el SUM por medio de la tabiquería dinámica. A diferencia de este último, este no es independiente, sino que es parte del recorrido, integrándose a la Videoteca del sitio.

Página I 1085 FOYER DE SUM BALCÓN MIRADOR NPT - 2.40 SSHH VARONES NPT - 2.40 SSHH DAMAS PROYECCIÓNHACIA ABAJO 1 2 3 4 5 7 6 9 8 11 10 12 13 14 15 17 18 19 NPT + 3.00 NPT + 3.00 ILUSTRACIÓN 248: PLANO 1A FUENTE: ELABORACIÓN PROPIA esc 1 / 125 BLOQUE A / NIVEL 1
ACTIVIDADES RECAUDADORAS DESCARGA EN A1 4 D B C

PROYECCIÓNHACIAABAJO

Página I 1086
A A
D
B C

El último piso goza de una vista privilegiada hacia la Plaza Grau y al mar. Adicionalmente, permite al usuario un mejor reconocimiento del edi fi cio original mediante el contraste del proyecto de intervención. Al ser un punto con alto valor añadido, este puede fungir como mirador y adicionalmente albergar un esquema de negocio pequeño, activaciones o eventos.

Página I 1087 3 4 5 7 6 8 12 13 14 15 16 17 18 19 NPT + 6.00 ÁREA RECAUDADORA + TERRAZA ILUSTRACIÓN 249: PLANO 2A FUENTE: ELABORACIÓN PROPIA esc 1 / 125 BLOQUE A / NIVEL 2
ACTIVIDADES RECAUDADORAS DESCARGA
5 D C B
EN A1
Página I 1088 esc 1 / 125 BLOQUE A / CORTE A A

ILUSTRACIÓN 250: CORTE 1A FUENTE: ELABORACIÓN PROPIA

Página I 1089
Página I 1090 esc 1 / 125 BLOQUE A / CORTE B B

ILUSTRACIÓN 251: CORTE 2A FUENTE: ELABORACIÓN PROPIA

Página I 1091
Página I 1092 esc 1 / 125 BLOQUE A / CORTE C C

ILUSTRACIÓN 252: CORTE 3A

FUENTE: ELABORACIÓN PROPIA

Página I 1093
Página I 1094 esc 1 / 125 BLOQUE A / CORTE D - D

ILUSTRACIÓN 253: CORTE 4A

FUENTE: ELABORACIÓN PROPIA

Página I 1095

ILUSTRACIÓN 254: RECOPILACIÓN DE VISTAS INTERIORES DEL BLOQUE FUENTE: ELABORACIÓN PROPIA

Página I 1096
1 2

ILUSTRACIÓN 255: RECOPILACIÓN DE VISTAS DEL BLOQUE FUENTE: ELABORACIÓN PROPIA

Página I 1097
3 4
Página I 1098 C B
INCUBADORA DE PROYECTOSSOUNDLAB

BINCUBADORA DE PROYECTOS + COWORKING

Bloque orientado al diseño, creación y difusión de autoría local, con vista a ser la promotora a nivel Sur de tecnología e innovación.

CSOUNDLAB & ESTACIÓN DE RADIO

Bloque orientado al desarrollo de la industria musical y de escucha. En esta destaca la producción local y difundida a nivel Nacional

DIAGRAMA 259: ISOMETRÍA Y FLUJOS DEL BLOQUE B&C FUENTE: ELABORACIÓN PROPIA

Página I 1099
B
C

BLOQUE B

INCUBADORA DE PROYECTOS & ESCUELA ABIERTA

El Bloque se desarrolla en función a los procesos de diseño y creación.

Conexión con el Bloque A por medio del puente y que atraviesa la Biblioteca, llegando hasta el bloque C. A nivel subterráneo se aprovecha para escuelas de acceso libre para uso de gremios y colectivos.

DIFERENCIACIÓN ENTRE CREACIÓN DE PRODUCTOS/DISEÑO Y TECNOLOGÍA /HACKLAB

En una parte del Bloque se destinan usos para el diseño y manufactura de proyectos físicos (electrodomésticos/juguetes/herramientas) y virtuales (programas/tecnología)

Página I 1100
B

La escuela abierta se plantea como áreas equipadas para el desarrollo y difusión del conocimiento a cargo de gremios y grupos especializados

FABLAB Y COWORKING COMO ESPACIOS PRINCIPALES DE PRODUCCIÓN CREATIVA

DIAGRAMA 260: PROGRAMACIÓN EN CORTE FUENTE: ELABORACIÓN PROPIA

Página I 1101

GALERÍAS Y RECORRIDO PRINCIPAL

BIBLIOTECA & COWORKING (TALLER)

ESCUELA ABIERTA

FABLAB: MÓDULOS DE MANUFACTURA

HACKLAB & TECNOLOGÍA

CAFETERÍA (RECAUDADORA)

El bloque se especializa en la producción de patentes y provee al usuario de todos los insumos requeridos para su ejecución. (Conocimiento & Herramientas)

Página I 1102 B

GALERÍAS Y RECORRIDO PRINCIPAL BIBLIOTECA & COWORKING (TALLER)

ESCUELA ABIERTA

FABLAB: MÓDULOS DE MANUFACTURA

HACKLAB & TECNOLOGÍA

CAFETERÍA (RECAUDADORA)

DIAGRAMA 261: DISTRIBUCIÓN DE ESPACIOS PRINCIPALES FUENTE: ELABORACIÓN PROPIA

Página
I 1103

SOUNDLAB & ESTACIÓN DE RADIO

El Bloque C se encuentra próximo al Bloque B y no es independiente a este, pues comparten las circulaciones. No obstantes, cada parte del programa posee un control que permite manejar los dominios y flujos al interior. Consta de una estación de radio, un Venue (lugar para conciertos y música) y estación de grabación musical Dentro del programa, resalta la estación de radio por trascendencia y el Venue, por intensidad de uso. Este mismo es captado como recaudador.

El nivel correspondiente al ingreso por el pasaje Wilson se caracteriza por las actividades que desbordan a las terrazas próximas, dinamizando a la calle y mejorando la estancia.

Página I 1104 C
BLOQUE C

ESTACIÓN DE RADIO REQUIERE DE ANTENAS. ESTAS SON EN FORMA DE TUBO Y PINTADAS EN AZUL PARA PODER SER IDENTIFICADAS

DIAGRAMA 262: PROGRAMACIÓN EN CORTE FUENTE: ELABORACIÓN PROPIA

Página I 1105

El Bloque se especializa en actividades de producción auditiva y en actividades difusoras relacionadas. Como industria, es rentable a largo plazo, por lo que se requiere de un gran ingreso para poder financiar las actividades. Por tal motivo, cada espacio maneja un sistema independiente.

Página I 1106 C
SOUNDLAB VENUE/BAR (RECAUDADOR) ESTUDIO DE GRABACIÓN SOUNDLAB HALL PRINCIPAL

GALERÍAS Y RECORRIDO PRINCIPAL

ESTACIÓN DE RADIO

ESTACIÓN DE RADIO

Ingresos por publicidad (compatibilidad con Bloque B)

VENUE / BAR Espacio destinado a conciertos y actividades nocturnas, con un dominio propio. Ingresos signi fi cativos y constantes, que a su vez mejoran la presencia del equipamiento en la memoria colectiva.

ESTUDIO DE GRABACIÓN

Ingresos por alquiler (ensayos) y grabación. Ofrece la infraestructura para crear material físico y digital para su venta.

DIAGRAMA 263: DISTRIBUCIÓN DE ESPACIOS PRINCIPALES FUENTE: ELABORACIÓN PROPIA

Página I 1107

Página I 1108 PATIO DE RECEPCIÓN NPT -12.20 PODCAST ESTUDIO NPT -12.20 ZONA DE EDICIÓN CUARTO DE INSTRUMENTOS NPT -12.20 SSHH VARONES NPT -12.20 SSHH DAMAS NPT -12.20 NPT -12.20 FABRICA DE DISCOS / VINYL PATIO SUBTERRÁNEO 12 17 ZONA DE EDICIÓN CUARTO DE INSTRUMENTOS ILUSTRACIÓN 256: PLANO -4C FUENTE: ELABORACIÓN PROPIA A A B

SALA DE ENSAYOS & ESTUDIO PODCAST

Espacios destinados al alquiler de instrumentos para ensayo y opción de grabación + edición. Asimismo posee la infraestructura para grabar el material en formato físico, el cual será distribuido y también vendido e la Tienda de Discos. Sala de Podcast con capacidad de grabar y difundir material auditivo.

Página I 1109 1
esc 1 / 200 BLOQUE C / NIVEL -4 ZONA DE TABLEROS DE MANDO REDES DE DATA RED DE TELEFONO CUARTO DE TRATAMIENTO DE AGUAS GRISES Tanque de recoleccion Trampa de grasas Fosa septica CUARTO DE MANTENIMIENTO NPT -12.20 ÁREA DE MÁQUINAS PATIO DE INGRESO A COMPLEJO DEPORTIVO -NATURAL DESCARGA EN A1 B
Página I 1110 PROYECCIÓN HACIA ABAJO PROYECCIÓNHACIAABAJO HALL PRINCIPAL BLOQUE C INFOSHOP INFOSHOP SOUNDLAB SOUNDLAB TAPROOM NPT 9.80 ZONA FERMENTACIÓN INFOSHOP PROYECCIÓNHACIAABAJO 13 19 15 ILUSTRACIÓN 257: PLANO - 3C FUENTE: ELABORACIÓN PROPIA A A B

ACTIVIDADES RECAUDADORAS

Taproom & Micro Cervecería

Según estudio de mercado, esta actividad se ha impulsado en los últimos años y posibilita la creación de una Lovemark para Mollendo. Permite activar la terraza intermedia

Soundlab planteado como una exposición permanente

DESCARGA EN A1

Página I 1111
esc 1 / 200 BLOQUE C / NIVEL 3 TAPROOM TERRAZA / PATIO INTERMEDIO PUNTO ECOLÓGICO PROYECCIÓN HACIA ABAJO INGRESO A PARQUE NATURAL - PUNTO ECOLÓGICO CENTRO DEPORTIVO
B
Página I 1112 4 16 15 12 18 3 12 16
HACIA ABAJO
GUARDAROPA BAR PRINCIPAL NPT 6.30 SSHH VARONES NPT 6.30 SSHH DAMAS RECEPCIÓN ESCUELA ABIERTA NPT 6.30 AULA 2 NPT 6.30 ÁREA DE DIGITALIZACIÓNBANCO DE TALENTOS NPT 6.30 AULA 1 BOLETERÍA ILUSTRACIÓN 258: PLANO - 2BC FUENTE: ELABORACIÓN PROPIA A A B C C
PROYECCIÓN
PROYECCIÓNHACIAABAJO PROYECCIÓNHACIAABAJO

Venue & Bar Principal como actividades recaudadoras principales del conjunto.

1 B

MANEJO DE DOMINIOS

Escuela Abierta puede cerrarse, evitado cruce de actividades. Diferencia de horarios posibilita ello

DESCARGA EN A1

Página I 1113
esc 1 / 200 BLOQUE B C / NIVEL 2 GUARDAROPA NPT 6.30 SSHH VARONES SSHH DAMAS VENUE BAR NPT 6.30 TERRAZA
2
ACTIVIDADES RECAUDADORAS
Página I 1114 CAMERINO HALL DE RECEPCIÓN SSHH DAMAS NPT 4.24 SSHH VARONES 8 11 7 15 12 18 22 12 10 16 PROYECCIÓN HACIA ABAJO PROYECCIÓNHACIAABAJO NPT 3.45 ÁREA DE DISEÑO GRÁFICO NPT 3.45 BIBLIOTECA NPT 3.45 CAFETERÍA NPT 3.45 COCINA NPT 3.45 ÁREA DE ATECIÓN Y SERVICIO RECEPCIÓN NPT 3.45 SSHH VARONES NPT 3.45 SSHH DAMAS NPT 3.45 OFICINA DIRECTOR ÁREA SALA DE DESCANSO SALA DE REUNIONES 2 NPT 3.45 SALA DE REUNIONES 1 ÁREA DE IMPRENTA INFOSHOP ILUSTRACIÓN 259: PLANO -1BC FUENTE: ELABORACIÓN PROPIA A A B C C

ACTIVIDADES RECAUDADORAS

B

La Cafetería se consolida como principal actividad económica, la que a su vez hace uso del balcón existente.

3

OPORTUNIDADES DE NEGOCIOS

Alquiler de cuartos de reunión para la venta de patentes y cierre de contratos. Aplica para industria creativa y musical.

DESCARGA EN A1

Página I 1115 esc 1 / 200 BLOQUE B C / NIVEL 1 NPT 3.45 ÁREA DE PRENSA Y REDACCIÓN NPT 3.45 CUARTO DE MÁQUINAS NPT 3.45 SSHH VARONES SSHH DAMAS NPT 3.45 CUARTO DE CONTROL NPT 3.45 PRODUCCIÓN NPT 3.45 ÁREA DE DESCANSO NPT 3.45 RECEPCIÓN ESTACIÓN DE RADIO CUARTO DE EDICIÓN NPT 3.45 CUARTO DE CONTROL CUARTO DE GRABACIÓN CUARTO DE GRABACIÓN
2
Página I 1116 Fax Impresora NPT +- 0.00 GALERÍA DE DISEÑO COWORKING ÁREA DE DISEÑO SSHH VARONES PROYECCIÓNHACIAABAJO 4 6 14 MÓDULO ACTIVADOR INFOSHOP NPT +- 0.00 FABLAB FABLAB NPT +- 0.00 PERSONAS CON NPT +- 0.00 NPT +- 0.00 CAFETERÍA ÁREA DE BÚSQUEDA Y REGISTRO LIBRERO NPT +- 0.00 LIBRERO LIBRERO NPT +- 0.00 HALL PRINCIPAL BLOQUE B-C NPT +- 0.00 ÁREA DE RECEPCIÓN SSHH ÁREA DE IMPRENTA PROYECCIÓN HACIA ABAJO PROYECCIÓN HACIA ABAJO 4 16 15 12 18 12 1 VITRINAS VITRINAS VITRINAS VITRINAS VITRINAS 1 ILUSTRACIÓN 260: PLANO 0B FUENTE: ELABORACIÓN PROPIA A A B C C

B

ACTIVIDADES RECAUDADORAS

Como actividad destaca la Infoshop (proyección)

Sin embargo, la galería presente expone los productos realizados en el equipamiento. Esto maximiza la posibilidad de que puedan ser vendidos o puedan ponerse en contacto con inversores.

DESCARGA EN A1

Página I 1117 esc 1 / 200 BLOQUE B / NIVEL 0
4
Página I 1118 GALERÍA DE DISEÑO COWORKING ÁREA DE DISEÑO NPT +- 0.00 FABLAB FABLAB DISCAPACITADOS NPT +- 0.00 NPT +- 0.00 NPT +- 0.00 CAFETERÍA ÁREA DE BÚSQUEDA Y REGISTRO LIBRERO NPT +- 0.00 LIBRERO LIBRERO NPT +- 0.00 HALL PRINCIPAL BLOQUE B-C ÁREA DE RECEPCIÓN SSHH VARONES SSHH 15 22 10 16 VITRINAS VITRINAS VITRINAS VITRINAS VENTA DE PRODUCTOS TIENDA DE DISCOS ADMINISTRACIÓN NPT 1.30 ALMACÉN PROYECCIÓN HACIA ABAJO PROYECCIÓN HACIA ABAJO 2 8 13 18 ILUSTRACIÓN 261: PLANO .5B FUENTE: ELABORACIÓN PROPIA A A B C C

ACTIVIDADES RECAUDADORAS

En relación directa con la Plaza Grau se encuentra la tienda de productos (provenientes de la incubadora) y la tienda de Discos (provenientes del Soundlab) B

DESCARGA EN A1

Página I 1119 esc 1 / 200 BLOQUE B/ NIVEL 0.5
5
Página I 1120 CUARTO DE MÁQUINAS NPT 2.40 SSHH VARONES SSHH DAMAS PROYECCIÓN HACIA ABAJO NPT + 2.68 CENTRO DE RECURSOS DIGITALES 16 11 GALERÍA DE EXPOSICIÓN TECNOLOGÍA HACKLAB NPT + 2.68 COWORKING ÁREA DE MANUFACTURA ÁREA DE ATENCIÓN NPT + 2.68 CENTRO DE RECURSOS NPT 2.68 CAFETERÍA SSHH DAMAS VARONES COWORKING COWORKING PROYECCIÓN HACIA ABAJO 9 ILUSTRACIÓN 262: PLANO 1B FUENTE: ELABORACIÓN PROPIA A A B C C

B

6

HACKLAB

Es un espacio especializado en el desarrollo de software y tecnología. En ellos, personas interesadas o colectivos (civiles o estudiantiles) pueden desarrollar herramientas digitales, videojuegos o robótica. La dinámica responde a talleres y coworking.

DESCARGA EN A1

Página I 1121 esc 1 / 200 BLOQUE B-/ NIVEL 1
2

ILUSTRACIÓN 263: PLANO 2B FUENTE: ELABORACIÓN PROPIA

Página I 1122 A A
C
11 18 17 NPT 6.00 ÁREA RECAUDADORA + TERRAZA
B
C

B

ACTIVIDADES RECAUDADORAS

La intervención posee un programa especializado en actividades culturales rentables a un periodo mediano.

DESCARGA EN A1

Página I 1123 esc 1 / 200 BLOQUE B-/ NIVEL 2
Sin embargo, estas deberán complementarse con actividades adicionales y con capacidad de consumo. Esto permitirá la sostenibilidad económica de las actividades al interior y a su vez, intensificar el flujo de personas, lo que permite también mayor reconocimiento. 3

BLOQUE BC / CORTE A - A

esc 1 / 250

ILUSTRACIÓN 264: CORTE DEL BLOQUE B&C FUENTE: ELABORACIÓN PROPIA

Página I 1124
Página I 1125

esc 1 / 200

BLOQUE BC / CORTE C - C

BLOQUE BC / CORTE B - B esc 1 / 200

ILUSTRACIÓN 265: CORTE DEL BLOQUE B&C FUENTE: ELABORACIÓN PROPIA

Página I 1126
Página I 1127

2

ILUSTRACIÓN 266: RECOPILACIÓN DE VISTAS INTERIORES DEL BLOQUE FUENTE: ELABORACIÓN PROPIA

1

Página I 1128

2

Página I 1129
ILUSTRACIÓN 267: RECOPILACIÓN DE VISTAS INTERIORES DEL BLOQUE FUENTE: ELABORACIÓN PROPIA 1

Turn static files into dynamic content formats.

Create a flipbook
Issuu converts static files into: digital portfolios, online yearbooks, online catalogs, digital photo albums and more. Sign up and create your flipbook.