Skip to main content

Izzy Kappele Design Portfolio

Page 1


Hi, I’m Izzy!

I am an architecture student passionate about integrating AI and sustainable design to shape innovative, responsible environments. With experience in healthcare architecture, I focus on human-centered, technically thoughtful spaces that support well-being while embracing emerging technologies and environmental performance.

Education Experiences

2023 - 2027 University of Florida

May - Aug 2025 Gresham Smith

Healthcare Architecture Intern

May - Jul 2024 kasper architects + associates College of Design, Construction & Planning Bachelor of Design Sustainability and the Built Environment Minor

AI Certificate

Architecture Intern

Jun - Jul 2022 Stelllar

Mechanical Engineering Intern

Oct 2021 - Jun 2022 Northrop

Grumman

HIP Student Intern

(904) 570-0220

izzykappele@gmail.com

www.linkedin.com/in/isabella-kappele

231 Costa Del Sol Drive Saint Augustine, FL 32095 Phone Mail

Involvement Skills

UF in Greece: Sustainability Explorations Study Abroad

May 2 -15 2025

Apollodorus Chapter of Alpha Rho

Chi

May 2025 - Apr 2026 Worthy Clerk

Sep 2023 - Apr 2025 Historian

Revit

Adobe Photoshop

Rhino

BlueBeam Revu Lumion

Repurpose
Ritua

LIFE CYCLE

conviene, cultivate, cook

Life Cycle project explores the themes of growth, trans tion, and human rience through architecture inspired by the f lm Jane B. by Agnès V. and a e of other sources, including cu inary videos, paintings, and cookbooks. rammatical y, the space is organized around a centra armature, from which ation, trans tion zones, and activity areas: growing, preparing, and gathering The staircase, the core of the des gn, embodies contrasting emot onal ents: the upper f ight floats, evoking oy, whi e the grounded lower flight eys weight and dread, referencing scenes from the f lm. Light is carefu ly idered, interacting with the growing areas and stair elements to re nforce this play of experience, guiding the design of apertures and spat al sequences nd the centra datum.

ICHI GO ICHI

E

“one moment, one meeting”

Th s project proposes a tea house and earning pav lion within Paynes Prairie, Gainesv lle, that fosters ecological stewardship through direct engagement w th the wet and landscape Elevated above the marsh, the build ng creates layered experiences: children inhabit the shaded ground plane below while adults gather above to learn tea-mak ng practices using harvested invasive plant species Floorto-ce l ng glaz ng brings the pra r e to eye level, allowing visitors to observe the brief blooming of the otus flower, wi dlife, and seasonal water changes.

Educational rituals extend beyond the bui ding, w th native seeds dispersed by hot air balloon to encourage habitat restorat on, reinforc ng the pro ect’s goal of intertwining architecture, learning, and ecolog cal repair.

ICHI GO ICHI E

Exterior Section Perspective

An elevated tea house set within Paynes Prairie, where education and ecology intersect. Above, visitors gather in a teaching kitchen and teatasting space overlooking the wet ands, while be ow, ch ldren explore the shaded ground plane beneath the structure. A hot air balloon disperses native seeds across the prairie, symbo izing restoration and environmental stewardship. The layered composition high ights the build ng’s integration w th landscape, community, and habitat regeneration.

RITUAL + RESTORATION

An active instrument of ecological education and restoration by connecting ritual, landscape, and community through layered spatial experiences

Interior Rendering - Viewing + Gathering

An mmersive tea-tasting interior embedded within the pra r e landscape direct ng gaze to the fleeting blooming of the lotus flower. Warm timber framing and soft natural l ght create an intimate gathering space, while expans ve glazing v sua ly extends the room into the surrounding wetlands and green roof beyond. Visitors engage in quiet ritual and conversation, framed by layered views of vegetation and sky. The composition emphasizes transparency, material warmth, and a seam ess dialogue between architecture and ecology.

Exterior Rendering - Tea Tasting + Exploration

A layered ecological learning space embedded within the prairie landscape. The e evated timber structure frames views outward while creating a sheltered zone below for children to explore. Above, visitors gather in the tea-tasting space, v sua ly connected to the surrounding wetlands and green roof beyond. The composition emphasizes restoration, community, and the seam ess integration of architecture with habitat.

“one moment, one meeting”

PALIMPSEST

A manuscript or piece of writing material on which the original writing has been effaced to make room for later writing but of which traces remain.

PALIMPSEST

layering of history

The Palimpsest explores the layer ng of h story, culture, and soc al activity on a s te along W University Avenue in Gainesvil e. Inspired by the metaphor of a pa impsest, a manuscript overwritten yet retaining traces of its past, the building acknowledges the s te’s evolution from mid-century commerc al use to its current student-oriented night ife. Terraced seating, canopy greenery, and arcade spaces create spatial ayers that shift between daytime café use and evening social act vity, whi e dark wood cladding overlays the historic brick textures of the city. Modu ar rhythms, structural hierarchies, and ndoor-outdoor transitions emphas ze continu ty and memory, mak ng the project not just a bar and arcade, but a iv ng narrative of urban adaptation and communal gathering.

PALIMPSEST REPURPOSE

layering of history

A layering of history at 926 W University Ave from gas station to barcade

Site Plan

Situated at 926 W University Avenue, the site is shaped by both environmental and regulatory constra nts Ad acent apartment towers cast heavy shade across the lot, influencing the use of ayered outdoor spaces and canopy coverage, wh le former gas tanks remain filled below grade, requ ring environmental considerat on Zoned U9, the parcel allows commerc al use and residentia bui dings up to eight stor es, p acing the project within a dense mixed-use corridor

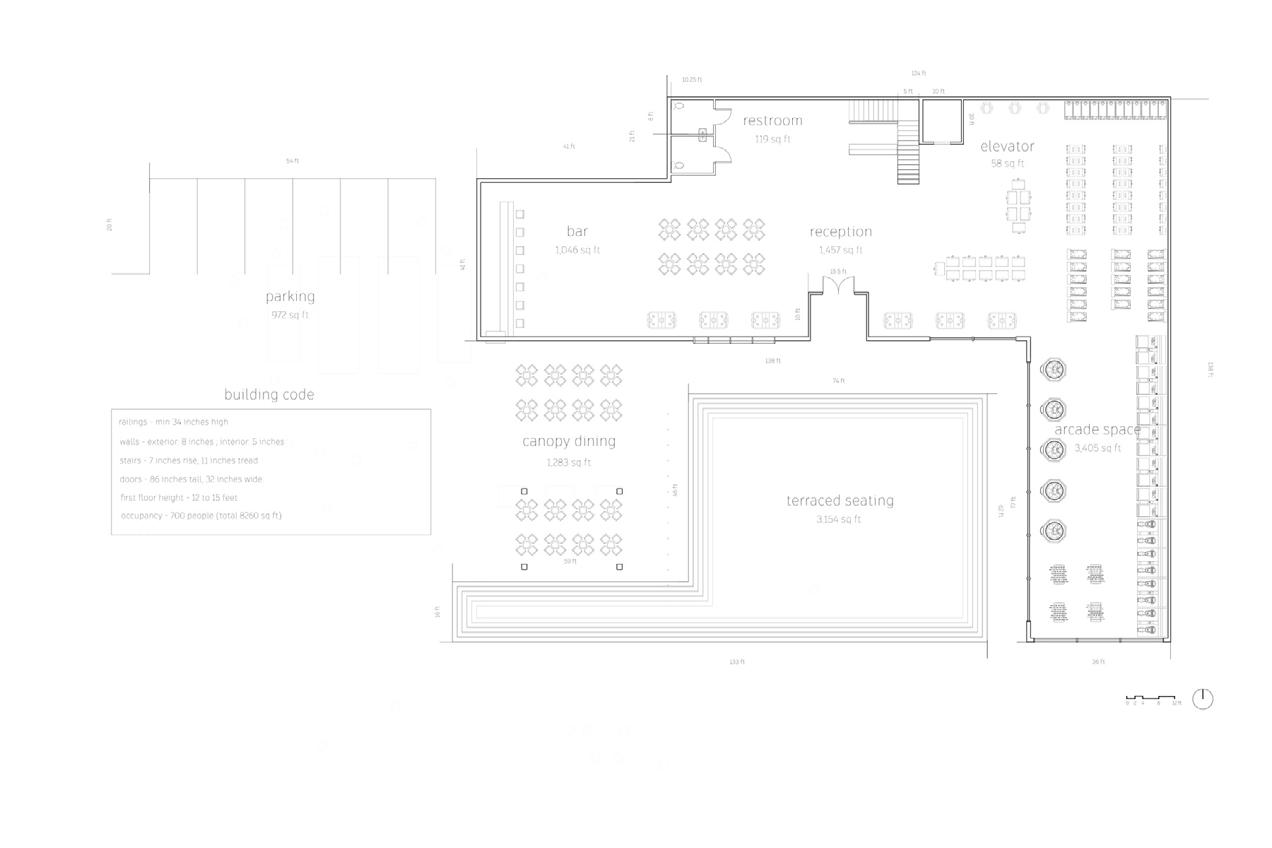
First Floor Plan - Classic Arcade + Terraced Seating

The f rst floor of is organized as an act ve social ground that blurs the boundary between nterior and exterior space Terraced seating steps create informal zones for gathering, dining, and outdoor play while introducing sectional depth on an otherwise flat parce A reinterpreted gas station canopy she ters additional din ng, acknowledg ng the site’s commercial past and reinforcing the pro ect’s layered narrative Ins de, the bar and c assic arcade anchor the program, supported by restrooms and a reception counter where guests purchase game tokens and redeem prizes

Second Floor Plan - Speakeasy + Billards

The second floor elevates the socia exper ence into a more intimate, immersive atmosphere Conceived as a speakeasy- nspired lounge, the leve houses b lliards, card rooms, and darts, drawing sty istic nfluence from the 1920s and 1950s architectural character of the surrounding neighborhood Richer materiality and more enclosed spatial conditions contrast with the openness of the ground floor, creat ng a layered progression of public to sem -private space An outdoor bar extends onto the adapted canopy roof, offering e evated seating and reinforcing the project s dialogue between past and present

Turn static files into dynamic content formats.

Create a flipbook
Izzy Kappele Design Portfolio by Isabella Kappele - Issuu