Yanyin Tang A&AR

Page 1


TERMINAL SPECTA-CRAFT

HUTONG REGEN
WUDAOKOU THEATER DESIGN

TERMINAL SPECTA-CRAFT

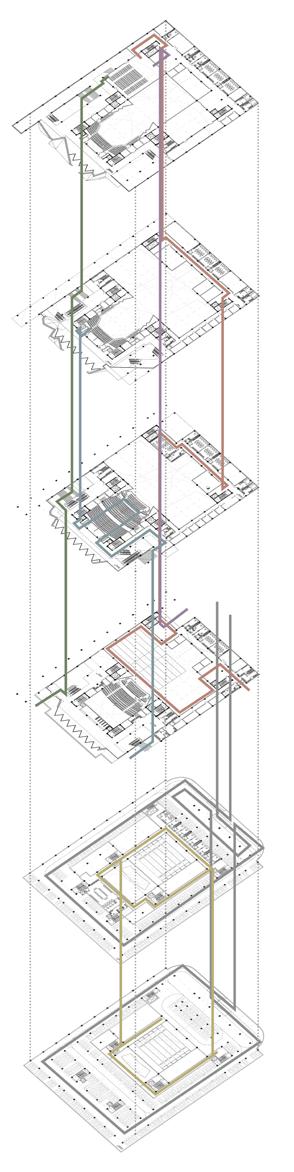
History of the old Beijing has precipitated hundreds of years of culture and industrial progress. In the western edge of the Beijing City Wall, the Second Thermal Power Plant is a monument of the industrial age. Right next to it is the TianNing Temple Tower, a Buddhist temple built in the Northern Wei Dynasty. The TianNing Temple Tower and the chimney of the thermal power complex are two symbols of different eras of the city--the traditional and the industrial. What is to be inserted to the complex would be a symbol of the present, or even the future. The Specta-craft creates two systems, which catalyze the longitudinal and the latitudinal structure of the zone respectively. The systems changes when the spacecraft takes flight or anchors.

SKELETONS OF THE CITY --AXIS SYSTEMS, TRACES OF TIME

Project Type: City Complex Site: XiCheng District, Beijing Time: Apr-Jun 2023
City Skeleton
Historical Boundary
Organic bronchioles
Power Plant Skeleton Longitudinal Anchoring

Engaging individuals into the urban context through eye contact, is one of the approaches to make users of the city to "feel" the space surrounding them. Theatrical arts deliver emotions and connect audiences through showing them lives and stories. Is it possible that we radiate slices of lives from theater to the city? This piece of work is an experiment in regard to this matter.

An urban installation with function is inserted to the industrial park. The Specta-craft not only is a theater itself, but it also changes how other stages are used when the spacecraft lands or hovers. The change in the skeleton of the industrial park is catalyzed by the vertical movement of the Specta-craft. PERFORMANCE VIEWING

(a): Longitudinal--System Entrance

(c): Latitudinal--Monument 1--Power Plant Chimney

AXIS CATALYST --LANDING

(b): Specta-Craft--Gate of Underground System
(d): Latitudinal--Monument 2--TianNing Temple Tower
(a),(b),(c),(d): Hovering Specta-Craft--System Catalyst
(2): Specta-Craft--Change in Axis System (3):
(1): Longitudinal--System Entrance

FLOATING TOWERS OF SPIRITS' BATHHOUSE

Akihabara is a gaming district in Japan. In spite of its strictly gridded structure, lots of surprises are interspersed in the city. No matter the form, there is always capacity for new elements and changes among the district, such as planes like floating screens and posters, linear threads like the light rail, and also objects like statues and large figures lingering among buildings. The experience is just like venturing into another world, from where you can discover new scenes just around the corner. This reminds me of Hayao Miyazaki’s film Spirited Away, in which chihiro accidentally stepped into a realm of spirits and monsters. SITE --BOXES OF SURPRISES

grid extraction

Project Type: Architectural reinterpretation of film works

Site: Akihabara, Tokyo

Time: Sep 2024 - Jan 2025

A TOWN WITH BLIND BOX UNITS --POTENTIAL FOR EXCITEMENTS

Akihabara is a bustling district in Tokyo, where anime has been what the city is famous for. Street logos, neon lights, gaming advertisements and animation posters populates the facades of the district. In a few of these buildings, fan products of Spirited Away and other Ghibli movies are sold. Just like Akihabara, the town in Spirited Away is populated with lights and glowing shop signs. There is significance correlation between this vibrant district of Akihabara and the world of Spirited Away.

A new railway is inserted to the complex, cutting through the river of Akihabara.

I: film locus and tower engine

The first tower is composed of two parts, the cloud engine and the spiritual locus, both derived from the spatial movement around the "Yu" bathhouse, the main stage of the film. The cloud engine represented the boiler house, where characters received warmth, care and growth. The spiritual locus tracked different styles of vertical movement in the film, inside and outside the bathhouse.

MIGRATING TOWER ENSEMBLE

II: fragment disjoint

The second tower is a representation of the pop-up stories inside the film. This is derived from the spatial structure of storyboard, where the next box may be unpredictable. Groups of fragments are dismantled from shots of camera movement. In each vertical moving footage, the films are broken into four boxes of fragments. Twelve towers of vertical fragments are created.

The third tower resonates with the grid structure of Akihabara, creating a box-lane complex. Towers from the fragment montage are rejoined to form buidings, just like the architecture in the district. On the other hand, horizontal fragments form linkages, as a representation of the overground railway in both Akihabara and the world in Spirited Away.

TOWER
TOWER
TOWER III: adventure recomposition

TOWERS OF THE SPIRIT WORLD

TOWER OF POP

--TWISTING THE FANTASY FOR THE PAST , OR TOMORROW

Storyboard not only is a visual presentation of a script, but also a vertical structure for scene and space change. In each shot, a main type dominates the frame. Just like the storyboard, camera movement is a way to change space and mood through change in space structure. The shots can be broken down into seperate frames, and the types in each frames are indicated. these moving frames form towers of abtract types. These montages resonates the density of the district of Akihabara.

TOWERS OF DREAMS

--DISMANTLING FRAGMENTS INTO FRAGMENTS

TOWERS OF DREAMS --REJOINING INTO ADVENTURE

CLOUD ENGINE

THE BATHING INDUSTRY WORKS

TOWER OF MOVEMENT --REWEAVING THE

With the Cloud Engine Elevator plugged in next to the railway, the floating complex anchors next to the train, just like the boiler house next to the tram in the film Spirited Away.
Power bubbles in the boiler room
Vertical kinetics forming movement peaks

inside the

The locus of the central tower weaves all three towers to form a tight complex. From the outside, most of the central tower is hidden from view, what could be seen by the pedestrians is the pop-up blind box facade, and a fragment of the cloud engine. In order to enter the tower complex, people may take the overground railway and stop by the FLOATING TOWER station, and enter through the Cloud Engine elevator.

When walking around the box tower, the locus and the helix could be observed at differtent angles. It represents the heart of the whole tower complex.

The pop-up blind boxes are organised in a 7×7 structure, with vertical camera shot groups the main components, and horizontal ones as supporting components. Thus, when wandering at the same level of the box tower, some boxes are continuous, while some are disconnected. Some parts of the box tower are caverned out to allow the outer real world pierce into the complex, enriching experiences.

On the other hand, when cars and pedestrians travel through the bottom of the tower, they could take a slight glance of what is waiting them from the inside.

Scenes
floating house are shots of surprises. During anime festival in Akihabara, treats and game coins are sprinkled, as a gift from No Face. Kids can experience an exciting slide after their adventure in the pop-up tower.

HUTONG REGEN

HuGuo Temple has been a community center to those living in the area since the Qing Dynasty. In the past, various activities were held during temple festivals. However, in the present, most of the temple were destroyed and the remains were no longer available to the public. The urban structure of the HuGuo temple community in the Qing Dynasty is revised, in order to revitalize the community in the present. Apart from the temple, illegal constructions make yards overcrowded, leading to problems like poor hygiene, drainage and electricity shortage. Hutongs are also renewed by reorganizing inner public spaces. A successive group work is done to create a soothing living environment in Hutong communities, with the approach of garden landscape design.

Project Type: Urban Design Site: HuGuo Temple Street, Beijing Time: Sep-Nov 2023 City Plan in the Qing Dynasty

WUDAOKOU THEATER DESIGN

Wudaokou, a hub for multiple universities, boasts superior educational and commercial resources. The area around Wudaokou subway station is bustling with activities and gathering places, attracting many educators and young people to relax and enjoy life. Constructing a performance venue here would provide a more diverse range of entertainment options, enhancing the local lifestyle. The theater site is located at the intersection of Zhongguancun East Road and Chengfu Road, facing Tsinghua Science Park to the west, the vibrant heart of Wudaokou to the east, and the southeast gate and main building area of Tsinghua University to the north.
Whether it's university students, local residents, office workers, or audiences from Haidian District, the site offers great convenience for watching performances.
Project Type: Theater Site: HaiDian District, Beijing Time: Feb-May 2024
Section
Model Display

Turn static files into dynamic content formats.

Create a flipbook
Issuu converts static files into: digital portfolios, online yearbooks, online catalogs, digital photo albums and more. Sign up and create your flipbook.