
SELECTED WORKS | 2023-2025
Applying for Architecture and Urbanism MA, MSA
E-mail: iylayytang@163.com
The contemporary world demands architects who can address sustainability crises, societal inequities, and technological evolution through spatial innovation. My ambition is to design spaces that foster resilience, community, and adaptability—a vision I aim to refine through the MA Architecture and Urban Design programme at MSA, where interdisciplinary practice aligns with my goal of harmonizing human needs, environmental stewardship, and technological integration.
Currently, I am in my fifth year of studying architecture at Tsinghua University, where my academic journey has been both enlightening and inspiring, equipping me with valuable lessons and a deeper understanding of the discipline. This portfolio includes my works from 2023 spring semester to 2024 fall semester—spanning adaptive reuse and cross-disciplinary experimentation—to redefine architecture's societal role in the urban context.

TERMINAL SPECTA-CRAFT
History of the old Beijing has precipitated hundreds of years of culture and industrial progress. In the western edge of the Beijing City Wall, the Second Thermal Power Plant is a monument of the industrial age. Right next to it is the TianNing Temple Tower, a Buddhist temple built in the Northern Wei Dynasty. The TianNing Temple Tower and the chimney of the thermal power complex are two symbols of different eras of the city--the traditional and the industrial. What is to be inserted to the complex would be a symbol of the present, or even the future. The Specta-craft creates two systems, which catalyze the longitudinal and the latitudinal structure of the zone respectively. The systems changes when the spacecraft takes flight or anchors.
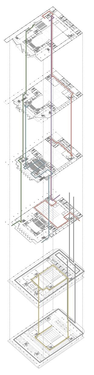
SKELETONS OF THE CITY --AXIS SYSTEMS, TRACES OF TIME











Engaging individuals into the urban context through eye contact, is one of the approaches to make users of the city to "feel" the space surrounding them. Theatrical arts deliver emotions and connect audiences through showing them lives and stories. Is it possible that we radiate slices of lives from theater to the city? This piece of work is an experiment in regard to this matter.
















An urban installation with function is inserted to the industrial park. The Specta-craft not only is a theater itself, but it also changes how other stages are used when the spacecraft lands or hovers. The change in the skeleton of the industrial park is catalyzed by the vertical movement of the Specta-craft. PERFORMANCE VIEWING










(a): Longitudinal--System Entrance

(c): Latitudinal--Monument 1--Power Plant Chimney
AXIS CATALYST --LANDING








FLOATING TOWERS OF SPIRITS' BATHHOUSE
Akihabara is a gaming district in Japan. In spite of its strictly gridded structure, lots of surprises are interspersed in the city. No matter the form, there is always capacity for new elements and changes among the district, such as planes like floating screens and posters, linear threads like the light rail, and also objects like statues and large figures lingering among buildings. The experience is just like venturing into another world, from where you can discover new scenes just around the corner. This reminds me of Hayao Miyazaki’s film Spirited Away, in which chihiro accidentally stepped into a realm of spirits and monsters.
Site:
Time: Sep 2024 - Jan 2025 SITE --BOXES OF SURPRISES
A TOWN WITH BLIND BOX UNITS --POTENTIAL FOR EXCITEMENTS





grid extraction







Akihabara is a bustling district in Tokyo, where anime has been what the city is famous for. Street logos, neon lights, gaming advertisements and animation posters populates the facades of the district. In a few of these buildings, fan products of Spirited Away and other Ghibli movies are sold. Just like
Spirited Away is populated with lights and
is significance correlation between this
and the world of




A new railway is inserted to the complex, cutting through the river of Akihabara.

I: film locus and tower engine
The first tower is composed of two parts, the cloud engine and the spiritual locus, both derived from the spatial movement around the "Yu" bathhouse, the main stage of the film. The cloud engine represented the boiler house, where characters received warmth, care and growth. The spiritual locus tracked different styles of vertical movement in the film, inside and outside the bathhouse.
MIGRATING TOWER ENSEMBLE
II: fragment disjoint
The second tower is a representation of the pop-up stories inside the film. This is derived from the spatial structure of storyboard, where the next box may be unpredictable. Groups of fragments are dismantled from shots of camera movement. In each vertical moving footage, the films are broken into four boxes of fragments. Twelve towers of vertical fragments are created.

The third tower resonates with the grid structure of Akihabara, creating a box-lane complex. Towers from the fragment montage are rejoined to form buidings, just like the architecture in the district. On the other hand, horizontal fragments form linkages, as a representation of the overground railway in both Akihabara and the world in Spirited Away.




































































































































































