





![]()






A Casa monstro é um espaço de shows de música e stúdio situado no Recreio dos bandeirantes, terreirão. Nessa casa pre-existente, mora um pai e 4 filhos, sendo um deles músico que possue uma banda e realiza esses shows num espaço que ele se apropriou, que antes era um ‘puxadinho’ que a vó dele vivia. Conforme o evento cresceu, o espaço se mostrou muito pequeno para sua demanda, e a ideia de negócios criou a oportunidade de investimento. O partido do projeto propõe reuso/reciclagem da demolição dos anexos para a criação de uma nova estrutura que respeita a dinâmica da casa e forma novos espaços para realizar o stúdio e os eventos de música.






Tijolo (20x15x14)
Essa coleta será realizada a partir de uma demolição cautelosa, na qual aproveita esse material de diversas formas para criar uma nova área de show/ateliê mais próximo à rua
Telha cerâmica portuguesa
A coleta das telhas será em prol da criação de cobogós ao longo do projeto, ultilizando essas telhas portuguesas recortadas e conectadas para fazer uma estrutura de aberturas circulares
O ritmo: muro ciclópicoo
Grid
A estrutura de todo o anexo passa por esse grid estrutural, que extende a mesma lógica das vigas originais da casa, mas com subdivisões internas. Ultilizando a mesma cotas de nível, a altura dessas novas vigas alinha-se abaixo da varanda e possibilita os cheios e vazios ao longo do terreno.

Por fim, as lajes de cobertura serão apoiadas no grid estrutural, permitindo a criação de uma composição dinâmica de cheios e vazios no projeto. Cheios x Vazios
Cobertura retrátil
A cobertura retrátil projetada neste espaço não apenas amplia a área disponível para o show, mas também oferece uma solução prática para criar sombra na entrada principal, garantindo proteção eficiente contra chuva e sol.
Laje 15cm
Viga Metalica Perfil I 15x15cm
Encaixe
Encaixe
Moldura Metalica Espessura 20mm
Vedação de Espuma de Poliuretano Ql55 Schlegel Qlon
Camada Dupla de Tijolo Maciço 8,7x4,3x18,6cm
Encaixe





PA2
Prof. Sônia Hilf Schulz
A habitação multifamiliar, localizada no centro do Rio de Janeiro, próxima à Pedra do Sal e à Praça Mauá, foi idealizada como uma vila moderna que combina privacidade e interação comunitária. A proposta surgiu durante uma visita ao terreno, onde ficou evidente o contraste entre as duas ruas que o cercam: uma delas, movimentada pela presença de uma escola e pelo Largo da Prainha, e a outra, deserta e sem vida. O projeto buscou transformar essa realidade, criando espaços de convivência no térreo que fossem acolhedores tanto para os moradores quanto para quem circula pela região. A solução foi fragmentar os edifícios e conectá-los por passarelas, o que proporcionou maior conforto ambiental para cada unidade enquanto preservava a integração entre elas.























Localizado no Rio de Janeiro, entre a Praça dA Bandeira e o bairro de São Cristóvão, o projeto da escola incorpora o conceito do “Terceiro Professor”, onde a arquitetura e o ambiente físico são ativos no processo de aprendizagem inspirado pela metodologia montessori as medidas internas são adaptadas para o tamanho dessa crianças. Localizada próxima a trilhos de trem que passam sob o terreno e um rio, a escola integra esses elementos históricos e naturais ao projeto criando um ambiente educativo que dialoga com o passado e o presente. A veia organicista do projeto se deu como partido às coberturas variadas ao longo do terreno longitudinal, este, combinado aos diferentes métodos construtivos como o tijolo ecológico, concreto e cobogós dinamizam as fachadas e dão identidade à escola.
Localizado
Bandeira e escola incorpora onde a arquitetura processo de hos de trem históricos educativo Salas promovem a interação de trem que cional, enquanto a educação Espaços são abertos centro de aprendizagem agismo maximiza com jardins mobilidade acessíveis.
A veia às coberturas este, combinado como o tijolo as fachadas
Isométrica detalhada: vagões Ultilizando da pré-existência dos trilhos, o detalhe mostra vagões projetados sob o reuso dos materiais encontrados no terreno a partir desses encaixes de metal e madeira. O ambiente denota um espaço de lazer e descanço tanto para as crianças da escola quanto para os pais e professores, que se apropriariam desse espaço em diferentes horários do dia.


PUP3

Isométrica das quadras
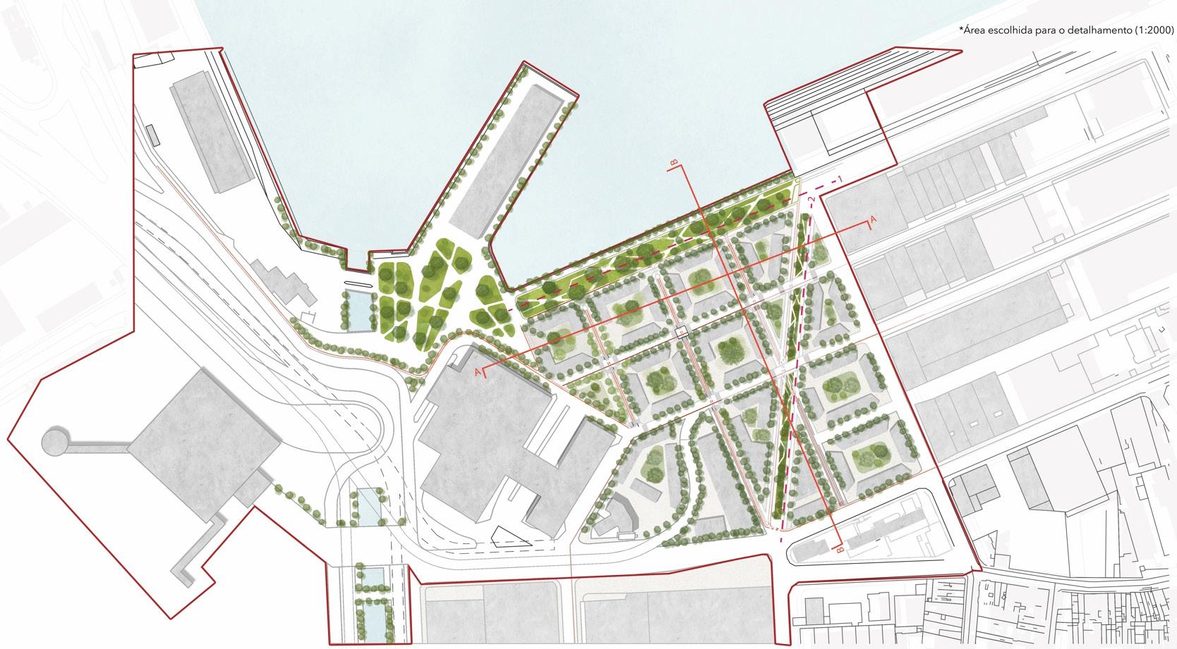
O projeto porto maravilha , inspirado no renomado Plano Cerdà de Barcelona, representa uma ampla intervenção na área do Porto, no Rio de Janeiro. Desenvolvido com uma abordagem integrada, o projeto visa modernizar e revitalizar a região, promovendo um sistema de mobilidade sustentável e eficiente. Ele inclui um conjunto modal de transportes coletivos diversificados, que vão desde sistemas aquaviários, essenciais para uma cidade costeira, até ciclovias, incentivando o uso de meios de transporte não motorizados.
Além disso, a área abrange um planejamento urbano completo, composto por praças públicas, espaços de convivência, habitações de interesse social e uma rede de comércio local. O comércio é estrategicamente posicionado nos pavimentos térreos dos edifícios, garantindo maior interação entre os moradores e oferecendo serviços acessíveis. Essa configuração não apenas incentiva a circulação das pessoas pelo bairro, mas também fomenta a convivência comunitária, valoriza a identidade local e promove o turismo, atraindo tanto os próprios cariocas quanto visitantes de outras cidades e países. Com isso, o projeto contribui para a revitalização do Porto Maravilha, resgatando seu papel histórico e reforçando sua relevância no cenário urbano do Rio de Janeiro.







