ben yossef asraf - REVIT

Page 1

ןויליג םשמ"נק רפסמ ןויליג

הביבסטירשת חטשלתואצמתהןויליגאלל 100-1 100-1 100-1 100-1 100-1

וציר תוינכותף תוריקתסירפ טיהר וסירפובוציעתוינכותת טיהר םיכתחבוציע-

ריקתסירפ

וימדה26אלל ןויליגת 01

הביבס טירשת

100-1 100-1 50-1 50-1 50-1 50-1 20-1 לכדילןיוצמ תינכת לכדילןיוצמ תינכת 50-1 50-1 50-1 50-1 25-1 לכדילןיוצמ תינכת 10-1 לכדילןיוצמ תינכת ןוילג םש: 06.03.2024

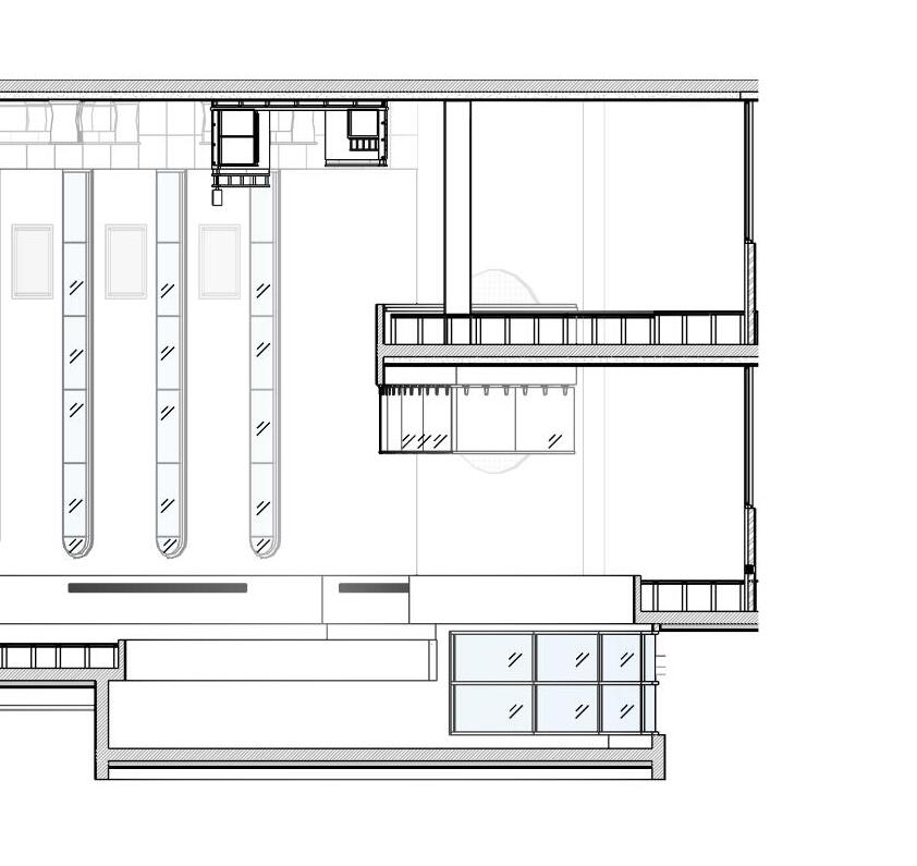
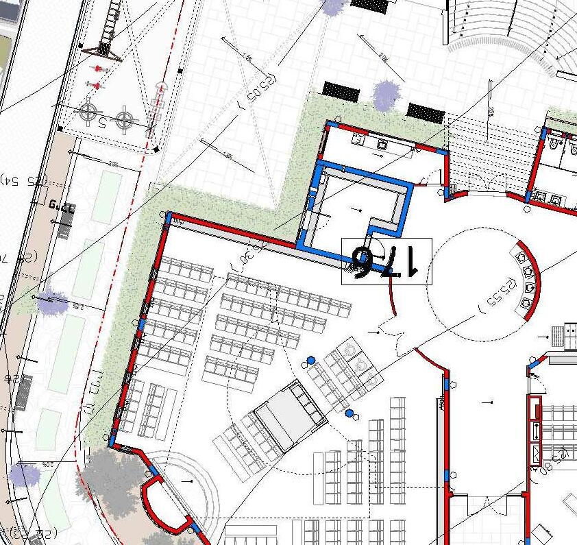
נק"מ: ןוילג רפסמ: םיאסדנהל רפסה תיב "להנמלהללכמה" ויצל ןושארן ךיראת נק ביבס םישרת" מ2500-1 תונויליג טוריפ: רמג טקייורפ - תיב תסנכ " ןשוחה ינבא " המגמ שאר: ףידחלאקיציא טקיורפה החנמ: 'ןהכהרדא השמ היצקורטסנוק ץעוי: גח ליא'יב :ףרסאטקייורפהשיגמ ףסויןב :302121231תוהזתדועת :חרתבותכריפסתניפןשוחהינבא 1 2 3 4 5 6 7 8 9 10 11 12 13 14 15 16 17 18 19 20 21 22 23 24 25 אלל אשונהאלל רקח חטשחותיפ +גגאהמוק תינכות םורדתיזח ברעמתיזח א +ב-באךתח+ד-דךתח-
תויטטסתומיכס הדובע עקרקתינכותהדובע אתינכותהמוק' ןופצתיזח א +ב-באךתחתוגרדמ ןויליגתוגרדמ יטרפוןויליגםיכתחם ימוקמךתח הדמעהתינכות הרקתתוינכות הרואתתוינכות

ןויליג םשמ"נק רפסמ ןויליג

הביבסטירשת חטשלתואצמתהןויליגאלל 100-1 100-1 100-1 100-1 100-1

וציר תוינכותף תוריקתסירפ טיהר וסירפובוציעתוינכותת טיהר םיכתחבוציע-

ריקתסירפ

וימדה26אלל ןויליגת 02

אשונה רקח

100-1 100-1 50-1 50-1 50-1 50-1 20-1 לכדילןיוצמ תינכת לכדילןיוצמ תינכת 50-1 50-1 50-1 50-1 25-1 לכדילןיוצמ תינכת 10-1 לכדילןיוצמ תינכת ןוילג םש: 06.03.2024

נק"מ: ןוילג רפסמ: םיאסדנהל רפסה תיב "להנמלהללכמה" ויצל ןושארן ךיראת נק ביבס םישרת" מ2500-1 תונויליג טוריפ: רמג טקייורפ - תיב תסנכ " ןשוחה ינבא " המגמ שאר: ףידחלאקיציא טקיורפה החנמ: 'ןהכהרדא השמ היצקורטסנוק ץעוי: גח ליא'יב :ףרסאטקייורפהשיגמ ףסויןב :302121231תוהזתדועת :חרתבותכריפסתניפןשוחהינבא 1 2 3 4 5 6 7 8 9 10 11 12 13 14 15 16 17 18 19 20 21 22 23 24 25 אלל אשונהאלל רקח חטשחותיפ +גגאהמוק תינכות םורדתיזח ברעמתיזח א +ב-באךתח+ד-דךתח-
תויטטסתומיכס הדובע עקרקתינכותהדובע אתינכותהמוק' ןופצתיזח א +ב-באךתחתוגרדמ ןויליגתוגרדמ יטרפוןויליגםיכתחם ימוקמךתח הדמעהתינכות הרקתתוינכות הרואתתוינכות

םיאסדנהל רפסה

"להנמלהללכמה"

ויצל ןושארן

:חרתבותכריפסתניפןשוחהינבא

טקיורפה החנמ: רדא'ןהכה השמ היצקורטסנוק ץעוי: גח ליא'יב

טקייורפה שיגמ :ףרסא ףסוי ןב תוהז תדועת

המגמ שאר: ףידחלא קיציא

תונויליג טוריפ:

ןויליג םשמ"נק רפסמ ןויליג

הביבסטירשת

חטשלתואצמתהןויליגאלל 100-1

+עקרקחטשחותיפ +גג'אהמוק תינכות +ןופצםורדתיזח

ברעמתיזח

א +ב-באךתחג +ד-דגךתחתויטטסתומיכס הדובע עקרקתינכותהדובע אתינכותהמוק' +םורדןופצתיזח

א +ב-באךתחתוגרדמ ןויליגתוגרדמ יטרפוןויליגםיכתחם ימוקמךתח +טוהירהדמעהתינכות

וציר תוינכותף

הרקתתוינכות הרואתתוינכות

+םיטרפריקתסירפ

תוריקתסירפ טיהר וסירפובוציעתוינכותת טיהר +םיטרפםיכתחבוציע-

וימדה26אלל ןויליגת תואצמתה

100-1

100-1 100-1 100-1

100-1 100-1 לכדילןיוצמ תינכת לכדילןיוצמ תינכת לכדילןיוצמ תינכת 10-1 לכדילןיוצמ תינכת

ןוילג םש:

ןוילג רפסמ:

נק"מ:
תיב
רמג טקייורפ - תיב
" ןשוחה ינבא "
תסנכ
ךיראת 1 2 3 4 5 6 7 8 9 10 11 12 13 14 15 16 17 18 19 20 21 22 23 24 25 אלל אשונהאלל רקח
ןויליג 03 06.03.2024

)(2608

)(2490

)(2558

)(25.47

)(25.92 )(2583

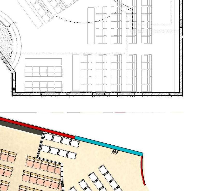
עקרק

חטש חותיפ 1

1 : 100

יפרומארומיגבןיטנוורטןבא ןווג

םיקחשמתוניגלימוגףוציר לשםילדגב עיגמ100/100 רוחשןווג ןבלמ תבלתשמ ןבא ףוציר )ןייטשרקא(

רבכערופאןווג

:חרתבותכריפסתניפןשוחהינבא

ןויליג םשמ"נק רפסמ ןויליג

הטסורינתשרםעקיטסלפזוקינ תלעת.

N

הכומנ הלעת60 ההובגתוחישקוךומנלקשמ רופכלתודימע הלקהנקתהלתירלודומתכרעמ ינאכמהליענןונגנמ םייוסיכיגוסינש הלעתהףוגרוציקלתוברתויורשפא םוינמולא תוידי בולישב ץע לספס תסנכ תיב רצחל

ןג תרואת הבוג5 מ םוינמולא לספס תיב רצחל רחשומ תסנכ

אשונהאלל רקח חטשחותיפ

100-1 04 06.03.2024

10-1 לכדילןיוצמ תינכת ןוילג םש: וימדה26אלל ןויליגת

חטש חותיפ

הביבסטירשת חטשלתואצמתהןויליגאלל 1 100

ךתח -א ךתח -א ךתח ב-ב ךתח בךתח גךתח גךתח -ד ךתח -ד הסינכ הסינכ )קק"ט :25.68( )קק"ס :26.61( )קק"ט :25.80( )קק"ס :26.31( )קק"ט :25.93( )קק"ס :26.40( 376144121 60 155 1117 2 280 למשח אמורט החמוג םימ לזרב תלד הפשא יוניפל לזרב תלד הפשא רדח ימינפ ? םיינפוא תיינח 691677 670 6 ףוציר תובלתשמםינבא ףוציר תובלתשמםינבא ףוציר תובלתשמםינבא )קק"ט :26.05( )קק"ס :26.30( ץע לספס תוידי בולישב םוינמולא H=45 לספס תוידי בולישב םוינמולא H=45 ץע לספס תוידי בולישב םוינמולא H=45 ץע לספס תוידי בולישב םוינמולא H=45 ץע לספס תוידי בולישב םוינמולא H=45 הגוראל הצק תמוח ןבל חיט רמג םע H=20 הגוראל הצק תמוח ןבל חיט רמג םע H=20 הגוראל הצק תמוח ןבל חיט רמג םע H=20 הגוראל הצק תמוח ןבל חיט רמג םע H=20 הגוראל הצק תמוח ןבל חיט רמג םע H=20 הגוראל הצק תמוח ןבל חיט רמג םע H=20 הגוראל הצק תמוח ןבל חיט רמג םע H=20 ימוג יופיח חטשמ םיעושעש תניגל רחשומ םוינמולא לספס H=45 רחשומ םוינמולא לספס H=45 רחשומ םוינמולא לספס H=45 ןיינבוק ןיינבוק ן נב ק ן נב ק ןנבק ב ק ב ק ב ק ןי ינב וק שרגמוק שרגמוק שרגמ ו ק שרגמ ו ק שרגמוק שרגמוק שרגמ ו ק שרגמ ו ק ה ס ל ר א )80 ר ( )קק"ט :25.73( )קק"ס :26.51( )קק"ט :25.73( )קק"ס :26.34( )קק"ט :25.55( )קק"ס:26.44( )קק"ט :25.55( )קק"ס :26.38( )קק"ט :25.42( )קק"ס :26.41( )קק"ט :25.30( )קק"ס :26.39( )קק"ט :25.17( )קק"ס :26.36( )קק"ט :25.07( )קק"ס :26.28( )קק"ט :24.90( )קק"ס :26.06( )קק"ט :24.80( )קק"ס :26.03( )קק"ט :25.28( )קק"ס :26.61( )קק"ט :25.93( )קק"ס :26.25( )26.30( )26.31( )26.29( )26.26( )26.23( )26.01( )קק"ט :25.28( )קק"ס :26.47( )25.54( )25.30( )24.82( )26.13(
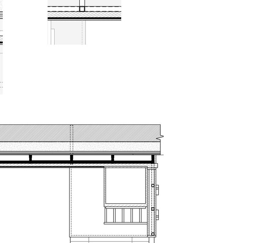
דומצ תיב
דומצ תיב עקרק דומצ תיב )25.70( קולבריקח 20cm טכילש עבצ יופיח םע H=140 8 55=124 7x3 217 8 15.5 124 7 3 1 17 זחאמ הפמר טסדופ H=110 58% 58% -1.26 -0.80 -0.02 ש תפמר מ ש מ מ הטסורינ זקנ לוצ הטסורינ זקנ לוצ הטסורינ זקנ לוצ הטסורינ זקנ לוצ הטסורינ זקנ לוצ הטסורינ זקנ לוצ הטסורינ זקנ לוצ הטסורינ זקנ לוצ הטסורינ זקנ לוצ הטסורינ זקנ לוצ הטסורינ זקנ לוצ הטסורינ זקנ לוצ ץוח תרואת H=5m ץוח תרואת H=5m ץוח תרואת H=5m ץוח תרואת H=5m ץוח תרואת H=5m ץוח תרואת H=5m ץוח תרואת H=5m ץוח תרואת H=5m ץוח תרואת H=5m ץוח תרואת H=5m תמדא תמדא תמדא תמדא תמדא תמדא תמדא ץוח תרואת H=5m ץוח תרואת H=5m אשד זחאמ הפמר ךלהמ H=90cm די זחאמ הפמר טסדופ H=110 הפש ןוטב תוגרדמ שיש יופיח םע -1.26 קולב ריק 20cm טכילש עבצ יופיח פע H=140 קולב ריק 20cm טכילש עבצ יופיח פע H=140 קולב ריק 20cm טכילש עבצ יופיח פע H=140 הטסורינ זקנ לוצ קולב ריק 20cm טכילש עבצ יופיח פע H=140 קולבריקח 20cm טכילש עבצ יופיח םע H=140 קולבריקח 20cm טכילש עבצ יופיח םע H=140 קולבריקח 20cm טכילש עבצ יופיח םע H=140 הדרפה ריק םיסלפמ ןיב H=150cm 0 0 הגוראל הצק תמוח ןבל חיט רמג םע H=20 הגוראל הצק תמוח ןבל חיט רמג םע H=20 גירא דבמ הלוגרפ H=4.5m אשדאשד אשד אשד אשד אשד אשד הגוראל הצק תמוח ןבל חיט רמג םע H=20 הגוראל הצק תמוח ןבל חיט רמג םע H=20 אשד תמדא אשד ןוטב ריק 20cm 500 500 500 500 5 0 0 500 תוגרדמ הקעמ רטוק תשרבומ הטסורינ4 סקוניר תרבח לש סורג םגד H=+90 דוד ןגמ הייברשמ ריק בהזומ םוינמולא UK=90 H=600 דוד ןגמ הייברשמ ריק בהזומ םוינמולא H=780 )קק"ט :25.20( )קק"ס :26.42( )קק"ט :25.15( )קק"ס :25.18( )קק"ט :25.20( )קק"ס :25.18( המוק לובג' ןוטב דומע הסינכ תלוגרפל ןוטב תורוק UK=440 H=15 תרגסמ ןוטב תורוק ןוטבתלוגרפל UK=401 H=60 הסינכ תלוגרפל ןוטב תורוק UK=440 H=15 תרגסמ ןוטב תורוק ןוטבתלוגרפל UK=401 H=60--1.23 -1.26 -1.26 UK -0.02 -0.02 טלפסא הס כ ס נ צונןיטנוורט ןבא ףוציר'ה תודימ W-750301 צונןיטנוורט ןבא ףוציר'ה תודימ W-750301 צונןיטנוורט ןבא ףוציר'ה תודימ W-750301 תיעבטןבאףוציר יפרומאףותיחב סבוכמןיטנוורט תיעבטןבאףוציר יפרומאףותיחב סבוכמןיטנוורט תיעבטןבאףוציר יפרומאףותיחב סבוכמןיטנוורט תיעבטןבאףוציר יפרומאףותיחב סבוכמןיטנוורט תיעבטןבאףוציר יפרומאףותיחב סבוכמןיטנוורט תיעבטןבאףוציר יפרומאףותיחב סבוכמןיטנוורט 2 128 20 9 117 8 3 44 8 5 0 1 3 5 8 568 67 13 14 15 16 17 18 19 20 10 11 12 22 23 21 טלפסא תקוש תקוש תקוש תקוש תקוש תקוש 308 157 749 477 1 0 470 92 1047 3 5 58 40 16 566046 162 +0.00 ר.פ -0.15 ב.פ +0.00ר.פ -0.15ב.פ ø 5 8 9 8 1198 60 147 1 96 +0.00ר.פ -0.15ב.פ +0.00ר.פ -0.15ב.פ 65 6 694 467 הרקת תכמנה רניס H=329 הרקת תכמנה ררוחמ יטסוקא סבג H=345 הרקת תכמנה ןבל קלח סבג H=776 הרקת תכמנה ןבל קלח סבג H=776 הרקת תכמנה ןבל קלח סבג H=878 הרקת תכמנה ןבל קלח סבג H=1048 8 0 9 0 11 2 50 29 217 1 45 27 10 60 7111042009229824 460103406017396517269229 516103991739671472 579272201074315021214727203365405 13 3 352 1 2 22 5 2 2711812646229418+0.00ר.פ -0.15ב.פ +0.00ר.פ -0.15ב.פ 9 7 8 29 2 4 2 18 9 1 8 5 35 27 4 2 180 57 24 84 2 4 240 200 230 2230 00 210100 21070 210 80 1070-162230 80 1 17 606740 13X28 =364 5X28 140 - 1050927973 827 336 /ןוטבריק דומע םיקולבתוריק זוקינ תלעת זוקינ תלעת זוקינ תלעת זוקינ תלעת זוקינ תלעת זוקינ תלעת זוקינ תלעת זוקינ תלעת העונתלגעמ היינפה טוליש תסנכ תיב תישאר הסינכ 66 1116 1 86 190/170 הסינכ הטסורינמ הרהזא ירותפכ הציענו חודיקל"ףוצירה תרבח"סוארטשלברא" הטסורינ זקנ לוצ זוקינ תלעת 110 250 48 52 8 13 80 6 17 7 0 12 3 0 105 1 0 8 נק"מ: ןוילג רפסמ: םיאסדנהל רפסה תיב "להנמלהללכמה" ויצל ןושארן ךיראת נק ביבס םישרת" מ2500-1 תונויליג טוריפ: רמג טקייורפ - תיב תסנכ " ןשוחה ינבא " המגמ שאר: ףידחלאקיציא טקיורפה החנמ: 'ןהכהרדא השמ היצקורטסנוק ץעוי: גח ליא'יב :ףרסאטקייורפהשיגמ ףסויןב :302121231תוהזתדועת
עקרק
1 2 3 4 5 6 7 8 9 10 11 12 13 14 15 16 17 18 19 20 21 22 23 24 25
אלל
+גגאהמוק תינכות םורדתיזח ברעמתיזח א +ב-באךתח+ד-דךתחתויטטסתומיכס הדובע עקרקתינכותהדובע אתינכותהמוק' ןופצתיזח א +ב-באךתחתוגרדמ ןויליגתוגרדמ יטרפוןויליגםיכתחם ימוקמךתח הדמעהתינכות הרקתתוינכות הרואתתוינכות 100-1
וציר תוינכותף תוריקתסירפ טיהר וסירפובוציעתוינכותת טיהר םיכתחבוציע100-1 100-1 100-1
ריקתסירפ 100-1 100-1 50-1 50-1 50-1 50-1 20-1 לכדילןיוצמ תינכת לכדילןיוצמ תינכת 50-1 50-1 50-1 50-1 25-1 לכדילןיוצמ תינכת
עביסורמא תרבח"מ :1002277קמ"ט
/םידומע:תוריקארקמ
חטשחותיפלםירמוחארקמ W 750301
ןורשהןוטסתרבח הצונןיטנוורטןבאףוציר
לש תודימסקימ4
ט טרופס ישרגמב םימ זוקינ תואשדמ םירוזא םיקורי םייטרפ םיחטש םידעוימה םירוזא םיינפוא יבכורו לגר יכלוהל

א

המוק תינכות ' 100-1

גג תינכות 100-1

אשונהאלל רקח חטשחותיפ +גגאהמוק תינכות םורדתיזח ברעמתיזח א +ב-באךתח+ד-דךתחתויטטסתומיכס הדובע עקרקתינכותהדובע אתינכותהמוק' ןופצתיזח א +ב-באךתחתוגרדמ ןויליגתוגרדמ יטרפוןויליגםיכתחם ימוקמךתח הדמעהתינכות הרקתתוינכות הרואתתוינכות

וציר תוינכותף תוריקתסירפ טיהר וסירפובוציעתוינכותת טיהר םיכתחבוציע-

ריקתסירפ

א המוק + גג תינכות1-100

לכדילןיוצמ תינכת לכדילןיוצמ תינכת 05 06.03.2024

לכדילןיוצמ תינכת 10-1 לכדילןיוצמ תינכת ןוילג םש:

ךתח א-א ךתח א-א ךתח -ב ךתח ב-ב ךתחךתחךתח דךתח ד+8.46ב.פ לוצ מצ לוצ מצ 4 לוצ לוצ מצ לוצ לוצ לוצ לוצ סכר ק סכר וק סכרוק סכרוק האיצי חתפ םימל האיצי חתפ םימל האיציחתפ םימל האיציחתפ םימל תינכת המב H=80 לוצ לוצ לוצ סכרוק 11371222 2359 125 26 3 33 230 65 01 158 245 8 1 30 167 8 30 2687 3260 3260 452 3725 ø745 תינכת המב H=80 תינכת המב H=80 תינכת המב H=80 תינכת המב H=80 תינכת המב H=80 חוטש גגב הדרפה ריק םיעופיש תבוטל םירוזיאל הקולחו H=40 חוטש גגב הדרפה ריק םיעופיש תבוטל םירוזיאל הקולחו H=40 םימל הקעמ גניפוק H=128 1.5% עופיש הקעמ גניפוק H=128 1.5% עופיש גג הקעמ גניפוק H=128 1.5% עופיש גג הקעמ גניפוק H=128 1.5% עופיש קולב ריק 20cm חיט ללוכ מצ לוצ מצ לוצ לוצ רלי םינגזמל 4 לוצ לוצ לוצ האיציחתפ םימל הקעמ גניפוק H=128 1.5% עופיש הקעמ 140120140120140182 26314010014090320 609182 +8.46ב.פ +8.46ב.פ +8.46ב.פ +8.46ב.פ +10.68ב.פ +9.38ב.פ +9.38ב.פ ןוולוגמ חפמ זוקינתחלצ 40/40 ןטלוק הנגה תשר חפמ זוקינ תחלצ ןוולוגמ 40/40 + ןטלוק הנגה תשר ןוולוגמ חפמ זוקינתחלצ 40/40 ןטלוק + הנגה תשר ןוולוגמ חפמ זוקינתחלצ 40/40 ןטלוק הנגה תשר ןוולוגמ חפמ זוקינתחלצ 40/40 ןטלוק 4 הנגה תשר ןוולוגמ חפמ זוקינתחלצ 40/40 ןטלוק + הנגה תשר ןוולוגמ חפמ זוקינתחלצ 40/40 ןטלוק הנגה תשר 2215814014022 2213821414324 280832229622 221471902213624 ךתח א-א ךתח -א ךתח בךתח בךתחךתחךתח ד-ד ךתח ד-ד 2749 477 2949 4 7 0 121.6 עוריא םלואםי 70.0 ישנ תרזעם מ"ר74.3 םירבעמ 60 5 5 109918472481560159415601594156015941560151001560151425 107412225 2301 46156046 7 21 585 134 318 34 1 5 6 1 4 15 60 15 9 15 6 5 9 1 0 1 94 5 60 15 28 4 1 0 7 9 39 5 12 6 7 294 207 5 9 9 0 60 47 5 38 4 5 0 3 55 5 3 8 48 57 00 75 350 60 72 01 5 5 3 8 48 141 2 65 3342 3342 2586 3098522119730 0 2 הרקת תכמנה ןבל קלח סבג H=776 הרקת תכמנה ןבל קלח סבג H=776 הרקת תכמנה ןבל קלח סבג H=878 הרקת תכמנה ןבל קלח סבג H=1048 לופכ ללח 29 49 11 15 29 17 111 4 10 158 2 191 160 23 91 2 3 2ש50 5 24 21 80 5 3 92 13X28 =364 5X28 140 814972755110741 27741103172342714521214017107210224271472121381813222714721215627121922136590130 7 68 27 37 2 192 14 9 3 2 66 +4.29 +4.29 22 םישביןסחמ 21080 2230 00 230 200 21070 8 21070 3 1822944214150439 3 20 1 97 3698332233914844 46 5 6 1 7 4 225208326420070 22144234225 433102491012851522339 293691019064322339 +4.29 0.00 UK= 110 K 0 U 0 H יאבג דרשמ 22.5 H= 630 630 H= 630 630 630 U 1 H הסינכ תלוגרפל ןוטב תורוק UK=440 15/15 תרגסמ ןוטב תורוק ןוטבתלוגרפל UK=401 60/30 הסינכ תלוגרפל ןוטב תורוק UK=440 H=15 תרגסמ ןוטב תורוק ןוטבתלוגרפל UK=401 H=60 H U K 67 13 14 15 16 17 18 19 20 10 11 12 22 23 216 0 60 נק"מ: ןוילג רפסמ: םיאסדנהל רפסה תיב "להנמלהללכמה" ויצל ןושארן ךיראת נק ביבס םישרת" מ2500-1 תונויליג טוריפ: רמג טקייורפ - תיב תסנכ " ןשוחה ינבא " המגמ שאר: ףידחלאקיציא טקיורפה החנמ: 'ןהכהרדא השמ היצקורטסנוק ץעוי: גח ליא'יב :ףרסאטקייורפהשיגמ ףסויןב :302121231תוהזתדועת :חרתבותכריפסתניפןשוחהינבא 1 2 3 4 5 6 7 8 9 10 11 12 13 14 15 16 17 18 19 20 21 22 23 24 25 אלל
100-1 100-1 100-1 100-1 100-1 100-1 100-1 50-1 50-1 50-1 50-1 20-1
50-1 50-1 50-1 50-1 25-1
הביבסטירשת חטשלתואצמתהןויליגאלל 1 100
וימדה26אלל ןויליגת
N
ןויליג םשמ"נק רפסמ ןויליג

:חרתבותכריפסתניפןשוחהינבא

רמג

- תיב תסנכ " ןשוחה ינבא " המגמ שאר: ףידחלא קיציא טקיורפה החנמ: רדא'ןהכה השמ היצקורטסנוק ץעוי: גח ליא'יב טקייורפה שיגמ :ףרסא ףסוי ןב תוהז תדועת

ןויליג םשמ"נק רפסמ ןויליג

הביבסטירשת

אלל אשונהאלל רקח

חטשלתואצמתהןויליגאלל 100-1 100-1

+עקרקחטשחותיפ +גג'אהמוק תינכות +ןופצםורדתיזח ברעמתיזח א +ב-באךתחג +ד-דגךתחתויטטסתומיכס הדובע עקרקתינכותהדובע אתינכותהמוק' +םורדןופצתיזח

100-1 100-1

100-1

100-1 100-1

א +ב-באךתחתוגרדמ ןויליגתוגרדמ יטרפוןויליגםיכתחם

ימוקמךתח +טוהירהדמעהתינכות

וציר תוינכותף

הרקתתוינכות הרואתתוינכות

תוריקתסירפ

+םיטרפריקתסירפ

טיהר וסירפובוציעתוינכותת טיהר +םיטרפםיכתחבוציע-

לכדילןיוצמ תינכת לכדילןיוצמ תינכת לכדילןיוצמ תינכת 10-1

לכדילןיוצמ תינכת

וימדה26אלל ןויליגת

עקרקתמוק 0 אהמוק 429 ב המוק' 858 +9.86 +11.78 +9.86 +5.59 +7.40 +6.43 +6.69 שרגמוקןיינבוקןיינבוק +1.20 +2.20+2.20 -0.02 +6.90 +10.98 הרוסנ ןבא יופיח60/90 הרוסנ ןבא יופיח60/90 -1.26 -0.80 -1.26 -0.02 +0.20 +1.40 +4.59 לולח םוינמולא ריק דוד ןגמ הייברשמ ןווג UK=90 H=600 +4.59 58% 57% תיכוכז הקעמ ןדע H=130 צ לוצ H=250 צ לוצ H=230 ןבל חיט רמג 2cm +1.08 +7.57 שרגמוק טסדופ הקעמ H110 הפמר ךלהמ הקעמ H=90 םימוררפסמ םורהבוג ןבל חיט רמג 2cm +12.49 +10.75 +10.26 +2.10 +1.40 טקקטקק סקקסקק +9.86 +8.16+8.16+8.16+8.16 +3.99+3.99 +0.90 עקרקתמוק 0 אהמוק 429 ב המוק' 858 +9.86+9.86 +7.40+7.40 +3.94+3.94 +2.40 הרוסנ ןבא יופיח60/90 לולח םוינמולא ריק דוד ןגמ הייברשמ ןווג H=780 +10.98 +4.59 +6.59 +8.16 +3.99 +5.29 +7.80 +7.57 הרוסנ ןבא יופיח60/90 +1.40 ןוטב דומע +4.29 צ +2.20 הנבמל תיפקה המוח זב ןווג טכילש יופיח' H=140 ןבל חיט רמג 2cm ןיינבןיינבוקשרגמוקשרגמוק וק +12.49 +9.86 +11.78 +1.40 +10.26 +8.16 סקקסקק טקקטקק +10.98 +3.57 +1.40 +0.00-0.02+1.10+1.00 תונויליג טוריפ: נק"מ: ןוילג רפסמ: ןוילג םש: םיאסדנהל רפסה תיב "להנמלהללכמה" ויצל ןושארן
טקייורפ
ךיראת 1 2 3 4 5 6 7 8 9 10 11 12 13 14 15 16 17 18 19 20 21 22 23 24 25
1 : 100 ןופצ תיזח +םורד 06 06.03.2024 1 : 100 תימורד תיזח1-100 1 תימורד תיזח 1 : 100 תינופצ תיזח1-100 3 תינופצ תיזח

1

1 : 100

םיאסדנהל

ויצל ןושארן

רמג טקייורפ - תיב תסנכ " ןשוחה ינבא "

:חרתבותכריפסתניפןשוחהינבא

היצקורטסנוק ץעוי: גח ליא'יב

המגמ שאר: ףידחלא קיציא טקיורפה החנמ: רדא'ןהכה השמ

טקייורפה שיגמ :ףרסא ףסוי ןב תוהז תדועת

תונויליג טוריפ:

ןויליג םשמ"נק רפסמ ןויליג

הביבסטירשת

אלל

אשונהאלל רקח

+עקרקחטשחותיפ +גג'אהמוק תינכות +ןופצםורדתיזח ברעמתיזח

חטשלתואצמתהןויליגאלל 100-1 100-1 100-1 100-1 100-1

100-1 100-1

א +ב-באךתחג +ד-דגךתחתויטטסתומיכס הדובע עקרקתינכותהדובע אתינכותהמוק' +םורדןופצתיזח

א +ב-באךתחתוגרדמ ןויליגתוגרדמ יטרפוןויליגםיכתחם

וציר תוינכותף

ימוקמךתח +טוהירהדמעהתינכות הרקתתוינכות הרואתתוינכות

תוריקתסירפ

+םיטרפריקתסירפ

טיהר וסירפובוציעתוינכותת טיהר +םיטרפםיכתחבוציע-

לכדילןיוצמ תינכת לכדילןיוצמ תינכת לכדילןיוצמ תינכת 10-1 לכדילןיוצמ תינכת וימדה26אלל ןויליגת

חרזמ תיזח +ברעמ

07

עקרקתמוק 0 אהמוק 429 ב המוק' 858 +11.78 +9.86+9.86 +8.16+8.26 +8.16 +3.94 +1.08 +4.29 +8.16 +5.29 +10.98 +4.59 -0.02 +0.20 -1.26 -0.02 ןיינבשרגמוקשרגמוק וקןיינבוק הרוסנ ןבא יופיח60/90 ןוטב דומע הרוסנ ןבא יופיח60/90 הרוסנ ןבא יופיח60/90 הרוסנ ןבא יופיח60/90 לולח םוינמולא ריק דוד ןגמ הייברשמ ןווג UK=90 H=600 +4.59 +3.99 הנבמל תיפקה המוח זב ןווג טכילש יופיח' H=140 םימוררפסמ םורהבוג ןבל חיט רמג 2cm +12.49 +6.90 +3.99 +0.90 +1.40 +6.59 +10.26 טקק סקק סקק טקק +1.40+1.40 עקרקתמוק 0 אהמוק 429 ב המוק'858 +9.86+9.86 +7.68 +5.59 +6.69 +7.40 +9.78 +1.10+1.10 +3.94 +8.16 +5.39 +8.16+8.16 +4.59 +3.99 +2.20 +1.00+1.10 +10.98 +0.20 -0.02 שרגמוקןיינבוקשרגמוק ןיינבוק הרוסנ ןבא יופיח60/90 לולח םוינמולא ריק דוד ןגמ הייברשמ ןווג H=780 ןוטב דומע הרוסנ ןבא יופיח60/90 הרוסנ ןבא יופיח60/90 טסדופ הקעמ H110 הפמר ךלהמ הקעמ H=90 הנבמל תיפקיה המוח טכילש עבצ יופיח H=140 תיכוכז הקעמ ןדע H=130 צ לוצ H=230 לוצ H=230 ןבל חיט רמג 2cm ןבל חיט רמג 2cm +12.49 +11.78 +1.20 +1.40 +1.10+1.10 +1.40 +8.16 +7.57+7.57 +1.40 טקק סקק סקק טקק
נק"מ:
ןוילג רפסמ: ןוילג םש:
רפסה תיב
"להנמלהללכמה"
ךיראת 1 2 3 4 5 6 7 8 9 10 11 12 13 14 15 16 17 18 19 20 21 22 23 24 25
1 : 100
06.03.2024 תיברעמ תיזח תיחרזמ תיזח
תיברעמ תיזח1-100 1
תיזח1-100 3
: 100 תיחרזמ

:חרתבותכריפסתניפןשוחהינבא

" ןשוחה ינבא " המגמ שאר: ףידחלא קיציא

החנמ:

'ןהכה השמ היצקורטסנוק ץעוי: גח ליא'יב טקייורפה שיגמ :ףרסא ףסוי ןב תוהז תדועת

35611025295109252061520300191241188206152038932503473554340351832202781991403549345152018324791101303293514832462678768152012832507761520

תונויליג

ןויליג םשמ"נק רפסמ ןויליג

הביבסטירשת

אלל

אשונהאלל רקח

+עקרקחטשחותיפ +גג'אהמוק תינכות +ןופצםורדתיזח ברעמתיזח

חטשלתואצמתהןויליגאלל 100-1 100-1 100-1 100-1 100-1

100-1 100-1

א +ב-באךתחג +ד-דגךתחתויטטסתומיכס הדובע עקרקתינכותהדובע אתינכותהמוק' +םורדןופצתיזח

א +ב-באךתחתוגרדמ ןויליגתוגרדמ יטרפוןויליגםיכתחם

טיהר וסירפובוציעתוינכותת

טיהר +םיטרפםיכתחבוציע-

ימוקמךתח +טוהירהדמעהתינכות הרקתתוינכות הרואתתוינכות

וציר תוינכותף

תוריקתסירפ

+םיטרפריקתסירפ

לכדילןיוצמ תינכת לכדילןיוצמ תינכת לכדילןיוצמ תינכת 10-1 לכדילןיוצמ תינכת וימדה26אלל ןויליגת

א םיכתח- א +ב-ב

עקרקתמוק 0 אהמוק 429 ב המוק'858 שרגמוקןיינבוקשרגמוק ןיינבוק 394
+6.59 +4.29 +9.86 +8.46 +9.85 +0.00+0.00 +2.31 +4.29 +5.21 +4.38 +0.43 +11.78 +8.26 +9.78 +11.26 +8.26+8.26 +3.29 +3.94 +2.06 +3.94 +1.10+1.10 +7.40 110+1.10 טקקטקק +2.40+3.40 +3.99 +4.59 +7.76 +8.78 +10.48 +8.46+7.57 +10.98 +11.58 +8.58 +3.41 +9.28 +7.40 12832503473554340 +7.76 +3.20 הרוסנ ןבא יופיח60/90 +6.29 +10.80 סקקסקק
19313920
150 +5.71 +8.58 +10.26 +12.47 +8.58 +9.86 +9.50 +8.72 +8.58 +8.16 -0.02 +1.40+1.40 +0.20 +7.59 עקרקתמוק 0 אהמוק 429 ב המוק' 858 +4.29 +8.46 +9.86+9.86+9.86 +4.29 +6.39 +11.78 +11.46 +9.86 +3.30 +6.36 +0.00 +2.31 +4.29 +11.26 +8.26 +2.06 +2.10 +7.39+1.103539435549269 ןיינבוקשרגמוקשרגמןיינבוק וק טקקטקק +7.76 +8.78 +7.76 +3.45+3.40+3.40 +7.76 +2.30 +8.16 +3.99 +8.58 +4.59 +7.68 +8.58+8.58 +9.50 הרוסנ ןבא יופיח60/90 +3.29 קק"ס קק"ס 3577650321282015329242197783240323635345493534750321282015329164920153011220550201212835340543530317202353052511029425110257+4.59+5.71+3.40150340543534750322683220 +12.49 +4.29 +8.98 +5.71 +2.30 +2.10 +7.76 +1.40+1.40 -0.02+0.00-0.02
טוריפ: נק"מ: ןוילג רפסמ: ןוילג םש: םיאסדנהל רפסה תיב "להנמלהללכמה" ויצל ןושארן רמג טקייורפ - תיב תסנכ
טקיורפה
רדא
ךיראת 1 2 3 4 5 6 7 8 9 10 11 12 13 14 15 16 17 18 19 20 21 22 23 24 25
1 : 100
08
א ךתח- א1-100 1
1 : 100
100
ךתח- ב1-100 2 א ךתח-א
ךתח-ב
1 :
ב
ב

70323973554340240323973554140100100320122039735394160561312113454341

11025206-0.02-0.02

:חרתבותכריפסתניפןשוחהינבא

ליא'יב

טקייורפה שיגמ :ףרסא ףסוי ןב תוהז תדועת

ןויליג םשמ"נק רפסמ ןויליג

הביבסטירשת

אלל

אשונהאלל רקח

+עקרקחטשחותיפ +גג'אהמוק תינכות +ןופצםורדתיזח ברעמתיזח

חטשלתואצמתהןויליגאלל 100-1 100-1 100-1 100-1 100-1

100-1 100-1

א +ב-באךתחג +ד-דגךתחתויטטסתומיכס הדובע עקרקתינכותהדובע אתינכותהמוק' +םורדןופצתיזח

א +ב-באךתחתוגרדמ ןויליגתוגרדמ יטרפוןויליגםיכתחם

ימוקמךתח +טוהירהדמעהתינכות

וציר תוינכותף

הרקתתוינכות הרואתתוינכות

+םיטרפריקתסירפ

תוריקתסירפ טיהר וסירפובוציעתוינכותת טיהר +םיטרפםיכתחבוציע-

לכדילןיוצמ תינכת לכדילןיוצמ תינכת לכדילןיוצמ תינכת 10-1

לכדילןיוצמ תינכת וימדה26אלל ןויליגת

ג םיכתח- ג +ד-ד

עקרקתמוק 0 אהמוק 429 ב המוק'858 שרגמןיינבוק וק ןיינבוקשרגמוק +0.0020324662540425206203973539435 +0.00 +4.29+4.27 +9.85 +4.29+4.29 +3.30 +6.39 +2.10 +3.94 +2.06 +3.05 +8.26+8.26 +9.86+9.86 +8.26+8.16 טקק טקק +9.28 +2.10+2.10 +3.40 +7.70 +3.40 +7.34 +6.35 +10.98 +8.58 +7.59 +6.60 +2.31 +11.58 +8.58 +11.26 +6.44+6.44+6.44 +8.16 +3.94 +2.10 128323973554340 +9.28
-1.26 +0.20 1220 204662540425206150 +10.26 +2.10 +4.59 +3.99 םימוררפסמ םורהבוג +1.08+1.20 לולח םוינמולא ריק דוד ןגמ הייברשמ ןווג UK=90 H=600 הרוסנ ןבא יופיח60/90 ןוטב דומע +6.90 +0.90 +1.30 הרוסנ ןבא יופיח60/90 הקימרק רמג יופיח 60X30 ןווג H=210 הקימרק רמג יופיח 60X30 ןווג H=210 תינכט המבתינכטהמבתינכט המב טקק תסנכ תיב םלוא ןטק ע ןטק תסנכ תב םיעוריא םלוא חבטמ 2015305259930525992683220 +12.49 +11.78 +6.39 +8.58 +8.98 +1.20 +1.40 עקרקתמוק 0 אהמוק 429 ב המוק'858 שרגמןיינבוקוקןיינבוקשרגמוק +9.86 +6.39+6.47 +2.31 +0.00 +4.29 +3.30 3943534750152269+3.05+3.94 תינכט המב H=80 הרוסנ ןבא יופיח60/90 הרוסנ ןבא יופיח60/90 +8.16+8.16 +5.59 +8.16 +7.76 +9.28 +9.86+9.86+9.86 +8.58 +8.26 +7.34 +6.60 +4.29 +3.40+3.45+3.29 +9.28 +2.10 +8.58 +2.59 +1.86 -0.02+0.00 +1.20+1.08 +0.20 +4.59 +3.99 +6.90+7.76 +3.40 טקק טקק טקק 23119834750201212035340542015301122055020+5.7120153292422055032128128122050776 81835394150 3534054651002672012128201530512433099 +11.78 +12.49 +4.29 +8.98 +8.58 +1.40 -0.02 +5.71 תונויליג טוריפ: נק"מ: ןוילג רפסמ: ןוילג םש: םיאסדנהל רפסה תיב "להנמלהללכמה" ויצל ןושארן רמג טקייורפ - תיב תסנכ " ןשוחה ינבא " המגמ שאר: ףידחלא קיציא טקיורפה החנמ: רדא'ןהכה השמ היצקורטסנוק ץעוי: גח
ךיראת 1 2 3 4 5 6 7 8 9 10 11 12 13 14 15 16 17 18 19 20 21 22 23 24 25
1 : 100
09
ג ךתח- ג1-100 1
1 : 100
: 100 ד ךתח- ד1-100 2 ג ךתח-ג ד ךתח-ד
1
עקרק תיטטס המיכס

א המוק תיטטס המיכס 2

םיאסדנהל

"להנמלהללכמה"

ויצל ןושארן

רמג טקייורפ - תיב

תסנכ " ןשוחה ינבא "

:חרתבותכריפסתניפןשוחהינבא

היצקורטסנוק ץעוי: גח ליא'יב

המגמ שאר: ףידחלא קיציא טקיורפה החנמ: רדא'ןהכה השמ

טקייורפה שיגמ :ףרסא ףסוי ןב תוהז תדועת

תונויליג טוריפ:

ןויליג םשמ"נק רפסמ ןויליג

הביבסטירשת

אלל

אשונהאלל רקח

+עקרקחטשחותיפ +גג'אהמוק תינכות +ןופצםורדתיזח ברעמתיזח

חטשלתואצמתהןויליגאלל 100-1 100-1 100-1 100-1 100-1

100-1 100-1

א +ב-באךתחג +ד-דגךתחתויטטסתומיכס הדובע עקרקתינכותהדובע אתינכותהמוק' +םורדןופצתיזח

א +ב-באךתחתוגרדמ ןויליגתוגרדמ יטרפוןויליגםיכתחם

ימוקמךתח +טוהירהדמעהתינכות

וציר תוינכותף

הרקתתוינכות הרואתתוינכות

תוריקתסירפ

+םיטרפריקתסירפ

טיהר וסירפובוציעתוינכותת טיהר +םיטרפםיכתחבוציע-

לכדילןיוצמ תינכת לכדילןיוצמ תינכת לכדילןיוצמ תינכת 10-1

לכדילןיוצמ תינכת וימדה26אלל ןויליגת

ןוילג םש:

תויטטס תומיכס

ןוילג רפסמ:

1 2 3 4 5 67 13 14 15 16 17 18 19 20 21 1 9 10 11 12 דבלב עקרק תמוק לש םידומע 4 ס60/35ק. ק ס 60/35 ק ס 60/35 ק ס 60/35 סק60/35 סק 60/35 סק60/35 סק60/35 סק60/35 סק60/35 סק60/35 ק ס 60/35 סק60/35 סק 60/35 ס60/35 +3.94 +3.94 +3.94 +3.94 וטב ריקן 35cm וטב ריקן 25cm וטב ריקן 25cm תישקמ הרקת H=35 תישקמ הרקת H=35 תישקמ הרקת H=35 תישקמ הרקת H=35 סק60/35 לוגעןוטב דומע ןוטב דומע 60X20 לוגעןוטב דומע 22 23 5 6 67 8 13 14 15 16 17 18 19 20 21 22 23 10 11 12 ת20/70ק. ק ת 20/70 ק ת 20/70 ק ת 20/70 ת20/70ק. תק20/70 ת20/70 ק ת 20/70 ק ת 20/70 ת20/70ק. ת20/70 ק ת20/70 ק ת20/70 תק 20/70 תק20/70 ק ת 20/70 תק20/70 תק20/70 תק20/70 תימורט הרקת H=40 תימורט הרקת H=40 תשקמהרקת H=40 תישקמ הרקת H=40 +8.58 +8.58 +858 +8.58
נק"מ:
תיב
רפסה
ךיראת 1 2 3 4 5 6 7 8 9 10 11 12 13 14 15 16 17 18 19 20 21 22 23 24 25
1 : 100
10
: 100
1
1 1 : 100
א המוק
תיטטס המיכס עקרק תיטטס המיכס
'

:חרתבותכריפסתניפןשוחהינבא

ץעוי: גח ליא'יב :ףרסאטקייורפהשיגמ ףסויןב :302121231תוהזתדועת

הביבסטירשת חטשלתואצמתהןויליגאלל 100-1 100-1

אשונהאלל רקח חטשחותיפ +גגאהמוק תינכות םורדתיזח ברעמתיזח א +ב-באךתח+ד-דךתחתויטטסתומיכס הדובע עקרקתינכותהדובע אתינכותהמוק' ןופצתיזח א +ב-באךתחתוגרדמ ןויליגתוגרדמ יטרפוןויליגםיכתחם ימוקמךתח הדמעהתינכות הרקתתוינכות הרואתתוינכות

ריקתסירפ

וציר תוינכותף תוריקתסירפ טיהר וסירפובוציעתוינכותת טיהר םיכתחבוציע-

לכדילןיוצמ תינכת לכדילןיוצמ תינכת

עקרקתמוק אהמוק 429 ב המוק' 858 +9.86 +11.78 +9.86 +5.59 +7.40 +9.78 +6.43 +6.69 +8.16 שרגמוקןיינב ןיינבוק +8.16 +1.20 +2.20+2.20 -0.02 +0.90 +6.90 +10.98 +8.16 -1.26 -0.80 -1.26 -0.02 +0.20 +1.40 +4.59 +3.99 +8.16 לולח םוינמולא ריק דוד ןגמ הייברשמ ןווג UK=90 H=600 +4.59 +3.99 % % תיכוכז הקעמ ןדע H=130 לוצ H=230 לוצ H=230 ןבלחיט רמג 2cm +5.39 +1.08 +7.57 שרגמוק טסדופ הקעמ H110 הפמר ךלהמ הקעמ שרבומ הטסורינ4 H=90 םימוררפסמ םורהבוג ןבלחיט רמג 2cm קולבריקח 20cm טכילש עבצ יופיח םע H=120 קולבריקח 20cm טכילש עבצ יופיח םע H=140 הרוסנןבא יופיח60/90 השבי הבכרה הרוסנןבא יופיח60/90 השבי הבכרה הרוסנןבא יופיח60/90 השבי הבכרה הרוסנןבא יופיח60/90 השבי הבכרה +10.26 +10.98 ןבלחיט רמג 2cm תיכוכז תפיכ הנירק תענומ 0.8mm עבורמ םוינמולא ליפורפ 4/1cm ינבלמ םוינמולא ליפורפ 15/5cm הללצהל ןוטב תרוק UK=399 H=60 60399 הללצהל ןוטב תרוק UK=399 H=60 ןוטב תוגרדמ שיש יופיח םע תוגרדמ הקעמ רטוק תשרבומ הטסורינ4 סקוניר תרבח לש סורג םגד H=+90 הדרפה ריק םיסלפמ ןיב ןבלחיט רמג 2cm קולבריקח 20cm טכילש עבצ יופיח םע H=140 -1.23 ןבא ףוציר תיעבט ךותיחב ןיטנוורט סבוכמ לוח ןוטב ןוטב ןוטב ןוטב ןוטב ןוטב בוכרכ H=128 בוכרכ H=128 +12.49 +10.75 +1.40 +2.10 עקרקתמוק 0 אהמוק 429 המוק' 858 +9.86+9.86 +7.40+7.40 +3.94+3.94 +2.40 לולח םוינמולא ריק דוד ןגמ הייברשמ ןווג H=780 +10.98 +4.59 +6.59 +8.16 +3.99 +5.29 +7.80 +7.57 הרוסנןבא יופיח60/90 השבי הבכרה ןוטב דומע +4.29 +2.20 הנבמל תיפקה המוח ןווג טכילש יופיח' H=140 +8.16 ןבלחיט רמג 2cm ןיינב שרגמ וק ןיינב וק שרגמ וק 90 הרוסנןבא יופיח60/90 השבי הבכרה הרוסנןבא יופיח60/90 השבי הבכרה הרוסנןבא יופיח60/90 השבי הבכרה בוכרכ H=128 H=128 ןבלחיט רמג 2cm הללצהל ןוטב תרוק UK=399 H=60 תיכוכז תפיכ הנירק תענומ 0.8mm עבורמ םוינמולא ליפורפ 4/1cm ינבלמ םוינמולא ליפורפ 15/5cm תיכוכז ריק םיליפורפ תרזעב םושיי יבוע סקלפירט תיכוכז 8mm x2 םיקירב יופיח ןולחה תרגסמ ביבס םיליפורפ םע הנירטיוריק יבוע סקלפירט תיכוכז 0.8cm x2 םוינמולא ליפורפ 15x5 הנבמל תיפקה המוח זב ןווג טכילש יופיח' H=140 םיליפורפ םע הנירטיוריק יבוע סקלפירט תיכוכז 0.8cm x2 תינוציח תרואת H=420 תינוציח תרואת H=420 תינוציח ןג תרואת H=420 םוינמולא ליפורפ םוינמולא ליפורפ 15x5 +11.78 +12.49 +9.86 +1.40 +3.57 +2.60 +1.10 +0.00-0.02 +0.20 +1.00 +10.26 +1.40 +0.20 +1.00+1.00 +0.20 עבורמ םוינמולא ליפורפ 4/1cm נק"מ: ןוילג רפסמ: םיאסדנהל רפסה תיב "להנמלהללכמה" ויצל ןושארן ךיראת נק ביבס םישרת" מ2500-1 תונויליג טוריפ: רמג טקייורפ - תיב תסנכ " ןשוחה ינבא " המגמ שאר: ףידחלאקיציא טקיורפה החנמ: 'ןהכהרדא השמ היצקורטסנוק
1 2 3 4 5 6 7 8 9 10 11 12 13 14 15 16 17 18 19 20 21 22 23 24 25 אלל
50-1 50-1 50-1 50-1 25-1 לכדילןיוצמ תינכת 10-1 לכדילןיוצמ תינכת ןוילג םש: וימדה26אלל
1 50 13 06.03.2024 ןופצ תיזח +םורד 1 : 50 תימורד תיזח1-50 1 1 : 50 תינופצ תיזח1-50 2 תימורד תיזח 50-1 תינופצ תיזח 50-1
100-1 100-1 100-1 100-1 100-1 50-1 50-1 50-1 50-1 20-1
ןויליגת
ןויליג םשמ"נק רפסמ ןויליג

1 :

א

1 : 20

1

הביבסטירשת חטשלתואצמתהןויליגאלל

חטשחותיפ +גגאהמוק תינכות םורדתיזח ברעמתיזח א +ב-באךתח+ד-דךתחתויטטסתומיכס הדובע עקרקתינכותהדובע אתינכותהמוק' ןופצתיזח א +ב-באךתחתוגרדמ ןויליגתוגרדמ יטרפוןויליגםיכתחם ימוקמךתח הדמעהתינכות

הרקתתוינכות הרואתתוינכות

ריקתסירפ

וציר תוינכותף תוריקתסירפ טיהר וסירפובוציעתוינכותת טיהר םיכתחבוציע-

ךתח תוגרדמ B ךתח תוגרדמ B ךתח תוגרדמ C ךתח תוגרדמ C 182140175 םימוררפסמ םורהבוג תוגרדמ הקעמ רטוק תשרבומ הטסורינ4 סקוניר תרבח לש סורג םגד H=+90 טסדופ הקעמ רטוק תשרבומ הטסורינ4 סקוניר תרבח לש סורג םגד H=+110 תיכוכז ריק תבשות םוינמולא ליפורפ ןוטב תוגרדמ שיש יופיח םע 5cm 14 X 16.5 = 230 13 X 28 = 364 6 X 16.5 = 99 5 X 28 = 140 6 X 16.5 = 99 5 X 28 = 140 הנירטיו תיכוכז םוינמולא ליפורפ תקולחב תיכוכז יבוע 0.8mm הקלחה תעינמל חטשמ 60X100 60/100 15628282828282828282828282828 156364 1822828282828175 +0.00ר.פ -0.15ב.פ +2.31 +3.30 הקלחה דגנ דימע טרס M3 תיכוכז הקעמ H=90 ןוטב ריק 25 cm 14610282828282880 230 2019020 2017020 ןוטב ןוטב ןוטב 146 147210140 146230144 497 520 הקלחה דגנ דימע טרס M3 תיסופיטתילעמ 190/170 טרפמ"תוילעמ ץעויפ ךתח תוגרדמ B ךתח תוגרדמ B ךתח תוגרדמ C ךתח תוגרדמ C 27147210140 140 60/100 182140175 15628282828282828282828282828 156364 1822828282828175156282828282828 156168 +4.29ר.פ +4.14ב.פ +6.60 +7.59 14 X 16.5 = 230 13 X 28 = 364 6 X 16.5 = 99 5 X 28 = 140 6 X 16.5 = 99 5 X 28 = 140 תוגרדמ הקעמ רטוק תשרבומ הטסורינ4 סקוניר תרבח לש סורג םגד H=+90 טסדופ הקעמ רטוק תשרבומ הטסורינ4 סקוניר תרבח לש סורג םגד H=+110 תיכוכז ריק תבשות םוינמולא ליפורפ הנירטיו תיכוכז םוינמולא ליפורפ תקולחב תיכוכזיבוע 0.8mm הקלחה תעינמל חטשמ 60X100 הקלחה דגנ דימע טרס M3 תיכוכז הקעמ H=90 םימוררפסמ םורהבוג ןוטב ריק20 ןוטב ןוטב ןוטב 146 146 230 210 230144 הקלחה דגנ דימע טרס M3 49727 520 תיכוכזהקעמ טסדופ H=110 ןוטב תוגרדמ שיש יופיח םע 5cm 2017020 2019020 תיסופיטתילעמ 190/170 טרפמ"תוילעמ ץעוי ךתח תוגרדמ B ךתח תוגרדמ B ךתח תוגרדמ C ךתח תוגרדמ C תוגרדמ הקעמ רטוק תשרבומ הטסורינ4 סקוניר תרבח לש סורג םגד H=+90 טסדופ הקעמ רטוק תשרבומ הטסורינ4 סקוניר תרבח לש סורג םגד H=+110 תיכוכז ריק תבשות םוינמולא ליפורפ םוינמולא ליפורפ תקולחב תיכוכזיבוע 0.8mm הקלחה דגנ דימע טרס M3 ןוטב ןוטב 14 X 16.5 = 230 13 X 28 = 364 6 X 16.5 = 99 5 X 28 = 140 6 X 16.5 = 99 5 X 28 = 140 182140175147210140 1562828282828 156 1822828282828175156282828282828156140142 146230 497 140 147 140140 14610168114 תיילע האצי גג קולבריק 20cm +ןבל חיט רמג +6.60 +7.59 +8.58 146201902084 תיסופיטתילעמ 190/170 טרפמ"תוילעמ ץעוי נק"מ: ןוילג רפסמ: םיאסדנהל רפסה תיב "להנמלהללכמה" ויצל ןושארן ךיראת נק ביבס םישרת" מ2500-1 תונויליג טוריפ: רמג טקייורפ - תיב תסנכ " ןשוחה ינבא " המגמ שאר: ףידחלאקיציא טקיורפה החנמ: 'ןהכהרדא השמ היצקורטסנוק ץעוי: גח ליא'יב :ףרסאטקייורפהשיגמ ףסויןב :302121231תוהזתדועת :חרתבותכריפסתניפןשוחהינבא 1 2 3 4 5 6 7 8 9 10 11 12 13 14 15 16 17 18 19 20 21 22 23 24 25 אלל אשונהאלל רקח
100-1 100-1 100-1 100-1 100-1 100-1 100-1 50-1 50-1 50-1 50-1 20-1 לכדילןיוצמ תינכת לכדילןיוצמ תינכת 50-1 50-1 50-1 50-1 25-1 לכדילןיוצמ תינכת 10-1 לכדילןיוצמ תינכת ןוילג םש: וימדה26אלל ןויליגת 1 20 15 06.03.2024
ןויליג- תוינכת
תוגרדמ
דמימ תלתב תוגרדמ 1
20
עקרק תמוק תוגרדמ 2
המוק
תוגרדמ
3
: 20
ףושח דמימ תלתב תוגרדמ 8
םשמ"נק רפסמ ןויליג
גג תמוק תוגרדמ 4
ןויליג

1 : 25 תוגרדמ

תוגרדמ טרפ- 4 ריקל די זחאמ ןוגיע 7

1 : 2

תוגרדמ טרפ- 3 תיכוכז הקעמ 6

1 : 5

תוגרדמ טרפ- 1 הנושאר הגרדמ 4

ןויליג םשמ"נק רפסמ ןויליג 1 Revi sion 1

1

הביבסטירשת חטשלתואצמתהןויליגאלל 100-1 100-1 100-1 100-1 100-1

א

+ד-דךתחתויטטסתומיכס הדובע עקרקתינכותהדובע אתינכותהמוק' ןופצתיזח א +ב-באךתחתוגרדמ ןויליגתוגרדמ יטרפוןויליגםיכתחם ימוקמךתח הדמעהתינכות הרקתתוינכות הרואתתוינכות

וציר תוינכותף תוריקתסירפ טיהר וסירפובוציעתוינכותת טיהר םיכתחבוציע-

ריקתסירפ

וימדה26אלל ןויליגת

תוגרדמ טרפ- 2

די זחאמו טסדופ םע שגפמ םוינמולא 5

1 : 5

תוגרדמ םיכתח+ןויליגםיטרפ

100-1 100-1 50-1 50-1 50-1 50-1 20-1 לכדילןיוצמ תינכת לכדילןיוצמ תינכת 50-1 50-1 50-1 50-1 25-1 לכדילןיוצמ תינכת 10-1 לכדילןיוצמ תינכת ןוילג םש:

16.5 +0.00 +2.31 +3.30 +4.29 +6.60 +7.59 +11.58 +8.26 +6.35 +3.94 +3.40 +2.06 +5.39 +5.56 תילעמ ריפ יאבג ןסחמ +7.76 םיעופיש לקטב םוטיא תועירי X3 תופצרמ ןיב תוגופ הרקת תכמנה קלח ןבל סבג הרקת תכמנהל סבג לולסמ 5cm סבגלבצינ 7cm תוגרדמ הקעמ רטוק תשרבומ הטסורינ4 סקוניר תרבח לש סורג םגד H=+90 תעינמל חטשמ הקלחה 60X100 טיט לוח ןלצרופטינרגףוציר RiverBeige תיבמ REFIN קירבמרומיג 120/120 קולב ריק 20cm ןבלחיט רמג 2cm טסדופ הקעמ רטוק תשרבומ הטסורינ4 סקוניר תרבח לש סורג םגד H=+110 המוק תיכוכז הקעמ' H=110 טסדופ הקעמ רטוק תשרבומ הטסורינ4 סקוניר תרבח לש סורג םגד H=+110 תוגרדמ הקעמ רטוק תשרבומ הטסורינ4 סקוניר תרבח לש סורג םגד H=+90 םיעופיש לקטב םוטיא תועירי X3 הרקת תכמנה קלח ןבל סבג הרקת תכמנהל סבג לולסמ 5cm סבגלבצינ 7cm תיכוכז ריק תבשות םוינמולא ליפורפ הנירטיו תיכוכז םוינמולא ליפורפ תקולחב תיכוכז יבוע 0.8mm קולב ריק 20cm ןבלחיט רמג 2cm תוגרדמ ךלהמל תיכוכז הקעמ H=110 תוגרדמ ךלהמל תיכוכז הקעמ H=110 תעינמל חטשמ הקלחה 60X100 16.516.516.516.516.516.516.516.516.516.516.516.516. 516.5201520625993052599367201220 ןוטבתקיצי תוגרדמ שיש יופיח םע 5cm ןוטבתקיצי תוגרדמ שיש יופיח םע 5cm 3405435347503232020115353943539732320 ןבלחיט רמג 2cm ןבלחיט רמג 2cm ןבלחיט רמג 2cm ןבלחיט רמג 2cm ןבלחיט רמג 2cm 16 16 16 16 -1.50 +6.60 +7.59 +8.58 +8.58 +11.58 +11.58 +2.31 +0.00 +3.05 +2.06 +3.40 +3.94 +6.35 +7.34 +8.26 252061520 תילעמ ריפ יאבג ןסחמ +2.15 +1.24 3516.516.516.516.516.516.516.516.516.516.516.516.5116.516.516.516.516.516.5 6.516.51103226816.516.516.516.516.516.52530516.516.516.516.51 6.516.5253051520 +11.26+11.26 150 110 16.516.516.516.516.516.5 +3.30 +4.29 +7.76 +3.94 -1.50 תוגרדמ הקעמ רטוק תשרבומ הטסורינ4 סקוניר תרבח לש סורג םגד H=+90 טסדופ הקעמ רטוק תשרבומ הטסורינ4 סקוניר תרבח לש סורג םגד H=+110 ןוטבתקיצי תוגרדמ שיש יופיח םע 5cm תוגרדמ הקעמ רטוק תשרבומ הטסורינ4 סקוניר תרבח לש סורג םגד H=+90 טסדופ הקעמ רטוק תשרבומ הטסורינ4 סקוניר תרבח לש סורג םגד H=+110 5 5 5 5 ןוטבתקיצי תוגרדמ שיש יופיח םע 5cm ןוטב ןוטב ןוטב ןוטב ןוטב ןוטב ןוטב קולב ריק 20cm ןבלחיט רמג 2cm ןוטב הרקת תכמנה קלח ןבל סבג הרקת תכמנהל סבג לולסמ 5cm סבגלבצינ 7cm קולב ריק 20cm ןבלחיט רמג 2cm קולב ריק 10 cm טיט לוח ןלצרופ טינרג ףוציר River Beige תיבמ REFIN קירבמ רומיג 120/120 תעינמל חטשמ הקלחה 60X100 ןוטב תופצרמ ןיב תוגופ תיכוכז הקעמ H=110 םיעופיש לקטב םוטיא תועירי X3 םיעופיש לקטב םוטיא תועירי X3 קולב ריק 20cm ןבלחיט רמג 2cm 11016.516.516.516.516.516.516.516.516.516.516.5 16. 16.516.535 טיט לוח ןלצרופ טינרג ףוציר River Beige תיבמ REFIN קירבמ רומיג 120/120 תיילע האיצי א המוק' ןבלחיט רמג 2cm ןבלחיט רמג 2cm ןבלחיט רמג 2cm ןבלחיט רמג 2cm +0.00 20 12 11.5 11.5 28 30 ןוטבתפצר ןוטבתגרדמדוסי תקיצי תוגרדמ הרהזאחטשמ הנושארהגרדמיפל תואצמתהבהרזעל טיט ןלצרופ טינרג ףוציר River Beige תיבמ REFIN קירבמ רומיג 120X120 הקלחהדגנדימעטרס M3 תוגרדמ קוציןוטב הגרדמםור ףוצירלההזשישהפוחמ 140/11.5/2 שיש ןבא הפוחמ חלש 140/28/5 לש הגרדמ ףא ללוכ5/2 זב ןווג 'קירבמ רומיג םע ןוטבןש ןוטבמתוקוציתוגרדמ הקלחה דגנ דימע טרס M3 שיש ןבא הפוחמ חלש 140/28/5 לש הגרדמ ףא ללוכ5/2 זב ןווג 'קירבמ רומיח םע תוגרדמ קוצי ןוטב ריקיופיח ןבלחיטרמג הקיציתמלשה ןוטבןש תוגרדמ הקעמ רטוק תשרבומ הטסורינ4 סקוניר תרבח לש סורג םגד H=+90 זחאמלתבשות הקעמלםאותןווגב הקלחהדגנדימעטרס M3 טיט םינפחיט 2cm 2511.55 219.51025 לוחיולימ 10cm טיט 2cm שישתטלפמטסדופ הגרדמהחלשלההזןווגב 28 28222 16.5 תיכוכזהקעמ הגרדמ H=110 44 10 ריקלןוגיעגרוב טומ13" טומ38" נק"מ: ןוילג רפסמ: םיאסדנהל רפסה תיב "להנמלהללכמה" ויצל ןושארן ךיראת נק ביבס םישרת" מ2500-1 תונויליג טוריפ: רמג טקייורפ - תיב תסנכ " ןשוחה ינבא " המגמ שאר: ףידחלאקיציא טקיורפה החנמ: 'ןהכהרדא השמ היצקורטסנוק ץעוי: גח ליא'יב :ףרסאטקייורפהשיגמ ףסויןב :302121231תוהזתדועת :חרתבותכריפסתניפןשוחהינבא 1 2 3 4 5 6 7 8 9 10 11 12 13 14 15 16 17 18 19 20 21 22 23 24 25 אלל אשונהאלל רקח חטשחותיפ +גגאהמוק תינכות
םורדתיזח ברעמתיזח
+ב-באךתח-
As indicated 16 06.03.2024
ךתחB 2
5
1 : 25 תוגרדמ ךתחC 3 1 :

ריק טרפל ימוקמ ךתח 10 ןויליג םשמ"נק רפסמ ןויליג

ןופצתיזח א +ב-באךתחתוגרדמ ןויליגתוגרדמ יטרפוןויליגםיכתחם ימוקמךתח הדמעהתינכות הרקתתוינכות הרואתתוינכות

וציר תוינכותף תוריקתסירפ טיהר וסירפובוציעתוינכותת טיהר םיכתחבוציע-

ריקתסירפ

עקרקתמוק אהמוק 429 המוק'858 17 17 17 17 % םינפ ץוח םינפחיט ןוטב תקיצי 25cm ןמוטיברמיירפ חישק רקלק3 ע קבדומ"רמיירפ ןמוטיב הקלור ןוטבמ הצברה חיט 2cm םוטיא תחירמ 1 cm ע ןבאה ןוגיע" ינכמ ןוגיע קבדומ דודיב חול 3cm ןיטנוורט ןבא יופיח 90/60 cm שיש גניפוק 1.5% םיעופיש לקטב ןויז תשר ללוכ 3 םוטיא תועירי תוינמוטיב ימרטחיטלןתיווש טנמצ תצברה 1cm ימרט חיט 3.5 cm הביישםעגרוב לבידםעגרוב ןוגיעו יופיחל םוינימולא ליפורפ םוינימולא אשונ ליפורפ םוטיאל ימוג םע תידודיבותדבורמתיכוכז םוינימולא ליפורפ 15X5 ןוטב ןוגיעלםוינימולאלליפורפ םוינמולא ליפורפ 1X4 ןמוטיברמיירפ חישק רקלק3 ע קבדומ"ןמוטיב רמיירפ ןוטבמהקלור ללוכ םיעופיש ןוטב ןויז תשר 3 םוטיא תועירי תוינמוטיב ימרטחיטלןתיווז ימרט חיט 2.5 טנמצתצברה
םינפחיט ןוטב % 1.5% תיכוכז הקעמ 1.8mm H=120 םוינמולא ליפורפ דלח תיקיז ליפורפ ןוגיע גרוב תיכוכז הקעמ ליפורפ ןוטבל יונב הקעמ- ןוטב H=30 ןבלקלחםינפחיט טיט לוח ןוטב ןלצרופ טינרג ףוציר River Beige תיבמ REFIN קירבמ רומיג 120/120 רבוע ללח תרבחלשםיקירב ןרקיופיח" םגדםייעבט םינווגבRETROBM-703 :הרצםינבלהתודימ תיזחב 21X5cm H=110 םינפ חיט 2cm 17 1 7% קיטסלפ זוקינ תלעת הטסורינ תשר םע טבמבהפשןבא תיעבט ןבא ףוציר יפרומא ךותיחב סבוכמ ןיטנוורט ןוטבדומע ל סוסיב-א.ש תבלתשמ ןבא הכרדמ ירוביצ בוחר ןג תרואת דומע 5m קדוהמעצמ תשרדנתופיפצלתקדוהמעקרק הייחמצלןגתמדא טסופמוק זקנ שרגמהמ םימ תאיציל ןוטב תמוחל ץוח חיט 2cm תנמש ןווג טכילש עבצ תרבח"טלרינ" המוחל ץוחו םינפ שיש גניפוק- תיפקיה המוח םימ ףא שיש גניפוק הצברה חיט 2cm םוטיא תחירמ 1 cm ןבאה ןוגיע" ינכמ ןוגיע קבדומ דודיב חול 3cm ןיטנוורט הרוסנ ןבא יופיח 90/60 cm הפופצתקדוהמתיתש רוטקורטסנוקתשירדיפל ןיוזמןוטב 1.5%1.5% ןבל ץוח חיט רמג 2cm ימרט דודיב םיעופיש לקטב 5cm ינכטואיג דב ייחמצל ןג תמדא'ה טסופמוק םוטיא תועירי תוינמוטיב ץצח טבמבתינדאףס ןבל םינפ חיט רמג 2cm הקימרק קבד 1cm םירוטיע הקימרק יופיח תוביתנ הקימרק וקאנ תיבמ. הדמעה ןויליג האר. H=110cm ןלצרופ טינרג ףוציר River Beige תיבמ REFIN קירבמ רומיג 120/120 לוח טיט הקלור הניג ףוצירןיטרוורט יפרומא ךותיחב יטנמצ טיט מ יבועב לוח 6cm תועוקש תוגופ 1cm םוינמולא ליפורפ ריק יופיח ףס יופיחה ךרואל H=110 תכימתל ןוולוגמ ןתיווז םינבלה ע וקוזיחו ןתיווזה לדוג" סנוקה תשירד 'ריקה ןנכתמ ינכמעוביקלגרס םוטיא קיטסמ ירמוטסלא ץוחםינפ צונ ןיטנוורט ןבא ףוציר'ה תודימ W-750301 דודיב תובכש ףצקומ ןריטסלופ םוטיא לילק ליפורפ8380 לילק תיבמ ךסמ ריק SKY8300 לוח טיט 2cm ןלצרופ טינרג ףוציר River Beige תיבמ REFIN קירבמ רומיג 120X120 ןוטב תקיצי תיעבט עקרק החיפת יזגרא 60/30 ירושרש רוניצ םימ לוחלחל טגרגאיולימ טיט לוח תקדוהמעקרק -0.020.00 נק"מ: ןוילג רפסמ: םיאסדנהל רפסה תיב "להנמלהללכמה" ויצל ןושארן ךיראת נק ביבס םישרת" מ2500-1 תונויליג טוריפ: רמג טקייורפ - תיב תסנכ " ןשוחה ינבא " המגמ שאר: ףידחלא קיציא טקיורפה החנמ: רדא'ןהכה השמ היצקורטסנוק גח ליא'יב טקייורפה שיגמ :ףרסא ףסוי ןב תוהז תדועת :חרתבותכריפסתניפןשוחהינבא 1 2 3 4 5 6 7 8 9 10 11 12 13 14 15 16 17 18 19 20 21 22 23 24 25 אלל אשונהאלל רקח חטשחותיפ +גגאהמוק תינכות םורדתיזח ברעמתיזח א +ב-באךתח+ד-דגךתחתויטטסתומיכס הדובע עקרקתינכותהדובע אתינכותהמוק'
הביבסטירשת חטשלתואצמתהןויליגאלל 100-1 100-1 100-1 100-1 100-1 100-1 100-1 50-1 50-1 50-1 50-1 20-1 לכדילןיוצמ תינכת לכדילןיוצמ תינכת 50-1 50-1 50-1 50-1 25-1 לכדילןיוצמ תינכת לכדילןיוצמ תינכת ןוילג םש: וימדה26אלל ןויליגת As indicated 17 06.03.2024 ימוקמ ךתח ןויליג 1 : 25 םיטרפל ינורקע ךתח1 1 1 : 25 םיטרפל ינורקע ךתח2 2
: 5 B טרפ 4 1 5 D טרפ 6 1 5 E טרפ 7
םינפץוח 25
1
1 :
10 A בוחרל תינדא טרפ 5
: 10 F טרפ 8
: 10 טרפH 9
םיטרפל ינורקע ךתח3 3 1
1
1
: 25
1
ךסמ

ישארהליפתםלואשדוקןורא

שדוקהןוראןוויכל

יזכרמהימדההליפתםלואללכ הירלגתמוקללוכ , םישנ תרזע.

יזכרמהימדההליפתםלואלתסינכמ שדוקהןוראןוויכל

הביבסטירשת חטשלתואצמתהןויליגאלל 100-1

ברעמתיזח א +ב-באךתח+ד-דךתחתויטטסתומיכס הדובע עקרקתינכותהדובע אתינכותהמוק' ןופצתיזח א +ב-באךתחתוגרדמ ןויליגתוגרדמ יטרפוןויליגםיכתחם ימוקמךתח הדמעהתינכות הרקתתוינכות הרואתתוינכות

לכדילןיוצמ תינכת לכדילןיוצמ

וציר תוינכותף תוריקתסירפ טיהר וסירפובוציעתוינכותת טיהר םיכתחבוציע-

ריקתסירפ

ןויליגת

266 50 CM 266 50 CM 266 50 CM 266/50CM 26 5 0 CM 66 CM 50CM H=776 +0.00 +0.00 +0.00 930/40 םימוררפסמ םורהבוג 3X1648cm 2X2 5 m הליפת ןחלוש תרבח"איבל" H=70 ישיא בוציעב ןזח תמיב טיהר בוציע ןויליג האר תסנכתיב תורגנ אסיכ לפקתמ דפורמ H=45 ןלצרופטינרגףוציר RiverBeige תיבמ REFIN קירבמרומיג 120/120 הרקת תכמנה ררוחמ יטסוקא סבג H=345 הרקת תכמנה ןבל קלח סבג H=340 הרקת תכמנה ןבל קלח סבג H=776 הרקת תכמנה ןבל קלח סבג H=776 הרקת תכמנה ןבל קלח סבג H=878 הרקת תכמנה ןבל קלח סבג H=1048 ןוטב תוגרדמ שיש יופיח םע םירודיס ןורא םירוזחמו H=160 םירודיס ןורא םירוזחמו H=160 0 65 2 16371407140714071407114027566 64 70 9 7 40 71 0 71 4 71 1 6 5 70 110 113 120 37 7 37 0 5 24 3 40 7 18 הקימרק יופיח יאקורמ ןונגס H=110 הקימרק יופיח םירוטיעםע יאקורמ ןונגס. H=110 תסנכתיב תורגנ אסיכ לפקתמ דפורמ תרבח"איבל" H=45 2976012460124601246013060157 UK=110 H=630 UK=110 H=630 UK=110 H=630 UK=110 H=630 UK=110 H=630 616046 1 57 60 1 0 24 6 124 60 12 0 30 UK=110 H=630 U H UK 110 H 630 UK 11 H 630 UK 110 H 630 UK 110 H 630 UK 110 H 630 274 הליפת םלוא ישאר רטוק ןוטב דומע40 H=394 CM 266 M הסירפ הסירפ סר פ ינורטקלא תועדומ חול 55 קלוחמ ךרואמ ןולח- םיקלח חתפנ ןותחת קלח H=630 O.K= 7.4 UK= 1.10 הפופצהוורפחיטש פילסתיתחתםע תרבחלשהקלחהתעינמל "ASHRAM" :קיתעןווג דורו :2ס"מרעישךרוא מ"וטנ 2230 00 רטוקןוטב דומע40 H=394 רטקלא עד ח 55 הליפתןחלוש תרבח"איבל" H=70 קלוחמךרואמ םיקלחןולחחתפנןותחתקלח H=630 O.K=7.4 UK=1.10 םלואהלכבתונולח םיטבשה קל ךר לח - קלח תחת 630 O 4 UK 1 אה ל ב לח ם שה מ"וטנ220 ר +0.15 +0.50 תסנכ תיב תוכרב טוליש ע"תספדומ תיכוכז לנפ הדמעה ןויליגב הימדה האר ת כ ב כרב ל ע מ פ ה נק"מ: ןוילג רפסמ: םיאסדנהל רפסה תיב "להנמלהללכמה" ויצל ןושארן ךיראת נק ביבס םישרת" מ2500-1 תונויליג טוריפ: רמג טקייורפ - תיב תסנכ " ןשוחה ינבא " המגמ שאר: ףידחלאקיציא טקיורפה החנמ: 'ןהכהרדא השמ היצקורטסנוק ץעוי: גח ליא'יב :ףרסאטקייורפהשיגמ ףסויןב :302121231תוהזתדועת :חרתבותכריפסתניפןשוחהינבא 1 2 3 4 5 6 7 8 9 10 11 12 13 14 15 16 17 18 19 20 21 22 23 24 25 אלל אשונהאלל רקח חטשחותיפ
תינכות
+גגאהמוק
םורדתיזח
100-1 100-1
100-1
50-1 50-1 50-1 50-1 25-1
ןוילג
1 50 18 06.03.2024
+טוהיר
: 50 01עקרק טוהיר הדמעה 1 1 : 50 01 עקרק טוהיר הדמעה ינועבצ 2 םישנ תרזע אסיכ תרבח"איבל" אסיכה ןווגרומיגץע Naturalbeech תסנכה תיבב םיבשומה ללכ דופיר קיתע דורו ןווג םיללפתמ אסיכןטק שרדמ תיבו ישאר םלוא אסיכה ןפוד בוציע רומיג
100-1
100-1
100-1 50-1 50-1 50-1 50-1 20-1
תינכת
לכדילןיוצמ תינכת 10-1 לכדילןיוצמ תינכת
םש: וימדה26אלל
הדמע תינכת
1
תוישיאתודימיפלתורגנ ץעיומדםוינמולאיושע בותיכ "דימתםעידגנלםשה יתיוש" בהזומםוינמולאמיושע ישאר הליפת םלוא רוזבאו טוהיר שדוק ירפסו השודק ישימשתל היירפס תרבח"איבל תשרומ םגד- 0246 תוקיודמ תודימ ינפל ןימזהל ןתינ ריק יופיח- ישאר הליפת םלוא תוריקב. H יופיחה הבוג110= ע ןייוצמ תומוקמ"הדמעה תינכות פ םירוטיע הקימרק יופיח תוביתנ הקימרק וקאנ תיבמ. םירטפנ תומשנ יוליעל תחצנה ץע תרבח"איבל" תרתסנ דל תרואת םע הנבומ עיגמ. סמ ריק תסירפ האר 4 תסנכ תיב תוכרב טוליש ע"תספדומ תיכוכז לנפ ישיא בוציע- תרתסנ הרואת םע ע קלדנ" למשח לבכ י)םיגתמאלל( ןזח תמיבטיהרבוציעןויליגהאר יזכרמ הליפת םלוא תוינמדה
.םישנעהירלגתמוק
N ןויליג םשמ"נק רפסמ ןויליג

הירלג תמוק ףוציר 2

1 : 50

יאלבתומכהדימגוסםילנאפללוכתומכ

ףוצירהנומת

N

:חרתבותכריפסתניפןשוחהינבא

אללאלל

120X120 cm 220 253 50

ןלצרופ טינרג ףוציר River Beige תיבמ REFIN

המגמ שאר:

קיציא טקיורפה החנמ: רדא'ןהכה השמ היצקורטסנוק ץעוי: גח ליא'יב טקייורפה שיגמ :ףרסא ףסוי ןב תוהז תדועת

ןויליג םשמ"נק

הביבסטירשת

אלל אשונהאלל רקח

+עקרקחטשחותיפ +גג'אהמוק תינכות +ןופצםורדתיזח ברעמתיזח א +ב-באךתחג +ד-דגךתחתויטטסתומיכס הדובע עקרקתינכותהדובע אתינכותהמוק' +םורדןופצתיזח

100-1 100-1

חטשלתואצמתהןויליגאלל 100-1 100-1 100-1 100-1 100-1

א +ב-באךתחתוגרדמ ןויליגתוגרדמ יטרפוןויליגםיכתחם

ימוקמךתח +טוהירהדמעהתינכות

וציר תוינכותף

הרקתתוינכות הרואתתוינכות

+םיטרפריקתסירפ

תוריקתסירפ טיהר וסירפובוציעתוינכותת טיהר +םיטרפםיכתחבוציע-

וימדה26אלל ןויליגת

לכדילןיוצמ תינכת לכדילןיוצמ תינכת לכדילןיוצמ תינכת 10-1

לכדילןיוצמ תינכת

8.4המיבהללכלע שדוקהןוראלש

הפופצהוורפחיטש פילסןונתיתחתםע תרבחלשהקלחהתעינמל "ASHRAM "

:קיתעןווג דורו :2ס"מרעישךרוא מ"וטנ8 ר

תוגרדמל חלש יופיח ןוטבמ

הילע תוגרדמל שיש יופיח שדוק ןוראל תיבמ"הרקויה שיש "עבש ראב זב ןווג ןשועמ

תורגנ ןזחל המב טיהר בוציע טרפ האר 6.3 מ"ר +0.00ר.פ -0.15ב.פ +048 ןלצרופטינרגףוציר RiverBeige תיבמ REFIN קירבמרומיג 120X120 שדוקןוראל הילע תוגרדמ שישיופיחםע ןוטבתקיצי +0.50 +0.00ר.פ -0.15ב.פ םימוררפסמ םורהבוג X16= 48cm X29= 58cm הקימרק יופיח יחרזמ ןונגס םירוטיע םע H=110 הקימרק יופיח יחרזמ ןונגס םירוטיע םע H=110 ץע קד תפציר ןלצרופ טינרג ףוציר River Beige תיבמ REFIN קירבמ רומיג 120/120 הפופצהוורפחיטש פילסןונתיתחתםע תרבחלשהקלחהתעינמל "ASHRAM" :קיתעןווג דורו :2ס"מרעישךרוא מ"וטנ 120 120 ןלצרופטינרגףוציר RiverBeige תיבמ REFIN קירבמרומיג 120/120 2 + םישנ תרזע ישאר הליפת םלוא 70 מ"וטנ ףוציר תלחתה תדוקנ תונויליג טוריפ: נק"מ: ןוילג רפסמ: ןוילג םש: םיאסדנהל רפסה תיב "להנמלהללכמה" ויצל ןושארן
רמג טקייורפ - תיב תסנכ " ןשוחה ינבא "
ףידחלא
ךיראת 1 2 3 4 5 6 7 8 9 10 11 12 13 14 15 16 17 18 19 20 21 22 23 24 25
1 : 50
תוינכת 19 06.03.2024
: 50 07 עקרק ףוציר1-50 1
ףוציר
1
קירבמ רומיג 120/120 מ"ר
רפסמ ןויליג

הביבסטירשת חטשלתואצמתהןויליגאלל 100-1 100-1

תינכות םורדתיזח ברעמתיזח א +ב-באךתח+ד-דךתחתויטטסתומיכס הדובע עקרקתינכותהדובע אתינכותהמוק' ןופצתיזח א +ב-באךתחתוגרדמ ןויליגתוגרדמ יטרפוןויליגםיכתחם ימוקמךתח הדמעהתינכות הרקתתוינכות הרואתתוינכות

וציר תוינכותף תוריקתסירפ טיהר וסירפובוציעתוינכותת טיהר םיכתחבוציע-

ריקתסירפ

וימדה26אלל

100-1

100-1 100-1

100-1 100-1 50-1 50-1 50-1 50-1 20-1 לכדילןיוצמ תינכת לכדילןיוצמ תינכת 50-1 50-1 50-1 50-1 25-1 לכדילןיוצמ תינכת 10-1 לכדילןיוצמ תינכת ןוילג םש:

B-B ךתח םלוא ישאר 1-50 B-B ךתח םלוא ישאר 1-50 A-A ךתח הרקת םלוא ישאר 1-50 A-A ךתח הרקת םלוא ישאר 1-50 הרקת תכמנה ררוחמ יטסוקא סבג H=345 הרקת תכמנה ןבל קלח סבג H=340 הרקת תכמנה ןבל קלח סבג H=776 הרקת תכמנה ןבל קלח סבג H=776 הרקת תכמנה ןבל קלח סבג H=878 הרקת תכמנה רניס H=329 הרקת תכמנה ןבל קלח סבג H=1048 הרקת םיעוקש םיטופס H=340 ןשע יאלג דל הרואת יספ סבגב םיעוקש H=345 ריווא תאיציסירת ריווא תאיציסירת ריווא תאיציסירת 39955101518422234 2 6 110 120 5 8 87 2 2 44 8 928 89 353 Bךתח םלוא ישאר 1-50 Bךתח םלוא ישאר -50 A-A ךתח הרקת םלוא ישאר 1-50 -A ךתח הרקת םלוא ישאר -50 הרקת תכמנה ררוחמ יטסוקא סבג H=345 הרקת תכמנה ןבל קלח סבג H=776 הרקת תכמנה ןבל קלח סבג H=776 הרקת תכמנה ןבל קלח סבג H=878 הרקת תכמנה רניס H=329 הרקת תכמנה ןבל קלח סבג H=1048 ןשע יאלג דל הרואת יספ סבגב םיעוקש הרקת תכמנה רניס H=768 הרקת תכמנה רניס H=768 הרקת תכמנה רניס H=872 ןשע יאלג דל הרואת יספ סבגב םיעוקש 276 372 2 7 8 29 6 148 ריווא תאיציסירת ריווא גוזימ ריווא תאיציסירת ריווא תאיציסירת ריווא תאיציסירת ריווא גוזימ ריווא תאיציסירת םיטופס תרואת םיטופס תרואת םיטופס תרואת 34114 +10.48 +9.18 +8.72+8.78 +7.68 +8.26 +7.68 +9.38 +3.29 +3.94 +4.29 183222168127833935523421520 +3.40353405435347502012240+3.45 תרתסנדל תרואת H=340 +7.68 +10.80 +9.50 +9.86 +6.29 הרקת תכמנה ררוחמ יטסוקא סבג H=345 הרקת תכמנה ןבל קלח סבג H=340 הרקת תכמנה רניס H=329 הרקת תכמנה ןבל קלח סבג H=340 הרקת תכמנה ןבל קלח סבג H=776 הרקת תכמנה ןבל קלח סבג H=878 הרקת הפציר H=1048 הרקת תכמנה רניס H=768 הרקת תכמנה רניס H=872 40 +10.98+10.98 +7.80 +7.76 +7.76 +9.18 +7.68 +8.72+8.78 +8.26 +7.76 +9.18 +10.48 +9.38 +8.78 +8.26 +10.80 +10.98 +9.86 +8.58 +9.50 +7.68+7.68 +9.86 +9.50 +8.58 +9.86 נק"מ: ןוילג רפסמ: םיאסדנהל רפסה תיב "להנמלהללכמה" ויצל ןושארן ךיראת נק ביבס םישרת" מ2500-1 תונויליג טוריפ: רמג טקייורפ - תיב תסנכ " ןשוחה ינבא " המגמ שאר: ףידחלאקיציא טקיורפה החנמ: 'ןהכהרדא השמ היצקורטסנוק ץעוי: גח ליא'יב :ףרסאטקייורפהשיגמ ףסויןב :302121231תוהזתדועת :חרתבותכריפסתניפןשוחהינבא 1 2 3 4 5 6 7 8 9 10 11 12 13 14 15 16 17 18 19 20 21 22 23 24 25 אלל אשונהאלל רקח
חטשחותיפ +גגאהמוק
ןויליגת 1 50 20 06.03.2024 הרקת תוינכת 150 עקרק הרקת תינכת 1 150 א המוק הרקת תינכת 2 150 A-A ישאר םלוא הרקת ךתח50-1 3 150 B-B ישאר םלוא הרקת ךתח50-1 4 ןתינ םהבש תוימדה הרקתה תא תוארל ןויליג םשמ"נק רפסמ ןויליג N

50 עקרק הרואת תינכת 1

:חרתבותכריפסתניפןשוחהינבא אלל

1

אשונהאלל רקח חטשחותיפ +גגאהמוק תינכות םורדתיזח ברעמתיזח א +ב-באךתח+ד-דךתחתויטטסתומיכס הדובע עקרקתינכותהדובע אתינכותהמוק' ןופצתיזח א +ב-באךתחתוגרדמ ןויליגתוגרדמ יטרפוןויליגםיכתחם ימוקמךתח הדמעהתינכות הרקתתוינכות הרואתתוינכות

ריקתסירפ

N

100-1 100-1 100-1 100-1 100-1 100-1 100-1 50-1 50-1 50-1 50-1 20-1 לכדילןיוצמ תינכת לכדילןיוצמ תינכת 50-1 50-1 50-1 50-1 25-1 לכדילןיוצמ תינכת 10-1 לכדילןיוצמ תינכת ןוילג םש: וימדה26אלל

1 50 21 06.03.2024 הרואת תינכת +למשח

הרקת תכמנה ררוחמ יטסוקא סבג H=345 הרקת תכמנה ןבל קלח סבג H=340 הרקת תכמנה ןבל קלח סבג H=776 הרקת תכמנה ןבל קלח סבג H=776 הרקת תכמנה ןבל קלח סבג H=878 הרקת תכמנה רניס H=329 הרקת תכמנה ןבל קלח סבג H=1048 הרקת םיעוקש םיטופס H=340 ןשע יאלג דל הרואת יספ סבגב םיעוקש H=345 ריווא תאיציסירת ריווא תאיציסירת a1 a1 a1 a1 a1 a1 a1 a1 a1 a1 a2 a2 a2 a2 a2 a2 a2 a2 a2 a2a2a2a2 a3 a3 a3 a3 a3 a3 a3 a3 a3 ןוטבדומע עקרק המוק 175 359 262 479 340 554 408 467 514 549 2 102 10 102 02 102 1 2 0 2 1 5 9 8 595 7838 572 581 637 727 822 921 הרקת םיעוקש םיטופס H=340 תודימל רזע וק תודימל רזע למשח תדוקנ ןומיס 90909033 49 3549110110110160 30 75 7 75 7 7 75 75 5594 693 55 20 81 90 5 48 11 5 3 102 162 216 262 299 328 347 356 469 416 357 292 למשח תדוקנ ןומיס 1 a2 a b1 b 3 c1 c 3 הרקת תכמנה רניס H=329 הרקת תכמנה ןבל קלח סבג H=1048 הרקת תכמנה רניס H=768 הרקת תכמנה רניס H=768 הרקת תכמנה רניס H=872 b1 b1 b1 b1 b1 b1 b1 b1 b1 b1 b1 b1 b1 b1 b1 b1 b1 b1 b1 b1 b1 b1 b1 b1 b1 b1 b1 b1 b1 b1 b1 b1 b1 b1 b1b1 b1 b1 b2 b2 b2 b2 b2 b2 b2 b2 b2 b2 b2 b2b2b2 c2 c2 c2 c2c2c2 c3 c3 c3 c3 c3 c3 c3 c3 c3 c3 c1 c1 b1 b1 הרקת תכמנה ןבל קלח סבג H=776 הרקת תכמנה ןבל קלח סבג H=878 הרקת תכמנה ןבל קלח סבג H=878 הרקת תכמנה ןבל קלח סבג H=776 הרקת תכמנה ןבל קלח סבג H=776 הרקת תכמנה ןבל קלח סבג H=776 הרקת תכמנה ןבל קלח סבג H=878 הרקת תכמנה ןבל קלח סבג H=878 13 00 300 00 168 14 5 0 150 15 150 1 0 150 15 0 24 00 300 3 0 2 0 3 30 120 30 5 90 20 2 0 2 0 תודימל רזע ייוק 367 327 299 250 29029030045 130300300300168 45 30150150150150150150150118 145145 130230300300300116290290290245245 230 290290290145 180 180 9595 125300300 300 40 145145 300 40 14 75 3 0 300 00 300 275 0 30 175 1 170 895 35 ןשע יאלג ןשע יאלג ןשע יאלג ןשע יאלג ןשע יאלג םיטופס תרואת םיטופס תרואת םיטופס תרואת דל הרואת יספ סבגב םיעוקש דל הרואת יספ סבגב םיעוקש דל הרואת יספ סבגב םיעוקש רילדנש תרונמ הרואת ןויליגב תודימ האר רילדנש תרונמ הרואת ןויליגב תודימ האר דדובעקש םימןגומעקש ןגזמעקש תוזאפ העובקלמשחתדוקנ דדובקספמ לופכקספמ ףלחתמקספמ רמיד ןגומקספמ תיריקהרואת תיתרקתהרואת תרושקתתדוקנ הנטנא ןופלט לוקמר ןגומלוקמר ןומעפ הקעזאדדוקמ ןשעיאלג םוקרטניא היטבמארונת הטנו ררוואמ הרואתםעררוואמ למשחארקמ דדובקספמ לופכקספמ ףלחתמקספמ רמיד ןגומקספמ תיריקהרואת תיתרקתהרואת הרואתםעררוואמ הרואתארקמ נק"מ: ןוילג רפסמ: םיאסדנהל רפסה תיב "להנמלהללכמה" ויצל ןושארן ךיראת נק ביבס םישרת" מ2500-1 תונויליג טוריפ: רמג טקייורפ - תיב תסנכ " ןשוחה ינבא " המגמ שאר: ףידחלאקיציא טקיורפה החנמ: 'ןהכהרדא השמ היצקורטסנוק ץעוי: גח ליא'יב :ףרסאטקייורפהשיגמ
ףסויןב :302121231תוהזתדועת 2 3 4 5 6 7 8 9 10 11 12 13 14 15 16 17 18 19 20 21 22 23 24 25
וציר תוינכותף תוריקתסירפ טיהר וסירפובוציעתוינכותת טיהר םיכתחבוציע-
הביבסטירשת חטשלתואצמתהןויליגאלל
ןויליגת
50 א המוק הרואת תינכת 2
1 :
1 :
ןויליג םשמ"נק רפסמ ןויליג

:חרתבותכריפסתניפןשוחהינבא אלל

1

ריקתסירפ

4 5

100-1 100-1 100-1 100-1 100-1 100-1 100-1 50-1 50-1 50-1 50-1 20-1 לכדילןיוצמ תינכת לכדילןיוצמ תינכת 50-1 50-1 50-1 50-1 25-1 לכדילןיוצמ תינכת 10-1 לכדילןיוצמ תינכת ןוילג

תוריק תסירפ

1 25 22 06.03.2024

דל הרואת יספ סבגב םיעוקש םיטופס תרואת סבג תכמנהב עוקש טיט ןלצרופטינרגףוציר RiverBeige תיבמ REFIN קירבמרומיג 120/120 לוח תסנכ תיבטוליש הדמעה ןויליגב הלדגה האר 120X80cm הקימרק יופיח םירוטיעםע H=110 לפקתמ תסנכ תיבאסיכ הדמעה ןויליגבהלדגה האר שלושמ עקש H=180 הנירטיו תונולח UK=110 H=630 םוינמלא ליפורפ הנירטיותרגסמ 50x150 mm םירודיס ןורא םישמוחו םירוזחמ H=160 +1.10 +3.20 +7.40 +7.76 +8.26 +0.00 ןוטב ןוטב הרקת תכמנה קלח ןבל סבג H=776 םוינמולא פילורפ תויכוכזה ןיב ןבלחיט רמג 2cm ןבלחיט רמג 2cm שלושמ עקש H=180 +2.00 תסנכ תיב טוליש ישיא בוציע ןויליגב הלדגה האר הדמעה 120X80cm הקימרק יופיח םירוטיע םע הדמעה תינכות האר H=110 םוינמלא ליפורפ 50x150 mm הנירטיו תרגסמ םוינמולא פילורפ תויכוכזה ןיב ןבלחיט רמג 2cm קולב ריק 20cm +ןבל חיט רמג 2cm ןוטב ןלצרופ טינרג ףוציר River Beige תיבמ REFIN קירבמ רומיג 120/120 לוח ןבלחיט רמג 2cm םוינמולא ליפורפ ץע יומד לולח 150X100mm לפקתמ תסנכ תיבאסיכ הדמעה ןויליגבהלדגה האר +7.68 +7.76 +2.88 +2.00 +8.26 +3.68 +6.11 +6.29 +8.58 +8.58 +7.40 +1.10 שלושמ עקש H=180 שלושמ עקש H=180 +3.20 +8.78 +8.26 +9.18 ןבלחיט רמג 2cm ןשע יאלג הרואת יספ סבגב םיעוקש םיטופס תרואת סבג תכמנהב עוקש הרקת תכמנה קלח ןבל סבג H=776 הרקת תכמנה רניס H=768 םימוררפסמ םורהבוג 111616 3232 +0.43 חיטש יופיח קיתע דורו ןווג +8.46 +8.46 460 80 תיפנכ וד תלד הליסמ לע תתרגנ ןשע יאלג הנירטיותיכוכז 0.8mm םוינימולא יליפורפ תרגסמ םע +7.68+7.68 +7.76 +9.18 +7.68 +7.40 +7.40 +1.10 הליפת ןחלוש H=70 ןוטב תקיצי סבג לולסמ 5cm תכמנהל םיבצינ סבג תרקת דל הרואת יספ סבגב םיעוקש םיטופס תרואת סבג תכמנהב עוקש ןלצרופ טינרג ףוציר River Beige תיבמ REFIN קירבמ רומיג 120/120 תסנכ תיבטוליש ישיא בוציע הדמעה ןויליגב הלדגה האר 120X80cm הקימרק יופיח םירוטיע םע הדמעה תינכות האר H=110 לפקתמ תסנכ תיבאסיכ הדמעה ןויליגבהלדגה האר הנירטיו תונולח UK=110 H=630 םוינמלא ליפורפ 50x150 mm הנירטיו תרגסמ םירודיס ןורא םישמוחו םירוזחמ H=160 טיט לוח םוינמולא פילורפ תויכוכזה ןיב +7.40 +3.20 +1.10 +2.00 +7.68 +7.96 ריווא גוזימ חתפ +7.76 +8.26 הרקת תכמנה קלח ןבל סבג H=776 ןבלחיט רמג 2cm ןבלחיט רמג 2cm הרקת תכמנה רניס H=768 +7.82 שלושמ עקש H=180 שלושמ עקש H=180 שלושמ עקש H=180 ןוטב ןוטב הליפת ןחלוש H=70 +1.60 +0.00 קולב ריק 20cm +ןבל חיט רמג 2cm נק"מ: ןוילג רפסמ: םיאסדנהל רפסה תיב "להנמלהללכמה" ויצל ןושארן ךיראת נק ביבס םישרת" מ2500-1 תונויליג טוריפ: רמג טקייורפ - תיב תסנכ " ןשוחה ינבא " המגמ שאר: ףידחלאקיציא טקיורפה החנמ: 'ןהכהרדא השמ היצקורטסנוק ץעוי: גח ליא'יב :ףרסאטקייורפהשיגמ
2 3
ףסויןב :302121231תוהזתדועת 6 7 8 9 10 11 12 13 14 15 16 17 18 19 20 21 22 23 24 25
אשונהאלל רקח חטשחותיפ +גגאהמוק תינכות םורדתיזח ברעמתיזח א +ב-באךתח+ד-דךתחתויטטסתומיכס הדובע עקרקתינכותהדובע אתינכותהמוק' ןופצתיזח א +ב-באךתחתוגרדמ ןויליגתוגרדמ יטרפוןויליגםיכתחם ימוקמךתח הדמעהתינכות הרקתתוינכות הרואתתוינכות
וציר תוינכותף תוריקתסירפ טיהר וסירפובוציעתוינכותת טיהר םיכתחבוציע-
1 : 25 הסירפ1 1
25 הסירפ2 2
: 25 הסירפ3 3
הביבסטירשת חטשלתואצמתהןויליגאלל
םש: וימדה26אלל ןויליגת
1 :
1
ןויליג םשמ"נק רפסמ ןויליג

הביבסטירשת חטשלתואצמתהןויליגאלל

אשונהאלל רקח חטשחותיפ +גגאהמוק תינכות םורדתיזח ברעמתיזח א +ב-באךתח+ד-דךתחתויטטסתומיכס הדובע עקרקתינכותהדובע אתינכותהמוק' ןופצתיזח א +ב-באךתחתוגרדמ ןויליגתוגרדמ יטרפוןויליגםיכתחם ימוקמךתח הדמעהתינכות הרקתתוינכות הרואתתוינכות

ריקתסירפ

וציר תוינכותף תוריקתסירפ טיהר וסירפובוציעתוינכותת טיהר םיכתחבוציע-

לכדילןיוצמ תינכת לכדילןיוצמ תינכת

הרקת תכמנה ררוחמ יטסוקא סבג H=345 ןשע יאלג דל הרואת יספ סבגב םיעוקש םיטופס תרואת סבג תכמנהב עוקש ןשע יאלג +3.40 +3.94 +3.40 +3.45 ןוטב טיט ןלצרופטינרגףוציר RiverBeige תיבמ REFIN קירבמרומיג 120/120 םישנ תרזע הרואתיספ סבגבםיעוקש םיטופסתרואת סבגתכמנהבעוקש ןוטב שלושמ עקש H=180 שלושמ עקש H=180 ילטיגיד תועדומ חול 55 הרקת תכמנה רניס H=329 םישנ תרזע תיכוכז הקעמ H=150 ןבלחיט רמג 2cm דל תרואת ספ תרתסנ םירודיס ןורא םישמוחו םירוזחמ H=160 לוח ןגזמל רורווא חתפ +7.76 +8.26 +4.29 +0.00 טיט ןלצרופ טינרג ףוציר River Beige תיבמ REFIN קירבמ רומיג 120/120 לוח תומשנתחצנה ץע טוהירו הדמעה תינכתהאר ישאר הליפת םלוא +1.60 +1.30 +1.00 +0.70 +0.40 +0.10 ןשע יאלג 23 םוינמולא די זחאמ תיכוכזה לע שבלומ 23 םיטופס תרואת סבג תכמנהב עוקש םיטופס תרואת סבג תכמנהב עוקש םיטופס תרואת סבג תכמנהב עוקש ןשע יאלג הרקת תכמנה קלח ןבל יטסוקא סבג H=340 ןוטב 10 cm 70 תרתסנ הרואת ליפורפ דנוברוא תרבח 50 10 50 תרתסנדל תרואת חיט 2cm ןוטב תרקת - םישנ תרזע הפציר 105 קלח ןבל +3.40 +3.92 +3.29 לוח טיט ןלצרופ טינרג ףוציר River Beige תיבמ REFIN קירבמ רומיג 120/120 חיט 2cm +4.29 +4.59 הירלג תמוקםישנ תרזע יזכרמ הליפת םלוא םינפ חיט 2cm ןוגיע גרוב תיכוכזהקעמ ליפורפ ןוטבל לא םוינמולא ליפורפ-דלח םוינמולא זחאמ תיכוכזה לע שבלומ 4x4cm תיבלח תיכוכז הקעמ 1.8 mm H=120 0.8 יונב הקעמ H=30 עופיש1.5%עופיש 1.5% םינפ חיט ןוטב תרקת רמיירפ םיעופיש לקטב הדלפ תשר םע רמיירפ תוינמוטיבםוטיא תועירי ןוולוגמ חפמ תשר עבוכ םוטיא קיטסמ םוינמולא חפמ לגרס+ ןוגיעל גרוב ןוולוגמ חפ ןוולוגמ חפ הקלור 5X5cm תינמוטיב רוזיח תעירי ןיטנוורט הרוסנ ןבא יופיח 90/60 cm קבדומ דודיב חול 3cm ןבאה ןוגיע"ינכמ ןוגיע םוטיא תחירמ cm הצברה חיט 2cm 2202 ןוטב בוכרכ ןוטב בזרמ4" קלח ןבל חיט רמג 2cm יטסוקא סבג תרקת תכמנה קלח ןבל הנתשמ הניפ סבגבםירוביח תריגסל סבג תרקת תכמנהל םוינמולא בצינ 7cm סבג תרקת תכמנהל םוינמולא לולסמ 5cm הליפת םלוא יזכרמ גגה םינפ ץוח נק"מ: ןוילג רפסמ: םיאסדנהל רפסה תיב "להנמלהללכמה" ויצל ןושארן ךיראת נק ביבס םישרת" מ2500-1 תונויליג טוריפ: רמג טקייורפ - תיב תסנכ " ןשוחה ינבא " המגמ שאר: ףידחלאקיציא טקיורפה החנמ: 'ןהכהרדא השמ היצקורטסנוק ץעוי: גח ליא'יב
:חרתבותכריפסתניפןשוחהינבא 1 2 3 4 5 6 7 8 9 10 11 12 13 14 15 16 17 18 19 20 21 22 23 24 25 אלל
:ףרסאטקייורפהשיגמ ףסויןב :302121231תוהזתדועת
100-1 100-1 100-1 100-1 100-1 100-1 100-1 50-1 50-1 50-1 50-1
50-1 50-1 50-1 25-1 לכדילןיוצמ תינכת 10-1 לכדילןיוצמ תינכת ןוילג םש: וימדה26אלל ןויליגת As indicated 23 06.03.2024 ריק תסירפ +םיטרפ 1 : 20 הסירפ4 4 1 : 5 ריק תסירפ4 א 1 1 : 5 ריק תסירפ4 ב 2 + ריק תסירפ םיטרפ 2 ןויליג םשמ"נק רפסמ ןויליג
20-1
50-1

תיביטקורטסנוק

וציר תוינכותף תוריקתסירפ טיהר וסירפובוציעןויליג םשמ"נק רפסמ ןויליג

תוינכותת טיהר םיכתחבוציע-

ךתח בחור תמיב ןזח ךתח בחור תמיב ןזח ךתח ךרוא תמיב ןזח ךתח ךרוא תמיב ןזח 7.5 ןזחתמיב 61 274 0 62 148 0 0 2 62 2 24 16 1 4 16 4 6 41 2 60 23 4 16 4 16 4 16 4 16 4 6 4 16 4 16 4 16 4 16 4 16 4 16 4 16 4 16 4 3 2 46 622 2 10 2 5 0 50 5 50 5 50 5 50 11 5 2 10 2 2 6 2 222 2 6 2 222 83 2 80 2 83 2 5 236 5 2 10 10 2 5 260 5 2 1 2 8 2 8 2 7 קיתע דורועבצ דפורמאסיכ םיללפתמהתואסיכלההז 50/46 ןזחתמיבתינורא החיתפ"הציחלב ץיפק תוידי אלל תידי ןוילעתיכוכזיופיח 2cm הרטפהלתוכרבטוליש הרותלהילעתוכרבטוליש 10 90 90 ןזחתדמע H=90 ימדיקץעגניפוק 3cm טוליש הרותלהילע תוכרב דוד ןגמ בהזומםוינמולא יליפורפמ 30/30/1mm םירוטיע םע ספיספתשר ישאר םלוא ריקיופיחלההז ץע ליפורפטנאק 5cm םידפורמםיבשומ םיללפתמהדופירלההזדופיר H=47 ןזחתמיבבשומלדיתנעשמ ירוחא ץע גניפוק 3cm תודוסיהתענצהרניס ץע חול 10/5cm םיביטרוקד ץעילילג 4/15cm םירוטיע םע ספיספתשר ישאר םלוא ריקיופיחלההז 2553153895510 ןזחתמיבתינורא החיתפ"הציחלב ץיפק תוידי אלל 3880510 2553153843880510 ימדיקץעגניפוק 3cm טוליש הרותלהילע תוכרב טוליש הרטפהלתוכרב דוד ןגמ בהזומםוינמולא יליפורפמ 30/30/1mm םירוטיע םע ספיספתשר ישאר םלוא ריקיופיחלההז ץע ליפורפטנאק 5cm םידפורמםיבשומ םיללפתמהדופירלההזדופיר H=47 ןזחתמיבבשומלדיתנעשמ ירוחא ץע גניפוק 3cm תודוסיהתענצהרניס ץע חול 10/5cm 2045510 םיביטרוקד ץעילילג 4/15cm ימדיקץעגניפוק 3cm טוליש הרותלהילע תוכרב טוליש הרטפהלתוכרב םירוטיע םע ספיספתשר ישאר םלוא ריקיופיחלההז ץע ליפורפטנאק 5cm תודוסיהתענצהרניס ץע חול 10/5cm ןזחתמיבתינורא ע החיתפ"הציחלב ץיפק תוידי אלל 2553153895510 3031538425795510 םיביטרוקד ץעילילג 4/15cm הדלפ ידומע RHS30/30mm נק"מ: ןוילג רפסמ: םיאסדנהל רפסה תיב "להנמלהללכמה" ויצל ןושארן ךיראת נק ביבס םישרת" מ2500-1 תונויליג טוריפ: רמג טקייורפ - תיב תסנכ " ןשוחה ינבא " המגמ שאר: ףידחלא קיציא טקיורפה החנמ: רדא'ןהכה השמ היצקורטסנוק גח ליא'יב טקייורפה שיגמ :ףרסא ףסוי ןב תוהז תדועת :חרתבותכריפסתניפןשוחהינבא 1 2 3 4 5 6 7 8 9 10 11 12 13 14 15 16 17 18 19 20 21 22 23 24 25 אלל אשונהאלל רקח חטשחותיפ +גגאהמוק תינכות םורדתיזח ברעמתיזח א +ב-באךתח+ד-דגךתחתויטטסתומיכס הדובע עקרקתינכות-
ריקתסירפ הביבסטירשת חטשלתואצמתהןויליגאלל 100-1 100-1 100-1 100-1 100-1 100-1 100-1 50-1 50-1 50-1 50-1 20-1 לכדילןיוצמ תינכת לכדילןיוצמ תינכת 50-1 50-1 50-1 50-1 25-1 לכדילןיוצמ תינכת לכדילןיוצמ תינכת ןוילג םש: וימדה26אלל ןויליגת 1 : 10 24 06.03.2024 טיהר תוינכות+בוציעתוסירפ ןזח תמיב היימדה1-10 1 1 : 10 ןזח תמיב טיהר בוציע תינכות 2 1 : 10 ןזח תמיב דצ הסירפ- 3 3 1 : 10 ןזח תמיב תירוחא הסירפ- 4 4 1 : 10 ןזח תמיב תימדק הסירפ- 6 6
הדובע אתינכותהמוק' ןופצתיזח א +ב-באךתחתוגרדמ ןויליגתוגרדמ יטרפוןויליגםיכתחם ימוקמךתח הדמעהתינכות הרקתתוינכות הרואתתוינכות היימדה 13

1 :

1 : 10

1

:

םיליפורפה ללכ RHS30/30/3

תמיב8

1

טיהריטרפ /1:2מ1:5

טרפEןזח תמיב9

1 :

1 :

:

ןויליג םשמ"נק רפסמ ןויליג

הביבסטירשת חטשלתואצמתהןויליגאלל

אשונהאלל רקח חטשחותיפ +גגאהמוק תינכות םורדתיזח ברעמתיזח א +ב-באךתח+ד-דךתחתויטטסתומיכס הדובע עקרקתינכותהדובע אתינכותהמוק' ןופצתיזח א +ב-באךתחתוגרדמ ןויליגתוגרדמ יטרפוןויליגםיכתחם ימוקמךתח הדמעהתינכות הרקתתוינכות הרואתתוינכות

ריקתסירפ

וציר תוינכותף תוריקתסירפ טיהר וסירפובוציעתוינכותת טיהר םיכתחבוציע-

1 2 3 4 5 6 7 8 9 10 11 12 13 14 15 16 17 18 19 20 21 22 23 24 25 אלל

טיהר םיכתח+בוציעםיטרפ

25

נק"מ: ןוילג רפסמ: םיאסדנהל רפסה תיב "להנמלהללכמה" ויצל ןושארן ךיראת נק ביבס םישרת" מ2500-1 תונויליג טוריפ: רמג טקייורפ - תיב תסנכ " ןשוחה ינבא " המגמ שאר: ףידחלאקיציא טקיורפה החנמ: 'ןהכהרדא השמ היצקורטסנוק ץעוי: גח ליא'יב :ףרסאטקייורפהשיגמ ףסויןב :302121231תוהזתדועת

100-1 100-1 100-1 100-1 100-1 As indicated

ימדיקץעגניפוק 3cm טוליש הרותלהילעתוכרב דוד ןגמ בהזומםוינמולא יליפורפמ 30/30/1mm םירוטיעםעספיספתשר ישארםלואריקיופיחלההז ץעליפורפטנאק 5cm םידפורמםיבשומ םיללפתמהדופירלההזדופיר H=47 ןזחתמיבבשומלדיתנעשמ ירוחאץעגניפוק 3cm תודוסיהתענצהרניס ץע חול 10/5cm םיביטרוקדץעילילג 4/15cm םירוטיעםעספיספתשר ישארםלואריקיופיחלההז ןזחתמיבתינורא ע החיתפ"הציחלב ץיפק תוידי אלל ןזחתמיבתדמע תיכוכזחטשמיופיחםע H=90 יליפורפ RHS30/30 ליפורפ RHS30/30 ישארהליפתםלוא תצירלםינגועמ טיט ישארהליפתםלואףוציר ןוסחאחטש ןוסחאחטש 25 25 9 25 3411 21624515 388051034 25 גופס 8mm טקרפ 8mm דובר ץע 34mm ןוטב לוח ימדיקץעגניפוק 3cm טוליש הרותלהילעתוכרב טוליש הרטפהלתוכרב םירוטיעםעספיספתשר ישארםלואריקיופיחלההז ץעליפורפטנאק 5cm תודוסיהתענצהרניס ץע חול 10/5cm ןזחתמיבתינורא החיתפ"הציחלב ץיפק תוידי אלל םיביטרוקדץעילילג 4/15cm יליפורפ RHS30/30 ליפורפ RHS30/30 ישארהליפתםלוא תצירלםינגועמ טרפהארC 25 ןזחתמיבתדמע תיכוכזחטשמיופיחםע H=90 ימינפףדמ ןוסחיאתינורא גופס 0.8cm טקרפ 0.8cm דוברץע 2.2cm ןוטב לוח הליפת םלוא ףוציר 201122733.4 0.80.8 95 +0.00 דוברץע 34mm גופס 8mm טקרפ 8mm ןולאץעחול 22mm 510 0.80.8 יליפורפ RHS30/30/3 הליפתםלואףוציר לוחטיט םיליפורפךותיר +0.15 10 2622 ןוסחאחטש ימדיק ץע גניפוק 3cm יביטרוקד לילג 4/15cm םירוטיע םע ספיספ תשר ישאר םלוא ריק יופיחל ההז 0.8mm הדלפ תרגסמ ספיספ תשרל תבשות 0.2mm ליפורפ RHS 30/30/3 םיליפורפ ךותיר ןזח תדמע תיכוכז יופיח +1.05 +1.21 +1.39 +1.10 +1.02 83153525 הרותל הילע תוכרב טוליש 25/15/1cm טקרפ 8mm גופס 8mm דובר ץע 34mm ליפורפ RHS 30/30/3 םיליפורפ ךותיר הליפת םלוא ףוציר טיט לוח ןוטב +0.15 +0.00 ןוטבל ליפורפה ןוגיע 201122733.4 ליפורפ RHS 30/30/3 םירוטיע םע ספיספ תשר ישאר םלוא ריק יופיחל ההז 0.8mm ירוחא ץע גניפוק 3cm הדלפ תרגסמ ספיספ תשרל תבשות 0.2mm +1.06 +0.95 38 לוח הליפת םלוא ףוציר טיט ליפורפ RHS 30/30/3 םיליפורפה ךותיר ץע ליפורפ טנק 5cm 221052 +0.00 +0.15 H=10 H10 H10 H10 H4 H4 H=44 H44 תפצירלןגועמ הליפתםלוא תפצירלןגועמ הליפתםלוא תפצירלןגועמ הליפתםלוא תפצירלןגועמ הליפתםלוא H10 H H10 H10 H10 H10 H10 H1 H10 H10 H 0 H10 H 02 H=10 H102 H102 H 2 H=102 H102 H102 H102 H102 H10 H=93 H 3 H=93 H93 H93 H93 H=93 H93 H=93 H=93 H=10
ע םירבוחמ"ךותיר י 10
10
ןזח תמיב ךרוא ךתח 2
5
ןזח תמיב בחור ךתח 3
1
5
טרפAןזח תמיב5
5
טרפBןזח תמיב6
: 2
טרפCןזח תמיב7
טרפDןזח
1 : 5
תיביטקורטסנוק תינכות 10
:חרתבותכריפסתניפןשוחהינבא
100-1 100-1 50-1 50-1 50-1 50-1 20-1 לכדילןיוצמ תינכת לכדילןיוצמ תינכת 50-1 50-1 50-1 50-1 25-1 לכדילןיוצמ תינכת 10-1 לכדילןיוצמ תינכת ןוילג םש: 06.03.2024
וימדה26אלל ןויליגת

Turn static files into dynamic content formats.

Create a flipbook
Issuu converts static files into: digital portfolios, online yearbooks, online catalogs, digital photo albums and more. Sign up and create your flipbook.
ben yossef asraf - REVIT by ish-revit - Issuu