ARCH Irit Ahiel - Interior

Page 1

ןוילג רפסמ: ןוילגה םש: טקייורפה הרודהמ רפסמ: נק"מ: לאיחא תיריע , תילכירדא 052.3993170 תודימה לכ תקידבל יארחא עצבמה . עידוהל וילע ,המאתה יא וא תועט לכ לע עוציבה ךשמה ינפל תננכתמל ע תודימ יעבקל ןיא " טוטרשב הדימ י . לש יטרפה השוכר תוראשנ תוינכתה תננכתמה 'פשמ סנוטסנילפ רעש ףד 0100 13.11.22 ןויעל ביבא לת תונויליג תמישר ןויליג 'סמןויליגה םש: 00 רעשףד 01 םייק בצמ 02 תרחבנ היצפוא 03 תוביטקפסרפ 04 ןלבקל הדמעה 05 הסירה 06 היינב 07 למשח 08 היצלטסניא 09 ףוציר 10 םיכתח 12 םיתורישו תחלקמ 13 הרואתו הביטקפסרפ 14 ריווא גוזימ 15 תוכמנה 16 ףוצירו תוריקתמישר 17 היצלטסניא תמישר 18 הרואתו למשח תומישר 19 תורגנ תוינפה
256 80108010.5 387.5 298.5 12297.5 10 389.5 1019710 392.5 815 249.5 210 778476.5 243 911 1076.5 210 568.51078728010 367 297.5 12 2 1 0 72 226.5 הסירהל חבטמ הסירהלםיתורישו תחלקמ , יופיחללוכ יריק תוירטינס תועובק וכו ףוציר' הסירהלריק הסירהלריק ןוילג רפסמ: ןוילגה םש: טקייורפה םש: הרודהמ רפסמ: נק"מ: לאיחא תיריע , תילכירדא 052.3993170 תודימה לכ תקידבל יארחא עצבמה . עידוהל וילע ,המאתה יא וא תועט לכ לע עוציבה ךשמה ינפל תננכתמל ע תודימ יעבקל ןיא " טוטרשב הדימ י . לש יטרפה השוכר תוראשנ תוינכתה תננכתמה 1 : 50 'פשמ סנוטסנילפ םייק בצמ 0101 13.11.22 ןויעל ביבא לת
ןוילג רפסמ: ןוילגה םש: טקייורפה םש: הרודהמ רפסמ: נק"מ: לאיחא תיריע , תילכירדא 052.3993170 תודימה לכ תקידבל יארחא עצבמה . עידוהל וילע ,המאתה יא וא תועט לכ לע עוציבה ךשמה ינפל תננכתמל ע תודימ יעבקל ןיא " טוטרשב הדימ י . לש יטרפה השוכר תוראשנ תוינכתה תננכתמה 1 : 50 'פשמ סנוטסנילפ תרחבנ היצפוא 0102 13.11.22 ןויעל ביבא לת
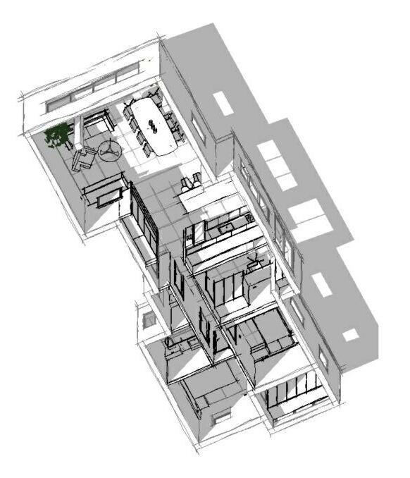
ןוילג רפסמ: ןוילגה םש: טקייורפה םש: הרודהמ רפסמ: נק"מ: לאיחא תיריע , תילכירדא 052.3993170 תודימה לכ תקידבל יארחא עצבמה . עידוהל וילע ,המאתה יא וא תועט לכ לע עוציבה ךשמה ינפל תננכתמל ע תודימ יעבקל ןיא " טוטרשב הדימ י . לש יטרפה השוכר תוראשנ תוינכתה תננכתמה 'פשמ סנוטסנילפ תוביטקפסרפ 0103 13.11.22 ןויעל ביבא לת הסינכהוןולסהלאטבמ 1 הסינכריקוןולסהרבעלטבמ 2 לכואהתניפרבעלטבמ 3 חבטמהלאטבמ 4
X2 X2 X2 X2 X2 X2 X2 X2 X2 X2 X2 X2 X2 X2 X2 X2 X2 X2 X2 X2 X2 X2 X2 TEL TEL TEL R TV TV USB USB USB USB USB USB X2 USB 2 2 3 4 6 7 3 4 5 Section 3 Section 3 Section 2 Section 2 Section 1 Section 1 Section 4 Section 4 ןוילג רפסמ: ןוילגה םש: טקייורפה םש: הרודהמ רפסמ: נק"מ: לאיחא תיריע , תילכירדא 052.3993170 תודימה לכ תקידבל יארחא עצבמה . עידוהל וילע ,המאתה יא וא תועט לכ לע עוציבה ךשמה ינפל תננכתמל ע תודימ יעבקל ןיא " טוטרשב הדימ י . לש יטרפה השוכר תוראשנ תוינכתה תננכתמה 1 : 50 'פשמ סנוטסנילפ ןלבקל הדמעה 0104 13.11.22 ןויעל ביבא לת
256 730 הסירהל םיחרוא יתוריש הסירהלתחלקמ 908011 388 21098211 298 הסירהלחבטמ 101411023010 10 390 1019710 ןוילג רפסמ: ןוילגה םש: טקייורפה םש: הרודהמ רפסמ: נק"מ: לאיחא תיריע , תילכירדא 052.3993170 תודימה לכ תקידבל יארחא עצבמה . עידוהל וילע ,המאתה יא וא תועט לכ לע עוציבה ךשמה ינפל תננכתמל ע תודימ יעבקל ןיא " טוטרשב הדימ י . לש יטרפה השוכר תוראשנ תוינכתה תננכתמה 1 : 50 'פשמ סנוטסנילפ הסירה 0105 13.11.22 ןויעל ביבא לת תוללוכ הסירהה תודובע : 1 המוקה חטש לכמ םילנפ קוריפ 2 קנ לכ לוטיב ,רואמה ,םיעקש תרושקת ,מ.א . היצלטסניאו םילנפו דבלב םיימינפ תוריק תסירה .3 4 ןהנימל הרקתה תוכמנה לכ תוסירה 5. תונולחהו תותלדה לכ קוריפ 6 תורגנה יטרפ לכ קוריפ ע השרומ םוקמל תלוספ יוניפ תוללוכ הסירהה תדובע " תויושרה י !!
363 10 100 54
273 1025 2 1 0 70 230 273 10 325
334 221 ןוילג רפסמ: ןוילגה םש: טקייורפה םש: הרודהמ רפסמ: נק"מ: לאיחא תיריע , תילכירדא 052.3993170 תודימה לכ תקידבל יארחא עצבמה . עידוהל וילע ,המאתה יא וא תועט לכ לע עוציבה ךשמה ינפל תננכתמל ע תודימ יעבקל ןיא " טוטרשב הדימ י . לש יטרפה השוכר תוראשנ תוינכתה תננכתמה 1 : 50 'פשמ סנוטסנילפ היינב 0106 13.11.22 ןויעל ביבא לת
198 210 80132 210 801010 174
10249.210 12050 210 80175 210 805010308 102001021510308
651026510
X2 X2 X2 X2 X2 X2 X2 X2 X2 X2 X2 X2 X2 X2 X2 X2 X2 X2 X2 X2 X2 X2 X2 TEL TEL TEL R TV TV USB USB USB USB USB USB X2 USB 18448 115 3623438 30 2546 16 60 15 85 2503535 20 40 40 47 H=100 H=100 H=100 H=120 H=100 H=75 H=110 H=160 16 160 39 195 135 155 145 35 235 7575 959550 165 130 ןוילג רפסמ: ןוילגה םש: טקייורפה םש: הרודהמ רפסמ: נק"מ: לאיחא תיריע , תילכירדא 052.3993170 תודימה לכ תקידבל יארחא עצבמה . עידוהל וילע ,המאתה יא וא תועט לכ לע עוציבה ךשמה ינפל תננכתמל ע תודימ יעבקל ןיא " טוטרשב הדימ י . לש יטרפה השוכר תוראשנ תוינכתה תננכתמה 1 : 50 'פשמ סנוטסנילפ למשח 0107 13.11.22 ןויעל ביבא לת
2 2 3 4 6 7 3 4 5 סמ 12 רויכזכרמ חרפזרב תורגנבקנררקמלזרב םייריכלזג ךןראטוויחריאשהל רויכ זכרמ H=+105 יריק זרב היולת הלסא יומס החדה לכימ היולתהלסא יומסהחדהלכימ רויכזכרמ H=+105 יריקזרב 2X ץופרטניא 3 ךרד הלתמקנ לעםימ H+=90 יריקתחלקמ H+=210 175 63 143 265 60 66 40 ןוילג רפסמ: ןוילגה םש: טקייורפה םש: הרודהמ רפסמ: נק"מ: לאיחא תיריע , תילכירדא 052.3993170 תודימה לכ תקידבל יארחא עצבמה . עידוהל וילע ,המאתה יא וא תועט לכ לע עוציבה ךשמה ינפל תננכתמל ע תודימ יעבקל ןיא " טוטרשב הדימ י . לש יטרפה השוכר תוראשנ תוינכתה תננכתמה 1 : 50 'פשמ סנוטסנילפ היצלטסניא 0108 13.11.22 ןויעל ביבא לת
הלחתה ןלצרופטינרג 80/80 תוגופ 3 מ"מ ןלצרופטינרג 80/80 תוגופ 3 מ"מ ןלצרופטינרג 80/80 תוגופ 3 מ"מ ןלצרופטינרג 80/80 תוגופ 3 מ"מ ןלצרופטינרג 80/80 תוגופ 3 ןלצרופטינרג 80/80 תוגופ 3 מ"מ ןוילג רפסמ: ןוילגה םש: טקייורפה םש: הרודהמ רפסמ: נק"מ: לאיחא תיריע , תילכירדא 052.3993170 תודימה לכ תקידבל יארחא עצבמה . עידוהל וילע ,המאתה יא וא תועט לכ לע עוציבה ךשמה ינפל תננכתמל ע תודימ יעבקל ןיא " טוטרשב הדימ י . לש יטרפה השוכר תוראשנ תוינכתה תננכתמה 1 : 50 'פשמ סנוטסנילפ ףוציר 0109 13.11.22 ןויעל ביבא לת
עקרקתמוק +0.00 המוק 01 +3.00 Section 3 Section 3 +2.05 +1.15 +2.15 +2.85 Section 4 Section 4 עקרקתמוק +0.00 המוק 01 +3.00 Section 3 Section 3 +2.10 +2.15 +2.15 +0.90 +1.05 +2.85 Section 4 Section 4 עקרקתמוק +0.00 המוק 01 +3.00 Section 2 Section 2 Section 1 Section 1 +2.85 עקרקתמוק +0.00 המוק 01 +3.00 Section 2 Section 2 Section 1 Section 1 ןוילג רפסמ: ןוילגה םש: טקייורפה םש: הרודהמ רפסמ: נק"מ: לאיחא תיריע , תילכירדא 052.3993170 תודימה לכ תקידבל יארחא עצבמה . עידוהל וילע ,המאתה יא וא תועט לכ לע עוציבה ךשמה ינפל תננכתמל ע תודימ יעבקל ןיא " טוטרשב הדימ י . לש יטרפה השוכר תוראשנ תוינכתה תננכתמה 1 : 50 'פשמ סנוטסנילפ םיכתח 0110 13.11.22 ןויעל ביבא לת 50 סמךתח02 50 סמךתח01 50 סמךתח03 50 סמךתח04
2 6 7 3 4 5 +0.00 90 210 60 115 +2.40 40 +2.40 115 40 ןוילג רפסמ: ןוילגה םש: טקייורפה םש: הרודהמ רפסמ: נק"מ: לאיחא תיריע , תילכירדא 052.3993170 תודימה לכ תקידבל יארחא עצבמה . עידוהל וילע ,המאתה יא וא תועט לכ לע עוציבה ךשמה ינפל תננכתמל ע תודימ יעבקל ןיא " טוטרשב הדימ י . לש יטרפה השוכר תוראשנ תוינכתה תננכתמה 1 : 25 'פשמ סנוטסנילפ םיתורישו תחלקמ 0112 13.11.22 ןויעל ביבא לת 25 תינכת 25 סמטבמ02 1 25 סמטבמ03 25 סמטבמ04 1 25 סמטבמ05 1 25 סמטבמ06 1 25 סמטבמ07
ןוילג רפסמ: ןוילגה םש: טקייורפה םש: הרודהמ רפסמ: נק"מ: לאיחא תיריע , תילכירדא 052.3993170 תודימה לכ תקידבל יארחא עצבמה . עידוהל וילע ,המאתה יא וא תועט לכ לע עוציבה ךשמה ינפל תננכתמל ע תודימ יעבקל ןיא " טוטרשב הדימ י . לש יטרפה השוכר תוראשנ תוינכתה תננכתמה 'פשמ סנוטסנילפ הרואתו הביטקפסרפ 0113 13.11.22 ןויעל ביבא לת
'מ.אחי
מ סירת.א
סירת.א
מ סירת.א
מ סירת.א
מ
זכרמיפל זכרמיפל תלדזכרמיפל מלתורישחתפ
ןוילג רפסמ: ןוילגה םש: טקייורפה םש: הרודהמ רפסמ: נק"מ: לאיחא תיריע
תודימה לכ תקידבל יארחא עצבמה . עידוהל וילע ,המאתה יא וא תועט לכ לע עוציבה ךשמה ינפל תננכתמל ע תודימ יעבקל ןיא " טוטרשב הדימ י . לש יטרפה השוכר תוראשנ תוינכתה תננכתמה 1 : 50 'פשמ סנוטסנילפ ריווא גוזימ 0114 13.11.22 ןויעל ביבא לת
+2.85 +2.42 'מ.אחי 80X25X40 'מ.אחי 80X25X40 'מ.אחי 80X25X40 .תרתסנ'מ.אחי 120X100X35
55X180X30
80X15 +2.35 מ
300X15
100X15
100X15
סירת.א 150X15 26 150 40
60X60
, תילכירדא 052.3993170
+2.85 +3.00 +3.00 +3.00 +3.00 +2.42 +2.40 +2.50 +2.35 856 70 5599 373 2161099 99 10 86 608 536 390 445 ןוילג רפסמ: ןוילגה םש: טקייורפה םש: הרודהמ רפסמ: נק"מ: לאיחא תיריע , תילכירדא 052.3993170 תודימה לכ תקידבל יארחא עצבמה . עידוהל וילע ,המאתה יא וא תועט לכ לע עוציבה ךשמה ינפל תננכתמל ע תודימ יעבקל ןיא " טוטרשב הדימ י . לש יטרפה השוכר תוראשנ תוינכתה תננכתמה 1 : 50 'פשמ סנוטסנילפ תוכמנה 0115 13.11.22 ןויעל ביבא לת

m²ISH- 60/60 - סיסב לע רמגעקרק תמוק 3.3 m² Floor: ISH - 33/33 סיסב לע רמג תובלתשמ םינבא 3.3 m²ISH- 33/33 - סיסב לע רמגעקרק תמוק 3.6 m² Floor: ISH - 80/80 סיסב לע רמג תובלתשמ םינבא 3.6 m²ISH- 80/80 - סיסב לע רמגעקרק תמוק 5.2 m² Floor: ISH - יולימ 11 + 20 ןוטב - םיתוריש תפצרל סיסב 5.2 m²ISH - 11 + 20 ןוטב - םיתוריש תפצרל סיסב יולימ עקרק תמוק 8.6 m²

Floor: ISH - 60/60 סיסב לע רמג תובלתשמ םינבא 8.6 m²ISH- 60/60 - סיסב לע רמגעקרק תמוק 93.5 m² Floor: ISH - 80/80 סיסב לע רמג תובלתשמ םינבא 93.5 m²ISH- 80/80 - סיסב לע רמגעקרק תמוק 94.7 m² Floor: ISH - 60/60 סיסב לע רמג תובלתשמ םינבא 94.7 m²ISH- 60/60 - סיסב לע רמגעקרק תמוק 100.3 m² Floor: ISH - יולימ 11 + 20 ןוטב - םיתוריש תפצרל סיסב 100.3 m²ISH - 11 + 20 ןוטב - םיתוריש תפצרל סיסב יולימ עקרק תמוק Grand total: 10

הסירהל תוריק תמישר

טקייורפב בלשחטש רואית

1 בלש - םייק 7.7 m² מ"ס 10 םיקולב ריק

1 בלש - םייק 3.6 m² מ ס 20 םיקולב ריק

1 בלש - םייק 1.5 m² מ"ס 10 םיקולב ריק

1 בלש - םייק 8.5 m² מ"ס 10 םיקולב ריק

1 בלש - םייק 2.4 m² מ"ס 10 םיקולב ריק

1 בלש - םייק 6.6 m² מ ס 10 םיקולב ריק

1 בלש - םייק 2.0 m² מ"ס 10 םיקולב ריק

1 בלש - םייק 8.6 m² מ"ס 10 םיקולב ריק

1 בלש - םייק 8.9 m² מ"ס 10 םיקולב ריק

1 בלש - םייק 14.9 m² מ ס 20 םיקולב ריק

Grand total: 1064.8 m²

היינבל תוריק תמישר

טקייורפב בלשחטש רואית

2 בלש - שדח 16.7 m² מ"ס 10 םיקולב ריק

2 בלש - שדח 10.9 m² מ"ס 10 םיקולב ריק

2 בלש - שדח 8.2 m² מ"ס 10 םיקולב ריק

2 בלש - שדח 1.6 m² מ ס 10 םיקולב ריק

2 בלש - שדח 6.8 m² מ ס 10 םיקולב ריק

2 בלש - שדח 8.0 m² מ"ס 10 םיקולב ריק

2 בלש - שדח 2.6 m² מ"ס 10 םיקולב ריק

2 בלש - שדח 0.7 m² מ ס 20 םיקולב ריק

2 בלש - שדח 0.9 m² מ"ס 20 םיקולב ריק

2 בלש - שדח 1.6 m² מ"ס 10 םיקולב ריק

2 בלש - שדח 1.6 m² מ"ס 10 םיקולב ריק

Grand total: 1159.7 m²

ןוילג רפסמ: ןוילגה םש: טקייורפה םש: הרודהמ רפסמ: נק"מ: לאיחא תיריע , תילכירדא 052.3993170 תודימה לכ תקידבל יארחא עצבמה . עידוהל וילע ,המאתה יא וא תועט לכ לע עוציבה ךשמה ינפל תננכתמל ע תודימ יעבקל ןיא " טוטרשב הדימ י . לש יטרפה השוכר תוראשנ תוינכתה תננכתמה 'פשמ סנוטסנילפ ףוצירו תוריק תמישר 0116 13.11.22 ןויעל ביבא לת ףוציר רמג תמישר Description Area TypeLevel 0.0 m² Floor: ISH - 33/33 סיסב לע רמג תובלתשמ םינבא 0.0 m²ISH- 33/33 - סיסב לע רמגעקרק תמוק 1.1 m² Floor: ISH - 33/33 סיסב לע רמג תובלתשמ םינבא 1.1 m²ISH- 33/33 - סיסב לע רמגעקרק תמוק 1.8 m² Floor: ISH - 60/60 סיסב לע רמג תובלתשמ םינבא 1.8
ןוילג רפסמ: ןוילגה םש: טקייורפה םש: הרודהמ רפסמ: נק"מ: לאיחא תיריע , תילכירדא 052.3993170 תודימה לכ תקידבל יארחא עצבמה . עידוהל וילע ,המאתה יא וא תועט לכ לע עוציבה ךשמה ינפל תננכתמל ע תודימ יעבקל ןיא " טוטרשב הדימ י . לש יטרפה השוכר תוראשנ תוינכתה תננכתמה 'פשמ סנוטסנילפ היצלטסניא תמישר 0117 13.11.22 ןויעל ביבא לת היצלטסניא ירזיבא תמישר תומכ רזיבא גוס 031 - Chrome 1 031 Chrome BERLIN PLUS 610mm Stainless steel single bowl kitchen sink 1 BERLIN PLUS 610mm Stainless steel single bowl kitchen sink CP-Polished Chrome 1 CP-Polished Chrome Default 2 Default ISH - Super Shower 2 ISH - Super Shower ISH - Super Sink 2 ISH - Super Sink ISH - Super Tub 1 ISH Super Tub ISH_AVIK 1 ISH_AVIK ISH_Sink 1 ISH_Sink M_Toilet-Domestic-3D 2 2 M_Toilet-Domestic-3D
2
Nickel 1 Nickel Not a Type See Type Catalog 1 Not a Type - See Type Catalog Not a Type See Type Catalog 1 Not a Type - See Type Catalog Plumbing_Fixtures_Grohe_Eurocube_Single_Lever_Sink_Mixer_31395000-14-METRIC 1 Plumbing_Fixtures_Grohe_Eurocube_Single_Lever_Sink_Mixer_31395000-14-M ETRIC small faucett-01 2 small faucett-01 Grand total: 22
2 MANIFOLD_Wall_Hung_WC
MANIFOLD_Wall_Hung_WC

ISH_Lighting_

ISH_Lighting_

Lighting_Desk&Table_Orsjo-Belysning_Minipoint-BX225-Table-Lamp (1)

ISH_Lighting_

ISH_Lighting_

ISH_Lighting_

1Lighting_Desk&Table_Orsjo-Belysning_Minipoint-BX225-Table-Lamp (1)

Lighting_Pendants_Kreon_holon-40-pendant 6

Lighting_Wall-Mounted_Orsjo-Belysning_Streck-Wall-Lamp-Large 2

Table Lamp-04 3

Lighting_Pendants_Kreon_holon-40-pendant

Lighting_Wall-Mounted_Orsjo-Belysning_Streck-Wall-Lamp-Large

Table Lamp-04

Table Lamp-07 1 Table Lamp-07

Tischlampe (1) 5 Tischlampe (1)

ISH_ELECTS_

ISH_ELECTS_

ISH_ELECTS_

ISH_ELECTS_

1ISH_ELECTS_

2ISH_ELECTS_

4 ISH_ELECTS_ןופלט

3 ISH_ELECTS_םילבכ תדוקנ

ISH_ELECTS_תלדל ןומעפ 2 ISH_ELECTS_תלדל ןומעפ

ISH_ELECTS_

1ISH_ELECTS_עקש USB שלשומ

ISH_ELECTS_דיחי עקש 7 ISH_ELECTS_דיחי עקש

ISH_ELECTS_חכ עקש 1 ISH_ELECTS_חכ עקש

ISH_ELECTS_לופכ עקש 25 ISH_ELECTS_לופכ עקש

1 ISH_ELECTS_דיחי ןגומ

ןוילג רפסמ: ןוילגה םש: טקייורפה םש: הרודהמ רפסמ: נק"מ: לאיחא תיריע , תילכירדא 052.3993170 תודימה לכ תקידבל יארחא עצבמה . עידוהל וילע ,המאתה יא וא תועט לכ לע עוציבה ךשמה ינפל תננכתמל ע תודימ יעבקל ןיא " טוטרשב הדימ י . לש יטרפה השוכר תוראשנ תוינכתה תננכתמה 'פשמ סנוטסנילפ הרואתו למשח תומישר 0118 13.11.22 ןויעל ביבא לת תרושקתו חכ ,םיגתמ תמישר רואית תומכ רזיבא גוס ISH_ELECTS_Bell 1
1
10
ילמשח הלילג סירתל הנכה 9ISH_ELECTS_ילמשח הלילג סירתל הנכה
יריק םיטוח 17
יריק םיטוח
םוח רזפמ רונתל הלעפה גתמ
םוח רזפמ רונתל הלעפה גתמ
הטנו הרקת ררוואמ הלעפה גתמ
הטנו הרקת ררוואמ הלעפה גתמ
ISH_ELECTS_Bell ISH_ELECTS_Dimmer_V3
ISH_ELECTS_Dimmer_V3 ISH_ELECTS_Tris_V3
ISH_ELECTS_Tris_V3 ISH_ELECTS_
ISH_ELECTS_
ISH_ELECTS_
ISH_ELECTS_
2ISH_ELECTS_
ISH_ELECTS_
2ISH_ELECTS_
רמייט ילב םימ דודל גתמ
רמייט ילב םימ דודל גתמ
םע םימ דודל גתמ
רמייט
רמייט םע םימ דודל גתמ
ןופלט תדוקנ
תדוקנ
םילבכ תדוקנ
עקש USB 8 ISH_ELECTS_עקש USB ISH_ELECTS_עקש USB שלשומ
ISH_ELECTS_דיחי ןגומ עקש
עקש
עקש
עקש
ISH_ELECTS_לופכ ןגומ
1ISH_ELECTS_לופכ ןגומ
שלושמ עקש ISH_ELECTS_תשר עקש 1
תשר עקש ISH_ELECTS_רמייט םע הרואת 1ISH_ELECTS_רמייט םע הרואת למשח ןורא 2 למשח ןורא תרושקת ןורא 2 תרושקת ןורא ףילחמ 5 ףילחמ ןגומ קספמ 1 ןגומ קספמ ליגר קספמ 11 ליגר קספמ ליגר קספמ 2 ליגר קספמ בילצמ 7 בילצמ Grand total: 132 הרואת יפוג תמישר תומכ רזיבאה םש 20033-81 2 20033-81 Floor Lamp-05 2 Floor Lamp-05 ISH_Lighting_יריק הרואת ףוג 17 ISH_Lighting_יריק הרואת ףוג ISH_Lighting_יתרקת הרואת ףוג 7
יתרקת הרואת ףוג
ISH_ELECTS_שלושמ ןגומ עקש 1ISH_ELECTS_שלושמ ןגומ עקש ISH_ELECTS_שלושמ עקש 1 ISH_ELECTS_
ISH_ELECTS_
תיריק הרואת תדוקנ
17
תיריק הרואת תדוקנ
תיתרקת הרואת תדוקנ
7
תיתרקת הרואת תדוקנ
ןבלמ הרקת דומצ הרואת ףוג 2 ןבלמ הרקת דומצ הרואת ףוג לוגע הרקת דומצ הרואת ףוג 1 לוגע הרקת דומצ הרואת ףוג 1 ינבלמ יולת הרואת ףוג 1 1 ינבלמ יולת הרואת ףוג 2 ינבלמ יולת הרואת ףוג 1 2 ינבלמ יולת הרואת ףוג לוגע יולת הרואת ףוג 1 לוגע יולת הרואת ףוג יולת ףוג 1 יולת ףוג תדמוע הרונמ 2 תדמוע הרונמ 2 תדמוע הרונמ 2 2 תדמוע הרונמ Grand total: 81
2 3 4 סמ ןוילג' 20 סמ ןוילג' 21 סמ ןוילג' 21 2 4 ןוילג רפסמ: ןוילגה םש: טקייורפה םש: הרודהמ רפסמ: נק"מ: לאיחא תיריע , תילכירדא 052.3993170 תודימה לכ תקידבל יארחא עצבמה . עידוהל וילע ,המאתה יא וא תועט לכ לע עוציבה ךשמה ינפל תננכתמל ע תודימ יעבקל ןיא " טוטרשב הדימ י . לש יטרפה השוכר תוראשנ תוינכתה תננכתמה 1 : 50 'פשמ סנוטסנילפ תורגנ תוינפה 0119 13.11.22 ןויעל ביבא לת תורגנ תמישר ןויליג סמ ןויליגה םש 20 חבטמ תורגנ 21 יתורישו תחלקמ תורגנ םיחרוא
2 3 4 78 78 7861 296 300 84 95 120 62 301 60 71 72 60 60 100 263 100 265 99 87 87 87 103 40 עקרקתמוק +0.00 המוק 01 +3.00 71726060 100 263 100 47 47 50 220 20 38 10 905094 87 87 87 103 +2.85 +2.35 עקרקתמוק +0.00 המוק 01 +3.00 220 20 38 10 90 47 47 50 220 58 94 50 90 40 60 125 60 115 עקרקתמוק +0.00 המוק 01 +3.00 296 300 +2.85 78 78 7861 103820202 90 ןוילג רפסמ: ןוילגה םש: טקייורפה םש: הרודהמ רפסמ: נק"מ: לאיחא תיריע , תילכירדא 052.3993170 תודימה לכ תקידבל יארחא עצבמה . עידוהל וילע ,המאתה יא וא תועט לכ לע עוציבה ךשמה ינפל תננכתמל ע תודימ יעבקל ןיא " טוטרשב הדימ י . לש יטרפה השוכר תוראשנ תוינכתה תננכתמה 1 : 25 'פשמ סנוטסנילפ חבטמ תורגנ 0120 13.11.22 ןויעל ביבא לת 25 תינכת 1 25 טבמ 02 2 25 טבמ 03 3 25 טבמ 04 4
37 94 130 40 35 85 755090 15 55 20 20282815 134 +2.40 52525252 211 15 28 27 85 ןוילג רפסמ: ןוילגה םש: טקייורפה םש: הרודהמ רפסמ: נק"מ: לאיחא תיריע , תילכירדא 052.3993170 תודימה לכ תקידבל יארחא עצבמה . עידוהל וילע ,המאתה יא וא תועט לכ לע עוציבה ךשמה ינפל תננכתמל ע תודימ יעבקל ןיא " טוטרשב הדימ י . לש יטרפה השוכר תוראשנ תוינכתה תננכתמה 1 : 25 'פשמ סנוטסנילפ םיחרוא יתורישו תחלקמ תורגנ 0121 13.11.22 ןויעל ביבא לת 1 25 תינכת 1 1 25 םיחרואיתוריש 3 25 טבמ 2 25 םיחרואיתוריש 4

Turn static files into dynamic content formats.

Create a flipbook
Issuu converts static files into: digital portfolios, online yearbooks, online catalogs, digital photo albums and more. Sign up and create your flipbook.