isabellaford.ortega@gmail.com
tel. (+34) 695279778
![]()
isabellaford.ortega@gmail.com
tel. (+34) 695279778
name
Ford Ortega, Isabella María birth
5/2/1999 nationality spanish/british adress
Calle de Sandoval, 12 28010 Madrid contact LinkedIn/ https://www.linkedin.com/in/isabella-maría-ford-ortega/ [+34] 695279778 isabellaford.ortega@gmail.com
i. education
(2017-2022) Grado en Fundamentos de Arquitectura por la Universidad de Sevilla (2022-2023) Máster Habilitante en Arquitectura por la Universidad Politécnica de Madrid
ii. experience
(since 2016) English Tutor - All levels (summer 2016) Architectural intern in Sheppard Robson, London (summer 2020) Caretaker in summer school, Ayamonte - Ages 1 to 4. (September-November 2021) Architectural intern in Enmedio Studio, Sevilla (January-June 2022) Site visits, residential projects. Imago Arquitectos, Sevilla (since September 2023) Architect in ht arquitectos (since September 2023) residential projects, freelance architect
iii. skills
(2004-2010) Academia de Arte R&M, Ayamonte (July 2021) Certificate in Advanced English (C1), Cambridge Assessment English. Score 202 (since 2017) Softwares: Microsoft Office, AutoCAD, Adobe Creative Suite, Sketchup, Rhinoceros, VRay, Presto (languages in process of learning) french (5 years), catalan (since September)
iv. competitions and publications (october 2021) (with Enmedio Studio) “Contratación del Servicio de Arquitectura para la Construcción del UNICA Agribusness Center (UAC) en el Polígono PITA”, Almería. Second prize (2020-2021) Publicación “Capturas personales, serie de tres acuarelas” en Exposición Río Guadaira: Apropiación de un lugar. Mirada(s), proceso e intención, Daniel Bilbao Peña y Mercedes Pérez del Prado, Alcalá de Guadaira, Sevilla (2020-2021) Co-author in Apropiación de un lugar. Mirada(s), proceso e intención, Daniel Bilbao Peña y Mercedes Pérez del Prado (2024) Mención especial en Premio Félix Candela vol. 6 «Injerto»
i PP. 6 —9 2024
lacy 81
5 habitatges a Sabadell, Barcelona
with Guillem Molas
ii PP. 10 —15 2022/2023 nouvel, sabatini y la plaza pfm, Madrid
iii PP. 16 —17 2024 do you want to sit in the sun, or do you want to sit in the shade? TAC! Festival
with Guillem Molas, Andrea Jiménez, Ángel Palmerín
iv PP. 18 —19 2021/2022
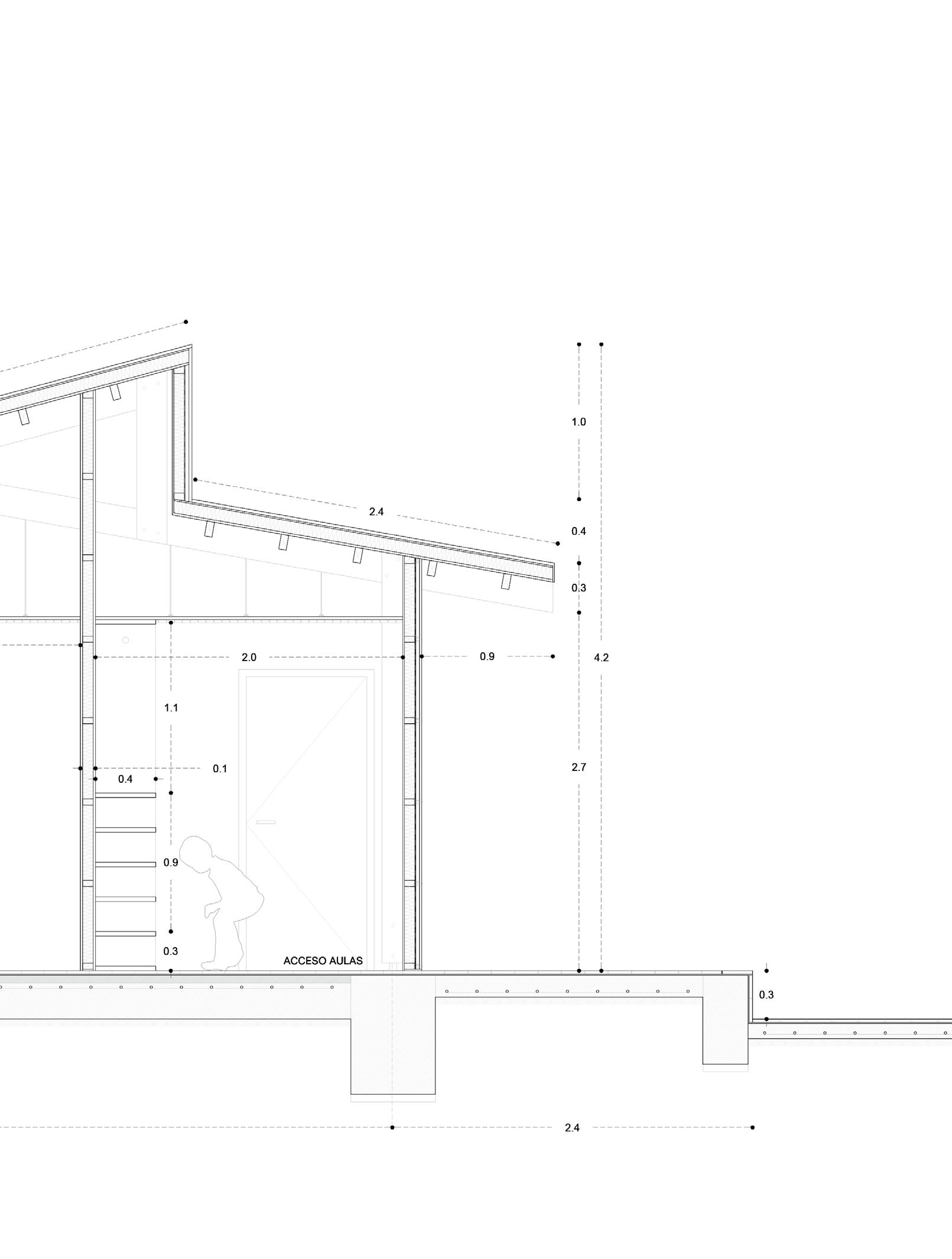
kindergarden
Sevilla
v PP. 20 —23
personal work


5 habitatges a Sabadell, Barcelona








iii. do you want to sit in the sun, or do you want to sit in the shade? TAC! Festival


sobre el proyecto:
La playa, pero también las calles y plazas de Cádiz, son campos de batalla. Cada uno persigue apaciguar la desesperación que provoca el sol caluroso sobre su piel. La lucha es individualizada y la originalidad para combatirla también [...] La propuesta parte de la observación de esta actitud y propone un gran pero único elemento de sombra. No es generalizada. Un estrecho elemento vertical que produce un rayo de sombra sobre la plaza. Las canteras de los alrededores nos proporcionan, con sus residuos, un elemento pesado, inmóvil y que puede ser usado como un banco, una mesa o una tumbona...

1. Cerramiento exterior de ladrillo cerámico cara vista perforado hidrofugado, color Salmón, acabado liso, 20x10,5x6.5 cm, para uso en fábrica no protegida (pieza U), densidad 1700 kg/m³, según UNE-EN 771-1.
2. Mortero industrial para albañilería, de cemento, color gris, categoría M-7,5 (resistencia a compresión 7,5 N/mm²), suministrado a granel, según UNE-EN 998-2.
3. Perfil de soporte omega para subestructura de la hoja exterior 86 mm. Composición EN AW-6063. Pernos M12x30-8.8.
4. Lámina impermeabilizante 3,5 mm.
5. Capa de aislante térmico de fibra de vidrio de 5 cm con tecnología ECOSE (Producto químico aglutinante que hace que sea más sostenible). Al no tener revestimiento cumple su función de material ignífugo. Resistencia térmica R-8 con una temperatura media de 24ºC. Sorción de vapor de agua menos del 5% por peso. (KNAUF)
6. Placa de yeso laminado. Espesor 9,5 mm, reacción al fuego A2-s1,d0 (B) (EN 520) Sistemas Drywall (STANDARD)
7. Perfiles 4x2 cm de madera laminada encolada de abeto para subestructura auxiliar (Norma UNE-EN 14080) de densidad aparente al 12% de humedad 450 kg/m³, clase de uso 1, tipo GL24h, sello PEFC, adhesivo PF. Tratamiento superficial con producto insecticida mediante pulverización de Lasures. Protección contra el fuego: Tratamiento para el incremento de reacción al fuego mediante barniz intumescente.
8. Pilar de madera aserrada de pino silvestre, de hasta 5 m de longitud, de 150x150 mm de sección, clase resistente C18 según UNE-EN 338 y UNE-EN 1912, calidad estructural MEG según UNE 56544; para clase de uso 1 según UNE-EN 335, con protección frente a agentes bióticos que se corresponde con la clase de penetración NP1 según UNE-EN 351-1, con acabado cepillado.
9. Pavimento exterior de barro cocido 20 x 7 x 5 cm
10. Solera de hormigón HA-25 de 10 cm de espesor y formación de pendiente de escaleras, con malla electrosoldada ME 20x20 Ø 5-5 B 500 T 6x2,20 UNE-EN 10080 como armadura de reparto.
11. Forjado sanitario de hormigón armado HA-25/B/20/IIa y acero UNEEN 10080 B 500 S en zona de refuerzo de negativos y conectores de viguetas y zunchos y vigas, con una cuantía total 11 kg/m², de canto 30 = 25+5 cm; sistema de encofrado continuo con puntales, sopandas metálicas y superficie encofrante de madera tratada reforzada con varillas y perfiles; semivigueta pretensada T-12; bovedilla de hormigón, 60x20x25 cm, incluso p/p de piezas especiales; capa de compresión de 5 cm de espesor, con armadura de reparto formada por malla electrosoldada ME 20x20 Ø 5-5 B 500 T 6x2,20 UNE-EN 10080
12. Pavimento interior de tablas machihembradas de madera maciza de pino, de 17 mm de espesor, cepillada en fábrica y sin recubrimiento, acabado natural, colocadas a rompejuntas sobre lámina de espuma de polietileno de alta densidad de 3 mm de espesor y encoladas entre sí con adhesivo, con clase de durabilidad D3. Incluso juntas, molduras cubrejuntas, adhesivo y accesorios de montaje para la tarima.
13. Recubrimiento exterior de chapa de acero galvanizado de cubierta inclinada inclinada, de 0,6 mm de espesor, con una pendiente entre del 10 y 15 %, fijada mecánicamente.
14. Impermeabilización de cubiertas inclinadas con lámina impermeabilizante, flexible y difusora de vapor de agua, compuesta de una hoja de poliolefina, con ambas caras revestidas de velo fibroso, de 0,45 mm de espesor y 135 g/m², tipo monocapa, totalmente adherida al soporte con adhesivo cementoso mejorado, deformable y tixotrópico, C2 TE S1.
15. Aislamiento térmico formado por placa de poliestireno extruido EZ 80 “GRAZIMAC”, de 1250x600 mm, de superficie lisa y mecanizado lateral a media madera, de 80 mm de espesor, con perfiles perforados de acero galvanizado, con una separación entre perfiles de 400 mm, fijado mecánicamente sobre superficie soporte.
16. Entablado visto de tablas machihembradas de madera de pino silvestre, de 800x150 mm y 25 mm de espesor, clavadas directamente sobre las viguetas del forjado, para formación de piso. Incluso preparación de la madera, replanteo, nivelación, cortes y retaceos, fijación oculta con puntas de hierro y formación de huecos.
17. Vigueta de madera aserrada de pino silvestre (Pinus sylvestris) procedente de España, de 70x70 mm de sección, clase resistente C18 según UNE-EN 338 y UNE-EN 1912, calidad estructural ME-2 según UNE 56544; para clase de uso 1 según UNE-EN 335.
18. Viga de madera laminada encolada homogénea de abeto rojo de 100x200 mm de sección.


(mención) premio Félix Candela Vol. 6 “Injerto” super-grid, New York City 594 x 841 mm


reflexión sobre Essai sur l’architecture (1753)
En arquitectura, sucede como en el resto de las artes: sus principios se fundan en la simple naturaleza, y en el proceder de ésta se encuentran claramente las reglas de aquella. Es así que las maniobras del ser humano para protegerse de las condiciones climáticas que se le presentan, provocadas por el instinto más profundo, la búsqueda del refugio... aquellas que dieron lugar a la cabaña rústica, es cómo evoluciona nuestra naturaleza y da origen al nacimiento del arte.
fragmento de tfg
“de la casa patio, a la habitación exterior” 2023, Sevilla
