Isabella Alvarado Folio - Architectural Graduate

Page 1


ArchitecturalGraduate IsabellaAlvarado Portfolio

Contents

Culture/Community

Freelance - Retail

Secondary Education

Scholarship

Secondary Education

University Awards

Early Education

Freelance - Interior

Wangaratta Creative Precinct

Heritage Precinct Redevelopment

Konkon Asia Market GmbH

Flagship Store Redevelopment

New Schools 2024

Secondary + Specialist Campus

Waterkant Academy Kita

Gestaltungskonzepte

Balwyn High School - Theatre Upgrade

Alterations and Additions

Peter Elliot Architecture ‘Drawing Architecture’ Prize 2019

3rd Place for ‘Coral Renaissance’

Maribyrnong Kindergarten

Feasibility Studies + Schematic Design

35 Illawong

Kitchen Renovation

Wangaratta Creative Precinct

Client Wangaratta City Council

LandscapeDetails

Roles and Responsibilities

Schedule of Materials & FFE

Landscape details

Bespoke joinery details

Renders

Assistance in Presentations

Wangaratta Creative Precinct is a redevelopemnt of four existing cultural buildings in Regional Victoria, Australia. The project aims to convert the precinct into a vibrant creative campus uniting various Galleries, Performance spaces, Workshop and Education spaces. Part of the project is working to redefine and discover a new cultural identity for the city of Wangaratta.

My contribution to this project was handling Documentation sets, Renders and Interior design regarding materials and schedules. Together with the Heritage Architects and the Fire Engineers, this resulted in an extensive amount of bespoke detailed solutions that offer itself to creating a unique visual and spatial charachter specific to this project.

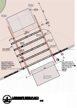
Sibling Architecture were also acting as Landscape Architects on this project. The below drafting details were drawn by me for an undulating landscape consisting of Permeable pavers and Pigmented concrete

Permanent Gallery
New Entry Tower
Gallery Entry Diagram

Konkon Asia Market Berlin

Proposed Flagship Store Design

Existing Store

Project Description

This is a Freelance project I did for Konkon Asia Market GmbH. The store opened in May 2024 and has since then become extremely popular and therefore expanding to become a Flagship Store. Given the success of the original, the concept for the redevelopment is a ‘Konkon Village’, the idea is to build a home for all the new and exotic flavours the store is introducing to the German market. We recognised that for most German-based customers, visiting Konkon is a cultural experience introducing new flavours, ingredients and languages so it was important for the space to compliment the products and build a world to activate customer experiences and dialogues.

Client

Project

11, Berlin, Germany

Proposed Layout

This detail is for the Homewares wall, the wall is entirely backlit by LEDs whilst a display shelf for Ceramics and Homeware items. The detail thinks about LED light integration with Exsiting wall assembly and high quality oak shelves constructed for the display items.

Primary

We wanted the space to be a reincarnation of Asian vernaculars through simple Japanese timber construction and echoing contemporary design languages found in Seoul or Tokyo. The store’s logo and corporate identity being Indigo Blue has been softly referenced through accent LED lights and stained timber.

Architectural Services

• Concept Design

• Layout Optimisation

• Documentation

• Project Management

• Design Consultancy

Business Development

• Brand + Business Strategy

• Designed their Corporate Identity

• Assisted in Business and Strategy Planning

• Interaction Design

Existing Floor
Existing Shelves Warm Grey Powdercoat
Brushed Stainless steel
Polycarbonate
White washed Plywood
Oak Veneer
LED Backlit Wall Detail

New Schools 2024

Support Inclusion School

The project was designed through building templates, so each building exists on different campuses but slightly adjusted to suit the particular context to address sun orientation, wayfinding and landscape.

The Architecture team meticulously designed a BIM and Project Team workflow to accommodate a seamless way of working universally across the 3 campuses.

The main complexties of the VSBA Bundle projects is that when it came to Contract Admin, the Specialised Documentation sets needed to respond to on site changes instantly despite the streamlined and general approach of the early documentation sets. This resulted in a careful and tedious reparations that responded to different site specific RFI’s which I had heavy involvement in fixing.

Support Inclusion School

Design Development & Contract Documentation

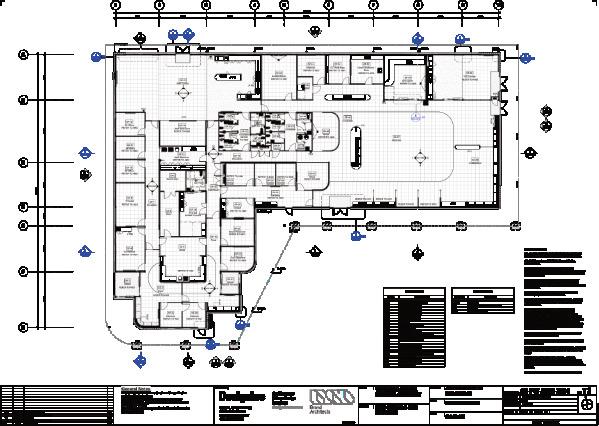
• Assumed sole responsibility for complete documentation of Building AR02 (Administration)

• Coordination with Consultants

Contract Administration to Practical Completion

• Document Controller, responsible for distribution of drawings between Architectural team and Contractors on Aconex.

• Assisting Project Architects/Directors

• Continuous exposure to Construction throughout CA

• Handling and answering RFI’s, and updating drawings

• Defects

Support Inclusion School

Tarneit
Werribee
Secondary School
Secondary School
Secondary School + Yarrabing Secondary School
Nganboo Borron Specialist School
Dharra Specialist School
Walcom Ngarrwa Secondary
Brinbeal Secondary School
Brinbeal Specialist School

General Arrangement Plan - Admin Building

Partition Plan - Admin Building

Elevations - Admin Building

Concrete Profile Plan - Admin Building

Reflected Ceiling Plan - Admin Building

Wall Type Details - Admin Building

Project Year: 2023

Project Value: Unknown Concept Design

Roles and Responsibilities:

Site Evaluation

Concept Development

Translate Concept to Architectural ideas

Schedule of Materials

Schedule of Fixtures, Furniture and Equipment

Project Leader Nathalie Dziobek Bepler - Baukind (Berlin)

Childrens RoomThe Reef GruppenraumDas Riff

Waterkant Kita

Early Education

WaterplayThe Sea

WasserspielDas Meer

Circulation - The River

Verkehr- Der Fluss

EntranceThe Home

HaupteingangDas Haus

In 2023 I worked with Berlin based Architecture office, Baukind for a Working Residency Scholarship provided by Goethe Institute for 6 weeks. The first project I worked on was for a Kita for Waterkant Academny on the Ground floor of Wasserstadt Oberhavel in Spandau. I was responsible for creating a Gestaltungskonzepte for the Client where we provided design advice and conceptual drawings. The concept for the project was based on the question "Wo fließt der Fluss?" (Where does the river flow?)

Masterplan and Building designed by Eike Becker Architekten

Farbewelt / Colourworld
Wasserstadt Oberhavel
Grundriss Erdgeschoss / Ground Floor

Project Type: Alterations and Additions

Balwyn High School - Theatre Upgrade

Doing an extension to a building this large in particular required a tedious amount of complexity in terms of documentation and also project management, all of which I was primarily responsible for.

The Theatre upgrade retains as much existing prefab concrete walls whilst providing extensive expansion and internal works that have triggered a healthy amount of Performace solutions, Fire engineering and Project management complexity. The most laborious difficulty was prior to going out to Tender, we recieved a 5 page Building Surveyors checklist that I worked through on my own for months, a long list of technical items written below

Roles and Responsibilities

• BCA Non Compliances

• Issues with Land Title and Council

• Complex FRLs for walls and doors

• Writing Performance Solutions

• Negotiating with RBS regarding existing infrastructure for dispensations

• Engaging consultants for Performance Solutions

• Mediating between Fire engineer and Building surveyor for the FEB

• Requesting information from suppliers

• Documentation + Detailing

• VSBA Checklists and Project Procedures

Project Title: A Coral Renaissance

Project Type: Final Semester Project

Peter Elliot Drawing Architecture Prize

The image is a Neo-Renaissance-esque drawing documenting Coral bleaching in the Australian Great Barrier Reef. Using the story of an existing Sinkhole as a refuge to Climate Change, it becomes a stage to memorialise and speculate the new relationship we will have to adopt towards Nature in light of the Ecological crisis.

For this image I was interested in returning to ideas of Art, Science and Religion specifically of the Renaissance Era by using the geology of the site, the chemestry of the corals and our history wiith the extracting Fossil Fuels to depiect this fable / event of witnessing the last corals of the Great Barrier Reef

Runner up 3rd Place - Commendation
University Award

Project Year: 2023

Project Value: 500k - 5 million

Project Leader

Kate Reed - Brand Architects

Feasibility - Design Development

Maribyrnong Kindergarten

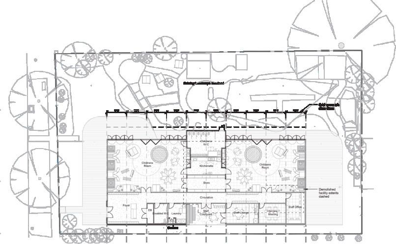
Maribyrnong Kindergarten is an Existing Kindergarten Centre dedicated to providing 4 year old Kinder. In 2022 the Victorian Government is investing 5 Billion dollars to increase capacity of all existing centres to include free kindergarten for 3 year olds aswell.

Maribyrnong City council is developing a renovation of its Existing centre to upgrade and improve amenity through demolition and redeveloping its Existing site.

Roles and Responsibilities:

Site Evaluations

Preliminary cost plans to various options

Managing client expectations and brief

Coordination between Structural, Accessibility, Fire and Services Engineer

Research into pedagogical best practices and standards

Exterior Facade - Street Elevation
Children’s Room - Interior
Early Education

Spatial Relationships - Diagram

Site Plan

Spatial Relationships - Plan

A key component of its redevelopment is designing for Progressive Early education practices. The diagram on the previous page is a visual demonstration of the various interaction types and qualities of activities that occur in an Early Education space. And the diagram above is the translation of these principles into an architectural design. The aim of this study was to provide room for thinking about the smaller and more meaningful moments in children’s development.

Project Year: 2024

Project Value: 17K

Project Leader

35 Illawong

Completed Project

The objective for this Kitchen Renovation was to replace the rundown existing Kitchen with an elegant design that provided a serene and balanced background for family gatherings and entertaining. The original design was loud and disjointed so the Clients were craving something modest but with rich details and unique moments. The kitchen references a lot of existing design languages often referencing the Family’s collection of Japanese earthenware and textiles found throughout the home.

Roles and Responsibilities

Site Evaluations

Concept Development

Styling

Project Management

Project Supervision

Contractor Coordination

Interior Elevations
Existing Kitchen
Isabella Alvarado (Freelance)
Interior - Freelance
All Drawings, Renders and Diagrams by me

3. Surround by Laminex MDF panels 4. Quartiera Maple benchtop by Polytec 5. Notatio Walnut in Smooth by Polytec

JAPANDI

PUJ611BB5E

Dimentions: 592W x 522L

HC90BLB1

Dimentions: 900W x 500D x

HBF134EB0A Number: PUJ611BB5E

Dimentions: 594W x 548D x 594H

Dimentions: 592 x 522

Dimentions:

Product: Denmark Retro Hanging Pendant Light Product: Nymane

Dimentions: 14D x 2000L

1. Japanese concave tiles in ‘Ignite’
Tasmanian Oak
6. Legato in Montage by Polytec 7. Matte Black Fixtures

Turn static files into dynamic content formats.

Create a flipbook
Issuu converts static files into: digital portfolios, online yearbooks, online catalogs, digital photo albums and more. Sign up and create your flipbook.
Isabella Alvarado Folio - Architectural Graduate by isabellaalv - Issuu