Portafolio by Merlhy Córdova

Page 1

P O R T A F O L I O • A R Q U I T E C T U R A LIMA
T A L L E R 1 • A R Q. L U I S O R N A Y A R Q. E R I K A E B E R M A N 04
T A L L E R 2 • A R Q. C O L L I N S Y A R Q. M O R Z Á N
05
PUENTE
Variant 3/ADOBE T A L L E R 3 • A R Q. E U G E N I O G IA C H E T T I 06

AREA VERDE 1

VIA PRINCIPAL 1 VIA PRINCIPAL 2 VIAS SECUNDARIAS

AREA VERDE 3

T A L L E R 4 • A R Q. E N R I Q U E G O M E Z D E L A T O R R E Y A R Q. H U G O I B É R I C O
MÓDULO DE VIVIENDA 1 MÓDULO DE VIVIENDA 2 07
Accesos al cerro
T A L L E R 5 • A R Q. T O M A S S O C I G A R I N I Y A R Q. E I L E E N D A N C U A R T 08

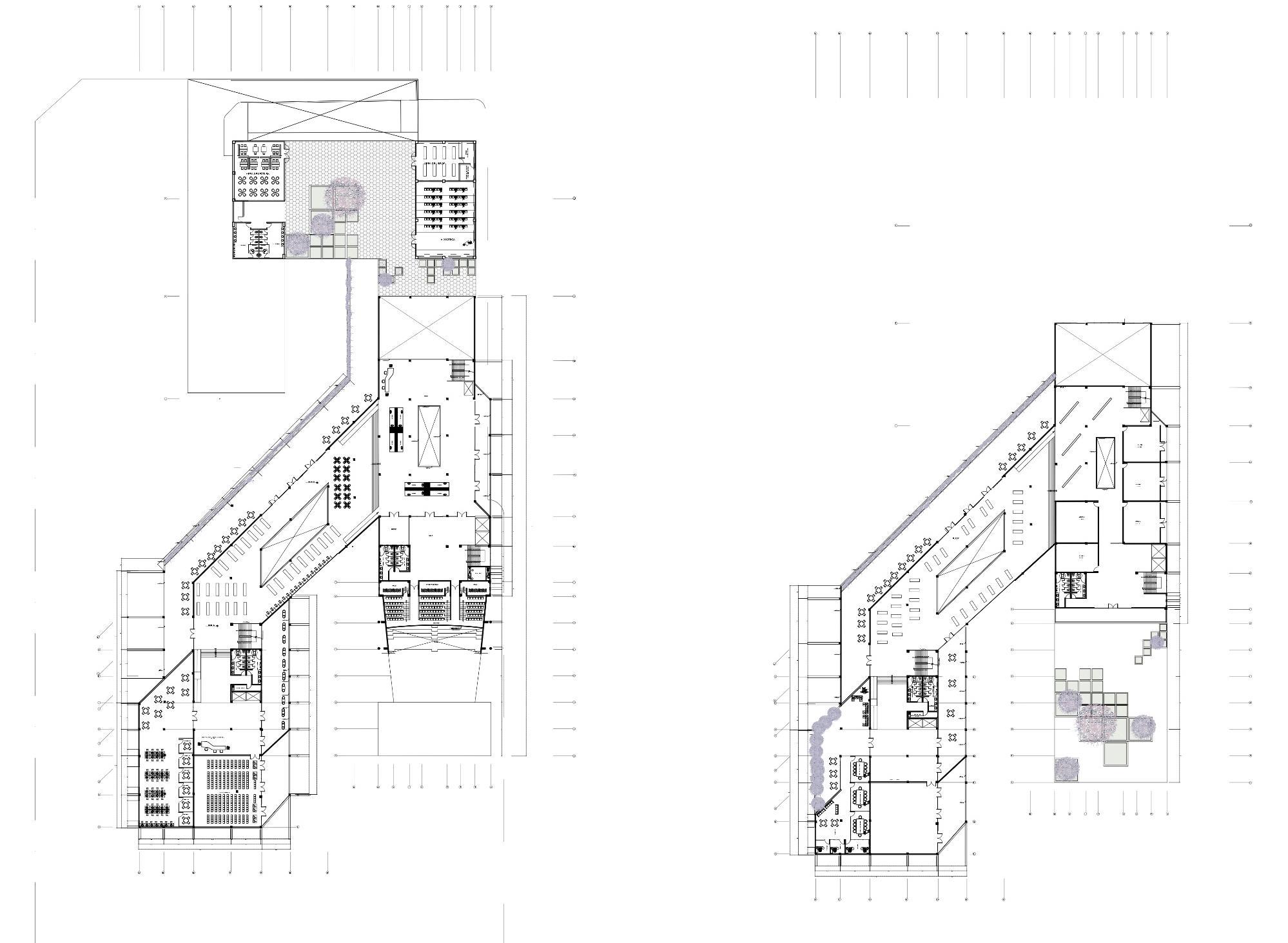
El proyecto consiste en desarrollar un edificio híbrido de usos ( comercial, cultural y oficinas) En la urbanización la Aurora en Miraflores

PLAZA PUBLICA DE ACCESO AL EDIFICIO Y DE PERMANENCIA CON VOLUMENES PARA COMERCIO Y CULTURA

SOBRE LOS FLUJOS, SE PROPONEN EJES INTEGRADORES

SE CREAN VACIOS COMO

INTEGRADORES DE LAS TRES ZONAS

PROGRAMATICAS

SE LIBERA

PARCIALMENTE DEL SUELO PARA CREAR TRANSPARENCIAS Y FLUJOS

T A L L E R 6 • A R Q. J A I M E J U S C A M A I T A Y A R Q. J A N E T H H E R N A N D E Z
09
T A L L E R 6 • A R Q. J A I M E J U S C A M A I T A Y A R Q. J A N E T H H E R N A N D E Z 10

PROGRAMA DE ÁREAS

PAQUETE SACRO PAQUETE DE COMERCIO

PAQUETE CULTURAL PAQUETE INSTITUCIONAL PAQUETE OFICINAS COLIVING

T A L L E R 7 • ARQ. CÉSAR ENRIQUE GÓMEZ DE LA TORRE SALAS, ARQ. JORGE JULIÁN CONTRERAS VÉLEZ, ARQ. MARIA DE LOS ANGELES SOMOCURCIO HOLGUIN
11
ELEVACION GENERAL
SECCIONES T A L L E R 7 • ARQ. CÉSAR ENRIQUE GÓMEZ DE LA TORRE SALAS, ARQ. JORGE JULIÁN CONTRERAS VÉLEZ, ARQ. MARIA DE LOS ANGELES SOMOCURCIO HOLGUIN 12
PLOT PLAN
T A L L E R 7 • ARQ. CÉSAR ENRIQUE GÓMEZ DE LA TORRE SALAS, ARQ. JORGE JULIÁN CONTRERAS VÉLEZ, ARQ. MARIA DE LOS ANGELES SOMOCURCIO HOLGUIN 13
T A L L E R 8 • ARQ. CARMEN SUAREZ, ARQ. HÉCTOR CHIANG 14
T A L L E R 8 • ARQ. CARMEN SUAREZ, ARQ. HÉCTOR CHIANG 15
T A L L E R 9 • ARQ. JULIAN CONTRERAS, ARQ. ELSA MONFORTE Programa detallado ÍNDICE DE OCUPACIÓN AFORO ÁREA PARCIAL ÁREA TOTAL ZONA DE COMENSALES BARRA COMEDOR SS.HH. MUJERES SS.HH. HOMBRES SS.HH. DISCAPACITADOS 0.75 m2 1.50 m2 1 m2 1 m2 2 m2 10 120 3L, 3I 1L,1I,1U 1L,1I,1U 7.50 m2 180.0m2 15.00 m2 202.5 m2 COCINA COCINA CALIENTE COCINA FRIA ZONA DE LAVADO ZONA DE PREPARADO 12 18.0 m2 17.0 m2 10.6 m2 11.2 m2 56.8m2 SERVICIOS COCINA ALMACÉN SECOS CUARTO DE MENAJE ALMACÉN FRÍOS CÁMARA CONGELADA VESTIDORES CUARTO DE BASURA OFICINA DEL CHEF ALMACÉN DE SILLAS Y MESAS 1 1 1 1 1 1 3 2 8.50 m2 3.80 m2 4.00 m2 3.00 m2 5.00 m2 4.00 m2 4.50 m2 20.00 m2 52.8 m2 ZONA EDUCATIVA TALLER DE COCINA SALA DE CAPACITACIONES SALA DE PRESENTACIONES 6 12 6 14.80 m2 12.00 m2 31.00 m2 45.8 m2 ECO - ZONE BIO HUERTO ÁREAS VERDES 1.50 m2 1.50 m2 15 5 22.50 m2 14.00 m2 36.5 m2 ÁREA LIBRE - - - 41.00 m2 %MUROS Y CIRCULACIÓN - 0.9 m - 10 m2 16

ELEVACIÓN ESTE

ELEVACIÓN OESTE

ELEVACIÓN NORTE

ELEVACIÓN SUR

ZONA DE SERVICIO COCINA PRINCIPAL COMEDOR ZONA EDUCATIVA ECO ZONE 11 m2 32 m2 16 m2
Espacio Servidor BAÑOS Espacio Servidor
T A L L E R 9 • ARQ. JULIAN CONTRERAS, ARQ. ELSA MONFORTE 17
Espacio interceptor

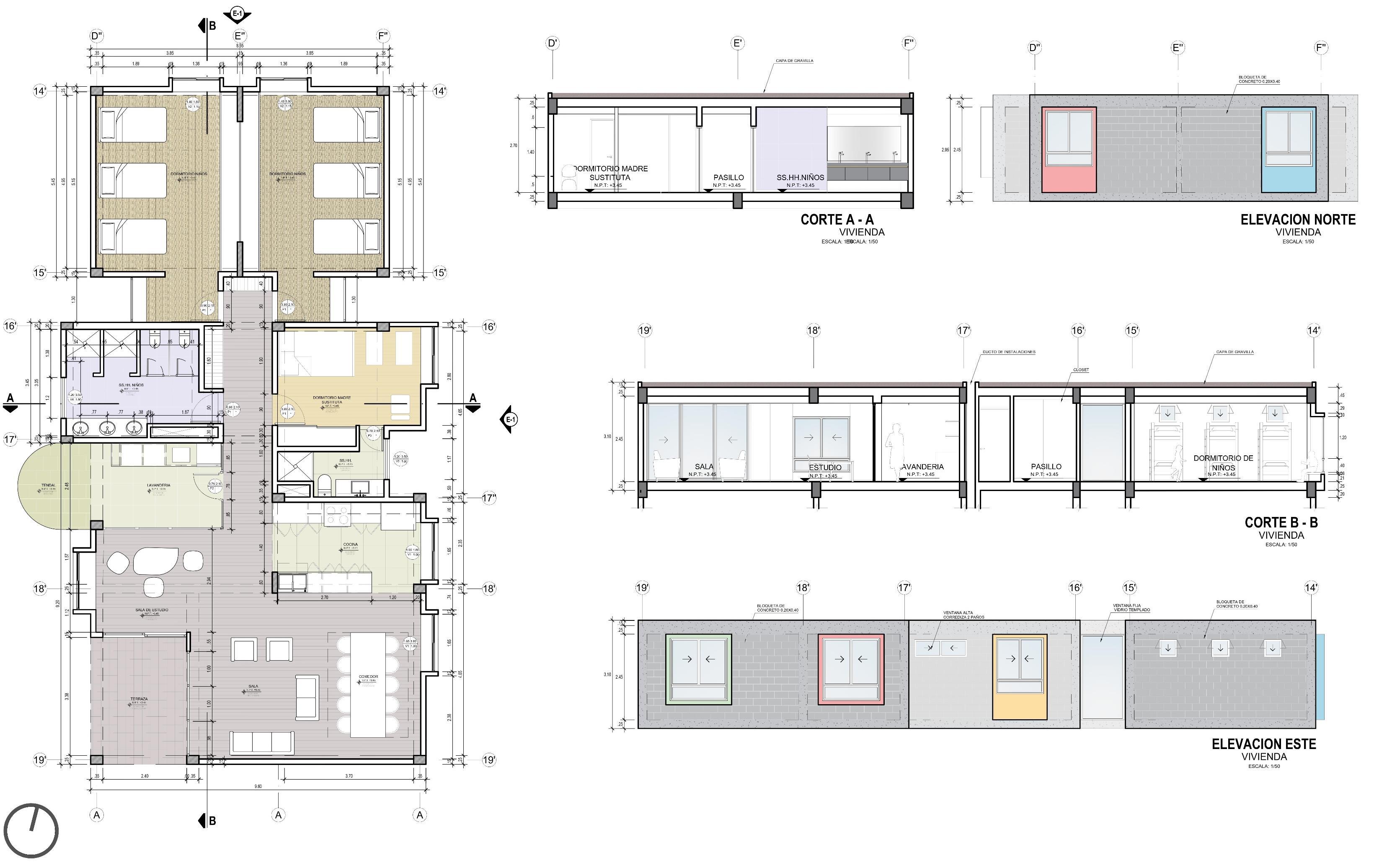
ALDEA INFANTIL

ENTIDAD PÚBLICA BAJO LA SUPERVISION DEL INABIF (MIMP)

ALBERGUE TIPO FAMILIAR PARA MENORES EN SITUACION DE ABANDONO, CON UN DISEÑO ARQUITECTÓNICO QUE COMPRENDE “HOGARESOMÓDULOS”, QUE ALOJAN ENTRE 8 A 10 RESIDENTES

A TRAVÉS DEL MODELO DE ATENCIÓN EN FAMILIAS, DONDE UNA PROFESIONAL DEL CUIDADO ACOGE A UN GRUPO DE NIÑAS, NIÑOS Y ADOLESCENTES, Y LES BRINDA UNA ATENCIÓN INDIVIDUALIZADA EN UN ENTORNO AFECTIVO Y PROTECTOR.

Espacio Servidor
T A L L E R 10 • ARQ PIER CHULLEN ARQ. DANIEL BRENIS ARQ.FELIPE LOYOLA 18
Espacio interceptor MODELO DE ALDEA
T A L L E R 10 • ARQ.PIER CHULLEN ARQ. DANIEL BRENIS ARQ.FELIPE LOYOLA 19
T A L L E R 10 • ARQ.PIER CHULLEN ARQ. DANIEL BRENIS ARQ.FELIPE LOYOLA 20 1
P O R T A F O L I O • A R Q U I T E C T U R A LIMA 2022

Turn static files into dynamic content formats.

Create a flipbook
Issuu converts static files into: digital portfolios, online yearbooks, online catalogs, digital photo albums and more. Sign up and create your flipbook.
Portafolio by Merlhy Córdova by Isabel Córdova - Issuu