Architecture Portfolio - MArch(NUS) Selected Works (2018-2020)

Page 1


Chan Yeung Chun

Architecture Portfolio

Selected works 2018-2020

National University of Singapore

MArch NUS

BAppS Arch Curtin

Growing up under Hong Kong’s multicultural and historical urban fabric, from the juxtaposition of historical monuments including the pre-war tenement buildings to the postwar Tong Lau, and the coexistence of public housing estates and Victorian style architecture, it privileges me with plenty of exposure to vernacular and contemporary architecture, and thus cultivating my strong interests towards architecture since I was young.

Academic Works

Revitalising Brownfields Self-Sufficient

Options

Situating Drones 2030: Medical Rescue Drones

Expanding to the Skies

Options

Revitalising Brownfields Self-Sufficient Transitional Housing by Bamboo Afforestation And Industry

Revitalising Brownfields:

Self-Sufficient Transitional Housing by Bamboo Afforestation & Industry

Site: Ping Shan, New Territories, Hong Kong

Thesis Supervisor: A/P Shinya Okuda

This thesis aims at revitalising the abandoned and underused brownfield clusters in New Territories into community and economic assets. Brownfields - missing pieces of a jigsaw puzzle – are revitalised by afforesting bamboo plantation and situating self-sufficient transitional housing complex to fill in the blank space of the urban fabric and to interconnect with the context through a physical platform and social integration. Its proximity to high-density urban fabric and low-density rural settlements potentially mutually benefits residents of transitional housing with comprehensive infrastructure, communal facilities and cultural diffusion.

A brownfield cluster in Ping Shan with a total area of 5.5 hectares at the intersection of Tin Shui Wai New Town, Hung Shu Kiu NDA and some traditional villages, is selected as a prospective model of future brownfields revitalisation. An atypical design strategy of linear layout of clustering residential modules connect the fragmented brownfields as a whole. The linearvillage casts the footprint of continuous communal deck for social gathering, and podium of industrial workshops for manufacturing engineered bamboo poles and laminated bamboo lumber for locally self-reliant construction materials of the transitional housing. Also, Emergence of recreational open space with the existing heritage trail and markets in the plantation cultivates a good quality of living style and provide a healthy well-being for the inhabitants.

Accommodating the vulnerable in the proposed transitional housing complex saves them from darkness and hopelessness and promotes a self-reliant livelihood, healthy well-being and socially inclusive community, in order to cultivate their sense of security, belonging and coherence. Before being allocated to the public rental housing, the transitional housing complex on brownfields becomes their home, where they inhabit in, they contribute to.

Let’s revitalise the brownfields! village casts the footprint of continuous communal deck for social gathering, and podium of industrial workshops for manufacturing engineered bamboo poles and laminated bamboo lumber for locally self-reliant construction materials od the transitional housing. Also, Emergence of recreational open space with the existing heritage trail and markets in the plantation cultivates a good quality of living style and provide a healthy well-being for the inhabitants.

Accommodating the vulnerable in the proposed transitional housing complex saves them from darkness and hopelessness and promotes a self-reliant livelihood, healthy well-being and socially inclusive community, in order to cultivate their sense of security, belonging and coherence. Before being allocated to the public rental housing, the transitional housing complex on brownfields becomes their home, where they inhabit in, they contribute to. Let’s revitalise the brownfields!

Main Entrance of the Transitional Housing Complex
Next to Tin Shui Wai MTR Station and Tsui Sing Lau Pagoda (Starting Point of Heritage Trail)

Made in Hong Kong

Grow here, Manufacture here

Manufacturing workshops is located in the middle of the site, facilitated with a curvilinear canal passes through the edge of the plantation which functions as a natural conveyance medium and temporary storage. Manufacturing workshop comprises engineered bamboo poles and laminated bamboo lumber production lines, where produces structural materials from engineered bamboo for the construction of transitional housing.

Manufacturing Workshops for Engineered Bamboo Poles and Laminated Bamboo Lumber
Conveyance of Raw Bamboo Materials on Canal Sheung Cheung Wai Entrance Gate(Left) and Outdoor Manufacturing Workshop (Right)

Low-Rise Block

Village-type Block A

Open Staircase

Low-Rise Block

Village-type Block B

Semi-enclosed Staircase Shaft

Aggregation of Units
Traditional Village Layout
Clustering and Elevating
Potential Green Space Below Light Void

Medium-Rise Block With Typical Lobby

Medium-Rise Block With Communal Lobby

200mmW x 200mmH

Engineered Bamboo Beam

Metal Strap

80mm Vertical LBL

Pressed Metal Angle

12.5mm Plywood Sheathing

12.5mm Acoustic Mat

60 mm Cast-in-place

Concrete Topping Slab

5mm Foam Pad

25mm Strand Woven Bamboo Floor Tile

Composite Shear Connector

Engineered Bamboo Column

Column Steel Connector

Concealed Beam Hanger

Laminated Bamboo Lumber Wall

Interior Finish

Insulation

Exterior Finish

Laminated Bamboo Window Frame

w/. Single Glazed Panel

Engineered Bamboo Poles

Steel Mero System Connector

V-Support Steel Connector

Steel Edge Trim

Weatherproof Bamboo Decking

Balustrade

Sprinkler

Floor: Strand Woven Bamboo
Ceiling: Vertical LBL

A. Floor to Wall Interface on Typical Floor Scale 1:25

B. Floor to Wall Interface Between Typical Floor and Communal Deck Scale 1:25

D. Engineered Bamboo Poles Balcony Fixing Details on Typical Floor Scale 1:25

C. Column to Concrete Slab Interface on Communal Deck

Scale 1:25

E. Column-Slab-Beam Interface Scale 1:10

Section of Typical Mid-Rise Residential Block Scale 1:400

A Residential Module at High Level

Facing to another block with adequate building separation

Two Residential Modules Connected by a Continuous Verandah Space Facing to Tin Shui Wai New Town
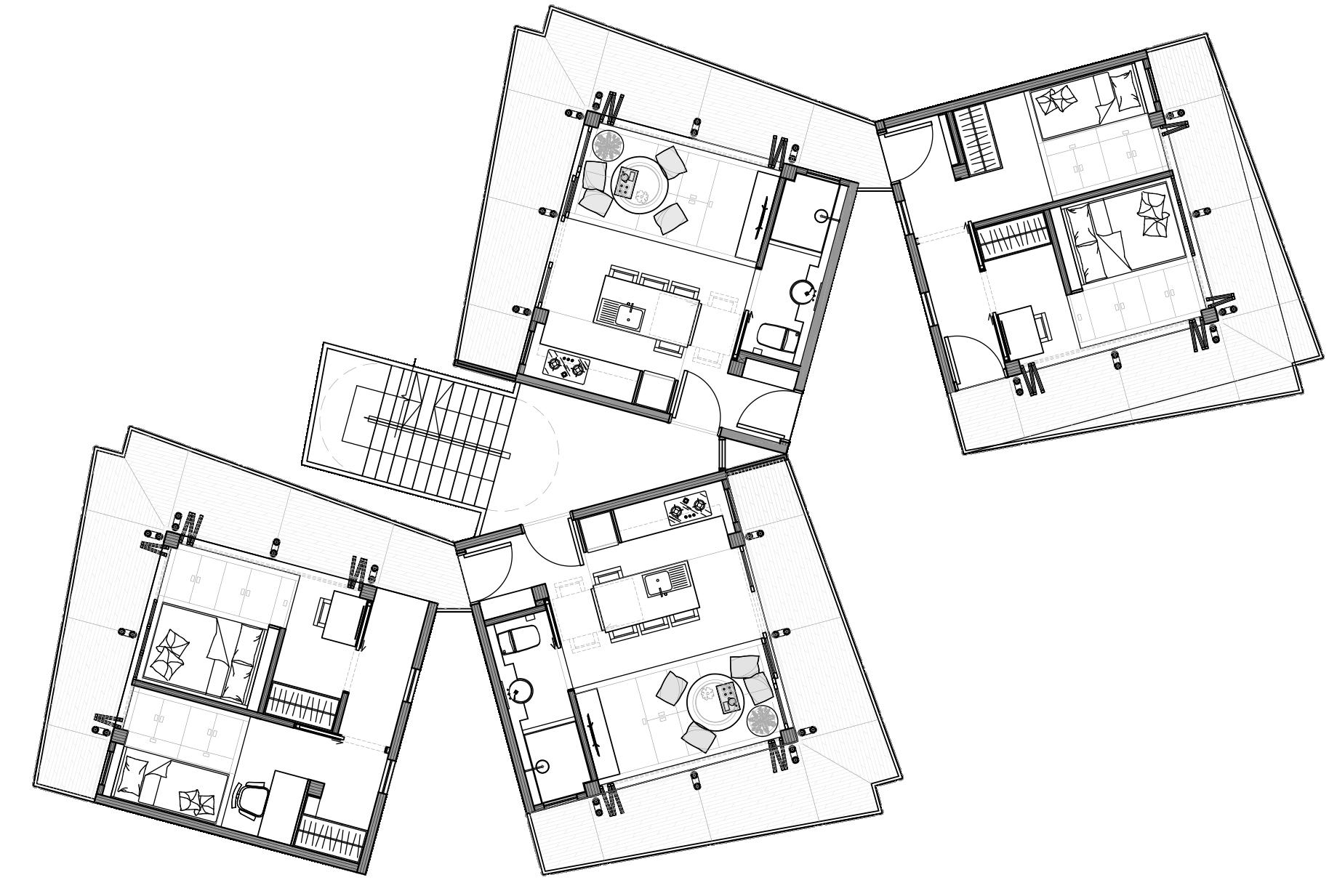
Module 1: Studio Flat
Module 2: Living, Dining and Kitchen
Verandah Bath. Kit. Bed.
Liv.
Verandah Kit.
Din.
Liv.
Module 3: Living, Dining, Kitchen and Bathroom
Module 4: Dining, Kitchen and Bathroom Bath. Bath. Kit. Kit.
Din.
Din. Liv.
Verandah
Verandah

Verandah

Verandah

Module 5: Living Room

Module 7: Master Bedroom and Bedroom

Verandah

Verandah

Module 8: 2 Bedrooms

Module 6: Master Bedroom with Bathroom
M. Bed. Bath.
M. Bed. Bed. Bed. Bed.

Verandah

Module 9: 2 Bedroom(s) and Bathroom

Verandah

Module 10: Children Bedroom

Bed.
Children Bed. Bed. Bath.

Sectional Isometric C Carpark,Communal Deck & Medium-rise Transitional Housing

Verandah Facades
Sectional Isometric
Vibrant Atmosphere at the Lift Waiting Area of Transitional Housing Block on Communal Deck
Communal Lobby on Typical Floor in Medium-rise Residential Block
The Deck Market on the Communal Deck Providing the Residents with Essential Needs
The Heritage Market by the Bamboo Plantation Selling Traditional Artifacts and Food by the Villagers
Tin Shui Wai MTR Station Tsui Sing Lau Pagoda
Tin Shui Wai New Town
Carpark B
Loading Dock B Block 3
Sheung Cheung Wai (Heritage)
Block 5 Manufacturing Space(Semi-enclosed) Canal
Block 7
The Revival Collage 1
The Habitat
Collage 2
The Authenticity Collage 3

The

Livelihood Collage 4

WaterPalace Aqua-Quarium

Water Palace: Aqua-Quarium

Site: Ketam Quarry, Pulau Ubin, Singapore

Project Supervisor: Prof. Christine Hawley

(Visiting Professor, Emeritus Professor of the Bartlett School of Architecture of UCL)

Aqua-quarium is a complex of recreational pools, teahouse, biking trails, sensory trails and water quality science hub in southern part of Ketam Quarry in a remote rustic island in Singapore, Pulau Ubin. Nymphaea and various type of native freshwater fishes are introduced to Ketam Quarry, to enrich the biodiversity and enhance the natural habitats around the quarry.

In the recreational pool complex, it dose not only allow you swimming and enjoying the northern panoramic granite cliff view in the elevated infinity main pool, having good family time and chitchatting with friends in elevated shaded forest pools, but also allows you swimming with waterlilies at the same horizon, in the floating pool in the middle of the quarry. The perspective of watching waterlilies extends from the top to the bottom. The sensory walk goes down below the water level and let you observe and explore the aquatic life below the waterlily pads. On the other side of the walk is an imposing granite cliff, which amazes you by its stunning exposed stratigraphy of Bukit Timah granite geology. Water sports like kayaking and fishing around the quarry let visitors get closer to the water surface and feel the tranquillity of the scenic Ketam Quarry.

Water is soft but it is powerful. Aqua-quarium aims to celebrate the restoration of nature and strike a balance between wild habitat and human-being enjoyment in the natural environment.

Quarry
Ketam Quarry
Master Planning of Ketam Quarry
Locker Cabinet Zone
Reflection Box
Sunken Planter
Floating
Teahouse
Teahouse -
Teahouse
Section of Ketam Quarry
Exit of Underwater Trail
Granite Cliff & Waterlily Walk
Water Quality Science Hub
Kayak Quay
View From the South
View From the Northeast
Waterlilies View from the Mirror Box

Mystery: Veil of the Lily Pond

Water lilies as seen from underwater are very poetic. Its strong thermogenic behavior can generate heat and raise their temperature above that of the surrounding air, which helps pollination by attracting dragonflies. Water lily pads provide the fish and wildlife with a stable and sheltered habitat.

Impressionism: Swimming with Lilies

The calmness and harmonious colour of the water lilies scene purify our soul, which is also introduced by Claude Monet’s Water Lilies Pond oil painting. Doris Stickney’s Water Bugs and Dragonflies also teach us the inevitability and irreversibility of natural process.

Aquaponics: Hide and Seek

Voyage: Aqua

Voyage: Sub-Aqua

Water Quality and Biochemistry Laboratory is established as a science hub with a team of biochemical specialists, conduct water quality test and control regularly to ensure a habitable environment for aquatic life.

Mangrove kayaking along the mysterious mangrove corridor is an alternative way to reach Ketam Quarry besides walking and biking.
Aquaponics is a combination of conventional aquaculture with hydroponics. Its closed-loop system allows cultivate fish farming while growing crops, such as lettuce, tomatoes, watercress, etc.

Situating Drones 2030 Medical Rescue DronesExpanding to the Skies

Situating Drones 2030: Medical Recue Drone

Expanding to the Skies (Drone Port at Paya Lebar Fire Station)

Singapore

Thesis Supervisor: A/P Cheah Kok Ming

Integrating into existing infrastructure lies at the heart of this project. In an increasingly land scarce Singapore, we felt the need to reimagine our Civil Service centres to do more; more activities, new technologies, more EMS capabilities. Paya lebar fire station thus becomes our site for this reimagination of the future - a drone port. While the primary duty of the drone port is for the deployment of drones for emergency responses, we have invited secondary

supportive programs into its infrastructure. In the images you will come to observe, a vertical vocational obstacle course, training school, maintenance centre and crucial command and operation functions. These efforts are an attempt to create a not only a conducive working environment, but also as an environment for holistic learning and growing; one where we can train, visualise and mould leaders for the future of drone operation.

Situating Landing Pad Ops Space Giving Back Carpark Training & Admin Boxes Language
Site: Paya Lebar,

Turn static files into dynamic content formats.

Create a flipbook
Issuu converts static files into: digital portfolios, online yearbooks, online catalogs, digital photo albums and more. Sign up and create your flipbook.
Architecture Portfolio - MArch(NUS) Selected Works (2018-2020) by Isaac Chan - Issuu