Analysis And Design Of G+7 Story Building Using E-tabs Software

Page 1

1

International Research Journal of Engineering and Technology (IRJET) e ISSN: 2395 0056

Volume: 09 Issue: 06 | Jun 2022 www.irjet.net p ISSN: 2395 0072

Analysis And Design Of G+7 Story Building Using E-tabs Software

2

2

Abstract One of the most extensively used seismic safety techniques for buildings inearthquake pronelocationsisbase isolation. The bottom isolation system moves the structure principally in relation to the top structure while separating it from its base. By installing base isolated devices at the inspiration level and using the ETABS 2018v software to match the various concerts between the fixed base condition and base isolated condition, the goal of this study is to reduce the bottom shear, story acceleration, story drift, and column and beam forces caused by earthquake ground excitation applied to the superstructure of the building. The G+6 symmetrical RCC building is used as the test model in this study. As the basic isolation structure for this investigation, lead rubber bearing, and high damping rubber bearing are used. On both permanent and base isolated structures, nonlinear time historyanalysis is used. There are twoparts to comparative research. Fixed and base isolated structures are compared, as are performance studies usingtwo distinct time histories, such as El Centro and Bhuj. The two time histories analysis between fixed and base isolated conditions is used to compare base shear, displacement, acceleration, narrative drift, column and beam forces, and more. It has been discovered that base separated buildings enhance displacement. Columnandbeamforces, baseshear,storydrift, and acceleration are all lower in base separated buildings than in fixed base structures.

Key Words: TimeHistoryAnalysis,G+7StoreyBuilding,E tabs,Modeling.

1. INTRODUCTION

When an earthquake strikes, it significantly damages property, especially buildings that were built by humans. Significantprogresshasbeenmadeinthelast20yearsinthe fieldofstructuralseismicprotection.Butduringthepastfew years,theductilitydesignideahasbeenfullyembracedin thedevelopmentofearthquake resistantbuildingdesigns.It hasbeendemonstratedthattheperformancesofductility design structures during significant earthquakes are inadequate.Themostwidelyusedandapprovedearthquake protectionmethodtodayisisolation.

Sincearubberisolationsystemwasusedatagradeschoolin Skopje, Yugoslavia to safeguard the building from earthquakes,theideaofisolationhasbecomecommonplace. Currently, multilayer isolation bearings produced by vulcanizingrubbersheetstothinsteelreinforcedplatesare

***

in use. These bearing systems are extremely rigid in the verticaldirection,carryingthestructure'sverticalload,and extremelyflexibleinthehorizontal direction,allowingfor lateral maneuverability even in the presence of severe groundmotion.

Theearthquakesareunavoidableandhappen.Inthatregard, we must acknowledge the demand and ensure that the capacityoutpacesit.

Building strength and capacity must be improved to counteract inertia forces brought on by the earthquake in ordertopreventstructuraldamage.Highseismiczonescan experienceaccelerationsthataremorethanoneoreventwo timesgreaterthantheaccelerationcausedbygravity.Itis simpletounderstandthestrengthrequiredtowithstandthe magnitudeoftheload,whichimpliesthatthebuildingcould withstand gravity applied sideways and be supported horizontallywithoutsufferingdamage.

2. OBJECTIVE

ETABSsoftwareisusedtomodelandanalyzefixed base structures before researching the impact of earthquakegroundmotions.

Tocreateandresearchthedesignofa multi story structure.

UsingETAB2018Detailer,designreinforcementfor columns and beams together with slab and foundationdetails.

Gainingknowledge ofload determinationusing IS standards.

Tosupportastructureforalongerlife,useseismic loadingandresearchtimehistoryanalysis.

Attemptingtofindacarrierintherealestatedesign platform.

3. METHODOLOGY

ETABS 2018 software is used to model the fixed base building.BuildingwithG+7floorsandafixedbaseistermed RCC.ElCentro,Bhuj,andNagpurareadataareusedforthe designandanalysisofbuilding

©
Journal | Page2829
2022, IRJET | Impact Factor value: 7.529 | ISO 9001:2008 Certified
Shaikh Abbas sadeq1 , Mr. Jahesh Sharma PG Student M Tech Structural Engineering, G.H Raisoni Institute of Engineering & Technology, Nagpur, India. Assistant Professor, G. H. Raisoni Institute of Engineering & Technology, Nagpur, India

International Research Journal of Engineering and Technology (IRJET) e ISSN: 2395 0056

Volume: 09 Issue: 06 | Jun 2022 www.irjet.net p ISSN: 2395 0072

Fig.1 Plan

4. ANALYSIS REULTS

4.1

Shear force results

Model has undergone analysis in accordance with the loading circumstances, and in that regard, it offers the findingsofshearforceandbendingmoments.

Fig.3 ShearForceResult

©
Journal | Page2830
2022, IRJET | Impact Factor value: 7.529 | ISO 9001:2008 Certified
Fig.2 3DPlan 3.1 Building Details Numberofstories = G+7 Foundationleveltogroundlevel = 3m Floortofloorheigh = 3 Wallthickness = 300mm Liveloadonallfloors = 4kN/m2 Floorfinish = 1kN/m2 Waterproofing = 2kN/m2 Self weight = SoftCalculated Materials = M30andFe415 Sizeofcolumn = 300X500mm Sizeofbeam = 300x600mm Depthofslab = 120mm Seismiczone = 2

International Research Journal of Engineering and Technology (IRJET) e ISSN: 2395 0056

Volume: 09 Issue: 06 | Jun 2022 www.irjet.net p ISSN: 2395 0072

Fig.4 BendingMomentResult

With the use of the ETAB 2018 Software, shear force and bendingmomentsareidentified,andithelpstopinpointthe failureutilizingETABduringdesignwhenitdoesnotreflect thereinforcement.

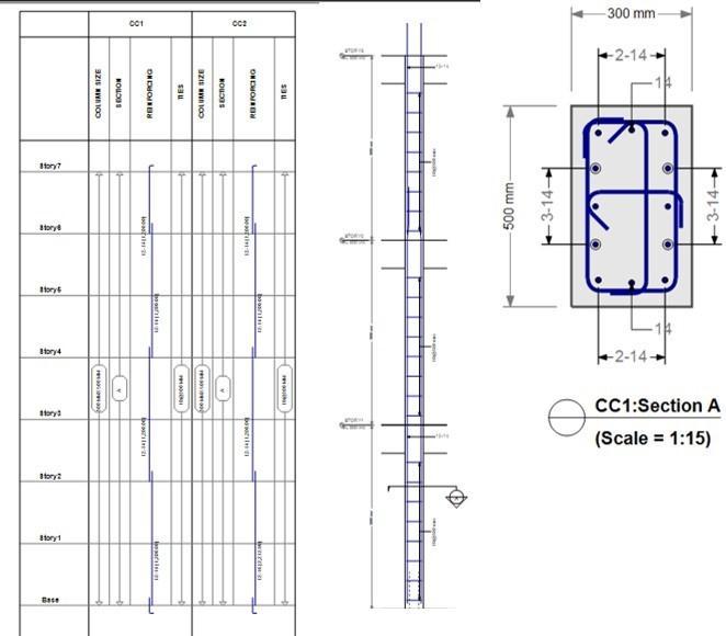
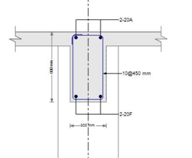
4.2 Design Output

The design technique may be carried out and the design reinforcement as shown below provided based on the findingsoftheshearforceandbendingmoments.

Fig.5 BeamDesign

Fig.6 ColumnDesign

4.3 Time History Analysis

A multistory RC structure is subjected to a seismic non lineartimehistoryanalysisfortheLanders,Kobe,andChi Chiearthquakes.Thefollowingfindingsmaybetakenfrom thecurrentinvestigation.

For the structure, the seismic responses known as base shearandstorydisplacementsinbothdirections(x,y)are discovered.

Theuseofseismicprocedureslikefoundationisolationand seismicdampersismadepossiblebytimehistoryanalysis, which provides building acceleration and drift based on historicalearthquakedata.Thisstudywillassistdesigners createandexecuteseismicreprofiling’sorbaseisolationsfor thesustainabilityofthebuildingbyidentifyingthebehavior intermsofbuildingaccelerationanddriftthatwouldresult fromanearthquake.

We added the magnitude of the Latur earthquake to the Degnmodelandobtainedthefollowingfindingsintermsof accelerationintheXdirection.Thisvaluemustmatch90% oftheEQX+loadinordertobeconsideredsafe.

©
Journal | Page2831
2022, IRJET | Impact Factor value: 7.529 | ISO 9001:2008 Certified

International Research Journal of Engineering and Technology (IRJET) e ISSN: 2395 0056

Volume: 09 Issue: 06 | Jun 2022 www.irjet.net p ISSN: 2395 0072

5. CONCLUSION

Multi modelanalysistoolsforearthquakesareprovidedby ETABsoftware.

ETAB assists with model design and in producing reinforcementdetailsinaccordancewithStandards.

Forabetterknowledgeofbuildingdesign,thetimehistory analysistoolhelpstopresentthebuildingaccelerationand buildingdrift.

UsingtheETABprogramme,welearntaboutbuildingdesign, whichhelpeduslandajobintherealestateindustry.

REFERENCES

Fig.7 BaseReaction

WeincludedthemagnitudeoftheLaturearthquakeinthe designmodel,andasaconsequenceofthedatabelow,we discovered that the drift reflected the drift in terms of E, whichistoolittle,makingitSAFE.

[1] Ashish R. Akhare and Tejas R.Wankhade(2014), “Seismic Performance of RC Structure Using DifferentBaseIsolator”.

[2] Sarvesh K Jain and Shashi K Thakkar, “Seismic Response of Building Base Isolated With Filled Rubber Bearings under Earthquakes of Different Characteristics”.

[3] Fahad Bin Khurshid(2016), “Comparison in SeismicBehaviorbetweenBaseIsolatedBuilding andConventionalBuildingbyAnalyticalMethod”

[4] SarangM.DhawadeandShrikantM.Harle(2014), “Seismic Performance of Base Isolated & Fixed BasedRCFrameStructureusingETABS”.

Figur e 6. 2 5

Story acceleration

Fig.8 StoryDrift

Wecandeterminetheaccelerationwillbeimpactedbythe earthquake load with regard to Time in Sec as indicated belowbasedontheresults.

[5] SwathiraniK.S,MuralidharaG.BandSantoshkumar N.B(2015),“EarthquakeResponseofReinforced ConcreteMultiStoryBuildingwithBaseIsolation”.

[6] M. Rajesh Reddy, Dr N. Srujana and N. Lingeshwaran(2017),“EffectofBaseIsolationin Multi storiedReinforcedConcreteBuilding”.

[7] T.NagajyothiandDrVaishaliG.Ghorpade(2015), “DesignofLeadRubberBearingSystemandHigh Damping Rubber Bearing System for Isolated StructureforLongTimePeriodsfora FiveStory RCBuilding”.

[8] AnushaRReddyandDrVRamesh(2015),“Seismic Analysis of Base Isolated Building in RC Framed Structures”.

Fig.9: Timehistoryanalysisresults

[9] Shirule P. A, Jagtap L.P, Sonawane K.R, Patil T.D, Jadwanir Nand Sonar S.K(2012), “Time History AnalysisofBaseIsolatedMulti StoriedBuilding”.

Page2832
© 2022, IRJET | Impact Factor value: 7.529 | ISO 9001:2008 Certified Journal |

International Research Journal of Engineering and Technology (IRJET) e ISSN: 2395 0056 Volume: 09 Issue: 06 | Jun 2022 www.irjet.net p ISSN: 2395 0072

[10] GomaseO.PandBakreS.V(2011),“Performanceof Non Linear Elastomeric Base Isolated Building Structure”.

[11] Sonali Anilduke and Amay Khedikar(2015), “ComparisonofBuildingforSeismicResponseby usingBaseIsolation”.

[12] Dia Eddin Nassani and Mustafa Wassef Abdulmajeed (2015), “Seismic Base Isolation in ReinforcedConcreteStructures”.

[13] K S Sable, J S Khose and V P Kulkarni (2012), “Comparison of Different Bearing Types PerformanceinMulti storiedBuilding”.

[14] Ms. Minal Ashok Somwanshi and Mrs. Rina N. Pantawane(2015),“SeismicAnalysisofFixedBase andBaseIsolatedBuildingStructures”.

2022, IRJET | Impact Factor value: 7.529 | ISO 9001:2008 Certified Journal

Page2833
©
|

Turn static files into dynamic content formats.

Create a flipbook
Analysis And Design Of G+7 Story Building Using E-tabs Software by IRJET Journal - Issuu