Skip to main content

“PLANNING AND SCHEDULING OF MULTI STOREY BUILDING USING BIM”

Page 1

International Research Journal of Engineering and Technology (IRJET) e ISSN: 2395 0056

“PLANNING AND SCHEDULING OF MULTI STOREY BUILDING USING

BIM”

Prof. Mrs. N. S. Pote 1 , Mr. Shivaji Yele 2 , Mr. Aditya Vairagkar 3 , Mr. Vishal Yadav 4 , Mr. Sidhhant Jagtap 5, Mr. Apurv Vairagkar 6

1Professor, Dept. of Civil Engineering, JSPMs Rajarshi Shahu College of Engineering, Pune, Maharashtra. 2,3,4,5Student, Dept. of Civil Engineering, JSPMs Rajarshi Shahu College of Engineering, Pune, Maharashtra, India. ***

ABSTRACT

The following project deals with the planning, modelling, quantity estimation and scheduling of a multi storey residential building using advance civil engineering applicationas BIM whichincludessoftwarelikeAutoCAD, Autodesk REVIT, Primavera and Microsoft Excel Spreadsheets. Project starts with planning of the building usingAutoCAD,themodellingandquantityestimationwill becarriedoutwiththehelpofAutodeskREVITandfinally theschedulingwillbedonebyusingPrimavera

Key Words: Planning, Modelling, Scheduling, BIM, Primavera.

1. INTRODUCTION

The different phases of the project life cycle include planning, design, construction, maintenance and decommissioning. The construction phase can be divided intopreandpostconstructionstages.Thepreconstruction stage includes resolving constructability problems, space conflictproblemsandsiteutilisation.Duringconstruction, post construction and maintenance still 2D drawings are most widely used. Thus, the uses of 3D model developed throughBIMduringdifferentearlystagesofthelifecycleis notinuseafterthepreconstructionstage.

1.1 BUILDING INFORMATION MODELLING

BIMisaprocesswhichprovidesaframeworktodevelopdata rich product models and facilitates the realization of integratedbenefits.Inthisprocessthereal worldelementsof a facility such as walls, doors, windows and beams are represented as objects in three dimensional digital model. Thus, the model serves as a gateway to provide any time accesstoinsert,extract,updateormodifydigitaldatabyall theprojectparticipantsinvolvedinfacilitylifecycle.

1.2 PRIMAVERA

PrimaveraAsof2008PrimaveraSystemssupportedlong establishedproducts P3andSure Trak andthenewerP6 version.Thelong standingP3productinitsvariousforms was used by 25% of the heavy construction industry, its predominantcustomerbase;thenextmostpopularsoftware

wasusedby11%.Nearly40%ofgeneralcontractorswithan annualrevenueof5Mdollarto10MdollarusedPrimavera P3.Incomparison,theP6versiondidnotregisterinaCFMA 2008surveyoftheUnitedStatesconstructionindustry.The P3 version to P6 version change is based in a move from DOS type shortcut keys to mouse based icons. Thus, a software application that was once very fast to use but grounded in shortcut functions (which some users found difficulttomaster)movedtoamouse basedapplicationthat is quicker to learn, but once mastered never achieves the samespeedofuse

1.3 PLANNING AND CONTROLLING

Project management follows the same methodology and purpose to achieve each project goals, you need to plan theminadvance.Goodprojectmanagementisnolongeran optionintoday’scorporateworld.Itisacriticaltooltohelp your company stay on target and accomplish its goals. Simply stated, project management is the process of achieving set goals within the constraints of time, budget, andstaffingrestrictions.Itallowsyoutogetthemostoutof youravailableresources.Resourcesinclude

Project portfolio management factorsin all of these variables across multiple projects, enabling project managersandcompanyexecutivestoseeanaccuratepicture ofhoweachprojectsresourceuseaffectsotherprojects.The process of project management is guided by three key principles:

Volume: 09 Issue: 05 | May 2022 www.irjet.net p ISSN: 2395 0072 © 2022, IRJET | Impact Factor value: 7.529 | ISO 9001:2008 Certified Journal

Page3014
|
❖ Manpower ❖ Material ❖ Money ❖ Machinery ❖ Information ❖ Facilities ❖ Role
❖ Planning ❖
❖ Managing
Controlling

International Research Journal of Engineering and Technology (IRJET) e ISSN: 2395 0056

Volume: 09 Issue: 05 | May 2022 www.irjet.net p ISSN: 2395 0072

Site Details :

PlotArea:1517sq.m

Builtuparea:1292sq.m

PermissibleF.S.I:3meachside.

Fig 1.3.1 PlanningusingBuildingBye Laws

2. SCOPE OF WORK

• Thescopeofthestudyistoexploreandevaluatethe advantages of integration which will enables the easeofproject.

• It is viable career option as implementation of softwareisdoneforbetterdevelopment.

• BIM digitalizes the life of building which gives solutiontoeveryphaseofstructure.

• BIM increases productivity, infrastructure value andquality.

• Reductionofcostandtime.

3. METHODOLOGY

Table-1 DescriptionofFloors

3.2 Creating 2D Floor Plan

3.2.1 Ground floor plan

Fig 3.1 Methodologyoutline

3.1 Project Details :

Nameofproject:ProposedBuilding

StructureDetails:G+7 FloorBuilding.

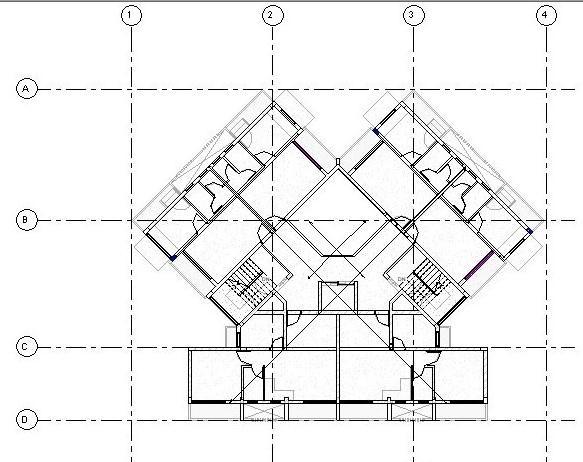
Fig no.3.2.1 Groundfloorplan

•Groundfloorconsistoffourflatswithhall,kitchenandWC alongwithapassageforeasygoandalsoanareawhichis opentosky.

• In order to avoid unnecessary chaos and disturbance enoughentrancespaceandpassageisprovided.

• Server and Maintenance is provided for systematic monitoringofelectricityandcomputerservers

©
| Page3015
2022, IRJET | Impact Factor value: 7.529 | ISO 9001:2008 Certified Journal

International Research Journal of Engineering and Technology (IRJET) e ISSN: 2395 0056

Volume: 09 Issue: 05 | May 2022 www.irjet.net p ISSN: 2395 0072

3.2.2 First Floor Plan

Fig no. 3.2.2 1st floorplan

•1stfloorplanisaflooroftotal6flatsinwhichtwoflatswith bedroom,kitchen,childbedroom,WCandbalcony.

•Remainingfourflatswithhall,kitchen,WCandbalcony.

• Passage in front of two flats each is about 1.5m and provided passage in front of an elevator is 2m for easy movement

• Open well staircase is provided throughout the building withElevatorsonoppositesides

3.3 Modelling

3.3.1 Modelling of Ground floor:

Fig no.3.3.1

Groundfloormodelplan

•Groundfloorconsistoffourflatswithhall,kitchenandWC alongwithapassageforeasygo.

•Anareaisprovidedwhichisopentosky.

•Elevatorisprovidedatthecenterforcomfort.

3.3.2 Modelling of First floor:

ThisfloorIbeingmodelledasperthecomfortofthepeople residingthere.Floorfrom2nd arereplicaof1stfloor.

Fig no.3.3.2 1st FloorModelPlan

•1stfloorplanisaflooroftotal6flatsinwhichtwoflatswith bedroom,kitchen,childbedroom,WCandbalcony.

•Remainingfourflatswithhall,kitchen,WCandbalcony.

• Book shelves and study table is provided in the child bedroom.

Fig no.3.3.3 3DView

3.4 Creating a WBS and Primavera P6 R8.3 Schedule

. Activities are identified from the Autodesk Revit Architecture2017viewandaccordinglyWorkBreakdown Structure (WBS) is prepared to make a Construction schedule.

©
Journal | Page3016
2022, IRJET | Impact Factor value: 7.529 | ISO 9001:2008 Certified

International Research Journal of Engineering and Technology (IRJET) e ISSN: 2395 0056

Volume: 09 Issue: 05 | May 2022 www.irjet.net p ISSN: 2395 0072

Fig no.3.4.1 WBSStructure

Fig no.3.4.4 WBSStructure 3.5 Primavera Scheduling Activities

Fig no.3.4.2 WBSStructure

Fig no.3.5.1 SchedulingActivities

Fig no.3.4.3 WBSStructure

©
| Page3017
2022, IRJET | Impact Factor value: 7.529 | ISO 9001:2008 Certified Journal

International Research Journal of Engineering and Technology (IRJET) e ISSN: 2395 0056

Volume: 09 Issue: 05 | May 2022 www.irjet.net p ISSN: 2395 0072

4. Result & Discussion

Inthisprojectwehavesuccessfullyplannedandscheduleda multistoreybuildingwiththehelpofBuildingInformation Modelling. The project which started from 1st of January 2019anditsestimatedscheduledtimeofcompletionis31st December2020whichisof12months.Theprojecthasbeen plannedandscheduledasperconventionalmethod.Inthis project we have generated logic report of our project. It shows some of the reports generated in Primavera P6 includingthestartandfinishdatesofactivities.

5. ADVANTAGES

• ImproveOnsiteCollaborationandCommunication.

• VisualizeProjectsinPreconstruction.

• ImprovedScheduling/Sequencing.

• facilitatesvisibilityofpotentialproblemareasand allowserrorstobecorrected

• Keeping real time check of not only time but also allottedbudget.

6. Literature Review

Fig no.3.5.2 SchedulingActivities

6.1.1 Performative Computation aided Design Optimization By Ajla Aksamija (2011)

Parametricdesignofferssomeadvantagesovertraditional modellingmethods,sinceitallowsadaptationofanobjectby rules and constraints or " Parameters " to influence the object'sproperties.

6.1.2 Building Information Modeling ImplementationCurrent and Desired Status by Pavan Meadati, Amin Akhnoukh (2011)

The paper presents the techniques to produce the 3D as built model and steps to associate facility maintenance information to it. BIM provides the means to facilitate an integratedandcoherentinformationmanagementstrategy. BIMeliminatesfragmentationandprovidesseamlessflowof facility information among the planning/design, construction,andoperationandmaintenancephases.

6.1.3

The project

benefits of Building

Information

Modelling (BIM) By David Bryde , Marti Broquetas, Jürgen Marc Volm (2013)

Fig no.3.5.3 SchedulingActivities

TheauthorsdescribedthebenefitsofBuildingInformation Modellingasseniormanagersinconstructioncompanieswill need to invest in BIM education and training of staff. Practitioners also need to see the potential of BIM in the wider context. A set of project success criteria were generated and content analysis was used to establish the extenttowhicheachindividualprojectmetacriterion.

© 2022, IRJET | Impact Factor value: 7.529 | ISO 9001:2008 Certified Journal | Page3018

International Research Journal of Engineering and Technology (IRJET) e ISSN: 2395 0056

Volume: 09 Issue: 05 | May 2022 www.irjet.net p ISSN: 2395 0072

6.1.4 Modelling and Project Planning of a Residential Building by Implementing 5DBIM Technique by M.Subhi , R.N.Uma (2017)

Basedonauthorsdescription,theydescribedthatBIMisa perfectvisualizationtooltomonitorprogress.Allthestepsof constructioncouldbemodifiedandmanagedatanypointof timeby simplyclicking on the elementand activity.Using thistechnology,timecostandlabourbecomessmoothand feasible.In ordertoreduce thecost, time, rework 5D BIM techniquescanbeusedintheirproject.

4.ThescheduleinBIMallowseasierunderstandingofthe projectaswellashelpstodetectpossibleproblemsinit.

REFERENCES

1.M.Subhi,R.N.Uma“ModellingandProjectPlanningOfa Residential Building by Implementing 5D BIM Technique” International Journal of Engineering & Technology , vol. Issue11,November2017.

6.1.5 A Comparative

Study

on Various Stages of Level of Details in Advanced 3D Building Construction Using BIM Tools By Venkumahanti Tejaswini , Rajiv Kumar , P. Kesava Rao , G. Ravishankar (2020)

TheauthordescribestheBIM’ssixtechnicalcharacteristics pointed out the essence of BIM technology describes the development tools and implementation feasibility of technical route of other technology integration and developmenttoshowconsistencyofBIMlifecyclestrategies andmethods.

7. Scope of Future Work

• Current model can be further enhanced by adding Mechanical,ElectricalandPlumbingfeatures

•TheQuantityEstimationandCosting(5D)canalsobedone inAutodeskNavisworks.

•The3Dmodelwaslinkedwithtimeas4thdimensionsoas to create 4D modelling projects, the same can be further workedonotherdimensionlikecost,resources,materials andlabors.Thus,makinga5Dmodel

• The project Tracking and Updating can also be done in PrimaveraP6

•ResourceAllocationcanbedonetooptimizetheresources toachieveaqualityproductforeconomicconstruction.

8. CONCLUSIONS

1. Application of BIM with the currently used tools like PrimaveraP6R8.3helpsinlinkingoftheactivitieswiththe correspondingelementsofaThree Dimensional(3D)Model.

2.Theproposedmethodologyutilizesthedynamiclinkage betweentheactivitiesinthescheduleandcorresponding3D components, and help to detect the incompleteness and logicalerrorsintheschedulesequence

3. BIM, thus is not only a visualization tool but can be utilizedasaprojectschedulingandmonitoringtoolatany stage of the project in which the schedule and the 3D components can be manipulated in a single BIM environment.

2. Ahsan Nawaz, Xing Su , and Ibrahim Muhammad Nasir, “BIMAdoptionandItsImpactonPlanningandScheduling Influencing Mega Plan Projects (CPEC ) Quantitative Approach” Hindawi Complexity Volume 2021, Article ID 8818296,

3.PoojaTripathi,VinayKumarSingh,PravinSinghTomar,J. P.Gupta,“PLANNINGANDSCHEDULINGOFMULTISTOREY RCCBUILDINGUSINGMICROSOFTPROJECT”International Journal of Engineering Science Invention Research & Development;Vol.IV,IssueXI,MAY2018www.ijesird.com, E ISSN:2349 6185

4. David Bryde , Marti Broquetas, Jürgen Marc Volm, “The project benefits of Building Information Modelling (BIM)” InternationalJournalofProjectManagement31(2013)971 980.

5.(2015,P.M.Wale,N.D.Jain,N.R.Godhani,S.R.Beniwal, A. A. Mir,) “Planning and Scheduling of Project using MicrosoftProject(CaseStudyofabuildinginIndia)

6.Eastman,C.M.(2008).BIMHandbook:aguidetobuilding information modeling for owners, managers, designers, engineers,andcontractors.Hoboken,N.J.:Wiley

7.VenkumahantiTejaswini,RajivKumar,P.KesavaRao,G. Ravishankar BIM Applications in Land Use/Land Cover Studies: Indian Experience. January 2021Journal of the Indian Society of Remote Sensing 49(2) DOI:10.1007/s12524 020 01292 4

8. R. R. Politi1, E. Aktaş1, M. E. İlal2 Sept 2018, Project Planning and Management Using Building Information Modeling. Conference: 13th International Congress on Advances in Civil Engineering, Department of Civil Engineering,IzmirInstituteofTechnology,Izmir,Turkey.

9.JBYangDec2016,EffectivenessImprovementofAs built Schedule Using Building Information Modeling, Journal of the Chinese Institute of Civil and Hydraulic Engineering 28(4):267 275DOI:10.6652/JoCICHE/2016 02804 04.

10.Kim,H.et.al.(2010)'Developing5Dsystemconnecting cost, schedule and 3D model', CONVR2010, Sendai, Japan, November 4 5, 2010, in Makanae, K., Yabuki, N. and Kashiyama, K. (eds) Proceedings of the 10th international conference on construction applications of virtual reality. CONVR2010OrganizingCommittee.pp.123 130

2022, IRJET | Impact Factor value: 7.529 | ISO 9001:2008 Certified Journal |

©
Page3019

International Research Journal of Engineering and Technology (IRJET) e ISSN: 2395 0056

Volume: 09 Issue: 05 | May 2022 www.irjet.net p ISSN: 2395 0072

BIOGRAPHIES

Prof. NILIMA POTE

Assistant Professor at JSPM’s Rajarshi Shahu College of Engineering Pune M.E Civil Maharashtra,Pune

Mr. SHIVAJI YELE

StudyingFinalYearofB.E Civilat JSPM’s Rajarshi Shahu College of Engineering.Maharashtra,Pune.

Mr. Aditya Vairagkar

StudyingFinalYearofB.E Civilat JSPM’s Rajarshi Shahu College of Engineering.Maharashtra,Pune.

Mr. Vishal Yadav

StudyingFinalYearofB.E Civilat JSPM’s Rajarshi Shahu College of Engineering.Maharashtra,Pune.

Mr. Apurv Vairagkar

StudyingFinalYearofB.E Civilat JSPM’s Rajarshi Shahu College of Engineering.Maharashtra,Pune.

Mr. Siddhant Jagtap

StudyingFinalYearofB.E Civilat JSPM’s Rajarshi Shahu College of Engineering.Maharashtra,Pune.

2022, IRJET | Impact Factor value: 7.529 | ISO 9001:2008 Certified

©
| Page3020
Journal

Turn static files into dynamic content formats.

Create a flipbook