
International Research Journal of Engineering and Technology (IRJET) e-ISSN: 2395-0056
Volume: 11 Issue: 06 | Jun 2024 www.irjet.net p-ISSN: 2395-0072
![]()

International Research Journal of Engineering and Technology (IRJET) e-ISSN: 2395-0056
Volume: 11 Issue: 06 | Jun 2024 www.irjet.net p-ISSN: 2395-0072
Ar. Sunil Sharma1 , Dr. Anjali S Patil2 , Prof. Harshita Mishra3
1Student, Department of Architecture and Planning, MITS, Gwalior (M.P.)
2HOD, Department of Architecture and Planning, MITS, Gwalior, (M.P.)
3Assistant Professor of Architecture and Planning, MITS, Gwalior, (M.P.)
Abstract - Slums are permeating worldwide, creating serious challenges in terms of living conditions, physical and socialinfrastructurerequirements,healthandsocio-economic issues. India is also experiencing a huge challenge in this sector. This research paper criticallyanalyzes the reasons for thedevelopmentoftheseslumsandmoreoveraimstoimprove the infrastructure and socio- economic conditions of these slums, thereby improving the living standards of the marginalizedsections ofthe societyliving insuch places. As a part of the research, two pilot projects would be taken up to understand the issues of slums in the city of Gwalior. Population migration from rural areas to urban areas has increased enormously not only in India, but globally as well, butinIndiathisissueprevailsfromthepasttwodecades.This has ledtothe degradationof sustainability, environment and ecosystem in urban areas. Similar issues have emerged in the city of Gwalior, Madhya Pradesh. The study synthesizes existing literature and field surveys to analyze on ground realities in order to adopt different strategies for infrastructural improvements and access to basic services usingexistingreformsandpreventionstrategies.Furthermore, it scrutinizes the socio-economic impacts of these interventions and analyzes the existing status of transportation,educationandhealthoftheslumdwellers.The findings highlight both existing issues and challenges encountered in slum up gradation, offering insights and recommendations that are sustainable for the society.
Key Words: Notified Slums, Slum Up gradation, Urbanization, Migration, Tenable Slums
Theterm“Slum”iscoinedforanorganicinformalsettlement havingscarcityofbasicnecessitieswithpoorinfrastructure andunhygieniclivingconditions.WorldHealthOrganization (WHO)defines‘UrbanSlumPopulation’as“theproportionof urban population living in slum households. A slum householdisdefinedasagroupofindividualslivingunder the same roof lacking one or more of the following conditions:•Accesstoimprovedwater•Accesstoimproved sanitation •Sufficient-living area •Durability of housing •Securityoftenure.”[1]
In other words, as stated above, Slum is defined as a ‘condition’inwhichthedwellerslackoneormoreconditions outlinedbyWHO,forahealthyliving.Theslumdwellerslive inthemostpitiableconditions,withfragilesocialconditions,
healthandinfrastructurefacilities.Theyliveindilapidated physical structures with weak socioeconomic status and limited awareness, leading to high immortality rate. The ballooning of slums will lead to mushrooming of high environmental concerns and abasement of the city. The prolificspreadofslumshasbeenanuncontrollableproblem inurbanareas.Themainrationalebehindslumproliferation israpidUrbanizationwithincreasedmigrationfromruralto urbanareas.
NOTIFIED SLUM – All notified areas in a town or city notified as ‘’slum’’ by state, UT administration or local governmentunderanyactincludinga‘slumact’’.[2]
RECOGNIZED SLUM - All areas recognized as ‘’slums’’ by state,UTadministrationorlocalgovernment,housingand slum boards, but it may not be formally notified as slum underanyact.
IDENTIFIED SLUMS - A compact area of at least 300 populationsoraboutitshouldhave60-70households.Itis poorlybuiltcongestedtenements,withunhygienicconditions usuallywithinadequateinfrastructureandlackinginproper servicessuchassanitaryanddrinkingwaterfacilities.

Fig -1:TypesofSlumsaccordingtoCensus
2.
OVERVIEW OF STATUS OF SLUMS IN INDIA
India’s urban population is increasing profoundly than its total population. The current phase of urbanization will further accelerate due to the fast-increasing number of

International Research Journal of Engineering and Technology (IRJET) e-ISSN: 2395-0056
Volume: 11 Issue: 06 | Jun 2024 www.irjet.net p-ISSN: 2395-0072
towns.In1901theurbanpopulationwas25.8millionandit reachedupto377.1millionin2011.Therateofurbanization augmentspromptlywhichneedstobecheckedperiodically. India is a developing country and ‘urbanization’ plays a majorroletoaccountitintoadevelopedcountry
AsperCensus2011,atotalof65.49millionslumpopulation accounting for 13.9 million slum households have been enlistedinslumsof2613citiesortownsspreadacross31 States and Union Territories of India. The non-slum population was 311.61 million. The slum population constitutes17.4percentofthetotalurbanpopulationofall theIndianStatesandUnionTerritorieswhile82.6percentof the urban population was non-slum population as per Census2011.
According to both census 2001 and census 2011, a 0.9 percentriseintheslumpopulationhasbeenobserved,that is,from17.4%to18.3%,whichaccounts1,31,23,015.

3.
MadhyaPradeshisthesecondlargeststateofIndiawitha populationof7.26crores,outofwhich3.76croresaremales and 3.50 crores are females, located in the center of the country and spans an area of 3.08 lakh square kilometer. 72%ofthepopulationofthestateresidesinruralareas.The decadal population growth has been 20%. The state comprises of 51 districts, divided in 362 tehsils and 313 community development blocks, 54903 villages and 476 towns. 14 urban towns lie under the administration of municipal corporations, 100 are administered by municipalities and the rest by Nagar Parishads. The populationdensityis236personspersqkmasagainst382 personspersqkmofIndia.
Madhya Pradesh has 149.68 lakh households. 52% of households are considered good for living, 44% are considered in livable condition and 4% are considered dilapidated.Outof149.68lakhhouseholds24%havewater
sourceintheirhomeitself.Outofrest76%households,46% have water source near their house and 30% of the householdshavetotravelfarforwater.
AsperCensus2011,thereare10.87lakhshousesinMadhya Pradesh,outofwhich57.84percentaregood,38.41percent islivable,and3.71percentisindilapidatedcondition.79.01 percent of slum households live in their own homes and 17.24 percent of households live in rented homes. 1.46 percent of households have no exclusive rooms, 32.53 percenthouseholdshaveonedwellingroom,34.84percent households have two dwelling rooms and 31.17 percent householdsliveinthreeandaboverooms.
39.86 percent have water source in their homes, 20.49 percent have water source in nearby area and rest 39.65 percent of the household have to travel far off for water source.48.37percent ofhouseholdhaveaccesstotreated tapwater,12.48percenttapwaterfromuntreatedsource, 16.91percenthandpump,13.08percenttubewellandrest 9.16 percent use other sources of water. 23.6 percent of Slum Households in Madhya Pradesh have electricity, tap waterandlatrinewithintheirhomepremises.66.32percent are pukka houses, 27.09 percent are semi-pakka and 5.83 percentarekutchahouses.
GwaliorisoneoftheimportantcitiesinMadhyaPradeshin termsofemploymentopportunitiesandcontributesinthe GDP growth of the state. The city occupies a strategic locationintheGridregionofNorthIndiaanditsfortresshas historically been the center and one of the significant kingdoms of northern India. Gwalior city is the administrativeheadquartersofGwaliorDistrictandGwalior Division.ThecityisthelargesturbancenterintheGwalior–AgraregionwhichcomprisesthedistrictsofGwalior,Bhind, Morena,Sheopur,Guna,DatiaandShivpuri.Gwaliorisalso considered as a counter magnet to the National Capital Region(NCR).



International Research Journal of Engineering and Technology (IRJET) e-ISSN: 2395-0056
Volume: 11 Issue: 06 | Jun 2024 www.irjet.net p-ISSN: 2395-0072

Fig -4:MapshowingConnectivityandAdministrative boundariesofGwalior
Source:HousingforAllPlanofAction(HFAPoA),Gwalior
Gwaliorusedtoholdthepositionofthewintercapitalofthe state ofMadhya Bharathistorically which later became a partofMadhyaPradesh.Ithasarockyterrainwithinthecity and is surrounded with hills from all sides. The northern part is embodied by the Ganga- Yamuna Drainage Basin. Gwalior'smetropolitanareaboundarycomprisesofGwalior city centre,Morar Cantonment,Lashkar,Maharaj Bada, PhoolBaghandThatipur.
Table -1: DemographicProfile-Gwalior City
Child Sex Ratio 836
Child (0-6 years) 1,19,413
Source:PrimaryCensusabstract-2011,RegistrarGeneral ofIndia.
4.2 Status of Slums in Gwalior
Volatile modifications from rural to urban growth lead to povertydriftingtourbanareas.Slumgrowthistriggeredby urbanpoverty.Urbanizationconstitutesaconfrontationwith infrastructuremanagementinthedevelopingcountrieslike Indiawhichleadstomushroomingofslumareas.
AccordingtoCensus2011,inIndia,theurbanpopulationhas risento377milliondepictingagrowthrateof2.76percent perannumduring2001-2011.Urbanizationandeconomic growth are directly proportional to each other and germinateworkingandinvestmentopportunitiesinurban areas which entice people towards cities and leads to humongousamountofmigration
Population- Gwalior
Fig -5:GraphicalRepresentationofDistributionofSlum andNon-SlumPopulationinGwalior
There are a total of 243 slums in the Gwalior Municipal Corporationaccountingforatotalpopulationof2.09lakhs as per Census 2011. A detailed statistics along with the locationsoftheslumshavebeenshownbelow.Withsucha high amount of slum population residing in the city, it becomesnecessarytostudytheissuesandworktowardsthe upgradationoftheslumsinthecity.
Table -2: SlumDataofULBsinGwaliorMunicipal Corporation
Source: Department of Urban Administration and Development,GovernmentofMadhyaPradesh

International Research Journal of Engineering and Technology (IRJET) e-ISSN: 2395-0056
Volume: 11 Issue: 06 | Jun 2024 www.irjet.net p-ISSN: 2395-0072

-6:MapshowingtheLocationofSlumsandtheSlum TenabilityStatusofGwalior
Source:HousingforAllPlanOfAction(HFAPoA),Gwalior
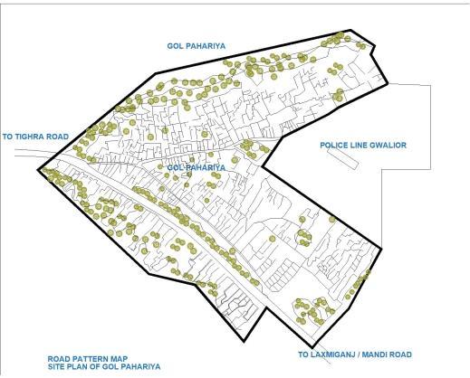
5. STUDY OF GOL- PAHADIYA SLUM, SANJAY NAGAR, GWALIOR
Inordertounderstandtheslumconditionandissuesinthe slums,sothatpossiblewaysofupgradationcanbededuced, wehavestudiedthisslumasapilotproject.Thefocuswillbe on understanding the existing socio economic and infrastructuralstatusoftheslum.GolPahadiyaslumgrabs thesoutherncornerofthecityandislocatedatadistanceof 6.2 kms from Gwalior Railway Station and 16 kms from GwaliorAirport


Source:HousingforAllPlanofAction(HFAPoA),Gwalior; GoogleEarth
Theslumismorethan40yearsold.Mostofthepeopleare workersinnearbyindustriesorareinvolvedincleaningand othermenialjobs.

Fig -8:SitePlanofGolPahadiyaSlum,SanjayNagar, Gwalior
OtherdetailsimportantforthestudyoftheGolPahadiya slumhavebeenenlistedinthetablebelow.
Table -3: DetailsofGolPahadiyaSlum,SanjayNagar, Gwalior
Slum ID 157
Land Ownership Government
Site Area 16738.798sq.m. No. of Kutcha houses 209 No. of Pucca houses 585
Total No. of Houses 794 Total Population 3216
Ward No. 38
Type of Slum Notified
Source:NagarNigam,Gwalior
Withatotalpopulationof3,216slumdwellers,GolPahadiya slum has poor sanitation facilities and arrangements for solidwastedisposalandhasunmaintainedcommunitytoilet. Water logging, improper drainage conditions with mostly openandkutchadrainsandcasesofopendefecationhave been observed.Congested and narrow roads makeitvery difficultforthevehiclestopassthrough.
Lack of knowledge about various ongoing government schemesandprogramsforthebenefitoftheslumdwellers was observed. Lack of social infrastructural facilities like education, health care, dilapidated houses with improper roofing,lightingandventilationwasperceived.

International Research Journal of Engineering and Technology (IRJET) e-ISSN: 2395-0056
Volume: 11 Issue: 06 | Jun 2024 www.irjet.net p-ISSN: 2395-0072


Source:PrimarySurvey


Source:PrimarySurvey
6. STUDY OF LAKSHMANPURA SLUM, GWALIOR
Laxmanpuraisa150yearoldslumlocatedintheheartofthe city of Gwalior near Padav crossing. It is located near Gwaliorrailwaystation(atadistanceof0kmsalignedwith platformNo.4)and10kmsfromGwaliorairport.
We have studied this slum as the second pilot project to understandtheissues,anddeducepossiblemethodsofslum upgradation.Thefocuswillbeonunderstandingtheexisting socioeconomicandinfrastructuralstatusoftheslumandto review and understand the available government policies and regulatory framework to give suggestions for up gradationintheslumineverypossibleway.
Laxmanpurawasanopenland,withnotmuchsettlement,no infrastructure and no approach road as it was near the railwaylinesitwasconsideredastheoutskirtarea.Dueto rapidgrowthofurbanpopulationandmigrationinthecity, peoplefromdifferentsatellitetowns,nearbyareasandfrom theruralareasmigratedandsettledintheLakshmanpura slumofthecity.


Source:GoogleEarth
Most of the people migrated and settled in this area for employment opportunities The unmanaged and uncontrolledgrowthinthesettlementincreasedleadingto the formation of the Lakshmanpura slum. Other details importantforthestudyoftheLaxmanpuraslumhavebeen enlistedinthetablebelow.
Table -4: DetailsofLakshmanpuraSlum,Gwalior
Source:NagarNigam,Gwalior
About 44 percent families have no toilet facilities and defecate openly on the railway lines nearby. There is no availabilityofdrinkingwater,anysolidwastemanagement, poor hygiene and sanitation conditions. There is poor maintenanceofcommunitytoiletsalongwithnarrowroads whichmakeitverydifficultforthevehiclestopassthrough. Instances of water logging and contaminated water at numerous locations create hot spots for diseases and contributetothevulnerablestatusofhealth.
There is direct disposal of sewer in the adjacent Dharamshalasitewhichcreatesanunhealthyenvironment fortheslumdwellers.Absenceofprimaryeducationfacility hasbeenobservedwithinthesite.

International Research Journal of Engineering and Technology (IRJET) e-ISSN: 2395-0056
Volume: 11 Issue: 06 | Jun 2024 www.irjet.net p-ISSN: 2395-0072





Source:PrimarySurvey
The most prevalent diseases identified in the area are diarrhea, cholera, typhoid and dysentery. 57 percent of population reported instances of poor sanitary conditions which are responsible for diseases that people frequently sufferfrom,followedby23percentrespondedpoorwater supply as a reason but only 3 percent reported overcrowding as a major issue within the settlement Majority of the people were suffering from air and water bornediseases.
Majorityfemalesaresufferingfromasthmaduetothedaily cookingchoresbeendoneon‘chulha’.Onthecontrary,no governmenthospitalisavailableinthenearbyarea.

Source:PrimarySurvey
Generalissuesandobservationshavebeenoutlinedonthe basis of primary survey and other secondary studies in termsof‘socioeconomicconditions’and‘availabilityofbasic amenities’.Apartfromthatacomparativeanalysishasbeen done to understand the subject in a more comprehensive way.
It was observed that all the households had electricity connections which the residents of the nearby residential complexesclaimedtobeillegal.Improperdrainageleading towaterloggingwasaverycommonissueintheslumwhich worsenedduringrainyseason.Therewasnoavailabilityof water connections in the houses and the people were dependent on the public water taps in the nearby areas. Therewasabsenceofhealthcarefacilitiesinboththeslums. In terms of education, anganwadis was present only in Lakshmanpuraslum.Acomparativeanalysisonthebasisof primary survey done from the slum dwellers of both the slumsonvariousparametersunderbasicamenitieshasbeen doneasshownbelow.
LAKSHMANPURA GOLPAHARIYA SANITATION SERVICES
0 50 100
GOOD AVERAGE BAD
Chart -1:ComparativeQualitativeAnalysisofSanitation Servicesinboththeslums
Asshowninthegraphicalrepresentationabove,80percent oftherespondentsfeelsthatthesanitationinGolPahariya slumisbadwhileinLakshmanpuraslum,itwas70percent.
LAKSHMANPURA GOLPAHARIYA WATER SUPPLY
0 50 100
GOOD AVERAGE BAD
Chart -2:ComparativeQualitativeAnalysisofWater Supplyinboththeslums

International Research Journal of Engineering and Technology (IRJET) e-ISSN: 2395-0056
Volume: 11 Issue: 06 | Jun 2024 www.irjet.net p-ISSN: 2395-0072
Asshowninthegraphicalrepresentationabove,85percent oftherespondentsfeelthatthewatersupplyinGolPahariya slumisbadwhileinLakshmanpuraslum,itwas70percent.

Chart -3:ComparativeQualitativeAnalysisofConditionof OpenDraininboththeslums
Asshowninthegraphicalrepresentationabove,85percent oftherespondentsfeelthattheconditionofOpenDrainsin GolPahariyaslumisbadwhileinLakshmanpuraslum,itwas 65percent.

Chart -4:ComparativeQualitativeAnalysisofConditionof InternalStreetsinboththeslums
Asshowninthegraphicalrepresentationabove,75percent oftherespondentsfeelthattheconditionofInternalStreets inGolPahariyaslumisbadwhileinLakshmanpuraslum,it was60percent.

Chart -5:ComparativeQualitativeAnalysisofConditionof PowerSupplyinboththeslums
Asshowninthegraphicalrepresentationabove,75percent oftherespondentsfeelthattheconditionofPowerSupplyin GolPahariyaslumisbadwhileinLakshmanpuraslum,itwas 60percent.
CHILDRE N

-16:GraphicalRepresentationofEducationalStatusin boththeslums
Asshowninthegraphicalrepresentationabove,maximum literatesareinLakshmanpuraslum.
7.2 Socio Economic Status
Theoccupationoftheslumdwellerswasfoundtobevaried. Nearlyhalfoftherespondentswereengagedindailywage jobs. The percentage of respondents engaged as constructionworker,driverandpainterwas17,13.4and6.7 respectively. Further,someofthemalerespondentswere workingassewageworker,welder,watersupplier,security guardandplumber.
The salary of the respondents varied according to their occupationranging fromRs9000permonthtoRs20,000 permonth.Itwasfoundthatpeoplewhowereengagedin technicalworksweregettinghigherwagesthanthosewho wereengagedinoccupationsinvolvingphysicallabor

International Research Journal of Engineering and Technology (IRJET) e-ISSN: 2395-0056
Volume: 11 Issue: 06 | Jun 2024 www.irjet.net p-ISSN: 2395-0072

Fig -15:GraphicalRepresentationofPercentage DistributionofOccupationalDetailsinboththeslums

Chart -6:ComparativeQualitativeAnalysisof EmploymentStatusinboththeslums
Asshowninthegraphicalrepresentationabove,95percent aremaleworkers,followedby85percentfemaleworkers and 10 percent child labor in Gol Pahariya slum. While in case of Lakshmanpura slum, it was 90 percent are male workers, followed by 80 percent female workers and 20 percentchildlabor.
8.1 General Recommendations for Slum Up gradation
WATER SUPPLY – Boththeslumsarenotified,hencepatta canbeprovidedsothatindividualtapconnectionslinkedto covered drains should be provided. Metered water connections to be provided with appropriate subsidies or shared paid connections to be given to families with low affordability.
SEWERAGE AND SANITATION –Sewerlinesshouldbelaid orindividualseptictanks tobeprovidedwithintheslums withinindividualtoiletsineachhouseunder‘SwatchBharat Abhiyan’. ‘Swatch Bharat Abhiyan’ will provide financial subsidiestoallhouseholds.
DRAINAGE – Covered Pucca Drains to be provided to preventsolidwastefrombeingdisposedinthedrainsand clogging.
SOLID WASTE MANAGEMENT - Door-to-door waste collectionfacilityshouldbestartedbyNagarNigamwiththe helpofcommunityparticipationenablingregulardisposals Community systems for waste management shall be encouragedwithsupportofNGOstoenablecommunitiesto generateincome.
ACCESS TOHEALTHANDEDUCATIONFACILITIES -Health and education services shall be planned and delivered in coordination with the concerned departments. GMC shall jointly review with concerned department official, spatial distributionofmunicipalschoolsandhealthcenters,identify gaps and plan for gap filling. One Mobile Medical Unit per slumshouldbeavailableatcallandinspectslumsregularly whichlinktothenearbyhospitals.
Variousreformshavebeenintroducedbythegovernmentof Indiaaswellasthestategovernmentforthebenefitofthe poorwhichcanbeutilizedbytheslumdwellersaswell.
OneofthemainprogramisPMAY,underwhichIn-situSlum Rehabilitationcanbeperformedfortenableslums,forwhich a subsidy of 1 lakh per beneficiary is also provided by the government.
Apartfromthat,BasicServicesforUrbanPoorunderJnNURM canbeimplementedforwhichlocalbodybudgetshavebeen allocated.TheMunicipalCorporationhasalreadyearmarked 25 percent of the budget for Urban Poo Conferment of PropertyRightstoSlumDwellersincludingsecurityoftenure ataffordablepricesunderMadhyaPradesh PattaActsince 1984underwhichPropertyRightsof20-25percentwillbe provided in all housing projects (both public and private agencies)forEWS/LIGthroughcross-subsidization.
MadhyaPradeshhasamendeditsLandReservationRulesfor EWSandLIGfortheslumswhichcannotbedevelopedin-situ under which 15 percent of the dwelling units shall be reservedforEWSandLIGwhichhasbeenenforcedsince19th April,2012.
It is suggested to implement Public Private Partnerships (PPP)inordertodevelopmoreandmoreaffordablehouses, andinreturnprovidebenefitsindevelopmentregulations.
In- Situ Slum Up gradation strategy has been chosen for Tenable and Partially Tenable slums having kutcha structuresandpoorinfrastructure.

International Research Journal of Engineering and Technology (IRJET) e-ISSN: 2395-0056
Volume: 11 Issue: 06 | Jun 2024 www.irjet.net p-ISSN: 2395-0072
CRITERIA - TenureStatusofHouseholdsinNon Tenable Slums is highly vulnerablehenceneeds to be implementedonpriority.
Slums with Land Ownership as Public will be eligible. Prioritywill be given toslumshavingconnectivityto CityLevelTrunkInfrastructureofWaterSupply,Sanitation andRoadConnectivity.
PREVENTION STRATEGY- Apart from statutory and regulatory reforms required through state level policy interventions, options can be developed by Urban Local Bodies. The proposed option is the creation of affordable housinganddisposalofsametothetargetgroups.Theneed for affordable housing has been derived from existing HousingScenarioofGwalioranditsDemandAssessment.
ThePreventionStrategyisproposedtobeimplementedby Municipal Corporation and other Parastatal Agencies like developmentauthority,housingboard,etc,inanintegrated manner. The Creation and Disposal of Affordable Housing Units for EWS and LIG are worked out on the basis of DemandCalculations.
The aim of Prevention strategy may be achieved through Direct Interventions for increasing affordable housing stockaswellasregulatoryinterventionstoensuresupplyof affordablehousingtoEWSandLIG.Followingmeasuresare proposedtoimplementthePreventionStrategyby:
Ensuring affordable housing stock through reservations underMadhyaPradeshNagarPalika (Registration of Colonizer, Terms and Condition) Rule,1998.
Reservation of15 percent dwelling units for EWS andLIGintheratioof3:2whichwillbecateredby Private Developers, Development Authority and MadhyaPradeshHousingBoardintheirschemes.
DemandforAffordableHousingUnitsforEWS/LIG to be treated as Special Affordable Housing Projects which is to be implemented by Gwalior Development Authority and Madhya Pradesh HousingBoard.
[1] WorldHealthOrganization,“GlobalHealthObservatory,” UN-HABITATGlobalUrbanIndicators.
[2] TheGovernmentofIndia.(2011),Census
[3] The Government of Madhya Pradesh. (1984), “DevelopmentControlRegulations”
[4] Reportofthecommitteeslumstatistics/census,Ministry ofHousingandUrbanPovertyAlleviation.
[5] ReportonPradhanMantriAwasYojana(Urban).(2021), MinistryofHousingandUrbanPovertyAlleviation.
[6] Slum Free City Plan for Gwalior City, by GwaliorMunicipalCorporation(2013)
[7] GwaliorDevelopmentPlan(2031).DirectorateofTown andCountryplanning.GovernmentofM.P,117-125.
[8] MinistryofHousingandUrbanPovertyAlleviation,Slum Free City Plan of Action for Gwalior City - Module 2 (2013)
[9] GOI (1956). The Slum Areas (Improvement And Clearance)Act,1956
[10] Hazarika, I. (2010). Women's Reproductive Health in Slum Populations in India: Evidence from NFHS-3. JournalofUrbanHealth,87(2),264-277.
[11] Madhiwalla, N. (2007). Healthcare in Urban Slums in India.
[12] TheNationalMedicalJournalofIndia,20(3).Censusof India2011-CircularNo.8
[13] United Nations Human Settlements Programme (UNHABITAT)report,(April2007).SlumDwellerstodouble by2030: