ARCHITECTURE PORTFOLIO

Page 1


2022 - ACADEMIC PROJECT DR. MARIE THOMAS MATERNITY AND CHILD HOSPITAL 2018 - ACADEMIC PROJECT LEINSTER SHOPPING CENTRE

SELECTED WORKS

2021 - PROFESSIONAL PROJECT 1ST PROPOSAL FOR DR. SOEDARSO TRADITIONAL MARKET

2022 - PROFESSIONAL PROJECT 2ND PROPOSAL FOR DR. SOEDARSO POP UP MARKET

SHOPPING CENTRE

LOCATION : JATINANGOR, JAWA BARAT, INDONESIA

AREA : 8.200 M2

TYPE : COMMERCIAL BUILDING

AT THIS DESIGN ASSIGNMENT, WE WERE GIVEN THE CHALLENGE OF DESIGNING A SHOPPING CENTER IN JATINANGOR REGION, WEST JAVA. JATINANGOR REGION IS AN EDUCATIONAL AND TOURISM AREA IN WEST JAVA, WHICH SUPPORTS THE EXISTING OF SHOPPING CENTER. THE CHALLENGES OF DESIGNING A SHOPPING CENTER INCLUDING THE CONDITIONS OF JATINAGOR BUSY TRAFFIC AND AREA REGULATION, ALSO THERE MUST BE A RESPONSE TO GREAT ENERGY RESOURCES USED IN SHOPPING CENTER OPERATION ANOTHER CHALLENGE IS HOW THIS SHOPPING CENTRE

BECOMING A GOOD ATTRACTIVENESS FOR INVESTORS AND TOURIST. THE RESPONSES TO THESE PROBLEMS INCLUDING THE ARRANGEMENTS OF CIRCULATION FLOW IN THE SITE AND GIVES THE VISITOR VARIOUS ENTRANCE TO THE SHOPPING CENTRE. UTILIZATION OF SHADOWS TO PLACE THE OPENING AND RESPONSE TO THE WEST SUN CAN SAVE GENEROUS AMOUNT OF ENERGY USED IN BUILDING. ALSO APPLYING TIMELESS DESIGN STYLES FOR BUILDING FACADE IS A MUST TO ATTRACT PUBLIC INTEREST AND COMFINESS WHILE IN SHOPPING MALL

SELECTED WORKS

LOCATION

SELECTED WORKS

JL. RAYA JATINANGOR, KEC. JATINANGOR, KAB. SUMEDANG, JAWA BARAT, INDONESIA 6°56’05.7”S

MASS CONCEPT

THE FACADE CONCEPTS TAKE THE METAPHOR OF THE SAILING SHIP AS THE MAIN TOOL USED BY HUMANS TO TRADE FROM ONE ISLAND TO ANOTHER, TO ESTABLISH A LOT IN THE PORT AS A SHOPPING CENTER UNTIL IT FINALLY DEVELOPS INTO A CLOSED SHOPPING CENTER CALLED “MALL”

BUILDING MASS FORMATION IS BASED BY A SINGLE BLOCK WITH CONSIDERATION OF THE DISTANCE OF REGULATION BOUNDARY LINES, TOTAL SUM OF AREA PROGRAMMING, AND MAXIMIZING THE POTENTIAL OF THE SITE. PARTS OF THE BUILDING EXPOSED TO THE WEST AREA ARE PROTECTED BY DESIGNED SHADDING COVERING THE WEST PART OF BUILDING THAT ALSO BECOME A UNIQUE FACADE

PROGRAMMING & PLACEMENT

SHADING

ADDITION

DETAILING

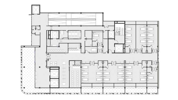
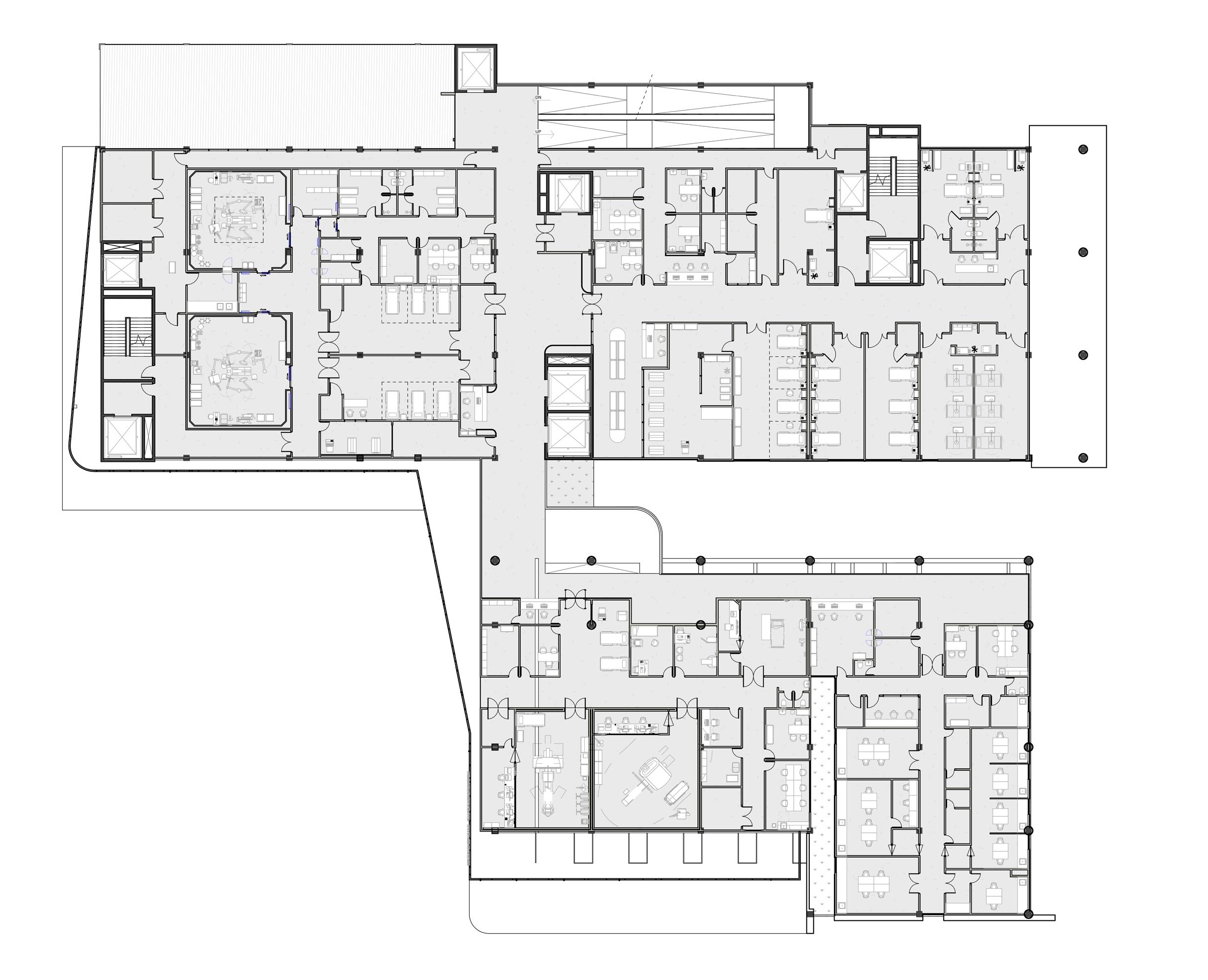
FLOOR PLAN

PLAN DESIGN IS BASED BY TENNATS ANCHOR AND CIRCULATION LOOPS IN THE BUILDING SO IT CAN GUIDE VISITORS TO VIEW ALL AVAILABLE TENANTS AREA IN THE SHOPPING CENTER . THIS IS IMPORTANT RULE SO THAT TENANT CAN BE ATTENTIONED BY PROSPECTIVE INVESTOR

NORTH ELEVATION
NORTHEAST ELEVATION
SOUTHWEST ELEVATION
SOUTH ELEVATION
MATERNITY AND CHILD HOSPITAL
DR. MARIE THOMAS

MATERNITY AND

CHILD

HOSPITAL DR. MARIE THOMAS

LOCATION BANDUNG, JAWA BARAT AREA 11.787 M2

MENTOR NURTATI SOEWARNO, IR., M.T

BUILDING TYPE GRADE B SPECIAL HOSPITAL

LABOR IS THE MOST SCARY YET BLESSFUL EXPERIENCE FOR WOMEN ESPECIALLY WHEN FIRST TIME PREGNANCY (GRAVIDA). FEELING OF STRESS AND ANXIETY ARE NATURAL RESPONSES WHEN DELIVERY DUE TO CHANGES IN WOMEN’S HORMONE AT THE TIME OF LABOR. RESPONDING TO SUCH PROBLEMS, ARCHITECTURE COMES AS A SOLUTION TO REDUCED FEAR AND ANXIETY IN DESIGNING THE HOSPITAL. THE SOLUTION OFFERED IS TO USE WARM MATERIALS SUCH AS A COMBINATION BETWEEN WOOD AND BRICK CLADDING AS WELL AS COZY AND

2022

COMFORTABLE ROOM LAYOUT ARRANGEMENTS. VARIOUS ELEMENTS OF PLANTS AND NATURAL LIGHT ARE ALSO PRESENTED IN ALMOST EVERY PART OF THE HOSPITAL THAT ARE BELIEVED TO REDUCE ANXIETY AND AS A DIFFERENCE TO PAIN RECEIVED. EACH FLOOR HAS A HEALING AREA IN THE FORM OF A GARDEN WHICH IS DIRECTLY CONNECTED WITH THE VIEW OUTSIDE AND EACH ROOM HAS A BALCONY AND WIDE OPENS SO THAT PATIENTS DO NOT FEEL CONSTRAINTED DURING THE HEALING PROCESS

THE PATTERN USED AS A BUILDING ENCLOSURE WAS INSPIRED FROM THE NOTES IN A MUSIC BOX WHICH ARE AROUND FROM ALUMINUM PANEL WITH WOOD PATTERN

THE AREA OF THE VIP INPATIENT ROOM REFER TO THE STANDARDS OF THE MINISTRY OF HEALTH THAT HAVE FACILITIES IN THE FORM OF KITCHEN AREA, WARDROBE, FOLDING SOFA THAT CAN BE TURNED INTO BEDS FOR FAMILY STAYING, TV ENTERTAINMENT WHICH IS PACKED WITH WARM NATURE THEMES

PROPOSED DESIGN OF EX-TERMINAL DR. SOEDARSO

PASAR TRADISIONAL DR. SOEDARSO

STATUS PROPOSAL, UNBUILD

LOCATION PONTIANAK, KALIMANTAN BARAT, INDONESIA AREA 11.787 M2

BUILDING TYPE TYPE C TRADITIONAL MARKET

TEAM ANGGUN RACHMAWATI LEADER

IRFAN FAKHRUDDIN IN CHARGE 2021

PROFESSIONAL PROJECT

IN MODERN TIME THE EXISTENCE OF TRADITIONAL MARKETS SLOWLY BEGIN TO BE REPLACED BY THE ENTRY OF VARIOUS ALTERNATIVE METHODS SUCH AS DIGITAL MARKETS AND MODERN MARKETS THAT ARE CLEAN, EASIER, AND PRACTICAL. COMMUNITY’S STIGMA TOWARDS DENSE AND CLOCKED CONDITIONS OF TRADITIONAL MARKETS MAKES TRADITIONAL MARKETS BEGIN TO BE

SLOWLY ABANDONED. SUCH CONDITIONS COULD RESULT IN LOSS OF JOB FOR LOCAL TRADERS WHO CANNOT COMPETITIVE WITH THE DIGITALIZATION ERA. THEREFORE, THE PURPOSE OF SOEDARSO’S TRADITIONAL MARKET PLANNING IS HOW TO PROVIDE A MARKET ENVIRONMENT THAT HAS A MODERN AND CLEAN EXPERIENCE THAT CAN SUPPORT LOCAL TRADERS.

SKETCHUP - AUTOCAD - ENSCAPE - PHOTOSHOP

THE PLAN BASICLY DIVIDE BY 2 SECTIONS, THE MARKET ITSELF AND BUS TRANSIT TERMINAL. GROUND FLOOR OF THE MARKET ARE FOCUSSED FOR PARKING AREA WITH A SMALL DRY GARDEN AS THE CENTER PART OF THE

MARKET. IN THE 2RD FLOOR, WET AND DRY MARKET STRICTLY DIVIDED WITH RAMPS AND VOID AND MULTIPLE ACCESS TO REACH IN AND OUT.

PROPOSAL FOR ARRANGEMENT OF EX-TERMINAL DR. SOEDARSO

POP UP MARKET DR. SOEDARSO

STATUS PROPOSAL, UNBUILD

LOCATION KUBU RAYA, WEST BORNEO, INDONESIA AREA 11.787 M2

BUILDING TYPE PUBLIC OPEN SPACE

TEAM ANGGUN RACHMAWATI LEADER IRFAN FAKHRUDDIN IN CHARGE 2022

ALONG SOEDARSO ROAD THERE IS AN ILLEGAL MARKET AREA THAT HAS BEEN EXISTED SINCE 2000 WHICH WAS OPENED BY LOCAL FISHERMAN IN THE NEAREST PORT. THIS IS BECOMING A PROBLEM BECAUSE LOTS OF VEHICLES STOPPING BY AND CAN BRING TRAFFIC TO SOLVE THE PROBLEM, TOGETHER WITH THE TEAM WE FOUND AN UNOPERATING TERMINAL THAT COULD SOLVE THE PROBLEM BY MOVING THESE TRADERS INTO THE TERMINAL. BY REQUEST FROM THE LOCAL REGENT, BESIDES INCLUDING MARKET FUNCTIONS THE AREA CAN BE USED AS A PUBLIC OPEN SPACE.

FROM SOME OF THESE CONSIDERATIONS, WE PROVIDE THE APPROPRIATE TITLE FOR FORMER SOEDARSO TERMINAL IN THE FORM OF A POP UP MARKET AND PUBLIC OPEN SPACE, CONSISTING OF A LARGE PLAZA WHICH CAN BE FILLED WITH VARIOUS EVENTS SUCH AS THRIFT MARKETS, FOOD FESTIVALS, ETC. THE CHALLENGE IS HOW TO UNITE THE VARIOUS FUNCTIONS, ALSO TO KEEP THE AREA CLEAN, AND NOT OVERLOADED

BY MAINTAINING THE “ON THE STREET MARKET” CONCEPT THAT BECOME THE CULTURE OF THE SURROUNDING COMMUNITY. BY THAT WAY PEOPLE’S CAN SAVE TIME FOR SHOPPING IN THE MARKET. WITH THE LITTLE TIME REQUIRED FOR SHOPPING, HOPEFULLY PEOPLE’S PARKING TIME WILL BE REDUCED. BY THAT IT CAN MEET MARKET PARKING QUOTAS THAT ARE DIFFICULT TO PREDICT

SHALLOW POOLS THAT CONTAIN VARIOUS TYPES OF FISH CAN REDUCE DENSE ATMOSPHERE IN THE AREA AND GIVE A RELAX FEELING. AS WELL AS THE POOL CAN BE A GATHERING POINT AND RESTING PLACE FOR VISITORS UNDER THE

COMPETITION

LATESTPROJECT2023 - 2024

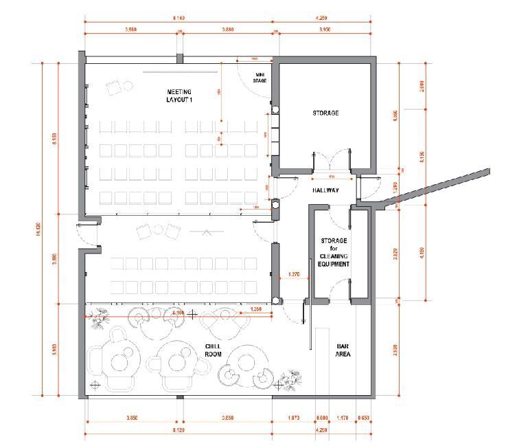
KARLINGERHOOF

seminar room

COLOR CONCEPT

WARM YELLOW :

Warm and Light woods brings a sense of calmness and blends to the nature surrounds

UNDERTONE:

Gray and yellow, wooden elements adds warmth and a connection to the local environment

THE MATERIALS

FLOOR:

The foundation of the interior design is laid with white oak flooring, offering a warm and inviting base.

WALLS / CEILLINGS :

Neutral color highlight the interior volume without adding complexity These colors receive the charging light of the adjacent site.

The flexible wall system, crafted from golden teak. A timber renowned for its durability and appealing grain patterns, imparts a sense of warmth and sophistication to the environment.

DOOR
PARTITION
FLOOR
WOODEN WALL SPRUCE, STEAMED, CHOPPED
TERRASTONE MELANGE SAMARKAND 73
CHAIR
BLIND

chill room & bar

COLOR CONCEPT

WARM YELLOW :

Warm and Light woods brings a sense of calmness and blends to the nature surrounds

UNDERTONE:

Gray and yellow, wooden elements adds warmth and a connection to the local environment

THE MATERIALS

FLOOR:

The foundation of the interior design is laid with white oak flooring, offering a warm and inviting base.

WALLS / CEILLINGS :

Neutral color highlight the interior volume without adding complexity. These colors receive the charging light of the adjacent site.

The flexible wall system, crafted from golden teak. A timber renowned for its durability and appealing grain patterns, imparts a sense of warmth and sophistication to the environment.

TERRASTONE MELANGE SAMARKAND 73 Material Moodboard
FROSTED FILM GLASS
CEILING
LA CIVIDINA SOFA SET
BACKSPLASH
CABINET COUNTERTOP
ARIZONA NEW HOME BUILD

STATUS : PROPOSAL

MIAMI CONDO APARTMENT

APARTMENT KITCHEN & BEDROOM

STATUS : PROPOSAL

PLOT AREA = 5,788.74 M2

MAX. GFA = 17,366.00 M2

MAX. HEIGHT = G+6

LAND USE = APARTMENT

CONCEPT

NORTHANGLIA INTERNATIONAL SCHOOL

GREEN DIAMOND APARTMENT

POCKETPARK

SPLIT TOWER

Designing an apartment with a garden in the middle can create a unique and appealing living environment that combines urban convenience with natural beauty.

1. Integration of Garden

Alarge, landscaped garden at the heart of the apartment complex serves as a focal point accessible to all residents.

INTEGRATED GREENAREA

Creating an integrated green area that combines sport, park, and amenities between a podium and a site involves thoughtful planning to ensure functionality, accessibility, and aesthetic appeal.

2. Indoor Outdoor Connections

Layout designed around the perimeter of the courtyard, maximizing views of the garden from each unit. Balconies or terraces for each apartment overlooking the garden, enhancing the connection between indoor and outdoor spaces.

3. Community Spaces

Podium with integrated garden can be used for shared amenities like a community room, gym, and Padel Court overlooking the garden

SPORTAREA
SPLASH PAD
JOGGING TRACK

BALCONYDIRECTION

To make the apartment room less visible from the other side, the direction of the opening is deliberately made in the opposite direction.

NORTHANGLIA INTERNATIONAL SCHOOL

CONNECTION BRIDGE

To connect one building to another, a connecting bridge is needed with a view facing the garden.This area will be the location for the elevator and stairs for apartment residents

POCKETPARK

CONCEPT

Our goal is to create various experience by forming the balconies inspired by wind. This can create unique shape for facade that makes the apartment stand out in the neighborhood

CONCEPT

ROOFTOP GARDEN (BARBEQUE, PARK, MUTIPURPOSEAREA)

UTILITYAREA (AC OUTDOOR UNIT, WATERTANK, ETC)

SPORT AREA

GROUND LEVEL PARKING ENTRANCE

MAIN LOBBY & DROPOFF

UTILITYCORE (LIFT, STAIRS,ETC) CONNECTION BRIDGE

APARTMENT UNIT SERVICE ENTRANCE

Turn static files into dynamic content formats.

Create a flipbook
Issuu converts static files into: digital portfolios, online yearbooks, online catalogs, digital photo albums and more. Sign up and create your flipbook.