Architecture Portfolio - Zepeda Gabriela

Page 1

PORTAFOLIO

Arq. Zepeda Gabriela

Zepeda Gabriela 1
2 0 2 02 0 2 1 Arquitecto 2 Tabla Contenido Condominios Residenciales 3 Hotel Playa Kaandora 11 Casa Sustentable 23 Centro Juvenil Cultural e Investigacion 29

Condominios Residenciales

Año: 2020

Equipo: Zepeda Gabriela

Tipo: Anteproyecto Arquitectonico

Estado: Propuesta Borrador

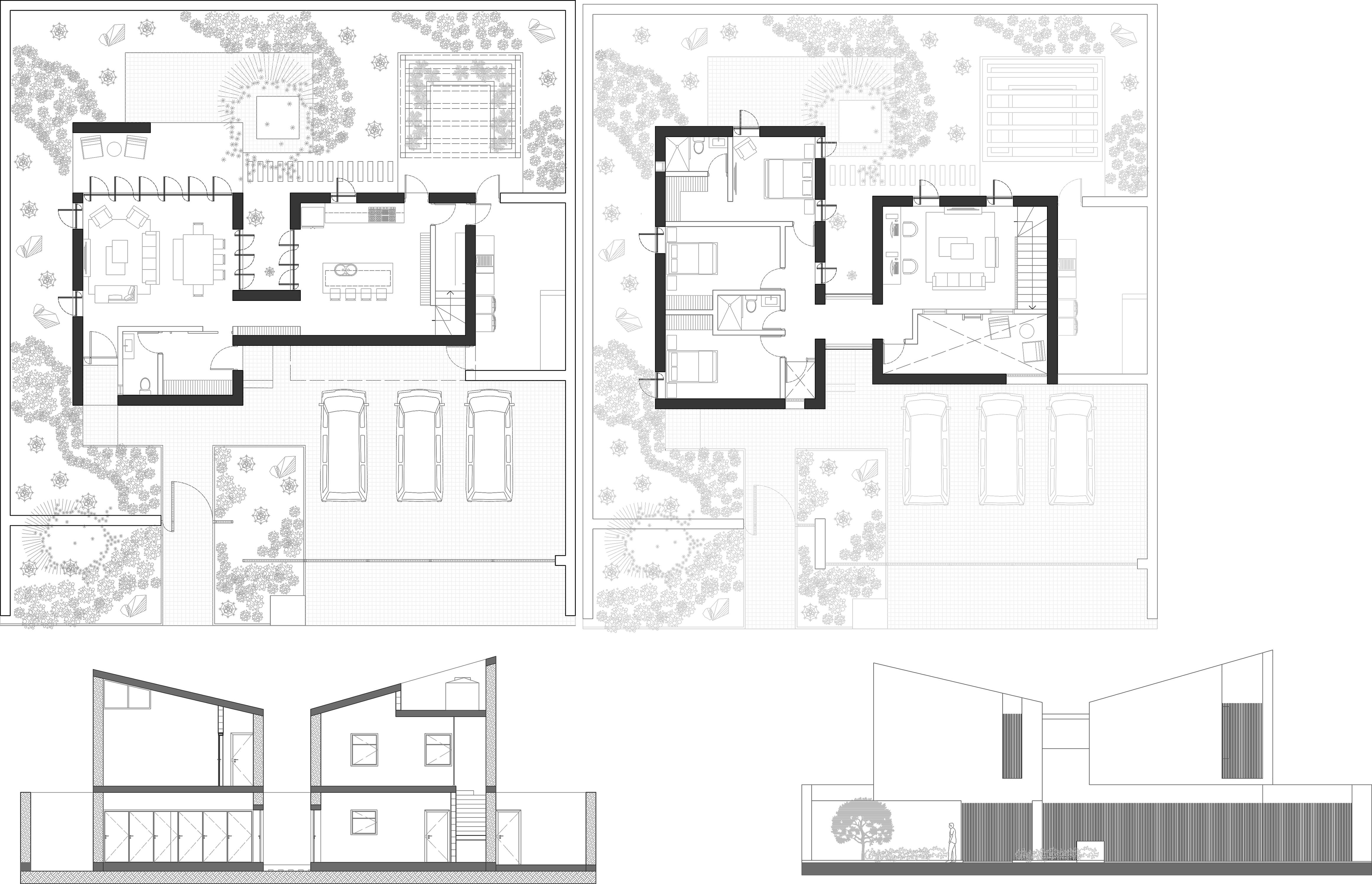
Q-HOF es un proyecto de 16 unidades habitacionales que se ubica en la área norte de Cd. Obregón. Situado en una calle con casi nula vecindad, cuenta con una vista panorámica al espacio natural endémico de la región.

El edificio esta conformado por modulaciones individuales en forma de "L" apiladas estratégicamente, para brindar mayor espacio de terraza al aire libre para los residentes. Jugando así con la apariencia de vista y vacío de su fachada.

Siendo unidades habitacionales de dos tipos, familiares y singulares; el edificio también responde a las necesidades básicas de lavandería, restaurant, tienda de autoservicio. En el exterior brinda espacios públicos para recreación, áreas deportivas, alberca y gimnasio.

Zepeda Gabriela 3
CONDOMINIOS RESIDENCIALES 4

Unidad Habitacional - Singular

Zepeda Gabriela 5
Planta Lobby
CONDOMINIOS RESIDENCIALES 6
Zepeda
7
Gabriela
CONDOMINIOS RESIDENCIALES 8
Zepeda Gabriela 9
CONDOMINIOS RESIDENCIALES 10
Zepeda Gabriela 11

Hotel Playa Kaandora

Año: 2022

Equipo: Zepeda Gabriela, Corrales Ana, Jorquera Abigail, Ayón Santiago

Tipo: Proyecto Ejecutivo

Estado: Propuesta Borrador

Islas Mujeres siendo uno de los destinos mas paradisiacos y con mayor auge turístico, da un gran salto a su arquitectura tradicional hotelera para albergar un Hotel Playa con estilo vanguardista.

En un predio de 140m de frente de playa, una topografía que baja hasta nivel del mar y una importante área natural de manglar a conservar nace este proyecto.

Varios estudios de distribución, aprovechamiento del predio y respeto al área natural llevaron a crear un partido arquitectónico que básicamente se divide en un bloque central. Que alberga el programa arquitectónico en su totalidad.

Con 120 unidades habitacionales, que van desde sencilla, doble, ejecutiva y suite. Con una panorámica al mar caribe.

HOTEL PLAYA KAANDORA 12
Zepeda Gabriela 13

La entrada principal al lobby del hotel se distingue por su gran fuente central que divide el área de recepción con la zona de conferencias

El hotel cuenta con instalaciones para albergar conferencias, y espacios aptos para trabajos grupales o salas de conferencia individuales.

HOTEL PLAYA KAANDORA 14
Zepeda Gabriela 15

Diseño interior habitación ejecutiva

HOTEL PLAYA KAANDORA 16
Zepeda Gabriela 17
HOTEL PLAYA KAANDORA 18
Diseño interior habitación suite

Diseño interior habitación sencilla

Zepeda Gabriela 19
HOTEL PLAYA KAANDORA 20
Zepeda Gabriela 21
PLAYA KAANDORA 22

Un proyecto habitacional enfocado en una arquitectura sustentable. Desde la elección de sus materiales, hasta el diseño pasivo, esta casa esta concebida para habitarse en confort.

La materialidad de sus paredes se encuentra a base de elementos económicos y fáciles de hallar en la región, paja. Apilados en canto , trabajando en conjunto con recubiertos de maya electrosoldada reticular; revoque de barro; y un revestimiento de cal, forman el muro de barrera exterior de este hogar.

Aprovechando su emplazamiento para crear un área social dividida en dos partes, la casa tiende a refrescarse con la ventilación cruzada de sus ventanas. Así como muros de 40cm de grosor. Esta preparada para altas temperaturas en verano.

Casa Sustentable

Año: 2022

Equipo: Zepeda Gabriela, Corrales Ana, Jorquera Abigail

Tipo: Anteproyecto Arquitectonico

Estado: Propuesta Borrador

Zepeda Gabriela 23
CASA SUSTENTABLE 24
Zepeda Gabriela 25
Planta Baja Elevación Noreste
CASA SUSTENTABLE 26
Planta Alta Corte Transversal

Centro Juvenil Cultural e Investigación

Año: 2022

Equipo: Zepeda Gabriela, Corrales Ana

Tipo: Proyecto Ejecutivo

Estado: Propuesta Borrador

Se considera un centro de documentación recursos que reúnan la para un buen funcio deberá impulsarse des un modelo de Red Na que asegure un espac en su capacidad para nuevo usuario: uno con de información, comun lectura. La cultura es garantizarse en espacio ciudadanos deben tene

Zepeda Gabriela 27

o educativo, un centro e investigación con as condiciones precisas onamiento. Todo ello sde la perspectiva de acional de bibliotecas io que vayan más allá a dar atención a un n mayores necesidades nicación y espacios de un derecho que debe os al los que todos los er acceso.

Uno de los principales problemas que enfrenta la comunidad es la falta de proyectos de desarrollo cultural, la idea es generar un punto de encuentro para la comunidad, el cual permita el desarrollo de actividades culturales y de promoción a la investigación. El objetivo es con el fin de reducir los altos índices de violencia y aumentar la calidad de vida de la zona. Reforzar el desarrollo y calidad educacional del sector a la población juvenil.

CENTRO JUVENIL CULTURAL E INVESTIGACIÓN 28
Zepeda Gabriela 29 Conceptualización Inicial
Morfología Zonificación CENTRO JUVENIL CULTURAL E INVESTIGACIÓN 30
Zepeda Gabriela 31 Plano de Conjunto
CENTRO JUVENIL CULTURAL E INVESTIGACIÓN 32
Corte B-B'
Plano de Conjunto Zepeda Gabriela 33
CENTRO JUVENIL CULTURAL E INVESTIGACIÓN 34
Corte A-A'
Zepeda Gabriela 35
CENTRO JUVENIL CULTURAL E INVESTIGACIÓN 36 Entrada a Plaza Exterior
Zepeda Gabriela 37
CENTRO JUVENIL CULTURAL E INVESTIGACIÓN 38
Plaza Principal

Espacios de trabajo - Biblioteca

Zepeda Gabriela 39
CENTRO JUVENIL CULTURAL E INVESTIGACIÓN 40 Biblioteca

Taller de Pintura - Edificio Cultural

Zepeda Gabriela 41

Entrada a Edificio Cultural

CENTRO JUVENIL CULTURAL E INVESTIGACIÓN 42

Contacto

PORTAFOLIO
zepedagabriela@gmail com
Arq. Zepeda Gabriela arq

Turn static files into dynamic content formats.

Create a flipbook
Issuu converts static files into: digital portfolios, online yearbooks, online catalogs, digital photo albums and more. Sign up and create your flipbook.