Skip to main content

Maple Meadows Phases 4 & 5 CCR's

Page 1


NARRATIVE

THE PURPOSE OF THIS SURVEY IS TO SUBDIVIDE DEVELOPMENT TRACTS AAND B OF MAPLE MEADOWS,PHASE PAGE 679, DESCHUTES COUNTY OFFICIAL RECORDS,AND ADDI OS INTO LOTS, DEVELO OCREATE EASE

RECO AND HELDAS SHOWN ND HELD ASSH W HEREO TIVITIES,THUS, HAVE BEEN RESET AT RECORD HOWN HERE THE MO MAPLE MEADOWS, PHASE3 HOWN UT NOT RECOVERED DUETO AID MONUMENTS USE THEIRLOCATIONS PLAT

MAPLE MEADOWS, PHASES 4 AND 5

A REPLAT OF DEVELOPMENT TRACTS A AND B OF MAPLE MEADOWS, PHASE 3 AND SUBDIVISION OF ADDITIONAL LANDS LOCATED IN THE NORTHEAST ONE-QUARTER (NE1/4) OF SECTION 8, TOWNSHIP 15 SOUTH, RANGE 13 EAST, WILLAMETTE MERIDIAN, CITY OF REDMOND, DESCHUTES COUNTY, OREGON OCTOBER 2019

MAPLE MEADOWS, PHASES 4 AND 5

A REPLAT OF DEVELOPMENT TRACTS A AND B OF MAPLE MEADOWS, PHASE 3 AND SUBDIVISION OF ADDITIONAL LANDS LOCATED IN THE NORTHEAST ONE-QUARTER (NE1/4) OF SECTION 8, TOWNSHIP 15 SOUTH, RANGE 13 EAST, WILLAMETTE MERIDIAN, CITY OF REDMOND, DESCHUTES COUNTY, OREGON OCTOBER 2019

CURVE TABLE CURVE TABLE

CURVE

C3 35.10 70.00 2843'34 N2354'42E 34.73' C61 171.25 875.00 1112'50 S8451'19E 170.98

C4 52.97 70.00 N1207'42 W 51.71 C62 34.47 25.00 79.00'02 S39'44'53E 31.80

C5 6.37' 70.00 N3042'14E 6.36 C63 34.44 25.00 856'08 S39*13'12 W 31.78'

C6 45.84 70.00 3731'22 N09 20'12"E 45.03 C64 172.74 875.00' 11"18'40 N84'20'36E172.46

C7 31.56 2220'23W 31.29 C65

C8 45.83 70.00 N4524'02

MAPLE MEADOWS, PHASES 4 AND 5

A REPLAT OF DEVELOPMENT TRACTS A AND B OF MAPLE MEADOWS, PHASE 3 AND SUBDIVISION OF ADDITIONAL LANDS LOCATED IN THE NORTHEAST ONE-QUARTER (NE1/4) OF SECTION 8, TOWNSHIP 15 SOUTH, RANGE 13 EAST, WILLAMETTE MERIDIAN, CITY OF REDMOND, DESCHUTES COUNTY, OREGON OCTOBER 2019 NO2'02'56"E 193.10

MAPLE MEADOWS, PHASES 4 AND 5

A REPLAT OF DEVELOPMENT TRACTS A AND B OF MAPLE MEADOWS, PHASE 3 AND SUBDIVISION OF ADDITIONAL LANDS LOCATED IN THE NORTHEAST ONE-QUARTER (NE1/4) OF SECTION 8, TOWNSHIP 15 SOUTH, RANGE 13 EAST, WILLAMETTE MERIDIAN. CITY OF REDMOND, DESCHUTES COUNTY, OREGON OCTOBER 2019

MAPLE MEADOWS, PHASES 4 AND 5

A REPLAT OF DEVELOPMENT TRACTS A AND B OF MAPLE MEADOWS, PHASE 3 AND SUBDIVISION OF ADDITIONAL LANDS LOCATED IN THE NORTHEAST ONE-QUARTER (NE1/4) OF SECTION 8. TOWNSHIP 15 SOUTH, RANGE 13 EAST, WILLAMETTE MERIDIAN, CITY OF REDMOND, DESCHUTESCOUNTY, OREGON OCTOBER 2019

MAPLE MEADOWS, PHASES 4 AND 5

A REPLAT OF DEVELOPMENT TRACTS A AND B OF MAPLE MEADOWS, PHASE 3 AND SUBDIVISION OF ADDITIONAL LANDS LOCATED IN THE NORTHEAST ONE-QUARTER (NE1/4) OF SECTION 8, TOWNSHIP 15 SOUTH, RANGE 13 EAST,WILLAMETTE MERIDIAN, CITY OF REDMOND, DESCHUTES COUNTY, OREGON R 2019

TITLE ENCUMBRANCES AND NOTES

AS DISCLOSED IN AMERITITLE ORDER NO.272391AM, EFFECTIVE10/04/2019

QUITCLAIM DEED FOR TRANSFER OF INTEREST IN A WATER RIGHT RMS AND PROVISIONS

REC

INSTRUMENT NO.: 2008-2091

AN IRRIGATION EASEMENT INCLUDING TH

RECORDED: JULY2,

INSTRUMENT NO.: 8-

BLANKETEASEMENT OVE T PROPERT

THIS EASEMENT WAS RELEASED, ABANDONED ANDQUIT CLAIME STATED IN DEED 2019-00873.

AN IRRIGATION EASEMENT THEREIN AS SET FORTH IN INSTRUMENT: ENTRAL ORE

UARY 10, 20 2019-0087 SHOWN HEREON FEREN ROCESS. THUs

TRU OR: HAYDE

DATED: MARCH 11, 2

(AFFECTS ONLY A PORTION OF

RECORDED: SEPTEMBER 26, 20 BET 019-36 AND: CITY OF REDMOND, AN ORE ACKNOWLEDGMENT

STATE OF OREGON s COUNTY OF DESCHUTESathDAY OF OCT B R JIM SANSE HAYDE C, A LIMITED LIABILITY COMPANY OF ACKNOWLEDGED AND

Kimberly D. Gutheie

PRINTED NAME: NAME: Kimbeely D.GuthRie

COMMISSION NO:987928

MY COMMISSION EXPIRES: m92 20th2023 ACKNOWLEDGMENT

STATE OF OREGON 55 COUNTY OF DESCHUTES ONTHIS 8 DAY OF October HOMES

MAPLE MEADOWS, PHASES 4 AND 5

A REPLAT OF DEVELOPMENT TRACTS A AND B OF MAPLE MEADOWS, PHASE 3 AND SUBDIVISION OF ADDITIONAL LANDS

LOCATED IN THE NORTHEAST ONE-QUARTER (NE1/4) OF SECTION 8, TOWNSHIP 15 SOUTH, RANGE 13 EAST, WILLAMETTE MERIDIAN, CITY OF REDMOND, DESCHUTES COUNTY, OREGON OCTOBER 2019

DECLARATION

KNOW ALL PERSONS BY THESE PRESENTS THAT HAYDEN HOMES LLC, A LIMITED LIABILITY COMPANY OF SIMPLE OF THE LAND SHOWN ON THIS PLAT, HAS CAUSED SAID LAND TO BE SURVEYED AND SUBDIVIDED INTO 8, DEVELOPMENT TRACTSA AND B, COMMON AREA TRACTS L,M,

O.R.S. CHAPTER 92, AS SHOWN ON THIS PLAT: TE THE PIOSTREET STREET COMMON AREA TRACTS L, M, N, O, P, Q AN SHALL BE USED TO C

OMMUNICATIONS SERVICES AND FORTHE UNREST AND VEGETATION PLACED WITH SURFAC E CITY CONTAINED IN THIS R PARKING AREAS, TRAILS, PATHS,S

ITED TO; PERMANEN

PRO TILITIES SHALL BE RESPONSIBLE F RELA E. PROPERTY

LANDSCAPEANDSURFACE MAIN WNER'S USE OF ITS PROPE

PUBL

SLOP RTING THEADJAG

SHALL BE NON-EXCLUS

SIDEWALKSAND EARTH CUT SE THE SURFACE RIGHTS CONTAINED IN THIS EAS CES, OR ANY EXCAVATION OR ALTERATION

SIDEWALKS AND EARTH S IN THE EASEMENT WITHOUT THE WRITTEN CONSENT OFTHE CITY. THE EASEME ENCU OPERTY. PROPERTY OWNER SHALL BE RESPONSIBLE MAINTENANCE SIDEWALKS, ANDRELATED FACILITIES LOCATED WITHIN THE EASEMENT AS REQUIRED FOR SIDEWALKSAND A SEPARATELY RECORDEDMAINTENANCE AGREEMENT BETWEEN THE CITY AND T PROPERTY OWNER. PROPERTY OWNER SHALL ALSOBE RESPONSIBLE FOR LANDSCAPE AND SURFACE MAINTENANCE WITHIN THE EASEMENT. AND DOESHEREBYSUBMI ORAPPROVALAND R BE SO KNC

JIM SANSBURN,HAYDEN HOM

DEN EN WATSON WAT APPROVALS

HEREIN PLAT HAS BEEN APPROVED BY:

SURVEYOR'S CERTIFICATE I, ANDREW N

ASSESSOR'S CERTIFICAT

After Recording Return To:

City of Redmond 716SWEvergreen Avenue Redmond, OR97756 02/19/2008 02:55:37 PM

ANNEXATION AGREEMENT

ThisAnnexation Agreement is made and entered into this 12 dayof Febrray. 2008 by andbetween the City of Redmond, Oregon, an Oregon municipal corporation (hereinafter "City")and Pewhollowo's et ad (hereinafter "Owner").

WITNESSETH

WHEREAS, Owneristhe record owner of the property legally described on Exhibit 1 attached heretoand incorporated herein (hereinafter referred to as the "Property"); and

WHEREAS, the Property is within the City's urban growth boundaryand is proposed to be annexed to the City; and

WHEREAS, Owner desires to havethe Property annexed to the City; and

WHEREAS, Ownerwill submit a petition for annexation and provide the City with all required consents for annexation; and

WHEREAS, the City is willing to annex the Property on the terms and conditions, and subject to the provisions, of this Agreement; and

WHEREAS, Owner desires to submit development applicationsand the Cityis willing to accept, process, and conditionally approve development applications prior to the rezoning of the Property subject to theterms of this Agreement, and

WHEREAS, the City will initiate ultimateurban zoning upon adoptionof applicable Public Facilities Plans; and

WHEREAS, the City and Owner desire toenter into this Agreement to regulate the annexation, zoning, use and development of the Property; and

WHEREAS, should a property owner who chooses not to execute the Annexation Agreement, refuses to grant a right-of-way and/or easement across his or her property in accordance with the City's Public Facilities Plans, the City may institute condemnation proceedings to effectuatesuch right-of-way and/or easement, or modify the Public FacilitiesPlans to bypass the property, in order to accommodate the orderly construction ofthe public infrastructure; and

WHEREAS, Council will consider this annexation on Febuary thisagreement is part of theannexation.

12,2008and

NOW, THEREFORE, in consideration of the representations,promises and mutual covenants contained herein,the City and Owner agree as follows:

1. RECITALS: The foregoing recitals are incorporated herein as is fully set forth inthis Section.

ANNEXATION

a. City agrees that itwillinitiate a resolution annexing the Property into theCity once all required consents and signed Annexation Agreements have been received bytheCity.

b.

Owner may terminate this Agreement by serving written notice to the City no less than 60 days prior to the effective date ofthetermination. The notice must be receivedby the City at least 60 days prior to the public hearings for council consideration of the annexation. If the City receives such notice, this Agreement terminates as of the effective dateof the notice. After the annexation resolution is adopted by the City, thisAgreement may only be terminated by written consent of Owner and City.

ZONING: At the time of the annexation, the City will apply the Comprehensive Plan designationsfor the Property identified in the adopted AreaPlan, andwillapplyUH-10 zoning. Subsequently, zoning in compliance with the Area Plan and any subsequent amendments to that plan will occur through a public process following the adoption of the updated PublicFacilities Plan (the current AreaPlanisshown as Exhibit2).

4. DEVELOPMENT: Owner agreesas follows: a.

Ownershallwaive and shall not assert anyclaim against the Citythat may now exist or that may accrue through the date of annexation of the Property. This includes any claim arising out of this agreement, any land use regulation, or under Measure 37 (ORS 197.352), Measure 49,and Measure 56 (ORS227.186).

Owner agrees that any development of the property will comply with the applicable approved Arca Plan and will incorporate and follow the City's Great Neighborhood Principles (attached as Exhibit 3) as applicable. The CommunityDevelopment Director or Hearings Body shall determine the applicability of the Great NeighborhoodPrinciples to the subject property as necessary.

Owner agrees that it will, without any cost to the City, dedicate the necessary rights-ofway or easements forall Planned Improvements identified inthe City's Public Facilities Plan, prior to annexation. The Public Facilities Plan includes the updated Wastewater and WaterMaster Plans and TransportationSystem Plan. The City's Comprehensive Plan and Transportation System Plan identify the necessary rights-of-way for minorarterialto be 100 feet (50' each side of center line) and for major collectorstreets to be80 feet (40' each side of center line). Specific conditions of development maybe stated in an exhibit to this Agreement.

Owners in the Northwest Area Plan boundaries agree to donate funds to the Redmond School District as specified in Exhibit4. The donationis in addition to any amounts identified by a school district under chapter 829, Oregon Laws 2007.

Owners shall be strongly encouraged to construct an appropriate mix of housing as demonstrated by area plans in order to respond to community housing needs. Furthermore, the City will encourage Owners to create dedicated affordable housing for lowandmoderateincome households by creating development and permitting incentives that are outlined inthe City's AffordableHousing Plan.

Owner shall remove all irrigation water rights from Property, unless partial use is otherwise approved by the Redmond City Council and/or Central Oregon Irrigation District (COID). Owner is directed to remove watervia sale or transfer to the Deschutes Water Alliance (DWA) Water Bank via the COID. Sale or transfer of water rights to the DWA Water Bank ensures adequate mitigation credit availability to offset theimpactof growth within the Deschutes Basin and provides for future growth within the City of Redmond. Removal shall occur prior to the platting of the first phase of development. Alternate methods of removal will require approval ofthe Director of Public Works.

City will accept andreview development plans under anticipated zoning and proposed Public Facilities Plan. However the City will not issue any building permits for the Propertyuntil after theCity has applied zoning and adopted a revised PublicFacilities Planand System Development Charges. This includesresolutionof all appeals relating to provide transportation, water, wastewater and park facilities to serve the Property. Notwithstanding ORS 227.178 (3), Owner agrees that development applications forthe property will be reviewed under the updated Public Facilities plan and System DevelopmentCharges.

City will issue necessary permits to allowconstruction of necessary public facilities to serve the Property in advance of adoption ofPublic Facility Plans provided the developer assumes all risks and indemnifies the City from any claims arising out of the construction. This includes the risk that the City, through a public process, may zone the Property in a manner different than anticipated by Owner.

Owner agrees to not remonstrate against the formation of a local improvement district or reimbursement district created for the purpose of funding public improvements that serve the Property.

AMENDMENT: This Agreement and any exhibitsattached heretomaybeamendedonly by the mutual written consent of both parties.

6. SEVERABILITY: If any provision, covenant or portion of this Agreement or its application to any person, entity, property or portion of property is held invalid, or if any ordinance or resolution adopted pursuant to this Agreement or its application to any person, entity, property or portion of property is held invalid, such invalidity shall not affect the application or validity of any other provisions, covenants or portions of this Agreement or other ordinances or resolutions passed pursuant hereto, and to that end, all provisions, covenants, and portions of this Agreement and of the ordinances and resolutions adopted pursuant hereto are declared to be severable.

7. NOWAIVER OF RIGHT TO ENFORCE AGREEMENT: Failure of any party to this Agreement to insist upon the strict and prompt performance of the terms, covenants, agreements and conditions herein contained, or any of them, upon any other party imposed,shall not constitute or be construed as a waiver or relinquishment of any party's right thereafter to enforce any suchterm, covenant,agreement or condition, but the same shall continue in full force andeffect.

8. ENTIRE AGREEMENT: This Agreement supersedes all prior agreements, negotiations andexhibits and is a full integration of the entireagreement of the parties relating tothe

subject matter hereof.The parties shall have no obligations other than specifically stated in this Agreement except those of general applicability.

SURVIVAL: The provisions contained in this Agreement shall survive the annexation of thepropertyandshall not be merged or expunged by theannexation of the property or any part thereof to the City.

SUCCESSORS AND ASSIGNS: This Agreement shall run withthe land described on Exhibit A and inure to the benefit of, and be binding upon, the successors in title of the Owners and their respective successors, grantees, lessees, and assigns, and upon successor corporate authorities of the City and successor municipalities.

TERM OF AGREEMENT: This Agreement shall be binding uponthe parties andtheir respective successors and assigns for the full statutory term of twenty (20) years, commencing as of the date of this Agreement.

ENFORCEMENT: Owner agrees that if it fails to perform as required under this Agreement, the City Council may, at the City Council's option, refuse to process any development application submitted for the property or include as conditions of approval any requirement of this Agreement. Owner hereby waives any claim regarding such conditions of approval, whether to LUBA or toanystate or federal court.

13. ATTORNEY FEES: In any proceeding to enforce, apply or interpret this Agreement, each party shall bear its own attorneys' fees and costs.

IN WITNESS WHEREOF the parties hereto have executed this Agreement on the date first above written.

STATE OF OREGON

County of Deschutes ) ) ss.

5th February

This instrument was acknowledged before me this 0day of Janag 2008 by Michael Patterson,City Manager, on behalf of the City of Redmond, who acknowledged that hehad authority to sign on behalf of the City of Redmond and this instrument to be the City's voluntary act and deed.

OFFICIAL SEAL

DE ANNE WAKEFIELD

NOTARY PUBLIC-OREGON

COMMISSION NO. 378991

MY COMMISSION EXPIRESAPR. 11,2008

Dehane Weakfild

Notary Public for Oregon Expires:Aprit11,2008

STATE OFOREGON ) ) ss.

County of Deschutes

This instrumentwas acknowledged before me this 30 day of Januarg 2005 by Clyde E. Penhollow who acknowledged this instrument to behis/her voluntary act and deed.

OFFICIAL SEAL

TAMI R BURKHART

NOTARY PUBLIC-OREGON

COMMISSION NO. 400077

MY COMMISSION EXPIRES JANUARY 28,2010

STATE OF OREGON }

County of Deschutes ) ) Ss.

Dami R.art

Notary Publicfor Oregon

This instrumentwas acknowledged before me this30 day of Jang4. 2008 by michad L. Penhollow who aeknowledged this instrumentto be his/her voluntary act and deed.

OFFICIAL SEAL

TAMI R BURKHART

NOTARY PUBLIC-OREGON

COMMISSION NO. 400077

MY COMMISSION EXPIRES JANUARY28, 2010

DamiR.

Notary Public for Oregon

STATE OF OREGON

CountyofDeschutes ) )SS. )

Thisinstrument was acknowledged before me this 30 day of Jan. 2008 by Carroll D. Penhello who acknowledged this instrument to be his/her voluntary act and deed.

OFFICIAL SEAL

TAMI R BURKHART

NOTARY PUBLIC-OREGON COMMISSION NO. 400077 MY COMMISSIONEXPIRES JANUARY28, 2010

STATE OF OREGON

County of Deschutes ) ss. )

PamiR. Bart

Notary Publicfor Oregon

Thisinstrument was acknowiedged before me this 30 day of Jan. 2008 by Sharon L. Penhollow _ who acknowledged this instrumentto be his/her voluntary act anddeed.

OFFICIALSEAL

TAMI R BURKHART

NOTARYPUBLIC-OREGON COMMISSION NO. 400077 MY COMMISSIONEXPIRESJANUARY 28, 2010

PamiR. t

Notary Public for Oregon

Washington

STATEOF OREGON

CIARK

County of Desehutes ) ) ss.

S7

This instrumentwas acknowledged before me this31 day of JanuaRy 2008 by James E. Penhollow who acknowledged this instrument to be his/her voluntary act and deed.

Notaty Public forregen Washington.

.YUNE 10, 2000

STATE OF OREGON

County of Desehutess ) ss. }

MaRion

This instrument w s acknowledged before me this day of 18 dayonJebruary 2008acknowledged this by Willam &.fenhollow instrument to be his/her voluntary act and deed. who

Notary Public foy Oregon OFFICIAL SEAL TABITHA J TIMPSON NOTARY PUBLIC- OREGON COMMISSIONNO. A384643 MY COMMISSION EXPIRESSEPT. 12. 2008

Order No. 12-0096904

Page No. 4

PARCELI:

" "

Description of a parcel of land situate in a portion of the SouthwestQuarter of the Northeast Quarter (SW 14 NE 14) of Section 8, Township 15 South, Range13 East, Willamette Meridian, Deschutes County, Oregon, and now to be more particularly described as follows:

Commencing at a brass cap at the East 4 comer of Section 8, Township15 South, Range 13 East,Willamette Meridian, the initial point; thence North 89°45'24"West along the Southlineof the Northeast Quarter(NE 14) of said Section - 1317.64 feet to the Center- East 1/16th corner and the true point of beginning; thence North 00°20'59"East along the East line of the Southwest Quarter of said Northeast Quarter (SW 14 NE 4) - 1318.77 feet to the NE 1/16th corner; thence North 89°53'52" West along the North line ofsaid Southwest Quarter of the Northeast Quarter (SW 14 NE 14) - 988.69 feet to theEast line of the West Half of the West half of saidSouthwest Quarter of the Northeast Quarter (W ½ W½ SW ½NE 4); thence South 00°19'47" West alongsaid East line - 1316.33 feet to the South line of said Northeast Quarter (NE 14); thence South 89°45'24" Eastalong said South line - 193.39 feet to a ½' pipe at the Southwest corner of that parcel conveyed to Carroll D. Penhollow and SharonLeePenhollow in deed recorded as Document No. 199-59, Deed Records; thence North 02°31'36" East along the East line of said Penhollow parcel - 470.03 feet to a ½" pipe; thence South 82°43'11" East along the North line of saidPenhollowparcel - 231.22 feet to a 2" pipe; thence South 00°15'26" West along the East line of said Penhollow parcel - 441.33 feet to a 12" pipe on the South lineof said Northeast Quarter(NE 14); thence South 89°45'24" East along said South line -546.74 feet to the point of beginning.

PARCELII:

Description of a parcel of land situate in and being the WestHalfof the WestHalf of the Southwest Quarter of the Northeast Quarter (W ½ W /½ SW 14 NE 1¼) of Section 8, Township 15 South, Range 13 East, Willamette Meridian, Deschutes County, Oregon, and now to be more particularly described as follows:

Commencing at a brass capat the East 4 cormer of Section 8, Township 15 South, Range 13East, Willamette Meridian, the initial point; thence North 89°45'24" Westalong the South lineof the Northeast Quarter (NE 1½) of said Section 8-2635.28 feet to the center of said Section 8 (Center 14) and the true point of beginning; thence North 00°19'24" East along the West line of said Northeast Quarter (NE ½) - 1315.52feet to the Center- North 1/16tht corner; thence South 89°53'52" East along North line of the Southwest Quarter of said Northeast Quarter (SW 14 NE 14) - 329.56 feet to the East line of the West Half of theWestHalfofsaid SouthwestQuarter ofNortheast Quarter (W½ W /

EXHIBI

Order No. 12-0096904

Page No.5

SW 14 NE 1/4); thence South 00°19'47' West along said West line - 1316.33 feet to the Southline of said Northeast Quarter (NE 14); thence North 89°45'24" West along said South line 329.41 feet to the point of beginning.

PARCEL III:

Description of a parcel of land situate in the Southwest Quarter of the Northeast Quarter (SW 14 NE 14) of Section 8, Township 15 South, Range 13 East, Willamette Meridian, in Deschutes County, Oregon, and now to be more particularly described as follows:

Commencing at the East 14 corner of said Section 8, the initial point; thence North 89°43'00" West, along the South line of the Northeast Quarter (NE 14) of said Section 8, 1864.382 feetto the point ofbeginning; thence North 00°17'50" East, 441.33 feet; thence North South 82°40'47" West, 231.22 feet to an existing fence; thence South 02°34'00"West, 470.03feettothe South line of said Northeast Quarter (NE 1½); thence South 89°43'00" East, along the Southline of the said Northeast Quarter (NE 14), 248.10 feet to the point of beginning.

Northwest Area Plan

City of Redmond

Note: Locations ofland uses and publicfacilities (e.g.,parks, bads and schools) are approximate. Locations may be refined as part ofthe development review and permitting process as long as they do uot significantly alterthe mix ofland uses and densities indicated and are consistent with thegoalsandobjectives ofchis planand the Ciry's Comprehensive Plan.

1.

Great Neighborhood Principles

Walkable and bikeable urban development. The Plan provides a complete street network and integrated trailsystem within the master planned area with links / connections to existing and planned trail facilities.

2. Interconnected streets. Streets shall be integrated withinthe master planned area and to adjoining existing neighborhoods or planned areas consistent with adopted city transportation policies and regulations for applicable street classifications.

3. Housing types anddensities. The Plan provides for a mixof housing typesand densities, such as single family detached and attached dwellings in multi-plexes, townhouses, and multi-family apartments.

4. Open spaces, greenways,recreation. The Master Plan includes useable open spaces withrecreation amenities within walking distance, and integrated and connected greenways throughout the master planned area andtothelarger community. Parks and plazas should be provided to create public gathering places, and significant geological featuressuch as rock outcroppings, stands of native trees, and similar features should be preserved and incorporated into the master plan.

5. Diverse mixof activities. A varietyof uses will be provided within walking and biking distance or a short drive from homes. The uses may include residential, public or semi-public, open space, commercial,employment, and similar uses and activities.

6. Canal trails. If canals are present in the area proposed for the master plan, the plan should incorporate multi-use trails at least 10 feet wide along both sides of the canal,subject to the Central Oregon Irrigation District's review and approval. Pedestrian amenities such as benchesand trash receptacles shall alsobe identified and provided at logical locations.

7. Public art is encouraged at prominent locationswithin master planned areas.

8. Scenic views. Scenic viewsand corridors of the Cascade Range, Ochoco Mountains, andSmith Rock should be identified and preserved to the greatest degreepossible. Streets, public buildings, and common or public open spaces should be located and oriented to captureand preservescenic views for the public.

9. Environmentally friendlyandenergy efficient design is encouraged to be incorporated in all facets of the Master Plan, such as the planting of native, drought-resistant landscaping to provide shade and to minimize water usage.

10. Urban - rural interface. Urban developmentshall interface with rural areas through open space buffers or through transitions from higher density development to lower density development at the urban fringe, or other appropriate and equivalent transitional elements.

11. Integrated design elements. Streets, civic spaces, signage, and architecture shall be coordinated to establish a coherent and distinct place in the community, and unique character of the specific area in which the Master Planis proposed inorderto advance Redmond's GreatNeighborhoods policies.

ANNEXATION AGREEMENT EXHIBIT 4

Redmond School District Donation

PURPOSE: This contribution shall be used for the purpose of helping the Redmond Oregon School District, acquire by purchase, certain identified real property more particularly described as Parcel (1) of Partition Plat No.1996-25,being located in the Southwest Quarter (1/4) oftheSection Five (5), Township Fifteen (15) South, Range Thirteen (13), East ofthe Willamette Meridian, DeschutesCounty Oregon. This purchase shallbe identified as a site for thefuture construction of public school(s) inthe Redmond Oregon School District. This contribution is independent ofany other funding mechanism available to the School District, including public or private moneys, and shall be considered in addition to any such sources offunding.

AGREEMENT madebetweenthe above named SchoolDistrictandthe Owner(s) as identified in theCityof Redmond Oregon Annexation Agreement to which this is Exhibit 4,whereby the named Owner(s) shall contributethe sum of Three hundred dollars ($300.00) for every unit of residential construction,fifty-five dollars ($55.00) for every apartment unit, and twenty cents ($0.20) per square footofcommercial space, built or constructed by the Owner(s). The payment of this contributionshall be made at the time the City ofRedmond Oregon issues a building permit forthesaidconstruction.

WHEREAS, the Redmond OregonSchool Districtis a public entity, as thus qualifies as a charitable organization under the Internal Revenue Code; and has as its primary purpose public education, itfrom time to time solicits and otherwise receives gifts and contributions from private citizens and companies. This donation by the Owner(s) will bemade to theSchool District to help with the cost ofland purchase as described above.

NOW, THEREFORE, in consideration ofthe foregoing, the Owner(s) hereby agrees to give,donate, contribute, transfer and deliver to the RedmondOregon School District the Total Contribution set forth above, whichshallbe payable as set forth above, as a charitable giftandcontribution(to the extent permitted by the state and federal tax codes) to be usedfor thepurpose as forth above and shall be binding on the Owner(s) successors and assigns.

Deschutes County Official Records

After recording, returnto:

Metolius Housing Investment Fund, LLC 2464 SWGlacier Place, Suite 110 Redmond, Oregon 97756

I,Nancy Blankenship, County Clerk for Deschutes County, Oregon, certify that the instrument identified herein was recorded in the Clerk records.

Nancy Blankenship - CountyClerk

DECLARATIONOF PROTECTIVECOVENANTS, CONDITIONS, AND RESTRICTIONS FOR MAPLE MEADOWS

THIS DECLARATION OF COVENANTS, CONDITIONS AND RESTRICTIONS OF MAPLE MEADOWS ("Declaration") is made this 8th day of January 2018, by Metolius Housing Investment Fund, LLC, an Oregon limited liability company, as the Declarant.

RECITALS

WHEREAS, the Declarant isthe owner, or controls, certain real property and improvements thereonlocatedinthe County of Deschutes, Stateof Oregon, referred to as The Plat of Maple Meadows, Phase 1," recorded January 5, 2018, as Document No. 2018-00635 ;and

WHEREAS, Declarant intends to develop the Property as a Class 1 planned community, under ORS 94.550 and to establish the planned development project known as "Maple Meadows", Declarant desires to impose these mutually beneficial covenants, conditions, restrictions, easements, assessments and liens on the Property under a comprehensive general plan of improvement and residential development for the benefit ofall of the Owners, the Lots and Common Areawithin Maple Meadows; and

WHEREAS, Declarant has deemed it desirable for the preservation of thevalues and amenities in "Maple Meadows" tocreate a Homeowners Association, which shall be a non-profit Oregon corporation, to whichwill be delegated and assigned the powers and authority to own, maintain and administertheAssociation and theCommon Area and facilities, and administer and enforce the covenants, conditions, and restrictionsofthis Declaration, and collect and disbursethe assessments andchargeshereinaftercreated.

NOW THEREFORE, the Declarant declares that the Property shall be held, transferred, sold, conveyed andoccupied subject to the following covenants, conditions, restrictions, easements, charges and liens, or as noted herein, which shall run with the landand shall be binding upon all parties having or acquiring any right, title or interest in the Property or any part thereof and shall inure to the benefit of the Association and of each Lot Owner.

ARTICLE 1

DEFINITIONS

1.1. "ArchitecturalReviewCommittee" or "ARC"shall mean the Declarant until 100% ofthe Lots have sold and been constructed or until 10 years after the recording of the Declaration, and thereafter shall refer to theBoard of Directors unless theBoardhas appointed a separate body to carryout the functions described inArticle6 in which case "ARC" shall refer to this body.

1.2."Articles"shall mean the Articles of Incorporation for the non-profit corporation, Maple Meadows Homeowners Association, or such similar name approved by and filed with the Oregon Corporation Commissioner.

1.3. "Association" shall mean and refer to Maple Meadows Homeowners Association, its successors and assigns.

1.4. "Board" or "Board of Directors" shall mean the Board of Directors of Maple Meadows Homeowners Association.

1.5. "Bylaws" shall mean and refer to the Bylaws of the Association, attached hereto as Exhibit "A", and which shall be properly adopted and recorded in the Countyof Deschutes.

1.6. "Common Area(s)" shall mean and refer to any areas of land shown on the recorded platof the Property, commonly designated as "Tracts" or "Common Area Tracts," including any improvements thereon, which are intended to be devoted to the commonuse and enjoyment of the members of the Association, and areas outlinedherein as the maintenance responsibility of the Association, unless provided otherwise in this Declaration. The areas so designated as CommonAreas include, but are not limited to Common Area Tracts A-D. Said Common Areas may include private streets, openspaces or landscaped areas, which will be theAssociation'smaintenance responsibility, as noted in Section5.1 below, and as includedintheannual budget. Additional areas may be maintained by the Association where provided forin this Declaration. Additional areas may be designated Common Areas through annexation of additional phases to Maple Meadows.

1.7. "Conversion Date" shall be the date upon which Class B membership shall cease and be converted to Class A membership. Such date shall bethedatewhich is earlier of (i) the date at which 100% ofthetotalLots anticipated to be created have sold to an Owner other than a Successor Declarant; or (ii) upon written election of the Declarant.

1.8. "Declarant" shall mean and refer to Metolius Housing Investment Fund, LLC, its successors or assigns, or any successor or assign to any oftheir interests in the developmentofthe Property. All successors to Declarantshallhave the same rights and interest as theinitial Declarant. "Declarant"shall not refer to any other subsequent purchaser of a Home.

1.9. "Declaration" shall mean the covenants, conditions, restrictions, and all other provisions set forth in thisDeclaration ofProtective Covenants, Conditions and Restrictions for Maple Meadows.

1.10. "General Common Expenses" shall mean those expenditures made or liabilities incurred by the Association, including reserves. Suchdefinition should also apply to the words, "Common Expenses" as used inthisDeclaration.

1.11. "Home"shall mean andrefer to any portion of a structure situated on a Lot designed and intended for use andoccupancy as a residence by a single family or household.

1.12. "Lot" shall mean and refer to any plot of land indicated upon the recorded Plat map of the Property or any part thereof creating individual Home sites, including any annexations to Maple Meadows.

1.13. "Lot Easement Area" shall meanand refer to those portions of anyLot subject to any easement benefiting theAssociation. The term "LotEasement Area" shall not refer to any portions ofany Lot encumbered by an easement to any other party, including without limitation, any governmental entity.

1.14. "Maple Meadows" shall mean the real property described on the recorded Plat for the Property, and any annexations of additional lands to Maple Meadows, and any Common Area includedwithinthePlatof Maple Meadows, Phase1.

1.15. "Members" shall mean and refer to the Owners of Lots in Maple Meadows and who are members of the Maple Meadows Homeowners Association.

1.16. "Occupant"shall mean and refer to the occupant of a Home who shall be the Owner, lessee or any other person authorized by the Owner to occupy the premises.

1.17. "Owner" shall mean and refer to the recordOwner, including Declarant, whether one or more persons or entities, ofthe fee simple title to anyLot ora purchaser in possession under a landsale contract. The foregoing does not include persons or entities that hold an interestinany Lot merely as security for the performance of an obligation.

1.18. "Plat" shall mean and refer to therecorded Plat ofMaple Meadows, Phase 1 and any annexations tothe original plat.

1.19. "Property" shall mean and refer to allreal property described withinthe Plat of Maple Meadows, Phase 1, andany annexations of additional property, including theCommonArea,andall improvements located on therealproperty, as may be brought within the jurisdiction of the Association and be made subject to this Declaration.

1.20. "Rules and Regulations" shall mean and refer to the documents containing rules and regulations and policies adopted by theBoard of theAssociation or the Architectural Review Committee ("ARC"), and as may be from time to time amended by theBoardand/or ARC.

1.21. "Tract"shall mean a parcel of landshown on the Plat and denoted by the word "Tract" or "Common Area Tract".

1.22. "Turnover Meeting" shallbethe meeting called by the Declarant toturn over control of the Association to theClass A members.

ARTICLE 2

PROPERTY SUB THIS DECLARATION

2.1. The realproperty which isand shall be held, transferred, sold, conveyed and occupied subject to this Declaration is located inthe County of Deschutes, Oregon, in that certain plat map entitled "Maple Meadows, Phase 1" filed intheplat records of Deschutes County, Oregon, more particularly described as consisting of Lots 1-24, and CommonAreaTracts A-D, as shown on the Plat.

2.2. At any time during the initial term of this Declaration, the Declarant may, at itssole option, annex additional propertyinto the Association to be subject to the terms hereof to thesameextent as if originally included herein and subject to such other terms, covenants, conditions, easements andrestrictions as may be imposed thereon by Declarant. Declarant currently anticipates thatthere will be a total of approximately 211 Lots in the Association, butthisLot count may be adjusted at the sole discretion of Declarant. Declarant shall have no obligation of any kind to annex any additional land to the Property.

(a). Eligible Property. There is no limitation on the number of Lots, which Declarant may annex to the Property, or the right of Declarant to annex

common property, except as may be established by applicable ordinances, agreements, or land use approvals.

(b). Consent or JoinderNot Required. Noconsent or joinder ofany ClassAmember as defined inthe Bylaws, attached hereto as Exhibit "A" or otherparty except the record owner of the land being annexed shall be necessary to effect any annexationmade pursuant to this Section.

(c). Declaration of Annexation. Annexation shall be evidenced by a written Declaration of Annexation executed by the Declarant, or (in the case of an annexation by action of members) by the Board andthe owners of the property being annexed, setting forth the legal description of the property being annexed and any additional covenants, conditions and restrictions to be applied to such annexed property. Notwithstanding any provision apparently to the contrary, a declaration with respect to any annexed property may:

(i). establish such new land classifications and Types of Lots and such limitations, uses, restrictions, covenants and conditions with respect thereto as Declarant may deem to be appropriate for the development of the annexed property;

(ii). with respect to existing land classifications, establish additional or different limitations, uses, restrictions, covenants and conditions with respect thereto as Declarant may deem to be appropriate for the development of such annexed property; and/or

(iii). contain provisions necessary or appropriate to comply with any condition, requirement, or imposition of any governmental or regulatory authority.

(d). Voting Rights; Allocation of Assessments. Upon annexation, additional Lots so annexed shall beentitled to voting rights and shall beresponsiblefor payment of assessments as required for that fiscal year. At the beginning of thenext fiscal year, assessments forthe general common areas shall be apportioned equally based upon the total number of Lots following such annexation, but assessments that are relative to a specific product typewillbe spread equally over only theunitsofthat type.

(e). No Duty to Annex. Nothing herein contained shall establish any duty or obligation on the part oftheDeclarant or any member toannexany property into the Association and no owner of property excluded from the Association shall haveany right to have such property annexed thereto. Declarant is under no obligation to build Homes on any or alloftheLots contained inthe original Plats.

ARTICLE 3

OWNERSHIP AND EASEMENTS

3.1. Non-Severability. The interest of each Owner inthe use and benefit of the Common Area shall be appurtenant to theLotowned by theOwner. NoLot shall be conveyed bythe Owner separately fromthe interest in theCommon Area, subject to the provisions of Section 3.3. Any conveyance of any Lot shall automatically transfer the right to use the Common Area without the necessity of express reference in the instrument of conveyance. There shall be no judicial partition of the Common Area. Each Owner, whether by deed, gift, devise or operation of law, for his/her own benefit and for the benefit of all other Owners, specifically waives and abandons all rights, interests and causes of action for judicial partition of any interest intheCommon Area and does further agreethat no action for judicial partition shall be instituted, prosecuted or reduced tojudgment. The ownership interest in the Common Area and Lots described in this Article are subject to the easements granted and reserved inthisDeclaration for drainage, neededmaintenance support and maintenance of the exterior appearance for the Building Structures. Each of the easements reserved or granted herein shall be deemed to be established upon therecordationof this Declaration and shall forever be deemed to be covenants running with the land for the use and benefit of the Owners and their Lots and shallbe superior to all otherencumbrances applied against or infavorof any portion of Maple Meadows.

3.2. Ownership of Lots. Title to each Lot in Maple Meadows shall be conveyed infee to an Owner. If more than oneperson and/or entity ownsan undivided interest inthe same Lot,such person and/orentitiesshallconstitute one Owner.

3.3. Ownership of Common Areas. Title to theCommon Areas, if any, shall be conveyed to theAssociation not laterthan Turnover. TheAssociationshallaccept suchconveyance, and such Property shall thereafter be Common Area Property to be maintained by the Association for the benefit of all ofits Members. The Declarant or the Board of Directors mayconvey title tofuture Common Area Tract(s), if any, to a City, County or other Governmentagency. As per the Plat of Maple Meadows, Phase 1, the Common Area Tracts are owned and maintained as follows, for the benefit of all Association members:

(a) Tract A shall be owned and maintained by the Maple Meadows Homeowners Association, and shall includeopenspaceand a path;

(b) TractB shall be owned and maintained bythe Maple Meadows Homeowners Association, and shall include openspace, a mailbox facility, and a monument sign;

(c) TractCshall be owned and maintained by the Maple Meadows Homeowners Association, andshall include an amenity;

(d) Tract D shall be owned and maintained by the Maple Meadows Homeowners Association, and shall include a walking path.

3.4. Easements. Individual deeds to Lots may, butshall not be required to set forththe easements specified inthisArticle.

(a) Easements on Plat. The Lots and Common Area Tracts are subject to the easements and rights of way illustrated, or noted, on thePlat of Maple Meadows, Phase 1. Theseshall include, but are not limited to, sewer, utility, irrigation, and access easements.

(b) Easementsfor Common Area. Every Owner shall have a nonexclusive right and easement of use and enjoyment in and to the Common Area, which shall beappurtenant to and shall pass with thetitle to every Lot.

to for

(c) Easements Reserved by Declarant. So long as Declarant owns any Lot, Declarant reserves an easementover, under and across the Common Areas in order carry out sales activities necessary or convenient for the sale of Lots. In addition, Declarant hereby reserves to itself, and for its successors and assigns, a perpetual easement and right-of-way for access over, upon and across the Common Areas construction, utilities, communication lines, drainage, and ingress and egress forthe benefit ofthe Lots or other property owned by Declarant. Declarant, for itself and its successors and assigns, hereby retains a right and easement of ingress and egress over, in, upon, under and across theCommon Area and the right to store materials thereonand to make such other use thereof as may be reasonably necessary or incident to construction of the improvements on the Property or other real property owned by Declarant in such a way as to not unreasonably interfere. with the occupancy, use, enjoyment or access to an Owner's Lot by thatOwner or his/her family, tenants, guestsor invitees. the

(d) Additional Easements. Notwithstanding anything expressed or implied to the contrary, this Declaration shall be subject to all easements granted by Declarant for the installation and maintenance of utilities and drainage facilities necessary for the development of Maple Meadows. No structure, planting or other material shallbe placed or permitted to remain within any easement area which may damage or interferewiththe installation or maintenanceof utilities, or which may change the direction of flow of drainage channels intheeasements, or whichmay obstruct or retardtheflow or water through drainage channels inthe easements. The easement area ofeachLotand all improvements thereon shall be maintained continuously by the Owner

ofthe Lot, exceptfor those improvements for which a public authority, utility company or the Association is responsible.

(e) Association's Easements. There are hereby reserved to the Association and its duly authorized agents and representativessuch easements as are necessary to perform the duties and obligations of the Association set forth in this Declaration, the Bylaws andArticles as the samemay be amended or supplemented.

(f) Easement to Governmental Entities. There is hereby reserved and granted a non-exclusive easement over the CommonArea to all governmental and quasigovernment entities, agencies, utilities, and their agents for the purposes of performing theirdutieswithin Maple Meadows.

In addition, an easement is hereby reserved and granted to the City of Redmond for the purpose of removing, repairing or maintaining improvements and other Common Areas in the event such improvements or CommonAreas are not properly maintained or otherwise kept in good order. The City of Redmond has soleandexclusive discretion to determine the need for and timing of any such removal, repair or maintenance. The City may recover the cost of such removal, repair or maintenance by directly billing the record owner of the property(s) subject to the Declaration or the property(s) directly benefited by the removal, repair or maintenance. In the event a bill is not paid, the City may impose a lien on the property(s), which shall berecordedandmay be enforced in the manner of an assessment lien. This provision does not affect the obligations of the Association, group and/or other persons or property owner(s) designated inthe Declaration from any responsibilities or obligations respecting such improvements or Common Areas, nor shall it obligate the City to undertake such removal, repair or maintenance.

(g) Maintenance Easement. An easement isherebyreserved in favor oftheAssociation and its successors, assigns, contractors, agents and employees over, across, and under each Lot, the exterior portions of the dwelling units on each Lot, the Common Areas, the landscaped areas, the planter strips and any other areas of the Property necessary or appropriate for the purposes of accomplishing any maintenance, repair, and replacement of Improvements.

(h) Maintenance Obligations/Owner Restrictions. Except as specifically noted in this document, the Owner, at his/her expense, shall maintain, repair and replace the improvements and utility installations in any LotEasementArea and shall holdtheAssociationharmless from any such costs.

(i) Public Utility Easements. Public Utility Easements are reserved, as defined on the Plat of Maple Meadows, Phase 1. No building, structure, tree or other obstruction shall be placed or located onor in a Public Utility Easement.

(j) Retaining Walls. Retaining walls may have been constructed withintheProperty (the "Retaining Walls"). The Retaining Walls are not in all cases located on a Lot or Tract line. The location of a Retaining Wall (or theconstruction by an Ownerof any improvements on or near the Retaining Wall) shall not constitute evidence of the intended location of a Lot line, or provide grounds for any claim of adverse possession or prescriptive easement. Each Lotupon which any portion of a Retaining Wall is located shall be subject to an easement,forthe benefit of all other Lots, for the purposes ofsupport by and natural drainage fromsuch Retaining Wall. Retaining Walls may or maynot have been designed by a professional engineer, and no Owner shall take any action to add, construct or place anyimprovement on the Lot so that it may, in the judgment ofthe Association: resultindisturbance of, weakening of, or damage to the Retaining Walls; increase any engineered load or alter design criteria; or cause damage to the wall and surrounding properties. Any improvements on Lot will need prior approval of Architectural Review Committee. Regardless of such approval, any Lot Owner whotakessuchactionshallbe responsible for all resulting costs of repair and restoration of the Retaining Wall. Otherwise, neither the Association nor any other Ownershallhave any affirmative obligation to maintain or repairtheRetaining Walls. However, should they elect to do so, theAssociation, any Ownerwhose Lot is adjacent to a Retaining Wall, and their duly authorized agents and representatives, shall have the right to enter theproperty upon which any portion of a Retaining Wall is located for the purpose of making anynecessary repair to or maintenanceof the Retaining Wall.

ARTICLE4

LOTS AND HOMES

4.1. Residential Use. Lots shall be used for residential purposes only. Except withthe consent oftheBoardof Directors, no trade, craft, business, profession, commercial or similar activity ofany kind shall be conducted on any Lot, nor shall any goods, equipment, vehicles, materials or supplies used in connection with any trade, service or business be kept or stored on any Lot. Nothing in this paragraph shall be deemed to prohibit the following:

(a) Commercial Activities of Individual Residences. The right of the Owner of a Lot to maintain his/her professional or personal library, keep his/her personal business or professional records or accounts, handle his/her personal business or professional telephone calls or confer with business or professional associates, clients or

customers, in his/her residence, so long as such activity is not observable outside of the residence, does not significantly increase parking or vehicular traffic, or isinviolationof applicable local government ordinances. The mere parking on a Lot or in the street, of a vehicle bearing the name of a business shall not,in and of itself, constitute a violationof this provision. The Board of Directors shallnot approve commercialactivitiesotherwise prohibited by this paragraph unless the Board determines that only normal residential activities wouldbe observable outsideof the residence and thatthe activitieswould not bein violation of applicable localgovernment ordinances.

(i) Neither the Association, the Board of Directors, nor the management agent shall be held responsible for any loss of wages, income or computer connectivity if telephone, computer or intemet service is interrupted by the Association, an Association vendor, or utility, or the management agent.

4.2. Construction. Except for construction performed by or contracted for by Declarant, no construction, reconstruction or exterior alterations shall occur on any Lot, unlessthe approval of the ARC isfirstobtained pursuant to Article 6. Consideration such as siting, shape, size, color, design, height, solar access, or material may betaken into account by theARCin determining whether or not to consent to any proposed work. Such work includes, but is not limited to Homes, storage shelters, swimming pools, spas, landscaping, greenhouses, patios, fencing, basketball hoops or remodeling. Theintent of this covenant is to ensure quality of workmanship and material, harmony of external design with theexisting and planned structures as to location and visual compatibility and finish grade elevations. Original construction designs, materials and product specifications by Declarant may vary from any or all specified inthis document. All construction performed by or contracted for by Declarant, shall be presumed to have met these minimum requirements or havebeen granted a variance thereto.

4.3. The following restrictions are minimum standards applicable to all Lots:

(a) Mobile Homes. Mobile homes will not be permitted on any Lot withinthe Plat for Maple Meadows, Phase 1;

(b) Height. NoHomeshallexceed two (2) stories, excluding basement and/or garage levels, in height abovethe ground atstreet level, and the ARC, in its discretion, may adopt Guidelines to further define and impose maximum height limitations, which may vary from area to area within the Property and from Lot to Lot, in its discretion;

(c) Floor Area. The square footage of a Home shall be reasonableand appropriate to the other homesin the Property. The Architectural Review Committee or

the Board acting in place oftheARC shall, in its sole discretion, determine the adequacy of this provision.

(d) Garages. All single family Homes will have a garage for not less than two automobiles. In addition, each Lot shall have area sufficient to park at least two (2) automobiles on the driveway on suchLot. Garages may be used as a sales office by Declarant, but mustbe converted to a garage before permanent occupancy. Garages are to be maintained primarily for the storage of automobiles or similar vehicles. No garage may beenclosed or otherwise used forhabitation, nor may any garage doorbe removed except when necessary to repair or replace a garage door with the same typeof garage door.

(e) Security Doors/Windows and ScreenDoors. No security doors and no exterior security bars or devices on windowsanddoorsshallbe installed withoutthe prior written approval ofthe ARC. IftheARC approves any type security door or window security, such approval shall encourage or require asingle style for all Homes so they willmaintain a uniform and aesthetic appearance.

4.4. Completion of Construction. The construction ofany building on any Lot, including painting and all exterior finish, shall be completed withinsix (6) months from the beginning of the construction so as to present a finished appearance when viewed from any angle. In the event of undue hardship due to weather conditions, this provision may be extended for a reasonable lengthof time uponwritten approval from the ARC. The Lotand building area shall be kept reasonably clean and in workmanlike order, free of litter, during theconstruction period with a garbage disposal facility located on site during such construction period. Ifconstruction has not commenced within three (3) months after the project has been approved by the ARC, the approval shall be deemed revoked unless the Owner has applied for and received an extension oftimefrom the ARC. All provisions of this Article 4 shall exclude any construction by Declarant.

4.5. Landscaping. Declarant reserves the right to install and maintain landscape improvements on Lotsfor sales and marketing purposes, and hereby reserves a landscape easement on the front yards of said Lots and the street side yards for this purpose. Declarant is not obligated to provide any landscaping in said areas noted in this section. All remaining landscaping is to be completed within six (6) months of occupancy. In the event of undue hardship due toweather conditions, this provision may be extended upon written approval from the Architectural Review Committee. Landscape completion shall also include provision for adequate surface water drainage to preventunnecessary discharge onto adjoining Lots orover sidewalks and driveways. All landscaping insuch areasmust be watered sufficiently to maintainitin good condition at alltimes except to the extent that an applicable watering restriction program of thewater

provider or a governing authority is in effect. Declarant is not responsible fortrees, vegetation or soilcondition on any lot.

4.6. Rental of Homes. An Owner shall be entitled to rent or lease his/her residence, subject to the following:

(a) Written Rental Agreements. Awrittenrental or leaseagreementis required, specifying that: (i) the tenant shall be subject to all provisions of the Declaration, Bylaws and Rules and Regulations, and (ii) failure to comply with any provision of the Declaration, Bylaws and Rules and Regulations shall constitute a default undertherental agreement.

(b) Minimum Rental Period. The period oftherental or lease is not lessthan thirty (30) days; and

(c) Tenant Must Be GivenDocuments. The Owner gives each tenant a copyof the Declaration, Bylaws and Rules and Regulations.

(d) Owner Responsibility. Owner shall be responsible for any violations by tenants and shall be solely responsible for either correcting or eliminating such violations, or getting tenant to do same.

4.7. Animals. No animals, livestock or poultry of any kind shall be raised, bred, kept or permitted within any Lot other than a reasonablenumberofdomestic household petswhich are not kept, bred or raised for commercial purposes and which are reasonably controlled so as not to be a nuisance. Any inconvenience, damage or unpleasantness caused by such pets, including noise, shall be the responsibility of the respective Owners thereof. No dogs shall be permitted to roam the Property unattended, and all dogs shall be kept on a leash while outside a Lot. An Owner may be required to remove a pet from the property upon the receipt of the third notice in writing from the Association Board of Directors of violation any rule, regulation or restriction governing pets within theProperty. A "reasonable number ofdomestic household pets" and the definition of "domestic household pets" shall be subject to rules adopted and approved by theBoardinitssolediscretion.

4.8. Nuisance. No noxious, harmful or offensive activities shall be carried on upon anyLot or Common Area, nor shall anything be done or placed on any Lot or Common Area which interferes with or jeopardizes the enjoyment, or which is a source of annoyance to theotherOwners or Occupants.

4.9. Firearms. The discharge of firearms within the Property is prohibited. The term "firearms" includes "BB" guns, pellet guns and other firearms of all types, regardless of size.

4.10. Parking.

(a) Parking ofnon-commercial passenger vehiclesis allowed on areas paved by asphalt or concrete only, and shall only be in garages or driveways if no portion of thevehicle overhangs the street, sidewalks, or pathways. The parking of vehicles is prohibited within the Propertyif posted, marked "No Parking," or if curbs are painted to restrict parking. Forthepurpose ofthis Declaration, the definition of non-commercial passenger vehicle is a vehicle under 10,000 lbs. such as cars, trucks, SUVS, and motorcycles, licensed to be ridden on public streets.

(b) Campers, boats, boat trailers, recreational vehicles, commercial vehicles, or other types of non-passenger vehicles, equipment, implements, or accessories may be stored or kept within an enclosed garage, oron the side of the Unit, provided that it is screened from view by a screeningstructure or fencing approved by the ARC.

(c) Campers, boats, boat trailers, recreational vehicles, commercial vehicles, or other types of non-passenger vehicles, equipment, implements, or accessories may be temporarily kept on the private streets within the Property or on a paved driveway located on a Lot for a period not to exceed forty-eight (48) hours and only for the purposes of cleaning, preparation for use and unloading.

4.11. Vehiclesin Disrepair. NoOwnershallpermit any vehicle, which is not currently licensed or isin an extreme state of disrepair to be abandoned or to remain parked upon any Lot for a period neither in excess of forty-eight (48) hours, nor on a CommonAreafor any length oftime. Avehicleshallbe deemed in an "extremestate of disrepair" whentheBoard of Directors reasonably determines thatits presence offends the Owners and Occupants. Should any Owner fail to remove such vehicle withinfive (5) days following the date on which the notice is mailedto him/herby the Association, theAssociation may havethe vehicle removed from the Property and charge the expense of suchremoval to theOwner. All oil or grease on roadways or driveways shallbe cleaned up immediately by Owner.

4.12. Maintenance or Repair of Vehicles. Any maintenance or repair of vehicles or other machinery or equipment must take place entirely within the enclosed garage of an Owner.

4.13. Signs. Plasticartwork of any kind to be placed in public viewmust be approved by the Architectural ReviewCommittee. Nosign,banner or billboard ofany kind may be kept or placed on any Lot or mounted, painted or attached to any Unit, fence or other improvement so as to be visible from public view within the Property or adjacent public street or carried by any person or by any other means displayed within the Property except as provided below:

(a) "For Sale" signs: An Owner may erect one (1) sign not exceeding two (2) feet by three (3) feetin dimension, fastened only to a stake in the ground and extending not more thanthree (3) feetabovethesurfaceof the ground advertising the property for sale.

(b) "ForRent" signs: An Owner mayerect one (1) sign not exceeding three (3) square feet in area advertising the property forrent. Such signs shall be visible fromthe front ofthe Unit only, and shall be displayed fromwithintheUnit.Nosuch sign shall beerected within a lawn or landscape area on any Lot, or attached to the outsideof theUnit.

(c) Political signs: Political signs may be erected upon a Lot by the Owner of suchLot advocating the election of one or more political candidates or the sponsorship of a political party, issue or proposal provided that such signs shall not be erected more than ninety (90) days in advance ofthe election to which they pertain and are removed within fifteen (15) days afterthe election.

(d) Flags: The foregoing restrictions shall notbe deemed to prohibit the display of the flag of the United States by an Owner or occupant of a Lot if the flag is displayed in a manner consistent with federal flag display law, 4 U.S.C. § 1 et seq. and any applicable OregonState Statute.

(e) Declarant: Signs: Signs, banners, flags, monuments, and billboards may be erected by theDeclarantand are exempt from the provisions ofthisSection 4.13.

(f) Builder Signs: A Builder mayerect signs and banners on any Lot or Unit owned by the Builder if such signs and/or banners are erected for the purpose of marketing and selling Units constructed by the Builder on Lots owned by the Builder, subject to rulesandrestrictions established by Declarant from time to time. A Builder may also erects signs and/or banners on the Common Areas to market and sell Units constructed by the Builder on Lots owned by the Builder, provided that Declarant authorizes in writing (in Declarant's sole discretion) the erection of such signs and/or banners on theCommonAreas.

4.14. Rubbish and Trash. No Lot or part of theCommon Area shall be used asa dumping ground fortrash or rubbish of any kind. All garbage and otherwaste shall be kept in appropriate containers for timely and proper disposal, out of public view. Yard rakings, dirtandothermaterial resulting from landscaping work shall not be dumped onto streets, theCommon Areas or any other Lots. Should any Ownerfail to remove any trash, rubbish, garbage, yard rakings or any such materials from any Lot, any roadways or Common Area where deposited by him/her within five (5) days following the date on which notice is mailed to him/her by theBoard of Directors, the Association may have

such materials removed and charge the expense of such removal to the Owner. Each Owneris responsible for trash disposal, and shall remove individual trash containers within12hours of collection. No trash and/orstoragecontainersshallbe visible from any adjacent street or neighboring Lot, and shall not be allowed to emit any odors or attract insects or rodents.

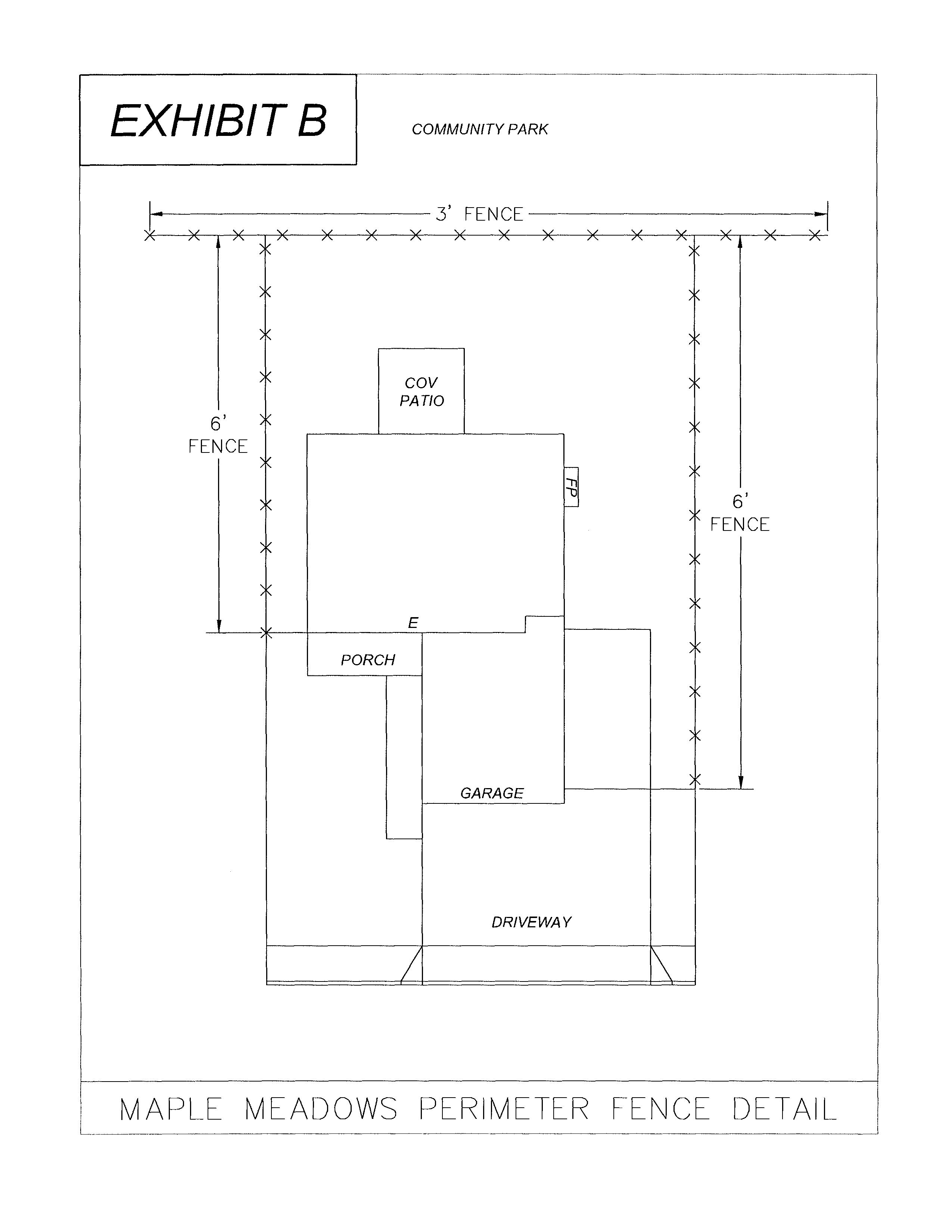
4.15. Fences and Hedges. No fences or boundary hedges shall be installed without prior written approval of the ARC. Exhibit B delineates the fence designs approved for installation within the Association Property, except as otherwise noted herein. No fencing shall beinstalled on any Common Area, except by theDeclarant or theAssociation. Any fencing located on theCommon Areas willbemaintained by the Association. Any fencing installed on Owner's Lots either by Owner, or by Declarant, will be the responsibility of the Owner to maintain, and shall be maintained in a condition acceptable to the Board and the ARC. On street sides and open spaces, the "Solid Board FinishedSide" shall faceawayfromthe home. Allfence materials, designs, andcolors are subject to approval of the ARC in its sole discretion, andalllocal setbacks mustbe obeyed. No side yard fencing may extend closer tothe front of the yard than the leading edge ofthe Home constructed or to be constructed on such Lot, except as approved by the ARC. No permitted front yard fence shall be taller than 3 feet and no side or rear fencing shall be taller than 6feet. Chain link fences are prohibited, unless approved by theARCfor an animal containment area, or originally installed by the Declarant. In no case will a chain link enclosure be visible from the street or any adjacent Lots, except that originally installed by the Declarant. All wood fencing shall beofeither "solid Board" or "Good Neighbor" design.

(a) FENCE COLOR: THE ARC SHALL PERMIT CEDAR WOOD FENCES, AND ANY WOOD FENCES SHALL BE STAINED WITH SHERWIN WILLIAMSSW3001 SHAGBARK WATER BASED SOLID COLOR STAIN. IN THE EVENTTHIS SPECIFICSTAIN BECOMESPERMANENTLY UNAVAILABLE FROM THE MANUFACTURER IN THE FUTURE, THE BOARD AND THE ARC WILL APPROVE ONE SIMILAR REPLACEMENT STAIN COLOR AND PRODUCT SO AS TO MAINTAIN A UNIFORM APPEARANCE FORCEDARFENCES THROUGHOUT THE COMMUNITY.

(b) CommonArea and Lot Line Fences: If a fenceislocated ona property line between a Common Area and a Lot, theAssociation shall be responsible for staining the fence side that is facing the Common Area, and the Owner shall be responsible for stainingthe fence side facing their Lot. Fences shall not exceed six (6) feet in height from the finished Lot grade on the highest side between Lotsand/or Common Areas. If approved by the ARC, any fence on a property line adjacent to a Common Area that extends beyond the leading edge of the Home will taper down to three (3) feet from the front of the home to the front property line. Access gates entering onto Common Area

tracts are only permitted along thethree (3) foot high fence on the rear propertylineof Lots 14-19, 22 & 23. Allsuch gates must matchthe adjacent fences in design, color and materials with no visible external hardware. Said gates must swing into the Owner Lot and not into the Common area. No other access gates are permitted between an Owner Lot and any CommonLot or Common area except as specified herein.ExhibitB delineates the fence design that shall be built along certain Common Area/Lot lines as specified on said Exhibit B. This fencing shall be maintained to the same specifications as defined above in this Section 4.15.

4.16 Setback, Maximum Height, and Minimum Yard Requirements: Each Lot shall be subject to: (1) any setback and minimum yard requirements shown forsuch Lot on the recorded Plat of Maple Meadows, Phase 1; (2) all setback height, and minimum yard requirements established by Deschutes County or other governmental entity with jurisdiction over such Lot; and (3) anyland use review procedure established by Deschutes County or other government entity with jurisdiction over such Lot for review and approval of variance from any such governmental requirements. The Architectural Review Committee, upon application from a Member, may in its discretion waive any violationofthis Section, whichitfinds to have been inadvertent, provided the same would not constitute a violation of applicable government regulations.

4.17. Service Facilities; Utilities. Service facilities (e.g. garbage containers, clotheslines, air conditioning compressors, etc.) shall be screened such that the elements screened are not visible at any timefromthe street or a neighboring home. The exterior location of any heating andair conditioning compressors or heatpumps shall be approved in advance by the ARC.Said locations must take into consideration the noise andview from adjacent Homes. No overhead wire, service drop or other facility for the distribution ofelectric energy or for telecommunication purposes, nor any pole, tower or other structure supporting outdoor overhead wires shall be erected, placed or maintained within the Property. No window air-conditioning or heating units are allowed. All utility lines shall be maintained, repaired and replaced by the Owner of each Lot, or all Owners individually and/or collectively attheirsole expense. The Association is not responsible forthemaintenance of any utility, cable TV, or phone services of facilities.

4.18. Antennasand Satellite Dishes. Except as otherwise provided by law or this Section 4.18, no exterior antennas, satellite dishes, microwave, aerial, tower, or other devices for the transmission or reception of television, radio, or other forms of sound or electromagneticradiation may be erected, constructed, or placed on any Lot or Unit. With prior written consent of the ARC, exterior satellite dishes or antennas with a surface diameter of one meter (39") or less and antennas designed toreceive television broadcast signals only may be placed on any Lot if they are not visible from any street and are screened from neighboring Lots. The ARC may adopt reasonable rules and regulations governing the installation, safety, placement, and screening of such antennas, satellite

dishes, and other transmission devices. Such rules shall not unreasonably delay or increasethe cost of installation, maintenance, oruse or preclude reception of a signal of acceptable quality (the ARC, inits sole discretion, may determine what constitutes a signal of acceptable quality). Such rules and regulations may prohibit installation of exteriorsatellite dishes or antennas if signals of acceptable quality can be received by placing antennas inside a Unit without causing an unreasonable delay or cost increase. Approved installation locations shall in no way violate current FCC rules or regulations concerning said installation locations. The authority of theARCinthis matter shall be subject to any regulations issued by theFederal Communications Commission ("FCC") or any other applicable governmental authority.

4.19. Clothes Hanging Devices. Clothes hanging devices exterior to a Unit shall betemporary, unaffixed structures not to exceed six (6) feet in height and shall not be placed nearer to any street abutting the Lot thanthe side yard setback line or the back ofthe Unit constructed on theLot.Clothes hanging devicesshallbescreenedfrom public view by a fence.

4.20. Mailboxes and Other Delivery Boxes: Mailboxes shall be installed only in groups of boxes in accordance with the requirements of the United States Postal Service and applicable governmental authorities. Individual mailboxes are prohibited. Newspaper boxes and anyother delivery boxes may not be installed unless first approved as to location and design by theArchitectural Review Committee.

4.21. Exterior Lighting or Noisemaking Devices. Except with the consent of the ARC, no exterior lighting or noisemaking devicesshall be installed or maintained on any Lot, other than security and fire alarms. However, falsealarms of security and fire systems will not be allowed to repeatedly occur. Further, itis anticipated that customary lighting at doorways, garage fronts, and in front yard poles or permitted fixtures adjacent to driveways willbe permitted so long as they are constructed and designed to be directed downward and so long as they don't unreasonably focus or direct strong lighting on areas outside of the Owner's Lot. Seasonal holiday lighting and decorations are permissible if consistentwith any applicable rules and regulations and if installed no more than thirty (30) days before the celebrated holiday, and removed within thirty (30) days after the celebrated holiday.

4.22. Solar Energy Panels. Except as otherwise provided by applicable law or this Section 4.22, no Solar Energy Panel (as defined below) may be erected, constructed, or placed on anyLot or Unit without prior written approval. With the prior written consent of the ARC, an Owner may install a ground-mounted or roof-mounted Solar Energy Panel on itsLot provided that all ofthe following conditions are satisfied:

(a) If ground-mounted, then the Solar Energy Panel must be screened from public view by a fence or landscaping approved by the ARC, unlessthe screening materially effects the economic installation of the Solar Energy Panel (as determined by theARCinitsreasonable discretion) or degrades the operational performance quality of the Solar Energy Panel by more than ten percent (10%);

(b) If roof-mounted, then (i) no part ofthe Solar Energy Panel may extendabovethe roof lineoftheUnit on which itis installed, (ii) no Solar Energy Panel may be installed on any roof facing a street unless the Solar Energy Panel conforms to the slope of the roof and the top edge of theSolar Energy Panel is parallel to the roof ridge, and (iii) the Solar Energy Panel frame, supportbrackets and visible piping and wiring are painted to coordinatewiththe roofing materials; and

(c) The Solar Energy Panel meets applicable health and safety standardsand requirements imposed by state and local permitting authorities.

The ARC may adopt additional rulesand regulations governing the installation, safety, placement, and screening of a Solar Energy Panel, provided thatsuchrules and regulations do not conflict with Oregon State Statute or other applicable laws. For purposes of this Section, "Solar Energy Panel" means a panel device or system or combination of panel devices or systems that relies on direct sunlight as an energy source, including a panel device or system or combination of panel devices or systems that collects sunlight for use in the heating or cooling of a structure or building, the heating or pumpingof water, and the generation of electricity.

4.23. Window Treatments. Aluminum foil, reflective film, newspapers or similar treatments shall not be placed on windows or glass doors.

4.24. Recreational Equipment. No playground, athletic or recreational equipment or structures, including without limitation, basketball backboards, hoops and related supporting structures, shall be permanently installed inview from anystreet, sidewalk or Common Area within the Property; placement of these facilities of a permanent nature elsewhere on theLot must be approved inadvance by theARC. Portable structures shall be removed from view when not in use and stored out of view from any street, sidewalk or Common Area.

4.25. Grades, Slopes, and Drainage. There shall be no interference with the established drainage patterns or systems over or through any Lot within the Property so as to affect any other Lot or Common Area or any areas outsidethe Property unless adequate alternative provisions are made for proper drainage and are approved by the ARC. The term "established drainage" shall mean any wall, drainage swales, conduits, inletsandoutlets designed and constructed on the Property.

4.26. Damage or Destruction to Home and/or Lot. If all, or anyportion of a Lot or Home, is damaged by fire or other casualty the Ownershall restore the damaged improvements subject to the provisions of any applicable insurance policies. Restoration must be performed so that the improvements are in substantially the same conditionin which they existed prior to the damage, subject to current governmental regulations, building codes, and provisions of Article 6 of this Declaration. The Owner must commence such work within sixty (60) days afterthe damage occurs and must complete the work within six (6) months thereafter.

4.27. Detached Buildings. No permanent or removable detached accessory buildings, including, but not limited to, storage buildings, greenhouses, children's playhouses andsimilar structures, shall bebuiltwithoutthe prior written consent ofthe ARC. Additional dwelling units (ADUs) constructed by theDeclarant are deemed to be approved; construction of additional ADUs shall require approval from the Board of Directors. Every outbuilding shall be compatible with the Home to which it is appurtenant in terms of its design, colorand material composition. Outbuildings shall be of a one (1) storydesign and the outside walls shall not exceed ten (10) feet in height, nor will the overall height exceed twenty (20) feet, measured from the existing Lot grade, or havetotal floor areas in excess of 450 square feet. Metalsheds are prohibited. They shall be constructed of wood and the roofing, siding color, style and finish shall matchthat of the exterior material of thehouse. They should also maintainthe standards and building codes of the City of Redmond or Deschutes County. Heavy duty rubber or unbreak able plastic or composite storage sheds that are portable and temporary in nature,may be approved providing that they are: 1) screened or hidden from theview of neighboring LotsandCommon Areas, and 2) aesthetically harmonious with thehomein terms of color and texture/finish (e.g. pebbled/muted/dull).

4.28. Owner's Maintenance Obligations. Each Owner shall maintain their Lot in a cleanandattractive condition, in good repair,andinsuch a fashion as not to create a hazard of any kind. Such maintenance shall include, without limitation, painting or staining of siding, trim, and fences, repair, replacement and care of roofs, gutters, downspouts, surface water drainage, walks and otherexterior improvements and glass surfaces. In addition, each Owner shall keep shrubs, trees, grass and plantings of every kind neatly trimmed, fertilized, property cultivated and free of trash, weeds and other unsightly materials.

4.29. Right ofMaintenance and Entry by Association. If an Owner fails to perform maintenance and/or repair which he/she is obligated to perform pursuant to this Declaration for buildings or landscaping, and if the Board determines, after noticeand a hearing (given pursuant to theprovisionsofthe Bylaws), that such maintenanceand/or repair is necessaryto preserve the attractiveness, quality, nature and/or value of Maple Meadows, theBoardmay cause suchmaintenance and/or repair in connection therewith

to be performed and mayenterany such Lot whenever entry isnecessaryin connection withthe performance of any maintenance or constructionwhichtheBoardis authorized to undertake. Entry shall be made with as little inconvenience toan Owner as practicable and only afteradvancewrittennotice of not less than forty-eight (48) hours, exceptin emergency situations. Suchright of maintenanceshall include, but not be limited to, buildings, street trees and front and street-side yard landscape. All maintenance performed on behalf of LotOwners shall be at the Owner's expense.

4.30. Association Rules and Regulations. The Boardof Directors, from time to time, may adopt, modify or revoke Rules and Regulations governing the conduct of persons and the operation or use of Lots and Common Areas, as it may deem necessary or appropriate in order to assure the peaceful and orderly use and enjoyment of the Property. A copy of any Rulesand Regulations, upon adoption, amendment, modification or revocation thereof, shallbedelivered by the Board ofDirectors promptly to each Ownerandshallbe binding upon all Owners and Occupants of allLots upon thedateof delivery or actual notice thereof. The method of adoption of such Rules and Regulations shall be provided inthe Bylaws of the Association, attachedhereto as Exhibit"A.

4.31. Ordinances and Regulations. Thestandards and restrictionsofArticle4 shallbetheminimum required. To theextentthe ordinances and regulations ofthe City of Redmond, Deschutes County, or the State of Oregon are more restrictive, or provide for a higher or different standard, the ordinances and regulations of the City of Redmond, Deschutes County, or theState of Oregon, and any jurisdiction of Property, which may beannexed into, shall prevail.

4.32. Violation. The Association may impose a fine, charge or penalty for any violation of this Declaration, the Bylaws and Rules and Regulations after reasonable noticeoftheviolation and a reasonable opportunity for a hearing. Additionally, the Association may seek injunctions or other equitable relief or may file an action formoney damages owing from such violations.

4.33. Security. The Association may, but shall not be obligated to, maintain or supportcertain activities within the Property designed to make the Property safer than it otherwise might be. Neither the Association, any managing agent retained by the Association, Declarant, nor any successor Declarant shall in any way be considered insurers or guarantors of security within the Property, nor shall any of them be held liable for any loss or damage by reason of failure to provide adequate security or of ineffectiveness of security measures undertaken. No representation or warranty is made thatany fire protection system, burglar alarm system or other security system cannotbe compromised or circumvented, nor that any such systems or security measures undertaken willin all cases prevent loss or provide the detection or protection for which the system is designed or intended. Each Owner acknowledges, understands and

covenants to inform its tenants that the Association, its Board of Directors and committees, any managing agent retained by the Association, Declarant, and any successor Declarant are not insurersand that each person using the Property assumes all risksforloss or damage to persons, to property and to the contents ofLots resulting from acts of third parties and releases such parties from any liability therefore.

4.34. Retaining Walls. See Article 3, Section 3.4 (j).

ARTICLE 5

COMMON ARE

5.1 Common Area Tracts. The common area tracts are defined on the Plat for Maple Meadows, Phase 1, as follows:

(a) Tract Ashallbeownedandmaintainedbythe MapleMeadows Homeowners Association, and shall include open space and a path;

(b) Tract B shall be owned and maintained by theMaple Meadows Homeowners Association, and shallinclude open space, a mailbox facility, and a monument sign;

(c) Tract C shall be owned and maintained by the Maple Meadows Homeowners Association, and shall include an amenity;

(d) Tract D shall be owned and maintained by the Maple Meadows Homeowners Association, and shall include a walking path.

5.2 Use ofCommonAreas. Use of theCommon Areas is subject to the provisions of the Declaration, Bylaws, Articles and Rules and Regulations promulgated by the Board of Directors. There shallbe no use of theCommon Area except by Owners and their invitees; however, all trails within the Common Areas shall be opento the public. There shall be no obstruction of anypart of the Common Area. Nothing shall bestored or kept in theCommonAreawithoutthe prior written consent of the Board of Directors. No alterations or additions to the Common Area shall be permitted withoutthe prior written approval by the Board of Directors. Any work so authorized by the Association'sBoard of Directors shallbeconsidered a temporary easement over the Common Area. Nothing shall be stored or kept in the Homes or Common Area, which will increase the rate of insurance on the Common Area, or other Association insurance, without the prior written consent of theBoard. At the Owner's

sole expense, written approval fromthe Association's insurance carrier for such work in the Common Area must be obtained. If there are any insurance settlement claims or condemnation awards paid to the Association, a portion of the entire proceeds may be directed to the Lot Owner for said improvements.

5.3 Maintenance of Common Area. The Association shall be responsible for maintenance, repair, replacement, and upkeep ofthe Common Areaowned by the Association, including, but not by way of limitation, any and all drainage systems, landscaping, irrigation systems, commonarea lighting not maintained by a public agency, fencing, private streets, andanyother Improvements that may be included in Common Area, oras described in this Declaration. If a fence is located on a property linebetween a Common Area and a Lot, the fence shallbemaintained as defined inSection 4.15. The Association shall keep theCommon Area andimprovementsthereonin good condition and repair, provide forall necessary services and cause all acts to bedone which may be necessary or proper to assure the maintenance of the Common Area in first class condition.

5.4 Alterations to Common Area. Only the Association shall construct, reconstruct, or alter any improvement situated upon the CommonArea. A proposal for any constructionof or alteration, maintenance or repair to an improvement may bemade at any meeting. A proposal may be adopted by the Board, subject to the limitations contained in the Bylaws and the Declaration.

5.5 Funding. Expenditures for alterations, maintenance or repairs to an existing capital improvement for which areserve hasbeen collected shall be madefrom the reserveaccount. As provided in Section 9.6, theBoardmay levy a special assessment to fundany construction, alteration, repair or maintenance of an improvement (or any other portions oftheCommon Area) for which no reserve has been collected or for which the reserveaccount is insufficient to cover the cost of the proposed improvement.

5.6 Landscaping. The Association shall be responsible for all landscaping located inany Common Area properties, as provided in Section 3.4 (g). All landscaping on any portion of the Common Area shall be maintained and cared for in a manner consistent with thestandard of design and quality as originally established by Declarant or the ARC.

5.7 Condemnation of Common Area. If all or any portion of the Common Areaistakenfor any public or quasi-public use under any statute, by right of eminent domain or by purchase in lieu ofeminent domain, the entire award shall be received by and expended by theBoard of Directors in a manner which in their discretion is in the best interest of the Association. The Association shall represent the interest of all Owners inany negotiations, suit or action or settlementinconnection with such matters.

5.8 Damage or Destructionof Common Area. In the event any Common Area is damaged or destroyed by an Owner or any of his/her Occupants, guests, tenants, licensees, agents or members of his/her family in a manner that would subject such Owner to liability for such damage under Oregon law, such Owner does hereby authorize the Association to repair such damage. The Association shall repairthe damage and restore the area in workmanlike manner as originally constituted oras may be modified or altered subsequently by the Association in the discretion of the Board of Directors. The reasonable cost necessary for suchrepairsshallbecome a special assessment upon the Lot ofthe Owner whocaused or is responsible for such damage.

ARTICLE 6

ARCHITECTURAL REVIEW COMMITTEE

6.1. Architectural Review. No improvement shallbe commenced, erected, placed or altered on any Lot until the construction plans and specifications showing the nature, shape, heights, materials, colors, and proposed locationofthe improvement have been submitted toand approved in writing by the ARC. It is theintent and purpose of this Declaration to assure quality of workmanship andmaterials and to assure harmony of exterior design with the existing improvements and landscaping.

6.2. Architectural Review Committee, Appointment and Removal. The ARC shall consist of no fewer than three (3) members and nomore than five (5) members, as theBoard may appoint from time to time. The Declarant reserves the right to appoint all membersofthe ARC and all replacements thereto until100% of the Lots havebeen sold and constructed, or until 10 years after the recording of the Declaration. The Declarant may appoint a single person to serve as the ARC. The terms of officeforeachmemberof the ARC shall be for one (1) year unless lengthened by the Board at the time of appointment or unless the Board serves as theARCinwhich event the terms oftheARC members shall bethe same as their terms as Board members. The Board may appoint any or allof its membersforthe ARC and there should be no requirement for non-Board members on theARC. The Boardmay appoint oneor more members to the ARC who are not Owners, but who have special expertise regarding themattersthat come before the ARC. In thesole discretion of the Board, such non-Owner members of the ARC may be paid and that cost paid by applicants or the Association.

6.3. Majority Action. Except as otherwise provided inthis Declaration, a majority of themembers of the ARC shall have the powerto act on behalf of the ARC, without the necessity of a meeting and without the necessity of consulting the remaining member of the ARC. The ARC may render its decision only by written instrument setting forth the action taken by the members consenting thereto.

6.4. Duties. The ARC shall consider and actupon the proposals and/or plans submitted pursuant to this Article. TheARC, from time to time and at itssole discretion, may adopt architectural rules, regulations and guidelines ("Architectural Standards"). The Architectural Standards shall interpret and implement the provisions of this Declaration for architectural review and guidelines for architectural design, placement of buildings, color schemes, exterior finishes and materials and similar features which may be used in Property; provided, however that the Architectural Standards shall not be in derogation of theminimum standards established bythis Declaration.

6.5. ARC Decision. The ARC shall render its approval or denial decision with respect to theconstruction proposal within thirty (30) business days after it has receivedall material required by it with respect tothe application. All decisions shall be in writing. In theevent the ARC fails to render its decision of approval or denial in writing within sixty (60) days of receiving all material required by it with respect to the proposal, the application shall be deemed approved. Approval by the ARC does not imply govermment approval, which is solely the responsibility of the Owner.

6.6. ARC Discretion. The ARC may, at its sole discretion, withhold consent toany proposed work if the ARC finds the proposed work would be inappropriate forthe particular Lot or incompatible withthe design standardsthatthe ARC intends for Maple Meadows. Consideration such as siting or location on the Lot, shape, size, color, design, height, solar access,or other effect on the enjoyment of other Lots, and any other factors whichthe ARC reasonably believe to be relevant, may be taken into consideration by the ARC in determining whether or nottoconsent to any proposed work.

6.7. Non-waiver. Consent by theARC toanymatter proposed to it or within its jurisdiction shall not be deemed to constitute a precedent or waiver impairing the ARC's right to withhold approval as to any similar matter thereafter proposed or submitted to it for consent.

6.8. Appeal. At any time after Declarant has delegated appointment ofthe members of the ARC to the Board of Directors pursuant to Section 6.2, any Owner adversely impacted by action of the ARC may appeal such action to the Board of Directors. Appeals shallbemadein writing withinten (10) days of the ARC's actionand shallcontain specific objections or mitigating circumstancesjustifying the appeal. If the Board is already acting as the ARC, the appeal shall be treated as a requestfor a rehearing, but in such case the Board must actually meet and receive evidence and argument. A final and conclusive decisionshall be made by theBoardofDirectorswithin fifteen (15) days after receipt of such notification. Thedeterminationofthe Board shall be final.

6.9. Effective Period of Consent. The ARC's consentto any proposed work shall automatically be revoked three (3) monthsafter issuance unlessconstructionofthe

workhas been commenced or the Owner has applied for and received an extension of time from the AR .

6.10. Determination of Compliance. The ARCshall inspect, from time to time, all work performed and determine whether it is in substantial compliance with the approval granted. Ifthe ARCfinds that the work was not performed in substantial conformance withthe approval granted, or if theARCfindsthatthe approval required was not obtained, the ARC shall notify the Owner in writing of the noncompliance. The notice shall specify the particulars of any noncompliance and shall require the Owner to take the necessary action to bring the work into compliance with the approved project.

6.11. Noncompliance. If the ARC determines that an Owner has not constructed an improvement consistent with the specifications on which approval is based, and if theOwner fails to diligently commence to remedy such noncompliance in accordancewiththe provisions ofthenotice of noncompliance, then at the expiration of the third (3rd) day from the dateof such notification, the ARC shall provide a notice of a hearing to consider the Owner's continuing noncompliance. Thehearing shall be set not more than thirty (30) days from the date of the notice of noncompliance. Atthe hearing, if the ARC findsthat there is no valid reason forthe continuing noncompliance, the ARC shall determinethe estimated costs of correcting it. The ARC shallthen require the Owner to remedy or remove the same within a period of not more than ten (10) days from thedate of the ARC's determination. If the Owner does not comply with the ARC's ruling within such period or within any extension of such period as the ARC, at its discretion, may grant, the Association may (a) remove the noncomplying improvement, (b) remedy the noncompliance, or (c) file suit to compel compliance. The costs of such actionshallbe assessed against theOwner and his Lot, including all attorneys' fees and other costs expended and incurred to enforce compliance before suit or action is filed and at trial or on any appeal or reviewof same.

6.12. Liability. Neither the ARC, the Board, their agents, nor any member thereof shall be liable to any Owner, Occupant, or builder for any damage, loss or prejudice suffered or claimed or claimed to be suffered arising from any action by the ARC or a member thereof or failure of the ARC ora member thereof, provided only that the member has acted in good faith in accordance withtheactual knowledge possessed by him.

6.13. Estoppel Certificate. Within fifteen (15) working days after written requestis delivered to theARC by an Owner, and upon payment to theARC of a reasonablefee fixed bytheARC to cover costs, the ARC shall provide suchOwnerwith a certificate executed by the Chairman of the ARC, and acknowledged, certifying with respect to any Lot owned by the Owner, that as of the date thereof either (a) all improvements made or done upon or within such Lot by the Owner comply with this

Declaration orany Rules and Regulations either promulgated by the Board or the ARC, or (b) such improvements do not so comply, in which event, the certificate shall also identify the noncomplying improvements and set forth with particularity the nature of such noncompliance. The Owner, his heirs, devisees, successors and assigns shall be entitled to rely on the certificate with respect to thematters set forth. The certificate shall beconclusive as betweenthe Declarant, theARC,theAssociationandall Owners, and all such persons deriving an interest through any of them.

6.14. ARC Limitations.

(a) Common Area Considerations. The ARC will only have authority to make decisions related to the Lots and not the Common Area. Any architectural or design considerations on the Common Area will be solely withinthe power oftheBoard of Directors. Construction by the Declarant is presumed to have been approved and is thereby exempt from this review. Inallcases, which theARC consent is required by this Declaration, the provision of this Article shall apply. The ARC and the Board of Directors are hereby granted an easement over theLots to enablethe ARC to carry out its designated functions.

(b) Municipal Regulations. Neither the ARC, the Board, nor the Associationis responsible for determining compliance with structural and building codes, solar ordinances, zoningcodes or other govermmental regulations, allof which are the responsibility of theLot Owners.

(c) Defect Liability. PLANS AND SPECIFICATIONSARE NOTAPPROVED FOR ENGINEERING, STRUCTURAL DESIGNOR QUALITY OF MATERIALS, AND BY APPROVING SUCH PLANS AND SPECIFICATIONS NEITHER THE ARC, THE BOARD OF DIRECTORS, TH MEMBERS, THE MANAGING AGENT, NOR THE ASSOCIATION ASSUMES LIABILITY OR RESPONSIBILITY FOR THESE MATTERS, NOR FOR ANY DEFECT IN ANY STRUCTURE CONSTRUCTED FROM SUCH PLANS AND SPECIFICATIONS. OWNER IS SOLELYRESPONSIBLE FOR ALL IMPROVEMENTS, PERMITS ANDCOSTS OFSAID WORK

(d) General Liability. NeithertheARC, the Board, their agents, nor anymember thereof shall be liable to any Owner, Occupant, or builder for any damage, loss or prejudice suffered or claimed, or claimed to be suffered, arisingfrom any action by the ARC or a member thereof, or failure of the ARC or a member thereof, provided only thatthememberhasactedin good faithin accordance withtheactual knowledge possessed by him.

ARTICLE 7

MAPLE MEADOWS HOMEOWNERS ASSOCIATION

7.1. Association Powers. The Association shall be a non-profit, mutual benefit corporation established underthe Oregon Statutesandhaveallofthe powers and responsibilities granted to it by said Statutes.

7.2. Members. Each Owner shall be a mandatory member of the Association. Membership in the Association shall be appurtenantto, and may notbe separated from, ownership ofany Lot. Transfer of ownership of a Lot automatically transfers membership inthe Association. Without any other act or acknowledgement, Occupants andOwners shall be governed and controlled by this Declaration the Articles, Bylaws, and Rules and Regulations and any amendments thereof.

7.3. Proxy. Each Owner may cast his/her votein person, pursuant to a proxy executed by the Owner, or by written ballot, as provided by ORS 94.647. AnOwnermay not revoke a proxy given pursuant to this section except by actual notice or revocation to the person presiding over a meeting of the Association. A proxy shall not be valid if it is undated or purports to berevocablewithout notice. A proxy shall terminate one (1) year after its date, unless the proxy specifies a shorter term.

7.4. Voting Rights.TheAssociation shall have two (2) classes of voting members.

(a) ClassA.Class A members shall be all Ownersof Lots otherthan the Declarant, and each Class A member shall be entitled to one (1) vote for each Lot owned with respectto all mattersupon which Owners are entitled to vote.

(b) Class B. The Class B member shall be Declarant, its successors and assigns. The Class B member shall have three (3) votes for each Lot owned. The Class B membership shall cease and be converted to Class A membership upon the earlier of:

(i). When 100% oftheLotsinallphasesof the Property havebeen sold and conveyed to OwnersotherthanDeclarant; or

(ii). At such earlier time as Declarant may elect in writing to terminate Class B membership.

Thereafter, each Owner, including the Declarant, shall be entitled to one (1) vote for eachLot owned with respect to all matters upon which Owners are entitled to vote, andthetotalnumberof votes shallbe equal to thetotalnumberof Lots. When more than one (1) person or entity owns a Lot, the vote for such Lot may be cast as they shall determine, butin no eventwill fractional voting be allowed. Fractional or split votes shall be disregarded, except for purposes of determining a quorum. The total number of votes as of the Conversion Date and thereafter shall be equal to the total number of Lots.

7.5. Procedure. All meetings of the Association, theBoardof Directors, the ARC, and Association committees shall be conducted with such rules of order as may from time to timebe adopted by the Board of Directors. Notwithstandingwhichrule of order is adopted, the chairmanshallbe entitled tovote on all matters, not merely to break a tie vote. Atie vote does not constitute a majority or approval of any motion or resolution.

7.6. Contracts Entered Into by Declarant or Before Turnover Meeting. Notwithstanding any other provision of this Declaration, any management contracts, service contracts or employment contracts entered into by Declarant or theBoard of Directors on behalf of the Association before theTurnover Meeting shall have a term of not more thanthree (3) years. In addition, any such contract shall provide thatit may be terminated without causeor penalty by the Association or Board of Directors upon not less than thirty (30) days' notice to theotherparty given not later than sixty (60) days after the Turnover Meeting.

ARTICLE 8

DECLARANT'S RIGHTS

8.1. General. Declarant is undertaking the work of developing Lots and other improvements within Maple Meadows. The completion ofthe development work and the marketing and sale of the Lots is essential to the establishment and welfare of the Property as a residential community. Until the Homes on all Lots on the Property have been constructed, fully completed and sold, with respect to the Common Areas and each Lot on the Property, the Declarant shall have the special rights set for in this Article 8.

8.2. Voting Rights. The Association shall have two (2) classes of voting members, as described in Section 7.4 ofthe Declaration and Section 3.7(b) of the Bylaws, attached hereto as Exhibit "A".

8.3. Interim Board and Officers. Declarant or the Owners shall form a transitional advisory committee (the "Transitional Advisory Committee") to provide for the transition from administrative responsibility by Declarant for the Property to administrative responsibility by the Association, inaccordancewithSection3.7 of the Bylaws, attached hereto as Exhibit "A".

8.4. Board of Directors. The Board of Directors shall be elected in accordance with Article 4 of the Bylaws, attached hereto as Exhibit "A", and recorded herewith.

8.5. Marketing Rights. Declarant shall have the right to maintain a sales office andmodel on one ormore of the Lots whichthe Declarant may or may not own, to be staffed by the employees ofthe Declarant or any licensed real estate sales agents. The Declarant and prospective purchasers and their agents shall have the right to use and occupy the sales office and models during reasonablehours any day of the week. The Declarantmaymaintain a reasonable number of"For Sale" signs at reasonable locations ofthe Property, including, without limitation, the Common Area.

8.6. Declarant'sEasements. The Declaranthas reservedeasements over the Property as more fully described in Article 3.4, Sections (c) and (d) hereof.

8.7. Appearance and Design of Maple Meadows. Declarant shall notbe prevented from changing the exterior appearance of the Common Area, including the landscaping or any other matter directly or indirectly connected with project in any manner deemed desirable by Declarant, provided that the Declarantobtain governmental consents required by law. The construction and material standards of Article 4 notwithstanding, Declarant may change exterior and/orinterior designs frominitial plans and provisions in this document, withoutnotice. This may include designs, colors, and type of materials, provided Declarant obtains anynecessary governmental consent.

8.8 Construction by Declarant. All construction by Declarant establishes the standardsfortheARC and meets any Design Guidelines of the Association. Additionally, the Declarant or any contractor or homebuilder shall have the right to construct residences on any Lot, and tostore construction materials and equipment on such Lots in the normal course of construction.

8.9 Approved Builder. An approved builder ("Approved Builder") is a builder or contractor who sharesinthe special Declarant rights related to construction, marketing, and assessments as defined elsewhere inthis Declaration.

(a) Declarant hereby designates Hayden Homes, LLC ("Hayden Homes") as an Approved Builder of Homes in Maple Meadows.

(b) Hayden Homes has the following rights:

(i). The right to use theeasements reserved for the Declarant under Article 3.4, Sections (c) and (d); and

(ii). The right to construct and maintain upon portions of the Common Areas and any Lotsowned by Hayden Homes within Maple Meadows such facilities and activities as Hayden Homes, inits sole opinion, may require or desirein connect with the constructionand sale of Homes and Lots within Maple Meadows. Such right includes (but is not limited to) the right to maintain business and construction offices, signs, banners, flags, model units, and sales offices, subject to compliance with applicable City ordinances. In connection with this right, Declarant hereby assigns to Hayden Homes, on a non-exclusive basis, Declarant's special rights set forth in Articles8.1,8.5,and 8.6 of the Declaration and Article 3.7 of the Bylaws, and exempts Hayden Homes from the restrictions set forth in Articles 4.13, 4.14, and 4.17 of the Declaration;and

(iii). Hayden Homes' plans and specifications for any Homes, fences and landscaping are presumed to be approved by the Architectural Review Committee under Article 6 and Articles 4.2, 4.5, and 4.15 of the Declaration.

ARTICLE 9

FUNDS AND ASSESSMENTS

9.1. Purposeof Assessment. The assessments levied by the Association shall be used exclusively to promote the recreation, health, safety, and welfare of the Owners and Occupants, and forthe improvement, operation and maintenance of theCommon Area, including maintenance, administrative costs, and insurance forAssociation.

(a) Common Expense Designations. Common Expenses of thenature described inSection 9.1 which are to be, or are, incurred by theAssociationforthe benefit of alloftheOwnersofLotswithinthe Property shall be separately budgeted for allocation among all such Owners and shall be designated "General Common Expenses".

9.2. Covenants to Pay. Declarant, on behalf of each and every subsequent Owner of any Lot, covenants and agrees that each Lot willpay the Association the assessments and any additional charges levied pursuant to this Article 9.

(a) Funds Held. The assessments collected by the Association shall be held by the Association for and on behalf of each Owner and shall beused solely forthe operation, care andmaintenanceof Maple Meadows as provided by this Declaration.

Upon the sale or transfer of any Lot, theOwner'sinterestinthefundsshallbedeemed automatically transferred to the successor in interest of such Owner, and is not refundable.

9.3. Basis ofAssessmentsandCommencementofAssessments.

(a) Assessments are to be levied against all Lots, except those owned by the Declarant, any successor Declarant or Builder who acquires allof the platted Lots in a bulk purchase, or an Approved Builder as definedinSection 8.9, whether or not such Lots have been improved with a substantially completed Home. Provided, however, that no Assessmentshall be levied against any Lot, until such time as itisfirst conveyed to a purchaser other than Declarant or Declarant's assignee. Assessments for all Lots conveyed by theDeclarant or Declarant Assign to a purchaser/Owner, eitherby deed or landsales contract, shall begin on the day of the recording ofthe deed or landsale contract conveying or contracting to convey the Lot to the new Owner.

(b) In lieuofpaying operating assessments, Declarant will contribute, in a timely manner non-refundable monies to the Association in order to support budgeted, or previously agreed to, operating costs in excess of current Association revenues, so long as Declarant owns any Lots. After the date of the Turnover Meeting, Declarant shall pay assessments on any Lots still owned.

(c) Notwithstanding Section 9.3(a), to the extent required by law, Reserve Fund Assessments described in Section 9.5 shall begin accruing on each platted Lot from the date the first Lot becomes subject to assessment under Section 9.3(a); provided, however, that Declarant and Approved Builder may defer paymentof any accrued assessment for a Lotinthe name of the Declarant or Approved Builder, under this Section 9.3(c), untilthedatesuch Lot is first conveyed to a purchaser other than Declarant or Declarant assignee, or Approved Builder, but no laterthanTurnover. The books and records of the Association shall reflect the amount owing from Declarant and Approved Builder for all such ReserveFund Assessments.

9.4. Annual Assessments. Annual assessments for each fiscalyearshallbe established when the Board approvesthe budget for that fiscal year. Annual assessments shall be levied on a fiscal year basis. The fiscal year shall end June 30. Unless

otherwise specified by the Board, annual assessments shall be due and payable in monthly installments on the first day of eachmonth during the term ofthis Declaration.

(a) Budget. Regardless ofthenumberof Members or the amount of assets ofthe Association, each year the Board shall prepare, approve and makeavailable to each Member a pro forma operating statement (budget) containing; (i) estimated revenue and expenses on an accrual basis; (ii) the amount ofthe total cash reserves of the Association currently available for replacement or major repair of the Common Area and for contingencies; (iii) an itemized estimate for the remaining life of, andthe methods of funding to defray repair, replacement or additions to major components of theCommon Area; and (iv) a general statement setting forth the procedures used by the Board in the calculation and establishment of reserves to defray the costs and repair, replacementor additions to major components of the Common Area. For the first fiscal year, the budget shallbe approved by theBoard no later thanthedate on whichannual assessments are scheduled tocommence. Thereafter, the Board shall annually prepare and approve the budget and distribute a copy thereof to each Member, together with written notice of the amount ofthe annual assessments to belevied against theOwner's Lot, not less than thirty (30) days and not more than ninety (90) days prior to the beginning of the fiscal year. The assessments inthe budget to becollected at intervals as determined by the Board of Directors may include both operating and maintenance costs and the reserve assessments, all as defined in the Association documents.

(b) Allocation of Assessments. Thetotal amount in the budget shall be charged equally against all sold Lots as annual assessments. Declarant may offset operating assessment payments due under this Declaration through the payment of maintenance or utility costs described herein, subject to submittal of paid invoices to the Association.

(c) Non-Waiver of Assessments. If before the expiration of any fiscal year the Association fails to fix annual assessments for the next fiscal year, the annual assessments established for the preceding year shall continue until a new annual assessment is fixed. The provisions ofthissection are subject to the provisions of the Oregon Planned Community Act.

9.5. ReserveFunds

(a) Reserve Fund for Replacing Common Elements. Declarant shall establish a reserve fund inthe name ofthe Association for replacement, inwhole or in part, of any completed improvements located in, on, or under the Common Area or Lots forwhichthe Association is responsible pursuant to this Declaration, thatwill normally require replacement in more than one (1) andfewerthan thirty (30) years, for any exterior painting to theextenttheCommon Area improvements include exterior painted surfaces, for other items, whether or not involving the Common Area, if theAssociationhas responsibility to maintainthe items, and forotheritemsfor which reserves are required

Turn static files into dynamic content formats.

Create a flipbook