Skip to main content

2285 S Hwy 97 Redmond - Property Development Pkg

Page 1


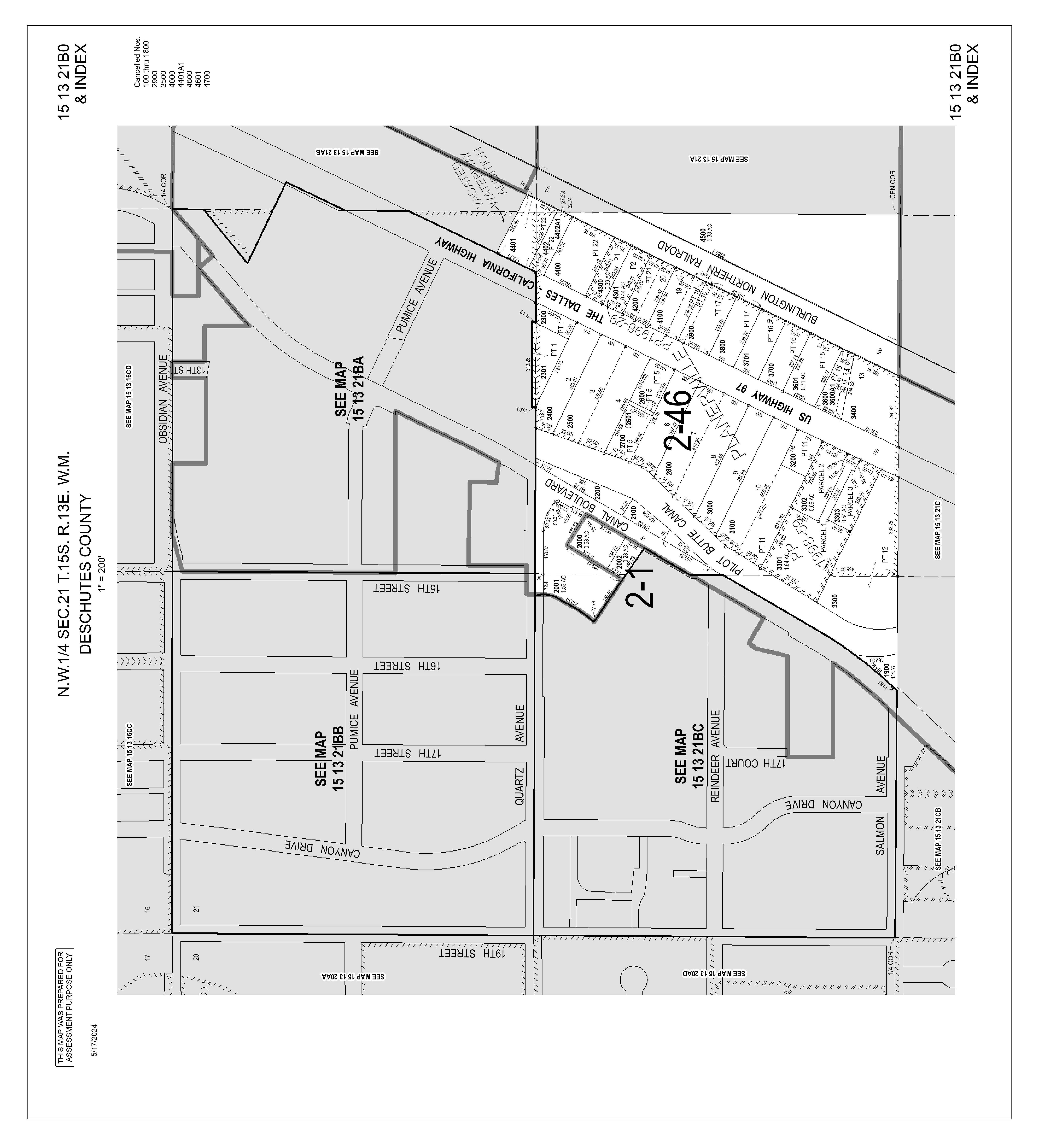
Parcel #:124558

Tax Lot:151321B003300

Deschutes County Property Profile Information

Owner: Bend Redmond Habitat For Humanity

CoOwner:

Site:2285 S Hwy 97

Redmond OR 97756

Mail: 224 NEThurstonAve

Bend OR 97701 - 3852

Land Use:980 - Benevolent, fraternal ownership - Vacant

Std Land Use:9110 - Charitable organization

Twn/Rng/Sec:15S / 13E / 21 / NW / SE

Legal:PLANERVILLE Lot: PT12 Block: 0

ASSESSMENT & TAX INFORMATION

MarketYear: 2025

MarketTotal: $2,234,950.00

Market Land: $2,234,950.00

Market Impr:

AssessmentYear: 2025

AssessedTotal: $273,510 00

Exemption:

Taxes:

Levy Code: 2-046

Levy Rate: 20 1488

SALE & LOAN INFORMATION

Sale Date: 01/07/2020

SaleAmount: $930,855 00

Document #: 666

DeedType: Warranty Deed

LoanAmount:

Lender:

LoanType:

InterestType:

Title Co: FIRSTAMERICAN

PROPERTYCHARACTERISTICS

Lot Size: 2 07Acres (90,169 SqFt)

Bare Land: No

Lot/Block: PT12 / 0

Plat/Subdiv: Planerville Waterfront: Zoning: Redmond-C1

School Dist: 2J - Redmond

Primary School: MALynch Elementary School

Middle School: Obsidian Middle School High School: Ridgeview High School Census: 1023 - 000901

Map:

Watershed: McKenzie Canyon-Deschutes River

Latitude: 44 255075

Longitude: -121 183845

Stat Class:Year Built: 1954

Bedrooms: Bathrooms:

Total SF: Basement SF: Garage SF: Fireplace:

Sentry Dynamics, Inc and its customers make no representations, warranties or conditions, express or implied, as to the accuracy or completeness of information contained in this report

Deschutes County Property Information

Report Date: 2/10/2026 12:21:02 PM

The information and maps presented in this report are provided for your convenience. Every reasonable effort has been made to assure the accuracy of the data and associated maps. Deschutes County makes no warranty, representation or guarantee as to the content, sequence, accuracy, timeliness or completeness of any of the data provided herein. Deschutes County explicitly disclaims any representations and warranties, including, without limitation, the implied warranties of merchantability and fitness for a particular purpose. Deschutes County shall assume no liability for any errors, omissions, or inaccuracies in the information provided regardless of how caused. Deschutes County assumes no liability for any decisions made or actions taken or not taken by the user of this information or data furnished hereunder.

Account Summary

Subdivision:

Warnings, Notations, and Special Assessments

Review of digital records maintained by the Deschutes County Assessor’s Office, Tax Office, Finance Office, and the Community Development Department indicates that there are no special tax, assessment or property development related notations associated with this account. However, independent verification of the presence of other Deschutes County tax, assessment, development, and additional property related considerations is recommended. Confirmation is commonly provided by title companies, real estate agents, developers, engineering and surveying firms, and other parties who are involved in property transactions or property development. In addition, County departments may be contacted directly to discuss the information.

Tax Payment History

Land Characteristics

ELEMENTARY SCHOOL ATTENDANCE AREA M. A. LYNCH ELEMENTARY SCHOOL (541) 923-4876 1314 SW KALAMA, REDMOND, OR 97756

MIDDLE SCHOOL ATTENDANCE AREA

EDUCATION SERVICE TAX DISTRICT HIGH DESERT EDUCATION SERVICE DISTRICT (541) 693-5600

Development Summary

City of Redmond Permits

Permit Detail

Building Permit Details

Permit Number:

711-22-002313-STR

Permit Name: COHEN SKOVBORG LLC

BEND REDMOND HABITAT FOR HUMANITY

Contractor:

Building Class:

Commercial

New - Commercial Class of Work:

Building Use:

New Commercial Building for Bend-Redmond Habitat For Humanity Restore. 11,510sf RETAIL FLOOR SPC, STRG, OFFICES. ADDITIONAL 740sf OF EXT COVERED ENTRY & LOADING AREA. 2-STORY, 30' MAX HEIGHT. M, S-1, & B OCCUPANCY. METAL-BUILDING STRUCTURE WITH WOOD-FRAMED 2ND-STORY & INTERIOR WALLS.

Inspections

No inspection records found.

Building Permit Details

Permit Number:

711-B57913

AMEN,RUBY A

Permit Name: SMAF CONSTRUCTION LLC

DEMO SFD W/(2) OUT BUILDINGS Class of Work: DEMO SFD W/(2) OUT BUILDINGS

Building Use:

Inspections

03/11/2005 JEC 5/8" meter @location/ 1EDu

Building Permit Details

Permit Number:

Permit Name:

Contractor:

711-S95-537901

07/12/1995 Application Date: 07/12/1995 Issue Date: Final Date: Finaled Status:

Building Use:

Inspections

No inspection records found.

Electrical Permit Details

Permit Number:

Permit Name:

711-22-002313-ELEC-01

Contractor: 10/17/2022 Application Date: Issue Date: 10/18/2022 Final Date: Withdrawn Status:

BEND REDMOND HABITAT FOR HUMANITY

New Commercial Building for Bend-Redmond Habitat For Humanity Restore. 11,510sf RETAIL FLOOR SPC, STRG, OFFICES. ADDITIONAL 740sf OF EXT COVERED ENTRY & LOADING AREA. 2-STORY, 30' MAX HEIGHT. M, S-1, & B OCCUPANCY. METAL-BUILDING STRUCTURE WITH WOODFRAMED 2ND-STORY & INTERIOR WALLS.

New - Commercial Class of Work:

Service Description:

Inspections

No inspection records found.

Permit Number:

711-21-000291-PLNG

Linked Permit:

Permit Name:

Land Use Permit Details 10/25/2021

Blackmore Planning and Development Services

Owner:

Request:

Conservation Easement Required:

10/25/2021 Submit Date: Application Complete Date: Finaled Status:

711-21-000291-SP | Site and Design review for a 15,200 SF building to be used for Habitat for Humanity Restore No

Conservation Easement Recording Number:

Conservation Easement Description:

Conservation Easement Comments:

Land Use Permit Details

Permit Number: Cullen Manown

711-16-000184-PD

Permit Name:

Owner:

10/12/2016 Submit Date: Application Complete Date: Closed Status:

Request: development of retail store with parking on subdivided .78 AC from the overall 2.46AC parcel, auto parts retail store 6912 SF.Sean has finished and filed this in the file room. No

Conservation Easement Required:

Conservation Easement Recording Number:

Conservation Easement Description:

Conservation Easement Comments:

Mechanical Permit Details

711-22-002313-MECH-01

Permit Number: BEND REDMOND HABITAT FOR HUMANITY

Permit Name:

Contractor:

Commercial Building Class: New - Commercial Class of Work:

Service Description:

Inspections

No inspection records found.

Plumbing Permit Details

Permit Number:

Permit Name:

Contractor:

711-22-002313-PLM-01

Building Use:

Linked Permit:

BEND REDMOND HABITAT FOR HUMANITY

Final Date:

10/17/2022

Application Date: Issue Date: 10/18/2022

Withdrawn Status:

10/17/2022

Withdrawn Status:

Final Date:

Application Date: Issue Date: 10/18/2022

Service Description:

Inspections

No inspection records found.

Plumbing Permit Details

711-P26813

Permit Number: AMEN,RUBY A

Permit Name: AMEN,RUBY A

Service Description:

Inspections

711-22-002313-DA-01

STATEMENT OF TAX ACCOUNT

d Map

Parcel ID: 124558

TaxAccount #: 151321B003300

2285 S Hwy 97, Redmond OR 97756

This map/plat is being furnished as an aid in locating the herein described land in relation to adjoining streets, natural boundaries and other land, and is not a survey of the land depicted Except to the extent a policy of title insurance is expressly modified by endorsement, if any, the company does not insure dimensions, distances, location of easements, acreage or other matters shown thereon

Parcel ID: 124558

TaxAccount #: 151321B003300

2285 S Hwy 97, Redmond OR 97756

This map/plat is being furnished as an aid in locating the herein described land in relation to adjoining streets, natural boundaries and other land, and is not a survey of the land depicted Except to the extent a policy of title insurance is expressly modified by endorsement, if any, the company does not insure dimensions, distances, location of easements, acreage or other matters shown thereon

Parcel ID: 124558

TaxAccount #: 151321B003300

2285 S Hwy 97, Redmond OR 97756

This map/plat is being furnished as an aid in locating the herein described land in relation to adjoining streets, natural boundaries and other land, and is not a survey of the land depicted Except to the extent a policy of title insurance is expressly modified by endorsement, if any, the company does not insure dimensions, distances, location of easements, acreage or other matters shown thereon

Parcel ID: 124558

TaxAccount #: 151321B003300

2285 S Hwy 97, Redmond OR 97756

This map/plat is being furnished as an aid in locating the herein described land in relation to adjoining streets, natural boundaries and other land, and is not a survey of the land depicted Except to the extent a policy of title insurance is expressly modified by endorsement, if any, the company does not insure dimensions, distances, location of easements, acreage or other matters shown thereon

Parcel ID: 124558

TaxAccount #: 151321B003300

2285 S Hwy 97, Redmond OR 97756

This map/plat is being furnished as an aid in locating the herein described land in relation to adjoining streets, natural boundaries and other land, and is not a survey of the land depicted Except to the extent a policy of title insurance is expressly modified by endorsement, if any, the company does not insure dimensions, distances, location of easements, acreage or other matters shown thereon

Parcel ID: 124558

TaxAccount #: 151321B003300

2285 S Hwy 97, Redmond OR 97756

This map/plat is being furnished as an aid in locating the herein described land in relation to adjoining streets, natural boundaries and other land, and is not a survey of the land depicted Except to the extent a policy of title insurance is expressly modified by endorsement, if any, the company does not insure dimensions, distances, location of easements, acreage or other matters shown thereon

This map/plat is being furnished as an aid in locating the herein described land in relation to adjoining streets, natural boundaries and other land, and is not a survey of the land depicted Except to the extent a policy of title insurance is expressly modified by endorsement, if any, the company does not insure dimensions, distances, location of easements, acreage or other matters shown thereon

Parcel ID: 124558

TaxAccount #: 151321B003300

2285 S Hwy 97, Redmond OR 97756

This map/plat is being furnished as an aid in locating the herein described land in relation to adjoining streets, natural boundaries and other land, and is not a survey of the land depicted Except to the extent a policy of title insurance is expressly modified by endorsement, if any, the company does not insure dimensions, distances, location of easements, acreage or other matters shown thereon

Parcel ID: 124558

TaxAccount #: 151321B003300

2285 S Hwy 97, Redmond OR 97756

This map/plat is being furnished as an aid in locating the herein described land in relation to adjoining streets, natural boundaries and other land, and is not a survey of the land depicted Except to the extent a policy of title insurance is expressly modified by endorsement, if any, the company does not insure dimensions, distances, location of easements, acreage or other matters shown thereon

Parcel ID: 124558

TaxAccount #: 151321B003300

2285 S Hwy 97, Redmond OR 97756

This map/plat is being furnished as an aid in locating the herein described land in relation to adjoining streets, natural boundaries and other land, and is not a survey of the land depicted Except to the extent a policy of title insurance is expressly modified by endorsement, if any, the company does not insure dimensions, distances, location of easements, acreage or other matters shown thereon

REDMOND CODE

CHAPTER 8

DEVELOPMENT REGULATIONS

The contents of Chapter Development Regulations can be found here:

https://www.redmondoregon.gov/home/showpublisheddocument/3426/638091

082331730000

Deschutes County Code

https://deschutescounty.municipalcodeonline.com/book?type=ordinances#name

Sources: Esri, Vantor, Airbus DS, USGS, NGA, NASA, CGIAR, N Robinson, NCEAS, NLS, OS, NMA, Geodatastyrelsen, Rijkswaterstaat, GSA, Geoland,
Community Maps Contributors, Oregon State Parks, State of Oregon GEO, © OpenStreetMap, Microsoft, Esri, TomTom, Garmin, SafeGraph, GeoTechnologies, Inc, METI/NASA, USGS, Bureau of Land Management, EPA, NPS, US Census Bureau, USDA,
Sources: Esri, Vantor, Airbus DS, USGS, NGA, NASA, CGIAR, N Robinson, NCEAS, NLS, OS, NMA, Geodatastyrelsen, Rijkswaterstaat, GSA, Geoland,
AppBuilder for ArcGIS Esri Community Maps Contributors, Oregon State Parks, State of Oregon GEO, © OpenStreetMap, Microsoft, Esri, TomTom, Garmin, SafeGraph, GeoTechnologies, Inc, METI/NASA, USGS, Bureau of Land Management, EPA, NPS, US Census Bureau, USDA,
Sources: Esri, Vantor, Airbus DS, USGS, NGA, NASA, CGIAR, N Robinson, NCEAS, NLS, OS, NMA, Geodatastyrelsen, Rijkswaterstaat, GSA, Geoland,
Sources: Esri, Vantor, Airbus DS, USGS, NGA, NASA, CGIAR, N Robinson, NCEAS, NLS, OS, NMA, Geodatastyrelsen, Rijkswaterstaat, GSA, Geoland,

2285 S Hwy 97 - Storm Water Collection System - Aerial

Sources: Esri, Vantor, Airbus DS, USGS, NGA, NASA, CGIAR, N Robinson, NCEAS, NLS, OS, NMA, Geodatastyrelsen, Rijkswaterstaat, GSA, Geoland,
Esri Community Maps Contributors, Oregon State Parks, State of Oregon GEO, © OpenStreetMap, Microsoft, Esri, TomTom, Garmin, SafeGraph, GeoTechnologies, Inc, METI/NASA, USGS, Bureau of Land Management, EPA, NPS, US Census Bureau, USDA,

2285 S Hwy 97 - Storm Water Collection System - No Aerial

Sources: Esri, Vantor, Airbus DS, USGS, NGA, NASA, CGIAR, N Robinson, NCEAS, NLS, OS, NMA, Geodatastyrelsen, Rijkswaterstaat, GSA, Geoland,
Web AppBuilder for ArcGIS
Esri Community Maps Contributors, Oregon State Parks, State of Oregon GEO, © OpenStreetMap, Microsoft, Esri, TomTom, Garmin, SafeGraph, GeoTechnologies, Inc, METI/NASA, USGS, Bureau of Land Management, EPA, NPS, US Census Bureau, USDA,
Sources: Esri, Vantor, Airbus DS, USGS, NGA, NASA, CGIAR, N Robinson, NCEAS, NLS, OS, NMA, Geodatastyrelsen, Rijkswaterstaat, GSA, Geoland,
Sources: Esri, Vantor, Airbus DS, USGS, NGA, NASA, CGIAR, N Robinson, NCEAS, NLS, OS, NMA, Geodatastyrelsen, Rijkswaterstaat, GSA, Geoland,
ArcGIS Esri Community Maps Contributors, Oregon State Parks, State of Oregon GEO, © OpenStreetMap, Microsoft, Esri, TomTom, Garmin, SafeGraph, GeoTechnologies, Inc, METI/NASA, USGS, Bureau of Land Management, EPA, NPS, US Census Bureau, USDA,

Site Map

2285 S Highway 97, Redmond, Oregon, 97756 3

2285 S Highway 97, Redmond, Oregon, 97756

Rings: 1, 3, 5 mile radii Longitude: -121.18369

ACS Population Summary

2285 S Highway 97, Redmond, Oregon, 97756 3

2285 S Highway 97, Redmond, Oregon, 97756

Ring: 1 mile radius

Household Type by Relatives and Non-relatives

Households by Disability Status

Households by Presence of People Under 18 by Household Type

- 2023

- 2023

Population Age 5 to 17 by Language Spoken

- 2023

Population Age 18 to 64 by Language Spoken

2019 - 2023

Population Age 65+ by Language Spoken

Workers Age 16+ By Means of Transportation

Workers Age 16+ By Travel Time to Work

Sex by Class of Worker

2019 -

2023

Females Age 20-64 by Age of Children

Households and Internet Subscriptions

2019 - 2023

Source: U.S. Census 2019-2023 American Community Survey. Data Note: N/A means not available. Ratio of Income to Poverty Level represents persons for whom poverty status is determined. Household income represents income in 2023, adjusted for inflation.

Margin of error (MOE): The MOE is a measure of the variability of the estimate due to sampling error. MOEs enable the data user to measure the range of uncertainty for each estimate with 90 percent confidence. The range of uncertainty is called the confidence interval, and it is calculated by taking the estimate +/- the MOE. For example, if the ACS reports an estimate of 100 with an MOE of +/- 20, then you can be 90 percent certain the value for the whole population falls between 80 and 120.

Reliability: Symbols represent threshold values Esri has established from the Coefficients of Variation (CV) to designate the usability of the estimates. The CV measures the amount of sampling error relative to the size of the estimate, expressed as a percentage.

High Reliability:  Small CVs (less than or equal to 12 percent) are flagged green and are considered reasonably reliable.

Medium Reliability:  Estimates with CVs between 12 and 40 are flagged yellow and should be used with caution. Low Reliability:  Large CVs (over 40 percent) are flagged red and are considered

ACS Population Summary

2285 S Highway 97, Redmond, Oregon, 97756 3

2285 S Highway 97, Redmond, Oregon, 97756

Ring: 3 mile radius

Household Type by Relatives and Non-relatives

Households by Disability Status

Households by Presence of People Under 18 by Household Type

- 2023

2019 - 2023

Population Age 5 to 17 by Language Spoken

- 2023

Population Age 18 to 64 by Language Spoken

2019 - 2023

Population Age 65+ by Language Spoken

Workers Age 16+ By Means of Transportation

Workers Age 16+ By Travel Time to Work

2019 - 2023

Sex by Class of Worker

Gross Rent as a Percentage of

Females Age 20-64 by Age of Children

2019 - 2023

Population and Presence of a Computer

Households and Internet Subscriptions

- 2023

2019 - 2023

Source: U.S. Census 2019-2023 American Community Survey. Data Note: N/A means not available. Ratio of Income to Poverty Level represents persons for whom poverty status is determined. Household income represents income in 2023, adjusted for inflation.

Margin of error (MOE): The MOE is a measure of the variability of the estimate due to sampling error. MOEs enable the data user to measure the range of uncertainty for each estimate with 90 percent confidence. The range of uncertainty is called the confidence interval, and it is calculated by taking the estimate +/- the MOE. For example, if the ACS reports an estimate of 100 with an MOE of +/- 20, then you can be 90 percent certain the value for the whole population falls between 80 and 120.

Reliability: Symbols represent threshold values Esri has established from the Coefficients of Variation (CV) to designate the usability of the estimates. The CV measures the amount of sampling error relative to the size of the estimate, expressed as a percentage.

High Reliability:  Small CVs (less than or equal to 12 percent) are flagged green and are considered reasonably reliable.

Medium Reliability:  Estimates with CVs between 12 and 40 are flagged yellow and should be used with caution.

Low Reliability:  Large CVs (over 40 percent) are flagged red and are considered very unreliable.

ACS Population Summary

2285 S Highway 97, Redmond, Oregon, 97756 3

2285 S Highway 97, Redmond, Oregon, 97756

Ring: 5 mile radius

Household Type by Relatives and Non-relatives

Households by Disability Status

Households by Presence of People Under 18 by Household Type

- 2023

Population by Ratio of Income to Poverty

2019 - 2023

Population Age 5 to 17 by Language Spoken

- 2023

Population Age 18 to 64 by Language Spoken

2019 - 2023

Population Age 65+ by Language Spoken

Workers Age 16+ By Means of Transportation

Workers Age 16+ By Travel Time to Work

- 2023

Sex by Class of Worker

Females Age 20-64 by Age of Children

2019 - 2023

Population and Presence of a Computer

Households and Internet Subscriptions

- 2023

2019 - 2023

Source: U.S. Census 2019-2023 American Community Survey. Data Note: N/A means not available. Ratio of Income to Poverty Level represents persons for whom poverty status is determined. Household income represents income in 2023, adjusted for inflation.

Margin of error (MOE): The MOE is a measure of the variability of the estimate due to sampling error. MOEs enable the data user to measure the range of uncertainty for each estimate with 90 percent confidence. The range of uncertainty is called the confidence interval, and it is calculated by taking the estimate +/- the MOE. For example, if the ACS reports an estimate of 100 with an MOE of +/- 20, then you can be 90 percent certain the value for the whole population falls between 80 and 120.

Reliability: Symbols represent threshold values Esri has established from the Coefficients of Variation (CV) to designate the usability of the estimates. The CV measures the amount of sampling error relative to the size of the estimate, expressed as a percentage.

High Reliability:  Small CVs (less than or equal to 12 percent) are flagged green and are considered reasonably reliable.

Medium Reliability:  Estimates with CVs between 12 and 40 are flagged yellow and should be used with caution.

Low Reliability:  Large CVs (over 40 percent) are flagged red and are considered very unreliable.

Market Profile

2285 S Highway 97, Redmond, Oregon, 97756 3

2285 S Highway 97, Redmond, Oregon, 97756 Rings: 1, 3, 5 mile radii

2025 Households by Income

$15,000-19,999

$45,000-49,999

Housing Unit Summary

2025 Population by Age

2025 Population 15+ by Marital Status

2020 Population by Race/Ethnicity

2025 Population by Race/Ethnicity

2025 Employed Pop 16+ by Occupation

2025 Employed Pop 16+ by Occupation

2025 Civilian Population 16+ in Labor Force

Source: Esri forecasts for 2025 and 2030. U.S. Census 2010 and 2020 Census data converted by Esri into 2020 geography. Consumer Spending data are derived from the 2022 and 2023 Consumer

2025 Consumer Spending

Top Tapestry Segment

Moderate Metros (C6): Moderate Metros (C6): Dreambelt (K5):

This segment is characterized by young, suburban households with moderate incomes.

Learn more about this segment...

This segment is characterized by young, suburban households with moderate incomes.

Learn more about this segment...

This segment is characterized by middleaged Western suburbanites with high rent and home prices.

Learn more about this segment...

Data Note: Household population includes persons not residing in group quarters. Average Household Size is the household population divided by total households. Persons in families include the householder and persons related to the householder by birth, marriage, or adoption. Per Capita Income represents the income received by all persons aged 15 years and over divided by the total population.

Income represents the preceding year, expressed in current dollars. Household income includes wage and salary earnings, interest dividends, net rents, pensions, SSI and welfare payments, child support, and alimony.

Persons of Hispanic Origin may be of any race. The Diversity Index measures the probability that two people from the same area will be from different race/ethnic groups.

Consumer spending shows the amount spent on a variety of goods and services by households that reside in the area. Expenditures are shown by broad budget categories that are not mutually exclusive. Consumer spending does not equal business revenue. Total and Average Amount Spent Per Household represent annual figures. The Spending Potential Index represents the amount spent in the area relative to a national average of 100.

Source: Esri forecasts for 2025 and 2030. U.S. Census 2010 and 2020 Census data converted by Esri into 2020 geography. Consumer Spending data are derived from the 2022 and 2023 Consumer Expenditure Surveys, Bureau of Labor Statistics.

Traffic Count Map

2285 S Highway 97, Redmond, Oregon, 97756 3

2285 S Highway 97, Redmond, Oregon, 97756

Rings: 1, 3, 5 mile radii

Source: Traffic Counts (2025)

Turn static files into dynamic content formats.

Create a flipbook
2285 S Hwy 97 Redmond - Property Development Pkg by info-deschutestitle - Issuu