

Commerces et bureau:
Travaillez au cœur de l’attractivité locale

Esch - sur - Alzette

![]()


Commerces et bureau:
Travaillez au cœur de l’attractivité locale

Esch - sur - Alzette






2025 : 195 091 habitants
2050 : ≈ 220 000 habitants

2025: 8 400 étudiants à l’Université du Luxembourg
Esch - sur - Alzette

2ème plus grande ville du Luxembourg


Capitale de la culture en 2022
Rout L ë ns



15 min de la gare à pied
5 min de Esch - Belval en train
25 min de Luxembourg en train

2025 : 38 000 habitants
2050 : ≈ 65 000 habitants
3 musées, 1 piscine, 1 parc animalier, 1 réserve naturelle



45 min de Metz en voiture
16 min de la rue commerçante à pied
22 min de Luxembourg en voiture




Un nouveau quartier historique
Parcours Art & Culture
• Bâtiments patrimoniaux réhabilités comme usages partagés (restauration, cafés, etc .)
• L’Allée de la Culture Industrielle : fil rouge piéton, façades actives, scènes urbaines
• Commande artistique intégrée au bâti et dans les espaces libres (« art in architecture »)
Bien - être quotidien
Parcours Nature & Bien - Être
• Gestion différenciée des espaces verts, trames écologiques, palettes locales et du voyage, jardins privatifs et collectifs, potagers en toiture (« l’habitant jardinier »)
• Gestion de l’eau visible : noues, bassins de rétention & réemploi .
• Certification Well Community et Carbon Footprint Neutral
Parcours Sportif
• Boucles course/marche balisées (1 km, 3 km), placettes d’étirement, mobilier actif
• Lien aux étangs et à la forêt (plat / pente douce)
• Quartier sans voiture en surface favorisant la mobilité douce
• Chemins dédiés aux PMR

1 400 logements et plus de 4 000 habitants








Projet en développement
Livraison Q2 2028














• Total Commerces hors batiments patrimoniaux : 2.200 m ² GLA
• Total Commerces dans les batiments patrimoniaux lot 3, 5 et lot 26 : 4.355 m ²
• Total Bureaux : 4.837 m


Au cœur du quartier Rout Lëns dans l’axe de l’Allée de la culture industrielle .
Häerz s’implante au centre de l’éco - quartier .

Accessibilité
La résidence Häerz favorise la mobilité douce afin de privilégier un environnement durable et pour le confort de tous . Avec 1400 logements au total sur le quartier Rout Lëns, les flux réguliers des résidents ainsi que des quartiers existants voisins, garantissent une fréquentation continue . Proche des axes autoroutiers, le site capte aussi des frontaliers, renforçant son attractivité .
Ancrage
Au cœur de Rout Lëns , la résidence Häerz s’inscrit durablement dans l’écoquartier et participe chaque jour à la vie locale . Dans la continuité du centre ville d’Esch - sur- Alzette, une urbanisation complète prend forme : logements, commerces et services .
Visibilité
Les vitrines généreuses et enseignes lumineuses des commerces assurent une visibilité immédiate . Placé au coeur de vie du quartier, la résidence Häerz devient un repère majeur, juste en face du Magasin TT (un lieu dédié à l’hospitalité) et sur la place centrale du quartier .






• Supérette /épicerie de quartier
• Localisation: Façade ouest,
Situé sur la place principale avec une excellente visibilité
• Livraison : Accès livraison à l’arrière du bâtiment


Simulation d’aménagement pour une supérette Ambiance claire et accueillante, parcours fluide pour les piétons et le flux provenant du parking en sous - sol. Les accès livraisons anticipés.



• Commerce/service du quotidien
• Localisation: Façade ouest, Belle visibilité de la vitre en angle, Situé sur la place principale, en face du Magasin TT et de la tour résidentielle avec ses futurs commerces.

Commerce 2
Simulation d’aménagement pour un salon bien - être
Cadre lumineux et cocooning, avec 2 entrées privatives. Situé entre les 2 entrées de la résidence et des accès parking en sous - sol.
Commerce 2




• Service de proximité
• Localisation:
Façade nord,
En face du Magasin TT et Halles des Turbines

Commerce 3
Simulation d’aménagement pour un espace médical
Atmosphère lumineuse et chaleureuse, confort immédiat et confidentialité préservée à chaque étape du parcours patient.
Entrée
Commerce 3

Livraison CASCO avec les fluides en attente.



• Café/petite restauration
• Localisation :
Situé en angle,
Face à la résidence senior et Hall es des Turbines
Terrasse nord - est
Commerce 4

Simulation d’aménagement pour un café et petite restauration
Ambiance lumineuse et chaleureuse, accueil avec une petite terrasse potentielle devant la vitrine face à la halle des turbines, idéal pour une pause café/déjeuner.
Entrée Commerce 4

Livraison CASCO avec les fluides en attente.


Localisation
Au cœur du quartier Rout Lëns dans l’axe de l’Allée de la culture industrielle .
Häerz s’implante au carrefour central de l’écoquartier .
Surfaces (m² GLA)
Lobby & Bureau
( rdc et étage + 1)
Ascenseur privatif - accessibilité PMR
Parking souterrain

en sous - sol

m²
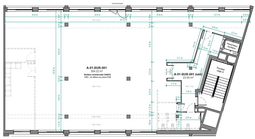
• Entrée privative de 13 m² (rdc), idéal pour un lobby pour accéder au bureau de 328 m² (1er étage)
• Excellente visibilité sur le cœur du quartier
• Baigné de lumière naturelle sur 2 façades ( Est/Ouest)
• Accessibilité PMR: Ascenseur privatif du sous - sol parking jusqu’à l’étage +1
• Localisation : Façade ouest, sur la place centrale du quartier

Simulation d’aménagement pour un bureau Espace lumineux et fonctionnel, concentration facilitée et échanges discrets à chaque étape de la journée.
Façade ouest vitrée sur la place centrale

Livraison CASCO avec les fluides en attente.

Façade vitrée sur la cour intérieure




Résidence d’


L’expertise d’IKO
+ de 137.900 m² de bureaux et commerces développés depuis 1989
IKO développe des immeubles de bureaux depuis l’origine — un métier historique au cœur de notre expertise.
De la programmation à la livraison, nous pilotons chaque projet avec exigence pour concevoir des espaces efficients, flexibles et durables, pensés pour le confort et la performance.
Intégrés à des quartiers vivants et bien desservis, nos bureaux s’adaptent aux nouveaux usages et valorisent durablement l’image des entreprises.

Quelques références commerces & bureaux

Unicity
Bâtiment mixte logements et bureaux
Luxembourg

Opkorn

Centre commercial Differdange

One on One
Bâtiment de bureaux

Luxembourg

Wooden
1er bâtiment de bureaux en bois

Leudelange






