ARCHITECTURE PORTFOLIO

Page 1

R
N K H A N SELECTEDWORKS2019-2022
ARCHITECTURE PORTFOLIO
E H A

REHANKHAN B.ARCH

Aspiring Architect

ABOUT ME

With a backpack and hunger for travelling alongside infinite stories of people. I, Rehan Khan architecture student of JNEC, Aurangabad. An aspiring learner who loves to explore different cultures across the world. The colors and columns, designs filled with this mad dening interiors and techniques .Each wanting to tell a tale of its own filled in me this curiosity to explore the lesser known. The four years of architecture offered me numerous opportunities to fail, learn and grow. Each year with different projects requiring a new skill set to piece together and make out a flawless plan. Every challenge moulded me to be more adaptive and open to new learnings. I hereby, consider myself fit to make this shift from a learner to a professional.

SOCIALMEDIAL INSTAGRAM SKILLS English 30% Hindi 30% Urdu 25% Marathi 15%
DATE OF BIRTH
ADDRESS H.no
PHONE 9595097177 EMAIL rehan1 rk70@gmail com ikhan0fficial
November 18,2000
1-11-117, juna bazar, aurangabad
PORTFOLIO
EDUCATION Boon English High School Kohinoor College Of Science And Arts SKILLS MGMs JNEC 4th year architecture 2016 2018 2022 Hand Drafting Visualization Communication Skills Team Work Model Making Sketching Innovative Thinking Analytical Skills SOFTWARE PROFECIENCIES Autodesk Autocad Trimble Sketchup Adobe Photoshop Adoble Lightroom Autodesk Revit Lumion Enscape Canva Microsoft Powerpoint LANGUAGE English Urdu Hindi Marathi DESIGN APPROACH Interior Design Layout & Anthropometry Individual spaces (shop) Boutique Bungalow Public Library Historical Museum Mass Housing Project Wellness Resort 1st Sem 2nd Sem 3rd Sem 4th Sem 5th Sem 6th Sem 7th Sem
are no straight lines or sharp corners in nature. Therefore, buildings must have no straight lines or sharp corners”
RESORT MASS HOUSING TABLEOFCONTENT There
MUSEUM MISCELLANEOUS WORKS WORKING DRAWING
- Antonio Gaudi

RESORT

S S
S S II S S
II T T E E A A N N A A L L Y Y
1 ENTRY 2 EXIT 3 SERVICE ENTRY 4 PARKING 5 WATER BODIES 6 BON FIRE 7 OAT 8 HEALTH CENTRE 9 AYURVEDA CENTRE 10 ADMIN 11 CAFETERIA 12 KITCHEN 13 GARDEN 14 VILLA 15 ADMINISTRATOR BUNGALOW 16 TWIN BUNGALOW 17 COTTAGE 18 TENT 19 PUBLIC TOILET 20 FOOTBALL/BASKETBALL 21 DORMETORIES 22 SINGLE OCCUPANCY 23 DOUBLE OCCUPANCY 24 GUEST HOUSE 25 THERAPIST 26 SUPPORT STAFF 27 CLUB HOUSE 1 2 4 3 5 5 5 5 6 7 8 9 10 11 12 13 14 15 16 17 18 17 18 20 21 21 22 22 23 23 24 25 26 19 27 9 MASTER PLAN MASTER PLAN L E G E N D S
MEDICINE PREPARATION AREA RECEPTION LOCKER AND CHANGING ROOM TOILET CHANGING ROOM HYDROTHERAPY STEAM BATH MUD BATH SPINAL BATH HIP BATH VERMINA NASIR+VAHAN SHIRODHARA PHYSIOTHERAPY VASTI MASSAGE ROOM ACCUPUNCTURE OPEN SPACE MAGNETOTHERY CHROMOTHERAPY PHARMACY OPD RECEPTION FEMALE TOILET MALE TOILET CASUALTY THERAPIST TOILET OPEN SPACE OPD OPD OPD MALETREATMENTAREA 1400sqm FEMALETREATMENTAREA 1400sqm HEALTHCENTRE 450sqm
HEALTHCENTRE A A B B X X' Y Y

AYURVEDA CENTRE VIEW HEALTH CENTRE VIEW

AYURVEDAANDHEALTH CENTRE

BACK
ELEVATION HEALTH CENTRE VIEW
FEMALETOILET MALETOILET RECEPTION ACCOUNTS CABIN STAFFAREA CONFERENCE ROOM SERVEILLANCE ROOM MANAGER CABIN ADMIN 300sqm KITCHEN 1000sqm DORMETORIES 470sqm CAFETERIA 300sqm RECEPTION DININGAREA KITCHEN OPENSPACE DINING RECEPTION DININGAREA DININGAREA DININGAREA OPENSPACE DINING KITCHEN GARBAGE REFRIGERATORCHAMBER BAKERY AREA WAREHOUSE CLOAK ROOM WASHAREA STAFF TOILET MALE TOILET FEMALE TOILET REFRIGERATORCHAMBER TOILET TOILET TOILET OPENSPACE
TENT 38sqm GUESTHOUSE 300sqm SUPPORT STAFF 320sqm FIRSTFLOOR GROUNDFLOOR BEDROOM TOILET BEDROOM KITCHEN TOILET UTILTY AREA COTTAGE 36sqm BEDROOM PANTRY TOILET PANTRY BEDROOM
ADMIN KITCHEN A A B' B A A B B

FRONTELEVATION BACKELEVATION

KITCHEN
ADMIN FRONTELEVATION BACKELEVATION
SUPPORTSTAFF DORMETORIES A A' B B A A B B A A B' B

DORMETORIES

FRONTELEVATION BACKELEVATION

BACKELEVATION

STAFF FRONTELEVATION
COTTAGE GUESTHOUSE
A A' B B
A A B B

GUESTHOUSE

BACKELEVATION FRONTELEVATION

FRONTELEVATION

COTTAGE
BACKELEVATION
THERAPIST 285sqm ADMINISTRATORBUNGALOW 160sqm VILLA 630sqm TWINBUNAGALOW 600sqm OPEN SPACE LIVING HALL KITCHEN BEDROOM TOILET UTILITY SPACE LIVING HALL KITCHEN BEDROOM BEDROOM TOILET TOILET ENTERTAINMENT SPACE TOILET POOL OPEN SPACE SITTING LIVING HALL BEDROOM BEDROOM KITCHEN TOILET TOILET UTILITY SPACE BEDROOM BEDROOM TOILET TOILET KITCHEN TOILET LIVING HALL BALCONY BALCONY
ADMINISTRATOR BUNGALOW VILLA A A
A A' B B
B B
TWINBUNGALOW A A B' B A A B' B
THERAPY

BACKELEVATION

FRONTELEVATION
ADMINBUNGALOW

FRONTELEVATION BACKELEVATION

VILLA
FRONTELEVATION BACKELEVATION TWINBUNGALOW

FRONTELEVATION

THERAPIST

BACKELEVATION

RECEPTION WAITING AREA OPEN SPACE BEDROOM BEDROOM RECEPTION WAITING AREA OPEN SPACE UTILITY AREA UTIL TY AREA UTILITY AREA UTIL TY AREA DOUBLEOCCUPANCY 1150sqm SINGLEOCCUPANCY 670sqm
DOUBLEOCCUPANCY
A A B B
SINGLEOCCUPANCY
A A B B

FRONTELEVATION

SINGLEOCCUPANCY

BACKELEVATION

FRONTELEVATION

DOUBLEOCCUPANCY
BACKELEVATION

MATERIAL PALETTE

GLASS FIBRE REINFORCED CONCRETE PANELS FOR CLADDING GFRC

stands for glass fibrereinforced concrete. The invention of the material came through around in the 1950s and was widely used and supported by zahahadidin her works.

DOEDAR WOOD PLANKS FOR RESTAURANT FLOORING

Deodar wood is in great demand for construction purposes as it is highly durable, rot ressistant and fine, close grain , which makes it capable of taking high polish.

WHITE WOOD FOR DOORS, FRAMES AND FURNITURES.

White wood comes from a tulip tree which is also known as fidletree , tulip poplar or yellow poplar. This kind of tree grows very fast and can grow uptoa height of 160 meters which makes it easily harvestable.

MARBLE STONE TILES FOR FLOORING IN MAIN BUILDING

Marble is a stone which is composed of calcite, dolomite, or serpentine that is capable of taking polish. As marble was highly used by greekand roman sculpturers, architects and builders; it is commonly associated with luxury and refined taste.

ASPHALT FOR ROAD CONSTRUCTION

Asphalt is a material made from a mixture of aggregate, binders and fillers used for constructing roads, parkingsand also for maintaining the same. Agregatesused of asphalt mixtures could be crushed rock, sand, gravel or slags.

HEAT RESISTANT GLASS FOR CURTAIN WALLS, EXTERIOR WALLS AND ATRIUM COVER

Heat resistant glass is a type of glass that is designed to reduce thermal shock and is said to be better than any other glass available. It has been tested to withstand temperature upto1000 degree celsius. Pyrex glass, quartz glass, pyroceramglass, robaxglass, etc.

REINFORCED CEMENT CONCRETE FOR VARIOUS STRUCTURAL ELEMENTS

Reinforced cement concrete is a composite material where the relatively lower tensile strength of the concrete is compensated by providing reinforcements in the form of steel bars.

STAINLESS STEEL PIPES
MARBLE
R.C.C WHITE WOOD
ASPHALT DEODAR WOOD GFRC PANELS RED BLOCK FOR PAVEMENT TILES
HEAT RESISTANT GLASS
TILE

MASS HOUSING

LOCATION: BEED BY-PASS, AURANGABAD, MAHARASHTRA TYPOLOGY: THE SITE IS CONSIST OF 6.1 ACRES OF LAND WAS TO BE DEVELOPED WITH HOUSING UNITS & VARYING TYPOLOGY. 1, 2, 3 APARTMENTS, 5 BHK BUNGALOW , 4 BHK SEMI DETACHED DUPLEXES WERE TO BE PROVIDED. ALSO THERE WAS A NEED FOR SOME COMMERCIAL DEVELOPMENT LIKE SHOPS AND RECREATIONAL SPACES AND CLUB HOUSE.

1 ENTRY 2 SHOPS 3 PARKING 4 LIBRARY 5 OAT 6 3 BHK APPARTMENT 7 CLUB HOUSE 8 1 BHK APPARTMENT 9 2 BHK APPARTMENT 10 PODIUM GARDEN 11 TWIN BUNGALOW 12 BUNGALOW 13 PARK MASTER MASTER PLAN PLAN 1 2 2 2 2 2 2 2 2 3 4 5 6 7 8 9 9 8 6 6 6 10 10 11 11 11 11 11 11 11 11 11 11 11 11 12 12 12 12 12 11 11 11 11 11 11 11 11 13 LEGENDS

VIEW OF THE SITE MODEL

UTILITYAREA BALCONY BEDROOM TOILET

1BHK APT

LIVINGHALL
KITCHEN LIFT STAIRCASE
A B'
B 1BHKSECTION
A'

VIEW OF 1BHK AND 2BHK TENAMENTS

KITCHEN U T I L I T Y A R E A B A L C O N Y BEDROOM LIFT S T A I R C A S E BEDROOM TOILET TOILET
LIVINGHALL
A
A' B 2BHKSECTION
B'

VIEW OF 1BHK AND 2BHK PODIUM GARDEN

3BHK APARTMENT LIVING HALL K I T C H E N U T I L I T Y A R E A B A L C O N Y LIFT S T A I R C A S E BEDROOM TOILET BEDROOM TOILET BEDROOM
A B'
B 3BHKSECTION
A'
OF 3 BHK
VIEW
TENAMENTS

VIEW OF 3BHK PODIUM GARDEN

4BHK SEMI DUPLEX LIVING HALL KITCHEN BALCONY STAIRCASE BEDROOM TOILET BEDROOM BEDROOM BEDROOM STAIRCASE TOILET TOILET TOILET TERRACE GARDEN
VIEW OF 4BHK SEMI DUPLEX
5 BHK BUNGLOW LIVING HALL BEDROOM TOILET STAIRCASE BEDROOM BEDROOM BEDROOM BEDROOM KITCHEN STAIRCASE TOILET TOILET TERRACE GARDEN TERRACE GARDEN
VIEW OF 5BHK BUNGLOW
A B' A' B A B' A' B A B' A' B A B' A' B TWINBUNGALOWSECTION
BUNGALOWSECTION

CLUB HOUSE OAT

VIEW OF CLUB HOUSE AND OAT

VIEW OF CLUB HOUSE

HISTORICAL MUSEUM PROJECT

Historical museum at Aurangabad for the intention to create a infrastructure which will help in the over all growth of the society. The project was of campus planning considering all the different public activities. To design Museum, Open Air Amphitheater, Office , Exhibition Hall and Admin. The basic zoning was done considering user activity placement of block done in such a way that it should easily accessible on the site.

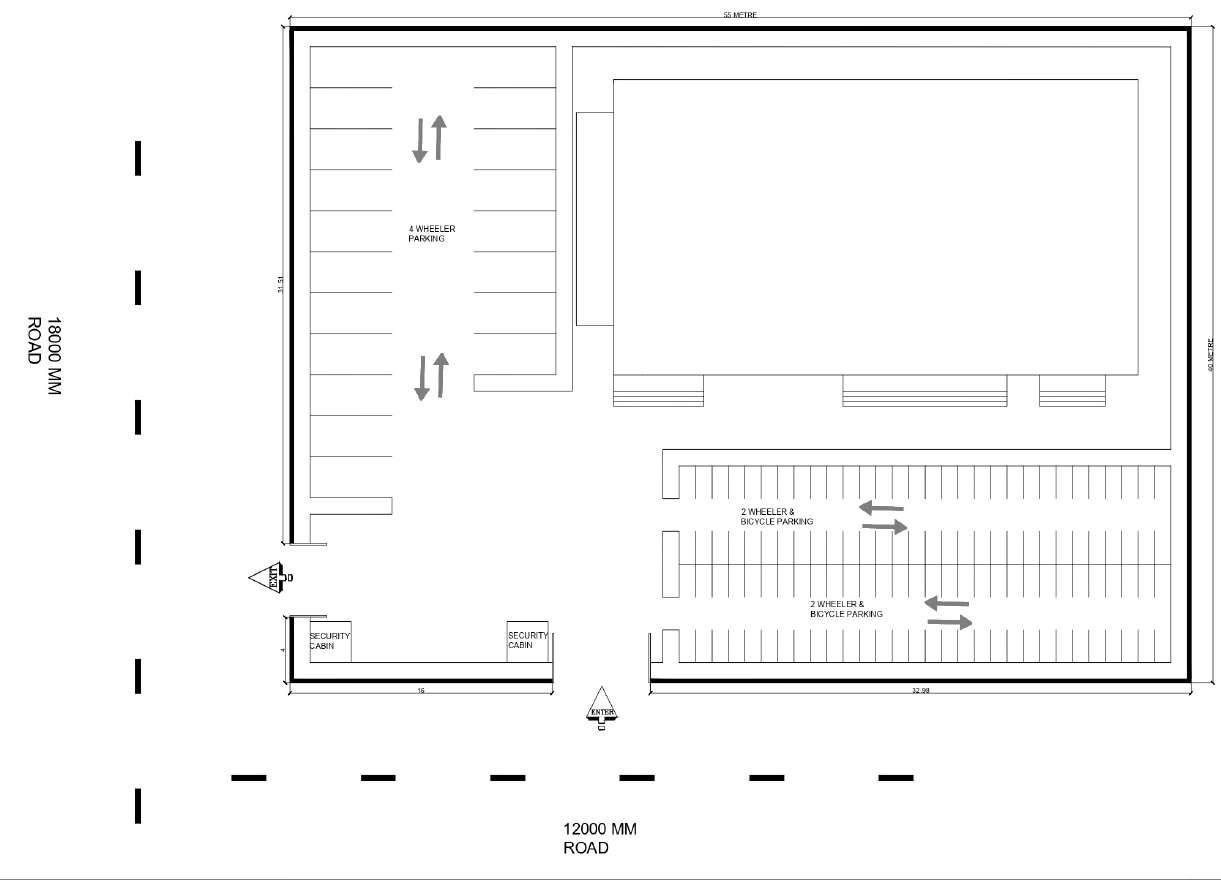
1 ENTRY 2 EXIT 3 2 WHEELER PARKING 4 4 WHEELER PARKING 5 BRIDGE 6 OAT 7 WATER FOUNTAIN 8 WATER BODY 9 ENTRY TO MUSEUM 10 ATRIUM 11 MUSEUM 12 MAIN ROAD 13 SERVICE ROAD MASTER PLAN MASTER PLAN 1 2 3 4 4 3 6 7 8 10 11 8 11 11 9 5 13 12 13 LEGENDS 8 8 8 8
PLAN GROUNDFLOORPLAN FIRSTFLOORPLAN Entrance Porch Entrance foyer Reception Audio Video Warexhibition 1962CHINA Warexhibition 1965-71PAKISTAN Lift Physically handicap toilet Male toilet Female toilet Army hall Airforcehall Navyhall Canteen/Dinning Food Stall Food Stall Food Stall Food Stall Food Stall Food Stall Female toilet Exhibit designer Director cabin Documents room Maintanance room Manager office Public Relation office Locker room Meeting conferance ATM CCTV surveillance Accounts Security staff Ticket counter Male toilet Lift COURTYARD/ATRIUM Female toilet Male toilet Physically handicap toilet Lift COURTYARD/ATRIUM WORLDWAR WORLDWARII WAREXHIBITION 1948 Dressand Photographyzone Traditional war zone Gamezone Storytelling area counterTicketMaintanance room WAREXHIBITION 1999Kargil Male toilet Female toilet Storeroom Storeroom Researchroom Store curatorAssistant Curatorroom Lift Pantry Research room Research room
SECTIONATAA' SECTIONATBB' SECTIONS A B' A' A B' A' B B GROUNDFLOORPLAN FIRSTFLOORPLAN

WORKINGDRAWINGS LIBRARY

SITEPLAN CENTRELINE,STARTPOINT,FOOTING

GROUNDFLOORPLAN FIRSTFLOORPLAN MEZZANINEFLOORPLAN
ELECTRICALLAYOUT BEAMLAYOUT STAIRCASEDETAIL DOORWINDOWSHEDULE LINTELSHEDULE
FIRSTFLOORPLAN MEZZANINEFLOORPLAN GROUNDFLOORPLAN FIRSTFLOORPLAN MEZZANINEFLOORPLAN
GROUNDFLOORPLAN
M
C E
N E O U S
I S
L L A

P H O T O G R A P H Y

P H O T O G R A P H Y

C
S K E T
H E S
+91 9595097177 REHAN1.RK70@GMAIL.COM REHAN KHAN

Turn static files into dynamic content formats.

Create a flipbook
Issuu converts static files into: digital portfolios, online yearbooks, online catalogs, digital photo albums and more. Sign up and create your flipbook.