Blåne boligkatalog

Page 1


Våre modeller

Fra unike og inspirerte design til klassiske og moderne layouter, er vi forpliktet til å lage hjem som passer din individuelle stil og behov. Finner du ikke ditt ideelle hjem i vår katalog? Ingen bekymringer!

Våre dyktige boligrådgivere og arkitekter er klare til å skreddersy ditt hjem med dine preferanser – enten det er tilpasninger eller helt ny løsning.

Skap drømmehjemmet ditt, på din måte!

Hvorfor velge Blåne

• Fleksibelt og stort utvalg

• Kvalitet i alle prisklasser

• Erfarne og forutsigbare

• Egen elementfabrikk

• Norske samarbeidspartnere

• Egne byggeledere og snekkere

• Norsk og lokalt eierskap

Les mer om alt Blåne tilbyr og finn priser her.

Lysbo

Kompakt bolig med alle funksjoner på ett plan med praktisk og moderne planløsning. Kjøkken og stue er kombinert i en åpen og lys løsning som skaper et sosialt og luftig oppholdsrom.

Fra stuen med terrassedør har du direkte tilgang til uteområdet.

Lysbo – mer info om modellen her

På blaneas.no finner du priser og et bredt utvalg av modeller. Se nøkkelferdige priser her

Eikly

Eikly Duo – med utleiemulighet

I underetasjen finner du en selvstendig leilighet/hybel, som kan benyttes som mer boareal eller brukes til utleie. Som utleie kan dette bidra til ekstrainntekter som kan bidra ift finansiering og reduserte bokostnader.

Innholdsrik enebolig over to plan som er tilpasset skrått terreng. Bolig med et moderne og funksjonelt design for hele familien. Stor terrasse er perfekt for den som vil nyte utelivet. Gode og praktiske romfunksjoner med plass til det aller meste. Åpen og romslig stue og kjøkken gir et luftig og sosialt samlingspunkt.

Se nøkkelferdige priser her

Eikly – mer info om boligen her

På blaneas.no finner du priser og et bredt utvalg av modeller.

Mer info Eikly Duo

Hub

Praktbolig med flotte detaljer og alle funksjoner på ett plan. Romslige oppholdsarealer og en stue med innvendig åpen gavl gir et fantastisk lysinnslipp og skaper lyse rom og naturen dras inn i stua.

Boligen har to soner som gir plass til hele storfamilen der man kan ha en rolig voksensone og en leken barne-/ungdomssone.

Hub – mer info om modellen her

På blaneas.no finner du priser og et bredt utvalg av modeller. Se nøkkelferdige priser her

Stil – S

Stilfull og moderne bolig over to plan. Innvendig skråtak og vinduer som strekker seg fra gulv til tak gir mye lys inn i stue/kjøkken og gir store utsiktsflater. En funksjonell bolig med stor terrasse som gjør at du kan gå rett ut og nyte utelivet.

HOVEDPLAN

U-ETG.

Se nøkkelferdige priser her

Stil – S – mer info om modellen her

På blaneas.no finner du priser og et bredt utvalg av modeller.

Raff

– T

Funkisbolig med imponerende fasade og romløsning. Åpen planløsning og store vinduer bidrar til mye naturlig lys og varme inne i rommene. Denne funkisboligen er designet med fokus på funksjonalitet, moderne estetikk og høy komfort.

HOVEDPLAN U-ETG.

Underetasje01E-2201E-22

Se nøkkelferdige priser her

Raff – T – mer info om modellen her

På blaneas.no finner du priser og et bredt utvalg av modeller.

Flyt – S

Enebolig med utallige muligheter. En tradisjonell enebolig over to plan som er tilpasset skrå tomt. Første plan inneholder alle funksjoner og ivaretar tilgjengelighetskrav. Underetasjen byr på romslige boder for lagringsplass, samt ekstra soverom og TV-stue.

HOVEDPLAN

Se nøkkelferdige priser her

Flyt – S – mer info om modellen her

På blaneas.no finner du priser og et bredt utvalg av modeller.

Fram

Praktisk og kompakt enebolig. Alle funksjoner på ett plan, inkludert sportsbod.

Åpen innvendig himling gir en lys og trivelig stue-/kjøkkenløsning. Inngangspartiet har overbygg, noe som er praktisk i værnorge!

Se nøkkelferdige priser her

Fram - mer info om modellen her

På blaneas.no finner du priser og et bredt utvalg av modeller.

HOVEDPLAN

Steil – SA

Spennende bolig over tre etasjer. En bolig med flere nivåer som gjør at den passer godt i skrått terreng. Utvendig, flott design som gir en innbydende fasade. Innvendig har du alle nødvendige rom for hele familien, kanskje litt utradisjonell, men den byr på mange spennende løsninger.

Se nøkkelferdige priser her

Steil – SA – mer info om modellen her

På blaneas.no finner du priser og et bredt utvalg av modeller.

HOVEDPLAN
2. ETG U-ETG.

Arealeffektivt hus med alt på ett plan. Fleksibel men kompakt enebolig med pass for hele familien. Med sin slanke fasong er denne boligen normalt enkel å tilpasse tomtene.

Hjem - mer info om modellen her

På blaneas.no finner du priser og et bredt utvalg av modeller. Se nøkkelferdige priser her

Lyst

Familiebolig med god plass og mange funksjoner. Husdrømmen for familier som ønsker full funksjonalitet, moderne design og romslige fellesområder.

Stue og kjøkken har åpen løsning, noe som gir en følelse av samhørighet og fellesskap.

Lune uteplasser på begge sider av huset gjør det mulig å nyte til solrike dager.

Lyst - mer info om modellen her

På blaneas.no finner du priser og et bredt utvalg av modeller. Se nøkkelferdige priser her

Tid – A

Moderne og stilfullt hus som byr på det meste. En av våre bestselgere grunnet sin praktiske planløsning over to plan og innbydende fasadeuttrykk. Alle rom er romslige og gir muligheten til optimal møblering og boforhold.

Se nøkkelferdige priser her

Tid – A – mer info om modellen her

På blaneas.no finner du priser og et bredt utvalg av modeller.

2. ETG. HOVEDPLAN

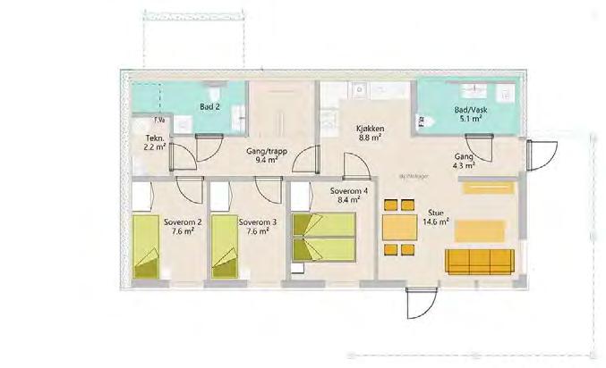
Tid – T

Moderne, stort og stilfullt hus. Trenger man ekstra areal så er storebroren til Tid – A et godt valg.

Med ekstra soverom og større oppholdsarealer byr denne boligen på mange og fleksible muligheter.

soverom

Se nøkkelferdige priser her

Tid –T – mer info om modellen her

På blaneas.no finner du priser og et bredt utvalg av modeller.

2. ETG. HOVEDPLAN

Leveransebeskrivelse våre boliger

For våre boligmodeller har vi valgt en god standard som utgangspunkt. Her får du en kvalitetsleveranse med tidsriktige materialvalg, fint utseende som igjen gjør at du opplever dette som en bra standard. Utover dette kan det naturligvis gjøres tilpasninger og oppgraderinger om ønskelig.

UTVENDIG

Felles for leveransen:

• Ytterdør Strand, hvitmalt med glass

• Digital dørlås elektronisk

• Boddør tett, hvitmalt

• Ytterkledning dobbelfals rett 10mm med spor, transparent grunning

• Inntrekte 3-lags vinduer for energieffektivitet, hvitmalt

• Takrenne i sort stål med nedløp

• Bunnledninger (i kundens betongplate), rør/oppstikk vann/avløp jfr. std. tegning.

• Utekran på vegg

• Inntaksskap for strøm

• Utelamper

• Blåseisolerte vegger/himling som gir energieffektivitet

• Takverk konstruert tung belastning 650KWn

• Takstige, sort

• Øvrige synlige beslag leveres i sort

• Snøfangere når det er et krav, sort

• Solid og bred vindski i limtreutførelse, ubehandlet

• Balkonger leveres med trerekkverk og trykkimpregnert gulv

• Platting/tram må tilpasses i hvert enkelt tilfelle, derfor leveres ikke dette som standard

• Balansert ventilasjon med varmegjenvinner

INNVENDIG

Entré

• Downlights med dimmer

• Kvalitetsgulvet Coastal OAK, aquastop

• Trefiberplater på vegg, skyggeprofil, hvit, miljøvennlig, svanemerket og anbefalt av Norges Astmaog Allergiforbund

• Tak-ess inspirasjon i himling, foliebelagt, profilert med v-fuge. Miljøvennlig og fri for PCB

• Listverk – glatt, rund, hvit

• Når det leveres trapp leveres den med hvitmalte vanger/spiler/håndrekke og eiketrinn med stusstrinn

Kjøkken/stue

• Kvalitetskjøkken fra Norema

• Kvalitetsgulvet Coastal OAK

• Trefiberplater på vegg, skyggeprofil, hvit, miljøvennlig, Svanemerket og anbefalt av Norges Astmaog Allergiforbund

• Tak-ess inspirasjon i himling, foliebelagt, profilert med v-fuge. Miljøvennlig og fri for PCB

• Listverk – glatt, rund, hvit

• Innerdører Line 1 speil, kompakt hvit

• Stålpipe, sort med peisovn og glassplate på gulv

• Panelovn

Soverom

• Kvalitetsgulvet Coastal OAK

• Trefiberplater på vegg, skyggeprofil, hvit, miljøvennlig, Svanemerket og anbefalt av Norges Astmaog Allergiforbund

• Tak-ess inspirasjon i himling, foliebelagt, profilert med v-fuge. Miljøvennlig og fri for PCB

• Listverk – glatt, rund, hvit

• Innerdører Line 1 speil, kompakt hvit

• Panelovn

• Taklampe

Bad

• Downlights med dimmer

• Vegghengt toalett

• Baderomsinnregning med underskap og speil m/lys, iht. tegning

• Dusjvegger iht tegning 90*90, innfellbare dører

• Baderomsplater, Cracked cement

• Gulvflis 60x60cm med sokkelflis og varmekabler

• Tak-ess inspirasjon i himling, foliebelagt, profilert med v-fuge. Miljøvennlig og fri for PCB

• Listverk – glatt, rund, hvit

• Innerdører Line 1 speil, kompakt hvit

Vaskerom

• Gulvflis 20x20cm med sokkelflis og varmekabler

• Baderomsplater, Cracked cement

• Tak-ess inspirasjon i himling, foliebelagt, profilert med v-fuge. Miljøvennlig og fri for PCB

• Listverk – glatt, rund, hvit

• Innerdører Line 1 speil, kompakt hvit

• Taklampe

WC

• Vegghengt toalett

• Servantinnredning med speil og lys, iht. tegning

• Kvalitetsgulvet Coastal OAK

• Trefiberplater på vegg, skyggeprofil, hvit, miljøvennlig, Svanemerket og anbefalt av Norges Astmaog Allergiforbund

• Tak-ess inspirasjon i himling, foliebelagt, profilert med v-fuge. Miljøvennlig og fri for PCB

• Listverk – glatt, rund, hvit

• Innerdører Line 1 speil, kompakt hvit

• Taklampe

Teknisk bod/teknisk rom

• Gulvflis 20x20cm med sokkelflis

• Innerdører Line 1 speil, kompakt hvit

• Trefiberplater på vegg, skyggeprofil, hvit, miljøvennlig, Svanemerket og anbefalt av Norges Astmaog Allergiforbund

• Tak-ess inspirasjon i himling, foliebelagt, profilert med v-fuge. Miljøvennlig og fri for PCB

• Listverk – glatt, rund, hvit

• Taklampe

Bod innvendig

• Kvalitetsgulvet Coastal OAK

• Trefiberplater på vegg, skyggeprofil, hvit, miljøvennlig, Svanemerket og anbefalt av Norges Astmaog Allergiforbund

• Tak-ess inspirasjon i himling, foliebelagt, profilert med v-fuge. Miljøvennlig og fri for PCB

• Listverk – glatt, rund, hvit

• Innerdører Line 1 speil, kompakt hvit

• Taklampe

Sportsbod utenfor yttervegg

• Uisolert og synlig reisverk vegg/tak

• Leveres intet på gulv

• Tett boddør, hvit

• Taklampe

For mer informasjon ta kontakt med en av våre selgere for gjennomgang. Vi tilpasser innholdet til deg, så ta kontakt for flere opplysninger.

Leveringsalternativer

Viktig for deg å vite og som er en del av vår leveranse

Vi gir deg trygghet og forutsigbarhet gjennom bruk av Norsk Standard–kontrakter som bygger på Bustadoppføringslova.

• Byggeperioden er sikret garantistillelse på 10% av kontraktsbeløp, samt forsikring på bygget.

Byggesett Elektroklar Nøkkelferdig

Innenfor alle stilene kan vi gjøre individuelle tilpasninger.

Se alle våre nøkkelferdige boliger med priser på blaneas.no

• Fra overtagelse har du 5 års reklamasjonstid, denne garanti på 5% stilles også av Blåne.

• Ansvarlig søker og samordner byggesøknaden og følger opp til og med ferdigattest.

• Ansvarlig prosjekterende for enkel situasjonsplan med terrengprofil som følger byggesøknaden.

• Ansvarlig prosjekterende for tegning, konstruksjon og det arkitektoniske.

• Bygger iht. byggeteknisk forskrift TEK 17.

• Veggelementer produseres på vår fabrikk i Gudbrandsdalen, dette sikrer tørre elementer ut på byggeplass som igjen gir kortere uttørkingsfase.

• Sprøytesolering i vegger og himling skjer på byggeplass. Sprøyteisolering sikrer det beste resultatet og gir meget kompakte og energieffektive boliger/hytter.

• Blånes egne byggeledere og faste snekkere følger opp byggeplassen.

• Rigg, stillas, frakt, heising og losji for snekkere er inkludert for Blånes leveranse.

• Blåne benytter kjente og sterke merkevarer gjennom solide norske samarbeidspartnere.

• Overlevering gås sammen med kunde og i tråd med Bustadoppføringslova.

• Etter ett år kommer vi tilbake til deg på etterårsbefaring.

Vår stolte historie som bolig- og hytteleverandør

Fornøyde kunder gjennom generasjoner.

Blåne AS viderefører nå den snart

60 år lange historien, og vi har gjennom årene bygget mange tusen boliger, hytter og leiligheter, og mener dette er en bekreftelse på solid kvalitet og god kundetilfredshet.

Blåne AS har hovedkontoret på Fåvang i Gudbrandsdalen hvor også elementfabrikken vår ligger. Virksomheten ledes i dag av lokalt ansatte fra Gudbrandsdalen og Lillehammerregionen som har lang fartstid og erfaring fra byggog eiendomsbransjen.

Vi legger stor vekt på å bli kjent med kundene våre, og la de bli kjent med oss, fordi vi erfarer at gjensidig tillit er nøkkelen til et godt resultat.

Vår visjon er nettopp:

«Bygger gode liv»

Les mer om Blåne og hva vi tilbyr. Finn priser og last ned hus-/hyttekataloger her:

Vi har bygget hus og hytter siden 1968 da Horten Hus ble etablert.

Sammen med lokale byggevareleverandører og håndverkere, og lidenskapen til Gudbrandsdalens stolte tradisjon med bygging i tre startet vi eventyret helt tilbake til 1968.

Horten Hus ble raskt en av landets største produsenter av hus og hytter med en produksjon som skjer på egen fabrikk på Fåvang, ved foten av Kvitfjell.

I 2014 valgte Horten-familien å etablere selskapet Blåne AS og rendyrke dette som en merkevare for hytter, men også etterhvert for hus. Dette for å kunne imøtekomme fremtidens marked og behov.

Blånes virksomhet omhandler salg, produksjon og bygging av boliger, leiligheter og fritidsboliger. Den solide og lokale eieren er fortsatt fra familien Horten og er lokalt forankret i Fåvang/ Lillehammer. Dette bidrar til evnen til at Blåne AS fortsatt kan tenke langsiktig og fremtidsrettet.

Blåne AS viderefører dermed den snart 60 år lange historien med kvalitetsleveranser av alle type boliger bygget i tre og med stolte tradisjoner fra Gudbrandsdalen.

Foto: Fotograf Hilde Jordbruen

Blåne har lærling i tømrerfaget

– og det er vi veldig stolte av.

Alle våre snekkere er faste og alle er i dag ansatt hos oss. Blant dem er vi så heldig å ha med oss lærling. Vi er veldig takknemlig for alle unge som vil inn i praktiske yrker, det er noe bransjen og Norge trenger i fremtiden. Vi er storfornøyde med å være lærebedrift og vi ønsker gjerne flere velkommen.

Les mer om lærlingordningen her www.o-b-g.no

Opplæringskontor for byggfagene i Gudbrandsdalen.

Blåne er medlem i Norske

Hytteprodusenters Forening

Foreningens formål er å ivareta, utvikle og styrke bransjens felles interesser ved å:

• trygge vilkårene for brukere og produsenter

• fremme interessen for hyttebruk i Norge

• etablere et tillitsfullt samarbeid med myndigheter og andre som kan medvirke til økt effektivitet, sikkerhet, og miljøbevissthet i hele kjeden fra produsent til leveranse

• være høringsinstans og kunnskapssenter for rammesettende myndigheter

• være en informasjonskanal ut til medlemmene på alt som skjer av nye rammevilkår

• søke å koordinere interesser og synspunkter i bransjefaglige spørsmål med kommuner og andre som kan bedre den daglige drift hos medlemmene

• være medarrangør av den årlige hyttemessen

Blåne er medlem i Norske

Boligprodusentenes Forening

Boligprodusentenes Forening

• En interesseorganisasjon for boligproduserende bedrifter i Norge. Foreningen har nærmere 800 medlemsbedrifter (kjeder, enkeltbedrifter i kjedene og enkeltstående bedrifter). Våre medlemmer står for over halvparten av boligbyggingen her i landet. Foreningens virksomhet er særlig rettet mot næringspolitiske spørsmål og utvikling innenfor boligbyggingen.

• Som en medlems- og behovsstyrt organisasjon skal Boligprodusentenes Forening være den ledende bransjeorganisasjonen for de kvalitets- bevisste produsenter av boliger og fritidsboliger i Norge.»

• Boligprodusentenes Forening arbeider aktivt for å styrke kompetansen og ivareta lønnsomhet i bransjen. Ytelser fra foreningens medlemmer skal kjennetegnes av trygghet, kvalitet og bærekraft.

• Vi er en del av NHO Byggenæringen og Næringslivets Hovedorganisasjon (NHO).

www.nohf.no www.boligprodusentene.no

Leverandør av høy kvalitet

Gausdal Landhandleri og Blåne – et sterkt samarbeid for kvalitet og lokal verdiskapning.

Hos Gausdal Landhandleri er vi stolte av vårt langvarige samarbeid med Blåne, en relasjon som er bygget på felles verdier som kvalitet, lokal tilhørighet, og bærekraftig utvikling. Begge våre selskaper har røtter dypt forankret i norske tradisjoner, og vi deler en lidenskap for å levere produkter og

tjenester som oppfyller de høyeste standardene.

Vår leveranse til Blåne

Vi er dedikert til å levere det beste innen byggevarer til Blåne. Vårt samarbeid har pågått i mange år, og

i løpet av denne tiden har vi utviklet en forståelse for deres behov og

krav til kvalitet. Vårt logistikksystem, bestående av 40 biler og et effektivt transportnettverk, sikrer presis levering og fleksibilitet i hele leveringsprosessen. Dette gir Blåne en trygghet i at materialene alltid er tilgjengelige når de trengs.

Vi prioriterer kortreiste leveranser og bruker i stor grad lokale leverandører for å redusere vårt CO2avtrykk. For eksempel, vår trelast fra G3 Gausdal Treindustrier kommer fra grantrær med tette årringer

fra Innlandet, som har kort vei fra skog til foredling. Dette ikke bare sikrer høy kvalitet, men bidrar også til å støtte lokalsamfunnet og redusere miljøbelastningen.

Fokus på bærekraft og miljø Bærekraftig utvikling er avgjørende for en god fremtid både lokalt og globalt. Gausdal Landhandleri etterstreber å gjøre gode, gjennomtenkte tiltak slik at vår leveranse og dermed Blånes sluttprodukt skal bli bærekraftige.

Gausdal Landhandleri sine velkjente, røde lastebiler leverer varene punktlig og til avtalt tid ute på byggeplass.
Gausdal Landhandleri sitt hovedlager på Lillehammer. Foto: Erik Hannemann

Det absolutt mest miljøvennlige vi i Gausdal Landhandleri gjør er å sørge for effektive leveranser fra fabrikk og helt ut til byggeplass. For å få til det, jobber vi hver dag for å kjøre fulle biler med minimal tomkjøring. Det klarer vi gjennom planlagte leveranser sammen med våre bedriftskunder, samlasting av varer på hovedlager, integrerte og automatiserte systemer, og henting av varer hos leverandører på retur fra byggeplass på våre egne biler.

Overordnet er Gausdal Landhandleri sin innkjøpsambisjon å kjøpe lokalt.

Ikke bare støtter det lokalt næringsliv, men reduserer naturligvis også transportavstanden inn til hovedlager.

Den samme filosofien tar vi med oss over til avfallshåndtering. Sammen med vår lokale renovasjonspartner sørger vi for riktig utstyr som optimaliserer både sortering og nødvendig transport. På vårt hovedlager har vi en sorteringsgrad på over 90%. Gausdal Landhandleri kaster heller ikke unødvendig, og hjelper både våre leverandører og kunder med det samme. Det får vi til gjennom vår egeneide kjede, GausBygg Outlet, som ble etablert i 2019 nettopp for å være en markedsplass for overskuddspartier, lagertømminger, overskuddsvarer fra byggeplass og eventuelle feilbestillinger.

GBO finner du på Lillehammer, Gjøvik, Lørenskog og Jaren.

Gausdal Landhandleri AS er en familieeid, tradisjonsrik byggevareforretning med røtter tilbake til 1938. Hovedkontor og hovedlager ligger på Lillehammer. Vi selger og distribuerer byggevarer til privatog bedriftsmarkedet. Vi har i dag 26 byggevarehus i Innlandet, Akershus og Buskerud. Selskapet har en sterk bedriftskultur, preget av fagkunnskap, pålitelighet og fokus på kundeservice.

Historien om Gausdal Landhandleri

Torleif og Asbjørn Seielstad var kremmere av edleste sort. De to brødrene startet opp Gausdal Landhandleri i 1938. Butikken minnet den gang mer om en krambu, med litt av hvert som lokalbefolkningen hadde behov for. Den store åpningsdagen ga en omsetning på 170 kroner.

I tillegg til å drive butikk på en forretningsmessig god måte, ble butikken ved «Brua» (Segalstad Bru) en møteplass for folk i bygda. Torleif og Asbjørn tok seg god tid til den enkelte og skapte gode tillitsforhold mellom kunden og «Segalstadkaran», som de ble kalt på folkemunne.

Den dag i dag er Gausdal Landhandleri fortsatt eid av familien Seielstad i Gausdal, og det er de samme verdiene som står seg like støtt: Fagkunnskap, pålitelighet og service. Den gang som nå.

Kontaktinfo og åpningstider

Fagkunnska

pålitelighet og servic

Den gang

Kontakt nfo og åpningstider
Fagkunnskap, på itelighet og service
gang

Turn static files into dynamic content formats.

Create a flipbook
Issuu converts static files into: digital portfolios, online yearbooks, online catalogs, digital photo albums and more. Sign up and create your flipbook.