ARCHITECTURAL PORTFOLIO


ABOUT
A passionate individual who believes that Architecture is the art and philosophy of spaces and buildings to occupants. Architecture is not just a profession, but a lifestyle to visionaries that want to make the world look and feel better. I am a fast learner and a problem solver to every challenge and new techniques that I have encountered in my architectural designs, where I was able to integrate social, economic, and environmental aspects into my work with a keen focus on sustainability and contextuality.
My dedication towards Architecture is a love story that I am faithful to, where I aim to have the career objectives to make architecture a reason for a better future; a better emotional and comfortable experience; and making my designs positive locations to its people and surrounding.
CONTACT
• Mobile: +971-50-673-0216
• Email: himamhmd10@yahoo.com
• linkedIn: www.linkedin.com/in/ibrahim-farag-69530b344
LANGUAGES
• Arabic: Mother Language (can speak and understand Egyptian, Levantine, Gulf Arabian, and Sudanese dialects).
• English: IELTS 7.0, EmSAT 1725, studied at English as a medium of instruction schools and university.
EDUCATION
• Bachelor’s in Architecture, with Royal Institute of British Architects Accreditation (RIBA), Abu Dhabi University (ADU), Cum Laude.
EXPERIENCE
• Peer Tutor & Mentor at Abu Dhabi University (Jul 2025 - Dec 2025) - Teaching and Assisting younger Architecture Students for further Support with their Projects.
• President of the Architecture Club at Abu Dhabi University (Sep 2023 - Jun 2024)Organized several Educational Trips and Architectural Activities on Campus.
• Clubs & Events Coordinator at Abu Dhabi University (Aug 2022 – Jul 2023) - Managing and Running Events related to the Campus Life Activities for the Department of Student Affairs and Students.
HONORS AND AWARDS
• Outstanding Peer Tutor Award, for recognition of Exceptional Performance and Invaluable Contribution to the Academic Success Center, Fall 2025
• Outstanding Performance Award, for exceptional Display and Presentation of Design Studio V Project, Fall 2024
• Certificate of Appreciation, for participation in Activities of the Innovation Month of ‘UAE Innovates’, by the Federal Authority for Identity, Citizenship, Customs, and Port Security, February 2025.
• Certificate of Achievement, for successfully completing the Basic Mirrorless Photography Course, Nikon, March 2024.
• Certificate of Appreciation, for participation in Design of Extreme Spaces and VR Activities, Department of Architecture and Design, College of Engineering, ADU, April 2023.
• Certificate of Honor Student, for achieving a GPA of 4 0 with No Academic Integrity Violation or Disciplinary Issues, Department of Architecture and Design, College of Engineering, ADU, Spring 2023
• Certificate of Appreciation x3, for efforts and contributions towards the success of the Campus Life Activities, Department of Student Affairs, ADU, 2022-2025
SKILLS


Autocad, since 2022
Sketchup, since 2022

Powerpoint, since 2022

Photoshop, since 2022

Twinmotion, since 2022





Rhino, since 2023
Grasshopper, since 2023
Revit, since 2024
Dialuxevo, since 2025
D5, since 2025

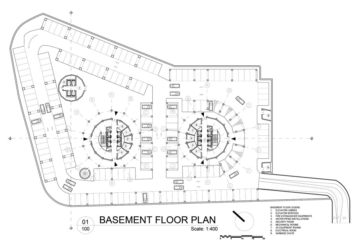
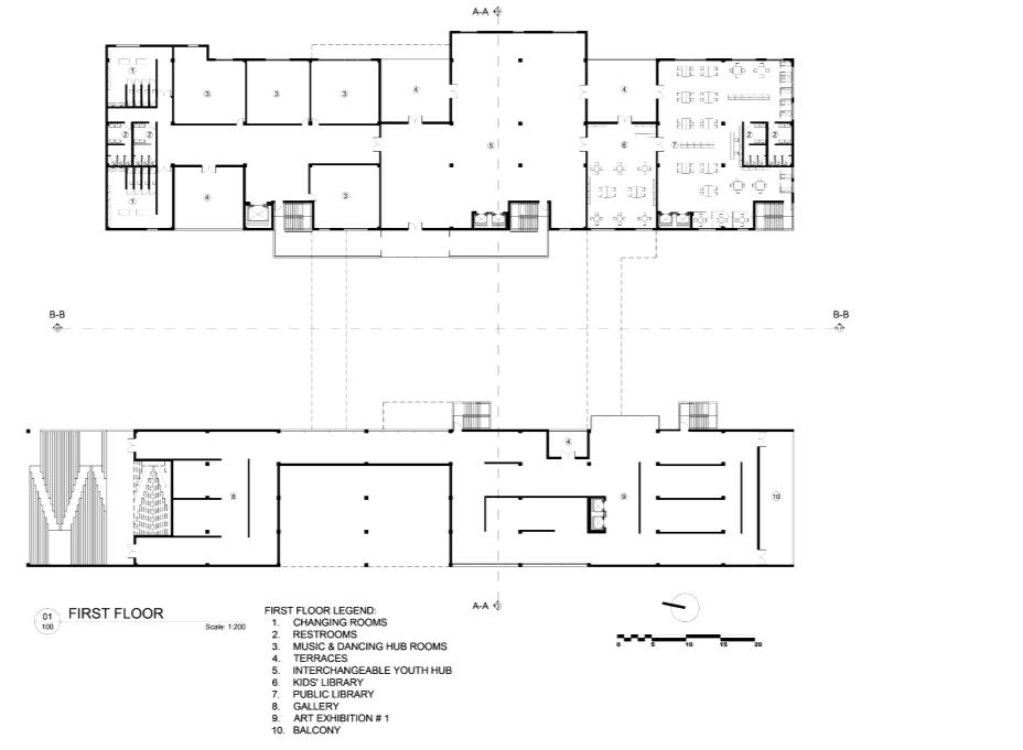
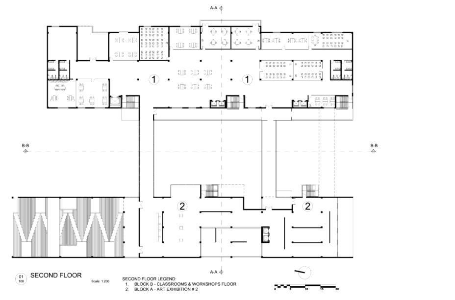
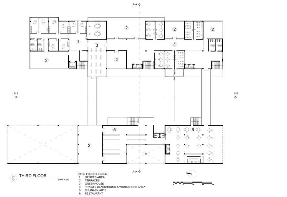
1 ABRAJ AL-HALAZOON
Fall2024

2 AL-AIN VALLEY OF ART
Spring2025
3

4 REMAL AL-AIN VERTICAL FARM & RESEARCH CENTER
Fall2023
Spring2025 NB 6-13 14-19 20-23 24-27
NADIA BLOCK







































































