Skip to main content

Architecture Portfolio-Ibrahim Farag

Page 1


ARCHITECTURAL PORTFOLIO

ABOUT

A passionate individual who believes that Architecture is the art and philosophy of spaces and buildings to occupants. Architecture is not just a profession, but a lifestyle to visionaries that want to make the world look and feel better. I am a fast learner and a problem solver to every challenge and new techniques that I have encountered in my architectural designs, where I was able to integrate social, economic, and environmental aspects into my work with a keen focus on sustainability and contextuality.

My dedication towards Architecture is a love story that I am faithful to, where I aim to have the career objectives to make architecture a reason for a better future; a better emotional and comfortable experience; and making my designs positive locations to its people and surrounding.

CONTACT

• Mobile: +971-50-673-0216

• Email: himamhmd10@yahoo.com

• linkedIn: www.linkedin.com/in/ibrahim-farag-69530b344

LANGUAGES

• Arabic: Mother Language (can speak and understand Egyptian, Levantine, Gulf Arabian, and Sudanese dialects).

• English: IELTS 7.0, EmSAT 1725, studied at English as a medium of instruction schools and university.

IBRAHIM FARAG RIBA PART

EDUCATION

• Bachelor’s in Architecture, with Royal Institute of British Architects Accreditation (RIBA), Abu Dhabi University (ADU), Cum Laude.

EXPERIENCE

• Peer Tutor & Mentor at Abu Dhabi University (Jul 2025 - Dec 2025) - Teaching and Assisting younger Architecture Students for further Support with their Projects.

• President of the Architecture Club at Abu Dhabi University (Sep 2023 - Jun 2024)Organized several Educational Trips and Architectural Activities on Campus.

• Clubs & Events Coordinator at Abu Dhabi University (Aug 2022 – Jul 2023) - Managing and Running Events related to the Campus Life Activities for the Department of Student Affairs and Students.

HONORS AND AWARDS

• Outstanding Peer Tutor Award, for recognition of Exceptional Performance and Invaluable Contribution to the Academic Success Center, Fall 2025

• Outstanding Performance Award, for exceptional Display and Presentation of Design Studio V Project, Fall 2024

• Certificate of Appreciation, for participation in Activities of the Innovation Month of ‘UAE Innovates’, by the Federal Authority for Identity, Citizenship, Customs, and Port Security, February 2025.

• Certificate of Achievement, for successfully completing the Basic Mirrorless Photography Course, Nikon, March 2024.

• Certificate of Appreciation, for participation in Design of Extreme Spaces and VR Activities, Department of Architecture and Design, College of Engineering, ADU, April 2023.

• Certificate of Honor Student, for achieving a GPA of 4 0 with No Academic Integrity Violation or Disciplinary Issues, Department of Architecture and Design, College of Engineering, ADU, Spring 2023

• Certificate of Appreciation x3, for efforts and contributions towards the success of the Campus Life Activities, Department of Student Affairs, ADU, 2022-2025

SKILLS

Autocad, since 2022

Sketchup, since 2022

Powerpoint, since 2022

Photoshop, since 2022

Twinmotion, since 2022

Rhino, since 2023

Grasshopper, since 2023

Revit, since 2024

Dialuxevo, since 2025

D5, since 2025

Fall2023

ListofAppreciatedInstructors

ABRAJ AL-HALAZOON

INFORMATION

Topic: Mixed-Use High-Rise Building

Status: Architectural Design Studio V

Location: Corniche Street, Abu Dhabi

24°30'05.3"N 54°21'59.4"E

Area: 9,950 m2

BRIEF

Abraj Al-Halazoon is an Arabic term for ‘The Spiral Towers’ due to its’ coiled spiral seashell-like design. This structure endeavors to take an advantage of the site’s nearby beach, lake, and park by creating a potential of attracting visitors with several activities to be absorbed into visiting the area; creating a new landmark for Abu Dhabi’s corniche.

DESIGN CONCEPT

PROGRAMMING

SUSTAINABILITY FEATURE

To control the hot climate in Abu Dhabi, kinetic shading panels are installed that are fully controlled by the occupants of the building which work like an accordion, either they need sunlight in the morning or to keep the indoor environment cooler. This idea decreases the usage of air conditioners while also giving the essential views from the towers overlooking the corniche of Abu Dhabi

AL-AIN VALLEY OF ART

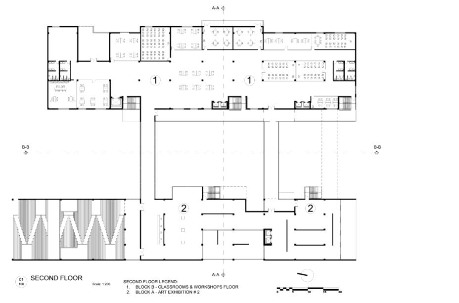
INFORMATION

Topic: Cultural Multi-use Art Center

Status: Architectural Design Studio VI

Location: Al-Ain Central District, Al-Ain City, Abu Dhabi

24°13'26.2"N 55°46'00.7"E

Area: 10,650 m2

BRIEF

The Art Center suggests a pedestrian passage-way that would serve as a public square, which would connect the existing Sheikha Salama Mosque’s courtyard and the upcoming Al-Ain Train Station (According to Al-Ain 2030 Plan by the Municipality). This passage-way would be known as ‘The Valley’. Therefore, it would be the central area for a prospective destination in Al-Ain’s central district.

MASSING STRATEGY

CHILDREN’S PLAYGROUND

RUNNING TRACK

FOOTBALL GROUND

BRIDGES & EXTRUSIONS

THE ‘VALLEY’ CREATES AIR VENTILATION

REMAL AL-AIN VERTICAL

FARM & RESEARCH CENTER

INFORMATION

Topic: Wide-Span Structure

Status: Architectural Design Studio III

Location: Ain Al-Faydah, Al-Ain City, Abu Dhabi

24°05'14.0"N 55°40'50.8"E

Area: 9,000 m2

BRIEF

The term ‘Remal’ means sands in Arabic as the main concept of the structure is inspired by the sand dunes, since it is located in a deserted barren land surrounded by an oasis. The building’s curves are connected by 2 sand dunes shapes at different heights to form a continuous structure.

BUILDING’S CONSTRUCTION

GROUND FLOOR FUNCTIONS

NADIA BLOCK INFORMATION

Topic: Urban & Landscape Development

Status: Urban Design

Location: Hamdan Bin Mohamed Street, Al-Ain City, Abu Dhabi

24°14'36.7"N 55°42'35.7"E

Area: 14,200 m2

BRIEF

Nadia is the Arabic translation to the term ‘Delicate’ and the Russian translation to the term ‘Hope’, which both emphasize the block’s delicate design of its fragmented buildings with their landscape and the project aims to provide vistiors coming for multi-activities, shopping, and educational purposes to find themselves in a hopeful and inviting environment.

YOUTH HUB PUBLIC AREA

OPEN MARKET

THE GRAND PULVERIZED

MUSEUM INFORMATION

Topic: Museum of Emotions

Status: Architectural Design Studio IV

Location: Hai Al-Rubainah, Al-Ain City, Abu Dhabi

24°13'10.7"N 55°45'44.5"E

Area: 7,000 m2

BRIEF

The word pulverized comes from the idea of having something reduced to fine pieces, as the building is made up of 7 elements from the ‘La Ville’ painting by Fernand Leger. The 7 numbered elements have been taken and rotated in a way that there can be a solid core for the building to install emergency exit stairs, load bearing walls, and elevator shafts.

This design was a competition-based project for ‘Museum of Emotions Edition #5’, The construction of the design is based on 2 opposite emotions, Chaos versus Harmony, and it was able to accomplish this category based on a collective survey from several volunteers in its’ chaotic design, and harmonical circulation with the façade treatment.

WHY

WERE THESE ELEMENTS CHOSEN?

LOUIS KAHN’S SOUQ

INFORMATION

Topic: Regionalism Architecture

Status: Architectural & Interior Design History II

Conceptual Project

BRIEF

This building is a multi-use market inspired by the Regionalism Architectural style of the Estonian-born American architect, Louis Kahn. It showcases his philosophy of monumental and monolithic heavy-looking buildings in terms of their materials, colors, interior, and unique façade designs.

This bazaar consists of a café, small library, and several public stores that include jewelry, perfume, and market stalls that are indoor and outdoor.

PHOTOGRAPHY INFORMATION

Photography is an essential part of being an architect in terms of travelling or taking aesthetically appealing images of your designs and popular landmarks.

REFERNECES INFORMATION

List of the most appreciated instructors from different backgrounds of Italian, Turkish, and Arab who were the influential in educating my Architectural knowledge while creating a dynamic, helpful, and enthusiastic environment throughout my academic Architectural journey.

Maria Alessandra Misuri, Lecturer of Architecture & Design, Department of Architecture & Design: alessandra.misuri@adu.ac.ae, https://www.linkedin.com/in/alessandramisuri?lipi=urn%3Ali%3Apage%3Ad_flags hip3_profile_view_base_contact_details%3BQEyl4q1VTia8Aau8XZeYRQ%3D%3D Has been an effective professor at teaching me the basic yet important aspects and concepts of architecture in the most simplified way; making the learning environment very elementary and straight-forward.

Lina K. Zuaiter, Faculty Adjacent, College of Engineering, lina.zadjunct@adu.ac.ae, https://www.linkedin.com/in/lina-zuaiter990839129?lipi=urn%3Ali%3Apage%3Ad_flagship3_profile_view_base_contact_de tails%3BhiqryEBXQZeP5oh2eXqK%2FA%3D%3D.

Has been an enthusiastic and charismatic professor in her way of teaching; creating an engaging and enjoyable educational environment; appreciating my ideas and thoughts in architecture; while also giving crucial advices for details to substantially improve my projects and design aspects.

Fehmi Dogan, Professor at Izmir Institute of Technology & Visiting Professor at Abu Dhabi University, Department of Architecture & Design: fehmi.dogan@adu.ac.ae, https://www.linkedin.com/in/fehmi-dogana6b19220?utm_source=share&utm_campaign=share_via&utm_content=profile&u tm_medium=android_app.

Has been an influential professor in emphasizing with students’ ideas and trying his best to bring out their highest potential of their talents by a cognitive approach; while creating a collaborative and brainstorming environment to describe in several ways that architecture is more about space, functions, urbanization, and fulfilling people’s needs by enhancing and inspiring designs.

AUTHOR’S SIGNATURE

Turn static files into dynamic content formats.

Create a flipbook