ARCHITECTURAL PORTFOLIO


ABOUT
A passionate individual who believes that Architecture is the art and philosophy of spaces and buildings to occupants. Architecture is not just a profession, but a lifestyle to visionaries that want to make the world look and feel better. I am a fast learner and a problem solver to every challenge and new techniques that I have encountered in my architectural designs, where I was able to integrate social, economic, and environmental aspects into my work with a keen focus on sustainability and contextuality.
My dedication towards Architecture is a love story that I am faithful to, where I aim to have the career objectives to make architecture a reason for a better future; a better emotional and comfortable experience; and making my designs positive locations to its people and surrounding.
CONTACT
• Mobile: +971-50-673-0216
• Email: himamhmd10@yahoo.com
• linkedIn: www.linkedin.com/in/ibrahim-farag-69530b344
LANGUAGES
• Arabic: Mother Language (can speak and understand Egyptian, Levantine, Gulf Arabian, and Sudanese dialects).
• English: IELTS 7.0, EmSAT 1725, studied at English as a medium of instruction schools and university.
EDUCATION
• Bachelor’s in Architecture, with Royal Institute of British Architects Accreditation (RIBA), Abu Dhabi University (ADU).
EXPERIENCE
• Peer Tutor & Mentor at Abu Dhabi University (Jul 2025 - Dec 2025) - Teaching and Assisting younger Architecture Students for further Support with their Projects.
• President of the Architecture Club at Abu Dhabi University (Sep 2023 - Jun 2024)Organized several Educational Trips and Architectural Activities on Campus.
• Clubs & Events Coordinator at Abu Dhabi University (Aug 2022 – Jul 2023) - Managing and Running Events related to the Campus Life Activities for the Department of Student Affairs and Students.
HONORS AND AWARDS
• Outstanding Peer Tutor Award, for recognition of Exceptional Performance and Invaluable Contribution to the Academic Success Center, Fall 2025
• Outstanding Performance Award, for exceptional Display and Presentation of Design Studio V Project, Fall 2024
• Certificate of Appreciation, for participation in Activities of the Innovation Month of ‘UAE Innovates’, by the Federal Authority for Identity, Citizenship, Customs, and Port Security, February 2025.
• Certificate of Achievement, for successfully completing the Basic Mirrorless Photography Course, Nikon, March 2024.
• Certificate of Appreciation, for participation in Design of Extreme Spaces and VR Activities, Department of Architecture and Design, College of Engineering, ADU, April 2023.
• Certificate of Honor Student, for achieving a GPA of 4 0 with No Academic Integrity Violation or Disciplinary Issues, Department of Architecture and Design, College of Engineering, ADU, Spring 2023
• Certificate of Appreciation x3, for efforts and contributions towards the success of the Campus Life Activities, Department of Student Affairs, ADU, 2022-2025
SKILLS




Autocad, +4 years
Sketchup, +4 years
Photoshop, +4 years
Twinmotion, +4 years

Powerpoint, +4 years





Rhino, +3 years
Grasshopper, +2 years
Revit, +2 years
Dialuxevo, <1 years
D5, <1 years

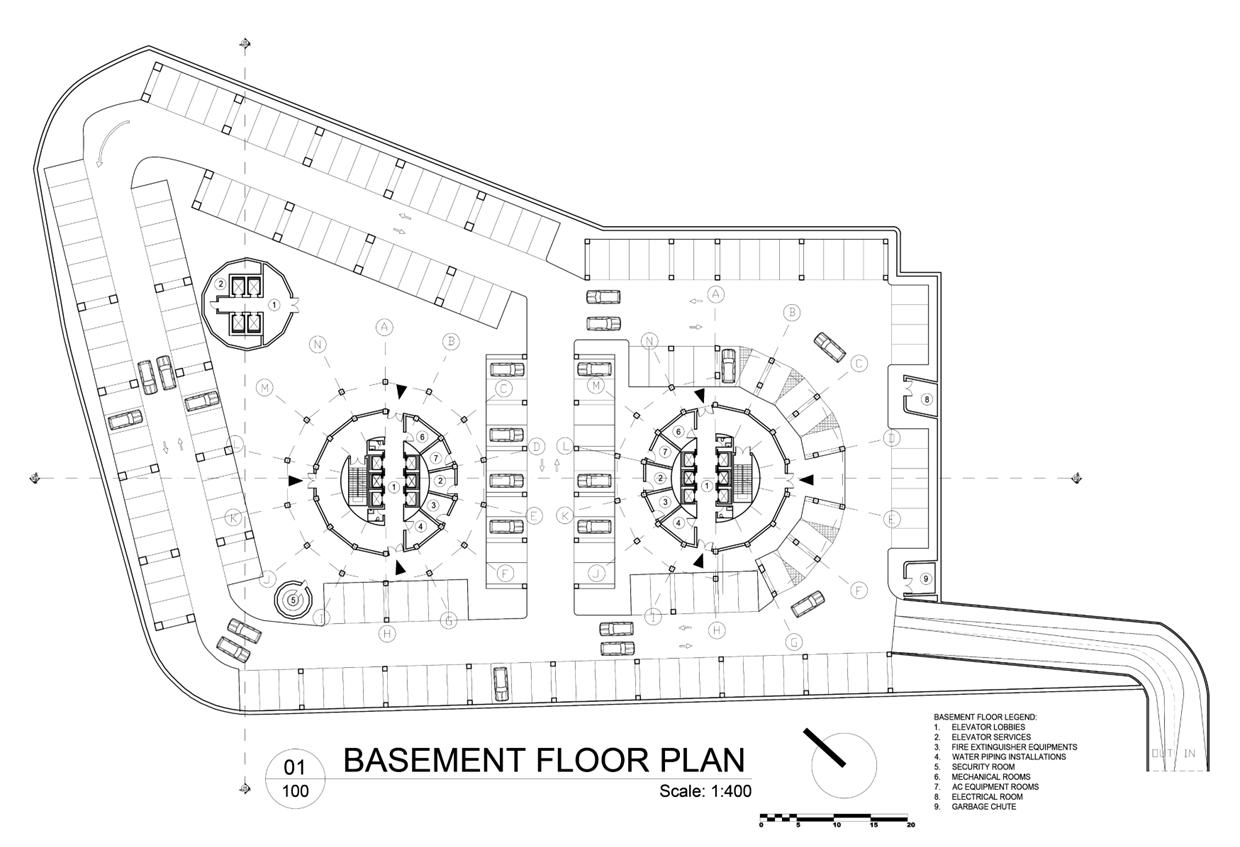
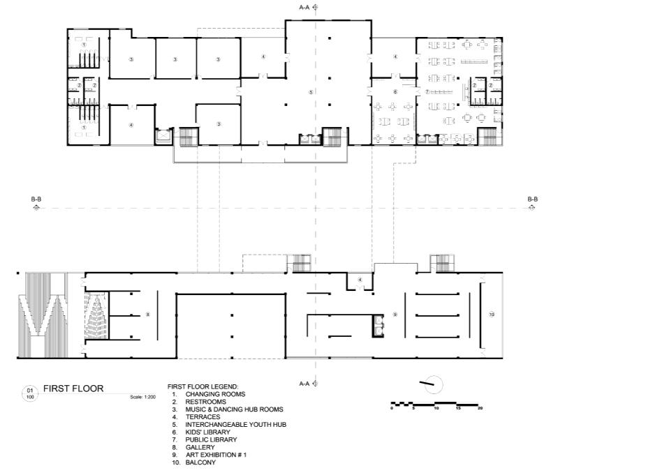
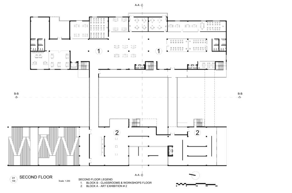
1 ABRAJ AL-HALAZOON
Fall2024

2 AL-AIN VALLEY OF ART
Spring2025
3

4 REMAL Al-AIN VERTICAL FARM & RESEARCH CENTER
Fall2023 NADIA BLOCK
Spring2025 NB 6-11 12-17 18-21 22-25































































