sb 1/2023 (deutsch)

Page 1

www.iaks.sport 57. Jahrgang ISSN (Print): 0036-102X ISSN (Internet): ISSN 2198-4271 1/2023 Internationale Fachzeitschrift für Sportstätten und Freizeitanlagen
sb
SPORTHALLEN UND ARENEN
SAVE THE DATE! Foto Stadion Beijing: © Arup, Chris Dite www.fsb-cologne.de KÖLN, 24.-27.10.2023 INTERNATIONALE FACHMESSE FÜR FREIRAUM, SPORT- UND BEWEGUNGSEINRICHTUNGEN Koelnmesse GmbH Messeplatz 1, 50679 Köln Telefon +49 221 821-2587* fsb@koelnmesse.de *(0,20 EUR/Anruf aus dem dt. Festnetz, max. 0,60 EUR/Anruf aus dem Mobilfunknetz)

LIEBE MITGLIEDER DER IAKS, LIEBE FREUNDE DER SB,

Nachhaltigkeit ist zur zentralen Motivation für Sport- und Freizeitanlagen geworden, bei denen der Fokus nicht nur auf einer ganzjährig optimalen Auslastung liegt, sondern auch auf einer Verbesserung der Energieeffizienz und dem Einsatz natürlicher und recycelbarer Materialien. Die Nutzung und Renovierung von Bestandsgebäuden und sanierten urbanen Flächen ist die wahrscheinlich beste Nachhaltigkeitsinitiative, denn es ist einfach, die CO2-Bilanz zu verbessern, wenn man renoviert und erweitert statt neu zu bauen.

In dieser Ausgabe stellen wir Ihnen einige beispielhafte Initiativen dieser Art vor. Ihnen allen ist gemein, dass sie die Kraft und die Werte des Sports nutzen, um den lokalen Gemeinschaften die mit einem aktiven Leben verbundenen sozialen Vorteile zugänglich zu machen.

Espace Mayenne in Laval, Frankreich, ist eine behutsam gestaltete multifunktionale Anlage, mit fließenden Formen und schlichten Materialien, die eine große, wandlungsfähige Veranstaltungshalle erfolgreich mit einer Kletterwand für internationale Wettbewerbe zusammenführt.

Das Amal Amjahid-Gemeindezentrum in der belgischen Hauptstadt Brüssel ist ein hervorragendes Beispiel für eine kompakte kommunale Anlage mit Sporthalle, Boxclub und Kindertagesstätte, in der visuelle Verbindungen zwischen den Funktionsbereichen Zusammengehörigkeit, soziale Interaktion und eine ausdrucksstarke Architektur begründen.

Zwei interessante Bestandsanlagen wurden mit Sport und Architektur zu neuem Leben erweckt und beeindrucken mit ihrem industriellen (und spanischen) Touch aus ganz unterschiedlichen Blickwinkeln: das Sportzentrum Las Eras in Hoyo del Manzanares, Spanien, und das Sportzentrum L’Usine in Tarbes, Frankreich.

Holz bestimmt den Charakter zweier sehr unterschiedlicher Anlagen: Die ICCU-Arena in Idaho, USA, ist ein Vorzeigeentwurf für den Einsatz von Massivholz als innovatives und nachhaltiges Baumaterial in Sporthallen mit großer Spannweite. Und im Karatetrainingszentrum in Münster, Deutschland, prägt Holz – angelehnt an die Materialität und Komposition traditioneller japanischer Häuser – die räumliche Atmosphäre.

Kreativität ist auch das herausragende Merkmal der Sporthalle Schillerschule in Frankfurt am Main. Da die neue Sporthalle den Schulhof stark verkleinerte, wurde die überbaute Fläche den Schülerinnen und Schülern als Ort zurückgegeben, an dem sie chillen, spielen und lernen können.

Die Intercable Arena in Bruneck, Italien, zeichnet sich durch ihre Vielseitigkeit aus, denn sie vereint diverse Eissportarten unter einem Dach. Ihre Wandlungsfähigkeit ist der Schlüssel zu einer optimalen ganzjährigen Auslastung mit Sportveranstaltungen, Konzerten, Konferenzen und Messen.

In der schweizerischen Vaudoise Aréna gibt Rationalität den Ton an, von der architektonisch interessanten Eissporthalle als größtem Einzelvolumen hin zum strahlend weißen Schwimmzentrum. Hohe Energieeffizienz ergibt sich aus dieser Kombination in einem Gebäudekomplex, sodass die Abwärme der Eissporthalle zur Erwärmung der Schwimmhalle genutzt wird.

Eine vergleichbare ökologische Nachhaltigkeit zählt auch zu den Kernwerten des Walker Sports and Abilities Centre in Ontario, Kanada, einem Sportkomplex mit Vierfachsporthalle, 1.000-Zuschauer-Arena und Trainingshalle, der mit höchsten Effizienzwerten punktet.

Die paralympischen Werte verkörpert das Boccia-Trainingszentrum in Bangkok, Thailand, auf einzigartige Weise. Integration und Partizipation für Menschen mit einer Behinderung werden hier über Zugangsrampen möglich, die das Erscheinungsbild des Gebäudes prägen.

Die in dieser Ausgabe vorgestellten Beispiele eröffnen unterschiedliche Sichtweisen, die Sie für Ihre künftigen Entwürfe als Ausgangspunkt oder Inspiration nutzen können. Wir haben die richtigen Instrumente, die Kreativität und die Vision, um die Gestaltung von Sport- und Freizeitanlagen immer wieder neu und anders zu denken.

1 sb 1/2023
Editorial

SPORTHALLEN UND ARENEN

2 sb 1/2023
PROJEKTE Multifunktionale Sport- und Unterhaltungsarena „Espace Mayenne“ in Laval 32 Hérault Arnod Architectures Amal Amjahid-Gemeindezentrum in Molenbeek 36 BOGDAN & VAN BROECK Walker Sports and Abilities Centre in Thorold, Ontario 40 MJMA Architechture & Design, Raimondo + Associates Architects Erweiterung Sportzentrum Las Eras in Madrid 44 ENKIRO Zweifeld-Sporthalle in Hartmannsdorf 48 Bauconzept® Boccia-Trainingszentrum in Bangkok 52 pbm Shotokan Karate Dojo in Münster 54 htarchitektur Sporthalle der Schillerschule in Frankfurt am Main 56 Trapez Architektur PROJEKTE Vaudoise Aréna in Malley, Lausanne 12 Pont12 architectes Central Credit Union Arena der Universität Idaho in Moscow, Idaho 18 Opsis Architecture Intercable Arena in Bruneck 24 CeZ Calderan Zanovello Architekten Mehrzwecksportzentrum in Tarbes 28 IDOM NEWS 28. IAKS Kongress: Ihre Themenvorschläge bitte! 4 IOC IPC IAKS Architekturpreise 2023: Jetzt bewerben! 4 2023 IAKS Studienreise nach Tokio 6 Neu im IAKS-Netzwerk 8 28 40 24 18 12 44
3 sb 1/2023 sb 1/2023 PROFESSIONALS & PROFILES Drainagefähige Outdoormatten 75 ALL-IN-ONE Sportflächenreinigung 75 ACO SPORT® Kabelverteilerschacht 76 GEZOLAN erweitert Geschäftsleitung 76 25 Jahre SPEED-LOCK 77 Schon mal von Para-Eishockey gehört? 77 Fußball, Handball, Hockey – und die Decke hält 78 Erste Achtfach-Sporthalle Europas 78 Unternehmensindex von A bis Z 79 Impressum 88 ADVERTORIALS Kombination von Wärme und Licht 58 RMBH Nachhaltigkeit und Fusion aus e-Sports und echtem Sport 62 ASB GlassFloor Nachhaltig und effizient zu perfekt präpariertem Eis 64 WM Aus Fußballstadion wird Handball-WM-Arena 66 NÜSSLI Gruppe Eliteschule für Sport und Fußball setzt auf Klimaneutralität 68 REHAU Das dritte Auge der Bademeister*innen 70 Poseidon Innovation traditionell verankert 71 engo Individuelle Sporthallen-Lösungen 72 Röder Zelt- und Veranstaltungsservice ADVERTORIALS Dimmbares Beleuchtungskonzept für Training und Entspannung 73 ADT Informationssysteme Jetzt neu mit NEOCARE TM Oberflächenvergütung 74 Gerflor Mipolam 54 32 36 56 48 52
Foto: Scott Norsworthy
Titel: Walker Sports and Abilities Centre

SPORT - UND FREIZEITBAUTEN ALS FUNDAMENT EINER RESILIENTEN GESELLSCHAFT:

IHRE THEMENVORSCHLÄGE BITTE!

Vom 24. bis 27. Oktober 2023 findet in Köln der 28. internationale IAKS Kongress für Planung, Bau, Modernisierung und Management von Sport- und Freizeitanlagen statt.

IAKS Mitglieder und Experten aus der ganzen Welt sind eingeladen, ihre Ideen für Vorträge oder Podiumsdiskussionen zur Gestaltung des Kongressprogramms einzureichen. Das Motto des diesjährigen Kongresses lautet „Sportund Freizeitbauten als Fundament einer resilienten Gesellschaft“.

Wie gelingt der Wandel zu CO2-neutralen Sport- und Freizeitanlagen? Gesellschaftlicher Mehrwert bei Sportstätten: Welche Faktoren spielen bei der Sozialrendite (Social

Return on Investment - SROI) eine entscheidende Rolle? Was bringen die neuesten Entwicklungen im Bereich Finanzierung und Wirtschaftlichkeitsbetrachtung? Wo stehen wir bei den SDG für nachhaltige Entwicklung als globalem Plan zur Förderung nachhaltigen Friedens und Wohlstands und zum Schutz unseres Planeten?

Vorschläge werden bis zum 31. März 2023 erbeten.

www.iaks.sport/programme-2023

IOC IPC IAKS ARCHITEKTURPREISE 2023:

JETZT BEWERBEN!

Ab sofort können Architekten, Planer und Betreiber aus aller Welt mit ihren erfolgreichen Sportstätten am Wettbewerb um die bedeutendsten internationalen Architekturpreise für nachhaltige, barrierefreie und innovative Sport- und Freizeitanlagen teilnehmen.

Es geht um beispielhafte Bauten und Komplexe, die Nachhaltigkeit und Barrierefreiheit, signifikante funktionale Planung und Innovation, Vermächtnis und außergewöhnliches architektonisches Design in Einklang bringen - klingt dies nach IHREM Projekt?

Dann bewerben Sie sich jetzt um die bedeutendsten internationalen Architekturpreise für Sport-, Freizeit- und Erholungsbauten.

Jede Art von Anlage kann teilnehmen - sei es ein Stadion, eine Sportfreianlage, ein öffentlicher Raum, eine Mehrzweckhalle, eine Indoor-Anlage, ein Schwimmbad / Wellnesseinrichtung oder eine spezielle Anlage (zum Beispiel für Wintersport).

IOC, IPC und IAKS setzen sich für herausragende Leistungen bei der Planung, Gestaltung und dem Betrieb von vollständig inklusiven und universell zugänglichen Innen- und Außenanlagen ein. Das Erkennen und Fördern von Trends für den Wandel von Gemeinden und städtischen Arealen in Orte des aktiven Lebens sowie zum Bau nachhaltiger Einrichtungen steht im Mittelpunkt dieses internationalen Wettbewerbs.

2021 erhielten 25 Projekte aus aller Welt ihre Preise im Rahmen einer festlichen Galaveranstaltung.

www.iaks.sport/award/award-2023

4 sb 1/2023 NEWS
IOC IPC IAKS
barrierefreie und innovative Sport- und Freizeitanlagen www.iaks.sport/architecture-prizes JETZT BEWERBEN!
ARCHITEKTURPREISE 2023 Nachhaltige,

2023 IAKS STUDIENREISE NACH TOKIO

27. BIS 28. JUNI 2023

Die IAKS-Studienreise nach Tokio (Japan) findet vom 27. bis 28. Juni 2023 statt. Sie führt damit erstmals seit 35 Jahren (1988) nach Japan. Auf dem Programm steht der Besuch sechs hochkarätiger Sport- und Freizeiteinrichtungen im Großraum Tokio, darunter innovative und traditionelle Anlagen, die für die Olympischen Spiele Tokio 2020 errichtet wurden und typische Merkmale der japanischen Architektur widerspiegeln.

Wie schon die vergangenen Studienreisen in den Jahren 2018 (Kopenhagen, Dänemark), 2019 (Hamburg, Deutschland) und 2022 (Vancouver, Kanada) verspricht auch die IAKS-Studienreise 2023 großartige Erlebnisse, umfangreiche Hintergrundinformationen, exklusive Einblicke und internationales Networking.

Geplant sind Besichtigungen und Gespräche mit den Managern und Betreibern der folgenden Anlagen:

• Nationalstadion (Olympiastadion Tokio 2020, Architekt: Kengo Kuma)

• Tokyo Metropolitan Sport- und Schwimmzentrum (kommunale Mehrzweckanlage, Architekt: Fumihiko Maki, Pritzker-Preisträger)

• ASICS-Sportkomplex (innovative Trainingsanlage für den Spitzensport)

• Beispielhafte Leichtathletikanlage (Laufbahn für den Parasport mit Holzkonstruktion)

• Nationalsporthalle Yoyogi

(Olympische Anlage der Spiele 1964 in Tokio, Architekt: Kenzo Tange, Architekturpreisträger)

• Budo-Anlage am Meiji-Schrein

(traditionelle japanische Anlage für Judo, Kendo und Bogenschießen im Wald des Meiji-Schreins)

Die Teilnahme beinhaltet die zweitägige Besichtigungstour mit Reisebus und Reiseleiter, Mittagessen an beiden Tagen und ein Networking-Dinner am ersten Abend. Die Anreise nach Tokio ist von den Teilnehmenden selbst zu organisieren. Der Aufenthalt kann optional verlängert werden.

Nutzen Sie diese einmalige Gelegenheit zum Networking mit internationalen und japanischen Fachleuten!

Mehr Informationen unter: www.iaks.sport

6 sb 1/2023 NEWS
Foto: Prof. Dr. Takanori Fukuoka

NEU IM IAKS - NETZWERK

RAMPLINE, TALGJE (NORWEGEN)

Rampline AS entwickelt innovative Geräte für Aktivität und für den Spielplatz, die Menschen aller Altersgruppen zum körperlichen Spiel anregen. Das beste Training ist das, was man tut, ohne darüber nachzudenken. Unsere Geräte können so kombiniert werden, dass sie in einem Motorikpark aufeinander aufbauen. Sie setzen jeden Muskel in Bewegung, schulen das Gleichgewicht, verbessern Kraft und Koordination und machen gleichzeitig Spaß.

Das Produktportfolio zeichnet sich durch Qualität und handwerkliche Expertise aus, so dass sie im öffentlichen Raum, auf Spielplätzen und Schulhöfen intensiv genutzt werden können. Unsere einzigartigen Produkte und Lösungen werden in Norwegen entwickelt und hergestellt.

www.rampline.com

HADRON CONSULTING, LONDON (UK )

Hadron Consulting bietet spezialisierte Dienstleistungen im Projektmanagement für die Immobilien- und Bauindustrie an und liefert innovative Gebäudeentwicklungen durch smartes Projektmanagement. Hadron Consulting fördert Innovation, Qualität und Mehrwert bei der Umsetzung komplexer Sport- und Freizeitprojekte. Wir arbeiten eng und vertrauensvoll mit unseren Kunden zusammen, und garantieren ein hohes Leistungsniveau mit guten Ergebnissen. Unser Ziel ist, dass die richtigen Leute die richtigen Projekte durchführen.

FORMATURF, ESSEN (DEUTSCHLAND)

Die FormaTurf ist ein deutsches Technologieunternehmen, welches als Teil der Sport Group, einem etablierten Anbieter von Sportplätzen, die Herausforderungen des umfassenden Recyclings von Kunstrasenplätzen und Sportböden löst. Im Rahmen des Green Technology Approach arbeitet sie seit Jahren an nachhaltigen Konzepten für eine Verbesserung der Öko-Bilanz bei Produkten, die alle inhouse erforscht, entwickelt, produziert, eingebaut, gepflegt und jetzt auch durch die FormaTurf recycelt werden. Sie verfolgt das Ziel, Kunstrasenplätze und Sportböden wieder in den Wertstoffkreislauf zurückfließen zu lassen.

www.formaturf.com

WILLMOTT DIXON, WEYBRIDGE (UK )

Willmott Dixon Construction Limited ist ein inhabergeführtes Unternehmen für Bau und Innenausbau. Das 1852 gegründete Familienunternehmen wird in der fünften Generation von der Familie Willmott geführt (Group Chief Executive Rick Willmott). Unser Ziel ist es, herausragende Gebäude zu errichten, Leben zu verändern, das Gemeindeleben zu stärken und die Umwelt zu verbessern, damit unsere Welt auch für künftige Generationen lebenswert ist.

www.hadronconsulting.co.uk

www.willmottdixon.co.uk

8 sb 1/2023 NEWS

X- MOVE, STOCKSTADT AM MAIN (DEUTSCHLAND)

Seit über 15 Jahren plant und baut das Team von X-MOVE Skate- Parkour- und Kletteranlagen in ganz Europa. Die Herstellungsweise aus Spritzbeton, handgeglätteten Freiformen als auch maximal hochwertigen Fertigteilen ermöglicht nahezu alle Freiheiten. Gemeinsam mit den Fachplanern unterstützt X-Move die Szene mit der nutzergerechten Planung und Umsetzung neuer Anlagen und entwickelt das Design, Konzepte und Materialität dabei stetig weiter. Jahrelange Erfahrung im Bau von organischen Freiformen für Skateanlagen, im Felsenbau, bei Architekturbetonfertigteilen, die Expertise unserer Betonkünstler sowie unsere Mitarbeit in verschiedenen Normenausschüssen machen uns zu einem zuverlässigen Partner für Ihre Spiel-, Sport- und Freizeitanlage.

www.x-move.net

RWT PLUS, WIEN (ÖSTERREICH)

RWT Plus ist ein auf die Tragwerksplanung von Leichtbaukonstruktionen und innovativen Tragkonstruktionen spezialisiertes Ingenieurbüro. An den Standorten in Wien, Niederösterreich und Kärnten bearbeiten unsere Kompetenzteams den gesamten zentraleuropäischen Raum und verwirklichen nationale wie internationale Projekte mit einem der Schwerpunkte im Sportstättenbau (zum Beispiel Sporthalle, Stadion). Mit den Säulen Tragwerksplanung, Bauphysik, Baucontrolling + Management bieten wir eine ganzheitliche Baubetreuung und können Auftraggebern die ordentliche Abwicklung ihrer Bauvorhaben garantieren. Umfassendes Wissen und die Erfahrung aus vielen, erfolgreich abgeschlossenen Projekten sind die Basis, um innovative Ideen zu entwickeln und erfolgreich umzusetzen.

www.woschitzgroup.com

PIONIER UND WELTMARKTFÜHRER

FÜR AUFSITZMASCHINEN, TRAKTORANBAUGERÄTE UND NACHLAUFGERÄTE FÜR DIE FORTGESCHRITTENE UND REGELMÄSSIGE PFLEGE VON KUNSTRASEN.

Fortgeschrittene Pflege

globalen Praxiserfahrungen resultiert die Entwicklung einer eigenen Maschinenserie zur Kunstrasenpflege.

DEMOPARK 2023

18.06.-20.06.2023 EISENACH | DEUTSCHLAND

9 sb 1/2023
www.smg-machines.com
CareMax CM2B
Wer den Wert seiner Investition langfristig sichern will, ist durch die bestmögliche Pflege für den Kunstrasen bei SMG genau richtig. Beim führenden Hersteller von Aufsitzmaschinen, Traktoranbaugeräten und Nachlaufgeräten für die Pflege von Kunstrasen finden Anwender 360°-Unterstützung in Sachen Technik und 100prozentiges Know-how. SMG setzt seit Jahrzehnten die Standards bei der Entwicklung und Produktion von Einbaumaschinen für synthetische Sportflächen. Aus diesen
Fortgeschrittene
Regelmäßige
WashMatic WM800 ClearMatic CM1800 TurfCare TCA1400 Fortgeschrittene Pflege
Pflege
Pflege BESUCHEN SIE UNS

NEU IM IAKS - NETZWERK

AMOMA, GÖTEBORG (SCHWEDEN)

AMOMA Sverige AB ist ein schwedisches Unternehmen, bei dem sich alles um Sport, Freizeit und Wohlbefinden dreht. 1999 stellte AMOMA sich neu auf und beschäftigt sich seitdem ausschließlich mit Planung und Design, Engineering und Projektmanagement. Als Muttergesellschaft von We Group, Ingemar Johansson Ingenjörsbyrå, ArenaProjekt und RoKK reicht das Leistungsspektrum von AMOMA von Machbarkeitsstudien und Projektierung von Schwimmhallen, Eishockeystadien und Stadien bis hin zu Ingenieurleistungen in den Bereichen Wasser, Abwasser, Kühlsysteme sowie der Planung von Großküchen und vieles mehr. Innerhalb der Organisation finden Sie Fachleute, die von Architekten und Ingenieuren bis hin zu Projektmanagern, Umweltanalysten, Juristen und Experten für Vorschriften und Normen reichen.

www.amoma.se

SE-AUSTRIA GMBH & CO. KG, SCHÖRFLING AM ATTERSEE (ÖSTERREICH)

Innovative Materialien, effiziente Tragstrukturen und intelligente Systeme sind das Markenzeichen und die Basis für die Leichtigkeit des Bauens durch seele. Das Ergebnis sind faszinierende einlagige Flächentragwerke oder mehrlagige ETFE-Kissen. seele gelingt es, filigrane, gewichtsreduzierte und dennoch extrem tragfähige Gebäudehüllen aus Membranen und ETFE-Folien für eine Vielzahl von Anwendungsvarianten zu realisieren, die zudem eine hohe ästhetische Ausdruckskraft erreichen.

www.seele.com

RIDER LEVETT BUCKNALL, BIRMINGHAM (UK )

Rider Levett Bucknall (RLB) ist ein globales, unabhängiges Beratungs- und Dienstleistungsunternehmen in den Bereichen Bau, Immobilien und Management, das mit einem Team von 4.000 Mitarbeitern weltweit die Zukunft der Baubranche gestaltet.

RLB bietet wirtschaftlichen Erfolg, effiziente Projekt- und Angebotskonzepte, Anlagenoptimierung sowie spezialisierte Beratungs- und digitale Dienstleistungen, um den Wert in allen Gebäudebereichen zu maximieren und erfolgreiche und nachhaltige Ergebnisse für seine Kunden zu erzielen.

www.rlb.com/europe

LOCABOO GMBH, MÜNCHEN (DEUTSCHLAND)

Locaboo automatisiert die Belegungsplanung Ihrer Sportflächen im Handumdrehen. Machen Sie Räumlichkeiten, Flächen und Ressourcen einfach online buchbar. Für ein entspanntes, zeitgemäßes Sportstättenmanagement mit deutlich mehr Auslastung und viel Zeitersparnis!

www.locaboo.com

10 sb 1/2023 NEWS

Teppichfliesen mit weißem Rücken für empfindliche Sportböden

ROBERT WÖLFLER, SINABELKIRCHEN (ÖSTERREICH)

Robert Wölfler leitet seit 2021 für AGROB BUCHTAL das Team Austria. Der junge, aber zugleich kompetente Fach mann und Kenner der Branche verwandelt seine Vision, unternehmerische Verantwortung übernehmen zu wollen, schnell in klare Ziele. Nach seiner Ausbildung als Fliesen leger übernahm er Aufgaben im Innendienst, wurde Ver triebsmitarbeiter im Außendienst und überzeugte als Standortleiter, bevor er zu AGROB BUCHTAL kam. Der Weltmarktführer im Bereich Fassaden- und Schwimmbad keramik holt mit Wölflers profunden Fähigkeiten, seinen Kontakten und Kenntnissen Expertenwissen ins Projektund Handelsgeschäft. Das Ziel des 32-Jährigen: Die vor handenen Potenziale der Marke stärken und konsequent weiter ausbauen.

Erhöhen Sie die Lebenzeit Ihrer Investition. Eine einfache und effektive Lösung sind die großen Teppichfliesen SportGiant in 2/1 m und 1/1 m

NEW MOBIL UND AKTIV GMBH, MÖNCHENGLADBACH (DEUTSCHLAND)

“Wasserspaß für alle!“ Die NEW mobil und aktiv-Gesellschaft in Mönchengladbach betreibt ihre eigenen Bäder und übernimmt als Dienstleister die Betriebsführung für weitere kommunale Bäder. Die Bäderverwaltung organisiert den Betrieb. Sie ermöglicht der Bevölkerung unterschiedliche Bäder zu besuchen und organisiert Zeitfenster für Schulen und Vereine. Aktuell betreut die NEW zwölf Bäder in der Region. Das jährliche Besucheraufkommen beträgt mehr als eine Million Besucher.

• Einfaches Verlegen

• Zuverlässiger Schutz

• Lange Haltbarkeit

• Kompakte Lagerung

11 sb 1/2023
www.new.de
Telefon: +49 (0)6434 909 1360 kontakt@sportbodenschutz.eu www.sportbodenschutz.eu
Mobiler Schutz für Ihren Sportboden

Standort

Malley / Lausanne, Schweiz

Bauherr / Betreiber

Centre Sportif de Malley SA (CSM)

Architekten und Autoren

Pont12 architectes

CH – 1022 Chavannes-Renens www.pont12.ch

Bauingenieur EDMS SA

HLK Ingenieur

Rapp technique du bâtiment SA

BG ingénieurs conseils SA

Landschaftsarchitekt

Pascal Heyraud Sàrl

Schwimmbecken

Myrtha Pools SA

Fotos

Vincent Jendly

Offizielle Eröffnung

September 2022

Baukosten

250 Millionen CHF/EUR

WEISSES EIS UND BLACK BOX

VAUDOISE ARÉNA IN MALLEY, LAUSANNE

Mit 43.000 m³ Wasserfläche verteilt auf vier Becken, davon ein Wettkampfbecken, sind die Beckenbereiche der Vaudoise Aréna das größte überdachte Schwimmbad der Schweiz. Auf sieben Etagen erstrecken sich 60.000 m² Fläche, davon vier Flächen zur öffentlichen Nutzung. Neben Eis- und Wassersport bietet das Sportzentrum Tischtennis und Fechten, beherbergt einen multifunktionalen Saal für Großveranstaltungen sowie Tagungs- und Konferenzräume.

Die organische Form des Gebäudes zeigt seine Funktion (Arena, Eisbahn) und orientiert sich an den äußeren Vorgaben (Grenzen des Baugrundstücks, Wendekreis der Fahrzeuge in den Ecken). Bögen werden sinnvoll genutzt: Unter Treppen entstehen Terrassen, Vertiefungen markieren und schützen die Eingänge, die Dachstruktur entspricht genau dem Grundriss. Die abgerundeten Ecken folgen der Form der Eisbahn. Zu guter Letzt prägt die überzeugende Form die Identität des Gebäudes und verdeutlicht die Einzigartigkeit eines außergewöhnlichen Projekts. Das weiße Glas wirkt wie Eis.

Der Grundriss erinnert an einen Eishockeyschläger: In dem großen „L“ öffnet sich ein weitläufiger Vorplatz, der angesichts der Großveranstaltungen im Sportzentrum entsprechend groß bemessen ist und zudem als öffentlicher Platz für den gesamten Stadtteil dient. Im Südflügel des Gebäudes befindet sich der Schwimmkomplex, dessen Kinderbecken sich unter die Tribüne der Eishalle schiebt.

Mit seiner makellosen Fassade, seinem weitläufigen Vorplatz sowie großzügig bemessenen Wegen und Ausblicken, die eine urbane Ausstrahlung

12 sb 1/2023
13 sb 1/2023
1426_CSM

vermitteln, ist das Sportzentrum Teil einer neuen Landschaft in Malley mitten im Großraum Lausanne.

Regionales Zentrum für nationale Leistungen

Das Sportzentrum dient für zwei unterschiedliche Zwecke: einerseits Sport- oder Kulturveranstaltungen mit bis zu 12.000 Personen in der Arena und pro Tag 1.500 im Schwimmbereich, für die ein eigenes Vertriebssystem besteht, andererseits der Tagesbetrieb mit verschiedenen Sportprogrammen (Schwimmen, Wasserspringen, Wassersport, Tischtennis, Fechten usw.) sowie einem Restaurant und Büros rund um die zentrale Halle, die Zugang zu allen Funktionen bietet.

Das Wettkampfbecken ist die Sportstätte des Vereins Lausanne Aquatique mit 400 Wettkampfberechtigten und 2.000 Mitgliedern, des Vereins Renens Natation und verschiedener Triathlonvereine. Mit seinen zehn Schwimmbahnen ist es ebenso wie der Sprungturm als regionales

Zen-trum für nationale Leistungen zertifiziert. Rund um Sprungturm und Wettkampfbecken gibt es Tribünen mit Platz für 700 Zuschauerinnen und Zuschauer.

Das Wettkampfbecken ist mit einer mobilen, teilbaren Wand ausgestattet, die es ermöglicht, das Hauptbecken in zwei 25-m-Becken zu unterteilen oder gleichzeitig 25- und 50-m-Bahnen anzubieten. Das Kombi-Becken verfügt auf der 25-m-Strecke über einen verstellbaren Boden, mit dem die Wassertiefe angepasst werden kann. Der Freizeitbereich umfasst einen kleinen Fluss mit leichter Strömung, Massageliegen und -bänke sowie Wasserdüsen und -fontänen.

Etagenbauweise und großzügige Ausblicke

Das Gebäude macht sich das abfallende Gelände zunutze, um die Funktionen klar zu trennen: Im Untergeschoss liegen Eisbahn und Wasserbecken der Schwimmbäder; am anderen Ende des Komplexes befindet sich hier der Zugang

14 sb 1/2023

für die Logistikströme, die Technikzentralen und der Parkplatz. Im Obergeschoss, das vom Vorplatz zugänglich ist, befindet man sich acht Meter über Wasser und Eis. Unter dem Dach sind Veranstaltungstechnik und Belüftung untergebracht.

Ein Teil der Konstruktion liegt unter dem Vorplatz (Trainingseisbahn, Parkplätze), und ein Teil des Schwimmbads schiebt sich unter die Tribünen der Eisbahn, um das Volumen optimal zu nutzen und den Außenbereich trotz des kleinen Grundrisses so großzügig wie möglich wirken zu lassen.

Die wohlüberlegte Gestaltung der Verkehrswege unterteilt das Gelände durch Akzente wie die große Rundtreppe oder den Ausblick auf die Eisfläche. Jeder Bauabschnitt bietet weitläufige Aussicht, insbesondere von den nach Süden liegenden Terrassen des Restaurants, der VIP-Bereiche und der Sportclubs.

Das richtige Material am richtigen Ort

Dieser Nachhaltigkeitsansatz ist pragmatisch und konkret zugleich. Beton für kleine und mittlere Spannweiten sowie das vertikale Tragsystem (Verdichtung), Stahl für große Spannweiten, insbesondere das Dach der Arena (Begrenzung der statischen Höhe), Optimierung von Gewicht und Material.

Die Fassadenverkleidung aus Profilglas entspricht der organischen Form des Gebäudes und verstärkt die symbolische Darstellung seiner Funktion (Analogie zu Wasser und Eis bei Tag, „Glow“-Effekt der Fassade bei Veranstaltungen in Arena und Schwimmbad, die oft abends stattfinden).

Im Inneren schaffen eher heimische Materialien die gewünschte Atmosphäre: Im Bereich „Capitale Olympique“, der im Wesentlichen die VIP-Bars der Arena beherbergt, sind Wände und Bars beispielsweise mit Holz getäfelt. Besonderes Augenmerk lag auch auf der künstlichen Beleuchtung, denn

15 sb 1/2023

jede Leuchte ist individuell auf den jeweiligen Teilbereich zugeschnitten.

Das chromatische Konzept

Dieses beruht auf dem kühnen Gegensatz von Schwarz und Weiß. Die Arena, die im Showmodus den „Black-Box“-Effekt gewährleisten muss, ist in Schwarztönen gehalten, die als Kontrast zum weißen Eis wirken; für Farbe sorgen das Publikum und die Bildschirme, wobei das Rot des heimischen Vereins überwiegt. Die Wasserwelt ist weiß und präsentiert sich in verschiedenen Nuancen, die ins Bläuliche gehen: Das Blau der Becken, wenn sie mit Wasser gefüllt sind, die Blautöne der Glaspailletten, die in die Beckenumrandung eingelassen sind, oder die blauen Fliesen in den Duschen. Die Dominanz von makellosem Weiß sorgt für ein Höchstmaß an natürlichem Licht und schafft die für Schwimmbäder typische hygienische Atmosphäre.

SÉBASTIEN BACONNIER

Betriebsleiter

Vaudoise Aréna

DREI FRAGEN AN DEN BETREIBER

Welche planerischen oder funktionellen Aspekte machen Ihre Anlage zu einem Erfolg?

Die Vaudoise Aréna wurde für die Nutzung durch Spitzensportler konzipiert, sei es das Schwimmzentrum, das ein regionales Leistungszentrum ist, das Eissportzentrum, in dem die Olympischen Jugendspiele stattfanden, oder das Fechtund Tischtenniszentrum, in dem sich die Elite in ihren jeweiligen Sportarten trifft. Der Campus hat auch die Aufgabe, der Öffentlichkeit bestmögliche Bedingungen für Komfort und Sicherheit bei der Ausübung des Sports zu bieten. Die Kompaktheit, der Raum und die Anordnung der Räumlichkeiten machen die Infrastruktur sehr attraktiv, ebenso wie die Lage in unmittelbarer Nähe der öffentlichen Verkehrsmittel. Und schließlich macht die Architektur die Vaudoise Aréna zu einem spektakulären und sehr modernen Ort.

Wenn Sie einen Wunsch frei hätten, inwieweit würden Sie Ihre Einrichtung verändern oder erweitern? Das Eissportzentrum ist ein echter Erfolg für die Öffentlichkeit und die Vereine. Wir haben Mühe, allen Anfragen gerecht zu werden. Wir würden gerne die Außenbahn überdachen, damit sie im Winter unabhängig von den Witterungsbedingungen genutzt werden kann. Diese Fläche wäre auch für andere Aktivitäten im Sommer sehr nützlich.

Vor welchen Herausforderungen steht der Betrieb von Sport- und Freizeitanlagen in naher Zukunft?

Technisch gesehen ist die erste Herausforderung das Energiemanagement. Die Herstellung von Eis sowie das Pumpen und Filtern des Wassers in den Becken verursachen per Definition einen erheblichen Energiebedarf. Um dies zu bewältigen, ist unsere Infrastruktur mit einem ausgeklügelten System ausgestattet, das die Erzeugung von Kälte und Wärme kombiniert, ergänzt durch den Beitrag der mehr als 2.000 m² Fotovoltaik-Paneele. Darüber hinaus steht die Energieerzeugung in Relation zu der großen Anzahl der Besucher, die von der Infrastruktur profitieren. Wir nehmen unsere Verantwortung für die Nachhaltigkeit ernst, indem wir diese Aspekte bei allen unseren Veranstaltungen und Projekten berücksichtigen.

Aus betrieblicher Sicht besteht die Herausforderung darin, den schnellen Übergang vom Sport zur Unterhaltung unter optimalen Bedingungen zu bewältigen. Wir hatten die Gelegenheit, diese Situation „in echt“ zu testen, und wir haben gesehen, dass wir dazu durchaus in der Lage sind!

Standort

Moscow, USA

Bauherr / Betreiber

Universität Idaho

Architekten

Opsis Architecture

US – 97209

Portland, OR

www.opsisarch.com

Autor

Opsis Architecture

Fotos

Lara Swimmer

Offizielle Eröffnung

Oktober 2021

GROSSE SPANNWEITE, MAXIMAL STÜTZENFREIER RAUM

CENTRAL CREDIT UNION ARENA DER UNIVERSITÄT IDAHO

IN MOSCOW, IDAHO

Die Idaho Central Credit Union (ICCU) Arena mit 4.000 Sitzplätzen ist eine Mehrzweckhalle, die von Opsis Architecture als dramatisches Eingangstor zum Campus der Universität Idaho entworfen wurde. Es ist das Heimstadion der Idaho Vandals, der universitätseigenen Basketballteams der Männer und Frauen, und dient der Ausrichtung einer Vielzahl von Aktivitäten wie Sportveranstaltungen, Konzerte, Versammlungen und Campusprogramme. Die Konstruktion aus Massivholz stellt eine bedeutende Abkehr von traditionellen Bauweisen mit Stahl und Beton dar.

Am Anfang stand die Idee, die Arena mittels Verwendung von Massivholz mit großer Spannweite und Maximierung der strukturellen Effizienz zu einem hochgradig nachhaltigen Zentrum für die Gemeinschaft zu machen, zu einem von Tageslicht durchfluteten Ort, der den Kontext und die Kultur am Campus mit seiner warmen, einladenden und attraktiven Architektur optimal ergänzt.

Diese Eigenschaften bilden eine Abkehr von den für Arenen und Sporthallen typischen fensterlosen „Kästen“ mit Stahltragwerk.

Die Abkehr von diesem traditionellen Konzept ergab sich im Zuge der Zusammenarbeit mit dem College of Natural Resources der Universität Idaho, bei der das Planungsteam das Ziel ausgab, für den

18 sb 1/2023

Neubau weitgehend Holz aus lokaler Produktion zu verwenden. Als bedeutender Wirtschaftsfaktor für die Region hatte der Bau der Arena spürbar positive Auswirkungen auf die örtliche Forstwirtschaft, die lokalen Verarbeitungsbetriebe und die in historisch wirtschaftsschwachen Gemeinden lebenden Familien. Über die Materialwahl sollten sowohl die regionale Entwicklung gefördert als auch das Erlebnis an Spieltagen optimiert werden.

Massivholz als Werkstoff

Massivholz wird in der Bauindustrie gemeinhin vornehmlich mit Blick auf die Vertikale verwendet, um einen neuen Typus mittelhoher und hoher Gebäude zu errichten. Bei der ICCU Arena wollten die Planer die historisch auf Stahl und Beton basierende Bauweise von Sportarenen bewusst in Frage stellen. Der Fokus lag darauf, ein ausdrucksstarkes und

einzigartiges Gebäude mit warmer Atmosphäre zu kreieren, das dem universitären, regionalen und kulturellen Charakter des Standorts gleichermaßen gerecht wird. Das Tragwerk rückt in den Vordergrund des Arena-Erlebnisses, anstatt hinter dem Geschehen zurückzubleiben. Gefordert war eine wesentlich größere Spannweite der Holzkonstruktion, die eine poetische Wirkung erzeugt und die Erlebnisqualität in der Arena verbessert.

Die Struktur und Form des Daches orientieren sich an der hügeligen Landschaft in der Region Palouse, die am Ende der letzten Eiszeit von den Missoula-Fluten gebildet wurde. Da die Arena jedes Jahr Tausende Besucher begrüßt, war es wichtig, eine schützende und dynamische Atmosphäre zu erzeugen, was dank des breiten Überstands des sanft geschwungenen Dachs gelingt.

19 sb 1/2023

Ziel war es nicht, die Topologie der umgebenden Landschaft zu imitieren. Vielmehr ging es darum, die sanften Hügelformen als Katalysator des architektonischen Ausdrucks zu nutzen. Die Form- und Materialsprache des Entwurfs erzeugt ein Zugehörigkeitsgefühl zu einem Ort, der in der Geschichte Idahos verwurzelt ist und gleichzeitig in die Zukunft blickt.

Sichtbare Holzkonstruktion

Mit dem Design sollte ein einzigartiges Erlebnis für die studentischen Sportlerinnen und Sportler geschaffen und gleichzeitig der Werkstoff Holz auch nach außen hin sichtbar gemacht werden. Die Trainer wünschten sich einen Raum mit einer physischen und visuellen Verbindung zur Arena, der alle Sportlerinnen und Sportler unter einem Dach beherbergt. Der Baukörper ergibt sich aus der Kombination des Trainingsfelds mit mobilen Tribünen, auf denen an Spieltagen 1.300 Fans Platz finden. Diese

funktionalen Elemente bilden einen Rahmen, über dem das Dach schwebt. Die Schichtholzträger gehen von der Horizontale in gebogene Stützen über und übertragen so die vertikale Last der Struktur sanft auf den Boden. Eine horizontale Aussparung am Wandsockel wurde genutzt, um Tageslicht in die Halle einfallen zu lassen, gerahmte Ausblicke auf den angrenzenden Campus zu ermöglichen und gleichzeitig die Holzstruktur und die Seitenstreben für Passanten sichtbar zu machen.

Eines der vielen einzigartigen Merkmale des Entwurfs ist der Portalrahmen mit einer Spannweite von 36,5 m, der selbst von der oberen Sitzreihe einen ungehinderten Blick auf das Spielfeld ermöglicht. Für die Druckverbindung zwischen horizontalen Trägern und vertikalen Stützen, die eine Druckbelastung von über 204 t vom Dach auf das Fundament übertragen, war eine komplexe Holzkonstruktion erforderlich. Durch die paarweise

22 sb 1/2023

Verwendung einer doppelt verleimten Struktur wurde ein dünneres Profil realisiert, hinter dem sich das zentrale Belüftungssystem verbirgt. Es wurde vorinstalliert, bevor der Portalrahmen an seinen Platz gehoben wurde. Hierdurch konnte der Bedarf an Hebezeugen und Gerüsten vor Ort gesenkt werden. Die Geometrie der gebogenen Stützen auf jeder Rahmenseite wurde im Planungsprozess genau abgestimmt, um ungehinderte Sichtlinien auf das Spielfeld zu garantieren und gleichzeitig die konstruktive Tragkraft zu gewährleisten.

Integration mechanischer und elektrischer Systeme Die Primärkonstruktion besteht aus einem gespreizten Portalbinder und einem sich wiederholenden Hängewerk. Der Portalbinder und das Hängewerk wurden mit doppelt verleimten, druckverspannten Obergurten konstruiert, um einen Zwischenraum zu schaffen, der als „Versorgungsautobahn“

genutzt wird, um mechanische und elektrische Komponenten unsichtbar aufzunehmen. An der Westseite der Arena wurde Dübelholz (DLT) als Basis für den Alumniraum und die Clubterrasse verwendet. Für die Haupteingänge wurden die bidirektionale Spannfähigkeit von Brettsperrholz (CLT) genutzt, um die Eingangskonstruktion zu stützen.

Die DLT- und CLT-Konstruktionen erzeugen eine warme, einladende Atmosphäre für Basketballtrainer, Personal, Verwaltungsmitarbeiter und Besucher. Der Alumniraum dient auch als Ort für besondere Veranstaltungen und als Loge mit Blick auf das Hauptspielfeld. Die nach Westen ausgerichtete Vandals-Terrasse unter dem soliden, auskragenden Dach eröffnet den Blick auf die sanfte Hügellandschaft der Palouse. Hier schließt sich der Kreis zwischen dem Besuchserlebnis der Anlage und dem Gefühl lokaler Zugehörigkeit.

23 sb 1/2023

Standort

Bruneck (Südtirol), Italien

Bauherr

Stadtwerke Bruneck

Betreiber

Bruneck Aktiv GmbH

Architekten CeZ

Calderan Zanovello Architekten

Autor Bruneck Aktiv GmbH

Fotos

© Ivan Bortondello_Intercable Arena

© Jürgen Eheim_Progress AG

© Tobia Vitalba_engo GmbH

Offizielle Eröffnung Oktober 2022

WO MULTIFUNKTIONALITÄT UND DESIGN AUFEINANDER TREFFEN

INTERCABLE ARENA IN BRUNECK

Von Weitem ist das gelbe Dach der im Oktober 2021 eröffneten Multifunktionsarena in Bruneck zu sehen. Das Bauwerk mit seinem einzigartigen Design, seiner charismatischen Architektur und seiner Funktionalität bietet auf 13.000 m² Raumfläche und vier Etagen Platz für 3.100 Zuschauer. Die Intercable Arena ist eine moderne Multifunktionsarena mit Fokus auf Eissport, gleichzeitig ein Ort der Gemeinschaft und bietet den perfekten Rahmen für größere und kleinere Veranstaltungen.

Zehn Jahre sind von der ersten Idee bis zur Eröffnung der neuen Arena vergangen. Dem Spatenstich im September 2017 ging eine aufwendige Entwicklungsphase voraus: Nachdem 2011 die Idee für den Neubau einer Eissportstruktur in Bruneck geboren wurde, besichtigten die Verantwortlichen etwa 30 Stadien und Arenen in der ganzen Welt, um wertvolle Ideen und Inspirationen für das Konzept zu sammeln. Im Frühjahr 2014 wurde der Architektenwettbewerb für die „Eissportanlage Bruneck“ ausgeschrieben. 72 lokale, nationale und internationale Architekturbüros bekundeten ihr Interesse

am Projekt. Im Mai 2015 wurde schließlich das Siegerprojekt der Bietergemeinschaft rund um die Architekten CeZ Calderan Zanovello aus Bozen ausgewählt.

Vier weitere Jahre, in denen Vorprojekte, Ausführungsplanungen, Ausschreibungen und Einrichtungspläne erarbeitet wurden, vergingen bis zum effektiven Baubeginn im Juli 2019. In dieser Zeit wurde das Projekt ausfinanziert und von der Stadtgemeinde Bruneck an den Energieversorgerbetrieb Stadtwerke Bruneck übertragen, der

fortan als Bauträger und schlussendlich auch Eigentümer der Immobilie fungiert. Das Betriebskonzept wurde erarbeitet und die Führungsgesellschaft der Eissportanlage, die Bruneck Aktiv GmbH – eine 100-prozentige Tochter der Stadtwerke Bruneck – aufgebaut.

In der Bauphase waren mehrere Hürden zu überwinden, ehe die Arena nach zweijähriger Bauzeit im Oktober 2021 eröffnet wurde. Ein mehrtägiger Stromausfall nach Unwettern, starke Schneefälle und auch die Corona-Pandemie sorgten immer wieder für ungeplanten Stillstand auf der Großbaustelle. Am 1. Oktober 2021 war es dann aber so -

weit: Der HC Pustertal spielte zum ersten Mal ein Heimspiel gegen die EC Red Bulls aus Salzburg in der nagelneuen Intercable Arena, die den Namen ihres Hauptsponsors, der Brunecker Firma Intercable, trägt.

Mit Design und Funktionalität

zum Vorzeigeprojekt im Alpenraum

Die Intercable Arena besticht vor allem durch ihre besondere Architektur. Das schwebende gelbe Dach erkennt man bereits von Weitem. Eine weitere Besonderheit ist die Glasfassade, die das Bauwerk mit 300 Laufmetern Glas umschließt und mit Licht durchflutet.

Die Intercable Arena ist eine der ersten CO₂ -gekühlten Eissportanlagen in Italien und verfügt auf dem Dach über eine 1.925 m² große Fotovoltaikanlage, die pro Jahr Strom für durchschnittlich 118 Haushalte produziert und somit jährlich circa 185.000 kg CO₂ einspart.

Die Arena Bruneck umfasst zwei Eisflächen und beheimatet außerdem die erste und einzige Curling-Halle in Südtirol, welche über zwei Bahnen mit olympischen Maßen verfügt.

Die Struktur bietet Platz für rund 3.100 Zuschauer, bei Konzerten sogar für 4.000. Von allen Seiten der Tribüne ist die Sicht auf die Eisfläche ausgezeichnet. Damit kann ein spektakuläres Zuschauererlebnis geboten werden.

Mit 234 Räumen verfügt die Arena unter anderem über 15 Umkleidekabinen, einen Fitnessraum, einen Gymnastikraum, einen Schlittschuhverleih, einen 250 m² großen Premium-Bereich, sechs Logen sowie einen Medien- und Pressebereich.

Die Arena bietet einen Gastronomiebereich mit Bar und Tagesbistro, der auch an Nicht-Event-Tagen als Treffpunkt genutzt wird und einen einmaligen Blick auf die beiden Eisflächen gewährleistet. Mehrere Kioske können während der Veranstaltungen zugeschaltet werden, außerdem gibt es in der Arena einen Sport-Shop.

Multifunktionsarena, sozialer Treffpunkt und Schulsport

In der Arena sind die verschiedenen Eissportarten wie Eishockey, Eiskunstlauf, Eislauf, Curling und Eisstockschießen, aber auch Para-Eishockey und Broomball beheimatet und werden sowohl von Profi- als auch Freizeitsportlern und Jugendmannschaften durchgeführt. Damit nicht genug: Die Arena bietet perfekte Voraussetzungen für Konzerte, Sport- und Firmenevents, Tagungen und viele weitere kleinere und größere Veranstaltungen und ist auch zu einem sozialen Treffpunkt avanciert. Sie ist zudem Schulsportanlage für Schüler aller Schulstufen und Studierende der Freien Universität Bozen-Campus Bruneck und als solche immer gut ausgelastet.

26 sb 1/2023

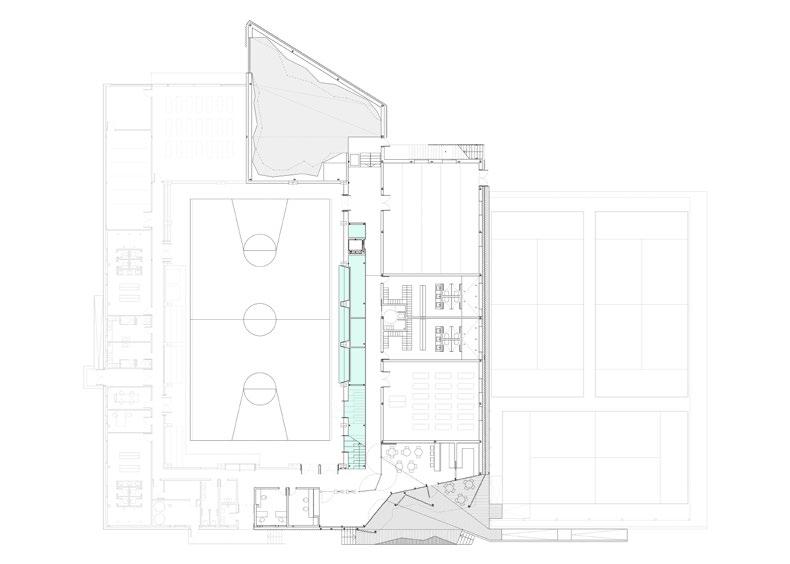
KATHEDRALE FÜR KLETTERER

MEHRZWECKSPORTZENTRUM IN TARBES

Die Aufgabe von IDOM bestand darin, ein altes Gebäude der Rüstungsindustrie aus dem frühen 20. Jahrhundert in ein großes, für die Stadt, die Region und das Land bedeutendes Sportzentrum zu verwandeln. Das Sportzentrum in Tarbes verfügt über Anlagen für Leichtathletik, Basketball, Handball und Badminton. Der Kletterbereich im Herzen des Gebäudes besteht aus zwei einander zugewandten Kletterwänden, gleich dem Chorraum in einer Kathedrale.

Das in Nord-Süd-Richtung ausgerichtete Gebäude ist 125 m lang und 85 m breit. Es gliedert sich in ein 20 m hohes Hauptgebäude und zwei 13 m hohe Nebengebäude. Das Sportzentrum zeichnet sich durch die sich wiederholende Geometrie des Sägezahndachs aus. Von außen betrachtet wirkt die Anlage bescheiden, entfaltet jedoch im Inneren die Eleganz einer Kathedrale. Die Großartigkeit des Innenraums ergibt sich aufgrund der ausdrucksstarken polychromen Struktur und der spektakulären Oberlichter, die mehr als fünfzig Prozent der Dachfläche ausmachen.

Die Fassade wurde neu gestaltet mit einem Backsteinsockel, der mit der umgebenden Architektur harmoniert, und einer weißen Fassadenverkleidung, die bis zum Dach reicht. Das Dach ist mit für Industriegebäude typischem weißem Feinwellblech eingedeckt. An strategischen Punkten wurden neue Öffnungen eingefügt, um den öffentlichen Charakter des neuen Gebäudes zum Ausdruck zu bringen und eine durchlässigere Beziehung zur Umgebung herzustellen.

29 sb 1/2023
Standort Tarbes, Frankreich Bauherr / Betreiber Tarbes Lourdes Pyrénées Architekten IDOM ES – 48015 Bilbao www.idom.com Autor IDOM Fotos Pedro Pegenaute Offizielle Eröffnung Januar 2022

Neugestaltung durch Farbe und Organisation des Raums

Der Entwurf zielt darauf ab, den Wert des Bestehenden zu erhalten und den ursprünglichen Charakter der Anlage zu bewahren. Gleichzeitig wird die neue spielerische Nutzung des Gebäudes mithilfe einer neuen Belichtung und farbenfroher Akzente betont. Die vormals grauen Böden wurden farbig gestaltet, um die neuen Sportbereiche zu definieren: Leichtathletik, Basketball-, Handball- und Badmintonfelder sowie Kletterwände.

Die Anordnung der Bereiche für die unterschiedlichen Disziplinen ist der Schlüssel zum Verständnis des Entwurfs. Die Raummitte wird vom Kletterbereich mit zwei einander zugewandten Kletterwänden dominiert, die an den Chorraum einer Kathedrale erinnern und mit abgehängten Strahlungspaneelen ausgestattet sind, um die für eine internationale Zertifizierung erforderlichen thermischen Bedingungen zu gewährleisten. Auf beiden Seiten befinden sich zwei Multisportfel-

der für Basketball, Handball und Badminton. Am nördlichen Ende wurde eine Standard-Leichtathletikbahn mit Hoch- und Weitsprunganlage sowie Kugelstoßanlage angeordnet. Im Hauptgebäude gibt es außerdem 100-m-Sprintbahnen, die an beiden Seiten des kathedralartigen Raums verlaufen.

Gehwege und Zuschauerbereiche zugleich

Die erforderlichen Nebenbereiche (Foyer, Umkleiden, Verbandsräume, Büros) befinden sich in einem zweigeschossigen Gebäude an der Südfassade. Dieses Gebäude mit Aussichtsterrasse im zweiten Obergeschoss wird über eine Reihe von Gehwegen erschlossen, die die Sportbereiche begrenzen und gleichzeitig als Zuschauerbereiche dienen. Um den Innenraum nicht unnötig aufzuteilen und das Gebäudevolumen in seiner Gesamtheit zu wahren, führen die Gehwege scheinbar schwerelos durch den Raum dieser industriellen Kathedrale. Hierzu wurden sie in die großen Träger der alten Industriehalle integriert und von den riesigen Brückenkränen abgehängt, die so eine neue Nutzung erhalten.

30 sb 1/2023

Standort

Laval, Frankreich

Bauherr / Betreiber

Département Mayenne

Architekten

Hérault Arnod Architectures

FR – 93500 Pantin

www.herault-arnod.fr

Autor

Françoise-Claire Prodhon

Fotos

Cyrille Weiner

Offizielle Eröffnung Juni 2021

Baukosten

ORGANISCH GEFORMTE HÜLLE MIT DIVERSEN FUNKTIONEN

MULTIFUNKTIONALE SPORT- UND UNTERHALTUNGSARENA

„ESPACE MAYENNE“ IN LAVAL

Das im Nordwesten Frankreichs gelegene Espace Mayenne ist ein großes Sport-, Konzertund Veranstaltungszentrum. Es umfasst eine Sporthalle für Sportarten wie Basketball, Tennis, Volleyball, Handball und Boxen, eine Multifunktionshalle mit Kletterwand für internationale Wettkämpfe sowie ein Outdoor-Velodrom mit 250-m-Radrennoval und Trainingsbereich. Isabel Hérault und Yves Arnod, Gründer von Hérault Arnod Architectes, geben Einblicke in das Entwurfskonzept und den Nachhaltigkeitsansatz der Anlage.

Wie sahen der Gestaltungsansatz und die Aufgabenstellung aus?

Isabel Hérault: Espace Mayenne liegt am Stadtrand von Laval. Die Anlage wurde in Teilen auf einem ehemaligen Militärgelände errichtet, auf dem es einen schützenswerten Landschaftsbestandteil gab. Das Gebäude berücksichtigt die

Struktur der Landschaft mit großen Eichen, einem von Hecken gesäumten Weg und einer Feuchtwiese, die dem Regenwassermanagement dient.

Ziel waren die Planung und der Bau einer multifunktionalen Arena mit drei Hallen: eine Sporthalle mit 3.860 Zuschauerplätzen, die in einen

32 sb 1/2023
36 Millionen EUR

Konzertsaal mit einer Kapazität von 4.450 Sitz-/Stehplätzen umgewandelt werden kann, eine Sporthalle mit einer 16 m hohen und 44 m breiten Kletterwand für internationale Wettbewerbe und ein Konferenzsaal mit 500 Sitzplätzen. Alle drei Hallen können zusammen für Messen, Ausstellungen und Konferenzen genutzt werden. Darüber hinaus gibt es Nebenräume wie modulare Lounges für Sponsoren und Gäste sowie Büros und Umkleideräume.

Der Grundriss ist sehr kompakt, die drei Hallen wurden so effizient wie möglich gegliedert. An den Schnittstellen befinden sich Technikräume, Büros, verschiedene Funktionsbereiche und Verkehrsflächen. Der gesamte Komplex ist von einer geschwungenen Fassade umgeben, die die Gebäudekörper so eng wie möglich umschließt, um den Platzbedarf im Außenraum zu minimieren. Im Außenbereich wurden ein Parkplatz mit 670 Stellplätzen, eine Grünanlage und eine 250 m lange Radrennbahn mit einem zentralen Trainingsbereich angelegt.

Wie ist die organische Form des Gebäudes mit seinen Funktionen und Nutzungsarten verbunden?

Yves Arnod: Die organische Form ist das Ergebnis der funktionalen Gestaltung des Gebäudes. Die unter das Gebäude geschobene Eingangshalle ist ein flexibel nutzbarer Bereich, der die Hallen erschließt und den Raum klar und einfach lesbar macht. Das Erdgeschoss teilt sich in zwei Ebenen, um die Besucherströme in Abhängigkeit vom Nutzertyp zu organisieren. Das obere Geschoss ist für das Publikum bestimmt: Der Zugang zu den Hallen erfolgt von oben. Das untere Geschoss ist dem Personal und den Sportlerinnen und Sportlern vorbehalten, von hier gelangt man auch zu den technischen Außen- und Logistikbereichen. Die drei Hallen sind sowohl auf der Ebene des öffentlichen Eingangs als auch auf der darunter liegenden Ebene miteinander verbunden, so dass ein Wechsel zwischen den Hallen jederzeit möglich ist. So können Veranstaltungen in allen drei Hallen gleichzeitig bedient werden.

33 sb 1/2023

Das Gebäude besteht aus drei großen „Organen“, den drei Hallen mit jeweils eigenen Anforderungen. In der großen Halle wollten wir die Bühne an der Längsseite platzieren, was den großen Vorteil hat, dass der Abstand zwischen Bühne und Publikum geringer ist.

Die Planung einer Multifunktionshalle ist sehr komplex, insbesondere aufgrund der anspruchsvollen Anforderungen an die Akustik. Es muss ein Gleichgewicht gefunden werden zwischen den akustischen Anforderungen von Musik- und Unterhaltungsevents, bei denen eine gleichmäßige Schallverteilung gefordert ist, und den akustischen Eigenschaften einer Sporthalle mit einem stärkeren Nachhall. Beim Sport ist eine arenaähnliche Konfiguration mit Zuschauerrängen auf allen Seiten erforderlich, bei Shows hingegen eine lineare Konfiguration.

In der Haupthalle sind beide Modi abgebildet: Die Arenaform mit Sitzplätzen an einer der Längsseiten bedingt eine asymmetrische Form. Bei Showevents wird die Bühne auf der gegenüberliegenden Längsseite installiert. Auf diese Weise wird der Abstand zwischen Publikum und Bühne im „Showmodus“ verringert. Mithilfe diagonaler Vorhänge kann die große Halle

in einen trapezförmigen Raum verwandelt werden, der sich von der Bühne aus erweitert. In die Decke integriert wurden komplexe technische Systeme, die eine große Flexibilität in Bezug auf die Bühnenausstattung ermöglichen.

Mit welchen Materialien haben Sie gearbeitet, und wie beeinflussen die Kontraste das Nutzererlebnis im Innen- und Außenraum?

Isabel Hérault: Wir haben uns dafür entschieden, mit einer reduzierten Materialpalette zu arbeiten. Der Fassadensockel, der mit dem Boden verbunden ist, besteht aus mattweißen Rohbetonplatten, die in unregelmäßigen Abständen installiert wurden. Im oberen Bereich kontrastiert die ebenfalls weiße Aluminiumhaut in ihrer Leichtigkeit und Materialsprache mit dem Beton. Die Fassade ist in drei Streifen unterteilt, die das Gebäude umhüllen und sich ihrerseits wiederum in diagonale Streifen gliedern, die durch extrudierte Aluminiumprofile in gleichen Abständen voneinander getrennt sind. Zwischen diesen Profilen befindet sich eine Aluminiumverkleidung, die aus Gründen der Steifigkeit gefaltet wurde, aber auch, um eine interessante Textur mit einem attraktiven Lichtspiel zu erzeugen.

34 sb 1/2023
10 20 0 10 20 0 1 2 3 4 5 6 7 8 9 A ground floor plan B C Grundriss 1 Sporthalle 2 Kletterwand 3 Umkleideräume 4 Partner Lounges 5 Partnerräume 6 Technikräume 7 Lagerraum 8 Velodrome Lagerraum 9 Velodrome Umkleideräume A Mayenne Halle B Pégasse Halle C Congress Halle A B C 1 2 3 3 6 7 5 8 9 4

Das gleiche Prinzip wurde im Innenraum angewendet, wo wir mit rohen Materialien arbeiten konnten. Die Wände der Haupthalle wurden in Zusammenarbeit mit den Akustikingenieuren abwechselnd mit weißem Rohbeton und Wollfilz gestaltet. Es wurden Absorptionsbereiche, Nachhallbereiche und Bereiche mit gemischten akustischen Eigenschaften definiert: Die Schalldiffusion im Raum wird über wellenförmige Rohbetonelemente gewährleistet, in den Mischflächen finden sich abwechselnd Streifen aus Beton und Wollfilz, und für die Absorptionszonen hinter den Tribünen wurden Akustikmatten aus Wollfilz gewählt. Von der Decke haben wir Wollfilzplatten abgehängt, die ein zweifarbiges geometrisches Muster bilden: weiße Platten in der Farbe des Betons und grau-braune Platten in einem natürlichen Farbton. Die Betonböden sind farbig gestaltet – schwarz in den Hallen und hellgrau in der Lobby und den Büros.

Yves Arnod: Als weiteres Material im Innenraum haben wir Holz in unterschiedlicher Deklination verwendet. Die Hallendecken, die aus Holzlatten mit Akustiköffnungen bestehen, wurden vollständig in 3D modelliert, vorgefertigt und abschnittsweise im Werk vormontiert. In den Hallen sind unter anderem die Sitze, Teile der Kletterwand, die Eingänge und die Decken der öffentlichen Bereiche auf der unteren Ebene in Holz ausgeführt.

Die reduzierte Material- und Farbpalette sorgt für eine kohärente Gesamtgestaltung und hilft dabei, unnötige zusätzliche Elemente zu vermeiden, die die architektonische Lesbarkeit beeinträchtigen könnten, so dass ihre Wirkung in allen Räumen voll zur Geltung kommt.

Welches Nachhaltigkeitskonzept verfolgt Espace Mayenne?

Yves Arnod: Sport- und Veranstaltungshallen zeichnen sich durch eine sehr geringe Anzahl von Betriebsstunden pro Jahr aus. Ziel war es daher, ein Gebäude zu entwerfen, dass bei Nichtnutzung einen sehr geringen Energiebedarf aufweist. Wir haben uns bemüht, den Heiz- und Kühlbedarf zu begrenzen und mit Energierückgewinnung zu arbeiten. Wir haben uns für ein kompaktes Volumen entschieden, bei dem Raum und Aufteilung optimiert sind. Die Fassade und das Dach wurden von außen gut isoliert, um den Energieverlust

zu begrenzen. Außerdem haben wir das natürliche Gefälle am Standort genutzt, um einen Teil des Gebäudes in den Boden einzugraben und so den Wärmeverlust erheblich zu verringern.

Heizung und Warmwasserbereitung erfolgen über das Fernwärmenetz, das hauptsächlich mit Energierückgewinnung aus Ersatzbrennstoffen arbeitet. In der kleineren Sporthalle sorgt eine spezielle natürliche Belüftung für angenehme Bedingungen im Sommer, in der Haupthalle kommt eine adiabatische Kühlung zum Einsatz. Im Rahmen einer Studie wurden Lösungen entwickelt, um den Komfort in den verschiedenen Räumen zu optimieren, gleichzeitig den Kühlbedarf zu begrenzen und die Aufheizung an der Südfassade zu minimieren. Für die Begrenzung des beleuchtungsbezogenen Energiebedarfs wurden drei zentrale Lösungen umgesetzt: natürliche Belichtung hauptsächlich über die Verkehrsflächen, Oberlichter im Dach der kleineren Halle und kompakte Abmessungen des Gesamtkomplexes zur Minimierung des Platzbedarfs im Außenraum.

35 sb 1/2023
Foto: Conseil Departementale de La Mayenne

Standort

Molenbeek-Saint-Jean, Belgien

Bauherr / Betreiber

Stadt Molenbeek-Saint-Jean

Architekten

BOGDAN & VAN BROECK

BE – 1000 Brüssel www.bogdanvanbroeck.com

Autor

BOGDAN & VAN BROECK

Fotos

Laurian Ghinitoiu

Jeroen Verrecht

Offizielle Eröffnung 2021

Baukosten circa 7 Millionen EUR

INTELLIGENTE GEBÄUDEHÜLLE, WENIG TECHNIK

AMAL AMJAHID - GEMEINDEZENTRUM IN MOLENBEEK

BOGDAN & VAN BROECK realisierten mit dem Projekt „Amal Amjahid“ eine öffentliche Mehrzweckanlage am Kanal im Brüsseler Stadtbezirk Molenbeek. Die Anlage entstand mithilfe eines partizipativen Prozesses und umfasst eine Sporthalle, einen Boxclub und eine Kindertagesstätte, die über gemeinsam genutzte Außenbereiche miteinander verbunden sind. Der Entwurf wurde in Zusammenarbeit mit den verschiedenen Interessengruppen

– Behörden, künftigen Nutzern und Anwohnern – mehrfach überarbeitet und angepasst. Namensgeberin der neuen Anlage ist die junge Amal Amjahid, eine Kampfsportlerin, die Belgien und Molenbeek bei zahlreichen internationalen Wettkämpfen vertritt.

Das Amal Amjahid-Gemeindezentrum bot die einzigartige Gelegenheit, das Kanalufer mit den angrenzenden Wohngebieten von Molenbeek zu verbinden. Die Anlage ist in das dichte Stadtgefüge eingebettet, das auch verschiedene Gemeinschaftsund Bildungseinrichtungen umfasst. Besonderes Merkmal ist das gelungene Nebeneinander von Gärten und Innenhöfen entlang der Petite Senne.

Die Sporthalle wurde auf den unteren Gebäudeebenen angeordnet, um einen einfachen Zugang zu gewährleisten und die Sichtbarkeit von der Straße zu optimieren. Die Flächen für den Kampfsport und die Kita wurden darüber gestapelt. Trotz der hieraus resultierenden Anforderungen an das Tragwerk – denn der natürliche Ort für die große leere Halle wäre angesichts einer

36 sb 1/2023

optimalen Lastverteilung auf den oberen Gebäudeebenen gewesen – wurde mithilfe der gewählten Anordnung gewährleistet, dass alle Funktionsbereiche natürlich belichtet werden können.

Großzügige Arkaden

Die Galerie des Géants ist ein großer Eingangsbereich, der sich vom Kanal bis zur Rue des Ateliers erstreckt und die unterschiedlichen Funktionsbereiche der Anlage erschließt. Seine Position wird durch großzügige Arkaden hervorgehoben, die das Kanalufer mit der Petite Senne verbinden. Die Arkaden haben eine wichtige konstruktive Funktion: Sie bilden die Basis für vier große Metallträger, auf denen die gestapelten Funktionsbereiche der Obergeschosse ruhen.

sb 1/2023

Natürliche Belichtung über Innenhof

Der Patio des Costauds bildet das Herzstück des Projekts. Er fungiert nicht nur als Verbindung zwischen den verschiedenen Funktionsbereichen, sondern erweitert diese auch in der täglichen Nutzung sowie zu besonderen Anlässen. Er bildet einen „Außenraum“, in dem man in Ruhe sitzen und die sportlichen Aktivitäten beobachten kann. An Spieltagen nimmt der Innenhof die höhere Nutzerzahl auf.

Der Patio belichtet zudem die angrenzenden Innenräume mit Tageslicht und erstreckt sich über drei Geschosshöhen. Auf den unteren Ebenen befinden sich die Mehrzweckhalle und der Boxclub, darüber liegen die Kindertagesstätte und das Büro des Hausmeisters.

Hängende Gärten für kleine Kinder

Die an die Fassadenform angepassten Jardins des Juniors bilden den Außenbereich der Kita. Die Terrassen dienen als Außenspielbereich bei gutem Wetter und beleben die Anlage.

Intelligente Gebäudehülle, wenig Technik

Der Entwurf ist ein hervorragendes Beispiel für eine Anlage, die dem Konzept „Smart Shell, Low Tech“ folgt. Sie ist energieeffizient, kommt aber ohne komplexe technische Einrichtungen aus. Manuelle Steuerung wurde einer Automatisierung vorgezogen, getreu dem Grundsatz, dass die Nutzer ihren Bedarf am besten kennen. Die Gebäudekörper sind mit einer hochdämmenden, vorgefertigten Holzbinderkonstruktion verkleidet. Ein Nachtkühlsystem ermöglicht eine natürliche Belüftung der Innenräume im Sommer und die Nutzung der thermisch wirksamen Masse des Gebäudekomplexes.

38

EIN ZENTRUM FÜR ALLE UND ALLES

WALKER SPORTS AND ABILITIES CENTRE IN THOROLD, ONTARIO

Das Walker Sports and Abilities Centre in Thorold im Herzen der kanadischen Region Niagara diente während der Canada Games 2022 als Besucherzentrum und Austragungsort der Wettbewerbe in Disziplinen wie Leichtathletik, Beachvolleyball, Box-Lacrosse, Hallenvolleyball und Ringen. Heute wird die Einrichtung von der Brock University und der breiten Öffentlichkeit genutzt. Der Sportkomplex wurde angesichts dieser Doppelfunktion flexibel und barriere frei gestaltet, um ihn sowohl für große öffentliche Veranstaltungen als auch für den Campusalltag nutzbar zu machen. Er hat sich zu einem symbolträchtigen Wahrzeichen entwickelt, dient als Beispiel für Inklusion und erfüllt als flexibler Veranstaltungsort die Anforderungen der Gemeinschaft, des studentischen Lebens und des Leistungssports.

Die drei Hauptsporthallen (Vierfachsporthalle, Arena mit 1.000 Zuschauerplätzen und Trainingshalle) sind unter Berücksichtigung der Geometrie des Eckgrundstücks in einem Dreieck angeordnet. Die Vierfachsporthalle ist das größte Einzelvolumen. Sie liegt in unmittelbarer Nähe einer Autobahn, und die Verglasung des Zwischengeschosses gibt von der Straßenseite Einblicke in den von Aktivität gefüllten Innenraum.

Die Eingänge befinden sich an den Schnittstellen der drei Haupthallen. Der Eingang über den für Feierlichkeiten geeigneten Platz im Norden und der Eingang von einem Tagesparkplatz im Süden bilden eine zentrale Nord-Süd-Achse, die sich als verbindendes Element durch den Gebäudekomplex zieht. Die drei großen Sporthallen werden über diese Achse fließend miteinander verknüpft. Beim Betreten der als Treffpunkt dienenden Lobby bieten sich den Nutzern Einblicke in alle drei Hallen.

Bauherr 2022 Canada Summer Games

Betreiber City of St. Catharines

Architekten MJMA Architecture & Design www.mjma.ca

Raimondo + Associates Architects Inc www.raimondoarchitects.com

Standort St. Catharines, Kanada
MJMA Fotos Scott Norsworthy Offizielle Eröffnung April 2022
Autor
Baukosten 95,4 Millionen CAD (66 Millionen EUR)

In der Mitte des Komplexes wurden auf zwei Ebenen Angebote für unterschiedliche Zielgruppen angeordnet, darunter ein Rehabilitationszentrum, ein Hochleistungstrainingszentrum des Canadian Sport Institute of Ontario, das Brock University Centre for Sport Capacity sowie verschiedene Verwaltungsbüros und Sitzungsräume. Diese unterschiedlichen Bereiche werden über ein zentrales Atrium mit Oberlicht erschlossen, das als primärer Knotenpunkt für die öffentlichen Wege durch das Gebäude dient.

Gefaltetes Dach verbindet unterschiedlich hohe Räume

Die Sporthallen erfordern eine jeweils unterschiedliche lichte Höhe. Sie werden unter einem großen, gefalteten Dach zusammengefasst, das zum Dachrand abfällt, um die Dachbegrünung sichtbar zu machen. Die Dachüberstände dienen

zudem der Beschattung der Außenverglasung und bilden an den beiden Haupteingängen im Norden und Süden überdachte Verkehrsflächen.

Die Innenausstattung ist robust und langlebig gestaltet. Akzentelemente sind Holzgeländer und ein Streckmetallgewebe am inneren Funktionskern.

Gemeinschaftsanlage mit menschlichem Maßstab

Die Funktion des Gebäudes als urbanes Zentrum der Canada Games mit ihrem optimistischen Blick in die Zukunft haben den Sportkomplex zu einem beliebten Treffpunkt werden lassen, der nicht nur viele Nutzer anzieht, sondern auch zu einem Symbol für die Universität und die gesamte Gemeinschaft geworden ist. Der verbindende Charakter der

42 sb 1/2023

für Veranstaltungen und tägliche Nutzung gleichermaßen konzipierten Anlage, ihre Freiräume und Straßenlandschaften sind inspiriert durch das reiche Naturerbe der NiagaraSchichtstufe.

Die Canada Summer Games 2022 dienten als Ausgangspunkt für die Idee, eine ökologisch und ökonomisch nachhaltige Gemeinschaftsanlage mit der menschlichen Dimension eines gut geplanten Stadtviertels zu errichten. Der neue Komplex soll unter anderem als Wachstumsmotor und Zentrum für den Südteil des Campus dienen. Hierzu wurden wichtige multimodale Verbindungen zwischen den angrenzenden Vierteln sowie verbesserte Fußwege zu verschiedenen Punkten auf dem Campus der Brock University, Fahrradwege, Gartenflächen, Spielplätze und Veranstaltungsräume angelegt.

Senkung des Energiebedarfs

Das sanft facettierte Dach ist mit Vegetation und weißem Kalzit bedeckt. Die großflächig eingesetzte Verglasung mit keramischer Frittestruktur zeichnet sich durch eine geringe Wärmeabgabe aus, minimiert die Aufheizung und versorgt die Hauptsporthallen mit Tageslicht. Der Energiebedarf wird zudem durch eine hocheffiziente Gebäudehülle, ein ebenso hocheffizientes HLK-System und eine Wärmerückgewinnungsanlage gesenkt, bei der das Kühlsystem mit einer Fußbodenheizung gekoppelt ist. Schließlich schützt eine begrünte Pufferzone die umliegenden Feuchtgebiete vor einem übermäßigen Regenwasserabfluss. Diese Absorptionszonen im Außenbereich, die Verkehrswege und die Straßenlandschaften lassen eine Vielfalt von Räumen entstehen, die von der umliegenden Stadt und dem reichen Naturerbe der Niagara-Schichtstufe inspiriert sind.

43 sb 1/2023 1 1 2 3 4 5 5 5 7 8 10 11 12 12 11 12 12 12 12 12 16 17 18 19 21 21 21 21 21 21 22 22 12 22 22 23 24 25 26 26 26 26 27 27 27 27 28 29 31 31 31 32 33 21 21 21 21 21 21 30 30 30 19 20 11 13 14 15 8 9 8 6 6

„BOX“ UND „TREPPE“

ERWEITERUNG DES SPORTZENTRUMS LAS ERAS IN MADRID

Die zunehmende Nachfrage nach Kletterhallen erforderte die Erweiterung des Sportzentrums Las Eras in Hoyo de Manzanares. Die neue Anlage bietet den Nutzern viele neue Möglichkeiten, bei kommunal geförderten Eintrittsgebühren sportlich aktiv zu werden. Sie wird neue Generationen von Nutzern anziehen, die das Klettern von klein auf als außerschulische Aktivität erlernen. ENKIRO GROUP sah zudem Räume für alternative, in der Region beliebte Sportarten vor, darunter Fechten, Badminton und rhythmische Gymnastik.

Standort Madrid, Spanien

Bauherr / Betreiber Stadt Madrid

Architekten

ENKIRO ES – 28023 Madrid www.enkirogroup.com

Autor

ENKIRO

Offizielle Eröffnung 2021

Fotos

IMAGEN SUBLIMINAL (Miguel de Guzman + Rocío Romero)

Bestandsgebäude (1980

2

5

Die Stadt Hoyo de Manzanares zählt 10.000 Einwohner und liegt in den Bergen nordwestlich von Madrid. Sie hat in jüngster Zeit ein erhebliches Bevölkerungswachstum verzeichnet. Aufgrund ihrer Lage inmitten der Berge ist Klettern ein beliebter Sport, für den Winter bestand Bedarf an einer IndoorKletterwand. Nach der Pandemie ist die Zahl der Anmeldungen im Sportzentrum stark angestiegen, sodass bereits eine Warteliste geführt werden musste.

Der neue Erweiterungsbau steht in direkter Verbindung zu seiner natürlichen Umgebung. Die alte Fassade wurde fortgeführt und bildet eine zweite, facettierte Hülle, die den Neubau umschließt und charakterisiert. Das Ergebnis ist ein fragmentiertes Volumen, das durch seine Bewegung einen neuen öffentlichen Raum schafft und das Image des alten Sportzentrums aufwertet. Die dreieckige Geometrie spiegelt den Innenraum nach außen: eine Kletterwand für die Bewohner der Stadt, die untrennbar mit den Bergen verbunden ist.

Der gesamte Komplex erhielt einen neuen Haupteingang, der sich auf einem leicht erhöhten Platz befindet und über eine vollständig renovierte Promenade zugänglich ist. Dieser

7

8

9

Platz dient als neuer Treffpunkt für Sportler und Anwohner. Der Haupteingang führt in eine helle, große Eingangshalle mit doppelter Raumhöhe, die über die Hauptfassade und ein langgestrecktes Oberlicht kontinuierlich belichtet wird.

Verbindung zwischen Alt und Neu

Der neue Anlagenteil gliedert sich in zwei Elemente: die „Box“ und die „Treppe“.

Die „Box“ ist ein freistehendes Volumen mit industriellem Charakter auf zwei Ebenen. Die Innenwände sind mit OSBPlatten verkleidet. Im Erdgeschoss befinden sich Umkleiden und zwei Mehrzweckräume. Der größere misst etwa 130 m² (mit einer Länge von über 12 m) und wird für Fechten verwendet. Im ersten Stock wurden ein Spinningraum (100 m²) und ein Fitnessstudio (300 m²) angeordnet. Die Cafeteria ist direkt mit dem neuen urbanen Außenbereich verbunden.

Die Haupttreppe dient als Verbindung zwischen dem alten Sportzentrum und dem Erweiterungsbau. Sie wurde an der massiven Betonwand des alten Vorplatzes angeordnet.

46 sb 1/2023
und Erweiterung von 2000)
Sporthalle
1
Umkleiden
Erweiterung
Haupteingang
Cafeteria
2022
3
4
„Box“ (Mehrzwecknutzung)
6 „Treppe”
Umkleiden
(Fechten)
„Box”
Kletterhalle 1 2 3 5 4 6 9 Grundriss 8 7

Einige Öffnungen wurden strategisch so platziert, dass sie als „Innenfenster“ fungieren, eine direkte visuelle Verbindung zwischen Alt und Neu schaffen und so die Anlage zu einem homogenen Ganzen zusammenführen. Unter der Haupttreppe wurde ein großer Lagerraum geschaffen.

Die Kletterwand ist teilweise in den Boden eingegraben und lugt am Ende des Korridors hervor. Sie wurde in Zusammenarbeit mit lokalen Kletterern entworfen und nutzt die alte Halle als Stützwand. Der Raum verliert dank einer Reihe dreieckiger Spannbinder in Richtung der Boulderwand allmählich an Höhe, bis er die übliche Deckenhöhe erreicht.

Metallgewebe als verbindendes Element

Der Erweiterungsbau ist von einer mikroperforierten Gebäudehülle umgeben, die aus der bestehenden Metallfassade herauswächst und sich an die Geometrie des Neubaus anpasst. Dank der neuen Hülle wird der Gesamtkomplex als ein einheitliches Ganzes wahrgenommen. Sie dient sowohl als Filter für die Sonneneinstrahlung auf der Südseite als auch als Schutz gegen externe Einflüsse.

Dank des gewählten durchlässigen Materials entsteht ein transparenter Gebäudekörper, in dem man von innen „sehen kann, ohne gesehen zu werden“ mit einer Fassade, die je nach Tageszeit mehr oder weniger in den Hintergrund tritt.

47 sb 1/2023

Standort

Hartmannsdorf, Deutschland

Bauherr / Betreiber

Gemeinde Hartmannsdorf

Architekten Bauconzept®

Planungsgesellschaft mbH

DE – 09350 Lichtenstein/Sa. www.bauconzept.com

Autorin

Vivien Berthold

Fotos

Henry Richter

Offizielle Eröffnung

Januar 2023

Baukosten

4,4 Millionen EUR

NEUES ZUHAUSE FÜR DEN NACHWUCHSSPORT

ZWEIFELD -SPORTHALLE IN HARTMANNSDORF

Im Jahr 2017 wurde die Bauconzept® Planungsgesellschaft mbH von der Gemeinde Hartmannsdorf mit der Planung einer Zweifeld-Sporthalle beauftragt, wobei neben der Architektur auch Tragwerksplanung, Bauphysik und der Brandschutz zu berücksichtigen waren. Im April 2020 fiel schließlich der Startschuss für den Bau. Nach 33 Monaten Bauzeit und einigen pandemiebedingten Unterbrechungen entstand am Standort Carl-KirchhofStraße ein modernes, nutzerorientiertes und funktionales Sportzentrum, welches seit Anfang 2023 das neue Zuhause für den Schul- und Vereinssport der Gemeinde bildet.

Der Neubau gliedert sich in zwei Baukörper – die Sporthalle und den Funktionstrakt, welcher den Hallenbereich dreiseitig umschließt. Zentrale Rolle übernimmt dabei das Foyer. Es bildet das verbindende Element zwischen Umkleideräumen, Zugang zu den Zuschauertribünen, Sporthalle und dem Seminarraum. Dieser soll insbesondere durch Schulkassen und Vereine genutzt werden und steht gleichermaßen für kleine Besprechungen und Veranstaltungen zur Verfügung.

Vitalisierende Farbgebung

Drei bodentiefe Verglasungen schaffen Blickbeziehungen zwischen Seminarraum und Eingangsbereich der Halle und bieten darüber hinaus Repräsentationsfläche für Auszeichnungen. Durch die Integration von LED-Deckenleuchten wird der Raum effektvoll ausgeleuchtet und unterstreicht den modernen, stilvollen Charakter der Sporthalle. Die lebhafte Farbgebung der Funktionsräume erzeugt zusätzlich einen starken

48 sb 1/2023

Wiedererkennungswert und wirkt vitalisierend auf die Besucher.

Vom Eingangsbereich gelangen die Sportlerinnen und Sportler über den zentralen Erschließungsflur entlang der Sporthallenlängsseite zu den vier angeordneten Umkleiden. Die Schüler- und Sportlerumkleiden sind mit Garderobensitzbänken und verdeckten Hakenleisten ausgestattet. Zu je zwei Umkleiden sind Duschräume mit jeweils sechs Duschanlagen, zwei Waschtischen und einem WC zugeordnet. Die Umkleidebereiche wurden in einem leuchtenden Grün und Türkis realisiert und setzen so gekonnt Motivationsimpulse. Eine umlaufende Lichtleiste sorgt außerdem für Behaglichkeit und Wohlfühlcharakter.

Eine der Umkleiden wurde zudem als integrierte barrierefreie Umkleide ausgeführt. Ein behindertengerechtes WC, zwei Lehrerumkleiden, die Hausanschlussräume sowie der Erste-Hilfe-Raum und ein Stuhllager

sb 1/2023

schließen sich den Schülerumkleiden orientierungsfreundlich an. Die Sanitärräume wurden – wie auch das Foyer – in anthrazitfarbenen Fliesen ausgeführt und nehmen sich so stark zurück.

Sowohl im Außenbereich als auch im Foyer wurden ausreichend Sauberlaufzonen angeordnet, um den Schmutzeintrag in die Halle zu minimieren. Am Ende des Stiefelgangs wurde die Technikzentrale der Turnhalle mit den Lüftungsanlagen, der Hausanschlussstation für Fernwärme und Warmwasserbereitung sowie den Schaltschränken der Gebäudeautomation und der Elektrotechnik angeordnet.

Überzeugendes Angebot für Mannschaftssportarten

Die Hallenfläche der Sporthalle hat eine Grundfläche von 1.120 m² und verfügt über eine nutzbare Fläche von 22 x 45 m. Somit ist sie gemäß DIN 18032 als Zweifeld-Sporthalle einzuordnen. Besonderheit hierbei ist die 2/3 Unterteilung der Hallenfläche, welche insbesondere für Veranstaltungen und Events genutzt werden kann. Insgesamt 400 Personen können hier Platz finden.

Der Sporthallenboden wurde in einem schwarzen Linoleumbelag ausgeführt, welcher von grünen, roten, weißen und blauen Spielfeldmarkierungen akzentuiert wird. Diese ermöglichen die Mannschaftssportarten Basketball, Handball, Volleyball und Badminton und schaffen eine übersichtliche Gliederung der Spielfläche. Spiel- und Sportgeräte wie Basketballdeckengeräte, Doppelsprossenwände und eine Kletterstangenanlage mit vier Stangen wurden ebenfalls installiert. Die beiden Geräteräume mit den Sportgeräten für den Schul- und Vereinssport befinden sich an den Stirnseiten der Halle und sind mit Schwingtoren ausgestattet.

Zuschauer willkommen

Ergänzt wird das Sportangebot durch zwei fest installierte Tribünenreihen mit insgesamt 120 Sitzplätzen und zwei barrierefreien Flächen für Personen mit einer Behinderung. Die untere Sitzreihe dient außerdem als Spielerbank für Basketball-, Handball- und Volleyballspiele.

Wie auch die Tribüne wurde die umlaufende Prallwand in Holz ausgeführt, wodurch eine warme, helle Atmosphäre entsteht. Unterstützt wird dies durch die verglaste Westfassade, die zum einen die Spielfläche lichtdurchflutet und zum anderen eine Verbindung nach außen zu den Außensportanlagen schafft. Ein außenliegender Sonnenschutz sorgt für die blendfreie Nutzung der Sporthalle und stellt gleichzeitig sicher, dass sich der Hallenraum nicht zu stark erhitzt.

Die Außenhaut der Sporthalle wurde aus Stahlbetonwänden und einer Dachkonstruktion aus Stahlfachwerkbindern errichtet. Das Funktionsgebäude hingegen wurde als Mauerwerksbau ausgeführt. Die Sporthalle erhielt zudem eine vorgehängte Alublech-Fassade; für den Anbau wurden Wärmedämmverbundsysteme gewählt.

Außensportanlagen ergänzen das Angebot

Die Sporthalle wird durch einen Vorplatz mit Sitzmöglichkeiten und angegliederten Fahrradstellflächen erschlossen. Die Außensportanlagen nehmen den südwestlichen Grundstücksteil ein und werden durch umlaufende Wege mit der Sporthalle verbunden. Wesentliche Teilbereiche der Außensportflächen stellen ein Kleinspielfeld, eine Laufbahn mit integrierter Weitsprunganlage sowie eine Kugelstoßanlage dar. Die Fertigstellung erfolgt voraussichtlich im Frühjahr 2023.

Standort

Bangkok, Thailand

Bauherr / Betreiber

Cerebral Palsy Sports Association ofThailand

Architekten pbm

TH – 10250 Bangkok www.pbm.co.th

Autor pbm

Fotos ©yamastudio

Offizielle Eröffnung

TRAININGSANLAGE

FÜR DEN PARASPORT

BOCCIA-TRAININGSZENTRUM IN BANGKOK

Boccia ist eine der Sportarten, in denen thailändische Athletinnen und Athleten bei den Paralympischen Spielen regelmäßig brillieren und Medaillen nach Hause bringen. Das nationale Boccia-Trainingszentrum in Bangkok steht unter der Leitung des thailändischen Sportverbands für Menschen mit Zerebralparese. Ziel des multidisziplinären Architekturbüros pbm aus Bangkok war es, die Anlage zum effizientesten und benutzerfreundlichsten Trainingszentrum für Parasportler des Landes zu machen.

Das Leitmotiv „Schönheit der Unvollkommenheit“ bildet die Grundlage für den Projektentwurf, der sich an der geometrischen Form des ungleichseitigen Dreiecks orientiert. Es ging darum, eine einzigartige Architektur zu schaffen, die durch eine dreidimensional gestaltete Fassade akzentuiert wird. Die Fassadenelemente lassen im Innen- und Außenraum ein interessantes Licht- und Schattenspiel entstehen, das sich im Tagesverlauf stetig verändert. Die Architektur zelebriert die aus Un-

vollkommenheit erwachsende Schönheit und nimmt damit Bezug auf die Schönheit der Leistung der Boccia-Athletinnen und -Athleten.

Der Schwerpunkt des Planungskonzepts lag auf einem barrierefreien Zugang der Anlage für die zentrale Nutzergruppe: Menschen mit einer Behinderung, die Rollstühle benutzen. Zentrale Ausstattungselemente sind Rampen und andere speziell für Menschen mit einer Behinderung konzipierte

52 sb 1/2023
2022

Einrichtungen, die zur aktiven Teilhabe motivieren. Im Training können sich die Sportlerinnen und Sportler auf Wettkämpfe vorbereiten und Fähigkeiten weiterentwickeln, die für sie auch im sonstigen Lebensalltag hilfreich sind.

Große Rampenhalle

Die Rampen wurden zum zentralen Gestaltungsmerkmal des Gebäudes entwickelt und im augenfälligsten Teil des Trainingszentrums angeordnet. Mit ihren gefälligen Proportionen und ihrer benutzerfreundlichen Neigung verkörpern die Rampen die Identität dieser speziell gestalteten Anlage, mit der die Lebensqualität, das Selbstbewusstsein und das Zugehörigkeitsgefühl aller Nutzer verbessert werden sollen.

Die Gestaltung des Gebäudes folgt den Grundsätzen des universellen Designs. Es spiegelt die Schönheit der Unvollkommenheit wider und vermittelt potenziellen Nutzern und Besuchern ein positives Bild des Sports.

Als umfassender Leitgedanke dient das Ziel, das Boccia-Trainingszentrum zu einem Ort werden zu lassen, an dem die thailändischen Parasportlerinnen und -sportler gefördert und individuell darin bestärkt werden, sich als stolzes Mitglied der Gesellschaft wahrzunehmen. Die Architektur trägt dazu bei, dies zu vermitteln. Passanten oder Besucher, die die Möglichkeit haben, die Anlage zu nutzen, werden mit neuen, interessanten Erfahrungen konfrontiert. Dies macht das Zentrum zu sehr viel mehr als einer simplen Trainingsanlage.

53 sb 1/2023

Standort Münster, Deutschland

Bauherr / Betreiber

Shotokan Karate Dojo Münster e.V.

Architekten htarchitektur

Henrike Thiemann Architekten BDA DE – 48155 Münster www.htarchitektur.de

Autor htarchitektur

Fotos

Roland Borgmann

Offizielle Eröffnung Mai 2021

ATMOSPHÄRISCHER ORT

FÜR TRAINING, BEGEGNUNG UND TEEZEREMONIEN

SHOTOKAN KARATE DOJO IN MÜNSTER

Angelehnt an die Materialität und Komposition traditioneller japanischer Häuser gliedert das Tragwerk rhythmisch den Innenraum des Gebäudes. Henrike Thiemann Architekten (htarchitektur) wählten Holz als prägendes Material für die räumliche Atmosphäre: als Tragsystem der Halle, bei Fenstern und Einbauten.

Das Karate Dojo wurde als ergänzender Baustein im Bereich der Sportanlagen am Mauritz-LindenWeg vom Verein Shotokan Karate-Dojo Münster mit Unterstützung der Stadt Münster realisiert. Angeordnet in einem Grünstreifen mit markantem Baumbestand bildet der hohe Baukörper der Trainingshalle den räumlichen Abschluss der Sportstätte.

Mit dem Durchschreiten des TORIS, eines symbolischen Durchgangs in japanischer Tradition – hier abstrakt als akzentuierte Öffnung in der vorgelagerten Holz-Lamellenfassade – wird das Dojo betreten. Großformatige Innenverglasungen zwischen Aufenthalt und Halle ermöglichen

einen direkten Blick zu den trainierenden Karateka. Durch die Schallschutzverglasungen ergänzen sich der zentrale Wartebereich mit Treffpunktcharakter und die Sportfläche synergetisch. Ein Trennvorhang teilt die Halle in zwei Trainingszonen und schafft einen Mehrwert durch flexible Nutzungsoptionen. Zoniert durch eine roh belassene Betonwand gliedern sich im Westen Sanitärbereiche mit Umkleiden, Duschen und Sauna an. Auf der Südseite des Gebäudes bietet der Multifunktionsraum einen Ort für Meditation, Yoga und Teezeremonien. Die vorgelagerten Holzlamellen dienen gleichzeitig als Sonnenschutz und schaffen ein atmosphärisches Schattenspiel im Innenraum mit Blickbezug ins Grüne.

54 sb 1/2023

Die natürlichen Materialien und das Zusammenspiel aus Licht und Schatten erinnern an traditionelle japanische Häuser und vermitteln einen Bezug zur kulturellen Herkunft der Kampfkunst Karate.

Natur und Nachhaltigkeit im Fokus

Das planerische Grundkonzept der Baukörper bezieht sich auf den gewachsenen Baumbestand und macht sie zu einem wichtigen Teil des Entwurfs auf dem Grundstück. Sowohl der Trainings- als auch der Aufenthaltsbereich richten ihren Ausblick auf die mächtigen Rotbuchen und Kastanien in der direkten Nachbarschaft.

Um eine möglichst nachhaltige und einfache Konstruktion zu erhalten, wurde für die Halle eine Holzhybriddachkonstruktion in Kombination mit einer Massivbauweise in Kalksandstein-Mauerwerk mit einzelnen tragenden Stahlbetonelementen gewählt. Die Dachflächen der niedrigen Bauteile sind mit einer Sichtbeton-Filigrankonstruktion erstellt, die die höheren Lasten des Gründachs aufnimmt.

Holzlamellen ermöglichen einfachen Austausch

Die funktionale Prallwand-Verkleidung aus heimischer Weißtanne in der Trainingshalle sorgt gleichzeitig für eine gute Akustik und ein natürliches Raumklima. Die rhythmische, vertikale Profilierung der Holzverkleidung nimmt Bezug zur

Linearität der dunklen Außenfassade und wird zudem an zentralen Punkten vom Mobiliar aufgegriffen.

Als wetterbeständige Hülle schützt eine hinterlüftete Vorhangfassade mit dunkler Metallbekleidung den Baukörper. Die Fassade aus beschichteten Aluminiumblechen ist recyclebar und lässt eine lange Nutzungsdauer mit geringem Wartungsbedarf erwarten. Ergänzt wird die Blechfassade im Eingangsbereich durch Holzelemente: neben dem atmosphärischen Charakter der Holzlamellen ist so auch ein einfacher Austausch von Einzelelementen in diesen Bereichen intensiver Nutzung möglich.

Fußbodenheizung für Barfußsport

Das Gebäude wird über Fernwärme versorgt. Die Halle wird über Deckenstrahlplatten beheizt. Um dem Barfußsport zu entsprechen werden die Gemeinschafts- und Sozialbereiche über eine Fußbodenheizung beheizt. Die natürliche Belüftung der Halle erfolgt mittels Querlüftung im Bereich der Oberlichter. Innenliegende Räume sowie Sanitär- und Duschbereiche sind zusätzlich technisch be- und entlüftet. Das Gründach sorgt für eine langlebige Dachkonstruktion und eine nachhaltige Integration des Gebäudes in den Regenwasserhaushalt. Zusätzliche PV-Elemente können im nächsten Ausbauschritt die Primärenergie Bilanz nachhaltig ergänzen.

55 sb 1/2023

Standort

Frankfurt am Main, Deutschland

Bauherr / Betreiber

Stadt Frankfurt am Main

Architekten

Trapez Architektur GmbH

DE – 20097 Hamburg www.trapez-architektur.de

Bodenbelag

Gerflor Mipolam GmbH

Autor

Trapez Architektur

Fotos

Meike Hansen, Archimage

Offizielle Eröffnung Februar 2021

Baukosten

circa 4,2 Millionen EUR

UNTEN SPORT, OBEN PAUSE

SPORTHALLE DER SCHILLERSCHULE IN FRANKFURT AM MAIN

Das Gymnasium Schillerschule liegt inmitten des stark verdichteten Frankfurter Stadtteils Sachsenhausen. Mit einer Sporthalle, die zur Hälfte im Erdreich verschwindet und ein begehbares Dach anbietet, antwortete Trapez Architektur auf die beengte Platzsituation der Schule. Wie ein kleines Goldstück inmitten des Schulhofs emanzipiert sich die Sporthalle als besondere Zugabe.

Schon bei der Sanierung und Erweiterung des denkmalgeschützten Bestandsgebäudes wurde deutlich, dass eine weitere Sporthalle auf dem eigenen Grundstück dem Schulhof große Teile der Fläche wegnehmen würde. Die innerstädtische beengte Lage gab eigentlich keinen Raum für einen weiteren Bau her.

Warum also nicht die überbaute Fläche weiterhin nutzen und den Schülerinnen und Schülern einen

Ort zurückgeben, an dem sie chillen, spielen und lernen können? So ist eine abgesenkte Sporthalle mit einem begehbaren Dach entstanden, das die überbauten Flächen kompensiert.

Rund 600 m² neue Pausenfläche

Über Treppen und Rampen entwickelt sich das Dach vom Schulhofniveau zur vielfältigen Aufenthaltsfläche und bietet viele Spiel-, Bewegungsund Verweilmöglichkeiten. Damit kompensiert der

56 sb 1/2023

Neubau die wegfallende Fläche, die für den Bau der neuen Einfeldhalle benötigt wurde, und wertet die nutzbare Schulhoffläche auch noch auf. Es ist eine bewegte Pausenlandschaft entstanden, die einen Ort zum Erholen, Spielen und Bewegen schafft, und zugleich als grünes Klassenzimmer genutzt werden kann. Mit goldfarbenen Kupferschindeln verkleidet ist ein kleines „Goldstück“ mitten auf dem Schulhof entstanden.

Über die Galerie auf Erdgeschossniveau öffnet sich die Halle zum Eingangsbereich. Das umlaufende Fensterband lässt viel Tageslicht hinein und verbindet innen und außen. Der verglaste Erdgeschossbereich lässt Ein- und Ausblicke zu und macht ebenso wie das nutzbare Dach die Sporthalle

zum integrierten Bestandteil des Schulhofs. Ein Aufzug macht den Schulhof barrierefrei.

Pflegeleichte Fassade

Der Neubau ist als Passivhaus konstruiert, um dem Anspruch der Stadt Frankfurt an die Nachhaltigkeit des Sporthallenbaus gerecht zu werden. Die Fassade aus 100 % recyclingfähigem Kupferblech ist zudem langlebig und pflegeleicht in der Wartung. Die goldene Farbe der Schindeln verleiht dem Gebäude einen warmen und hochwertigen Charakter. Gleichzeitig zeugt sie von einer Wertschätzung an die Nutzer*innen und schafft eine behagliche Atmosphäre auf dem Schulhof. Die Zeit verändert das anfangs glänzende Gold zu einem bräunlichen Ton, behält dabei jedoch seinen angenehmen Charakter.

57 sb 1/2023

KOMBINATION VON WÄRME UND LICHT

SPORTZENTRUM NEUENHAUS

Im Juni 2022 fiel der offizielle Startschuss für die Nutzung der neuen Arena. Das Sportzentrum mit insgesamt fünf Feldern wurde vom Landkreis Grafschaft Bentheim und der Samtgemeinde Neuenhaus errichtet. Zur optimalen Temperierung der beiden Hallen entschieden sich die Verantwortlichen für eine Deckenstrahlheizung mit integrierten LED-Leuchten der RMBH GmbH aus Herrieden.

Wettbewerb für Neubau

Das interkommunale Sportzentrum wurde über einen europaweit ausgelobten ÖPP-Wettbewerb (öffentlich-private Partnerschaft) realisiert. Die Büter-Bau GmbH als Generalunternehmer und das Architekturbüro Schröder Wenning konnten ihn für sich entscheiden. Rund zehn Millionen Euro umfasste das Budget, das der an der niederländischen Grenze gelegene Landkreis Grafschaft Bentheim und die Samtgemeinde Neuenhaus für das Bauvorhaben investierte. Mit der symbolischen Schlüsselübergabe Ende Juni 2022 konnte das Projekt offiziell abgeschlossen werden. In Betrieb ist das barrierefreie Sportzentrum, das nach dem Flüsschen Dinkel und seinem zweigliedrigen Aufbau „DinkelDuo“ getauft wurde, bereits seit Dezember 2021. Die umliegenden Schulen und Vereine konnten sich so bereits von der Qualität des Neubaus überzeugen. Der Komplex war nach nur 18 Monaten Bauzeit fertiggestellt, wobei sowohl der Zeit- als auch der Kostenrahmen eingehalten wurden.

Planungen für wenig Sichtbarkeit

Auf den ersten Blick kommt das Sportzentrum aus 3-Feldund 2-Feld-Halle unspektakulär daher. Das liegt daran, dass sich die beiden Hallenteile mit ihren Sportfeldern rund 3,25 m unter dem Geländeniveau befinden. Durch diesen architektonischen Kniff entstand viel Raum, aber keine im Verhältnis

am städtebaulichen Umfeld gemessene Überdimensionierung. Große Fensterflächen, die bei Bedarf gegen zu starke Einstrahlung schattiert werden können, prägen im Wechsel mit Klinkerabschnitten den Baukörper außen.

Der größte Anteil entfällt auf die beiden Hallen. Sie sind längsseits mit einem ebenerdig angeordneten Zwischenbau verbunden. Hier befindet sich die Tribüne mit fast 200 Plätzen, die zur großen 3-Feld-Halle ausgerichtet ist, sowie eine Fläche zur 2-Feld-Halle. Durch die zugängliche Struktur – beide Bereiche lassen sich voll einsehen – gelingt eine betont offene Mitte. Bis zu 460 Besucher finden bei sportlichen Veranstaltungen Platz. Für die Vereine ist von besonderer Bedeutung, dass das Sportzentrum für fast alle Sportarten wettkampftauglich ist.

Die größere Halle mit drei abtrennbaren Feldern weist 45 x 27 m (Länge x Breite) auf, die Höhe beträgt im Mittel circa 7,25 m über dem Geländeniveau. Hier fand bereits ein Handballspiel der Zweitliga-Mannschaft Nordhorn-Lingen gegen den niederländischen Erstligisten H.V. Hurry Up Zwartemeer statt. Die 2-Feld-Halle von 45 x 22 m (Länge x Breite) weist im Mittel eine Höhe von circa 5,50 m über dem Geländeniveau auf. Komplettiert werden die Trainingsmöglichkeiten mit einem Theorie- und einem Gymnastikraum.

58 sb 1/2023
Autorin Marion Paul Fotos RMBH GmbH, DE – 91567 Herrieden, www.rmbh.de
ANZEIGE
Foto: Landkreis Grafschaft Bentheim

Nachhaltigkeit als zentraler Anspruch

Neben der Gestaltung war die Minimierung der Umweltbelastung ein bestimmender Aspekt des Projekts. Ein Merkmal ist die komplett begrünte Dachfläche. Sie trägt dazu bei, dass die Innentemperatur im Sommer angenehm bleibt. Zudem schützt sie die Dachabdichtung und wirkt sich positiv auf die Lebensdauer der Konstruktion aus. Zwei Lüftungsanlagen mit Wärmerückgewinnung stellen gute Sportbedingungen sicher. Des Weiteren sind Nistmöglichkeiten für Vögel und Fledermäuse in die Fassade integriert.

Die Beheizung erfolgt mit einem Gas-Brennwertkessel und einem BHKW. Eine Fotovoltaik-Anlage lässt sich noch ergänzen. Das BHKW liefert 25,3 kW thermische und 11 kW elektrische Leistung. Auf diese Weise werden die Grundlast der Heizung gedeckt und die Stromkosten gesenkt. Bei Bedarf schalten sich die beiden 150-kW-Gaskessel zu. Hinsichtlich der Wärmeverteilung schloss die Ausschreibung eine wasserführende Flächenheizung unter dem Sportboden aus, denn in einem Schadensfall entstehen enorme Folgekosten. Daher wählte man eine Deckenstrahlheizung in Verbindung mit LED-Beleuchtung.

Wärme und Licht

KSP LED Premium Akustik Sport – so heißt die in beiden Hallen eingesetzte Deckenstrahlplatte. Damit sind bereits die wesentlichen Aspekte genannt, nämlich die Kombination von Wärme und Licht in einem Element. Dabei setzt der Hersteller RMBH auf eine besondere Ausführung: Die sparsamen LED-Leuchten werden mittig platziert, sodass die wasserführenden Rohre auf beiden Seiten entlanglaufen. Die schmalen Abschnitte zwischen den Leuchten werden mit Blindblechen ausgestattet, damit sich eine vollflächige Ansicht bietet. In

diese Blindbleche lassen sich zusätzlich jederzeit Präsenzmelder, bauseitige Lautsprecher und dergleichen einbauen. Auch Ballschutzkörbe zum Schutz dieser Einbauten können problemlos und sicher angebracht werden.

Als ein wesentlicher Vorteil der Kombination gilt einerseits die Einsparung an Material und Montagezeit, andererseits die gleichmäßige Ausleuchtung der Hallen. Denn sowohl die Wärme als auch das Licht werden von den bestmöglichen Stellen her abgegeben. Die KSP LED Premium unterscheidet sich durch ihre besondere Konstruktion von anderen Deckenstrahlplatten mit LED-Beleuchtung: Sie garantiert eine thermische Entkoppelung der warmen Strahlfläche und der grundsätzlich wärmeempfindlichen LED-Leuchten. Die großen Stahlgehäuse der Leuchten führen zudem die Eigenwärme der LED-Komponenten hervorragend ab, was eine lange Lebensdauer garantiert.

LED-Leuchte KSP LED PREMIUM Die Deckenstrahlplatten mit den integrierten LED-Leuchten reichen bis über die Zuschauertribüne. Alle weiteren Fotos: RMBH

Aufgebaut sind die Grundelemente wie folgt: Das wasserführende Stahlregisterrohr in 28 x 1,5 mm wird kraftschlüssig in Aluminiumblech eingearbeitet. Durch die Wärmeleitblechstreifen werden die wasserführenden Rohre voll umschlossen, und es erfolgt ein optimaler Wärmeübergang auf die Strahlfläche. Längenausdehnungen bei Erwärmung können spannungsfrei kompensiert werden. Zur Dämmung oberhalb der Platte wird werkseitig 40 mm starke Mineralwolle mit reißfester Alukaschierung eingesetzt. Die Höhe der Platten inklusive Leuchten und Ballabweisgitter beträgt maximal 200 mm. Die Register-Kopfstücke sind bereits ab Werk an die Platten geschweißt.

Die Auslegung

Zugrunde gelegt wurde heizseits eine Leistung von 60 kW für die 3-Feld-Halle sowie 40 kW für die kleinere 2-Feld- Halle. Aufgeteilt ist dies in 6 x 30 m beziehungsweise 6 x 20 m Deckenstrahlplatten. Die Auslegungsparameter VL/RL/RT für die Anlage waren 80/60/20 ° Celsius. Jeweils zwei Strahlbänder in der großen Halle beziehungsweise drei in der kleinen Halle erwärmen und beleuchten ein Hallensegment. Diese können durch Vorhänge abgetrennt werden. Jeder Hallenteil hat zudem seine eigene Lichtsteuerung. Die verwendeten Deckenstrahlplatten haben eine Akustiklochung mit einer schallreflexionsbrechenden Sichtseite. Dadurch wird der Schall in der Halle signifikant reduziert. Die KSP LED Premium Akustik Sport sind ballwurfsicher nach DIN 18032-3. Ergänzt werden die Strahlbänder mit Ballabweisgittern, die als nicht brennbare Metallkonstruktion den Brandschutzvorgaben der Landesbauordnungen entsprechen. RMBH gewährt zehn Jahre Garantie auf die Deckenstrahlplatten.

Effiziente Beleuchtung

Die große Halle wurde mit einer durchschnittlichen Beleuchtungsstärke von 750 Lux und die kleine Halle mit 500 Lux ausgelegt. In jedem der fünf Hallenteile kann zwischen einer Tageslichtsteuerung und einer manuellen Einstellung ausgewählt werden, bei Letzterer als Festwert in den vier Stufen 150, 300, 500 oder 750 Lux. In der niedrigeren Halle und für die Tribüne kamen 66 Leuchten Lumina Flatline Sport DALI mit 128 W zum Einsatz. In der größeren und höheren Halle sind 78 Stück Lumina Sport DALI mit 150 W installiert.

In 35 der insgesamt 144 Leuchten wurde werksseitig eine bauseits gestellte Notlichtweiche verbaut. Diese Leuchten werden über die bauseitige Zentralbatterieanlage versorgt und dienen somit gleichzeitig als Notleuchten. Die Notbeleuchtung wurde so ausgelegt, dass in jedem Hallenteil auch bei geschlossenen Trennvorhängen eine Notbeleuch-

60 sb 1/2023
LED-Leuchte Lumina Sport 150W Auch die 2-Feld-Halle grenzt an den Zwischenbau, das Bindeglied zwischen den beiden Hallen.

tungsstärke von 15 Lux gewährleistet ist. Alle verwendeten Leuchten sind mit einer hochschlagfesten Scheibe aus Polycarbonat ausgestattet, auf Ballwurfsicherheit getestet sowie zertifiziert.

Zusätzlich zur Beleuchtung lieferte und programmierte RMBH eine vollautomatische, tageslicht- und präsenzabhängige DALI-Lichtsteuerung. Mit diesem System lässt sich ohne Komfortverlust die höchstmögliche Energieeinsparung erzielen. Für das „DinkelDuo“ umfasst die Ausstattung unter anderem zwei Router, zwölf Präsenzmelder, einen Tageslichtsensor und pro Halle ein komfortables Bedientableau. Auf Betreiberwunsch erfolgte zudem die Integration von bauseitigen Schlüsselschaltern und Aufbuchlesern für die Zutrittsverwaltung in die Anlage. RMBH gewährt auf die LuminaLeuchten eine Garantie von fünf Jahren. Die Leuchten sind so konzipiert, dass LED-Chips und Driver nach Zhaga-Standard leicht auszuwechseln sind. Das bedeutet eine hohe Sicherheit über die Nutzungsdauer.

Die Montage

Das Unternehmen RMBH war nicht nur für die Lieferung verantwortlich, sondern unterstützte den für alle SHK-Belange zuständigen Partner Hermann Schulten GmbH auch bei der Montage. Noch am Boden wurden die Leuchten in die Deckenstrahlelemente eingebaut und mit einer steckerfertigen Durchverkabelung versehen. Im Anschluss wurden die

Deckenstrahlplatten am Trapezblech der Dachkonstruktion befestigt. Die Montage orientierte sich an der Dachneigung, daher verlaufen die Elemente parallel zum Untergurt der Fachwerkträger. Die durchschnittliche Aufhanghöhe beträgt circa 8,30 m über dem fertigen Boden.

Die Verbindung der einzelnen DSP-Elemente erfolgte durch Pressfittings. Erst nach der Druckprüfung waren die Zwischenräume mit den Abdeckblechen zu versehen. Nach Einlegen der Dämmung über den Verbindungsstellen und dem Fixieren der Ballabweishauben war der Montageanteil der RMBH beendet. Unter Regie der Firma Schulten erfolgte der Anschluss der Deckenstrahlplatten an die Heizanlage sowie der elektrische Anschluss der Leuchten. Abschließend wurden die Programmierung und Inbetriebnahme der DALI-Anlage durchgeführt, ebenfalls eine Leistung des fränkischen Herstellers.

Positives Fazit

Die hohen Ansprüche an das Sportzentrum, sowohl baulich als auch in der technischen Ausstattung, wurden erfüllt. Schulen und Sportvereine finden im „DinkelDuo“ ideale Bedingungen. Das ausgefeilte System aus Wärme und Licht mit den KSP LED Premium Akustik Sport trägt wesentlich dazu bei. Das belegen auch die durchweg positiven Rückmeldungen der Nutzer. „Wärme und Licht sind super“, wird einhellig bestätigt. Damit können alle Baubeteiligten ein wegweisendes Projekt erfolgreich abschließen.

61 sb 1/2023
Je zwei Strahlbänder erwärmen und beleuchten ein Feld in der dreiteiligen großen Halle.

NACHHALTIGKEIT UND FUSION AUS E-SPORTS UND ECHTEM SPORT

Im schwedischen Helsingborg feierte ein europaweit einzigartiges Projekt namens FUZED im Sommer 2022 Premiere. Es war Teil der Expo H22, in dessen Rahmen die Frage diskutiert wurde, wie die Stadt der Zukunft aussehen kann. FUZED verbindet e-Sport mit analogem Sport und schafft so ein völlig neuartiges Angebot, nicht nur für Jugendliche. Die Besucher des Zentrums erspielen sich mittels physischem Training Spielzeit an den digitalen Konsolen und verbinden so e-Sports mit echtem Sport – ein neuartiges Konzept, das zu einem gesünderen Lebensstil beitragen kann.

Einen wichtigen Beitrag dazu leistete auch ASB GlassFloor. Das bayerische Unternehmen verlegte 300 m² seines ASB MultiSports Bodens und stellte einmal mehr unter Beweis, dass Zukunftsprojekte mit Sportböden nicht mehr ohne die ASB GlassFloor gedacht werden können.

Schließlich schlägt die Technik aus Glas und LED nicht nur die Brücke vom analogen zum virtuellen Sport, sondern bietet jede Menge Vorteile und sorgt für eine deutlich leichtere Refinanzierbarkeit des Gesamtprojekts, auch im kommunalen Bau. Nachhaltigkeit, Digitalisierung, gänzlich neue Trainingsund Vermarktungsmöglichkeiten, sowie eine enorme Flexibilität in der Gestaltung der gesamten Bodenfläche geben Hallenbetreibern und Architekten jede Menge Argumente

an die Hand, um sich für den sogenannten „ASB MultiSports“ zu entscheiden, der aufgrund seiner gelenkschonenden Eigenschaften auch für die Sportler einen großen Mehrwert darstellt.

Akkreditierung durch FIBA

Und so setzen immer mehr Bauherren auf die Vorzüge des Sportbodens aus Glas von ASB GlassFloor. Zumal im vergangenen Jahr eine wichtige Hürde genommen werden konnte.

Die Entscheidung des Basketball-Weltverbands FIBA im Frühjahr 2022, die Verwendung von Glasböden bei Wettbewerben der Stufe 1 zuzulassen, sorgt für zusätzlichen Rückenwind. Jetzt können auf den Böden von ASB GlassFloor sämtliche offizielle Wettbewerbe im Volleyball, Handball und Basketball durchgeführt werden.

62 sb 1/2023
Autor und Fotos ASB GlassFloor, DE – 83371 Stein an der Traun, www.asbglassfloor.com
SPORTBODEN AUS GLAS VON ASB GLASSFLOOR SETZT ERNEUT MASSSTÄBE
ANZEIGE

Das Besondere an dem Sportboden aus Glas von ASB GlassFloor: die Linien sind nicht fest auf dem Boden markiert, sondern befinden sich als LED-Linien unterhalb der Glasoberfläche. So können per Knopfdruck die unterschiedlichsten Spielfelder wie Basketball, Hockey, Handball, Badminton und Volleyball dargestellt werden, oder auch viele kleine Trainingsfelder. Dabei werden nur die Linien angezeigt, die auch wirklich gebraucht werden. Vorbei die Zeiten des großen Linien-Wirrwarrs.

Vielzwecknutzung zahlt sich aus Wenn in den Hallen oftmals Schulsport, professionelles Training, Sportevents und kulturelle Veranstaltungen unter einen Hut gebracht werden müssen, bringt diese Flexibilität den entscheidenden Vorteil. Über 70 Jahre beträgt die Haltbarkeit eines ASB GlassFloor, auf dem problemlos Schulsport am Vormittag, ein Handballspiel am Nachmittag und ein Konzert am Abend ausgetragen werden kann. Dazwischen werden lediglich am Touchscreen die Linien umgestellt und bei Bedarf der Boden feucht gewischt.

Die Vielzwecknutzung und Wirtschaftlichkeitsberechnung waren letztlich die entscheidenden Argumente, die kürzlich auch das Landratsamt Miltenberg überzeugten. Im Sommer 2023 erhält die Untermainhalle in Elsenfeld, in der der traditionsreiche Handballverein TV Großwallstadt seine Heimspiele austrägt, einen Glasboden von ASB GlassFloor. Nach 15, spätestens nach 20 Jahren hat der Hightech-Boden dank seiner wesentlich längeren Lebensdauer und der geringeren Pflegekosten die Investition wieder eingespielt.

Der zertifizierte Sportboden ist FIBA, FIVB und IHF akkreditiert und entspricht der europäischen Norm EN 14 904:2006 für flächenelastische Sportböden. Aufgrund seiner Elastizität und Beschaffenheit – unter anderem durch die auf der Glasober fläche eingebrannten Keramikpunkte - bietet er für die Gesundheit des Sportlers perfekte Voraussetzungen. Auch die Verletzungsgefahr durch Brandreibung nach einem Sturz ist wesentlich geringer. Neben dem „ASB MultiSports“ gibt es noch die zweite Bodenvariante „ASB LumiFlex“. Hier ist der gesamte Boden mit LEDs unterlegt. Daraus ergeben sich weitere Nutzungsmöglichkeiten.

63 sb 1/2023

NACHHALTIG UND EFFIZIENT ZU PERFEKT PRÄPARIERTEM EIS

SMARTES DATENMANAGEMENT MIT WM CONNECT

Zum Video!

In der LANXESS arena in Köln finden die Eishockey-Cracks der Kölner Haie selbstverständlich immer perfektes Eis vor. Dieses Selbstverständnis gründet auch auf Technologie aus Italien: WM technics liefert mit WM Connect ein System, das einen „Quantensprung“ der Effizienz und Nachhaltigkeit in der Eisbearbeitung darstellt.

Sie gehört zu den größten Multifunktionsarenen Europas, große Konzerte, wichtige Sportveranstaltungen und ulkige Karnevalsevents gehören zum Programm: Die LANXESS arena in Köln ist eine Veranstaltungsarena der Superlative. Besondere Bekanntheit kommt ihr als Austragungsort der Heimspiele des achtmaligen deutschen Eishockey-Meisters Kölner Haie zu. Und für die Besten der Besten kommt nur eines infrage: das Beste vom Besten – im Falle der Haie eine perfekt präparierte Eisfläche, auf der die Kölner jedes Jahr um den Meistertitel mitkämpfen.

WM technics: Eine Revolution kommt selten allein

In dieser Saison finden sich die Haie zwar im Mittelfeld der Tabelle wieder, doch die Saison dauert noch lange und das soll der Tatsache, dass nur das beste Eis gut genug ist, keinen Abbruch tun. Zu diesem Zweck zieht seit sechs Jahren die Eisbearbeitungsmaschine Mammoth des italienischen Herstellers WM technics elektrisch leise ihre Runden.

Eine E-Eisbearbeitungsmaschine gehört in der Branche sicherlich zu den revolutionärsten Fortschritten der letzten Jahre. Doch wer WM technics kennt, weiß, dass die Damen und Herren aus Blumau in Südtirol nicht gerne stillhalten – und schon den nächsten Meilenstein in den Startlöchern haben.

WM’s neuste Errungenschaft nennt sich WM Connect. Es bedarf wahrlich keiner Energiekrise wie der aktuellen, um sich nachdrücklicher dem eigenen Energieverbrauch zu widmen. Aber gerade diese Krise hat den Fokus auf den Energieverbrauch noch einmal vergrößert. Mit WM Connect gibt WM technics seinen Kunden ein Werkzeug in die Hand, um diesen neuen Ansprüchen im Energiemanagement gerecht zu werden.

WM Connect: Echtzeit-Daten, Kommunikationstool und E-Shop in Einem WM Connect ist zusammengefasst Daten-Tool, Kommunikationsassistent und E-Shop in Einem. Ein ausgefeiltes System, das durch Echtzeit-Datenerhebung, Over-the-Air-Fehlermeldungen und Zugang zum WM-E-Shop „WORKspace“ in Sachen Effizienz gleich drei Fliegen mit einer Klappe schlägt.

Herzstück ist die Echtzeit-Datenerhebung: Das System erfasst während jeder Eisbearbeitung Daten zum Wasserverbrauch (Liter), Stromkonsum (Ampere) und zur benötigten thermischen Energie (kWh) und bildet diese live auf dem mitgelieferten Dashboard ab. Ob Smartphone, PC, Tablet oder WMScreen – das Dashboard kann überall abgerufen werden.

64 sb 1/2023
Autor und Fotos WM GmbH, IT – 39053 Blumau, www.wm-on-ice.com
ANZEIGE

„Wir können den Ressourcenverbrauch nun nachhaltiger gestalten“

„WM Connect ist für uns eine Art Gamechanger, besonders in Anbetracht der gestiegenen Energiekosten. Mit den verfügbaren Daten und entsprechenden Feldtests können wir genau bestimmen, mit welchem Energieaufwand und Wasserverbrauch wir das perfekte Eis hinbekommen – ohne dabei Ressourcen zu verschwenden“, unterstreicht der Geschäftsführer der Arena Management GmbH, Stefan Löcher. „Damit können wir jetzt schon unser Budget entsprechend anpassen und planen. Außerdem haben wir für das Jahr 2023 eine ideale Grundlage, um die Investitionen in die verschiedenen Ressourcen gezielter zu tätigen und nachhaltiger zu wirtschaften.“

„Gezielter“ und „nachhaltiger“ sind auch die Schlagwörter für die folgenden Features von WM Connect. Widmen wir uns zunächst dem Over-the-Air-Zugriff: Durch automatische Fehlermeldungen von WM Connect sind Eismeister bezüglich Fehler im System immer auf dem Laufenden. Sobald solch eine Meldung angezeigt wird, können Betroffene sich umgehend bei den Technikern von WM technics melden, die wiederum Over-the-Air prompt erkennen, an welchen Stellschrauben gedreht werden muss.

WORKspace bietet schnellen Service Techniker und Kunde wickeln telefonisch gezielt die Problemstellung ab, und auch der Nachhaltigkeit wird Genüge getan: Die Kunden sparen sich kostenintensive Vor-Ort-Reparaturen mit einhergehenden, umweltbelastenden Transfers der Techniker.

Sollte sich dabei herausstellen, dass eine Komponente der Eismaschine ersetzt werden muss, erlaubt der Zugriff auf den WORKspace schnelles Handeln: Die Komponenten werden identifiziert, im WORKspace gesucht und gefunden, bestellt und treffen innerhalb von 24 Stunden an ihrem Bestimmungsort ein.

Verfügt eine der Maschinen mit dem klingenden Namen Shira, Mammoth oder evo² über einen Autopiloten, kann auch dieser problemlos über WM Connect gesteuert werden.

„WM Connect steht für gesteigerte Effizienz und umfängliche Nachhaltigkeit“

Für Mirko Sparber, Verkaufsleiter von WM technics, kommt das neue Tool einem Quantensprung gleich: „WM Connect ist die Schaltzentrale unserer Eisbearbeitungsmaschinen. Es hebt die Nutzerfreundlichkeit auf ein neues Level und erleichtert sowohl unseren Kunden als auch uns selbst erheblich das Leben. Genauere Budgetplanung, imminenter Service, schnelle Kommunikation: Wir wollen, dass unsere Kunden effizienter und in allen Belangen nachhaltiger arbeiten können – und das haben wir mit WM Connect geschafft.“

Darüber freut man sich mittlerweile auch in der LANXESS arena, in der WM Connect ausführlich getestet wurde und nun auch fest zum Repertoire gehört. Ganz im Sinne der Geschäftsführung in Köln, zur Freude für WM technics und besonders zum Vorteil der Cracks der Kölner Haie, die in ihrer Heimstätte nachhaltiges, perfekt präpariertes Eis für die Titeljagd vorfinden.

65 sb 1/2023

AUS FUSSBALLSTADION

WIRD HANDBALL-WM -ARENA

IHF 2023 HANDBALL-WM DER MÄNNER IN STOCKHOLM, TELE2-ARENA

Autor und Fotos NÜSSLI Gruppe, CH-8536 Hüttwilen, www.nussli.com

Für die Handball-Weltmeisterschaft der Männer 2023 verwandelte sich die Stockholmer Tele2-Arena in eine riesige Handballarena mit 22.000 Zuschauerplätzen. Mit einer temporären Tribüne schuf Eventbauspezialist NÜSSLI eine passgenaue WM-Arena mit unmittelbarem Spielfeeling im Stadion.

Wenn bei sportlichen Großereignissen wie der 28. IHF Handball-Weltmeisterschaft der Männer 2023, die in Polen und Schweden stattfand, die Austragungsstätte auf die Sportart und ihre Fans angepasst werden soll, hält NÜSSLI nachhaltige Lösungen bereit. So lassen sich bestehende Sportstätten exakt nach den Bedürfnissen des jeweiligen Sportereignisses in die perfekte Location verwandeln.

Handballarena im Fußballstadion

Schon lange vor dem Anpfiff zur Handball-WM verkündete Krister Bergström, CEO des schwedischen Organisationskomitees, online seine Vorstellung einer unvergesslichen Weltmeisterschaft und sagte: „Wir werden am Finalwochenende in Stockholm großen Wert auf die Event-Atmosphäre legen. Unser Ziel ist es, zu erreichen, dass die Welt stillsteht, wenn die Matches gespielt werden.“ Um diese Event-Atmosphäre zu schaffen, entwickelte das Projektteam von NÜSSLI Deutschland für die neun Spiele der Handball-Weltmeisterschaft am Austragungsort Stockholm eine eigene kleinere WM-Arena innerhalb des Fußballstadions Tele2-Arena. So ließ sich einerseits die bestehende Infrastruktur der Tele2-Arena für das Großereignis nutzen. Andererseits bot die Arena im Stadion

keine halb leeren Zuschauerränge aufgrund einer überdimensionierten Spielstätte, sondern genau das unmittelbare Spielerlebnis, das die Fans lieben. Live dabei sein und ganz nahe am Spielfeld das Geschehen miterleben – das ist die Handball-Weltmeisterschaft, die in Erinnerung bleibt.

Beste Sicht und nah dran Knapp zwei Wochen vor den Spielen in Stockholm begann NÜSSLI mit den Aufbauarbeiten. 26 Lkw rollten dazu nach und nach vor dem Fußballstadion im Stadtteil Johanneshov an und lieferten die insgesamt 450 Tonnen Systemmaterial. Innerhalb von nur zehn Tagen baute das Projektteam eine temporäre Zuschauertribüne mit 8.000 Sitzplätzen auf. Sie fügte sich optimal in die bestehende Tribünenanlage des Stadions ein und bildete mit deren Sitzreihen eine eigene, passgenaue Arena rund um den Handball Court. Insgesamt entstanden 22.000 Sitzplätze mit bester Sichtlinie für die Fans. Und garantiertes Nah-dran-Feeling für die neun WMSpiele. Am 25. Januar 2023 traten die Teams im Viertelfinale gegeneinander an. Am 27. Januar fanden die Halbfinal- und Qualifikations-Matches für die Plätze fünf bis acht statt. Und am 29. Januar erreichte die Stimmung in der Arena ihren

66 sb 1/2023
ANZEIGE

Höhepunkt, als sich Titelverteidiger Dänemark und Olympiasieger Frankreich schließlich im Finalspiel gegenüberstanden. Ein bekanntes Duell, das Handball vom Feinsten zeigte und mit 34:29 zum dritten Mal in Folge den Titel für Dänemark bedeutete.

Zertifiziert als „Sustainable Event“

Nicht nur die Handball-Fans verfolgten diese Weltmeisterschaft mit besonderem Interesse, sondern auch andere Sportverantwortliche und Eventveranstalter beobachteten die Spielaustragungen in Schweden. Denn: Diese HandballWM ist die erste internationale Meisterschaft des Landes und außerdem die erste internationale Handballmeisterschaft der Welt, die das Zertifikat „Sustainable Event“ erhielt. Die schwedische Organisation der Handball-WM –einschließlich ihrer fünf Austragungsorte Göteborg, Malmö, Kristianstad, Jönköping und Stockholm – erfüllte die Kriterien der Nachhaltigkeitszertifizierung von Greentime. „Die Bewegung, die wir während der Planung dieser Meisterschaft in Bezug auf die Nachhaltigkeit gesehen haben, ist einzigartig, und wir sind beeindruckt von dem, was die Organisatoren der Meisterschaft, die Städte und die Arenen

gemeinsam erreicht haben“, sagte Simon Strandvik, CEO des Unternehmens Greentime gemäß News auf der offiziellen Handball-WM-Website. Greentime unterstützt Eventveranstalter darin, ihre Veranstaltungen nachhaltiger zu gestalten.

Heute Handball-Tribüne, morgen Medaillenpodest Ebenfalls einen Beitrag zur Nachhaltigkeit leistete der Entscheid, die Infrastruktur eines bestehenden Stadions zu nutzen und temporär auf die Bedürfnisse der eigenen Veranstaltung anzupassen. Denn die Stadionbetreiber profitieren von noch mehr Nutzungsmöglichkeiten, wenn sie ihre Sportstätten flexibel und rasch für kleinere Events anpassen lassen können. Und: Das für die Tribünen und die weiteren temporären Infrastrukturen eingesetzte Material bewegt sich in einem ständigen Kreislauf über Jahre von Event zu Event. Absolut flexibel lässt sich in der Systembauweise jede Art von temporären Bauten für jede Größe von Veranstaltung planen, umsetzen und nach dem Anlass rückstandslos zurückbauen. So sind Bauelemente, die eben noch an der Handball-WM die Tribüne formten, möglicherweise schon Wochen später im Medaillenpodest eines Skiweltcuprennens im Einsatz.

67 sb 1/2023

ELITESCHULE FÜR SPORT UND FUSSBALL SETZT AUF KLIMANEUTRALITÄT

NEUBAU DER BERTOLT- BRECHT-SCHULE IN NÜRNBERG

Die Bertolt-Brecht-Schule in Nürnberg hängt nicht nur als Eliteschule für Sport und Fußball die Messlatte hoch. Mit fast 180 Millionen Euro wurde die UNESCO-Projektschule als eines der teuersten Schulneubauprojekte Bayerns realisiert: Dieses geht mit bestem Beispiel voran und setzt bis ins kleinste Detail konzeptionelle, architektonische und energetische Maßstäbe.

Im Mai 2022 wurde das Bertolt-Brecht-Schulzentrum (BBS) in Nürnberg nach einer pandemie-bedingten Bauzeit von drei Jahren eingeweiht und offiziell seiner Bestimmung übergeben. Zu dem kooperativen Schulkonzept gehören eine Mittelschule, eine Realschule sowie ein Gymnasium. 1.900 Schüler der Jahrgangsstufen 5 bis 10 und 200 Lehrkräfte bevölkern die Schule tagsüber, abends besuchen gut 800 Lernende das Abendgymnasium.

In der profilierten Eliteschule des Sports betreiben 400 Jugendliche Leistungssport in 13 verschiedenen Sportarten und verbringen bis zu 80 Stunden wöchentlich in den Räumlichkeiten. Für das Training stehen eine 10.000 m² große Sporthalle mit Drei- und Vierfachhallen inklusive Zuschauertribünen sowie diverse professionell ausgestattete Fitnessräume zur Verfügung.

Ideales Lernzuhause für 1.900 Schüler

Der Entwurf für den Neubau stammt vom Berliner Architekturbüro Ackermann + Renner. Vier gegeneinander versetzte Baukörper mit begrünten Innenhöfen werden durch den Solitärbaustein der großen Sporthalle ergänzt und differenzieren Außenanlagen und Zugangsbereiche. Auf drei

Geschossebenen sind 72 Klassenräume und Ausweichräume, 18 naturwissenschaftliche Lehrsäle mit den entsprechenden Vorbereitungs- und Lagerräumen, acht Zeichensäle, sechs Werkräume, Musikräume, zwei Lehrküchen und die Mensa, die Schulverwaltung sowie eine Aula untergebracht. Offene Bereiche mit Sitzgelegenheiten ermöglichen Kontakt- und Ruhepausen.

Die innere Erschließung erfolgt über eine 125 m lange Schulstraße. Sie ist die Lebensader der Schule, von ihr führen alle Wege ab und wieder zu ihr zurück. Das macht die Orientierung in dem 30.000 m² großen Komplex einfach. Farbige Geländer und Türen zeigen an, in welchem Bauteil man sich befindet. Mit Blindenleitsystem und Induktionsschleifen zur Hörunterstützung ist die Bertolt-Brecht-Schule auf inklusives Lernen eingerichtet. Das gesamte Gebäude einschließlich der Sport- und Außenanlagen ist barrierefrei.

Klimaneutrale Schule mit regenerativer Energienutzung Klimaneutralität spielte beim Bau der BBS eine große Rolle. Mit einer Flächenheizung sowie einer Betonkerntemperierung aus dem Hause REHAU entschieden sich die Verantwortlichen für besonders energieeffiziente Systeme zur

68 sb 1/2023
Autor REHAU mit Unterstützung von Inga Schaefer, Architektur- und Baufachjournalistin Fotos REHAU Industries, DE – 95111 Rehau, www.rehau.com
ANZEIGE

Gebäudetemperierung. Das Gebäude wurde als Niedrigstenergiegebäude konzipiert und errichtet. 24.000 m³ armierter Stahlbeton wurden verbaut und ganz bewusst wegen der enormen Speicherqualität eingesetzt. Decken und Wände sind als durchgehendes Gestaltungsmerkmal in Sichtbetonqualität SB 3 erstellt. Alle Betonbauteile sind nicht verkleidet und fungieren als thermische Pufferspeicher, die für ein ausgeglichenes Raumklima sorgen.

Der Eigenbedarf für den Hausstrom und die Wärmepumpen wird in der BBS von einer Fotovoltaik-Anlage auf den Flachdächern der Schule selbst produziert. Ihre Wärmeenergie gewinnt die Schule durch die Nutzung von Geothermie; dafür wurden 115 Erdsonden mit einer Bohrtiefe von 90 m Tiefe installiert. Das darüber geförderte Wasser weist sommers wie winters eine Temperatur von 18 bis 24 Grad Celsius auf. Über reversible Wärmepumpen wird die Erdwärme für die Raumbeheizung oder -kühlung nutzbar gemacht. So ergibt sich eine hohe Eigenbedarfsdeckung durch den Einsatz regenerativer Energien. REHAU als erfahrener Partner unterstützte im Rahmen der Ausführung bei der Montageplanung mit dem eigenen Planungscenter.

Effiziente Energieverteilung über Flächenheizungen

Die 12.000 m² Betondeckenflächen werden mithilfe von Betonkernaktivierung für die Raumtemperierung genutzt.

Die Betonkerntemperierung wurde vor Ort verlegt. Der Vorteil liegt in der Flexibilität, erfordert aber eine sorgfältige Planung und enge Abstimmung mit den anderen Gewerken. Dabei setzten die verantwortlichen Planer auf die RAUTHERM SPEED Systeme.

Auf rund 18.000 m² kamen Flächenheizungen mit dem REHAU System RAUTHERM SPEED Klett Rohr zum Einsatz – auch in den beiden Großsporthallen. Als Niedertemperatursystem mit geringen Vorlauftemperaturen lässt sich viel Energie sparen. Die Klett-Systemmatten werden einfach auf die Wärme-/Trittschalldämmung geklebt. Auf ihrer Oberseite ist ein Klettgewebe aufkaschiert und auf das mit einem Hakenband vorkonfektionierte RAUTHERM SPEED K Rohr abgestimmt. Das Heizungsrohr kann vom Installateur einfach abgerollt, mit dem Fuß auf die Matte gedrückt und sicher und rückenschonend verlegt werden. Dabei ist eine freie und flexible Rohrverlegung möglich. Auch Korrekturen können jederzeit vorgenommen werden, da sich das Rohr beliebig oft von der Matte lösen und wieder aufbringen lässt. Im Vergleich zu anderen Verlegesystemen gelingt die Montage mit dieser Klettlösung um bis zu 30 Prozent schneller. Ebenso kam in der Siebenfach-Sporthalle auf einer Fläche von rund 4.000 m² ein Trockensystem als flächenelastischer Sportboden zur Temperierung über den Fußboden zum Einsatz.

69 sb 1/2023

DAS DRITTE AUGE DER BADEMEISTER*INNEN

VAUDOISE ARENA MIT ERTRINKUNGSERKENNUNGSSYSTEM

VON POSEIDON AUSGESTATTET

Die Überwachung der verschiedenen Becken im Wassersportzentrum der Vaudoise Arena ist sehr anspruchsvoll. Für die Überwachung der 2.300 m² großen Becken (5.500 m³ Wasservolumen) sind 16 Bademeister*innen angestellt. Zusätzlich entschieden sich die Verantwortlichen für das Ertrinkungserkennungssystem der künstlichen Intelligenz von Poseidon.

Das 50-m- und das 25-m-Becken sind mit zwölf beziehungsweise sechs Multispektralkameras ausgestattet, die an der Decke des Gebäudes befestigt sind. Dies sorgt für eine bessere Sicht im zentralen Bereich und ermöglicht die automatische Lokalisierung der Positionen von beweglichen Wänden und Böden. Das Tauchbecken ist mit acht Unterwassermodulen mit jeweils zwei Kameras ausgestattet, die an den Beckenwänden in einer Tiefe von 1,80 m bis 2,20 m installiert sind. Diese Lösung ist besonders für Tiefen von mehr als 3,00 m geeignet.

KI und Video-Redundanz

Das Poseidon-System ist das Ergebnis intensiver Forschung und Entwicklung. Hinter der einfachen Bedienung des Systems verbergen sich seit 20 Jahren gesammelte Echtdaten und Spitzentechnologien, die exklusive Algorithmen mit künstlicher Intelligenz (hybride KI) kombinieren. Diese ermöglichen es Poseidon, Schwimmende in Bezug auf die Wasserober fläche genau zu lokalisieren und Anzeichen eines möglichen Ertrinkens frühzeitig zu erkennen.

Laut Thierry Boeglin, Leiter von Poseidon, ist auch die VideoRedundanz ein wichtiger Faktor für die Leistung und Sicherheit. Einsparungen bei Art und Anzahl der Kameras kommen deshalb für ihn nicht in Frage. Die Anschaffung des PoseidonSystems in der Vaudoise Arena betrug weniger als 0,35 % der Gesamtinvestition für den Bau des Wassersportzentrums.

Poseidon als führender Ausrüster der Schwimmbadbranche:

• ist die Nummer 1 unter den weltweit anerkannten Computer Vision Detection Systemen zur Ertrinkungserkennung,

• erkannte über 50 Ertrinkende,

• übertrifft die Norm ISO 20380 Anforderungen,

• ist weltweit in über 350 Schwimmbädern auf 4 Kontinenten und in 16 Ländern installiert,

• hat ein Team von 20 Ingenieuren, die sich ausschließlich der Systemleistung und -verbesserung widmen,

• war Erfinder der Technologie und ist nach wie vor unangefochtener Weltmarktführer,

• reinvestiert jedes Jahr mehr als 15 % seines Umsatzes in Forschung und Entwicklung.

70 sb 1/2023
Autor und Grafik Poseidon, FR – 92100 Boulogne, www.poseidon-tech.com
ANZEIGE

INNOVATION TRADITIONELL VERANKERT

Seit Jahren bietet Engo im Bereich der Eispflege eine große Auswahl an Equipment, welches den Arbeitsalltag des Eismeisters erleichtert. Die Vielzahl an Jahren ist auch der entscheidende Faktor für den Erfahrungsreichtum, mit dem Engo sein Portfolio beständig weiterentwickelt.

Seit 1979 baut die Firma Engo GmbH aus Vahrn im schönen Südtirol Eismaschinen sowie Bandensysteme nach Maß, und bietet seit einigen Jahren auch zahlreiches Zubehör wie zum Beispiel Eishockey-Tore, Tribünen, Bestuhlung, Video-Walls und -Cubes, Schutzmatten für Short Track und Speed Skating sowie Eis-Abdeckböden – um nur Einiges zu nennen. Die persönliche Ausgestaltung ist dem Südtiroler Unternehmen hierbei sehr wichtig, da jede Eisfläche von den einzelnen Eismeistern zwar ähnlich, aber nie zur Gänze gleich bearbeitet wird.

Luft- und Wassertemperatur sowie Feuchtigkeit spielen in der Eispflege eine große Rolle und sind immer verschieden. Engo ist darauf spezialisiert, Sensoren und mechanische Komponenten perfekt aufeinander abzustimmen, um eine perfekte Eisfläche zu kreieren. Daher findet man auf dem „Ferrari der Eismaschinen“ auch immer innovative Technologien wie das „SolidIce“-Sprühsystem, welches das traditionelle Sprührohr und Wischtuch auf herkömmlichen Eisbearbeitungsmaschinen ersetzen und gleichzeitig den Wasserverbrauch verringern kann.

Komfort als wichtiger Faktor

Er treibt die Entwicklung von Funktionen wie zum Beispiel dem höhenverstellbaren Seitenfräser an, welcher propor-

tional im Verhältnis zur Tiefe auch die Geschwindigkeit der Maschine automatisch anpasst.

Personalisierte Komplettlösungen

Die Personalisierung findet auch im Ästhetischen ihren Ausdruck. Banden und Eismaschinen können ohne Aufpreis personalisiert werden und somit den Vereinsfarben des zugehörigen Eissportteams angepasst werden. Von der Kick-Plate zum Handlauf oder vom Schneetank zur Karosserie: keine Farbkombination ist unmöglich.

Wenn von Personalisierung bei Bandensystemen die Rede ist, lässt sich vermuten, dass es sich nur um die Positionierung oder Formung einiger Komponenten handelt. Engo bietet neben der Personalisierung von einzelnen Komponenten aber auch personalisierte Komplettlösungen an. Diese Komplettlösungen nutzen innovative Technologien wie QuickAdapt für eine variable Größe der Bande auf dem Eisfeld oder Motion-LED, welche eine Bande, falls gewünscht, auch vollständig mit einer LED-Werbefläche bedeckt.

Engo versteht Innovation als Tradition und sieht Problemlösung und nachhaltiges Wirtschaften als Verpflichtung in einer variablen und sich schnell entwickelnden Welt.

71 sb 1/2023
Autor und Fotos engo GmbH, IT – 39040 Vahrn, www.engo-ice.com
ENGO ENTWICKELT EISMASCHINEN UND BANDENSYSTEME KONTINUIERLICH WEITER
ANZEIGE

INDIVIDUELLE SPORTHALLEN - LÖSUNGEN

Als international erfolgreicher Premium-Anbieter von temporären und stationären Zelt- und Hallensystemen überzeugt die RÖDER Gruppe weltweit durch Qualität und jahrzehntelange Erfahrung. Von der Konstruktion über die Produktion bis hin zur kompletten Projektabwicklung erreicht RÖDER höchste Kundenzufriedenheit.

Temporär oder permanent:

RÖDER Sporthallen für jede Disziplin

Vollklimatisierte Schwimmhallen, Tennis- oder Padelcourts, Basketball- und Eissporthallen – RÖDER bietet individuelle Raumlösungen für nahezu alle sportlichen Disziplinen. Die modularen Systemhallen sind die schnell realisierbare Wahl auch für Schulen, Kommunen und Vereine und ermöglichen zu jeder Jahreszeit eine angenehme Innenatmosphäre.

RÖDER Sporthallen sind an nahezu jedem Standort installierbar, flexibel erweiterbar und kostengünstiger als Raumlösungen in Massivbauweise. Die Ausstattung der Hallen wird individuell an die Anforderungen der jeweiligen Sportart angepasst. Abgerundet wird das Sport-Angebot mit den Reitund Longierhallen der RÖDER Marke equitent, die speziell auf die Ansprüche von Pferdebetrieben und Reitsportveranstaltungen abgestimmt sind.

Sport-Hospitality –

Exklusive Raumlösungen für jedes sportliche Event

Die Zelt- und Hallensysteme eignen sich für kleinere, regionale Veranstaltungen ebenso wie für international bekannte Großveranstaltungen mit zehn- oder hunderttausenden Besuchern. Als Premium-Anbieter von modularen Raumlösungen setzt RÖDER seit Jahrzehnten große internationale Sportveranstaltungen mit eindrucksvollen Konstruktionen in Szene: Olympische Sommer- und Winterspiele, Formel 1 Rennen weltweit, UEFA Champions League Finals, Weltmeisterschaften in vielen sportlichen Disziplinen, Reit- und Golfturniere sowie Motorsport-Events. Die imposanten RÖDER Hospitality-Raumlösungen mit Galerien, Terrassen und Glasfassaden ermöglichen den Gästen immer einen hervorragenden Blick auf das Sportgeschehen.

72 sb 1/2023
Autor und Fotos Röder Zelt- und Veranstaltungsservice GmbH, DE – 63654 Büdingen, www.roder.com, www.equitent.de
INSZENIERTE SPORTEVENTS MIT RÖDER
PERFEKT
ANZEIGE

DIMMBARES BELEUCHTUNGSKONZEPT FÜR TRAINING UND ENTSPANNUNG

4- FACH SPORTHALLE MUNICH INTERNATIONAL SCHOOL STARNBERG

In Zusammenarbeit mit der Baufirma ZUEBLIN als Generalunternehmer realisierte die ADT Informationssysteme GmbH die komplette Innenbeleuchtung der neuen 4-fach Sporthalle der Munich International School Starnberg.

Die Qualität und Leistungsfähigkeit der Lampen und Leuchten von ADT waren dem Bildungsträger aus vorangegangenen Projekten bereits bekannt; daher entschied sich die Munich International School Starnberg für einen erneuten Einsatz.

Verwendet wurde ausschließlich hochwertige LED-Beleuchtung, die sich durch Flickerfreiheit auszeichnet. In den Fluren und Technikräumen wurden LED-Röhren und abgehängte Rundpanels mit Farbwiedergabe CRI80 installiert. CRI90 kam in den Büros und den Sport- und Unterrichtsräumen im Obergeschoss, wie zum Beispiel dem Fitnessraum oder dem Tanzstudio, zum Tragen. In manchen Räumen sind die Leuchten dimmbar und als Weißwechselleuchten ausgelegt, um entsprechenden Anforderungen beim Training oder der Entspannung flexibel gerecht werden zu können.

Im Eingangs- und Aufenthaltsbereich fallen große, von der Decke abgehängte Rundleuchten (d=120cm) auf, die sich ebenso auf dem Oberrang und Flur über der Tribüne als DALI-dimmbare Leuchten wiederfinden.

Kernstück ist die Hallenbeleuchtung

81 Leuchten von ADT sorgen mit einer Leistung von je 200 W / 4000 K (circa 32.000 lm / 600 Abstrahlwinkel) für eine sehr gleichmäßige Ausleuchtung mit mehr als 800 lx im Kernbereich, die durch die verstellbaren Leuchtkörper nach Inbetriebnahme noch optimiert wurde.

Die Leuchten sind digital flickerfrei und weisen einen Farbwiedergabeindex von CRI95 auf. Sie sind möglichst blendarm und fallen auf dem Deckenspiegel optisch kaum auf. Die Fluter sind mit Meanwell DALI-Netzteilen versehen und in fünf Gruppen aufgeteilt. Sie befinden sich jeweils über einem Hallenteil. Zusammen mit der Beleuchtung über der Teleskoptribüne können diese Bereiche bei Veranstaltungen entsprechend gedimmt werden.

Fazit eines begeisterten Besuchers: „Es sieht aus, als ob in der Halle die Sonne scheint“.

73 sb 1/2023
Autor und Fotos ADT Informationssysteme GmbH, DE – 82229 Seefeld, www.adt-infosystems.com
ANZEIGE

JETZT NEU MIT NEOCARE TM OBERFLÄCHENVERGÜTUNG

DLW LINOLEUM SPORTBODENBELAG COLORETTE SPORT

Um den gestiegenen technischen Anforderungen im Markt gerecht zu werden, ist DLW Colorette Sport jetzt mit werkseitiger Oberflächenvergütung NEOCARE TM ausgestattet. Der 4 mm dicke und multifunktionale DLW Linoleum Bodenbelag Colorette Sport von Gerflor ist besonders langlebig, verschleißfest und überaus widerstandsfähig gegen mechanische Beanspruchungen.

Mit dem speziell für Sport-Linoleum entwickelten und lösemittelfreien Hochleistungsschutz wird die Performance noch weiter optimiert: NEOCARETM ist durch dreifache Vernetzung mittels Laser-UV-Technologie besonders strapazierfähig und bietet zahlreiche weitere Vorteile. Neben der hohen Kratzfestigkeit sichert die Oberflächenvergütung eine ausgezeichnete Beständigkeit gegenüber Desinfektionsmitteln und Chemikalien und ist zudem antibakteriell (EN ISO 22196) und antiviral (ISO 21702). Darüber hinaus ist der Belag einpflegefrei und besonders wirtschaftlich zu reinigen beziehungsweise instand zu halten. Bei Beschädigungen ist eine partielle oder vollflächige Ausbesserung problemlos möglich.

Ein weiteres Plus: Das Produkt ist nahezu emissionsfrei nach TÜV PROFiCERT-product Interior PREMIUM und sichert somit eine verbesserte Raumluftqualität.

Ansprechendes Design und Nachhaltigkeit für eine zeitgemäße Architektur

Die Colorette Sport Kollektion mit einer Auswahl an zwölf modernen Farben, davon vier neue, zeichnet sich durch ein besonderes Design und Farbigkeit aus. Ein stark unifarbener Grundton in Kombination mit einer dezent gesprenkelten, richtungsfreien Textur sorgt für perfekte Kaschierung von Gebrauchsspuren.

Darüber hinaus überzeugt Linoleum auch in puncto Nachhaltigkeit. Das Naturprodukt besteht zu 98 % aus natürlichen Rohstoffen wie Leinöl, Naturharz, Kalkstein, Kork- und Holzmehl sowie Farbpigmenten und wird verpresst auf Jutegewebe als Trägermaterial. Das Material verfügt zudem über einen Recyclinganteil von bis zu 40 % und ist mit dem Umweltzeichen „Blauer Engel“ zertifiziert. So ist ein angenehmes Innenraumklima garantiert. Gerflor entwickelt seine Bodenbeläge grundsätzlich unter strenger Bewertung einer Lebenszyklus-Analyse. Fasst man die ersten drei von insgesamt sechs Phasen des Lebenszyklus zusammen, wird DLW Linoleum CO2-neutral hergestellt.

Partner des Sports

Seit 30 Jahren vertrauen nationale und internationale Kunden und zahlreiche Sportverbände weltweit auf Gerflor Sportböden. DLW Colorette Sport ist offiziell vom internationalen Handballund Volleyballverband anerkannt. Dank NEOCARETM können Handballharze schnell und rückstandsfrei entfernt werden, ohne dabei die Oberfläche zu beschädigen. In Kombination mit einem flächenelastischen Unterbau absorbiert das Material die Aufprallenergie der Sportler beim Laufen, Springen oder auch bei Stürzen und sorgt so für eine optimale Gelenkschonung sowie den Schutz vor Verletzungen. DLW Colorette Sport erfüllt alle Anforderungen der DIN EN 18032-2 und DIN EN 14904.

74 sb 1/2023
Autor und Fotos Gerflor Mipolam GmbH, DE – 53840 Troisdorf, www.gerflor.de
ANZEIGE

DRAINAGEFÄHIGE OUTDOOR- MATTEN

Die Besonderheit liegt im Kern! Nach langer und intensiver Entwicklungszeit ist es soweit: Demnächst werden wir unsere brandneue und weltweit erste 100%ig wasserdurchlässige Outdoor-Fallschutzmatte für Boulderanlagen im Außenbereich im Detail vorstellen. Das möchten Sie sich nicht entgehen lassen! Die ersten Interessierten konnten sich bereits im November letzten Jahres auf der Vertical Pro in Friedrichshafen einen Eindruck machen. Sie konnten das neue Mattensystem an unserem Stand auf die Drainagefähigkeit testen sowie den Aufbau im Detail begutachten. Das Besondere an unserem neuen und revolutionären Outdoor-Mattensystem ist nicht nur die 100%ig wasserdurchlässige Gewebe-Oberschicht und -Kernstruktur, sondern auch die Recyclingfähigkeit der Kunstfasern – hier hatten wir besonders darauf Wert gelegt, ein in sich schlüssiges und für den Sportler sicheres Erlebnis ohne Qualitätseinbußen zu ermöglichen! Hinzu kommt, dass das Mattensystem sehr robust und widerstandsfähig ist, wenn es um Außentemperaturen geht. Von minus 30 Grad bis zu plus 60 Grad Celsius ist die Konstruktion beständig und kann zudem auch flammhemmend nach B1 ausgestattet werden. Bänfer Outdoor-Matten sind individuell auf Maß in verschiedenen Größen und Farbvarianten erhältlich und werden vor Ort von unseren erfahrenen Monteuren verlegt und an die Location angepasst.

Bei Interesse erhalten Sie weitere Informationen und eine Demonstration der Funktion bei unserem Projektteam. Auf Wunsch helfen wir Ihnen auch bei der Planung und Konzeption. Bänfer

www.baenfer.de

ALL- IN - ONE SPORTFLÄCHENREINIGUNG

Die Aufsitzmaschine WashMatic WM800 reinigt grob verschmutzte Oberflächen. Sie gibt Laufbahnen und Sportplätzen ihre Griffigkeit und Sportlern die Bodenhaftung zurück. Schlimme Verletzungen werden so vermieden. Die Wasserhochdruck-Reinigung eignet sich für synthetische Sportflächen wie unverfüllte Kunstrasen, Laufbahnen, Mehrzweckspielfelder oder ähnliche Flächen. Mit regelmäßiger gründlicher Tiefenreinigung werden entscheidende Vorteile erzielt:

• deutlich verlängerter Lebenszyklus der Sportanlage

• wesentlich reduziertes Verletzungsrisiko für Sporttreibende

• Wiederherstellung der Wasserdurchlässigkeit

• langanhaltend blitzsauberes Erscheinungsbild

Die Ideallösung besteht in der Verwendung der WashMatic WM800 in Kombination mit der neuesten Innovation ClearMatic CM1800.

SMG ist mit diesem Maschinen-Duo bereits weltweit erfolgreich im Einsatz. Es setzt bei der Reinigung von Kunstrasen und Sportflächen einen neuen Standard.

Inzwischen entwickelt SMG eine mobile Anhängerlösung der CM1800. Geschäftsführer Tobias Owegeser erklärt: „Die Forderung nach einer noch kompakteren Anhängerlösung für Reinigungsaufgaben ist gerade im urbanen Bereich aktueller denn je. Mit unserer effektiven Lösung lassen sich so auch innerstädtisch beispielsweise Graffitis an Gebäuden schnell, kostensparend und umweltschonend entfernen.“

SMG Sportplatzmaschinenbau GmbH

www.smg-gmbh.de

75 sb 1/2023
GmbH
Grafik: Bänfer
PROFESSIONALS & PROFILES
Foto: SMG

ACO SPORT® Kabelverteilerschächte sind die zentralen Punkte zur Stromentnahme, besonders im Innenbereich von Sportanlagen und Arenen. Mit ihnen ist eine universelle Stromverteilung bei Sport-Events und anderen Großveranstaltungen wie Konzerten möglich. Sie werden außerdem als Stromanschluss für Zeitmessungen in der Leichtathletik, für die Beleuchtung der Sportanlage und Gehwege sowie für Kommunikationsanlagen genutzt.

Je nach Einbauort kann zwischen zwei Abdeckungen (aus Stahl verzinkt) gewählt werden:

• für Pflasterbereiche mit einer oberflächenbündigen Riffelblech-Abdeckung,

• für Stadion-Innenbereiche als Wanne ausgebildet zur Beschichtung der Abdeckung mit 13 mm starkem Kunststoffbelag oder einer Kunstraseneinlage.

Im Bodenbereich ist der ACO SPORT® Kabelverteilerschacht offen. Anfallendes Tagwasser ist über eine ausreichend tiefe Sickerpackung im Schachtboden abzuleiten. Das Unterteil aus frostsicherem Polymerbeton hat allseitig Vorformungen zum Anschluss von Kabelschutzrohren und ist somit flexibel nach den Bedürfnissen vor Ort planbar und einsetzbar.

Die Steckdosen werden mittig an der im Schacht hängenden Lochblechtafel montiert und sind somit vor Schwitz- und Tagwasser geschützt. Unter der Abdeckung ist eine Kabelhalterung vorhanden. Die Grifföffnung der Abdeckung kann gleichzeitig auch als Kabeldurchführung genutzt werden.

ACO Inotec steht Architekten, Bauherren sowie Verarbeitern bei technischen Fragen als auch Fragen der Planung mit geschultem Personal zur Verfügung.

ACO Inotec GmbH

www.aco-sport.de

GEZOLAN ERWEITERT GESCHÄFTSLEITUNG

Seit dem 01. Januar 2023 ergänzt Michael Karpe die Geschäftsleitung der GEZOLAN. Als Chief Commercial Officer (CCO) wird Michael Karpe mit CEO Josep Roger die Geschäftsleitung der GEZOLAN zukünftig gemeinsam verantworten. Aus seiner langjährigen Tätigkeit bei GEZOLAN und weiteren Unternehmen aus dem Bereich der Sport- und Freizeitbodenbeläge kennt er die Branche und deren Herausforderungen bestens.

Bereits seit 2017 ist Michael Karpe als Corporate Sales Director bei der GEZOLAN tätig und hat in dieser Funktion die positive Entwicklung des Unternehmens schon in den letzten Jahren entscheidend mitgestaltet. In seiner neuen Rolle als Chief Commercial Officer wird Michael Karpe diese Arbeit kontinuierlich fortführen und vor allem die Aktivitäten in den Bereichen Sales, Customer Service, Qualitätsmanagement, Forschung und Entwicklung, Marketing und Produktmanagement bündeln. Der Fokus liegt dabei vor allem auf der Führung der dezentralen und standortübergreifenden Funktionen und Stellen des Unternehmens. Mit seiner Erfahrung und seinem Werdegang ist Michael Karpe die ideale Ergänzung zu CEO Josep Roger, der sich zukünftig stärker auf die strategische Weiterentwicklung der GEZOLAN und die Führung der beiden Produktionsstandorte in Dagmersellen (CH) und Buford (USA) fokussieren wird.

„Michael Karpe ist seit langem ein fester Bestandteil des GEZOLAN Führungsteams und hat das Unternehmen vor allem im Bereich Vertrieb professionell weiterentwickelt. Die Berufung in die Geschäftsleitung ist daher nur folgerichtig“, erklärt CEO Josep Roger die Beweggründe für die Ernennung von Michael Karpe zum CCO. Mit dem Führungsduo hat GEZOLAN die entscheidenden Weichen in der zukünftigen Ausrichtung des Unternehmens erfolgreich gestellt und ist für die kommenden Herausforderungen bestens aufgestellt. GEZOLAN

76 sb 1/2023 PROFESSIONALS & PROFILES
ACO SPORT® KABELVERTEILERSCHACHT Foto: ACO Inotec Foto: Gezolan
AG www.gezolan.com

25 JAHRE SPEED - LOCK

Holz-Speckmann feiert Jubiläum der Eigenmarke

Das Jahr 2023 markiert das 25. Jubiläum der Eigenmarke „Speed-Lock“ der Firma Holz-Speckmann GmbH & Co. KG aus Halle/ Westf. Seit der ersten Auslieferung im Jahre 1998 wurden bereits mehr als 200 Projekte realisiert und mehr als 250.000 m² des Mobilsystems ausgeliefert.

Das mobile Sport- und Abdeckboden-System wurde im eigenen Betrieb entwickelt und wird seit jeher am Standort Halle/ Westf. gefertigt. Kernstück eines jeden Mobilbodens – ob Sport- oder Abdeckboden – bilden die patentierten Aluminiumverbinder, die eine sichere und kraftschlüssige Verbindung der Einzelmodule garantieren.

Die stetige Produktentwicklung und Optimierung der Systeme sowie der hohe Qualitätsanspruch an Produkte und Service zeichnen „Speed-Lock“ aus. Die technischen und sportfunktionellen Eigenschaften überzeugen; neben den meisten Clubs der deutschen Basketball Bundesliga profitieren zudem Clubs und Venues in über 40 Ländern von den Vorteilen der Speed-Lock Systeme.

Aktuelles Projekt in Braunschweig

Seit dem Dezember 2022 spielen die Basketball Löwen Braunschweig als aktuell 13. Club in der BBL ebenfalls auf einem mobilen Parkettsportboden „Speed-Lock S20“. Die Erfüllung höchster sportfunktioneller Anforderungen und die Zertifizierung entsprechend des Basketball-Weltverbandes als System des „FIBA Competition Level 1“ sind für den professionellen Sportboden eine Selbstverständlichkeit. Der Sportboden kann mit fünf Helfern in circa 2,5 Stunden spielfertig installiert werden. Da die Linierung und Kolorierung ab Werk erfolgt, ist der Sportboden unmittelbar nach Lieferung und Erstaufbau bespielbar.

Holz-Speckmann GmbH & Co. KG www.speed-lock.com

SCHON MAL VON PARA-EISHOCKEY GEHÖRT?

Para-Eishockey (früher Sledge-Hockey) entstand vor etwa 35 Jahren in Schweden und ist seit 1994 Paralympische Disziplin. Italien nimmt seit 2005 an Europa-, Weltmeisterschaften und Paralympischen Spielen teil. Mit dabei waren von Anfang an Spieler aus Südtirol. In Italien gibt es fast keine Nachwuchsspieler. Kaltern (Prov. Bozen/Südtirol) setzte dem 2009 ein Ende. Die einzige Kindermannschaft Italiens trifft sich regelmäßig in Kaltern zum Training.

Für Menschen mit körperlicher Behinderung gilt diese Sportart als besonders anspruchsvoll und schnell. Geschicklichkeit, Kraft und Ausdauer sind die Voraussetzung, um sitzend im kleinen Metallschlitten auf zwei schmalen Kufen über das Eis zu flitzen. Einziger Antrieb sind zwei abgeschnittene Hockeyschläger, die neben dem Anschieben auch dazu benutzt werden, den Puck – wie beim üblichen Eishockey – ins Tor zu schießen.

Das große Ziel wäre, in Kaltern eine Para-Eishockey-Jugendmannschaft zu etablieren. Viele Eltern von körperlich beeinträchtigen Kindern scheuen sich vor diesem anscheinend gefährlichen Sport, jedoch ist das Gegenteil der Fall. Die Kinder sind in ihrer Hockeyausrüstung vollkommen geschützt, und die Bewegung tut ihnen allemal gut. Eine Hockeyausrüstung ist aus hochwertigem Material hergestellt, aber meist recht teuer, und die Metallschlitten werden aus Kanada importiert.

Die Geschäftsleitung WM technics ließ es sich nicht nehmen, dem Para-Eishockeyteam des SV Kaltern Rothoblaas und South Tyrol Eagles finanziell unter die Arme zu greifen. Für zwei Kinder wurde ein neuer Schlitten aus Kanada gekauft und im Rahmen einer Betriebsbesichtigung übergeben. Der Grundstein für ein langfristiges Sponsoring war gelegt.

77 sb 1/2023
Foto: Holz-Speckmann
www.wm-on-ice.com
WM GmbH
Foto: WM

FUSSBALL, HANDBALL, HOCKEY –

... und die Decke hält. In Sporthallen herrscht für gewöhnlich reges Treiben: Sei es beim Sportunterricht in Schulen, bei Trainingseinheiten von Vereinen oder sonstigen Aktivitäten und Veranstaltungen. Dabei ist nicht nur gute Akustik ausschlaggebend, sondern vor allem Sicherheit und Funktionalität.

Metalldecken mit besonderer mechanischer Beanspruchung, wie sie in Sporthallen, Schwimmbädern oder Schulen auftritt, benötigen einen Nachweis der Stoßfestigkeit. Man spricht hier von der sogenannten Ballwurfsicherheit. Bei der Ballwurfprüfung müssen die Deckensysteme auftreffenden Bällen mit einer Geschwindigkeit von bis zu 65 km/h standhalten und dürfen dabei nicht zu stark verformt oder zerstört werden – beziehungsweise dürfen sich keine Elemente lösen. Dabei lassen sich je nach Verwendungszweck verschiedene Klassen bestimmen: Gymnastikräume (Klasse 3A), Schwimmhallen (Klasse 2A) sowie Sport-, Turn- und Mehrzweckhallen (Klasse 1A).

Die Lindner Group verfügt über drei ballwurfsichere Deckensysteme, geprüft nach EN 13964 in den Klassen 1A/2A/3A:

• Einhängedecke LMD-E 213 BWS

• Streckmetalldecke, eingehängt, mit Fuge; LMD-St 213 BWS

• Streckmetalldecke, direkt befestigt; LMD-St 700 BWS

Die Deckensysteme überzeugen nicht nur in der Optik, sondern auch in der Funktion: Aufgrund der verdeckt liegenden Unterkonstruktion verfügen sie über ein homogenes Erscheinungsbild und sind zudem in Großformaten von bis zu 3.000 x 1.250 mm verfügbar. Die Deckenelemente sind einfach zu montieren und sehr flexibel: Mithilfe der einzeln bedienbaren, abklappbaren und verschiebbaren Deckenelemente lassen sich Revisionsarbeiten problemlos durchführen.

Lindner Group

www.lindner-group.com

ERSTE ACHTFACH -SPORTHALLE EUROPAS

Viele Sporthallen lassen sich unterteilen in drei, vier, fünf oder auch sechs Hallensegmente. Acht dagegen sind außergewöhnlich. In Monheim am Rhein entsteht nun die erste Achtfach-Sporthalle Europas. Mit dem Bau beginnt Totalübernehmer NÜSSLI im Frühling 2023.

Die hochmoderne Achtfach-Sporthalle wird realisiert auf dem Gelände eines Schulzentrums und ist Teil eines ganzen Maßnahmenplans zur Reorganisation des Schulstandorts. Auf zwei Ebenen werden jeweils vier Halleneinheiten angeordnet, die je nach Bedarf zusammengeschaltet werden können. Der Sportbetrieb kann so in acht einzelnen Hallensegmenten wie auch in zwei Vierfachhallen erfolgen. Für Zuschauer ist eine Tribüne mit 500 Sitzplätzen geplant.

Damit es schneller geht:

Know-how aus dem Temporärbau

Für einen geordneten Schulbetrieb sollen die Arbeiten möglichst schnell vonstattengehen. Das große Gebäude in herkömmlicher Bauweise zu realisieren hätte den Verantwortlichen zu lange gedauert. Deshalb vergab die Stadt Monheim den Auftrag zur Errichtung des komplexen Gebäudes an NÜSSLI. Architekten und Planer kennen NÜSSLI schon lange als Temporärbau-Spezialisten, dessen Know-how immer häufiger, und vor allem, wenn es schnell gehen muss, auch im Permanentbau gefragt ist. Der Schnellbaulösungsansatz von NÜSSLI und hochwertige Materialien garantieren eine nachhaltige Bauqualität für die neue Halle, in der auch in Jahrzehnten noch geturnt werden kann.

Projektleiter Mirco Amstad sagt dazu: „Eine solche Premiere ist immer etwas Besonderes. Wir freuen uns darauf und auf die Zusammenarbeit mit allen Beteiligten.“

78 sb 1/2023 PROFESSIONALS & PROFILES
Foto: Lindner Group Rendering: NÜSSLI
NÜSSLI AG www.nussli.com

UNTERNEHMENSINDEX VON A BIS Z

IAKS Mitgliedsunternehmen gehen einen Schritt voraus mit „Professionals & Profiles“. Das bringt Spitzenpositionen – bei Print und online. Berichten Sie über Ihre Innovationen und Referenzen: im sb Magazin, im IAKS Newsletter und auf unserer Webseite. Dass Ihr Unternehmenslogo als Architekt oder Ausrüster in jeder Ausgabe erscheint, ist selbstverständlich – und ein Hingucker für Ihre Geschäftspartner!

AGROB BUCHTAL

ACO Inotec GmbH 24782 Büdelsdorf, Deutschland christin.pohl@aco.com www.aco-sport.de

» Entwässerungssysteme

» Sportplatzausstattung

» Sportplatzbau

Deutsche Steinzeug Keramik GmbH 92521 Schwarzenfeld, Deutschland agrob-buchtal@deutsche-steinzeug.de www.agrob-buchtal.de

» Schwimmbadbau

» Schwimmbeckenbau, Keramik

Sekisui Alveo AG 6043 Adligenswil, Schweiz info@alveosport.com www.alveosport.com

» Elastikschichten, Fallschutzbeläge

» Sportböden für Freianlagen

» Sporthallenböden

» Sportplatzbau

» Sportrasen (Kunststoffrasen)

ANRIN GmbH

59609 Anröchte, Deutschland info@anrin.com www.anrin.com

» Entwässerungssysteme

» Sportplatzausstattung

» Sportplatzbau

Anti Wave International Pty Ltd 4067 Brisbane, QLD, Australien anti@anti.to www.anti.to

» Schwimmbadausstattung

» Schwimmbadbau

Arbeitskreis Trennvorhänge e.V. 42327 Wuppertal, Deutschland info@arbeitskreis-trennvorhaenge.de www.arbeitskreis-trennvorhaenge.de

» Hallentrennvorrichtungen

» Sporthallenausstattung

ASB GlassFloor Systembau Horst Babinsky GmbH 83371 Stein, Deutschland info@asbglassfloor.com www.asbglassfloor.com

» Mobile Sportböden, Abdecksysteme

» Multisportanlagen

» Sporthallenböden

ASPG Deutschland GmbH 40221 Düsseldorf, Deutschland info@D-aspg.de www.D-aspg.de

» Elastikschichten, Fallschutzbeläge

» Sportböden für Freianlagen

» Mobile Sportböden, Abdecksysteme

» Sporthallenböden

» Sportplatzbau

AST Eissport und Solaranlagenbau GmbH 87629 Füssen, Deutschland hannes.schretter@ast.at www.ast.at

» Eisbearbeitungsmaschinen

» Eishockeybanden

» Eissportanlagenbau

» Eissportausstattung

» Schwimmbadausstattung

79 sb 1/2023

Avant Sports Industrial Co.,Ltd 518108 Shenzhen, China sales@avant.com.cn www.avantseating.com

» Multisportanlagen

» Sportrasen (Kunststoffrasen)

» Tribünen, Bestuhlung

Bänfer GmbH Sportmanufaktur 34537 Bad Wildungen, Deutschland info@baenfer.de www.baenfer.de

» Elastikschichten, Fallschutzbeläge

» Mobile Sportböden, Abdecksysteme

» Sporthallenausstattung

» Temporäre und modulare Bauten

Gotthilf Benz Turngerätefabrik GmbH+Co KG 71350 Winnenden, Deutschland info@benz-sport.de www.benz-sport.de

» Fitnessausstattung

» Freiraumausstattung

» Schwimmbadausstattung

» Sporthallenausstattung

» Sportplatzausstattung

BERNDORF

Metall- und Bäderbau GmbH 2560 Berndorf, Österreich office@berndorf-baederbau.com www.berndorf-baederbau.com

» Schwimmbadausstattung

» Schwimmbadbau

» Schwimmbeckenbau, Edelstahl

BLOACS 50935 Köln, Deutschland info@bloacs.de www.bloacs.de

» Freiraumausstattung

» Multisportanlagen

» Sportplatzausstattung

» Spielplatzausstattung

Brinkmann + Deppen Architekten / Landschaftsarchitekten 48336 Sassenberg, Deutschland info@brinkmann-deppen.de www.brinkmann-deppen.de

» Architektur und Design

» Landschaftsarchitektur

campus GmbH

Bauten für Bildung und Sport 72764 Reutlingen, Deutschland info@campus-architektur.de www.campus-architektur.de

» Architektur und Design

Carl Stahl ARC GmbH 73079 Süßen, Deutschland xtend@carlstahl-arc.com www.carlstahl-architektur.com

» Fassaden und Gebäudehüllen

» Sicherheitssysteme, Zaunanlagen

» Spielfeldbanden, Netze

» Spielplatzausstattung

» Sportplatzausstattung

Conica AG 8207 Schaffhausen, Schweiz info@conica.com www.conica.com

» Sportböden für Freianlagen

» Sporthallenböden

» Sportplatzbau

DSGN CONCEPTS UG 48145 Münster, Deutschland info@dsgn-concepts.de www.dsgn-concepts.de

» Landschaftsplanung

80 sb 1/2023
PROFESSIONALS & PROFILES

eccos pro gmbh 42553 Velbert, Deutschland info@eccos-pro.com www.eccos-pro.com

» Eissportausstatung

» Fitnessausstattung

» Schwimmbadausstattung

» Ticketing, Zutrittssysteme

» Umkleideanlagen, Garderoben

ENGO GmbH Srl 39040 Vahrn (BZ), Italien info@engo.it www.engo.it

» Eisbearbeitungsmaschinen

» Eishockeybanden

» Eissportanlagenbau

» Eissportausstattung

» Mobile Sportböden, Abdecksysteme

Vermissen Sie Ihren Eintrag?

Möchten Sie Teil unseres Netzwerkes sein?

EOLED EU 1130 Wien, Österreich Telefon +43(0)1877 32970 info@eoled.eu www.eoled.eu

» Beleuchtungssysteme

Eurotramp-Trampoline Kurt Hack GmbH 73235 Weilheim / Teck, Deutschland eurotramp@eurotramp.com www.eurotramp.com

» Schwimmbadausstattung

» Spielplatzausstattung

» Sporthallenausstattung

» Sportplatzausstattung

GANTNER Electronic GmbH Deutschland 44894 Bochum, Deutschland info-de@gantner.com www.gantner.com

» Fitnessausstattung

» Schwimmbadausstattung

» Sporthallenausstattung

» Ticketing, Zutrittssysteme

» Umkleideanlagen, Garderoben

geo3 GmbH 47551 Bedburg-Hau, Deutschland kontakt@geo3.de www.geo3.de

» Architektur und Design

» Landschaftsarchitektur

» Machbarkeitsstudien

Gerflor Mipolam GmbH 53824 Troisdorf, Deutschland gerflormipolam@gerflor.com www.gerflor.de

» Mobile Sportböden, Abdecksysteme

» Sporthallenböden

GEZOLAN AG 6252 Dagmersellen, Schweiz customer-service@gezolan.com www.gezolan.com

» Elastikschichten, Fallschutzbeläge

» Multisportanlagen

» Sportböden für Freianlagen

» Sportplatzbau

» Sportrasen (Kunststoffrasen)

GfKK – Gesellschaft für Kältetechnik- Klimatechnik mbH 50859 Köln, Deutschland info@gfkk.de www.gfkk.de

» Eissportanlagenbau

» Eissportausstattung

» Sanitär, Heizung, Klimatechnik, Energierückgewinnung

Gütegemeinschaft Sportgeräte 53113 Bonn, Deutschland info@sichere-sporthalle.de www.sichere-sporthalle.de

» Sporthallenausstattung

» Sportplatzausstattung

» Prüfungen, Qualitätssicherung

81 sb 1/2023

Hamberger Flooring GmbH & Co. KG 83071 Stephanskirchen, Deutschland info@hamberger.de www.hamberger.de

» Decken, Fenster, Wandelemente

» Mobile Sportböden, Abdecksysteme

» Sportböden für Freianlagen

» Sporthallenböden

Hauraton GmbH & Co. KG 76437 Rastatt, Deutschland info@hauraton.com www.hauraton.com

» Entwässerungssysteme

» Sportplatzbau

» Sporthallenböden

heiler GmbH & Co. KG 33649 Bielefeld, Deutschland info@heiler-sport.de www.heiler-sport.de

» Reinigung und Pflege

» Sportplatzbau

» Sportrasen (Hybridrasen)

» Sportrasen (Kunststoffrasen)

» Sportrasen (Naturrasen)

Herculan BV 4231 DJ Meerkerk, Niederlande info@herculan.com www.herculan.com

» Multisportanlagen

» Sporthallenböden

» Sportböden für Freianlagen

HET Elastomertechnik 65203 Wiebaden, Deutschland info@het-group.com www.het-group.com

» Elastikschichten, Fallschutzbeläge

» Fitnessausstattung

» Spielplatzausstattung

» Sportböden für Freianlagen

Intercom Dr. Leitner 39040 Freienfeld, Italy intercom@leitner.it www.realice.info

» Eisbearbeitungsmaschinen

» Eishockeybanden

» Eissportanlagenbau

INTERGREEN AG

c/o Science to Business GmbH 60433 Frankfurt, Deutschland info@intergreen.de www.intergreen.de

» Reinigung und Pflege

» Sportplatzbau

» Sportrasen (Hybridrasen)

» Sportrasen (Kunststoffrasen)

» Sportrasen (Naturrasen)

ISP GmbH

48167 Münster, Deutschland info@isp-germany.com www.isp-germany.com

» Prüfungen, Qualitätssicherung

ISS GmbH

63263 Neu-Isenburg, Deutschland info@iss4u.de www.iss4u.de

» Eisbearbeitungsmaschinen

» Eishockeybanden

» Eissportanlagenbau

» Eissportausstattung

» Schwimmbadausstattung

IST – Institut für Sportbodentechnik 04416 Markkleeberg, Deutschland mario-kunze@gmx.net www.sportboden-leipzig.de

» Prüfungen, Qualitätssicherung

Jakob Rope Systems 3555 Trubschachen, Schweiz info@jakob.com www.jakob.com

» Fassaden und Gebäudehüllen

» Sicherheitssysteme, Zaunanlagen

» Spielfeldbanden und Netze

» Spiel- und Sportplatzausstattung

JUNCKERS INDUSTRIER A/S 4600 Køge, Dänemark sus@junckers.com www.junckers.com

» Multisportanlagen

» Sporthallenbau

» Sporthallenböden

» Stadion- und Arenabau

» Temporäre und modulare Bauten

82 sb 1/2023
PROFESSIONALS & PROFILES

KDF - Kataskeves Dapedon Ltd. 57010 Thessaloniki, Griechenland exports@kdf.gr www.kdf.gr

» Elastikschichten, Fallschutzbeläge

» Multisportanlagen

» Sportböden für Freianlagen

» Sporthallenböden

Keller Tersch GmbH 39218 Schönebeck, Deutschland info@kellertersch.de www.kellertersch.de

» Reinigung und Pflege

» Sportplatzbau

» Sportrasen (Hybridrasen)

» Sportrasen (Kunststoffrasen)

» Sportrasen (Naturrasen)

Kernig Consulting GmbH 48155 Münster, Deutschland info@andreaskernig.de www.kernig-consulting.de

» Consulting

KRAIBURG Relastec GmbH & Co. KG 29410 Salzwedel, Deutschland sportec@kraiburg-relastec.com www.kraiburg-relastec.com/sportec

» Elastikschichten, Fallschutzbeläge

» Spielplatzausstattung

» Sportböden für Freianlagen

» Sporthallenböden

Hermann Kutter LandschaftsbauSportplatzbau GmbH & Co. KG 87700 Memmingen, Deutschland info@kutter-galabau.de www.kutter-galabau.de

» Elastikschichten, Fallschutzbeläge

» Reinigung und Pflege

» Sportplatzbau

» Sportrasen (Kunststoffrasen)

» Sportrasen (Naturrasen)

Herbert Labarre GmbH & Co. KG 22337 Hamburg, Deutschland info@labarre-galabau.de www.labarre-galabau.de

» Reinigung und Pflege

» Sportplatzbau

» Sportrasen (Hybridrasen)

» Sportrasen (Kunststoffrasen)

» Sportrasen (Naturrasen)

Labor Lehmacher | Schneider GmbH & Co. KG 49076 Osnabrück, Deutschland info@labor-lehmacher.de www.l-l-s.de

Labosport International 72100 Le Mans, Frankreich contact@labosport.com www.labosport.com

Landskate GmbH 50823 Köln, Deutschland info@lndskt.de www.lndskt.de

» Prüfungen, Qualitätssicherung

» Prüfungen, Qualitätssicherung

Zeigen Sie Ihre Innovationen und Referenzen!

» Landschaftsarchitektur

83 sb 1/2023

LAUSIN Y VICENTE S.L.

50420 Cadrete, Spanien export@lausinyvicente.com www.lausinyvicente.com

» Hallentrennvorrichtungen

» Spielplatzausstattung

» Sporthallenausstattung

» Sportplatzausstattung

» Stadion- und Arenaausstattung

LIKE-ICE Science GmbH 84069 Schierling, Deutschland info@like-ice.com www.like-ice.com

» Eishockeybanden

» Mobile Sportböden, Abdecksysteme

» Sportböden für Freianlagen

Lindner Group 94424 Arnstorf, Deutschland info@lindner-group.com www.lindner-group.com

» Beleuchtungssysteme

» Decken, Fenster, Wandelemente

Wir helfen Ihnen gerne:

M3 Architectes 2737 Luxemburg, Luxemburg mail@m3archi.lu www.m3archi.lu

» Architektur und Design

Max Rosenau, Marketing rosenau@iaks.sport

Silke Bardenheuer, Mitgliederservices bardenheuer@iaks.sport

maier landschaftsarchitektur / Betonlandschaften

51107 Köln, Deutschland info@maierlandschaftsarchitektur.de www.maierlandschaftsarchitektur.de

» Landschaftsarchitektur

McArena GmbH 71522 Backnang, Deutschland info@mcarena.de www.mcarena.de

» Multisportanlagen

» Schlüsselfertigbau

» Sporthallenbau

Melos GmbH 49324 Melle, Deutschland info@melos-gmbh.com www.melos-gmbh.com

» Elastikschichten, Fallschutzbeläge

» Multisportanlagen

» Sportböden für Freianlagen

» Sportplatzbau

MYRTHA POOLS A&T Europe SPA 46043 Castiglione d/Stiviere (MN), Italien info@myrthapools.com www.myrthapools.com

» Schwimmbadbau

» Schwimmbeckenbau, andere Systeme

» Schwimmbeckenbau, Edelstahl

Nüssli (Deutschland) GmbH 91154 Roth, Deutschland roth@nussli.com www.nussli.com

» Schlüsselfertigbau

» Sporthallenbau

» Stadion- und Arenabau

» Temporäre und modulare Bauten

» Tribünen, Bestuhlung

Pellikaan Bauunternehmen Deutschland GmbH 40880 Ratingen, Deutschland info@pellikaan.de www.pellikaan.de

» Schlüsselfertigbau

» Schwimmbadausstattung

» Schwimmbadbau

» Sporthallenbau

84 sb 1/2023
PROFESSIONALS & PROFILES

PERROT-Regnerbau Calw GmbH 75382 Althengstett, Deutschland perrot@perrot.de www.perrot.de

» Bewässerungssysteme

Play-Parc Allwetter-Freizeitanlagenbau GmbH 33014 Bad Driburg, Deutschland info@playparc.de www.playparc.de

» Fitnessausstattung

» Freiraumausstattung

» Multisportanlagen

» Sporthallenausstattung

» Sportplatzausstattung

Polytan GmbH 86666 Burgheim, Deutschland info@polytan.com www.polytan.de

» Elastikschichten, Fallschutzbeläge

» Reinigung und Pflege

» Sportböden für Freianlagen

» Sportplatzbau

» Sportrasen (Kunststoffrasen)

Porplastic Sportbau von Cramm GmbH 72108 Rottenburg a.N., Deutschland info@porplastic.de www.porplastic.de

» Elastikschichten, Fallschutzbeläge

» Sportböden für Freianlagen

» Sporthallenböden

» Sportplatzbau

» Sportrasen (Kunststoffrasen)

Schmitz Foam Products BV 6040 KG Roermond, Niederlande sales@schmitzfoam.com www.schmitzfoam.com

» Elastikschichten, Fallschutzbeläge

» Sportböden für Freianlagen

» Sportplatzbau

» Sportrasen (Kunststoffrasen)

PS+ Planung von Sportstätten 49078 Osnabrück, Deutschland info@ps-planung.de www.ps-planung.de

» Architektur und Design

» Landschaftsarchitektur

Sika Nederland B.V. (Pulastic sports flooring) 7400 AK Deventer, Niederlande export@nl.sika.com www.pulastic.com

» Decken, Fenster, Wandelemente

» Multisportanlagen

» Sportböden für Freianlagen

» Sporthallenböden

REGUPOL BSW GmbH 57319 Bad Berleburg, Deutschland info@regupol.de www.regupol.com

» Elastikschichten, Fallschutzbeläge

» Mobile Sportböden, Abdecksysteme

» Spielplatzausstattung

» Sportböden für Freianlagen

» Sporthallenböden

RICHTER Sportstättenkonzepte GmbH 07629 Hermsdorf, Deutschland info@sportstaettenkonzepte.de www.sportstaettenkonzepte.de

» Architektur und Design

» Landschaftsarchitektur

85 sb 1/2023
Ihre Referenz auf einer halben Seite, im Newsletter und Ihr Logo im Unternehmensindex –für nur 870 EUR pro Jahr.

Robbins Sports Surfaces OH 45226 Cincinnati, USA info@robbinsfloor.com www.robbinsfloor.com

» Mobile Sportböden, Abdecksysteme

» Multisportanlagen

» Sporthallenböden

Signgrass® NIK-Tufting BV 5571 TJ Bergeijk, Niederlande info@signgrass.com www.signgrass.com

» Multisportanlagen

» Sportböden für Freianlagen

» Sportplatzbau

» Sportplatzausstattung

» Sportrasen (Kunststoffrasen)

Siteco Beleuchtungstechnik GmbH 83301 Traunreut, Deutschland info@siteco.de www.siteco.de

» Beleuchtungssysteme

SMC2 Vertriebsbüro Deutschland 60314 Frankfurt am Main, Deutschland kontakt@smc2-bau.de www.smc2-bau.de

» Fassaden und Gebäudehüllen

» Feste und mobile Dachsysteme

» Multisportanlagen

» Schlüsselfertigbau

» Sporthallenbau

SMG Sportplatzmaschinenbau GmbH 89269 Vöhringen, Deutschland info@smg-machines.com www.smg-machines.com

» Reinigung und Pflege

» Sportplatzausstattung

» Sportplatzbau

Holz-Speckmann GmbH & Co. KG 33790 Halle/ Westfalen, Deutschland info@speed-lock.com www.speed-lock.com

» Mobile Sportböden, Abdecksysteme

» Sporthallenböden

Spieth Gymnastics GmbH 73776 Altbach, Deutschland info@spieth-gymnastics.com www.spieth-gymnastics.com

» Elastikschichten, Fallschutzbeläge

» Sporthallenausstattung

» Mobile Sportböden, Abdecksysteme

» Sportplatzausstattung

SonoBeacon GmbH 23966 Wismar, Deutschland info@sonobeacon.com www.sonobeacon.com

» Digitale Lösungen

» Stadion- und Arenaausstattung

» Ticketing, Zutrittssysteme

STARGUM Zakład Przemysłu Gumowego 73-110, Stargard Szczecinski, Polen office@stargum.pl www.stargum.pl

» Elastikschichten, Fallschutzbeläge

» Multisportanlagen

» Sporthallenböden

» Sportböden für Freianlagen

» Sportrasen (Kunststoffrasen)

STOCKMEIER URETHANES GmbH & Co.KG 32657 Lemgo, Deutschland urethanes.ger@stockmeier.com www.stockmeier-urethanes.de

» Elastikschichten, Fallschutzbeläge

» Sportböden für Freianlagen

» Sporthallenböden

Tatamsport 50014 Zaragoza, Spanien tatamsport@toldosserrano.com www.tatamsport.com

» Hallentrennvorrichtungen

» Sporthallenausstattung

Trenomat GmbH & Co. KG 42327 Wuppertal, Deutschland info@trenomat.de www.trenomat.de

» Hallentrennvorrichtungen

» Mobile Sportböden, Abdecksysteme

» Spielfeldbanden, Netze

» Sporthallenausstattung

86 sb 1/2023
PROFESSIONALS & PROFILES

Troldtekt GmbH

22763 Hamburg, Deutschland info@troldtekt.com www.troldtekt.com

» Decken, Fenster, Wandelemente

TURNBAR by Eiden & Wagner 54634 Bitburg, Deutschland info@turnbar.net www.turnbar.net

» Fitnessausstattung

» Freiraumausstattung

» Multisportanlagen

» Sporthallenausstattung

» Sportplatzausstattung

Universal Sport Sportgeräteherstellungs- und Vertriebs GmbH 71101 Schönaich, Deutschland info@universal-sport.com www.universal-sport.com

» Multisportanlagen

» Spielfeldbanden, Netze

» Sporthallenausstattung

» Sportplatzausstattung

» Stadion- und Arenaausstattung

Vindico Sport GmbH 73463 Westhausen, Deutschland info@vindico-sport.de www.vindico-sport.com

» Freiraumausstattung

» Multisportanlagen

» Stadion- und Arenaausstattung

» Sportplatzbau

» Sportplatzausstattung

Hans-Joachim Weitzel GmbH & Co. KG 25436 Tornesch, Deutschland schult@hjweitzel.de www.hjweitzel.de

» Elastikschichten, Fallschutzbeläge

» Multisportanlagen

» Sportböden für Freianlagen

» Sportplatzbau

» Sportrasen (Kunststoffrasen)

WM GmbH 39053 Blumau, Italien info@wm-technics.com www.wm-on-ice.com

» Eisbearbeitungsmaschinen

ZELLER bäderbau GmbH

89520 Heidenheim, Deutschland info@zeller-baederbau.com www.zeller-baederbau.com

» Schwimmbadausstattung

» Schwimmbadbau

» Schwimmbeckenbau, Edelstahl

Züko Deutschland GmbH 78176 Blumberg, Deutschland deutschland@zueko.com www.zueko.com

» Eishockeybanden

» Eisbearbeitungsmaschinen

» Eissportanlagenbau

» Eissportausstattung

» Umkleideanlagen, Garderoben

87 sb 1/2023

sb 1/2023

Redaktion und Verlag

IAKS

Internationale Vereinigung Sportund Freizeiteinrichtungen e.V.

Eupener Straße 70

50933 Köln, Deutschland

Fon +49 (0) 221 16 80 23- 0

Fax +49 (0) 221 16 80 23-23

sb@iaks.sport www.iaks.sport

Generalsekretär und verantwortlich Klaus Meinel meinel@iaks.sport

Grafik

Yannik Dettmer dettmer@iaks.sport

Fon +49(0)221 168023-0

Marketing

Maximilian Rosenau rosenau@iaks.sport

Fon +49(0)221 168023-13

Über die zum Ausdruck angenommenen Arbeiten kann der Verlag uneingeschränkt verfügen.

Nachdruck oder Vervielfältigungen, auch auszugsweise, nur mit schriftlicher Genehmigung des Verlages.

Abopreis 2023

65 EUR Deutschland

85 EUR Andere Länder

12 EUR Einzelheft

ISSN (Print): 0036-102X

ISSN (Internet): ISSN 2198-4271

Gerichtsstand und Erfüllungsort: Köln

Anzeigenpreise: Mediadaten 2023

Übersetzung/Lektorat

Tim Chafer, ExperTeam

Otto-Hahn-Str. 57, DE – 40591 Düsseldorf

Euro-Sprachendienst Jellen

Rheinaustr. 125, DE – 53225 Bonn www.euro-sprachendienst.de

Druck

Idee Druckhaus GmbH

Robert-Bosch-Straße 6, DE – 50181 Bedburg www.idee-druckhaus.de

Internationale Fachzeitschrift für Sportstätten und Freizeitanlagen

Redaktion Silke Bardenheuer bardenheuer@iaks.sport

Fon +49(0)221 168023-11

Redaktion und Marketing Thomas Kick kick@iaks.sport

Fon +49(0)221 168023-12

Abonnements

Stephanie Brendt-Lüken brendt-lueken@iaks.sport

Fon +49(0)221 168023-14

NÄCHSTE AUSGABEN

Ausgabe 2/2023 – Stadien und Sportplätze

Erscheinungsdatum: 28.04.2023

Ausgabe 3/2023 – Bäder und Wellnessanlagen

Erscheinungsdatum: 30.06.2023

88 sb 1/2023
IMPRESSUM
Foto: Alex Filz Foto: Gensler - Ryan Gobuty

SPORT

BAUTEN

Weltweit führendes internationales Forum für Planung, Bau und Management von Sport- und Freizeitanlagen

Okt 2023, Köln, Deutschland

89 sb 1/2023
IAKS
24.-27.
©
28. IAKS Kongress
- UND FREIZEIT -
GESELLSCHAFT
ALS FUNDA MENT EINER RESILIENTEN

Wir meinen: Es hätte sein können!

Eine kollaborative, digitale und damit zeit- und kosteneffiziente Projektabwicklung steht bei uns im Fokus des Gesamtprozesses. Ihre Projekte werden bei uns nach LEAN-Methodik in Echtzeit aufgesetzt und um alle Design- und Konstruktionsabläufe zu optimieren, immer unter Verwendung der neuesten BIM-Technologien. Dabei denken wir nicht nur an morgen, sondern auch an die fernere Zukunft: Wir bauen nachhaltig, effizient und mit hohem Wohlfühlfaktor.

www.pellikaan.de

Es heißt, Rom wurde nicht an einem Tag erbaut.

Turn static files into dynamic content formats.

Create a flipbook
Issuu converts static files into: digital portfolios, online yearbooks, online catalogs, digital photo albums and more. Sign up and create your flipbook.